Скачать Серия 1.045.9-1 Выпуск 2-1. Потолки из минераловатных плит. Конструкции и узлы. Рабочие чертежи

Дата актуализации: 01.01.2021

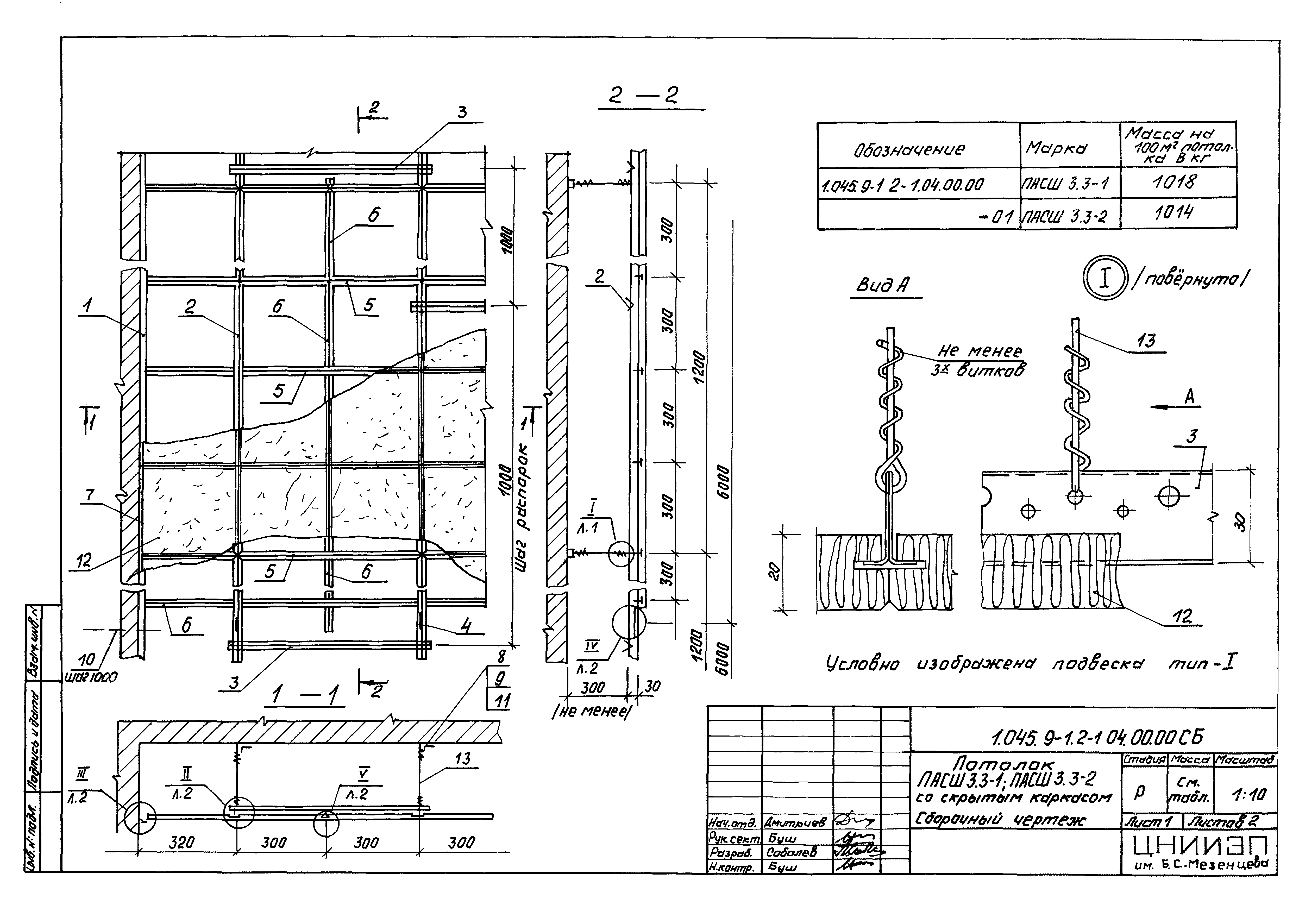
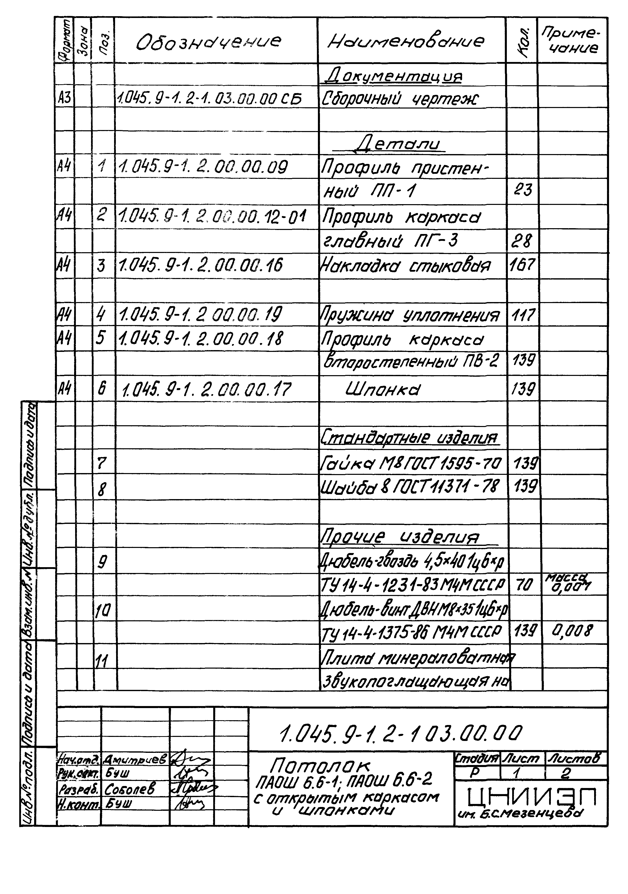
Серия 1.045.9-1

Выпуск 2-1. Потолки из минераловатных плит. Конструкции и узлы. Рабочие чертежи

Обозначение: Серия 1.045.9-1
Обозначение англ: Series 1.045.9-1
Статус:не определен законодательством
Название рус.:Выпуск 2-1. Потолки из минераловатных плит. Конструкции и узлы. Рабочие чертежи
Дата добавления в базу:01.09.2013
Дата актуализации:01.01.2021
Дата введения:01.11.1987
Дата окончания срока действия:30.06.2003
Разработан: ЦНИИЭП им. Б.С. Мезенцева Госгражданстроя
Утверждён:14.08.1987 Госстрой СССР (Государственный комитет Совета Министров СССР по делам строительства) (USSR Gosstroy АЧ-75)
Принят: Промстройпроект (Promstroyproject )
Серия 1.045.9-1Серия 1.045.9-1Серия 1.045.9-1Серия 1.045.9-1Серия 1.045.9-1Серия 1.045.9-1Серия 1.045.9-1Серия 1.045.9-1Серия 1.045.9-1Серия 1.045.9-1Серия 1.045.9-1Серия 1.045.9-1Серия 1.045.9-1Серия 1.045.9-1Серия 1.045.9-1Серия 1.045.9-1Серия 1.045.9-1Серия 1.045.9-1Серия 1.045.9-1Серия 1.045.9-1Серия 1.045.9-1Серия 1.045.9-1Серия 1.045.9-1Серия 1.045.9-1Серия 1.045.9-1Серия 1.045.9-1Серия 1.045.9-1Серия 1.045.9-1