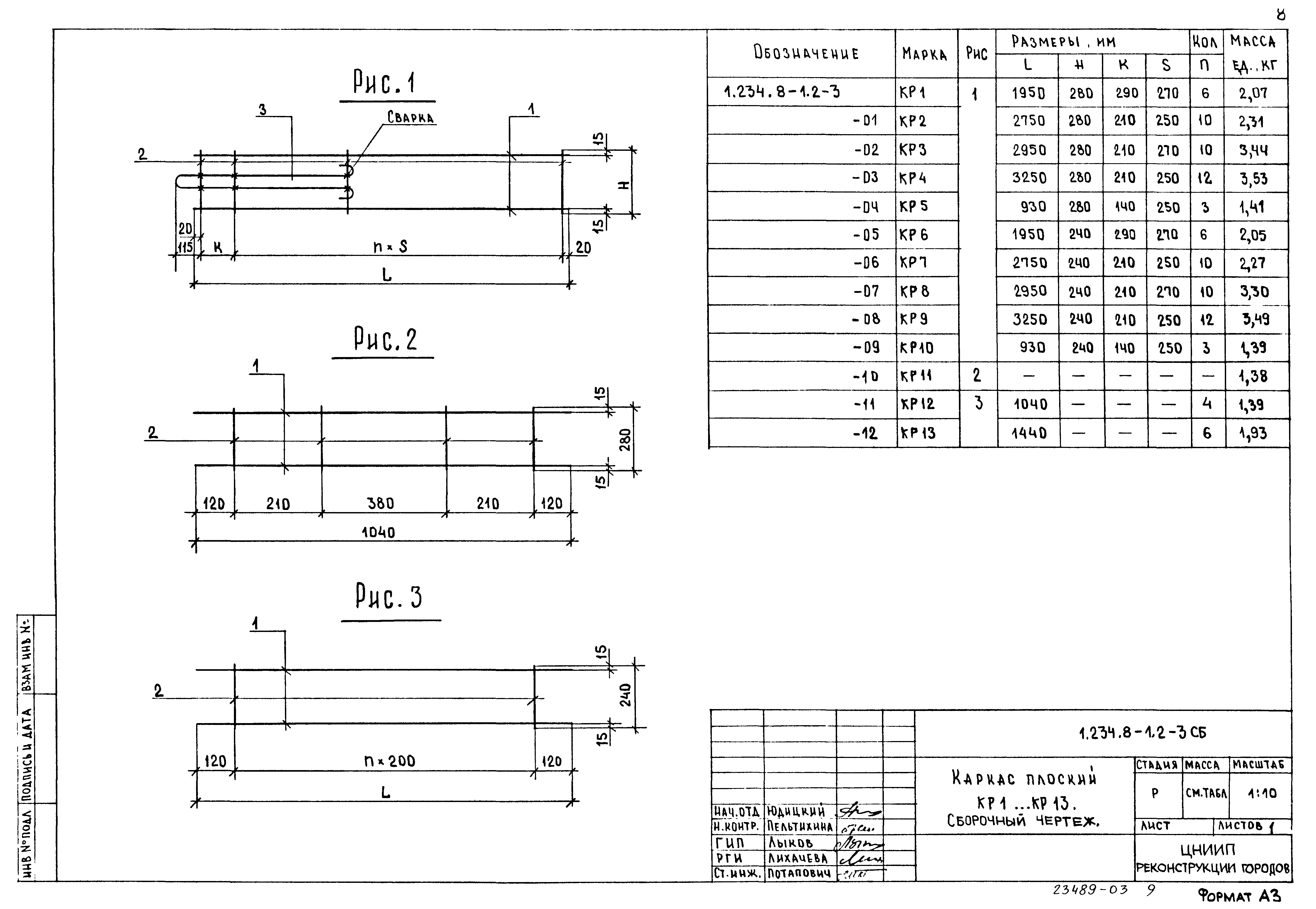
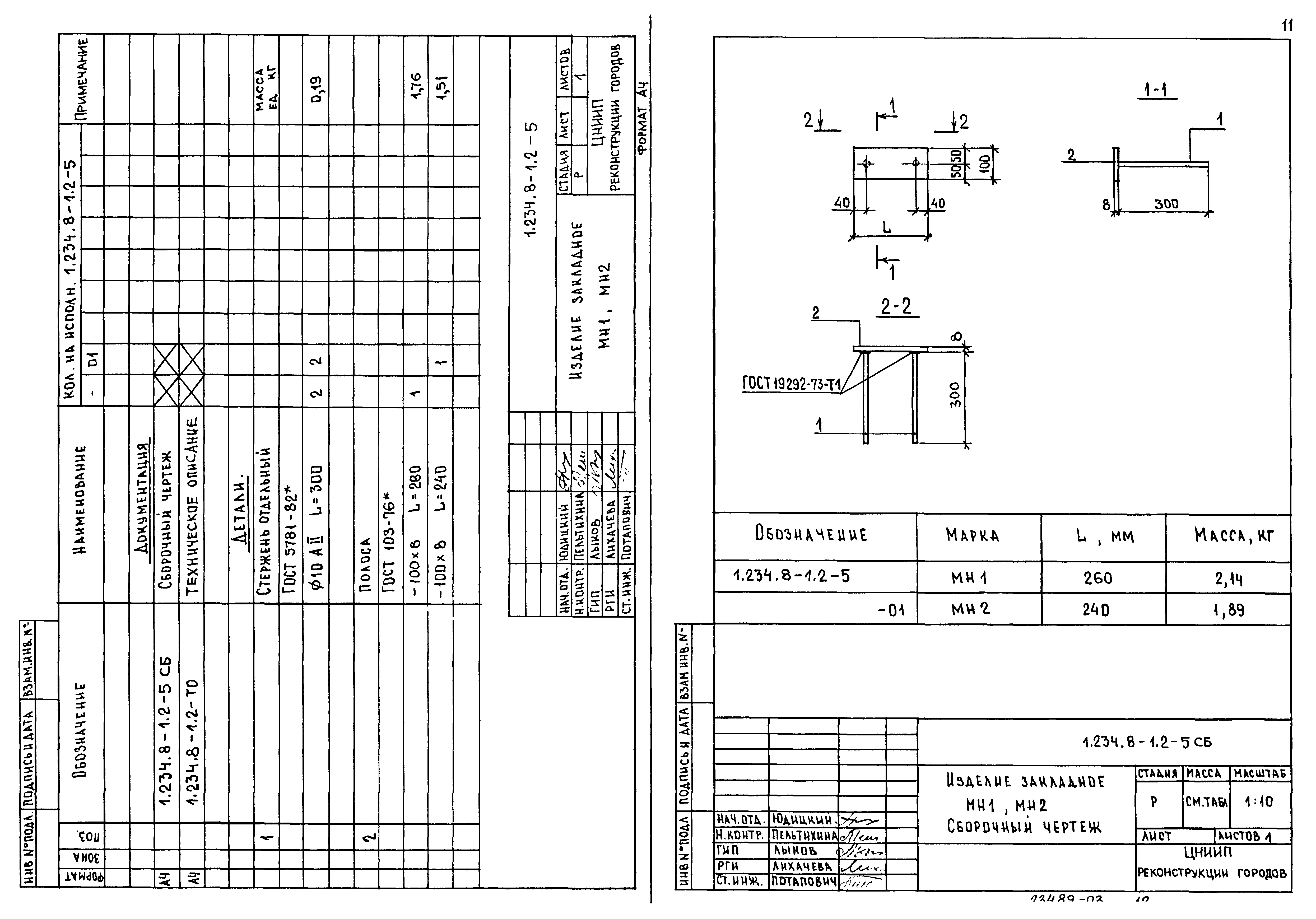
Скачать Серия 1.234.8-1 Выпуск 2. Изделия арматурные. Рабочие чертежиДата актуализации: 01.01.2021
|
| Обозначение: | Серия 1.234.8-1 |
| Обозначение англ: | Series 1.234.8-1 |
| Статус: | не определен законодательством |
| Название рус.: | Выпуск 2. Изделия арматурные. Рабочие чертежи |
| Дата добавления в базу: | 01.09.2013 |
| Дата актуализации: | 01.01.2021 |
| Дата введения: | 01.04.1989 |
| Дата окончания срока действия: | 30.06.2003 |
| Разработан: | ЦНИИП реконструкции городов Госкомархитектуры |
| Утверждён: | 20.01.1988 Госкомархитектура (7-22) |
| Издан: | ЦИТП Госстроя СССР (CITP, Gosstroy (USSR) 1989 г. ) |













