Скачать Серия 1.136.9-22 Выпуск 2. Алюминиевая облицовка окон и балконных дверей деревянных с тройным остеклением по ГОСТ 16289-80. Чертежи КМ

Дата актуализации: 01.01.2021

Серия 1.136.9-22

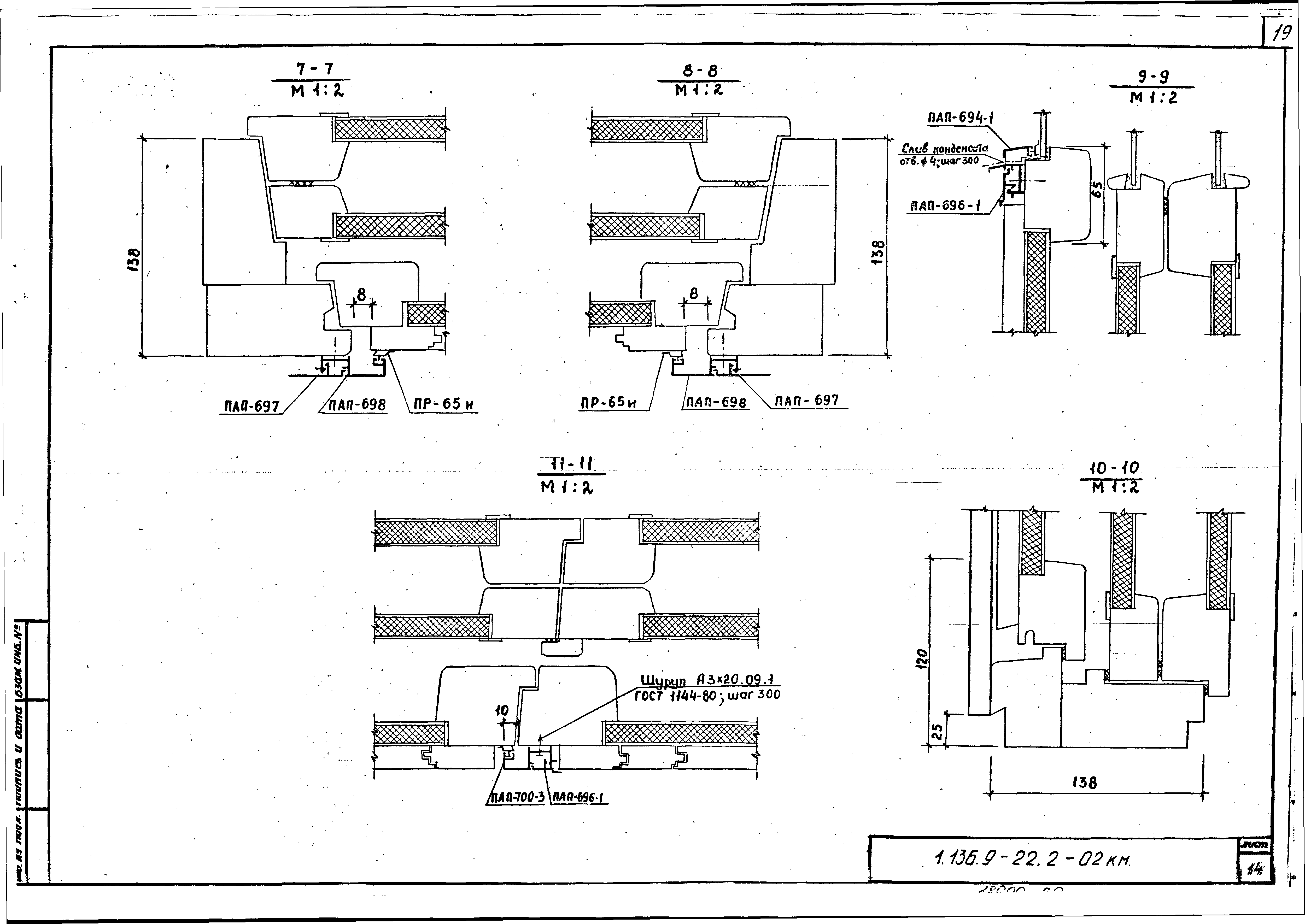
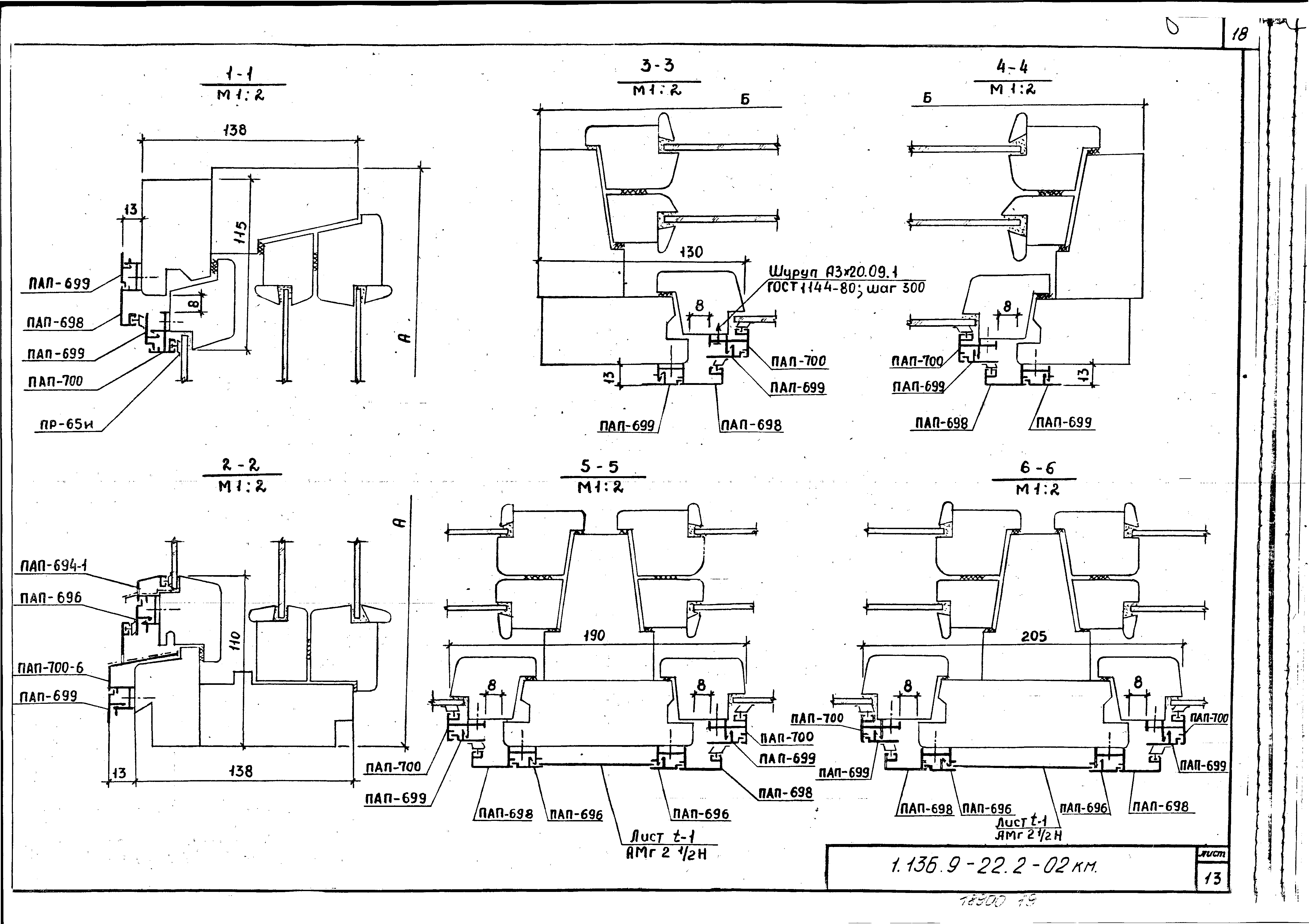
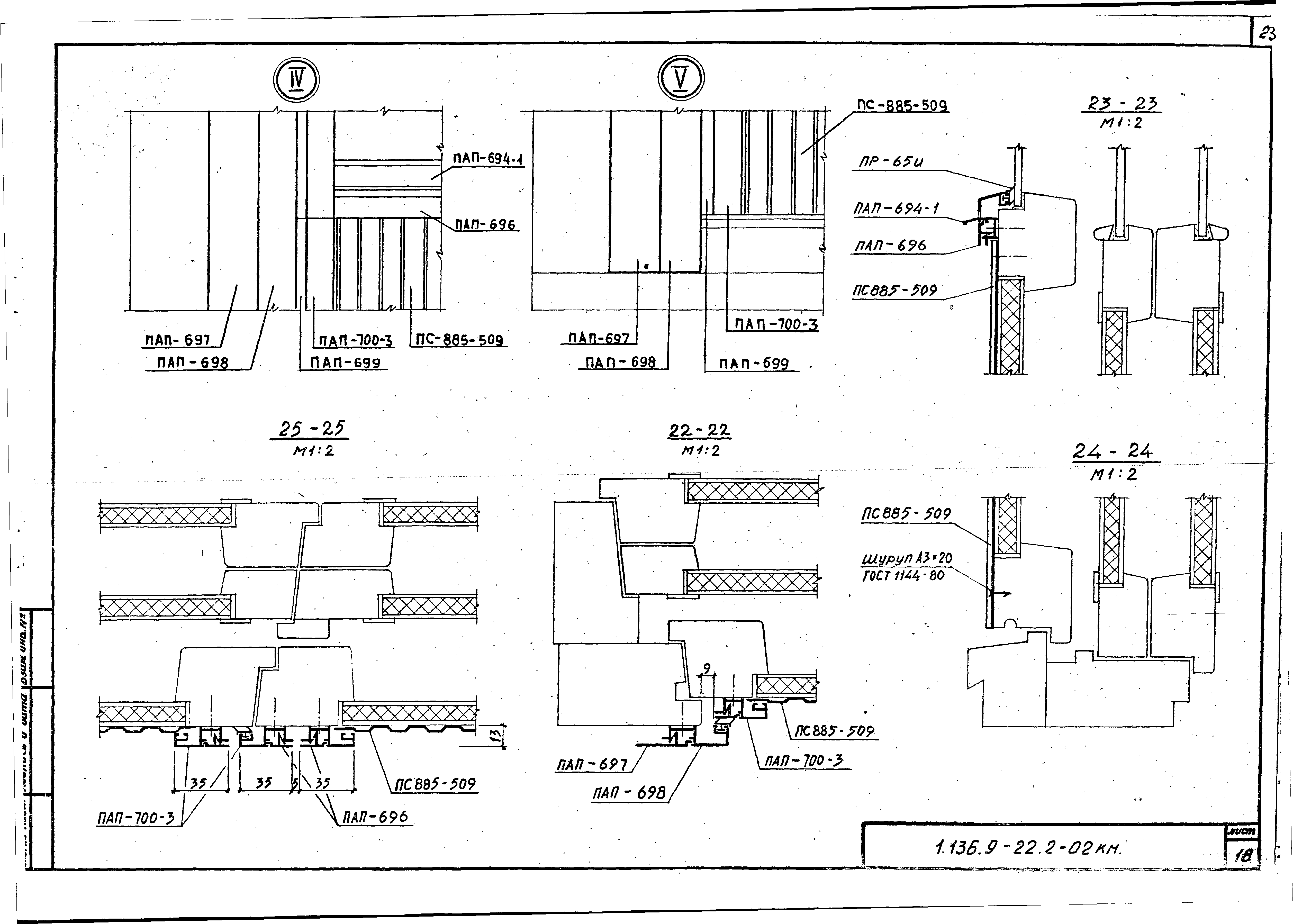
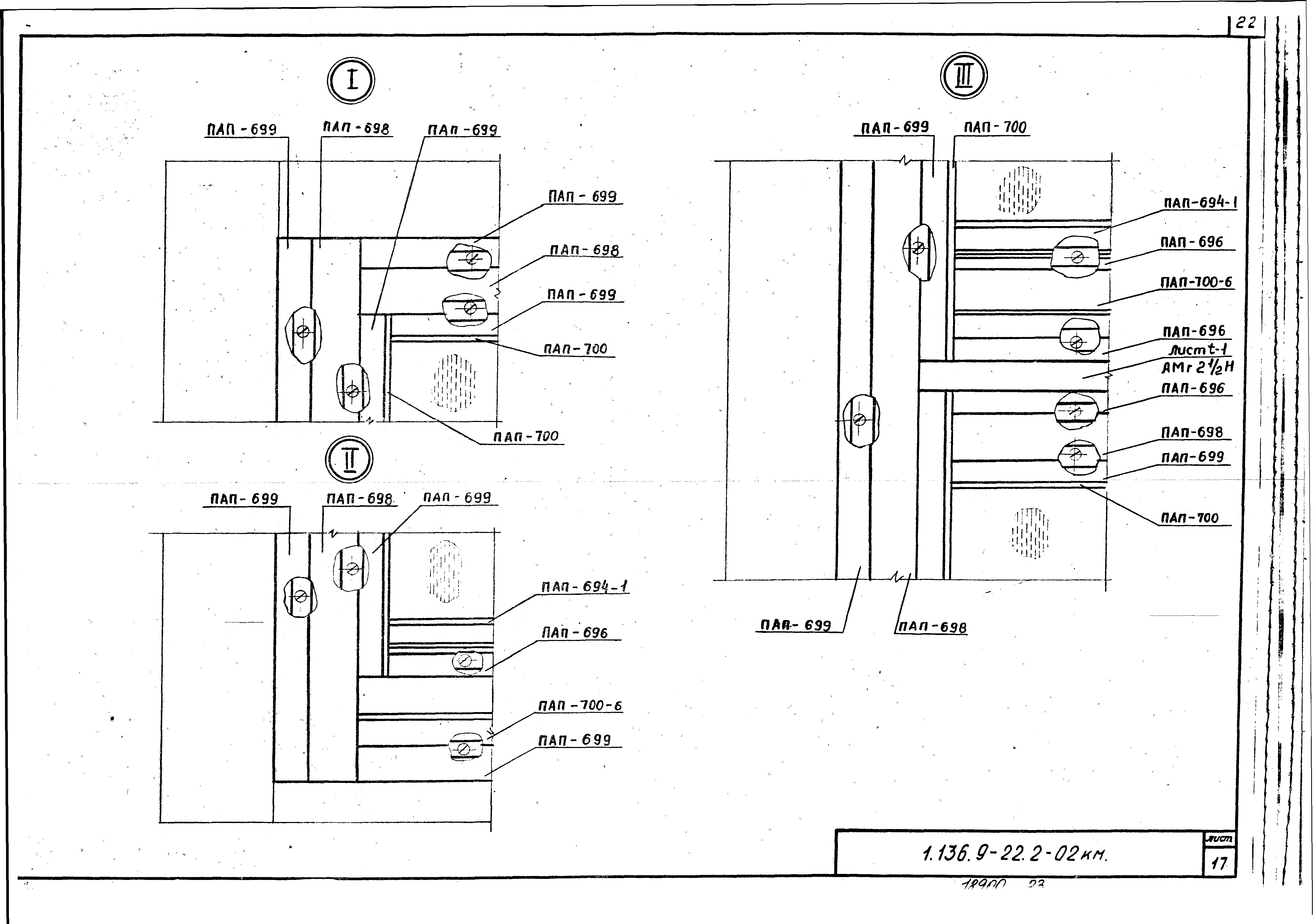
Выпуск 2. Алюминиевая облицовка окон и балконных дверей деревянных с тройным остеклением по ГОСТ 16289-80. Чертежи КМ

Обозначение: Серия 1.136.9-22
Обозначение англ: Series 1.136.9-22
Статус:действует
Название рус.:Выпуск 2. Алюминиевая облицовка окон и балконных дверей деревянных с тройным остеклением по ГОСТ 16289-80. Чертежи КМ
Дата добавления в базу:01.09.2013
Дата актуализации:01.01.2021
Дата введения:05.07.1983
Разработан: КиевЗНИИЭП Госгражданстроя
Утверждён:05.07.1983 Государственный комитет по гражданскому строительству и архитектуре при Госстрое СССР (198)
Издан: ЦИТП Госстроя СССР (CITP, Gosstroy (USSR) 1983 г. )
Нормативные ссылки:
Серия 1.136.9-22Серия 1.136.9-22Серия 1.136.9-22Серия 1.136.9-22Серия 1.136.9-22Серия 1.136.9-22Серия 1.136.9-22Серия 1.136.9-22Серия 1.136.9-22Серия 1.136.9-22Серия 1.136.9-22Серия 1.136.9-22Серия 1.136.9-22Серия 1.136.9-22Серия 1.136.9-22Серия 1.136.9-22Серия 1.136.9-22Серия 1.136.9-22Серия 1.136.9-22Серия 1.136.9-22Серия 1.136.9-22Серия 1.136.9-22Серия 1.136.9-22Серия 1.136.9-22Серия 1.136.9-22Серия 1.136.9-22Серия 1.136.9-22Серия 1.136.9-22Серия 1.136.9-22Серия 1.136.9-22Серия 1.136.9-22Серия 1.136.9-22