Скачать Серия 1.436.4-20 Выпуск 2. Окна с двойным остеклением (стеклопакет) в одинарном переплете из комбинированных профилей. Рабочие чертежи

Дата актуализации: 01.01.2021

Серия 1.436.4-20

Выпуск 2. Окна с двойным остеклением (стеклопакет) в одинарном переплете из комбинированных профилей. Рабочие чертежи

Обозначение: Серия 1.436.4-20
Обозначение англ: Series 1.436.4-20
Статус:не определен законодательством
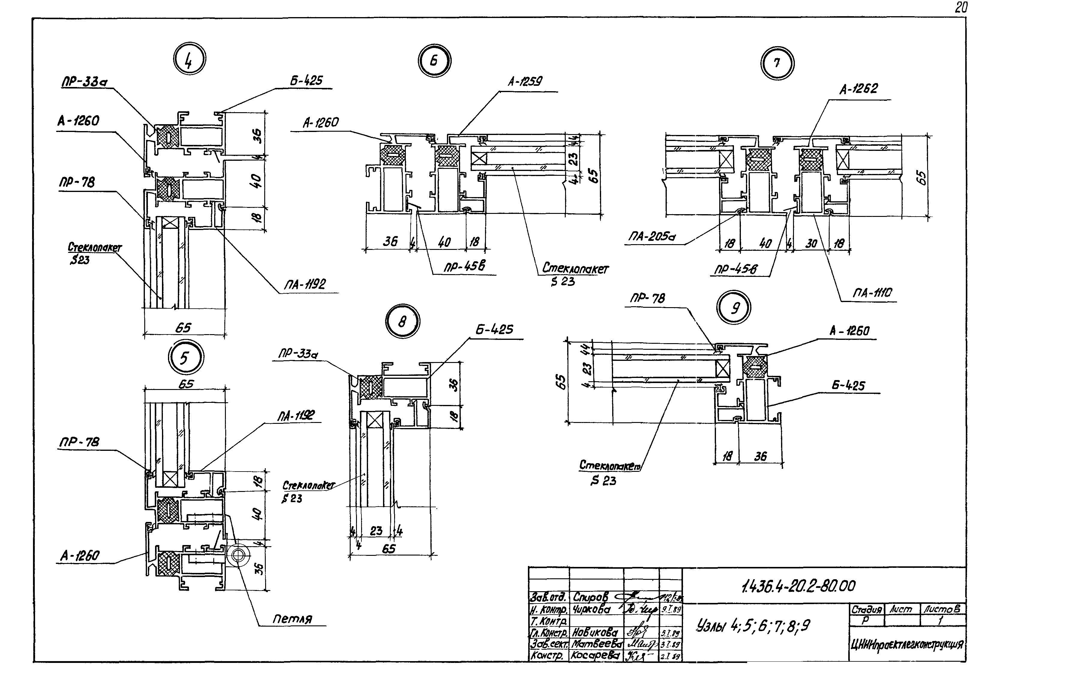
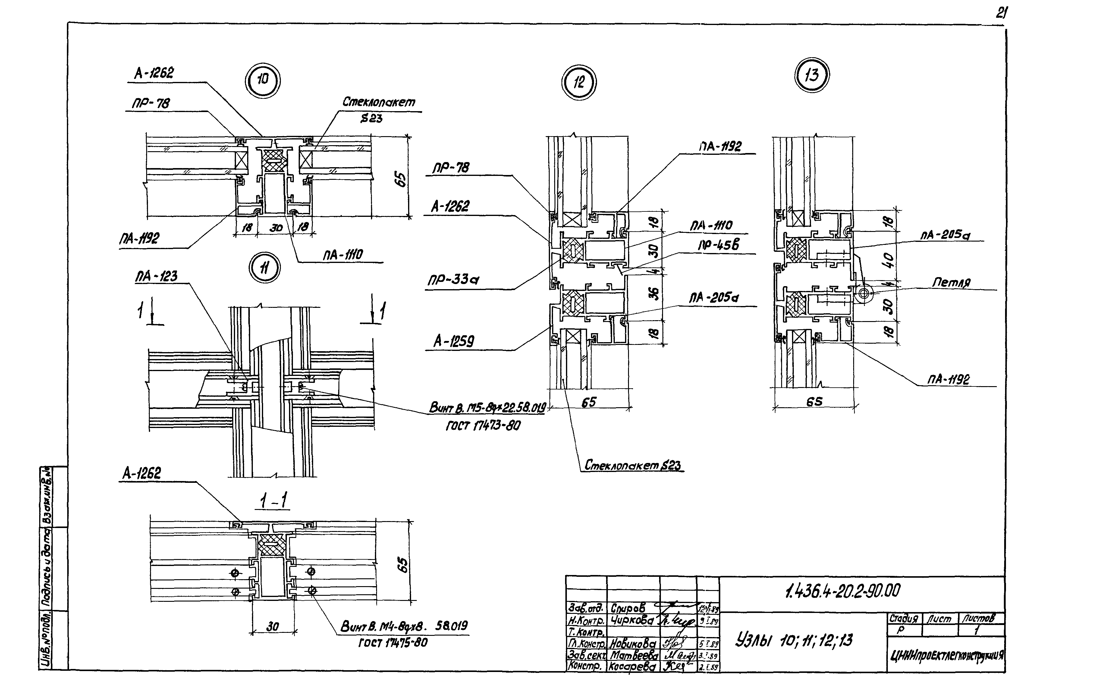
Название рус.:Выпуск 2. Окна с двойным остеклением (стеклопакет) в одинарном переплете из комбинированных профилей. Рабочие чертежи
Дата добавления в базу:01.09.2013
Дата актуализации:01.01.2021
Дата введения:01.07.1989
Дата окончания срока действия:30.06.2003
Разработан: АО ЦНИИпромзданий
ЦНИИПроектлегконструкция
Утверждён:16.06.1989 Госстрой СССР (Государственный комитет Совета Министров СССР по делам строительства) (USSR Gosstroy 4/5-928)
Издан: ЦИТП Госстроя СССР (CITP, Gosstroy (USSR) 1989 г. )
Серия 1.436.4-20Серия 1.436.4-20Серия 1.436.4-20Серия 1.436.4-20Серия 1.436.4-20Серия 1.436.4-20Серия 1.436.4-20Серия 1.436.4-20Серия 1.436.4-20Серия 1.436.4-20Серия 1.436.4-20Серия 1.436.4-20Серия 1.436.4-20Серия 1.436.4-20Серия 1.436.4-20Серия 1.436.4-20Серия 1.436.4-20Серия 1.436.4-20Серия 1.436.4-20Серия 1.436.4-20Серия 1.436.4-20Серия 1.436.4-20Серия 1.436.4-20Серия 1.436.4-20