Скачать Серия 1.435.3-30 Выпуск 1. Рабочие чертежиДата актуализации: 01.01.2021
|
| Обозначение: | Серия 1.435.3-30 |
| Обозначение англ: | Series 1.435.3-30 |
| Статус: | не определен законодательством |
| Название рус.: | Выпуск 1. Рабочие чертежи |
| Дата добавления в базу: | 01.09.2013 |
| Дата актуализации: | 01.01.2021 |
| Дата введения: | 01.12.1988 |
| Дата окончания срока действия: | 30.06.2003 |
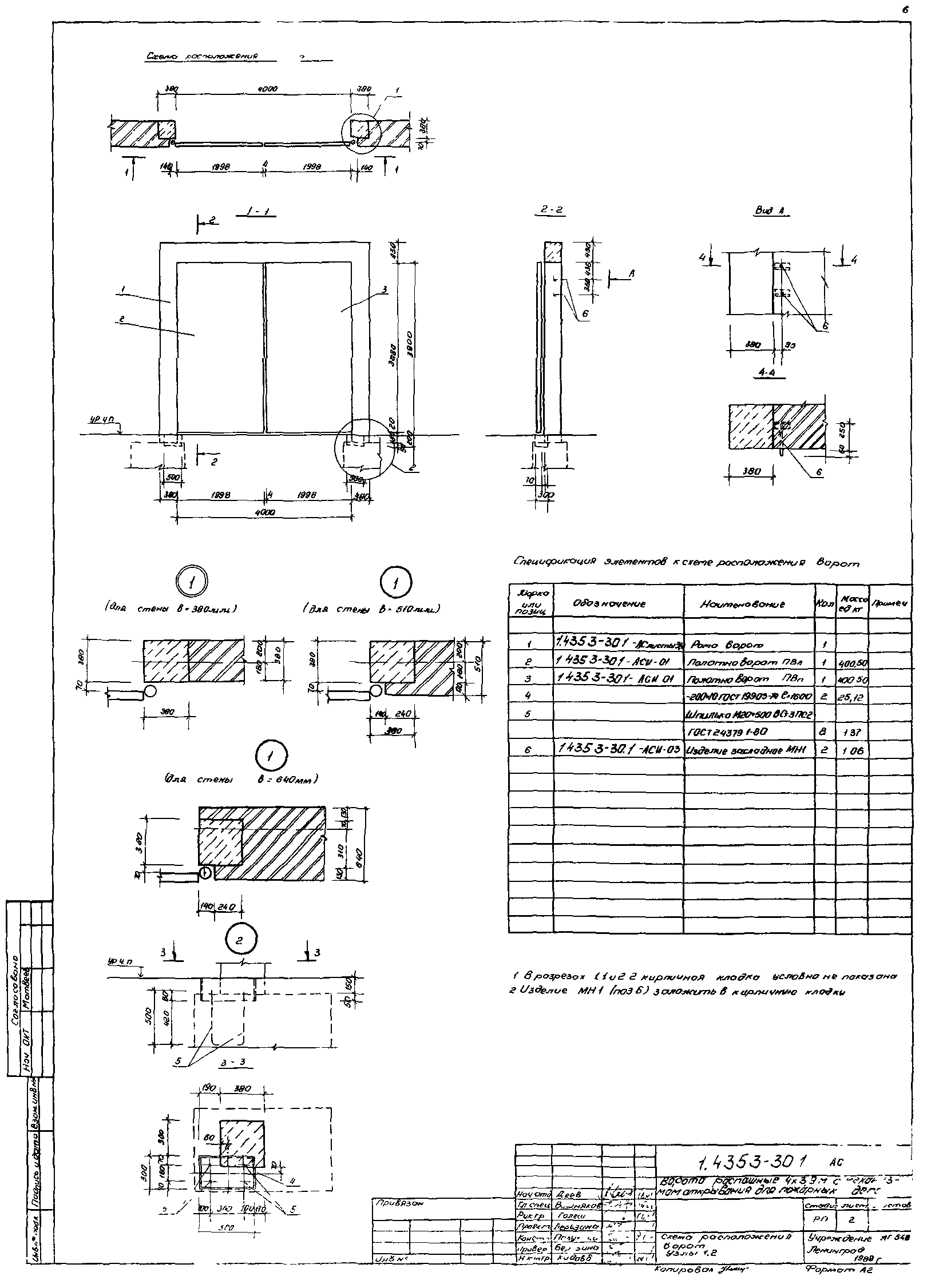
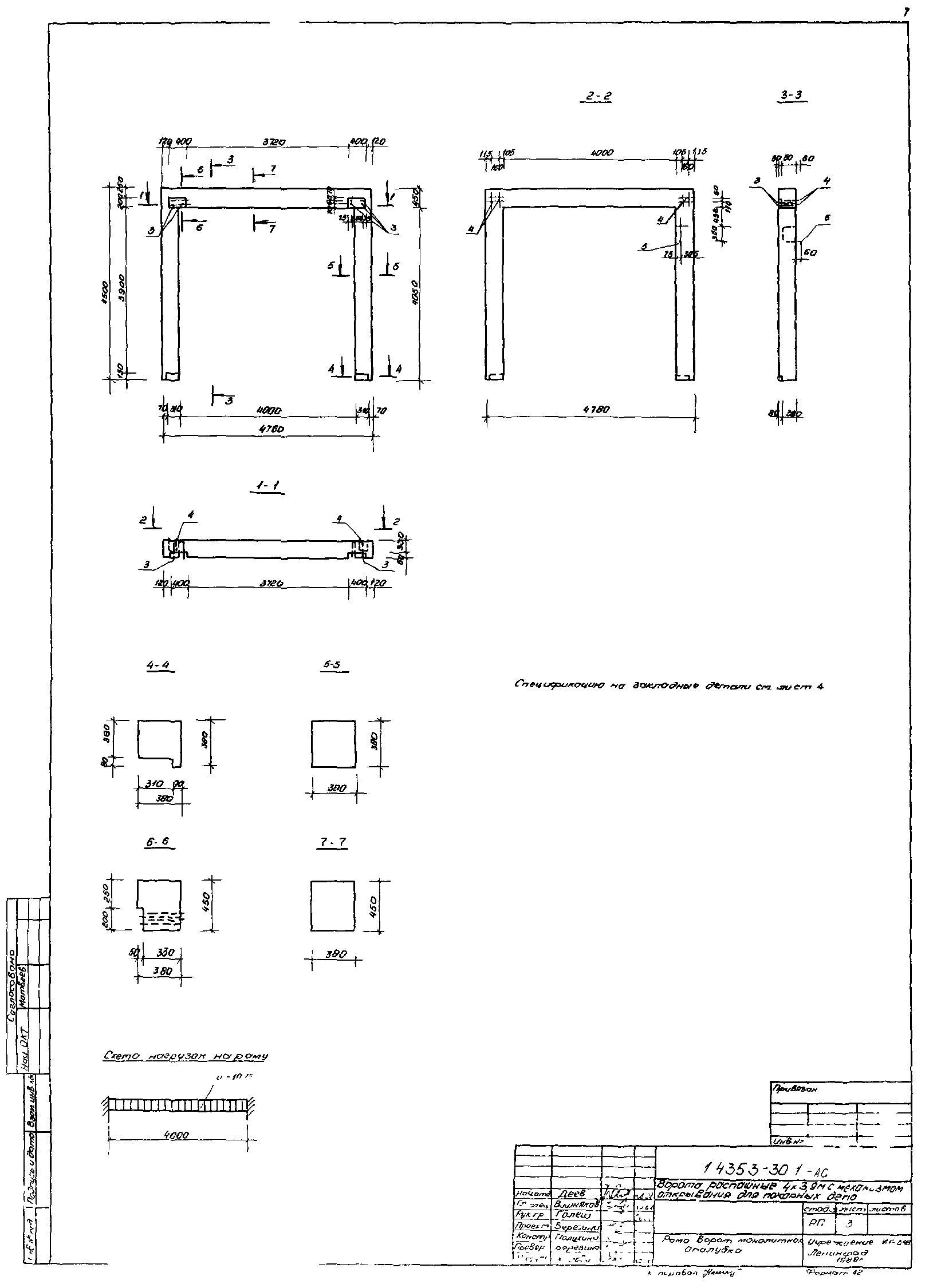
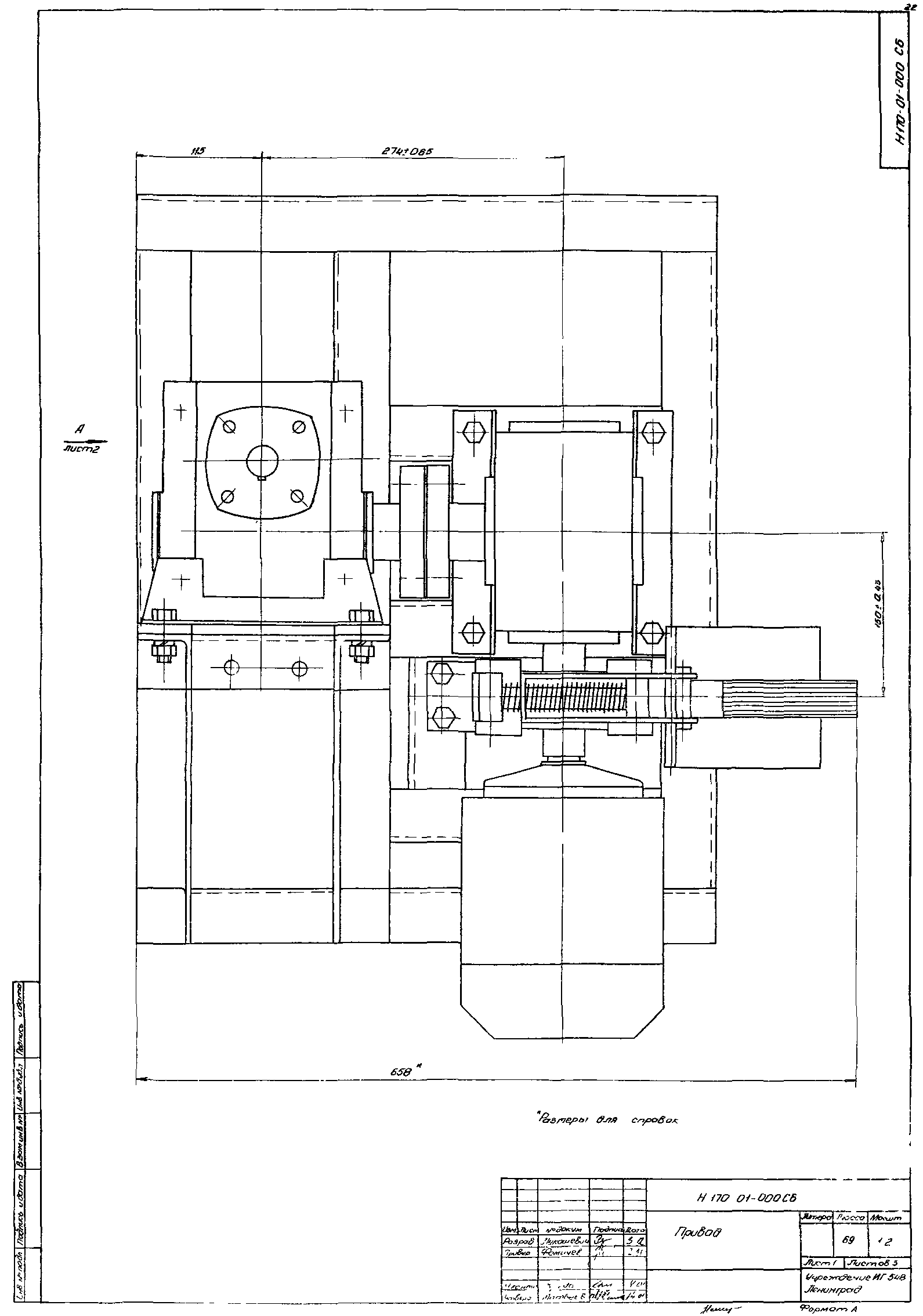
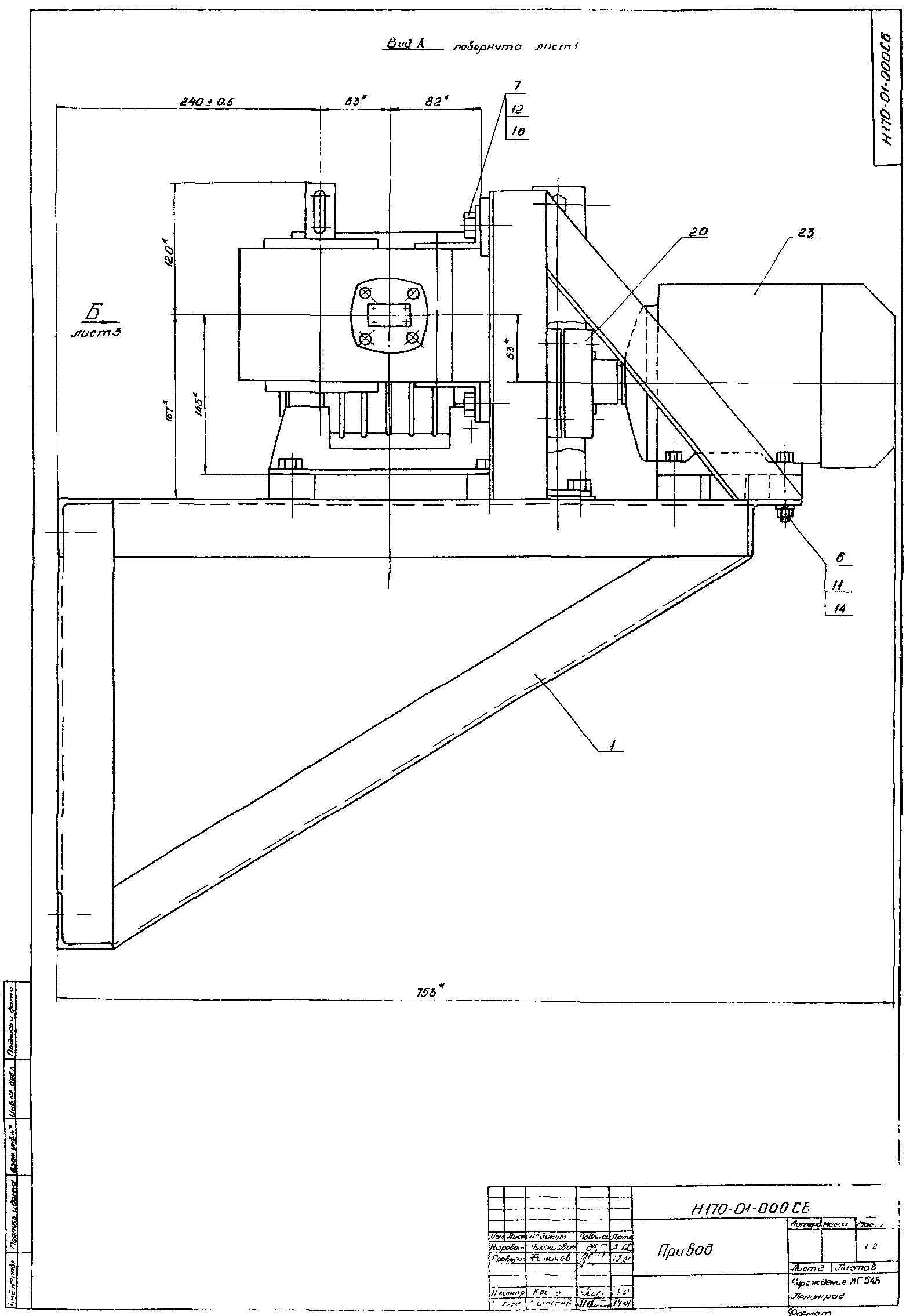
| Область применения: | Проект разработан применительно к типовым проектам пожарных депо на 2, 4, 6 и 8 автомобилей |
| Разработан: | Учреждение ИГ-548 |
| Утверждён: | 26.05.1988 МВД СССР (USSR Ministry of Internal Affairs 40-88) |





























































