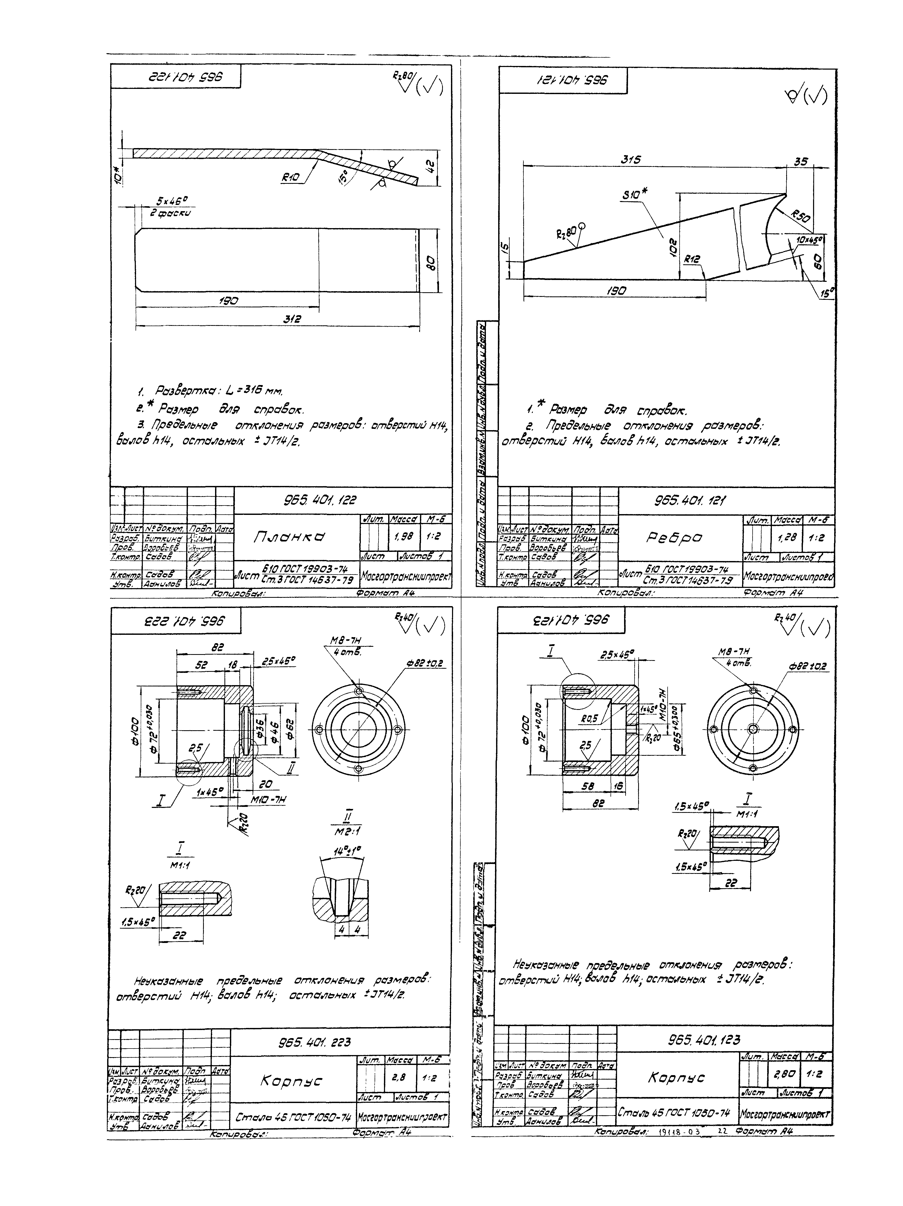
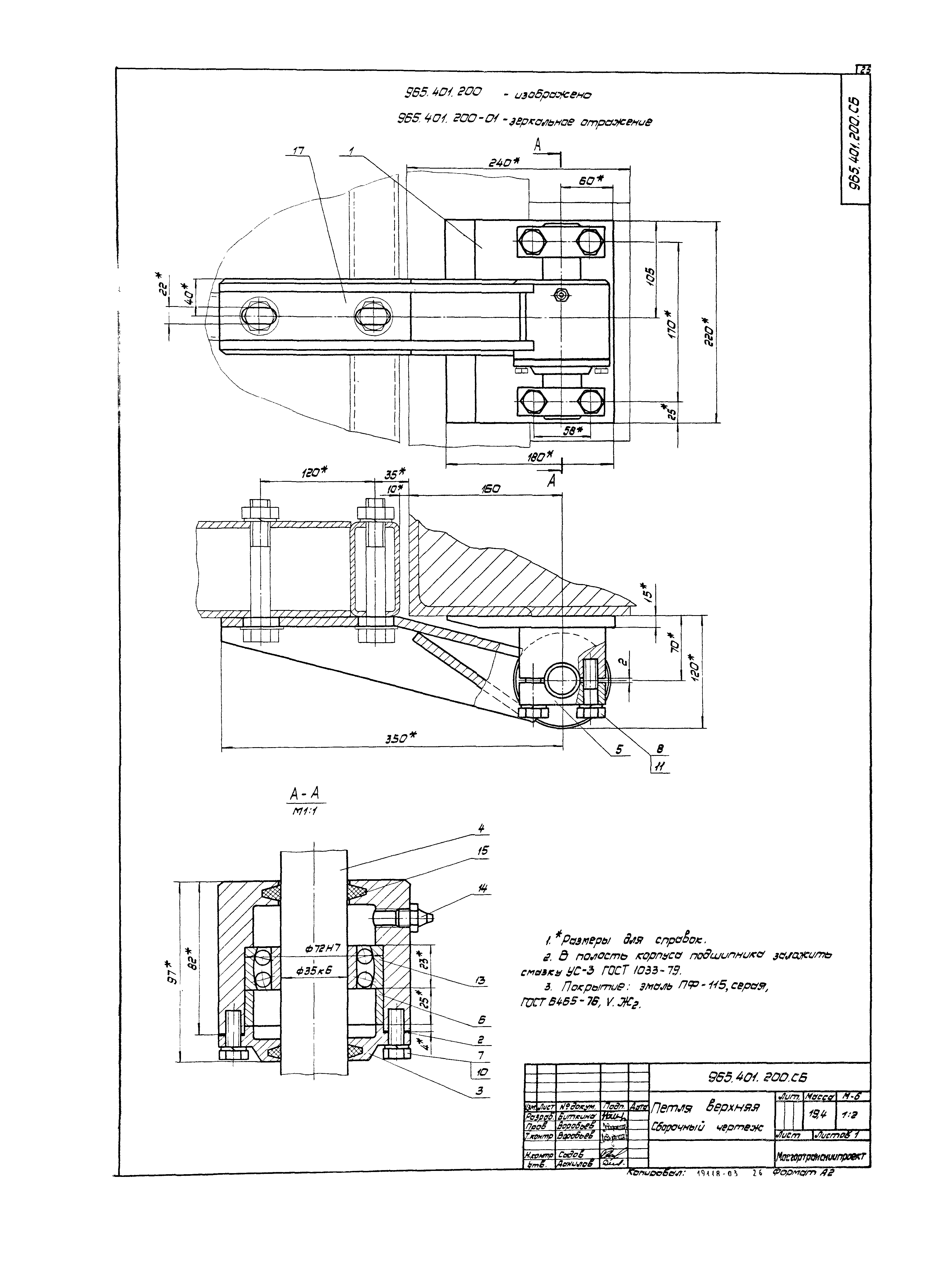
Скачать Серия 1.435.2-23 Выпуск 3. Узлы и детали воротДата актуализации: 01.01.2021
|
| Обозначение: | Серия 1.435.2-23 |
| Обозначение англ: | Series 1.435.2-23 |
| Статус: | не определен законодательством |
| Название рус.: | Выпуск 3. Узлы и детали ворот |
| Дата добавления в базу: | 01.09.2013 |
| Дата актуализации: | 01.01.2021 |
| Дата введения: | 01.09.1983 |
| Дата окончания срока действия: | 30.06.2003 |
| Разработан: | Мосгортрансниипроект |
| Утверждён: | 10.08.1983 Мосгорисполком (Mosgorispolkom 2550) |











































