Скачать Серия 1.188-5 Выпуск 6. Санитарно-технические сборочные чертежи разобщенных и совмещенных кабин типа Колпак из тяжелого цементного бетона и керамзитобетона

Дата актуализации: 01.01.2021

Серия 1.188-5

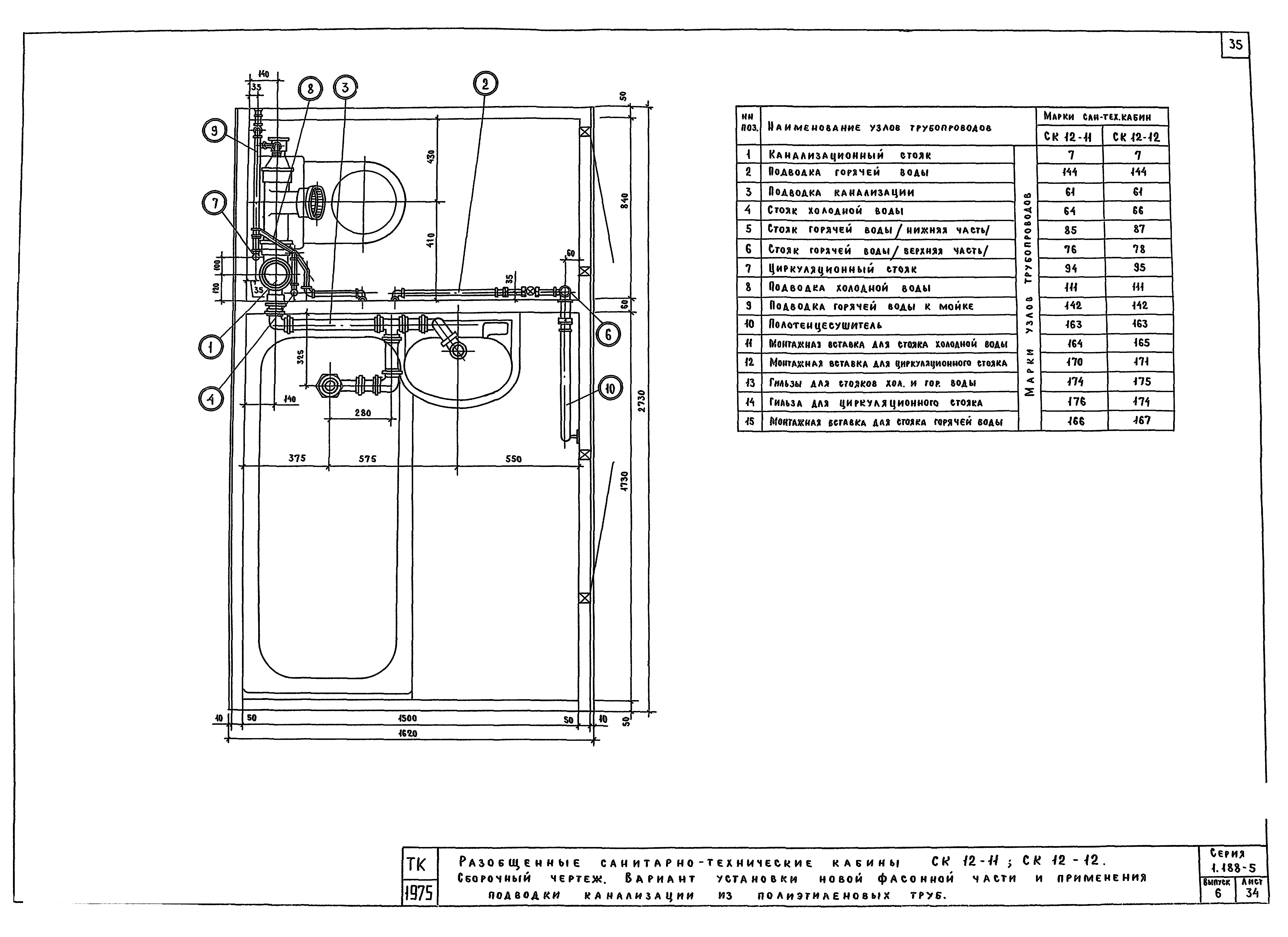
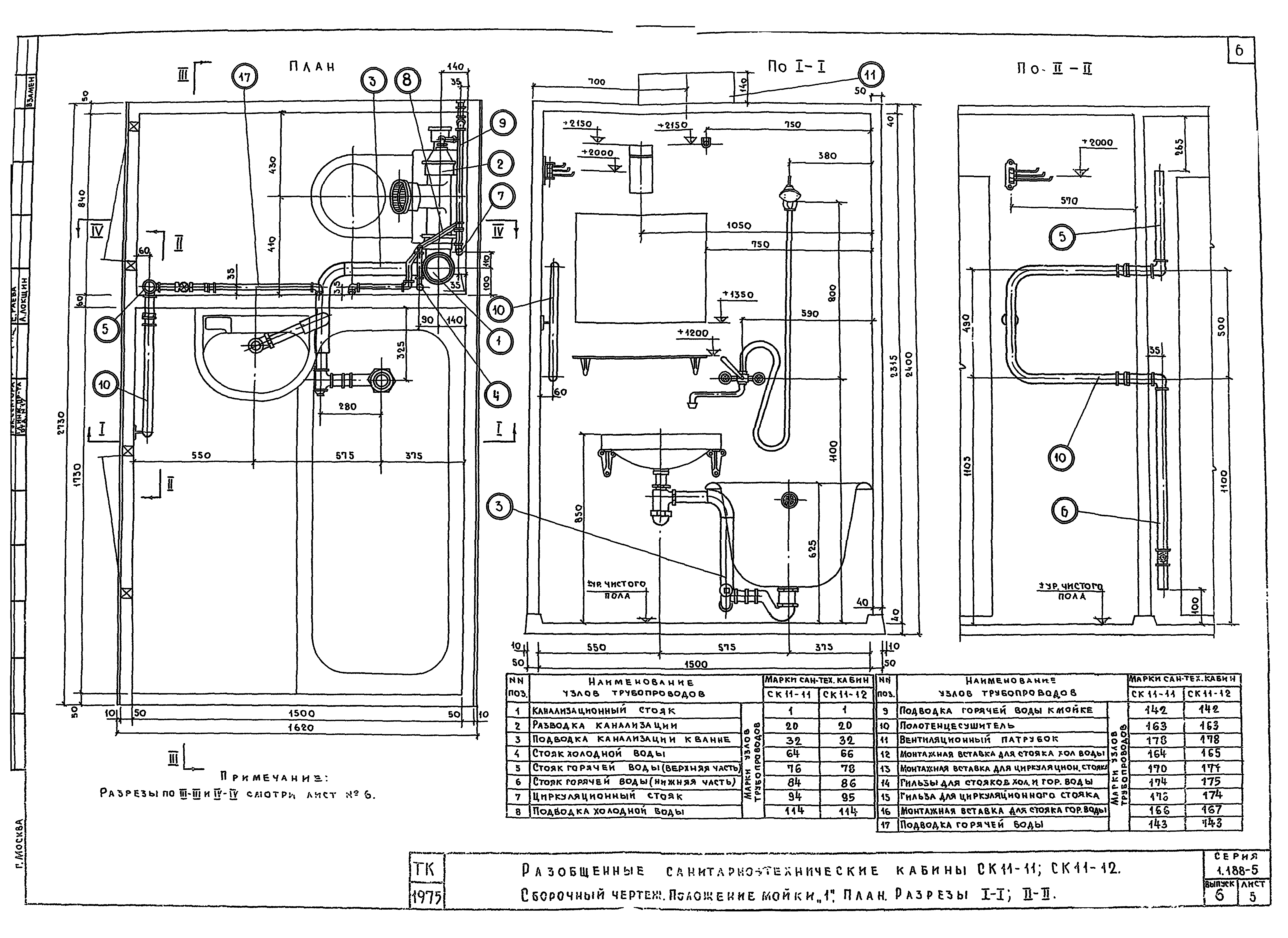
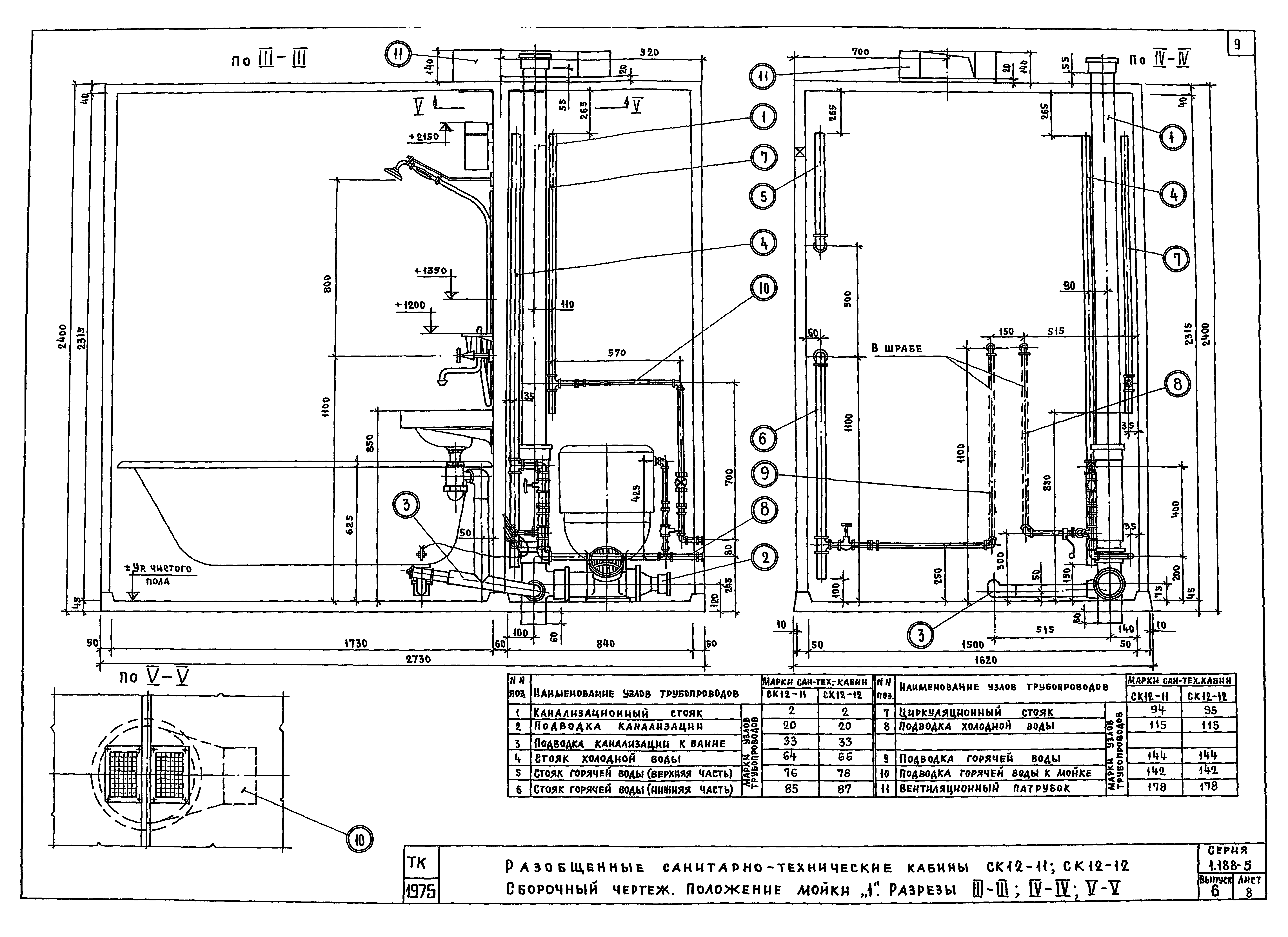
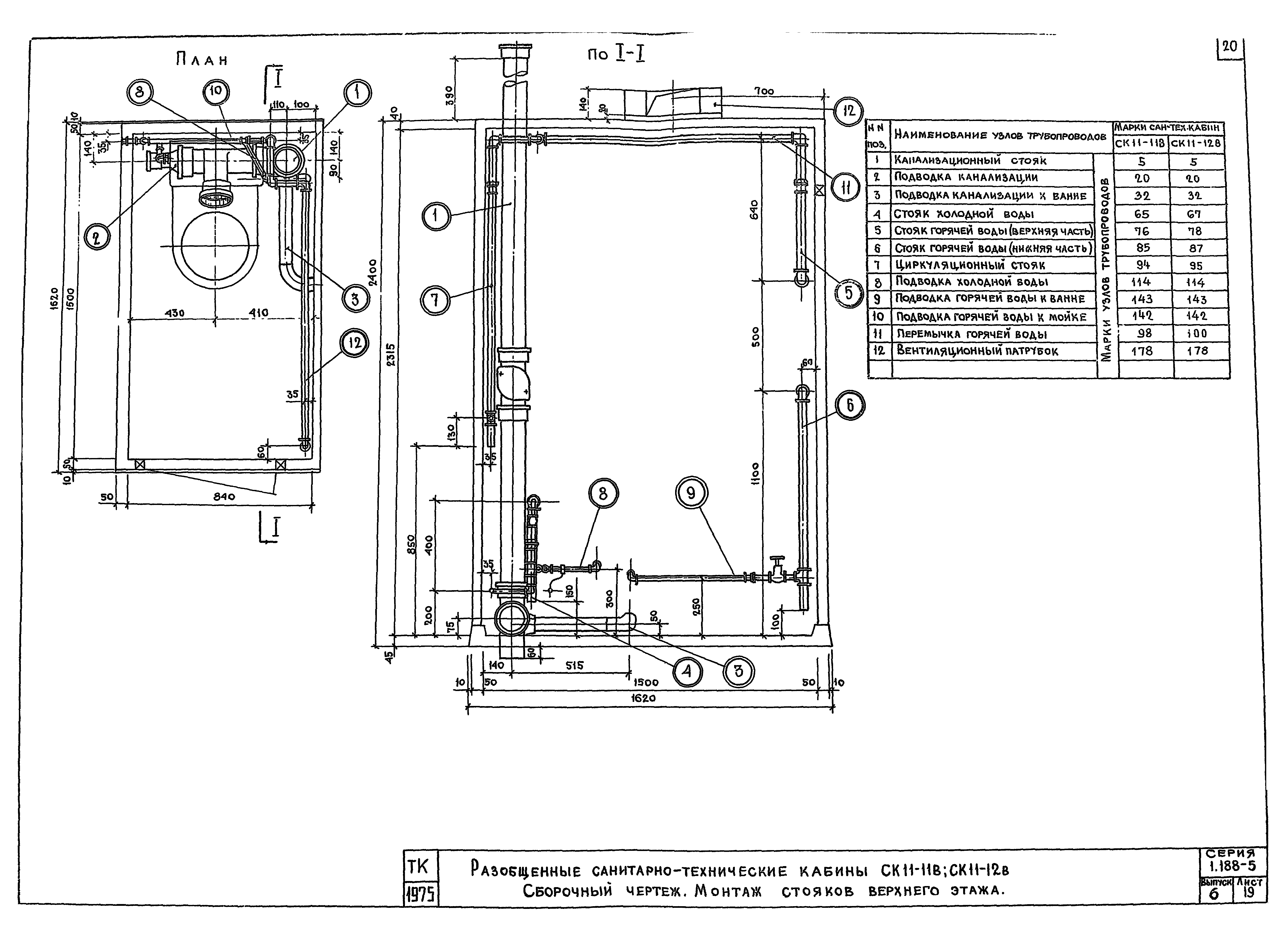
Выпуск 6. Санитарно-технические сборочные чертежи разобщенных и совмещенных кабин типа "Колпак" из тяжелого цементного бетона и керамзитобетона

Обозначение: Серия 1.188-5
Обозначение англ: Series 1.188-5
Статус:не определен законодательством
Название рус.:Выпуск 6. Санитарно-технические сборочные чертежи разобщенных и совмещенных кабин типа "Колпак" из тяжелого цементного бетона и керамзитобетона
Дата добавления в базу:01.09.2013
Дата актуализации:01.01.2021
Дата введения:30.09.1976
Дата окончания срока действия:30.06.2003
Разработан: ЦНИИЭП жилища
Утверждён:22.09.1976 Госкомитет по гражданскому строительству и архитектуре при Госстрое СССР (National Committee on Nonindustrial Construction and Architecture, USSR Gosstroy 209)
Серия 1.188-5Серия 1.188-5Серия 1.188-5Серия 1.188-5Серия 1.188-5Серия 1.188-5Серия 1.188-5Серия 1.188-5Серия 1.188-5Серия 1.188-5Серия 1.188-5Серия 1.188-5Серия 1.188-5Серия 1.188-5Серия 1.188-5Серия 1.188-5Серия 1.188-5Серия 1.188-5Серия 1.188-5Серия 1.188-5Серия 1.188-5Серия 1.188-5Серия 1.188-5Серия 1.188-5Серия 1.188-5Серия 1.188-5Серия 1.188-5Серия 1.188-5Серия 1.188-5Серия 1.188-5Серия 1.188-5Серия 1.188-5Серия 1.188-5Серия 1.188-5Серия 1.188-5Серия 1.188-5Серия 1.188-5Серия 1.188-5Серия 1.188-5Серия 1.188-5Серия 1.188-5Серия 1.188-5Серия 1.188-5Серия 1.188-5Серия 1.188-5Серия 1.188-5Серия 1.188-5Серия 1.188-5Серия 1.188-5Серия 1.188-5Серия 1.188-5