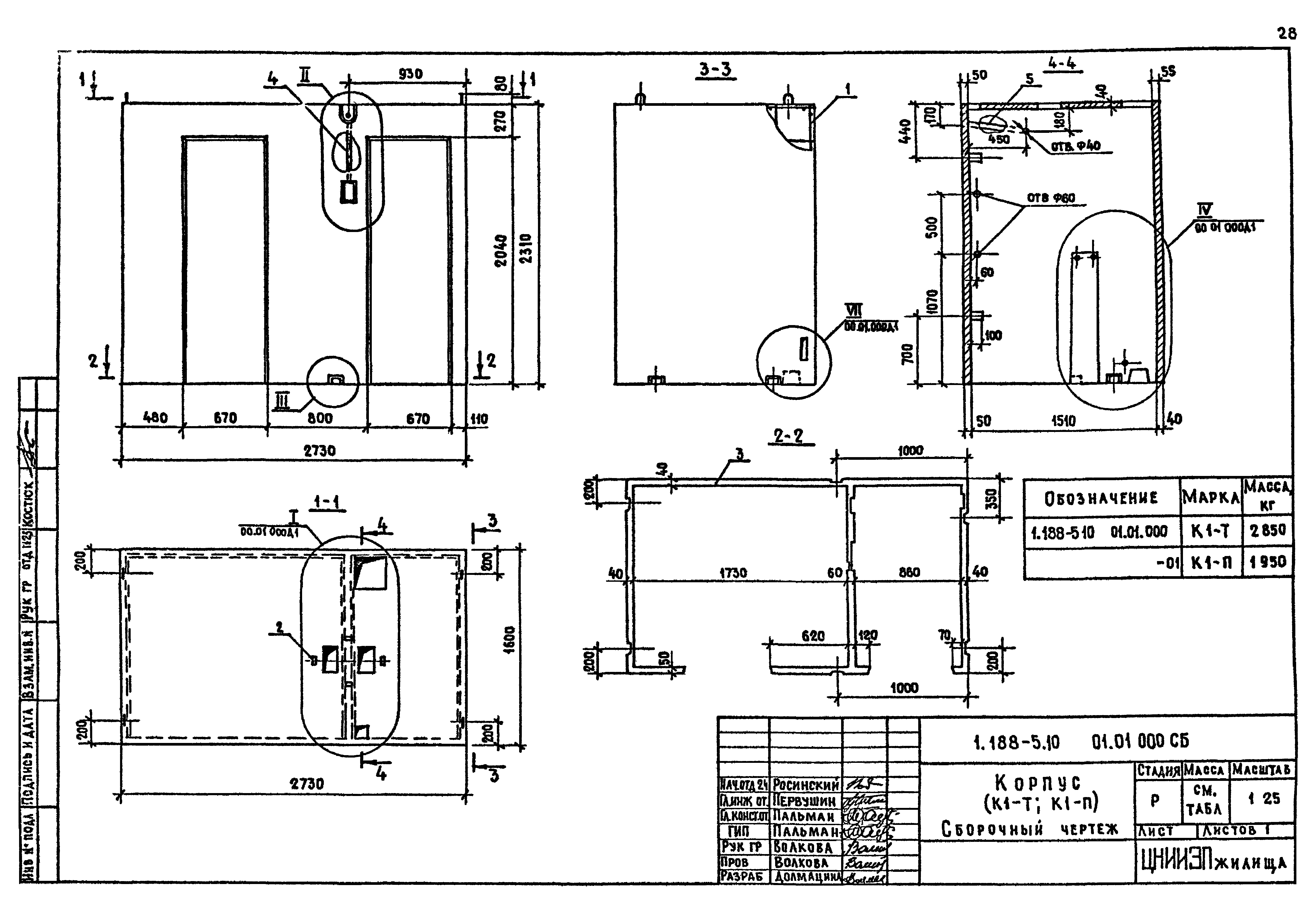
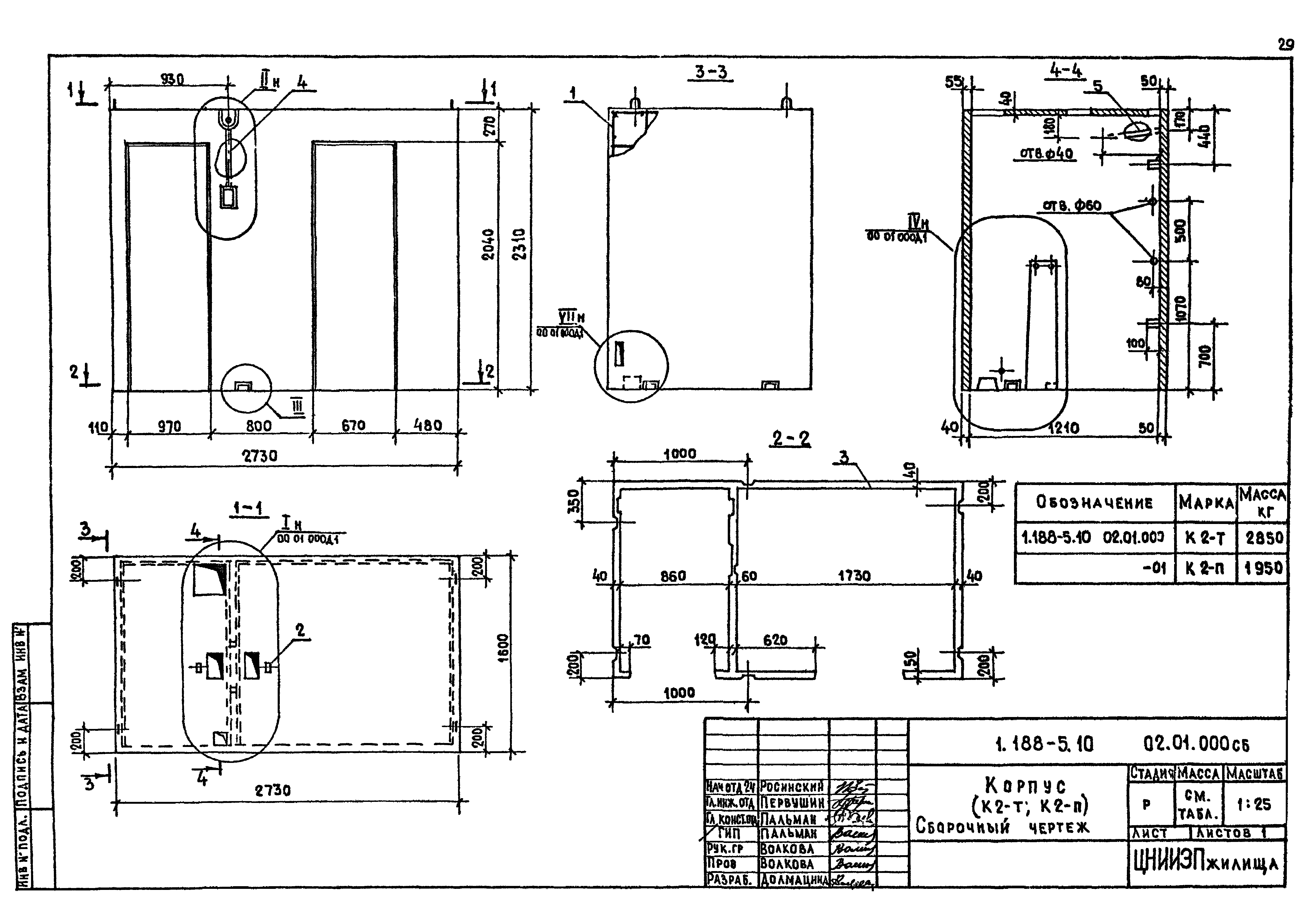
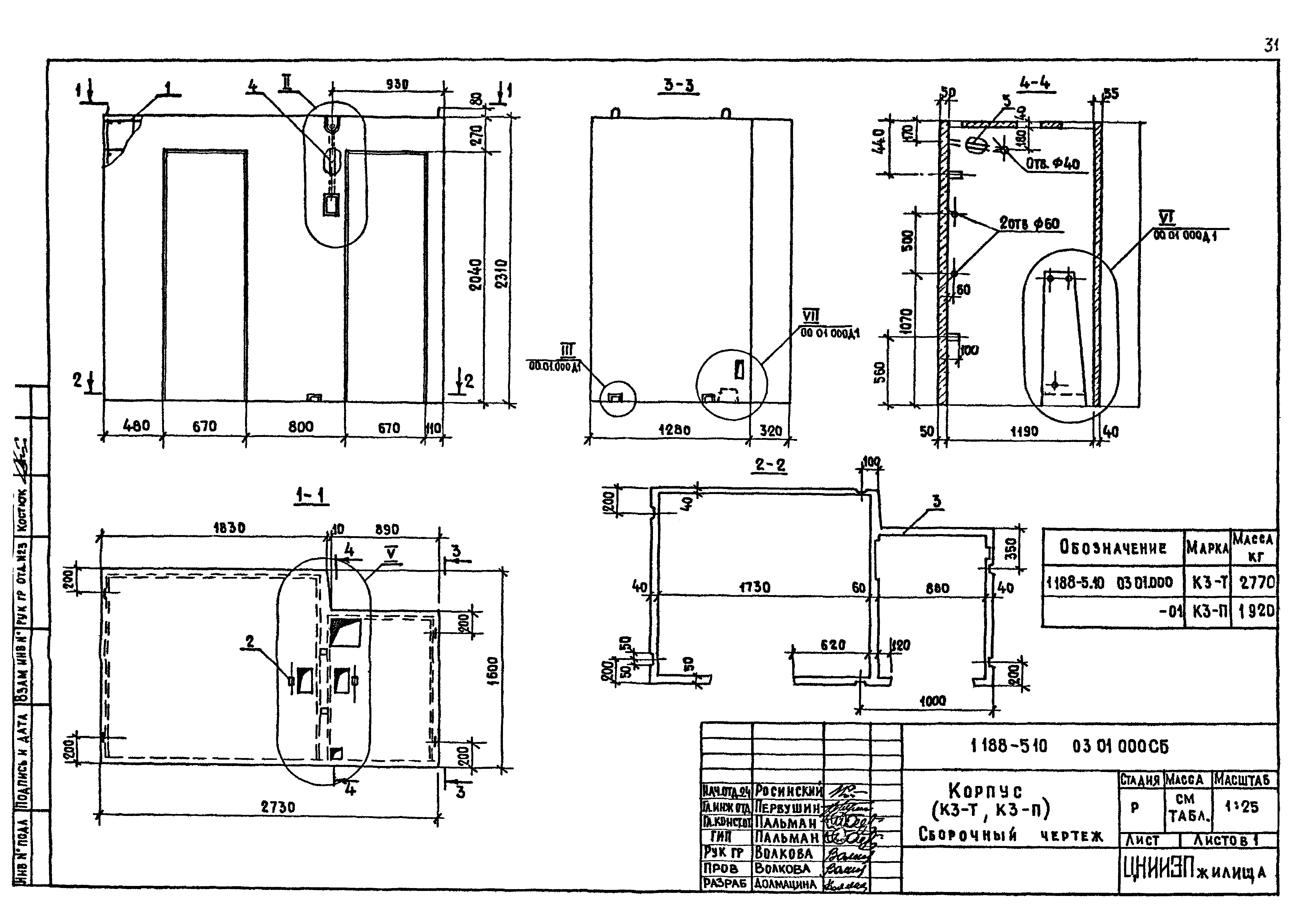
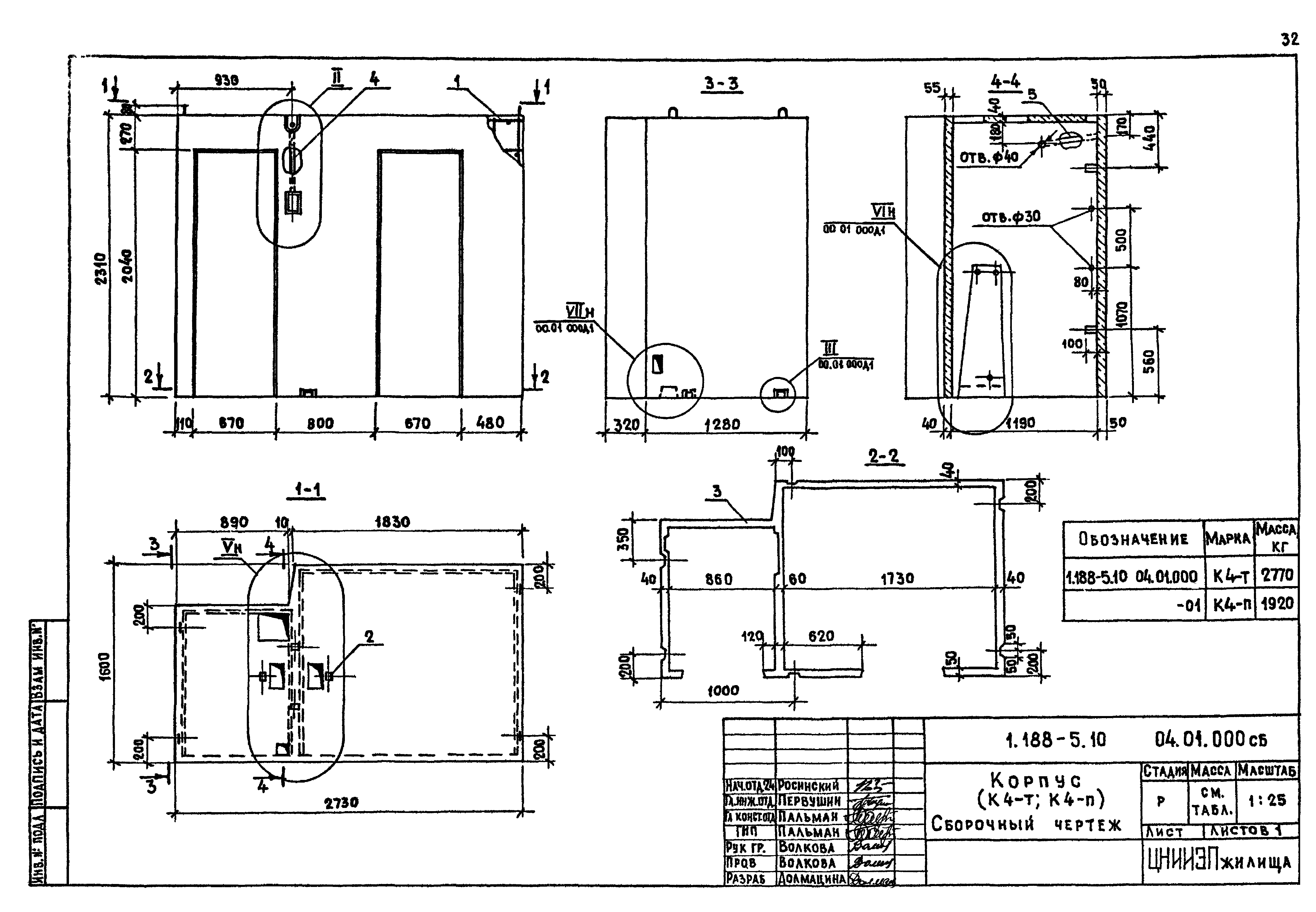
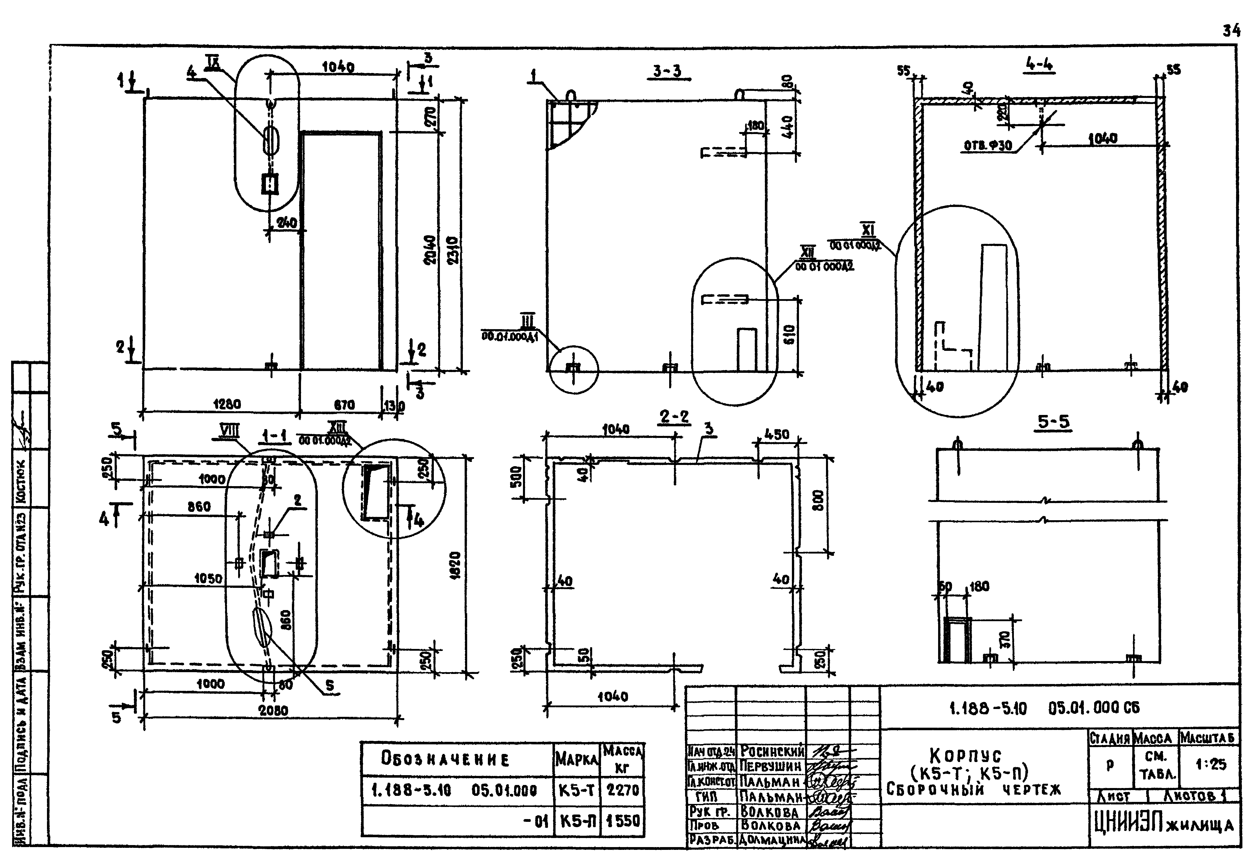
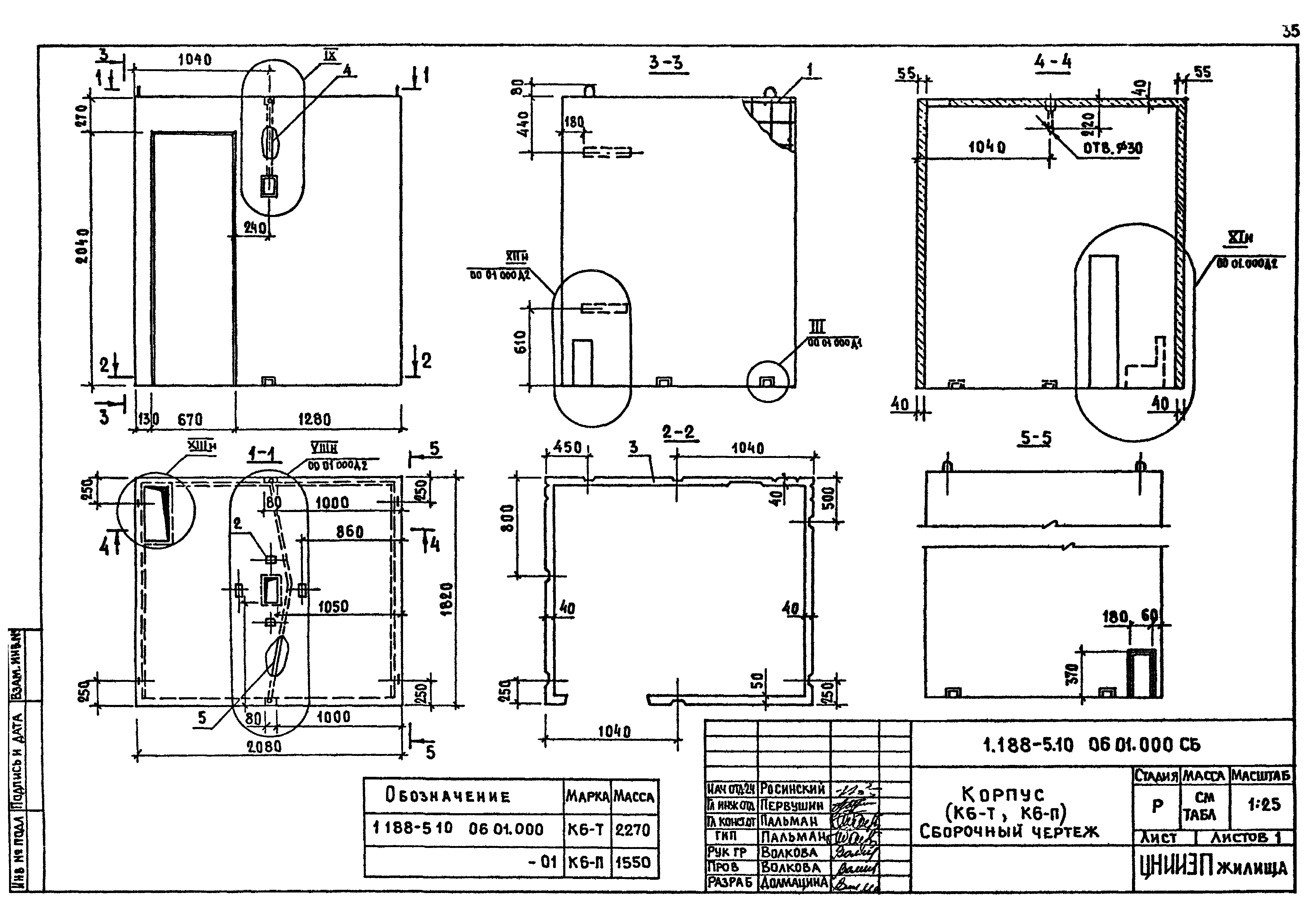
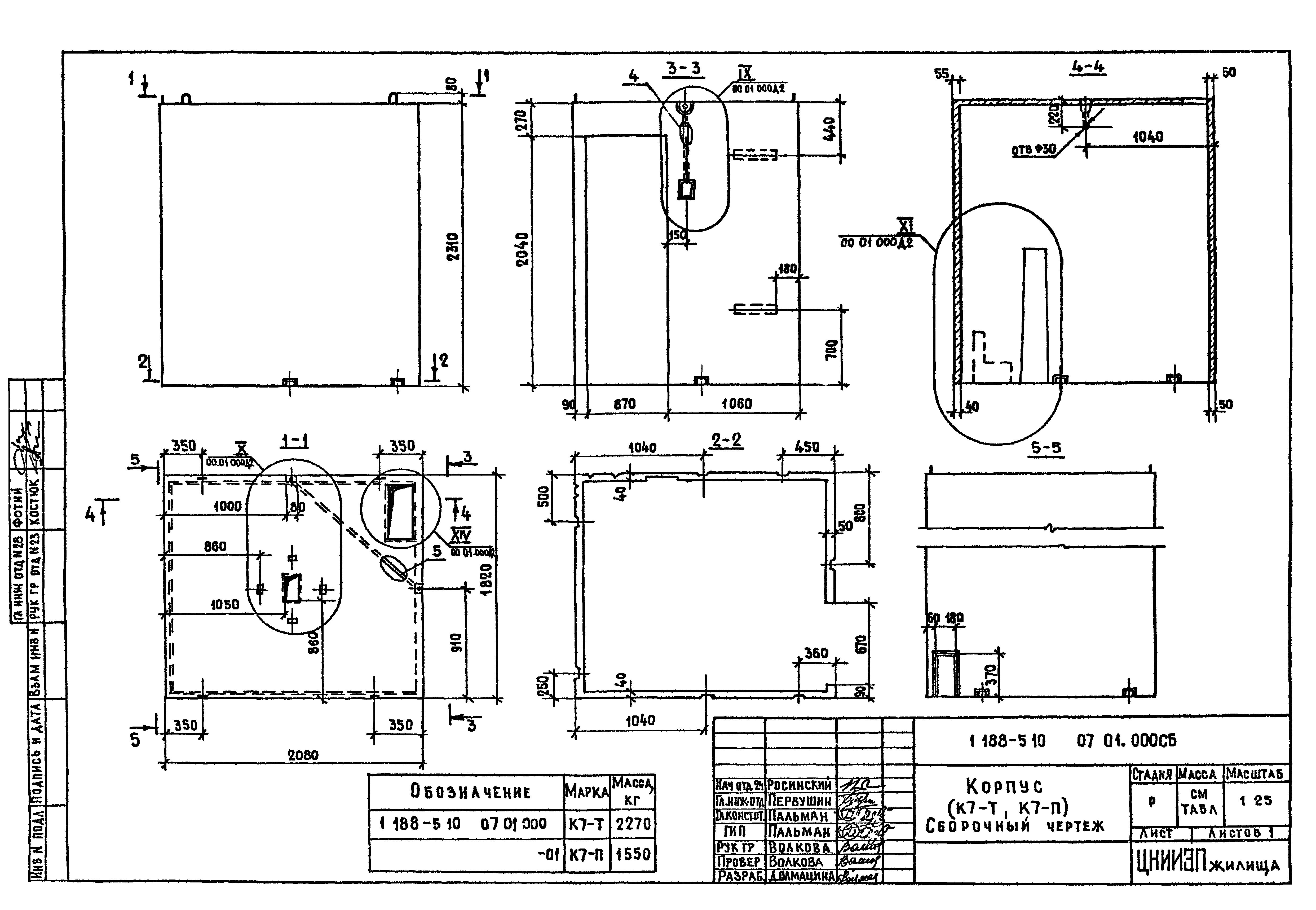
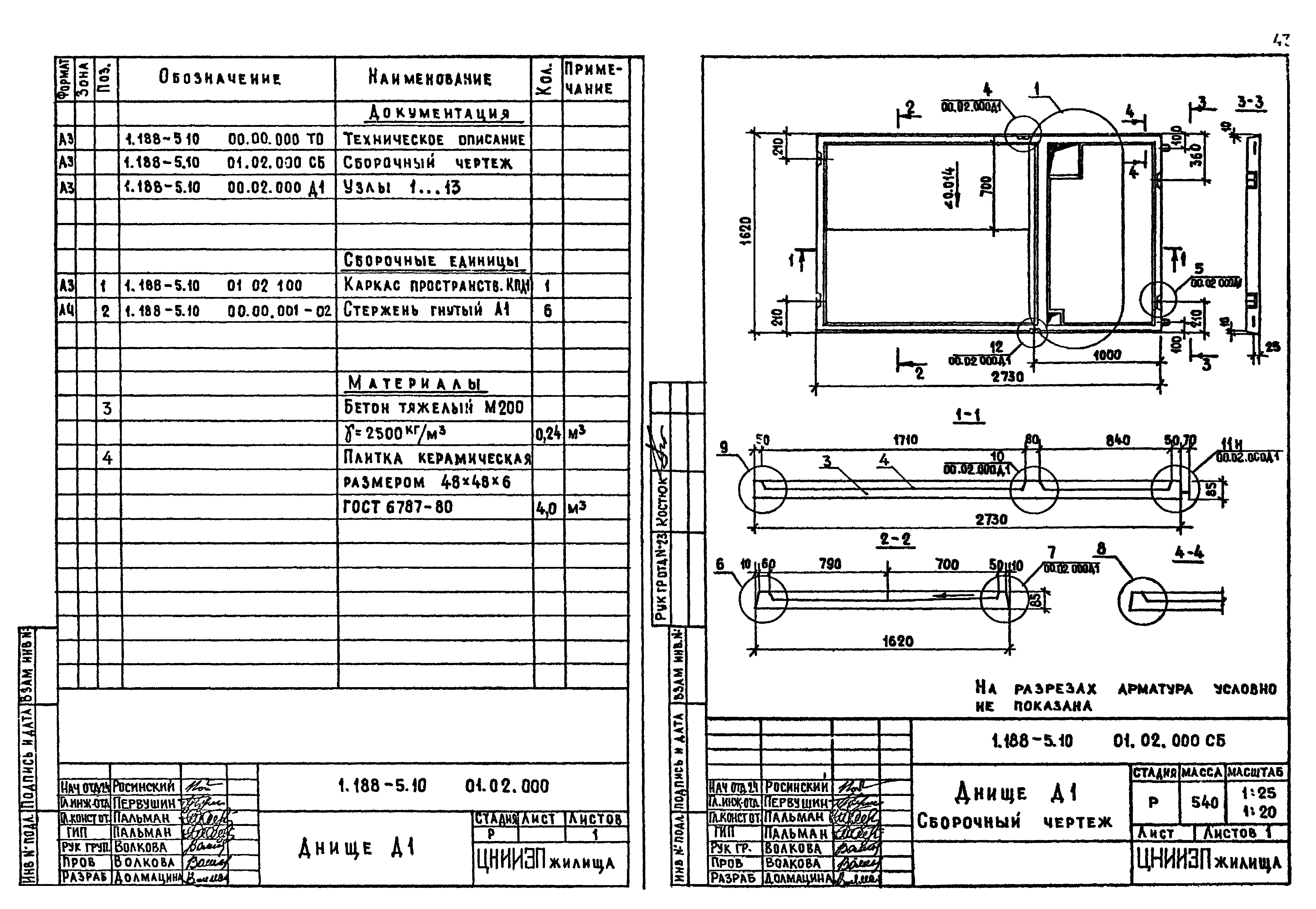
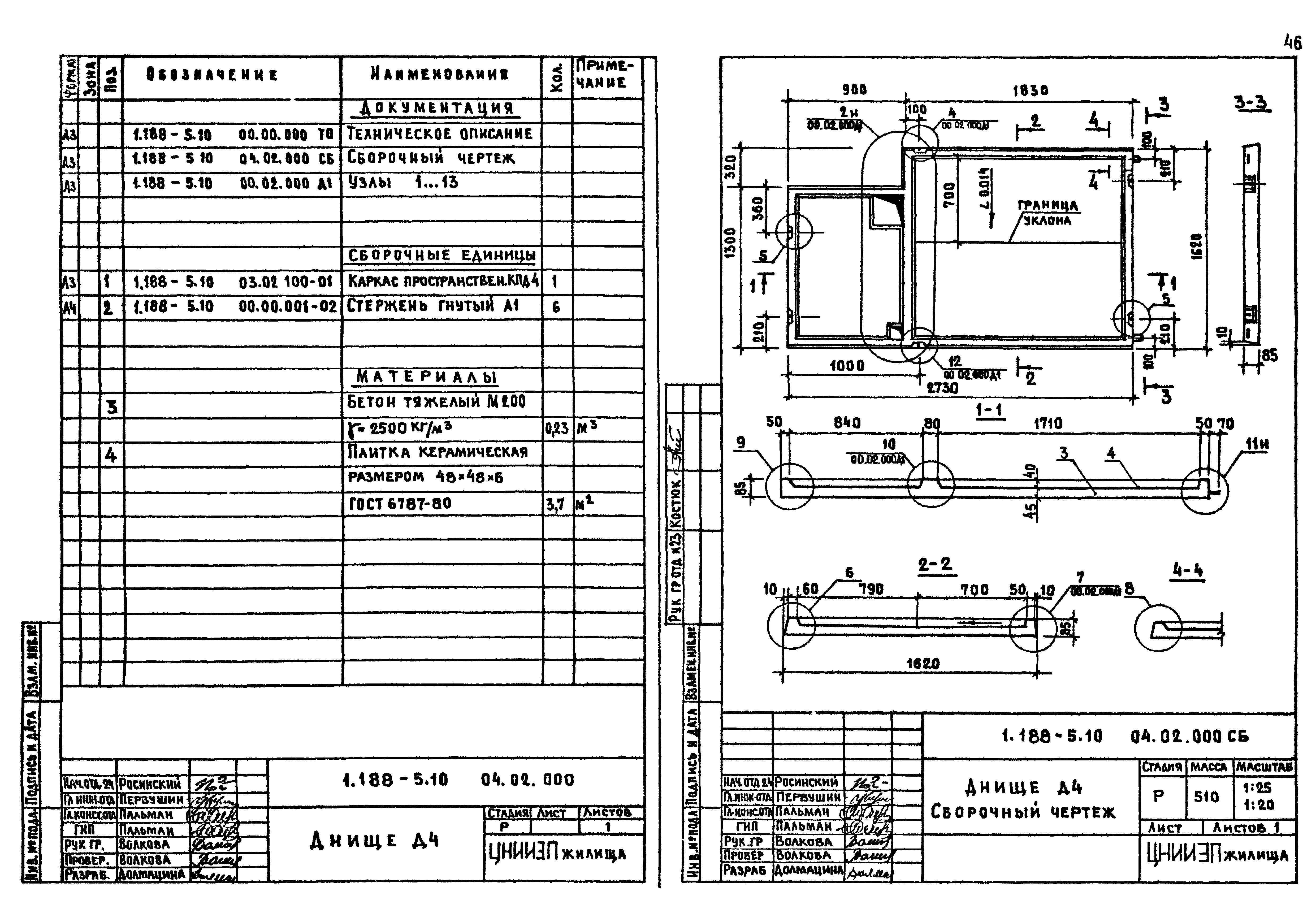
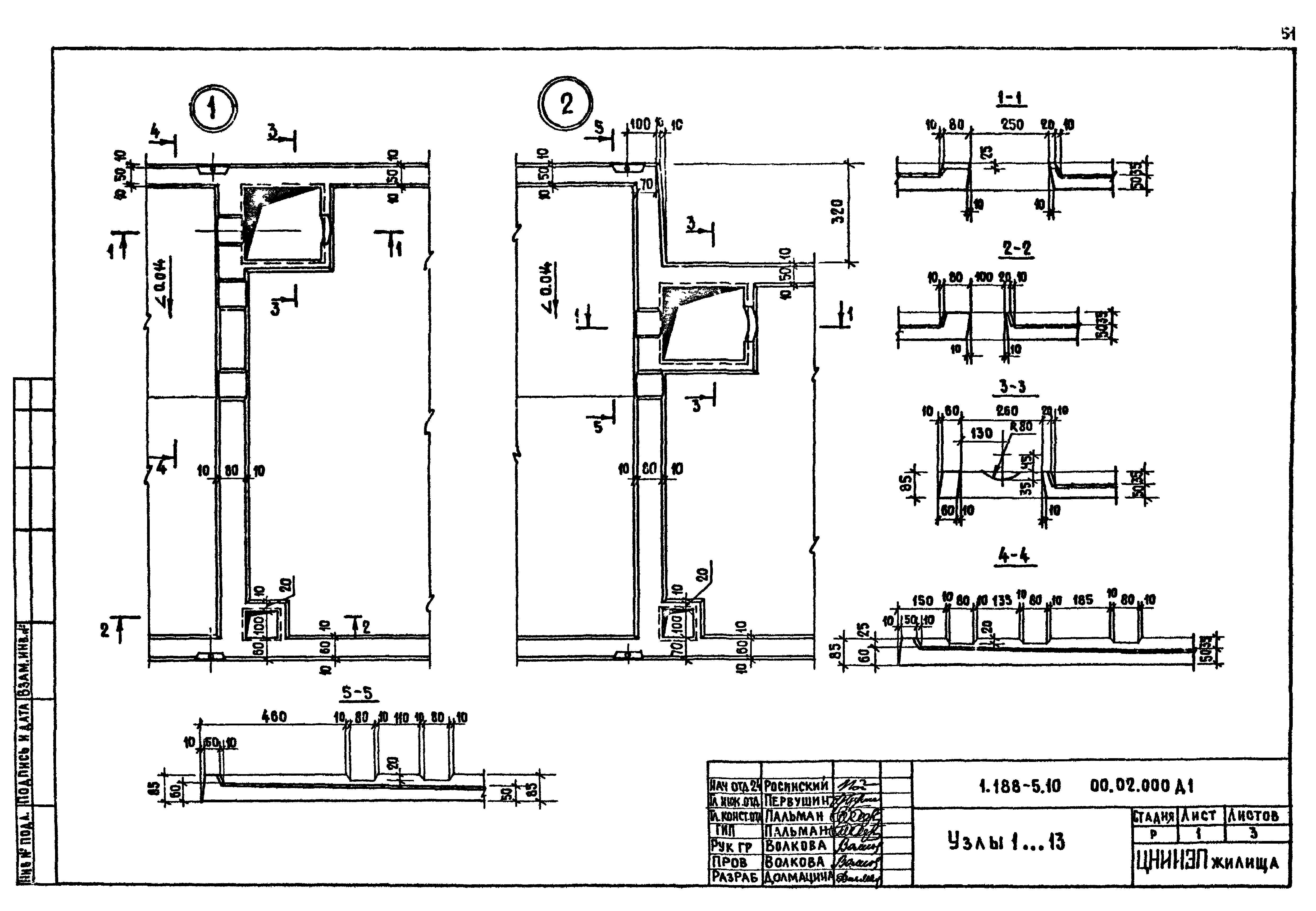
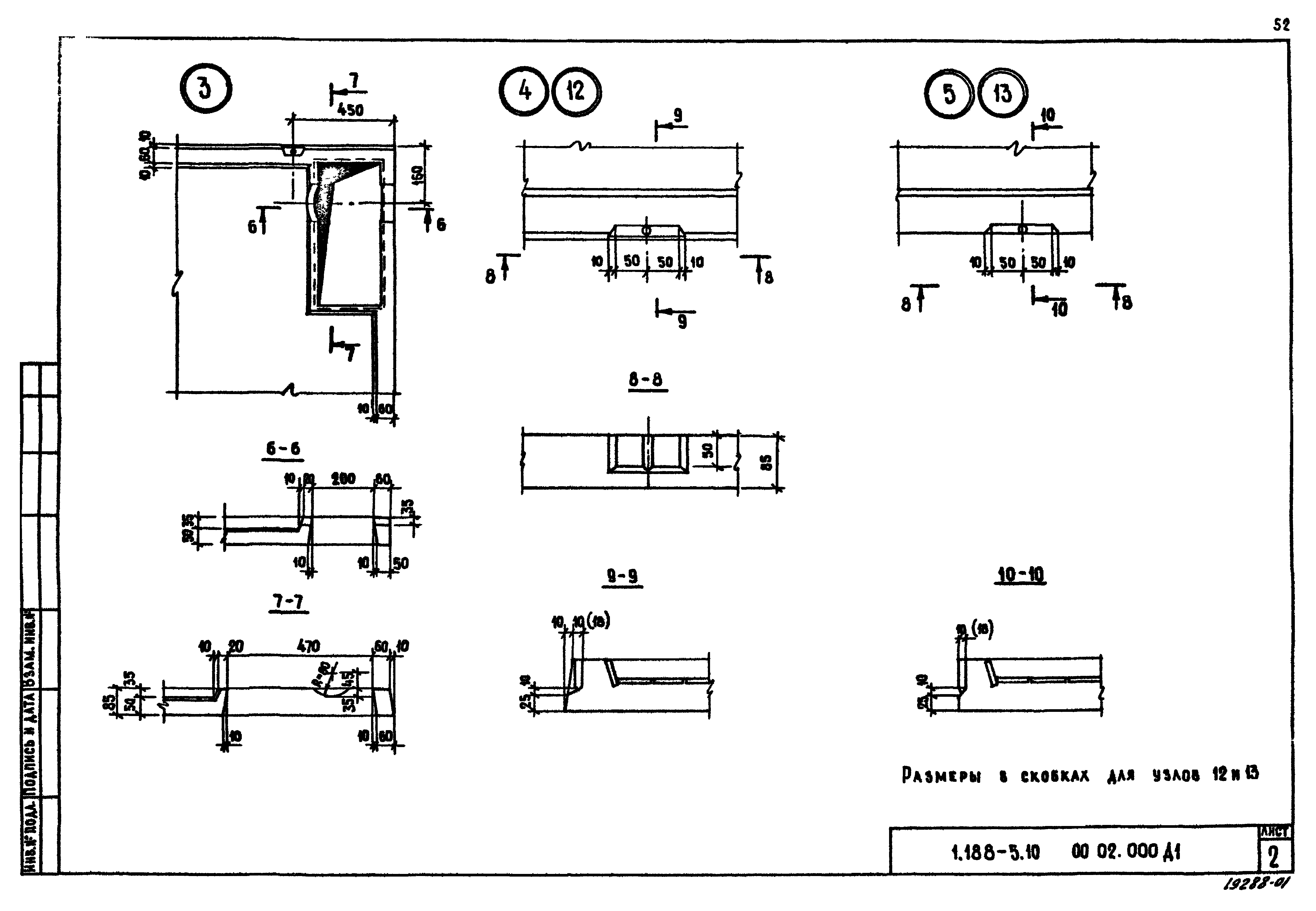
Скачать Серия 1.188-5 Выпуск 10. Строительные чертежи разобщенных и совмещенных кабин типа Колпак из тяжелого цементного бетона и керамзитобетона для жилых зданий с теплым чердакомДата актуализации: 01.01.2021
|
| Обозначение: | Серия 1.188-5 |
| Обозначение англ: | Series 1.188-5 |
| Статус: | не определен законодательством |
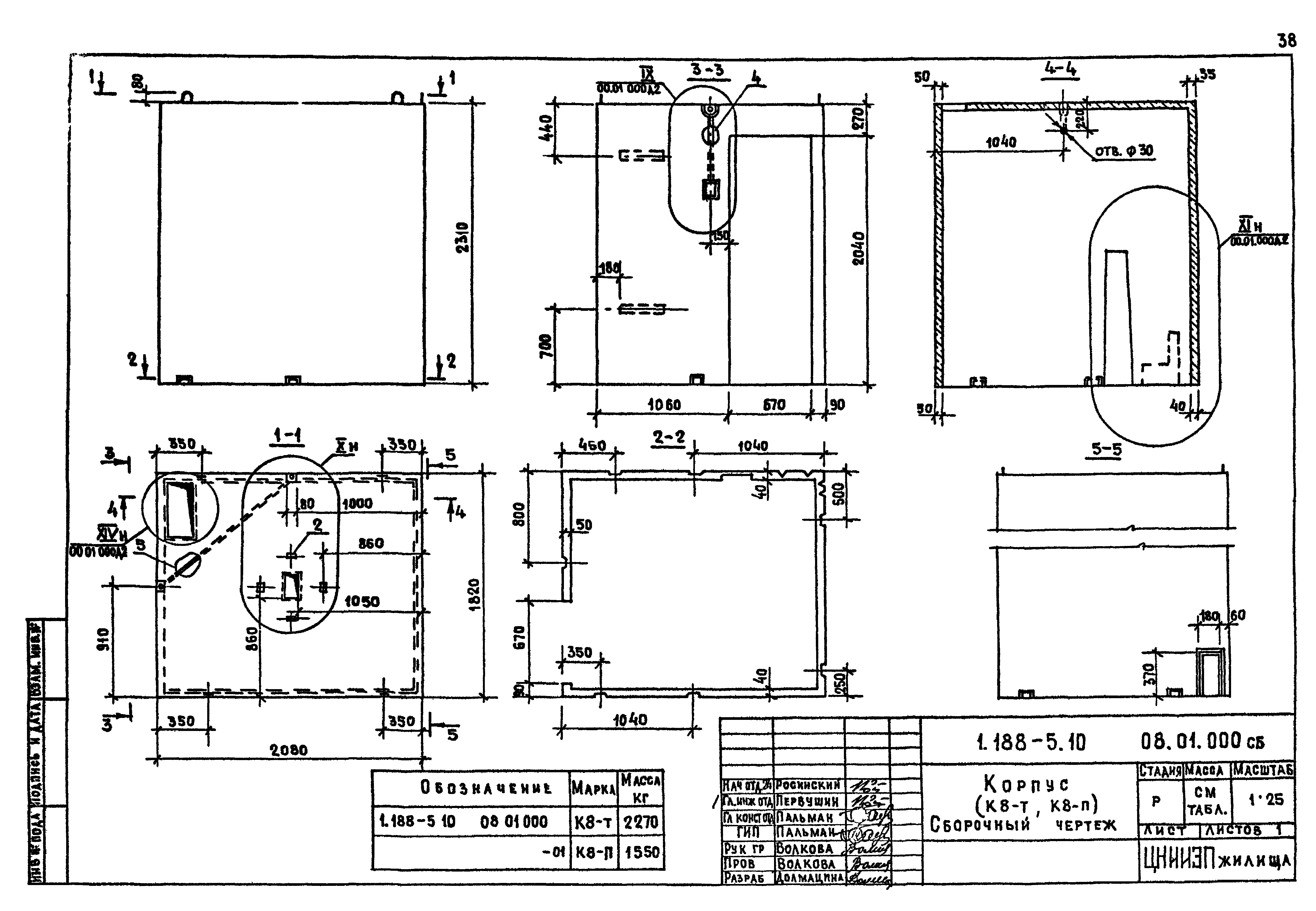
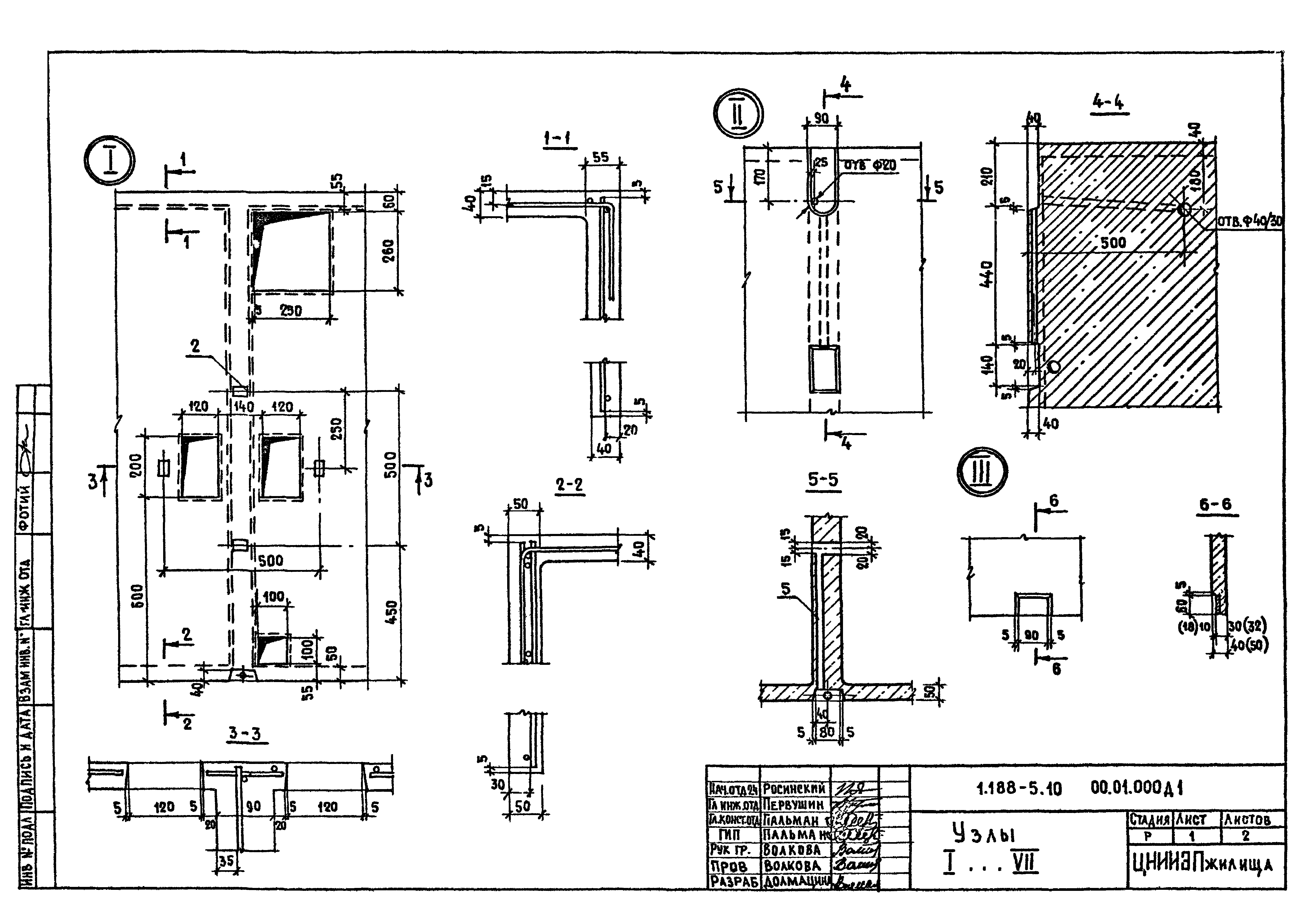
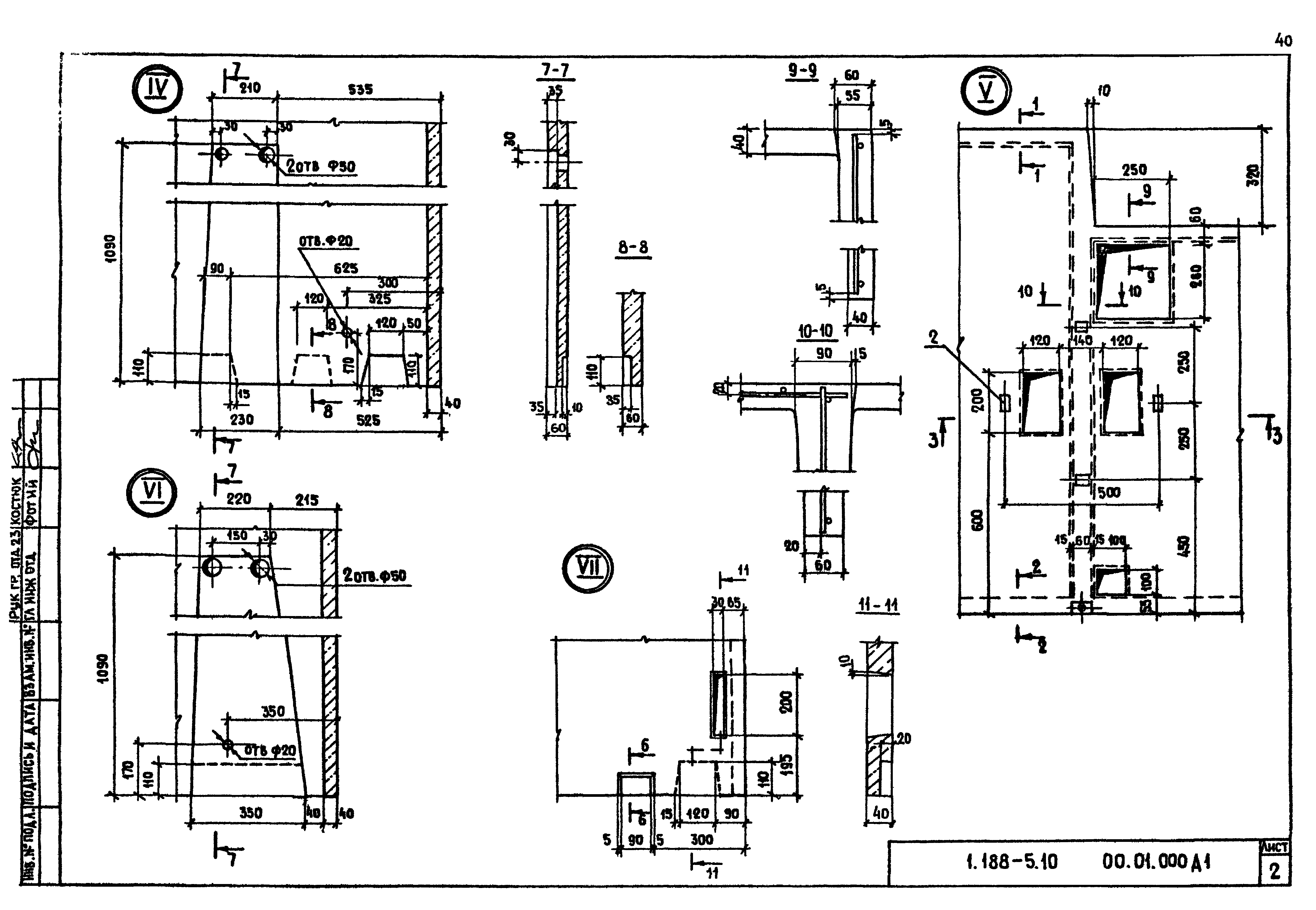
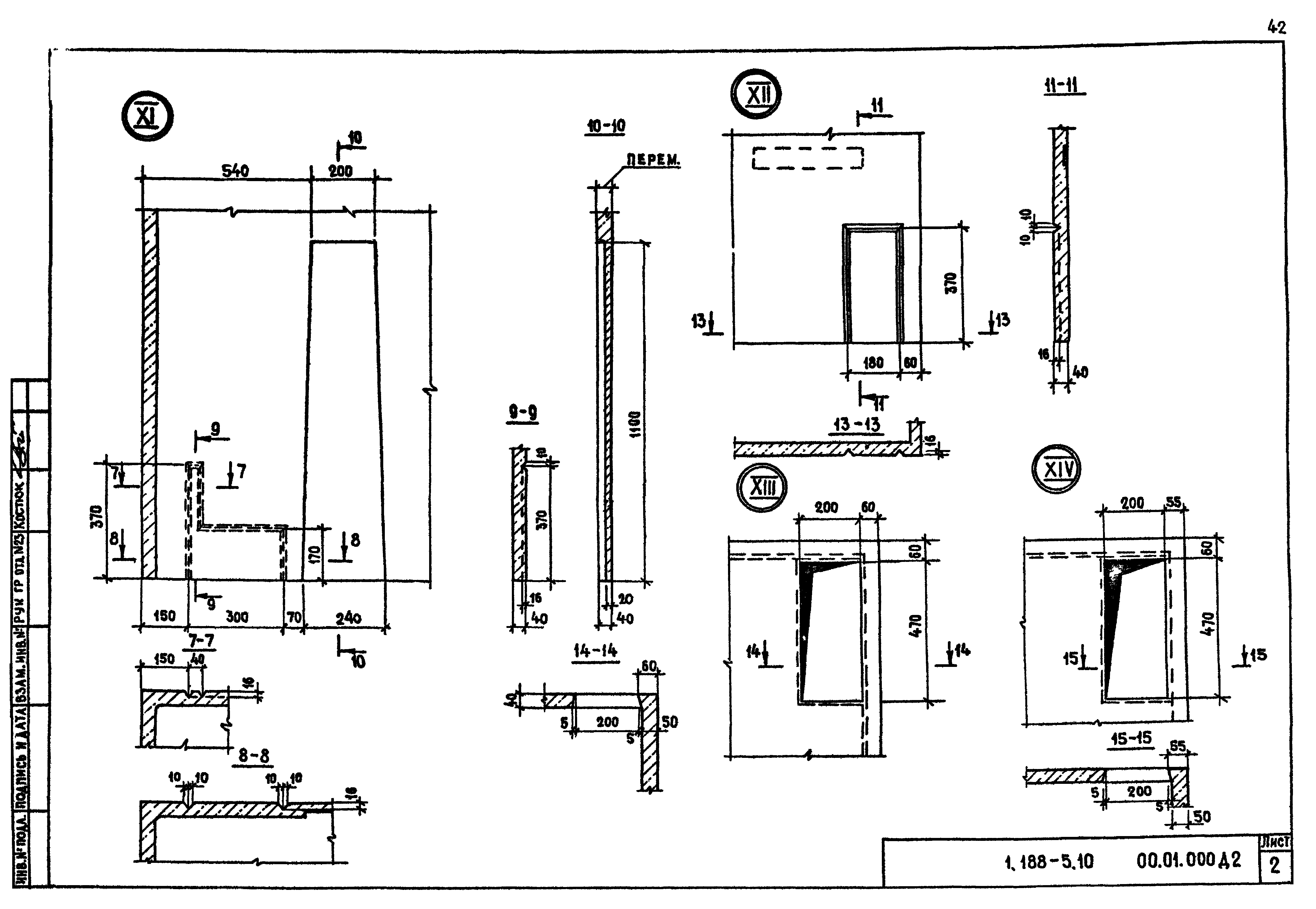
| Название рус.: | Выпуск 10. Строительные чертежи разобщенных и совмещенных кабин типа "Колпак" из тяжелого цементного бетона и керамзитобетона для жилых зданий с теплым чердаком |
| Дата добавления в базу: | 01.09.2013 |
| Дата актуализации: | 01.01.2021 |
| Дата введения: | 15.12.1983 |
| Дата окончания срока действия: | 30.06.2003 |
| Разработан: | ЦНИИЭП жилища |
| Утверждён: | 02.12.1983 Госгражданстрой (Gosgrazhdanstroy 369) |











































































































