Скачать Серия 1.188-5 Выпуск 11. Санитарно-техническое оборудование разобщенных и совмещенных кабин типа Колпак из тяжелого цементного бетона и керамзитобетона для жилых зданий с теплым чердаком

Дата актуализации: 01.01.2021

Серия 1.188-5

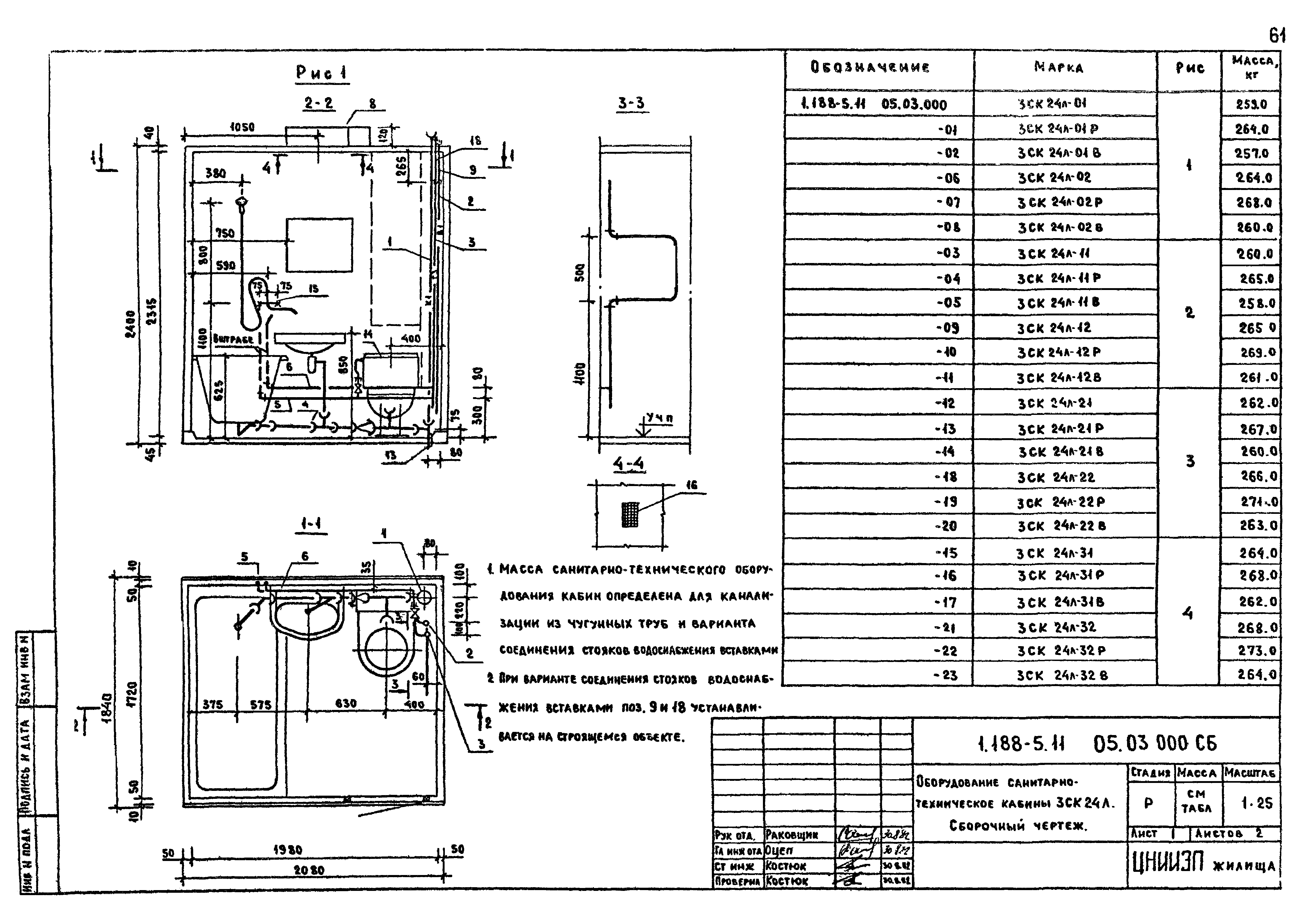
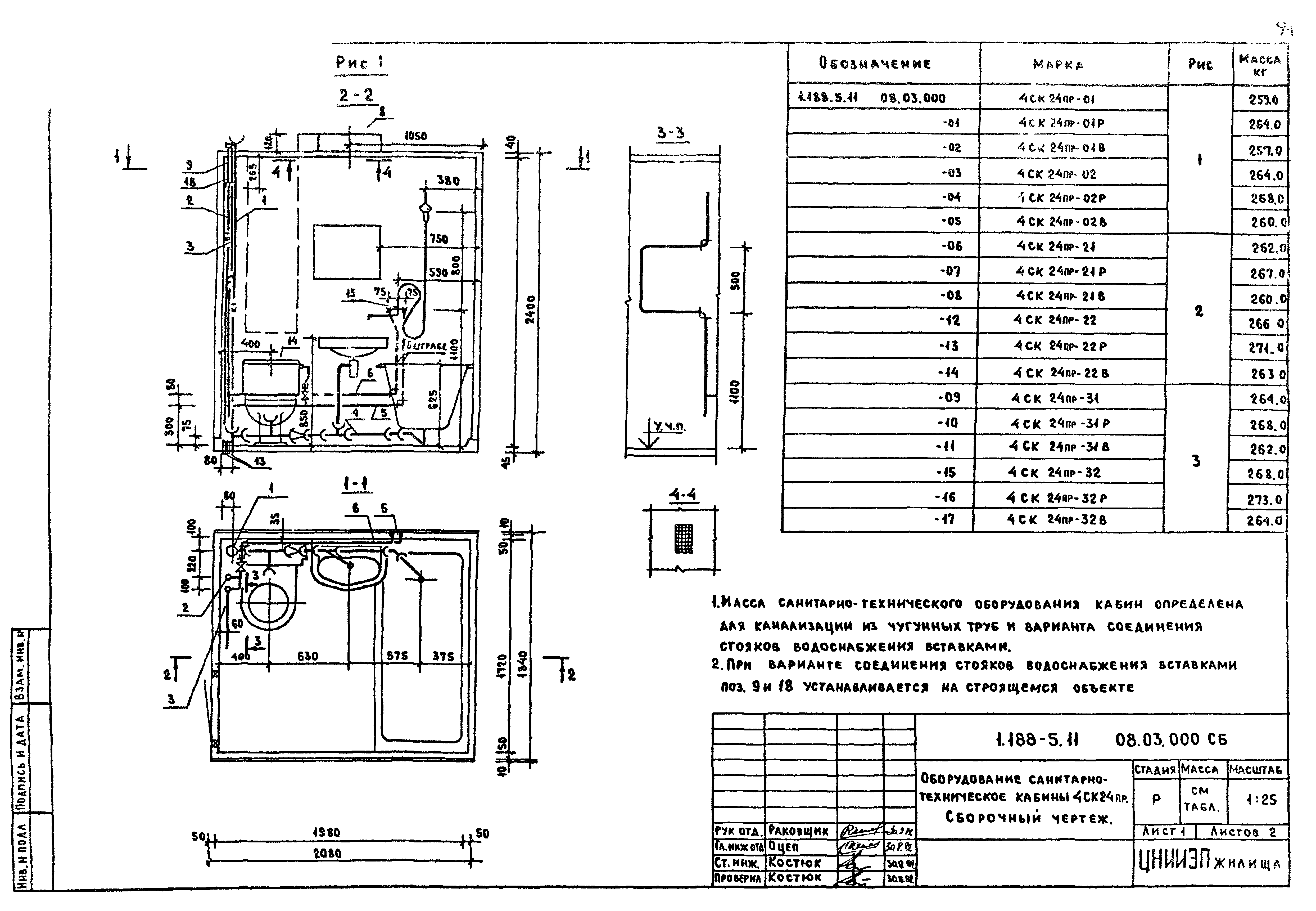
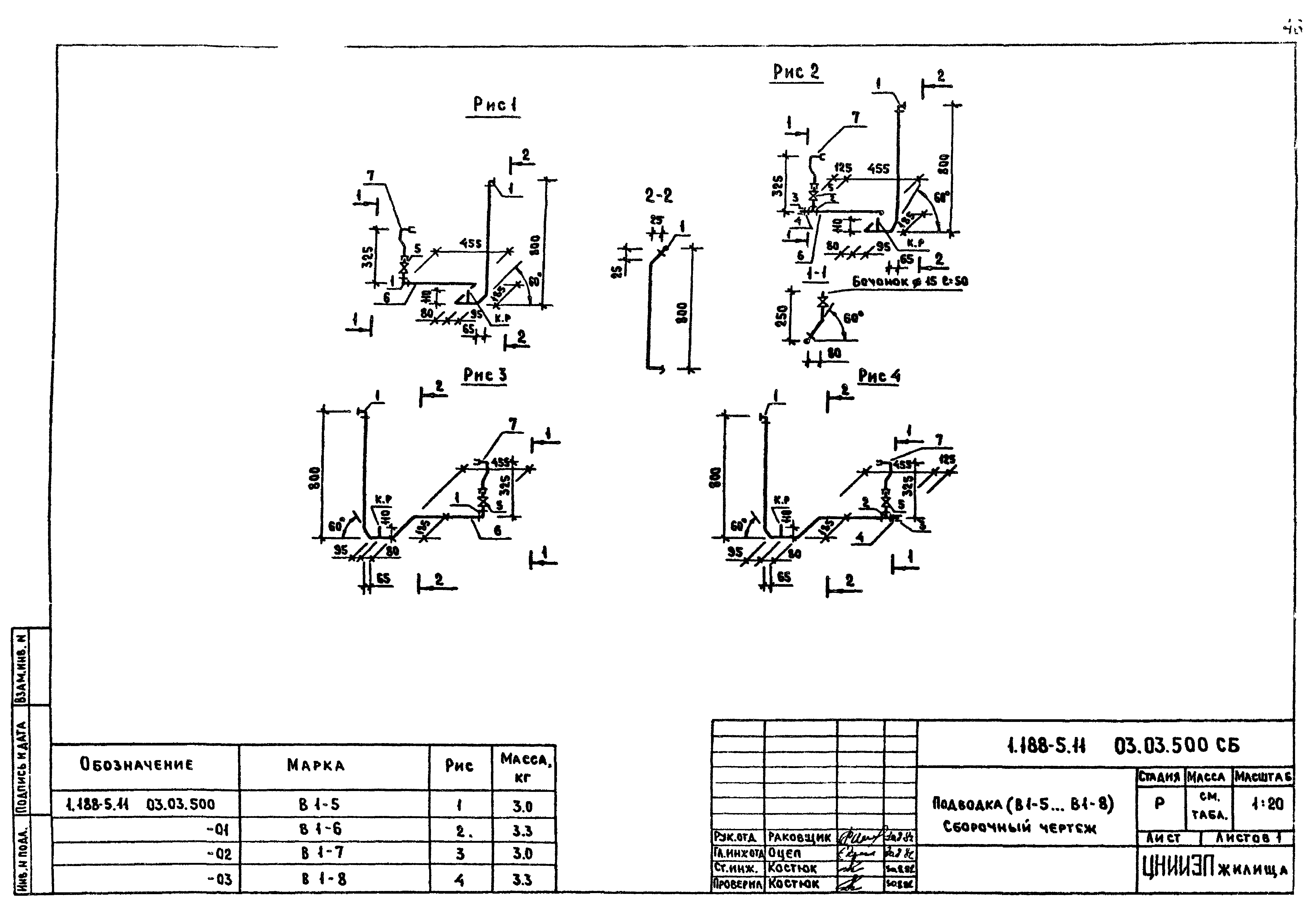
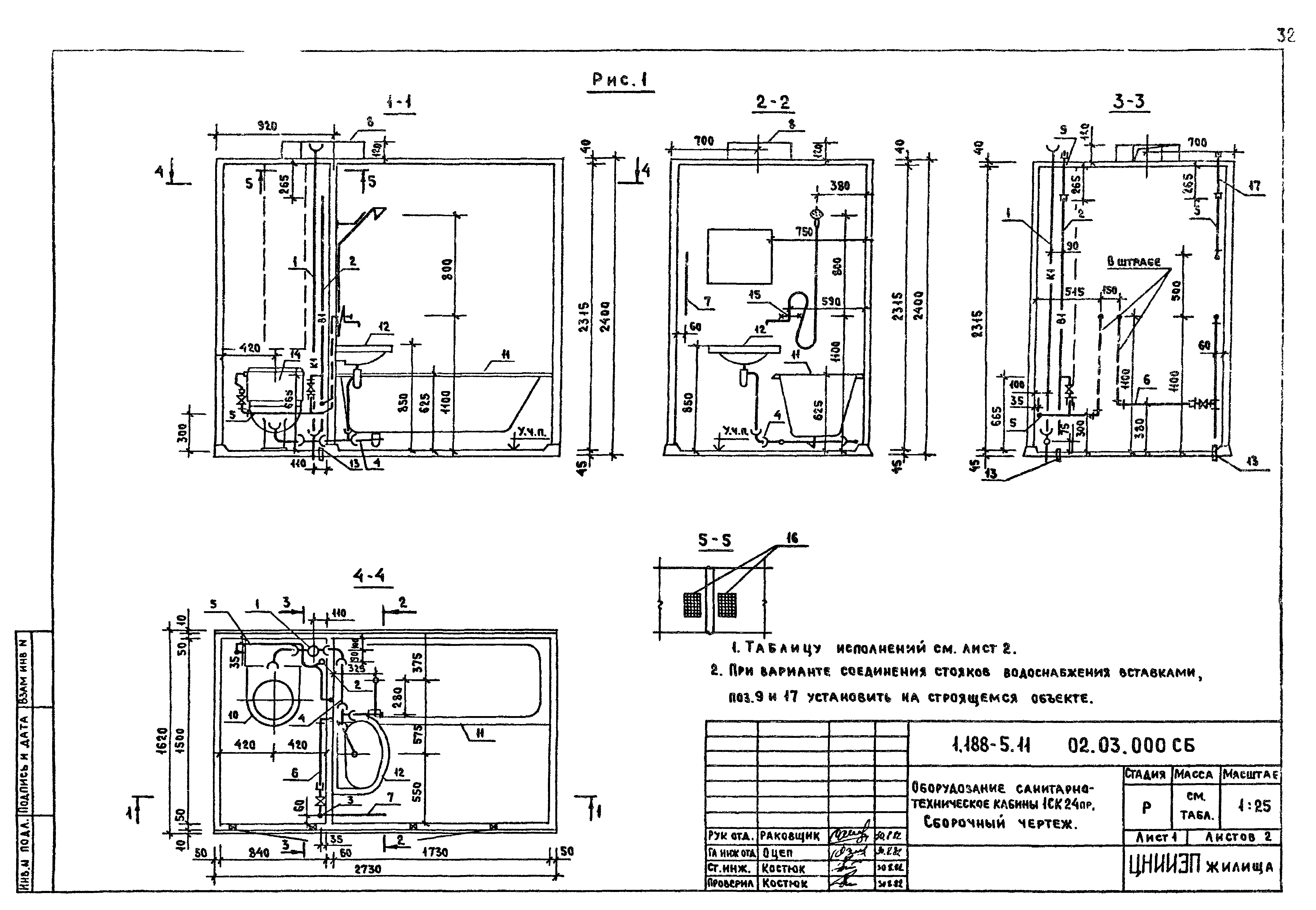
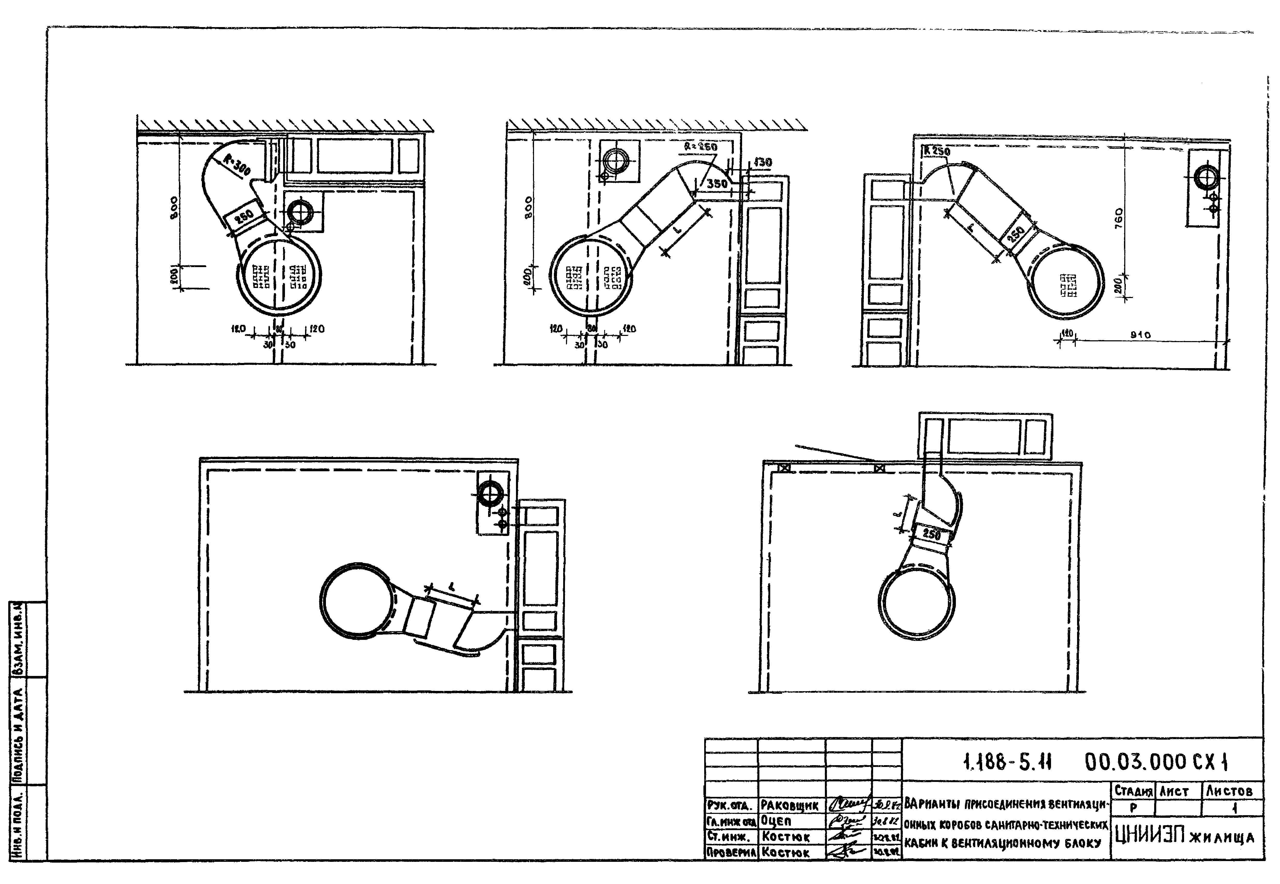
Выпуск 11. Санитарно-техническое оборудование разобщенных и совмещенных кабин типа "Колпак" из тяжелого цементного бетона и керамзитобетона для жилых зданий с теплым чердаком

Обозначение: Серия 1.188-5
Обозначение англ: Series 1.188-5
Статус:не определен законодательством
Название рус.:Выпуск 11. Санитарно-техническое оборудование разобщенных и совмещенных кабин типа "Колпак" из тяжелого цементного бетона и керамзитобетона для жилых зданий с теплым чердаком
Дата добавления в базу:01.09.2013
Дата актуализации:01.01.2021
Дата введения:15.12.1983
Дата окончания срока действия:30.06.2003
Разработан: ЦНИИЭП жилища
Утверждён:02.12.1983 Госкомитет по гражданскому строительству и архитектуре при Госстрое СССР (National Committee on Nonindustrial Construction and Architecture, USSR Gosstroy 369)
Серия 1.188-5Серия 1.188-5Серия 1.188-5Серия 1.188-5Серия 1.188-5Серия 1.188-5Серия 1.188-5Серия 1.188-5Серия 1.188-5Серия 1.188-5Серия 1.188-5Серия 1.188-5Серия 1.188-5Серия 1.188-5Серия 1.188-5Серия 1.188-5Серия 1.188-5Серия 1.188-5Серия 1.188-5Серия 1.188-5Серия 1.188-5Серия 1.188-5Серия 1.188-5Серия 1.188-5Серия 1.188-5Серия 1.188-5Серия 1.188-5Серия 1.188-5Серия 1.188-5Серия 1.188-5Серия 1.188-5Серия 1.188-5Серия 1.188-5Серия 1.188-5Серия 1.188-5Серия 1.188-5Серия 1.188-5Серия 1.188-5Серия 1.188-5Серия 1.188-5Серия 1.188-5Серия 1.188-5Серия 1.188-5Серия 1.188-5Серия 1.188-5Серия 1.188-5Серия 1.188-5Серия 1.188-5Серия 1.188-5Серия 1.188-5Серия 1.188-5Серия 1.188-5Серия 1.188-5Серия 1.188-5Серия 1.188-5Серия 1.188-5Серия 1.188-5Серия 1.188-5Серия 1.188-5Серия 1.188-5Серия 1.188-5Серия 1.188-5Серия 1.188-5Серия 1.188-5Серия 1.188-5Серия 1.188-5Серия 1.188-5Серия 1.188-5Серия 1.188-5Серия 1.188-5Серия 1.188-5Серия 1.188-5Серия 1.188-5Серия 1.188-5Серия 1.188-5Серия 1.188-5Серия 1.188-5Серия 1.188-5Серия 1.188-5Серия 1.188-5Серия 1.188-5Серия 1.188-5Серия 1.188-5Серия 1.188-5Серия 1.188-5Серия 1.188-5Серия 1.188-5Серия 1.188-5Серия 1.188-5Серия 1.188-5Серия 1.188-5Серия 1.188-5Серия 1.188-5Серия 1.188-5Серия 1.188-5Серия 1.188-5Серия 1.188-5