Скачать Серия 1.188-5 Выпуск 13. Санитарно-техническое оборудование разобщенных и совмещенных кабин типа Колпак из тяжелого цементного бетона и керамзитобетона с канализационными трубопроводами из поливинилхлорида для жилых зданий с теплым чердаком. Рабочие чертежи

Дата актуализации: 01.01.2021

Серия 1.188-5

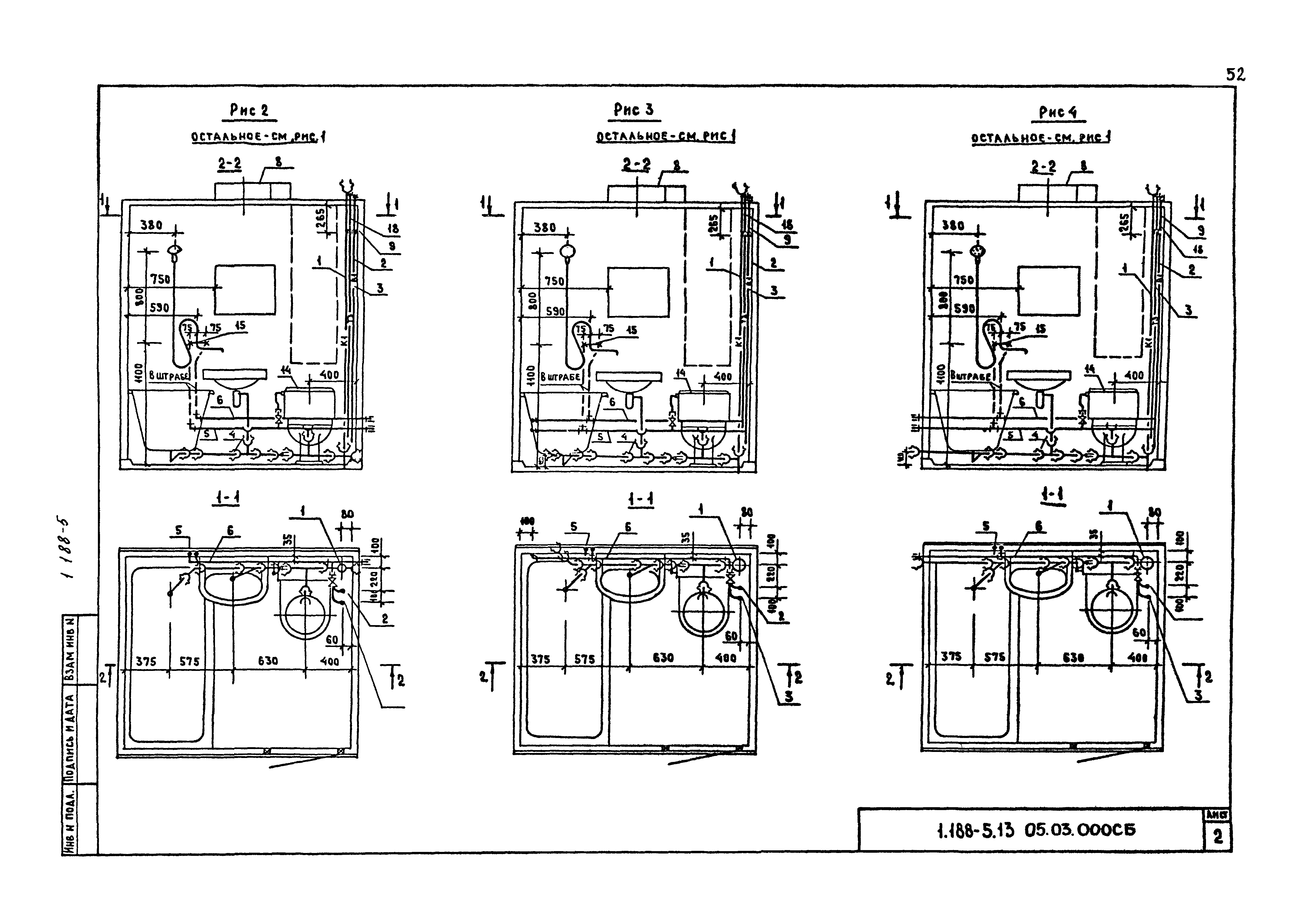
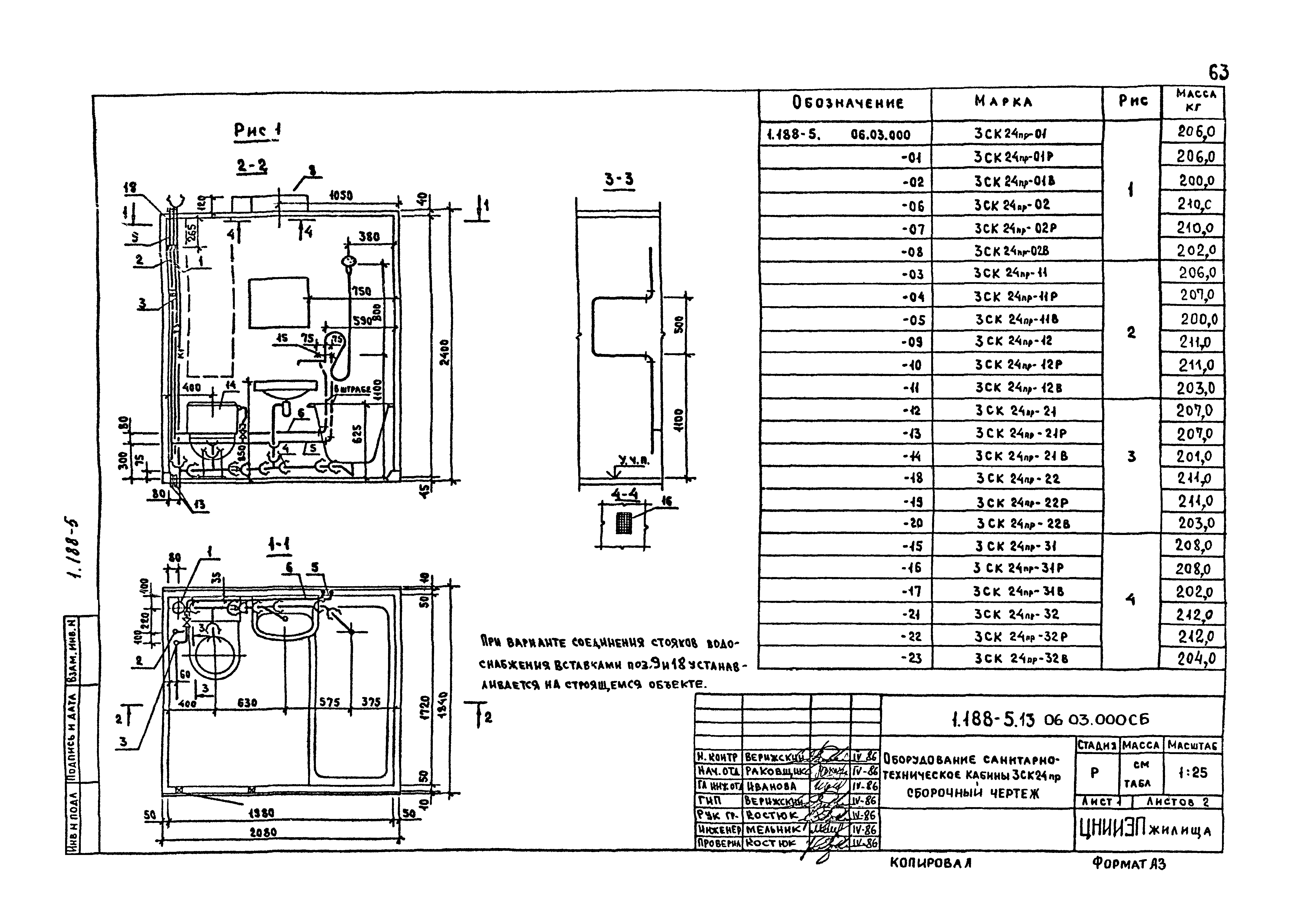
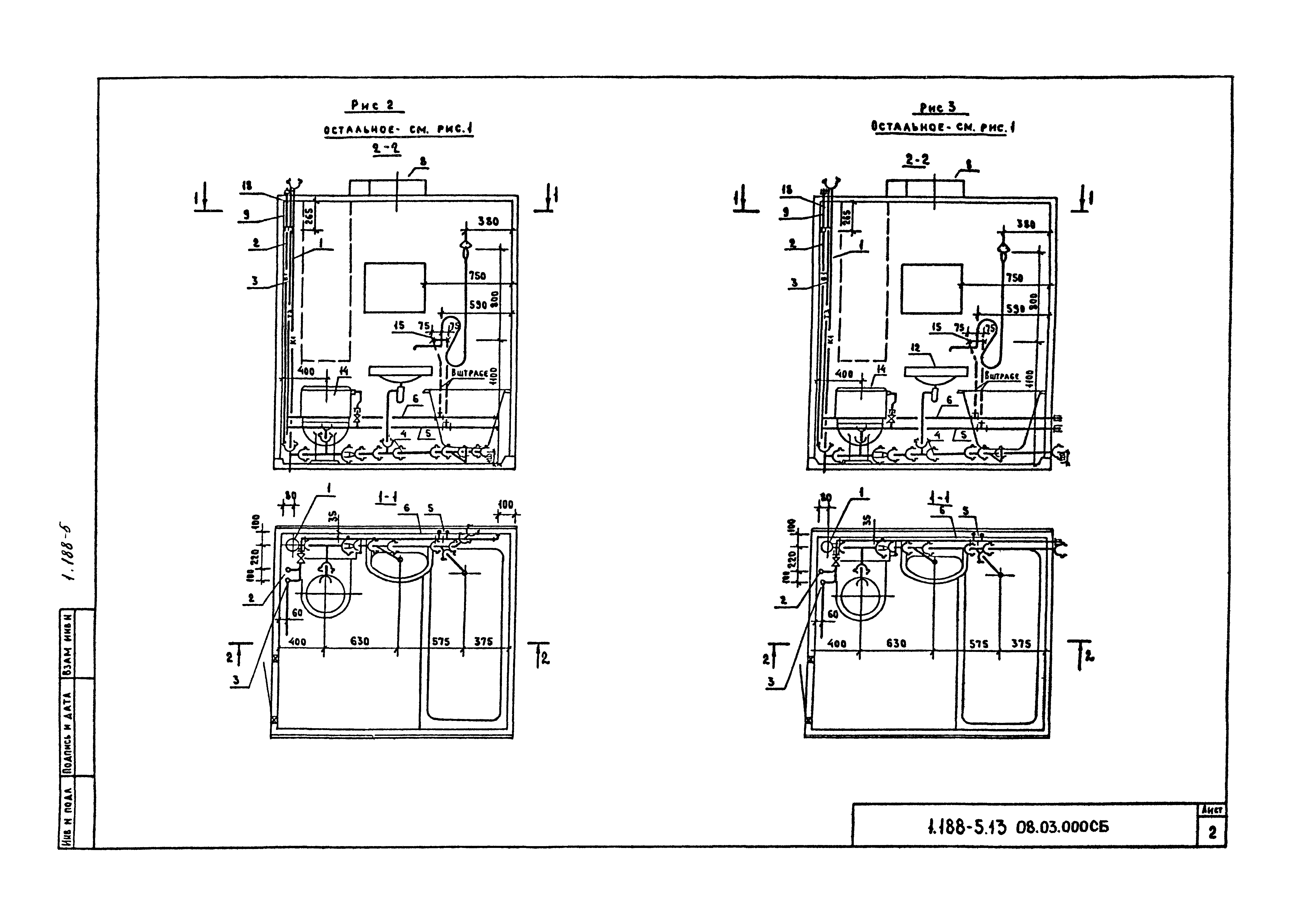
Выпуск 13. Санитарно-техническое оборудование разобщенных и совмещенных кабин типа "Колпак" из тяжелого цементного бетона и керамзитобетона с канализационными трубопроводами из поливинилхлорида для жилых зданий с теплым чердаком. Рабочие чертежи

Обозначение: Серия 1.188-5
Обозначение англ: Series 1.188-5
Статус:не определен законодательством
Название рус.:Выпуск 13. Санитарно-техническое оборудование разобщенных и совмещенных кабин типа "Колпак" из тяжелого цементного бетона и керамзитобетона с канализационными трубопроводами из поливинилхлорида для жилых зданий с теплым чердаком. Рабочие чертежи
Дата добавления в базу:01.09.2013
Дата актуализации:01.01.2021
Дата введения:30.12.1986
Дата окончания срока действия:30.06.2003
Разработан: ЦНИИЭП жилища
Утверждён:30.12.1986 Госкомитет по гражданскому строительству и архитектуре при Госстрое СССР (National Committee on Nonindustrial Construction and Architecture, USSR Gosstroy 470)
Издан: ЦИТП Госстроя СССР (CITP, Gosstroy (USSR) 1987 г. )
Серия 1.188-5Серия 1.188-5Серия 1.188-5Серия 1.188-5Серия 1.188-5Серия 1.188-5Серия 1.188-5Серия 1.188-5Серия 1.188-5Серия 1.188-5Серия 1.188-5Серия 1.188-5Серия 1.188-5Серия 1.188-5Серия 1.188-5Серия 1.188-5Серия 1.188-5Серия 1.188-5Серия 1.188-5Серия 1.188-5Серия 1.188-5Серия 1.188-5Серия 1.188-5Серия 1.188-5Серия 1.188-5Серия 1.188-5Серия 1.188-5Серия 1.188-5Серия 1.188-5Серия 1.188-5Серия 1.188-5Серия 1.188-5Серия 1.188-5Серия 1.188-5Серия 1.188-5Серия 1.188-5Серия 1.188-5Серия 1.188-5Серия 1.188-5Серия 1.188-5Серия 1.188-5Серия 1.188-5Серия 1.188-5Серия 1.188-5Серия 1.188-5Серия 1.188-5Серия 1.188-5Серия 1.188-5Серия 1.188-5Серия 1.188-5Серия 1.188-5Серия 1.188-5Серия 1.188-5Серия 1.188-5Серия 1.188-5Серия 1.188-5Серия 1.188-5Серия 1.188-5Серия 1.188-5Серия 1.188-5Серия 1.188-5Серия 1.188-5Серия 1.188-5Серия 1.188-5Серия 1.188-5Серия 1.188-5Серия 1.188-5Серия 1.188-5Серия 1.188-5Серия 1.188-5Серия 1.188-5Серия 1.188-5Серия 1.188-5Серия 1.188-5Серия 1.188-5Серия 1.188-5