Скачать Серия 1.188.1-8 Выпуск 2. Строительные чертежи кабин типа 2СК из тяжелого цементного бетона. Рабочие чертежиДата актуализации: 01.01.2021 Серия 1.188.1-8
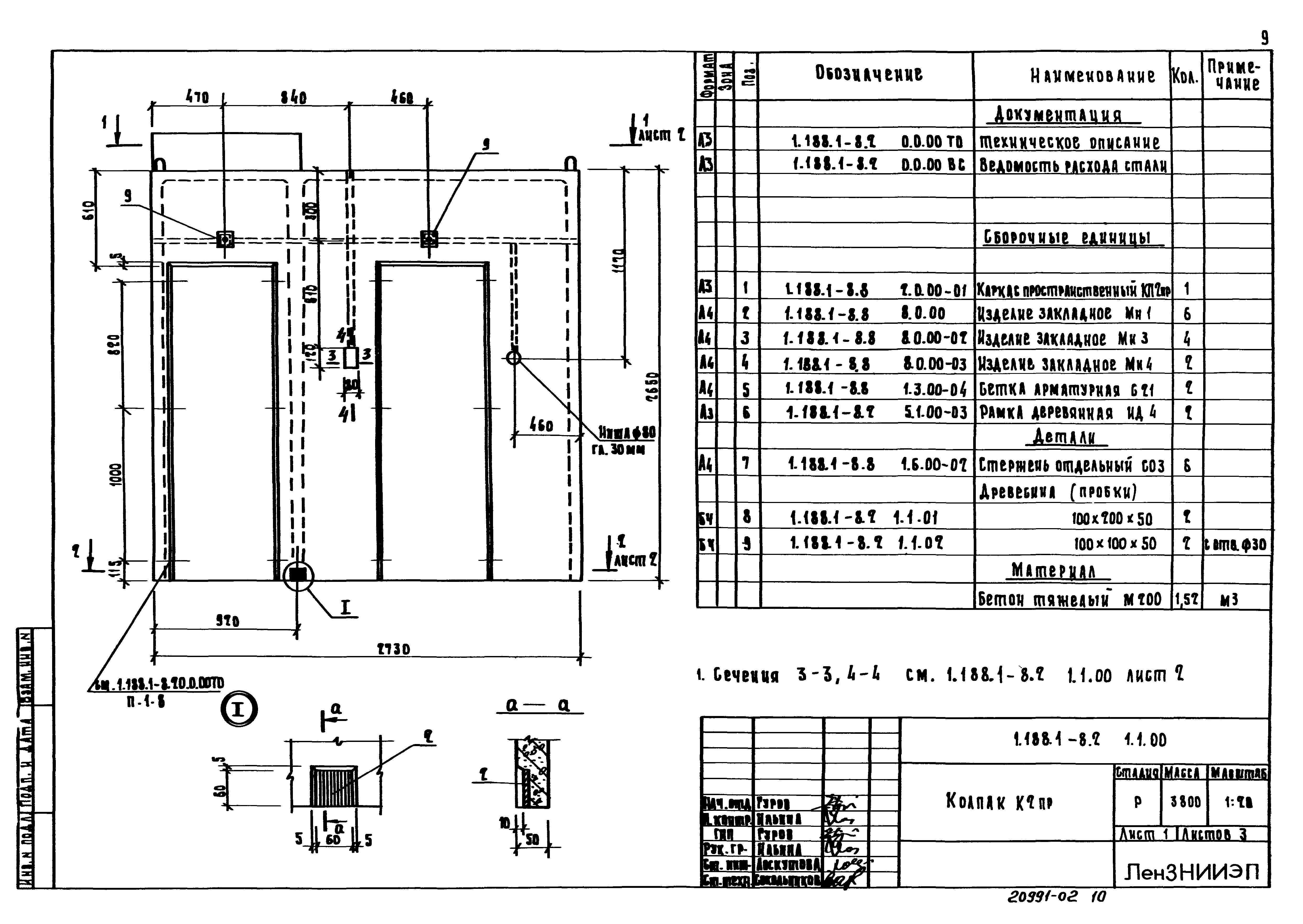
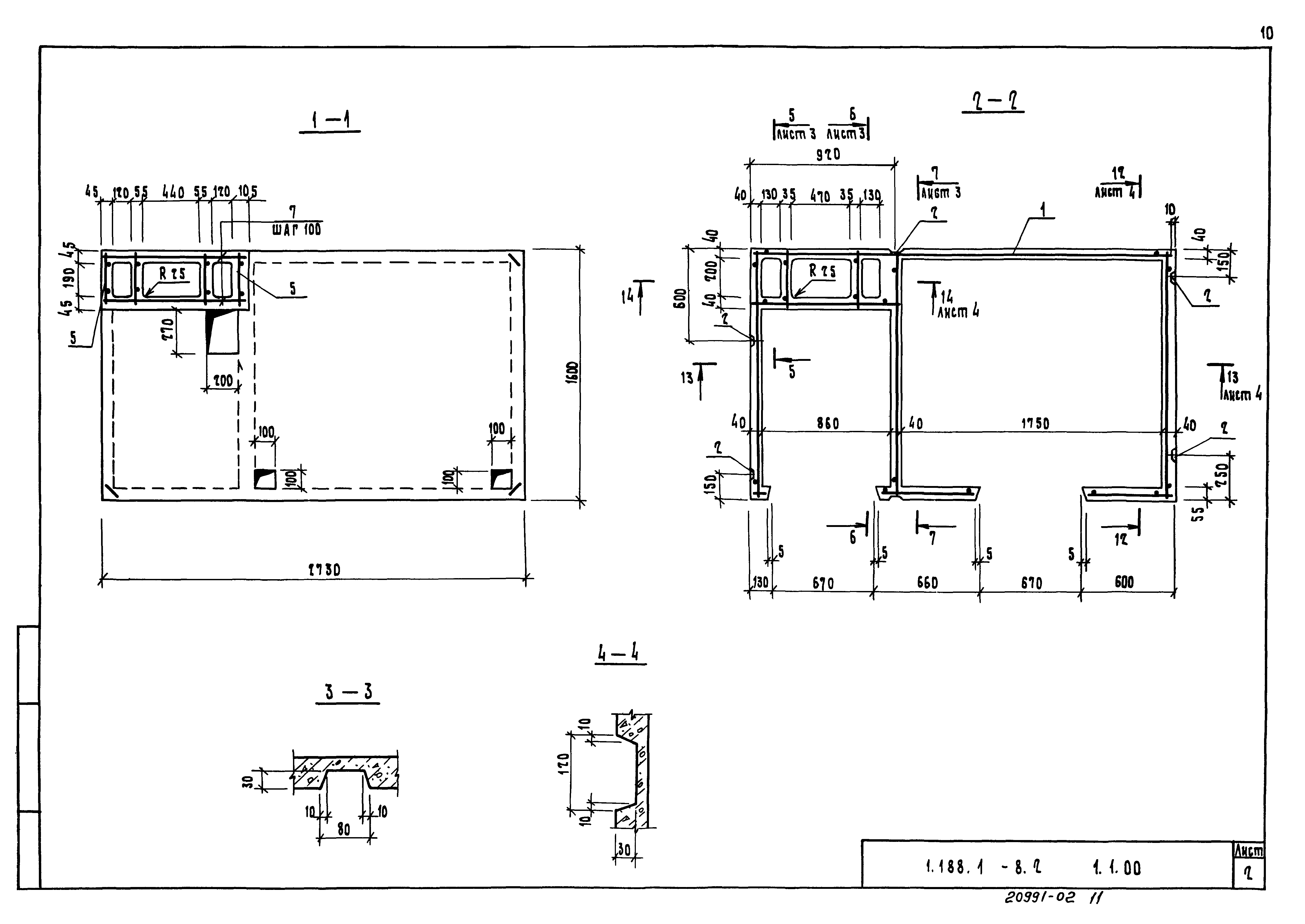
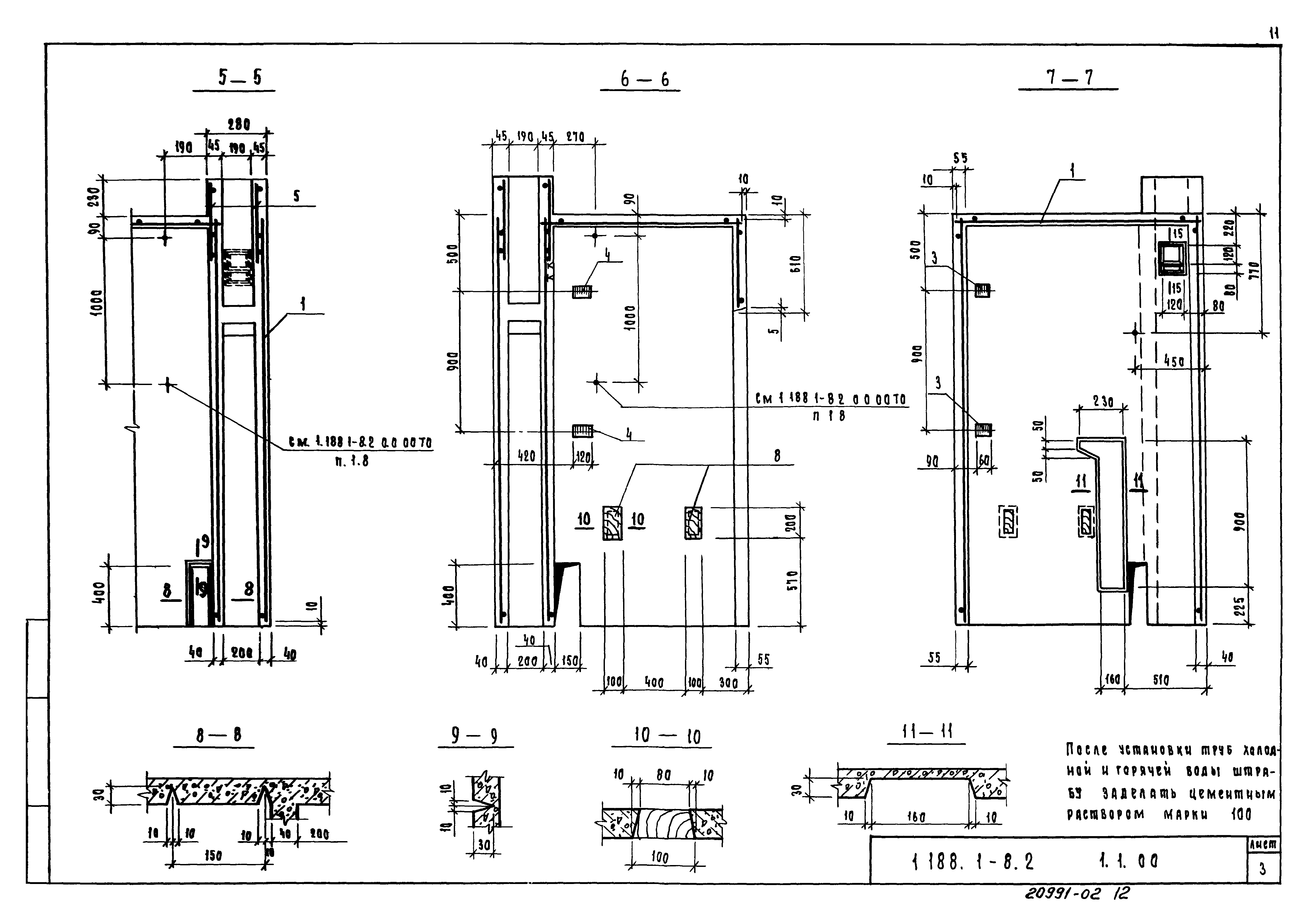
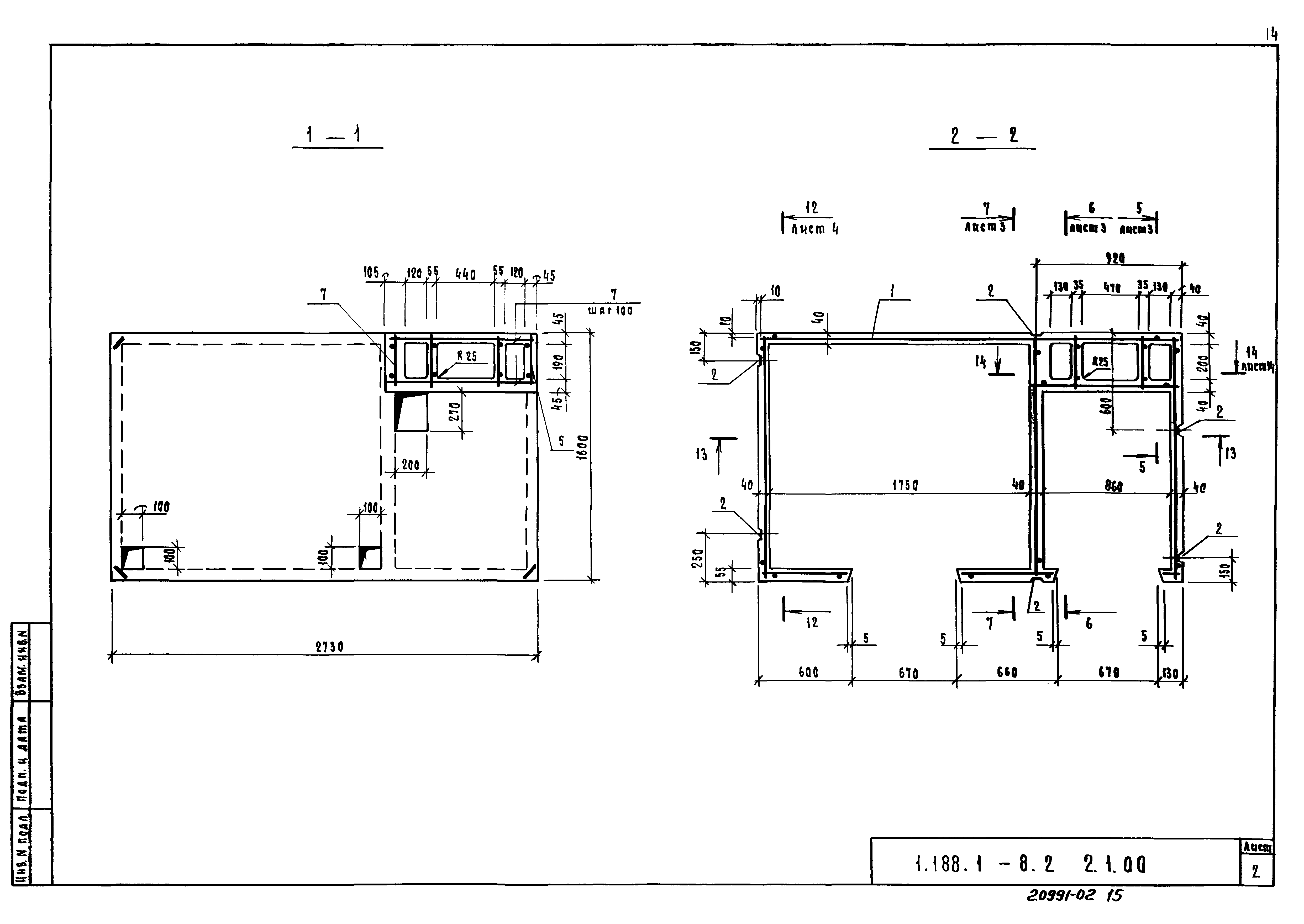
Выпуск 2. Строительные чертежи кабин типа 2СК из тяжелого цементного бетона. Рабочие чертежи| Обозначение: | Серия 1.188.1-8 | | Обозначение англ: | Series 1.188.1-8 | | Статус: | действует | | Название рус.: | Выпуск 2. Строительные чертежи кабин типа 2СК из тяжелого цементного бетона. Рабочие чертежи | | Дата добавления в базу: | 01.09.2013 | | Дата актуализации: | 01.01.2021 | | Дата введения: | 30.05.1985 | | Разработан: | ЛенЗНИИЭП Госгражданстроя
| | Утверждён: | 08.05.1985 Госгражданстрой (Gosgrazhdanstroy 138)
| | Издан: | ЦИТП Госстроя СССР (CITP, Gosstroy (USSR) 1986 г. )
|
                         
|