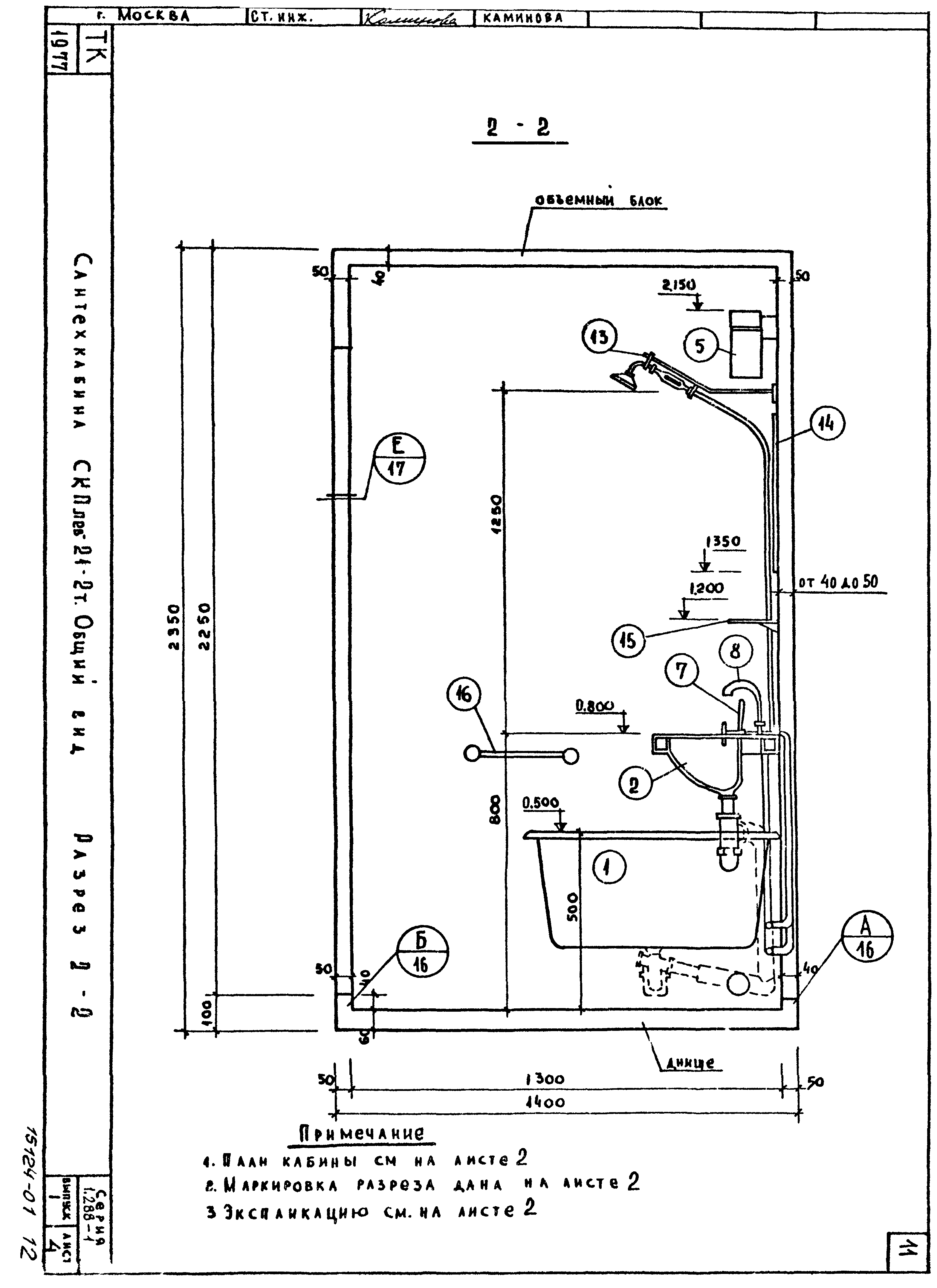
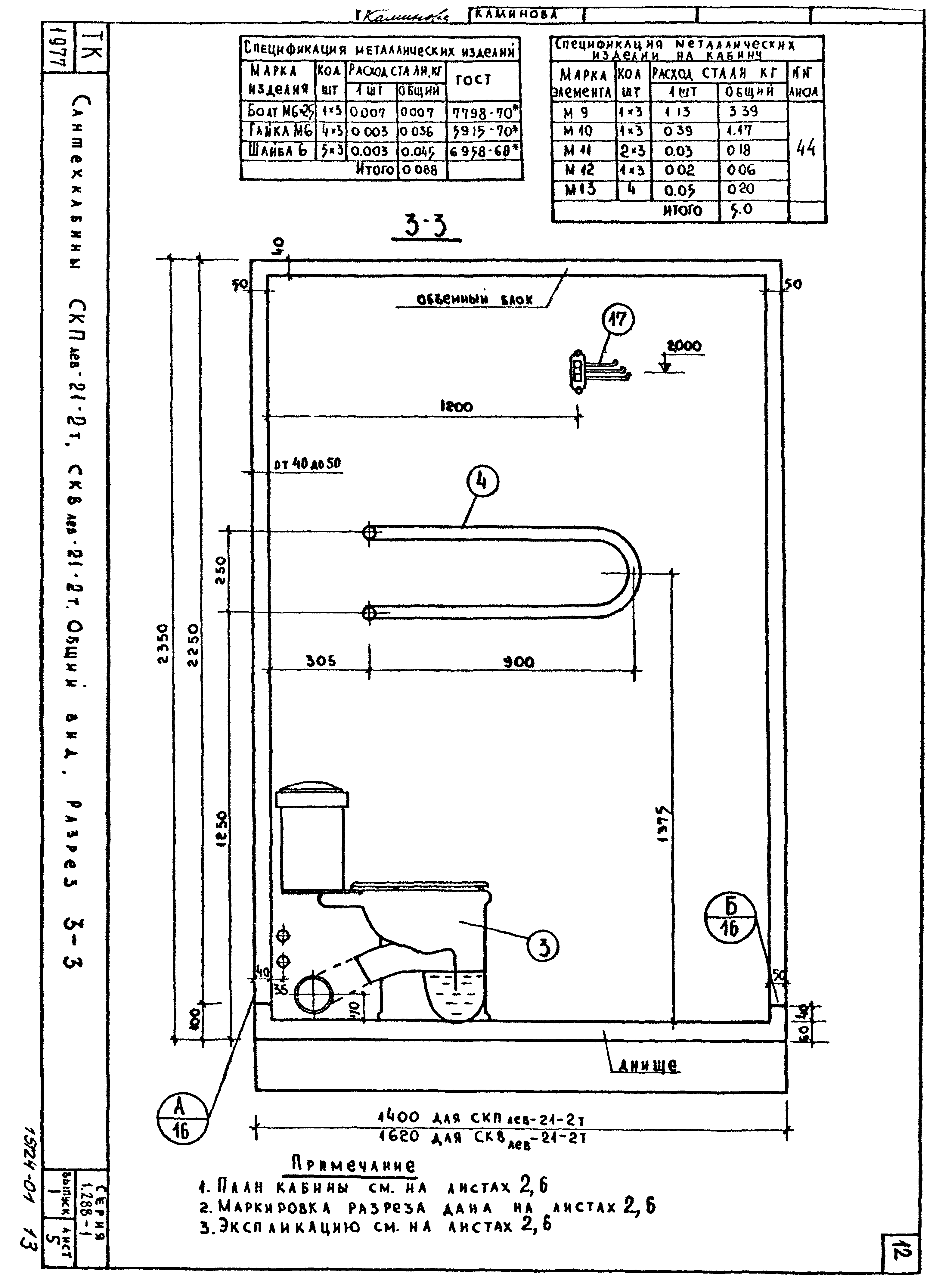
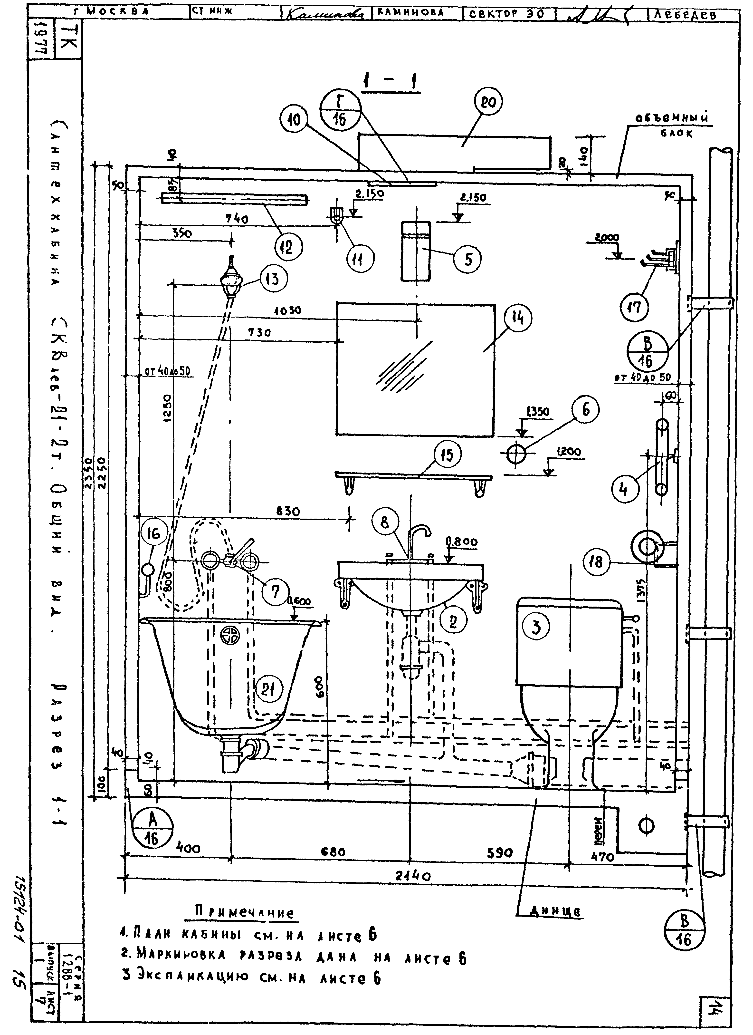
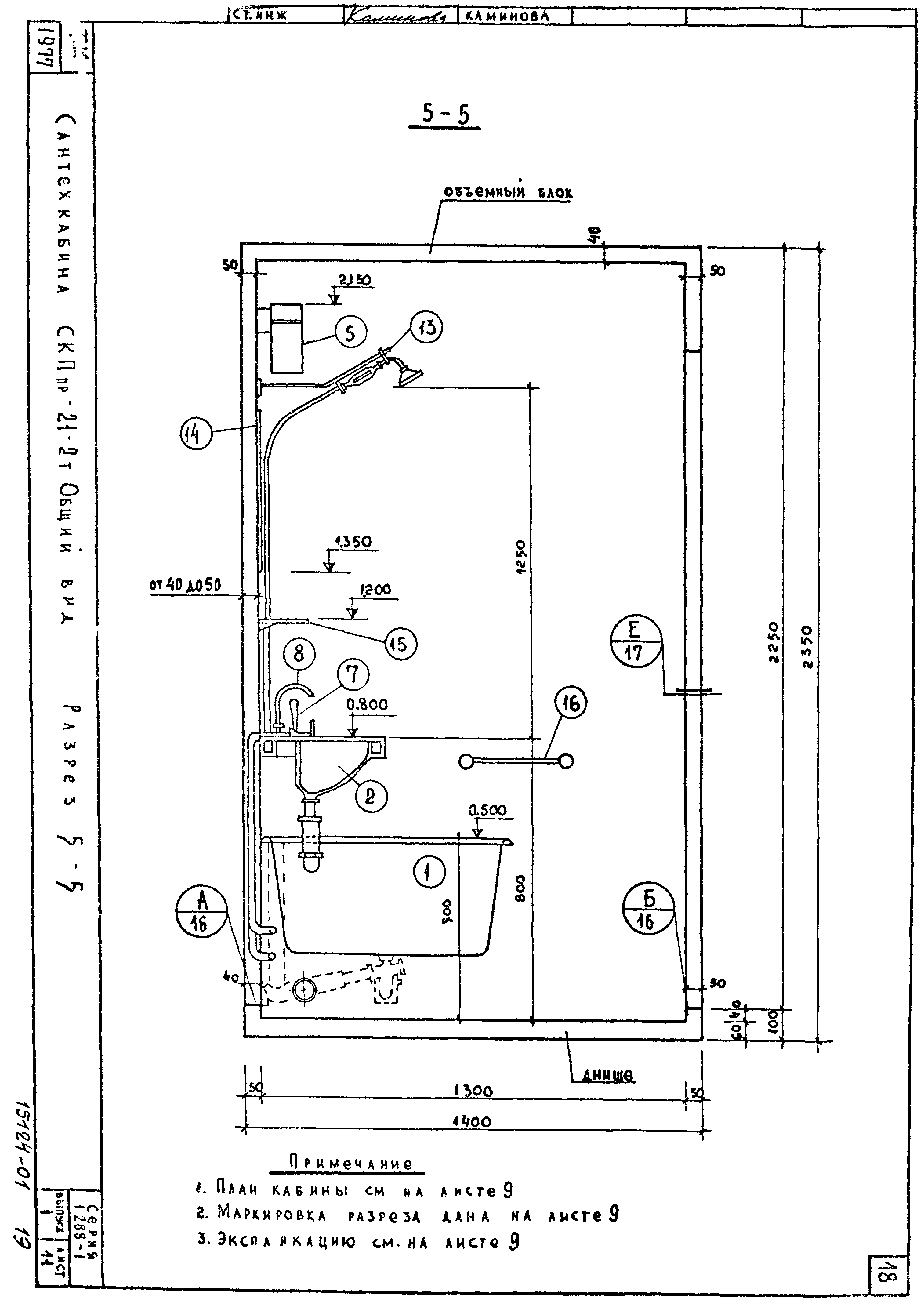
Скачать Серия 1.288-1 Выпуск 1. Строительные чертежи совмещенных кабин типа Колпак из тяжелого бетона и керамзитобетонаДата актуализации: 01.01.2021 Серия 1.288-1
Выпуск 1. Строительные чертежи совмещенных кабин типа "Колпак" из тяжелого бетона и керамзитобетона| Обозначение: | Серия 1.288-1 | | Обозначение англ: | Series 1.288-1 | | Статус: | действует | | Название рус.: | Выпуск 1. Строительные чертежи совмещенных кабин типа "Колпак" из тяжелого бетона и керамзитобетона | | Дата добавления в базу: | 01.09.2013 | | Дата актуализации: | 01.01.2021 | | Дата введения: | 01.05.1978 | | Разработан: | ЦНИИЭП лечебно-курортных зданий Госгражданстроя
| | Утверждён: | 02.03.1978 Госгражданстрой (Gosgrazhdanstroy 51)
|
                                                      
|