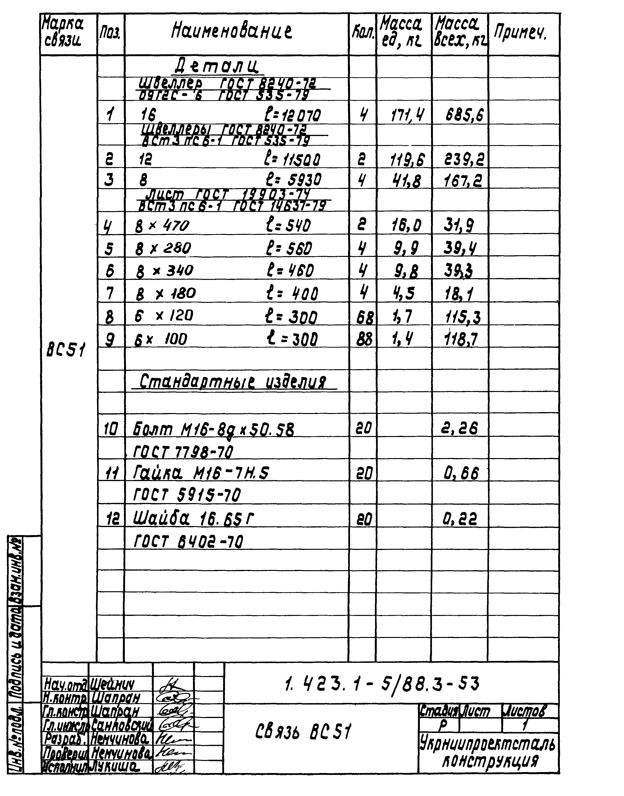
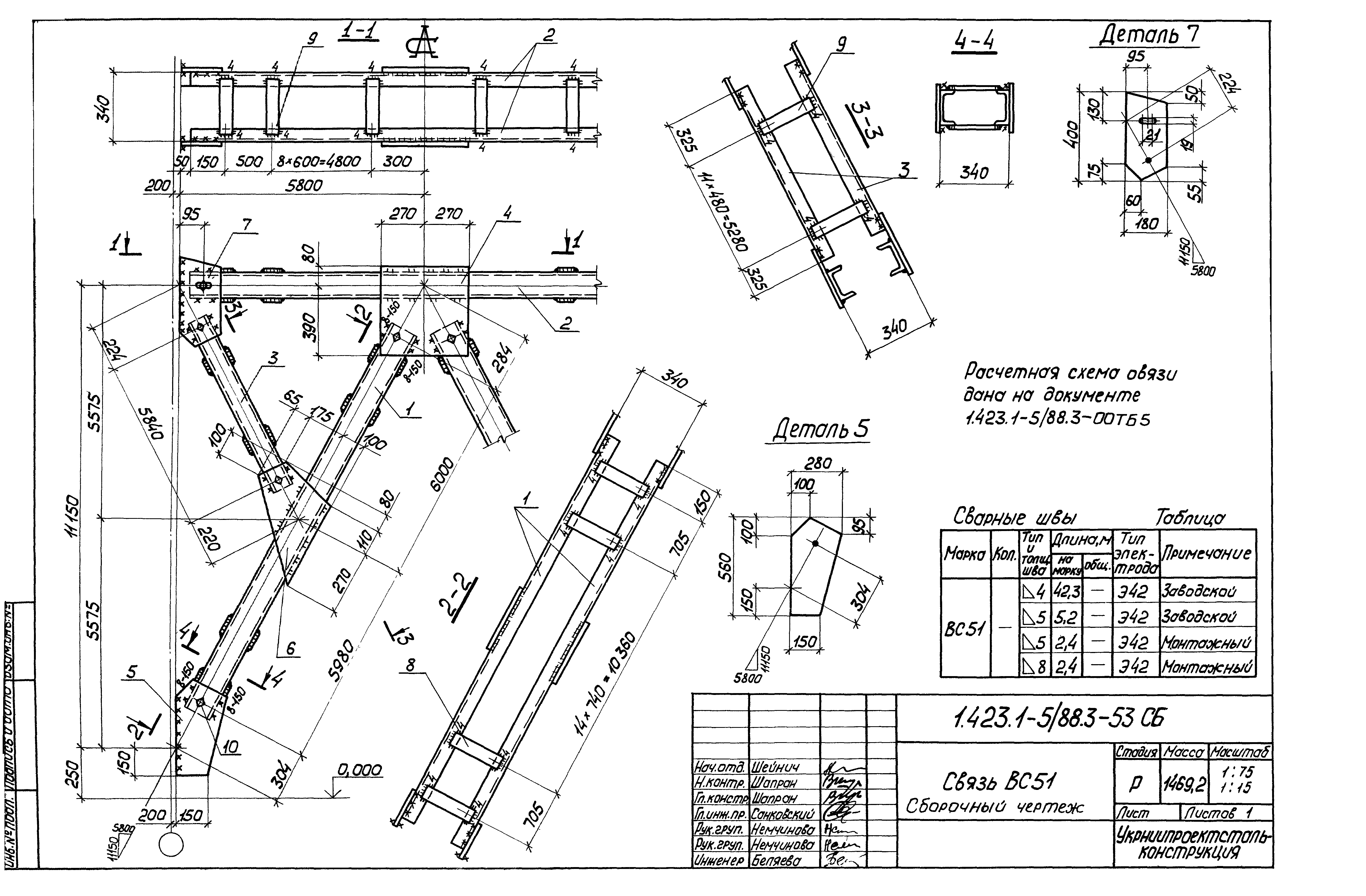
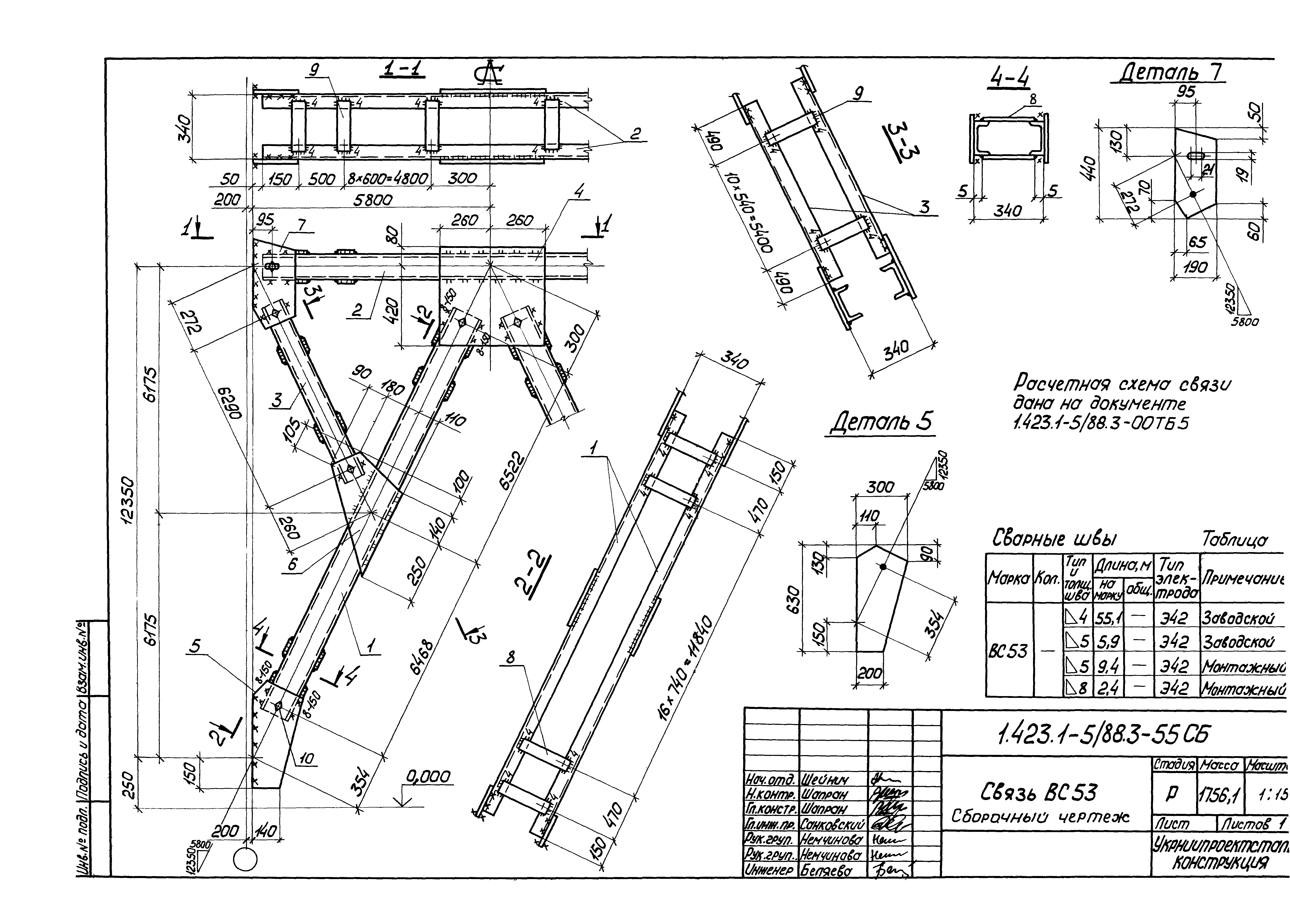
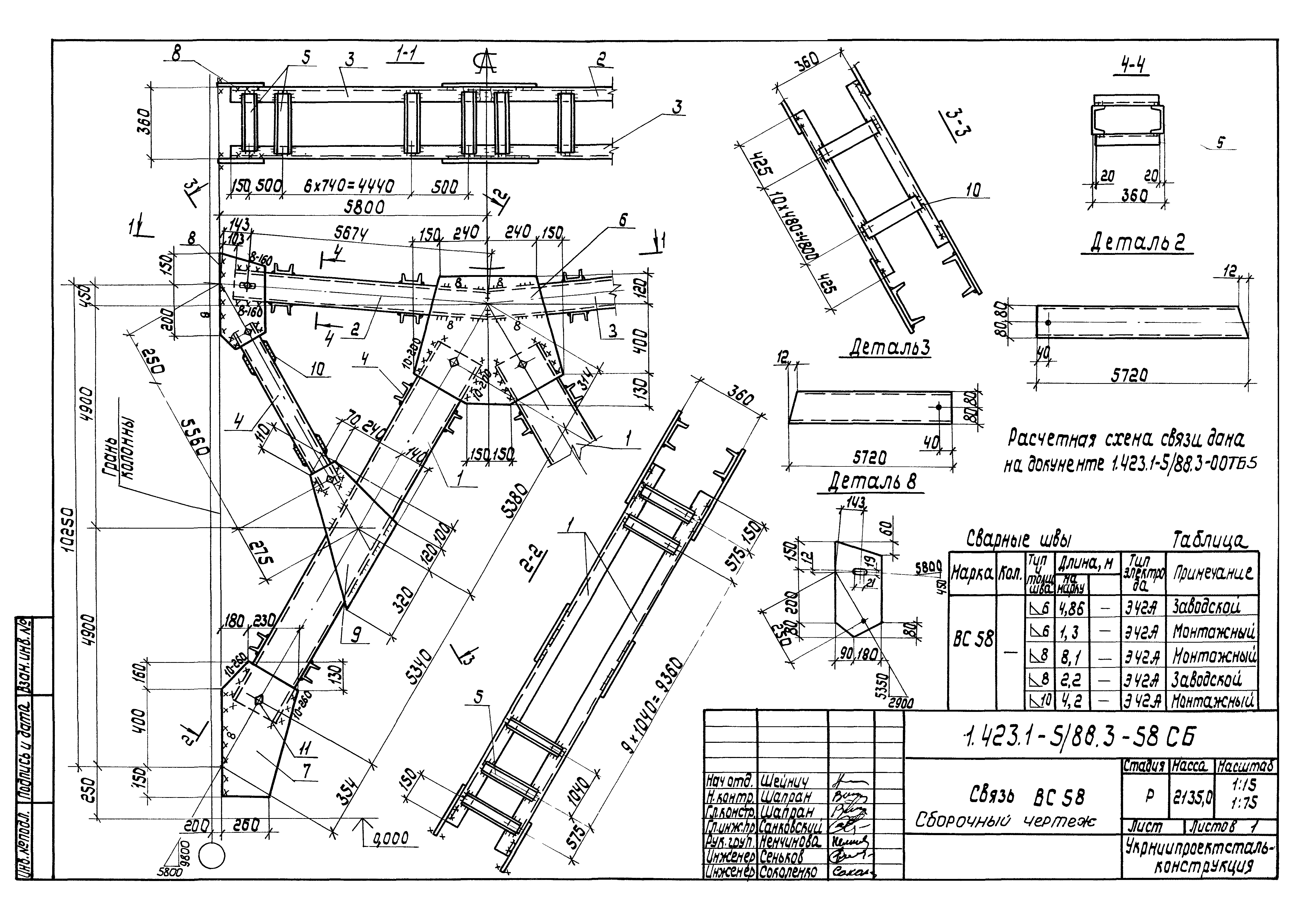
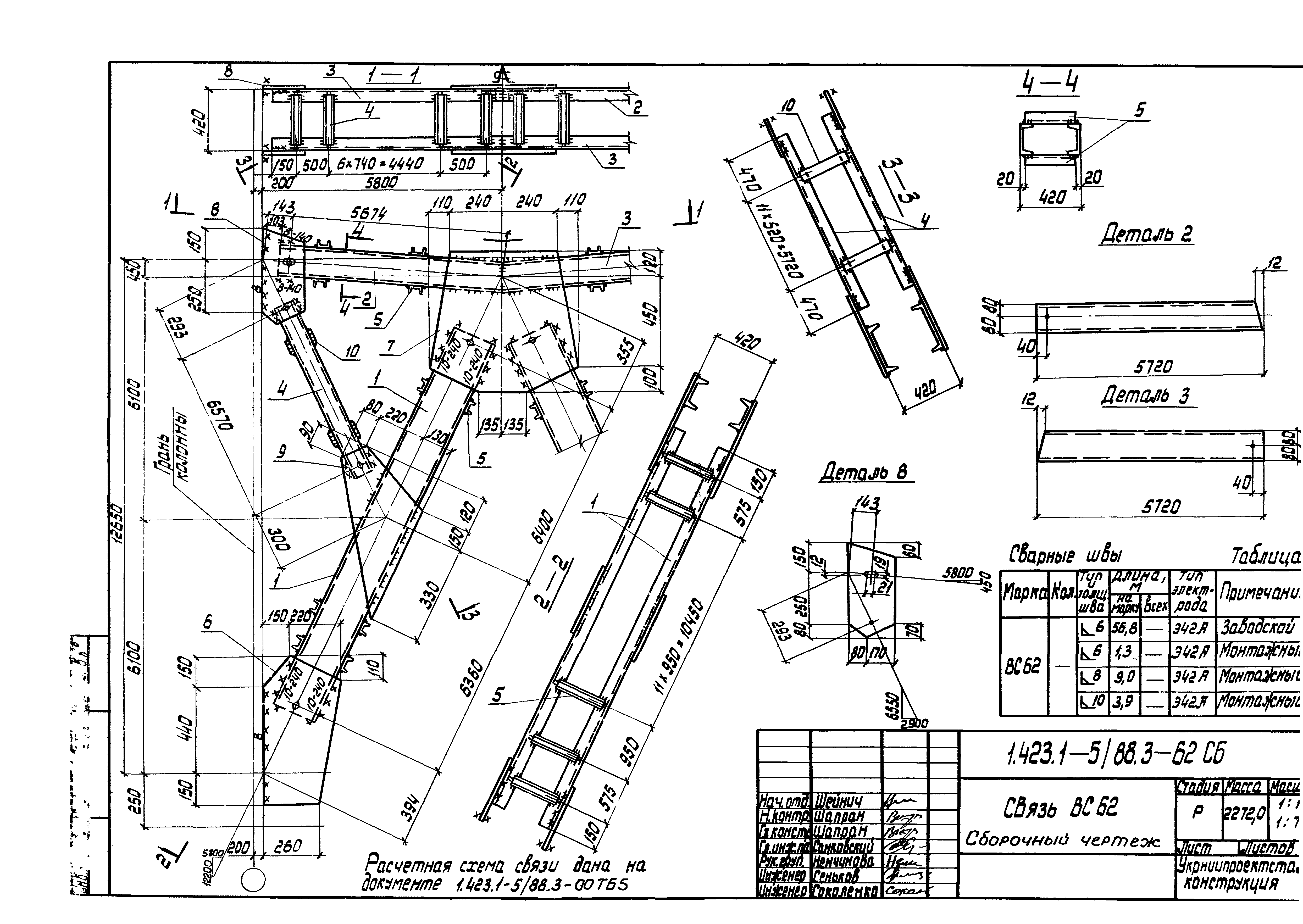
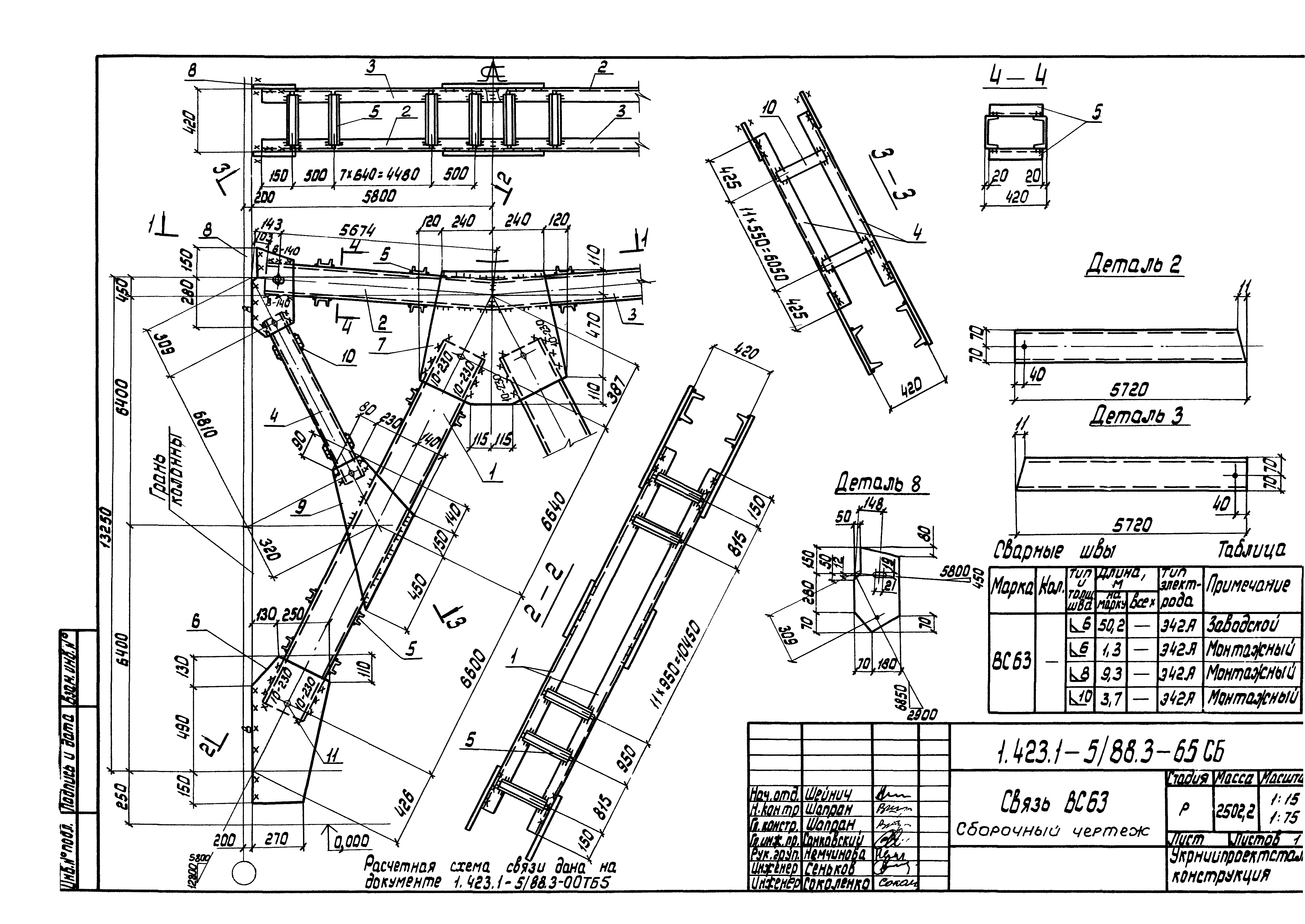
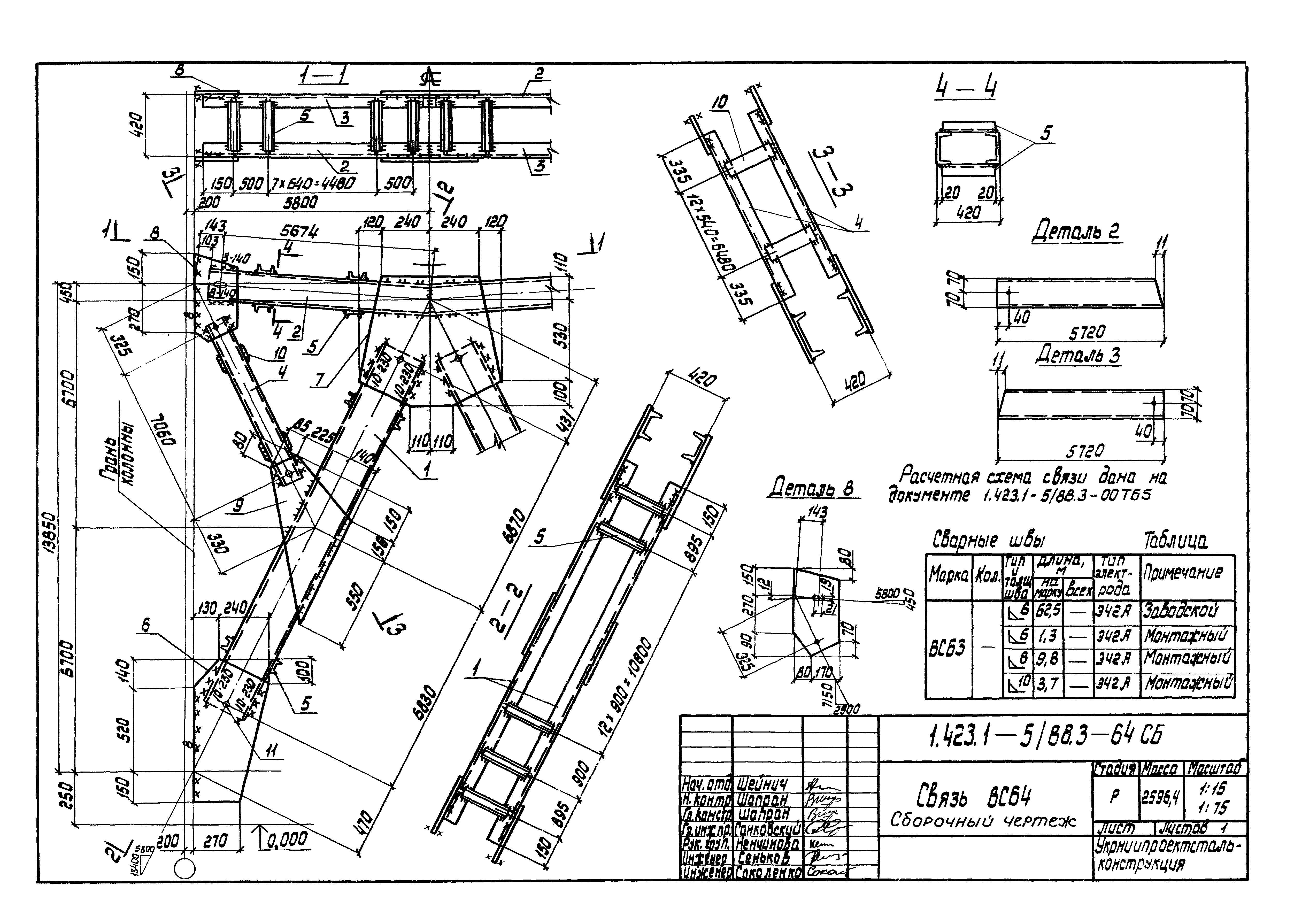
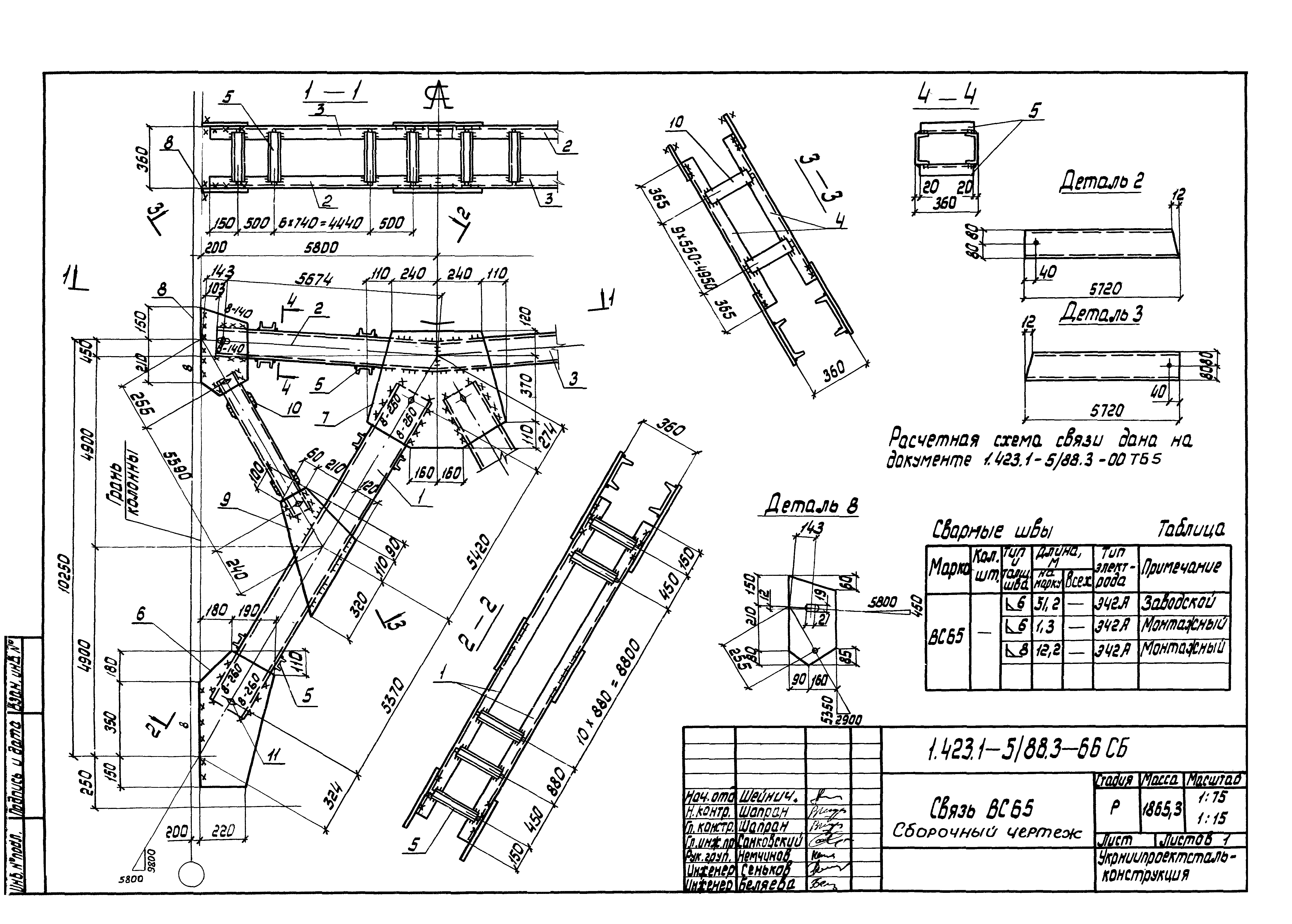
Скачать Серия 1.423.1-5/88 Выпуск 3. Книга II. Стальные связи по колоннам. Рабочие чертежиДата актуализации: 01.01.2021
|
| Обозначение: | Серия 1.423.1-5/88 |
| Обозначение англ: | Series 1.423.1-5/88 |
| Статус: | не определен законодательством |
| Название рус.: | Выпуск 3. Книга II. Стальные связи по колоннам. Рабочие чертежи |
| Дата добавления в базу: | 01.09.2013 |
| Дата актуализации: | 01.12.2013 |
| Дата введения: | 01.04.1989 |


















































































