Скачать Серия 1.821.1-7 Выпуск 1. Сваи-колонны. Рабочие чертежиДата актуализации: 01.01.2021 Серия 1.821.1-7
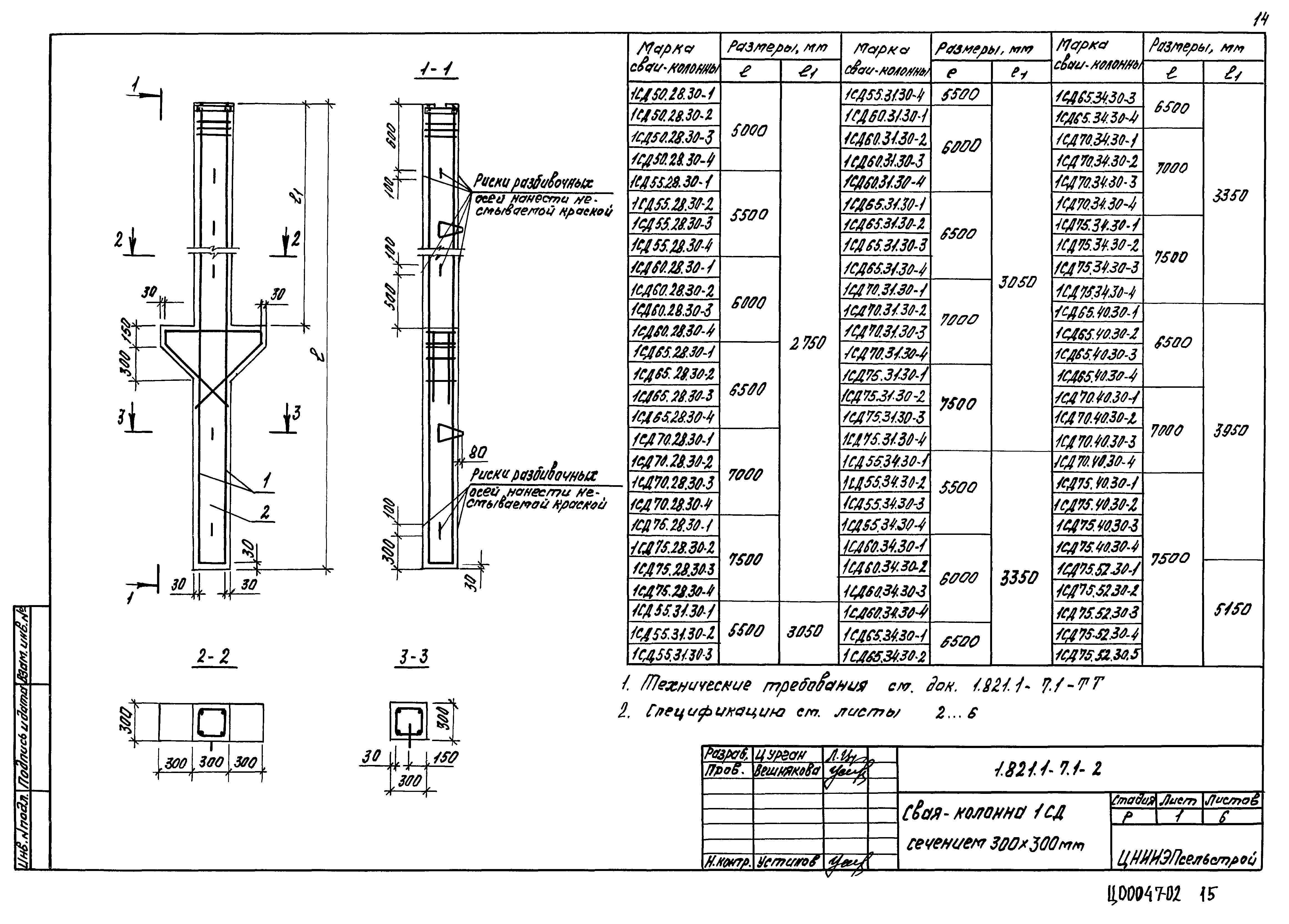
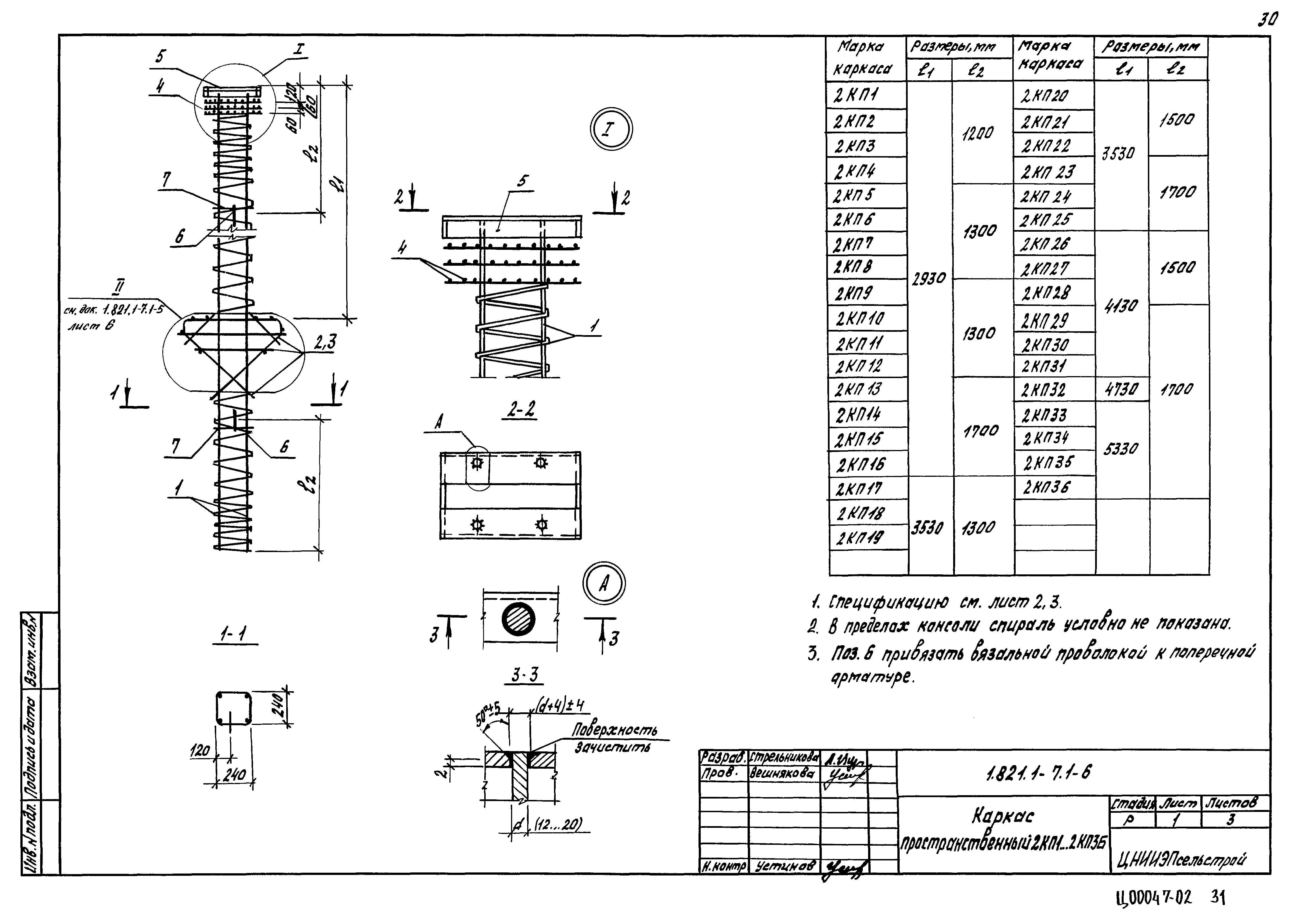
Выпуск 1. Сваи-колонны. Рабочие чертежи| Обозначение: | Серия 1.821.1-7 | | Обозначение англ: | Series 1.821.1-7 | | Статус: | не определен законодательством | | Название рус.: | Выпуск 1. Сваи-колонны. Рабочие чертежи | | Дата добавления в базу: | 01.09.2013 | | Дата актуализации: | 01.01.2021 | | Дата введения: | 01.05.1993 | | Дата окончания срока действия: | 30.06.2003 | | Разработан: | ЦНИИЭПсельстрой
| | Утверждён: | 30.12.1992 Минстрой России (Russian Federation Minstroy 9-1/415)
|
                                            
|