Скачать Серия 1.424.3-7 Выпуск 7. Колонны для зданий высотой от 13,2 до 24 м с мостовыми электрическими кранами общего назначения грузоподъемностью от 80 до 320 т. Чертежи КМДата актуализации: 01.01.2021
|
| Обозначение: | Серия 1.424.3-7 |
| Обозначение англ: | Series 1.424.3-7 |
| Статус: | действует |
| Название рус.: | Выпуск 7. Колонны для зданий высотой от 13,2 до 24 м с мостовыми электрическими кранами общего назначения грузоподъемностью от 80 до 320 т. Чертежи КМ |
| Дата добавления в базу: | 01.09.2013 |
| Дата актуализации: | 01.01.2021 |
| Дата введения: | 01.02.1990 |
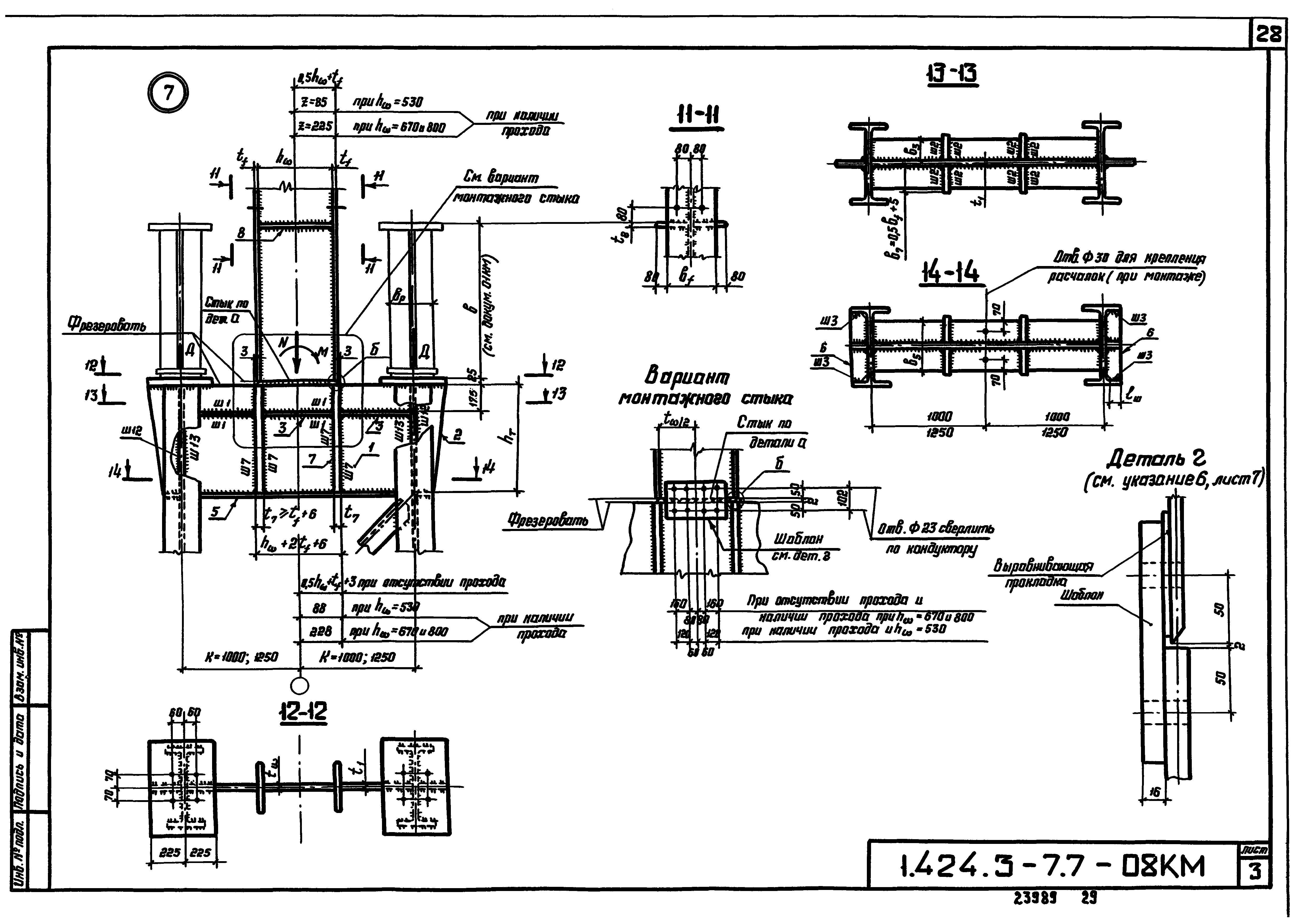
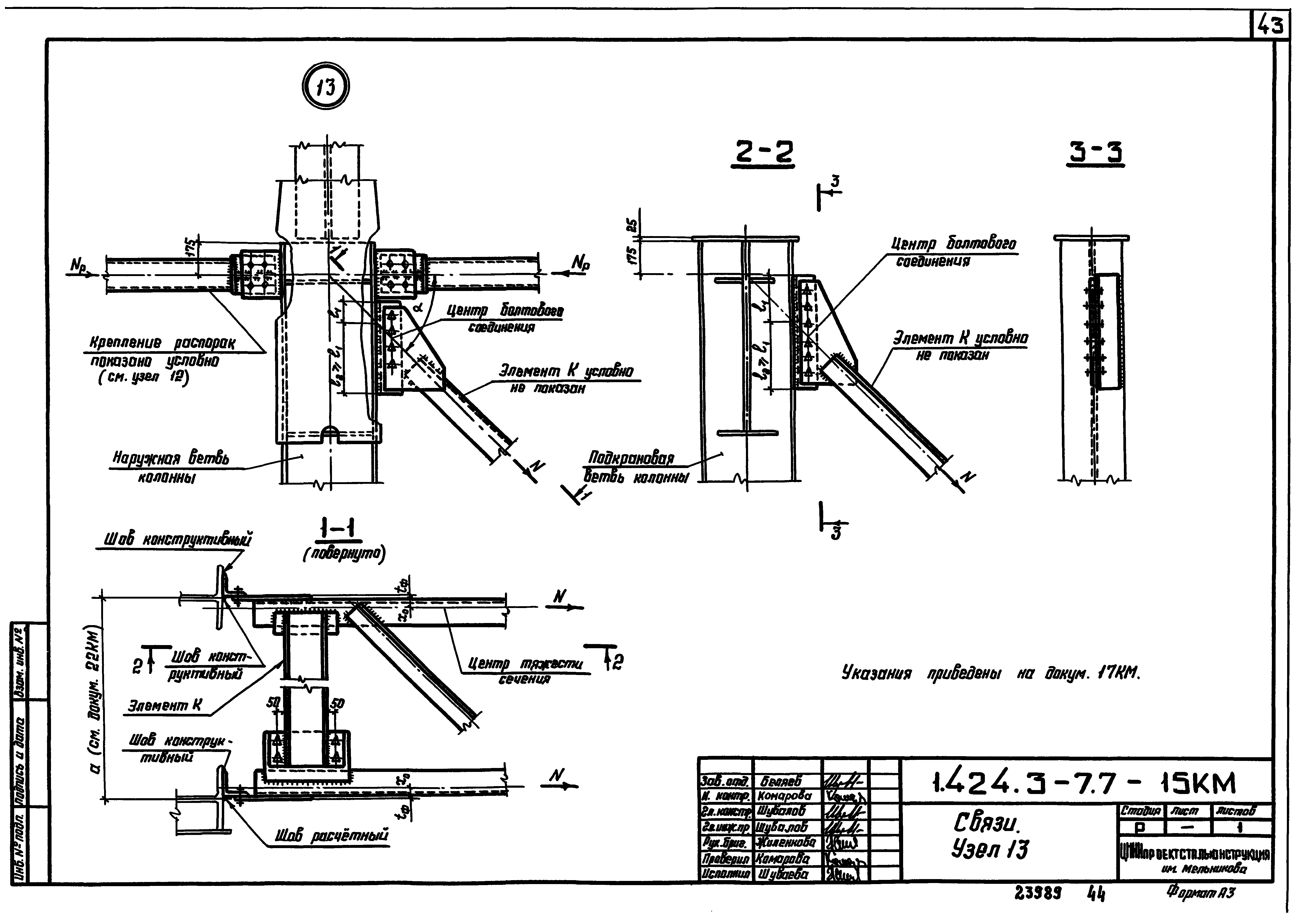
| Оглавление: | 1.424.3-7.7-ПЗ Пояснительная записка 1.424.3-7.7-01КМ Основные габаритные размеры колонн 1.424.3-7.7-02КМ Таблица несущей способности ветвей подкрановых частей колонн в зависимости от длины подкрановой части колонны 1.424.3-7.7-03КМ Таблица несущей способности ветвей подкрановых частей колонн в зависимости от шага решетки 1.424.3-7.7-04КМ Таблица несущей способности ветвей подкрановых частей колонн крайнего ряда однопролетных зданий (по проверке сквозного сечения в целом) 1.424.3-7.7-05КМ Таблица несущей способности подкрановых частей колонн 1.424.3-7.7-06КМ Моменты инерции сечений колонн в плоскости поперечной рамы здания 1.424.3-7.7-07КМ Оголовки колонн. Узлы 1-5 1.424.3-7.7-08КМ Подкрановая ступень колонны. Узлы 6 и 7 1.424.3-7.7-09КМ Решетка колонны. Узел 8 1.424.3-7.7-10КМ База колонны. Узел 9 1.424.3-7.7-11КМ Сортамент анкерных плиток баз колонн для климатических районов II4, II5 и др. 1.424.3-7.7-12КМ Сортамент анкерных плиток баз колонн для климатических районов I1, I2, II2 и II3 1.424.3-7.7-13КМ Схемы расположения связей по колоннам 1.424.3-7.7-14КМ Связи. Узлы 10-12 1.424.3-7.7-15КМ Связи. Узел 13 1.424.3-7.7-16КМ Связи. Узлы 14 и 15 1.424.3-7.7-17КМ Связи. Узел 16 1.424.3-7.7-18КМ Связи. Узлы 17-20 1.424.3-7.7-19КМ Связи. Узлы 21-23 1.424.3-7.7-20КМ Связи. Узел 24 1.424.3-7.7-21КМ Сортамент надкрановых связей и распорок 1.424.3-7.7-22КМ Сортамент подкрановых связей для районов несейсмических и сейсмичностью до 6 баллов включительно 1.424.3-7.7-23КМ Сортамент подкрановых связей для районов сейсмичностью 7,8 и 9 баллов 1.424.3-7.7-24КМ Сортамент энегопоглотителей 1.424.3-7.7-25КМ расчетные схемы вертикальных связей по колоннам для районов сейсмичностью 7,8 и 9 баллов |
| Разработан: | ЦНИИПСК им. Мельникова |
| Утверждён: | 25.01.1989 Госстрой СССР (Государственный комитет Совета Министров СССР по делам строительства) (USSR Gosstroy ) |






















































