Скачать Серия 1.427.3-9 Выпуск 1. Стойки фахверка отапливаемых зданий. Чертежи КМДата актуализации: 01.01.2021
|
| Обозначение: | Серия 1.427.3-9 |
| Обозначение англ: | Series 1.427.3-9 |
| Статус: | не определен законодательством |
| Название рус.: | Выпуск 1. Стойки фахверка отапливаемых зданий. Чертежи КМ |
| Дата добавления в базу: | 01.09.2013 |
| Дата актуализации: | 01.01.2021 |
| Дата введения: | 01.09.1991 |
| Дата окончания срока действия: | 30.06.2003 |
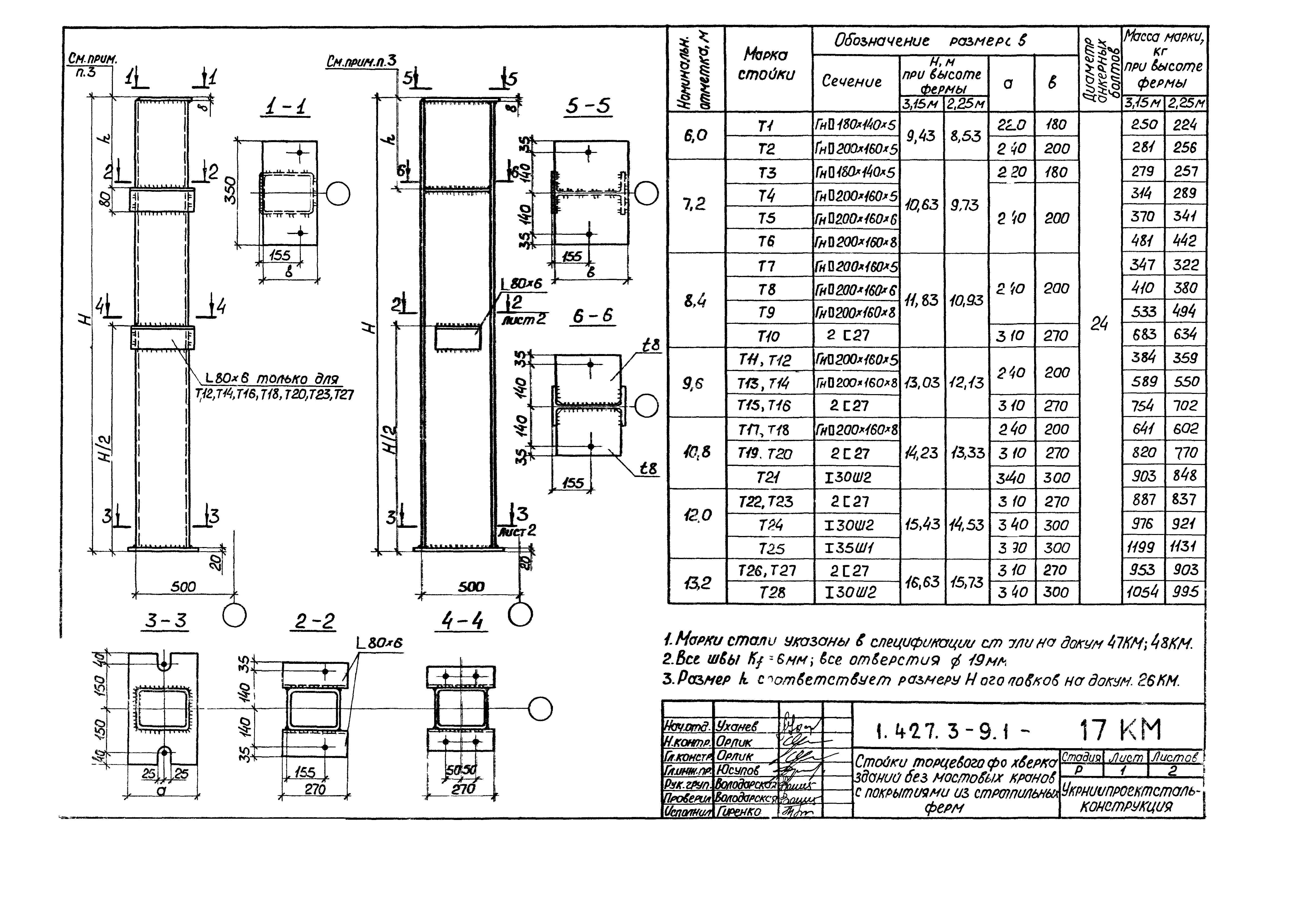
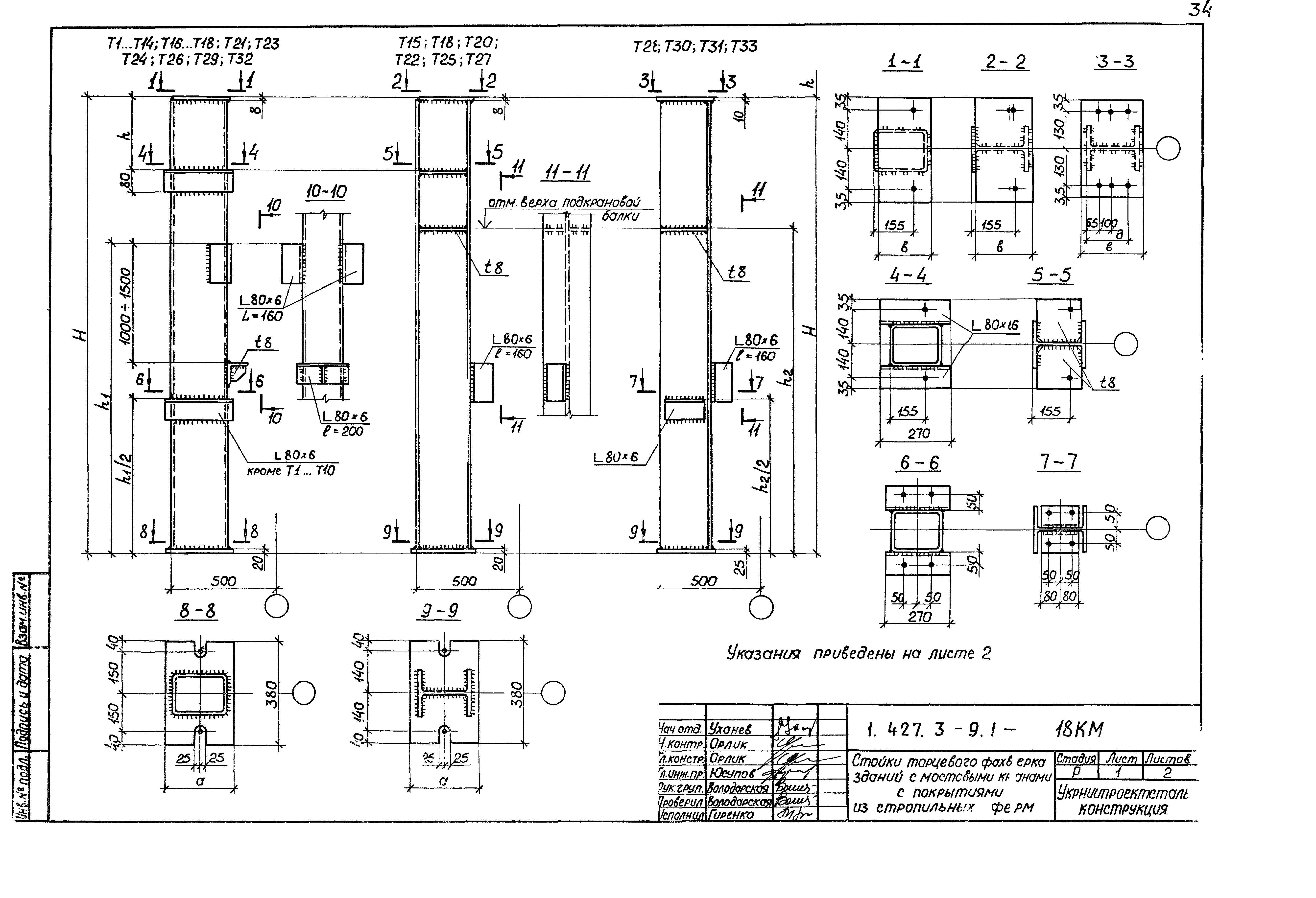
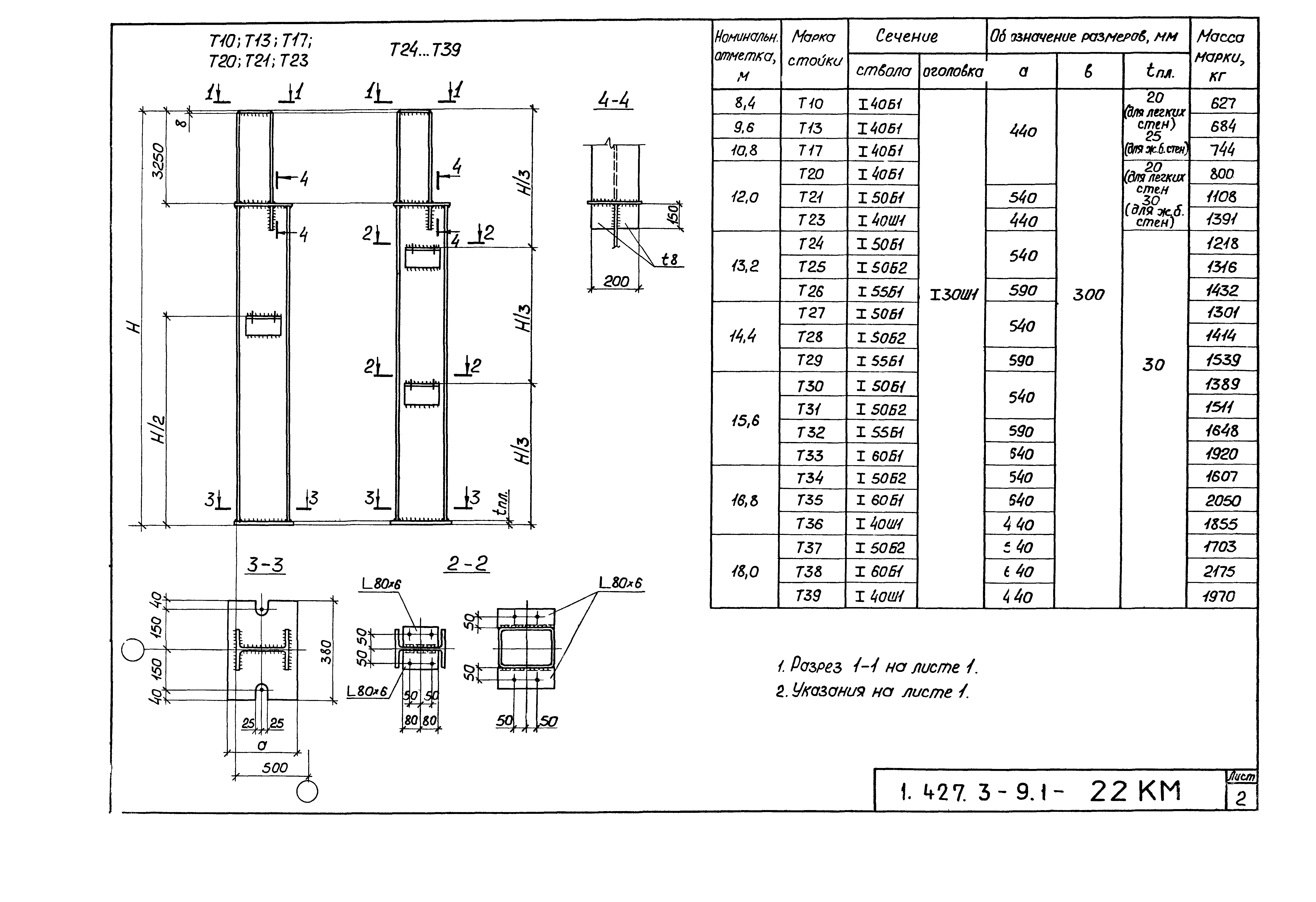
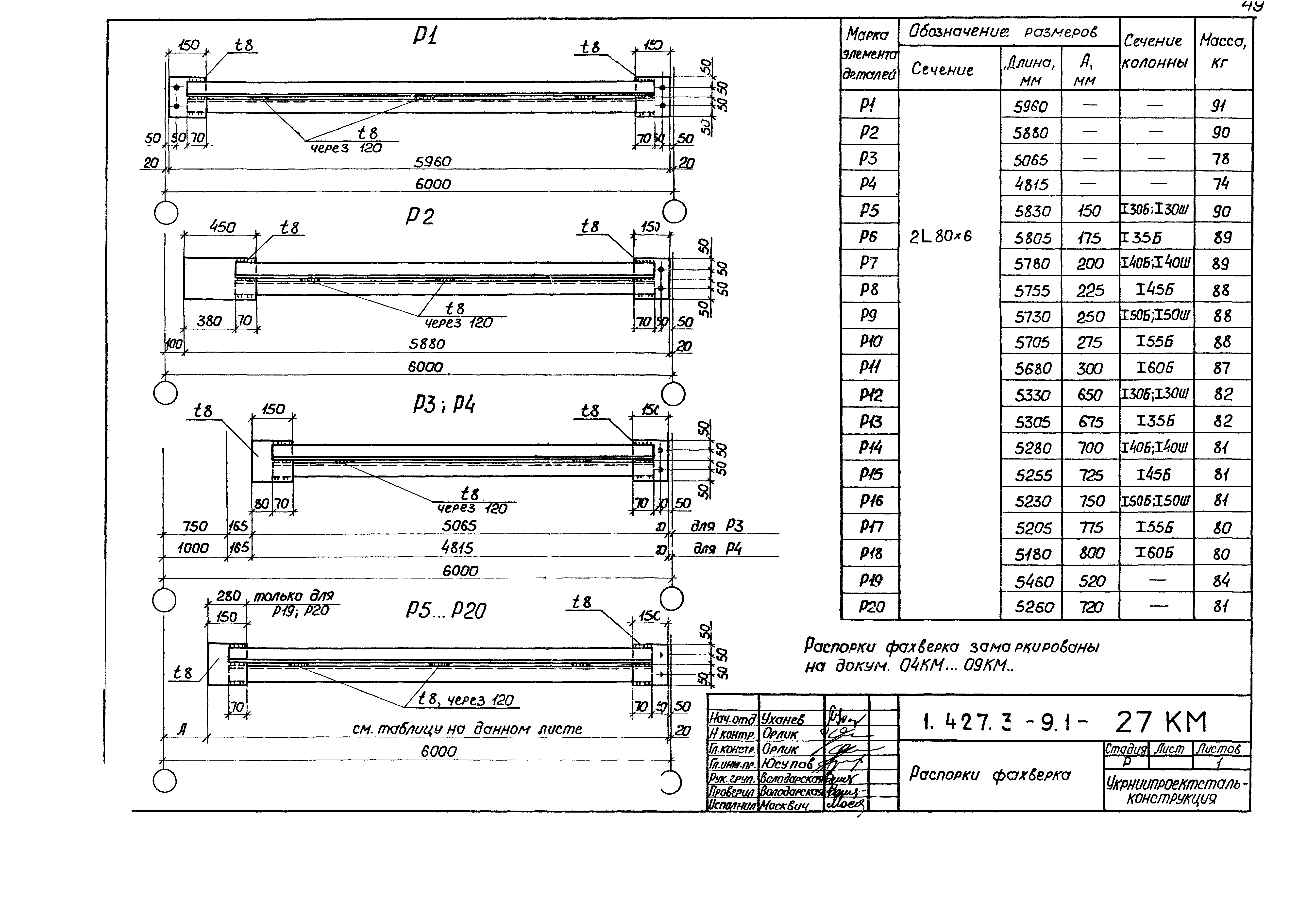
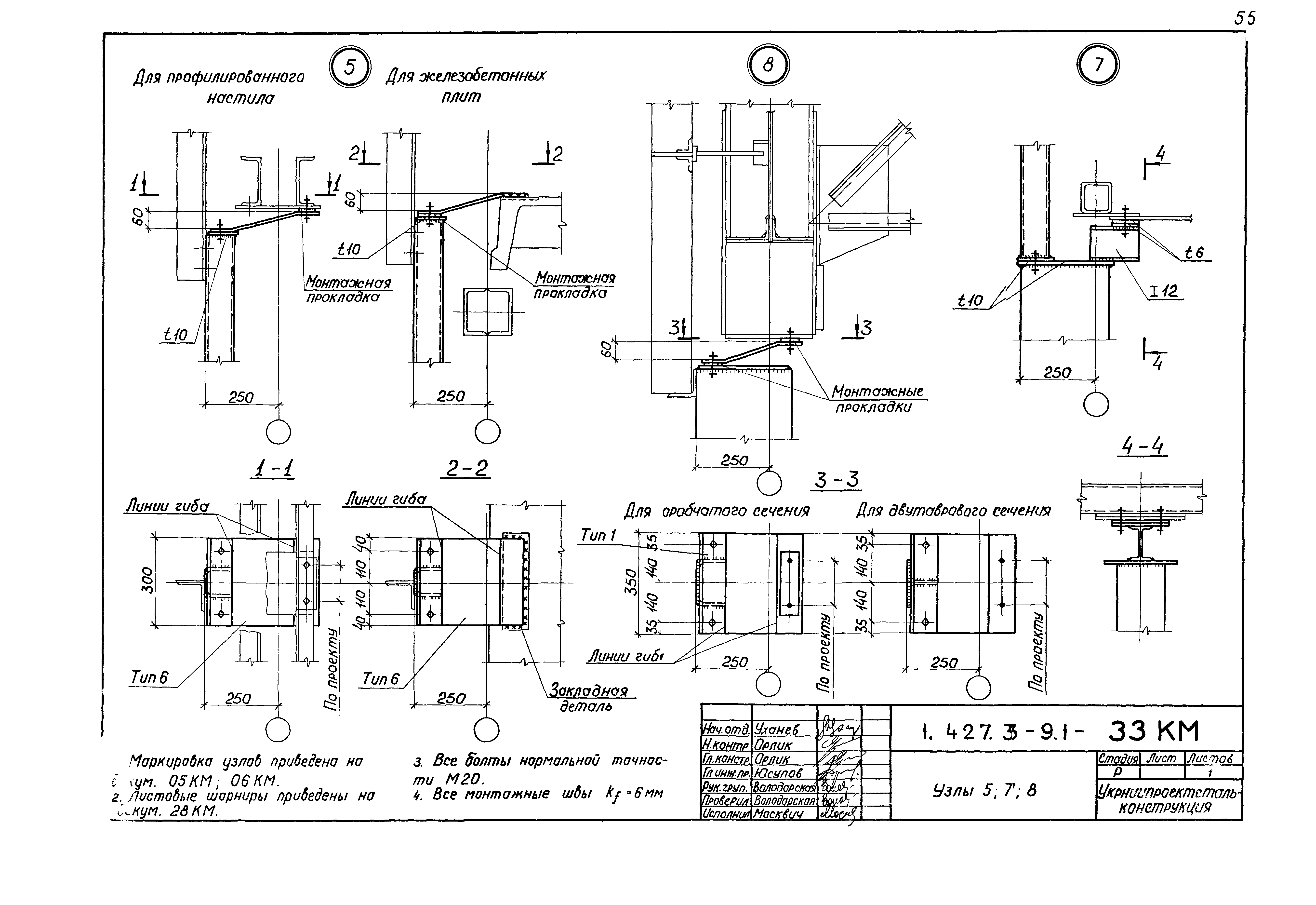
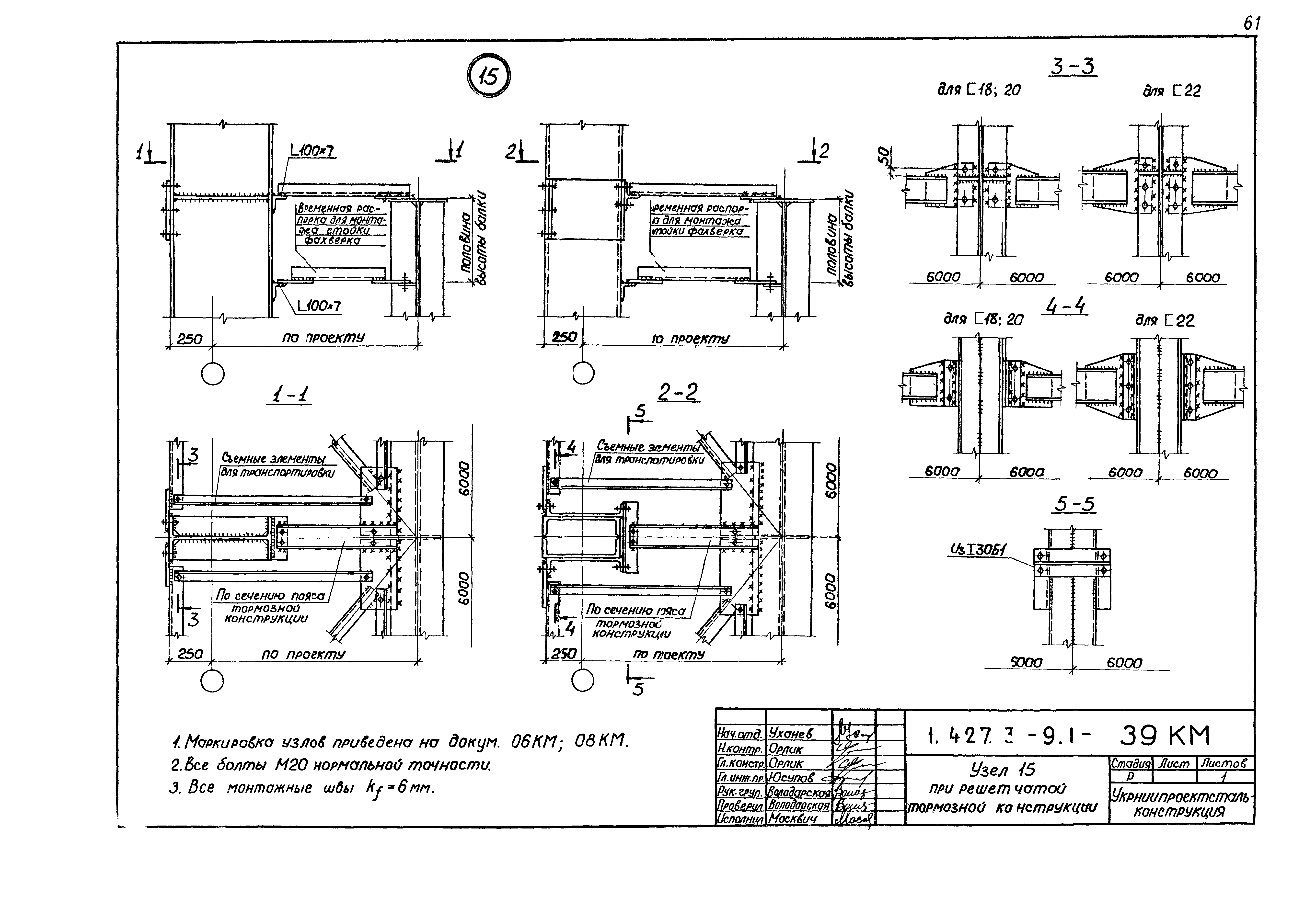
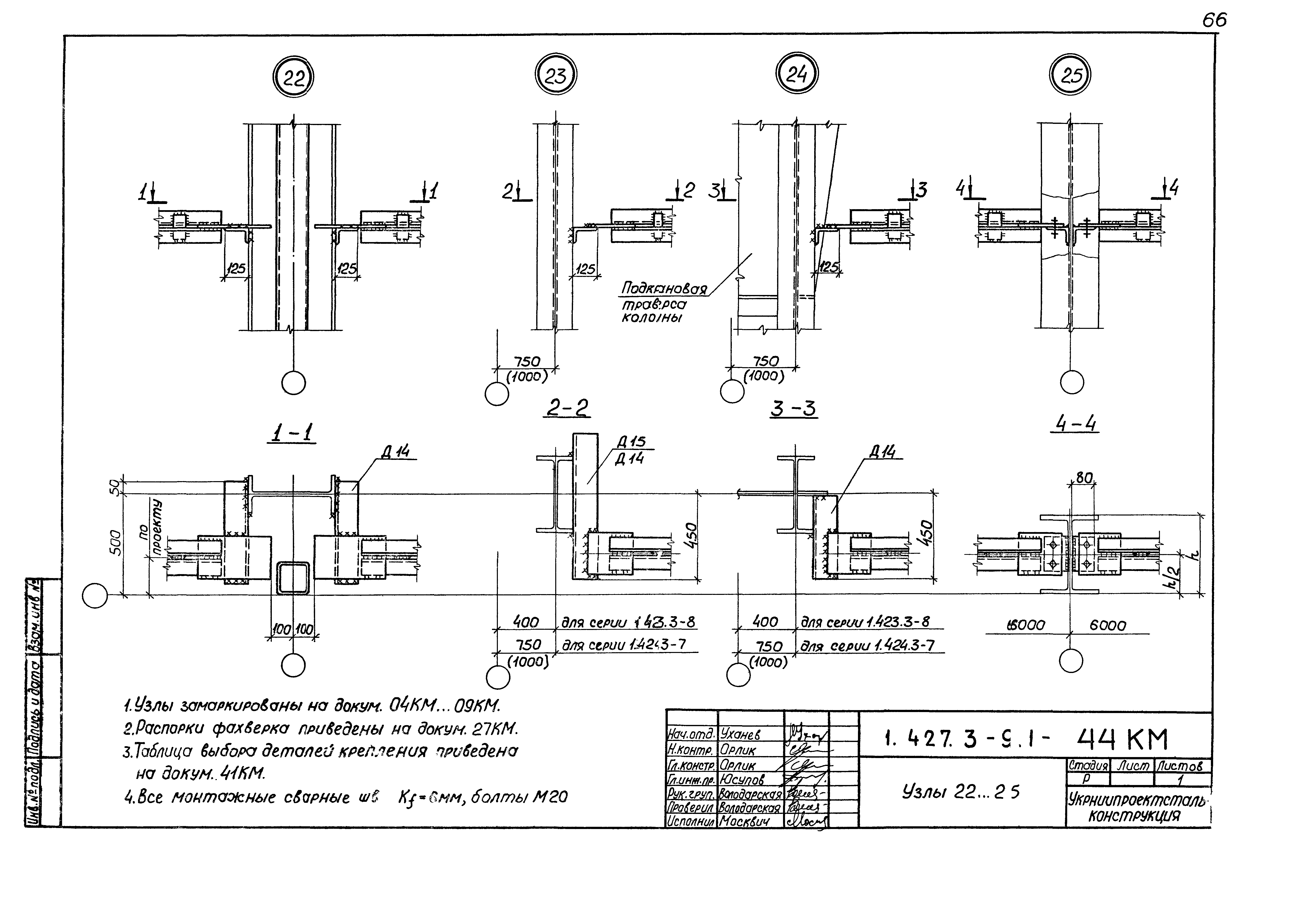
| Оглавление: | 1.427.3-9.1-ПЗКМ Пояснительная записка 1.427.3-9.1-01КМ Строительные параметры зданий и районы строительства 1.427.3-9.1-02КМ Таблицы выбора схем фахверка зданий с покрытиями из стропильных ферм и структурных покрытий типа "Москва" 1.427.3-9.1-03КМ Таблицы выбора схем фахверка зданий с покрытиями из железобетонных конструкций 1.427.3-9.1-04КМ Здания с покрытиями из стропильных ферм. Схемы торцевого фахверка 1А, 1Б, 2А, 2Б. 1.427.3-9.1-05КМ Здания с покрытиями из стропильных ферм. Схемы торцевого фахверка 3Б. Схема продольного фахверка для бескрановых зданий 1Б. 1.427.3-9.1-06КМ Схемы продольного фахверка зданий с мостовыми кранами при покрытиях из стропильных ферм 1.427.3-9.1-07КМ Здания со структурным покрытием типа "Москва". Схема торцевого фахверка 1.427.3-9.1-08КМ Здания со структурным покрытием типа "Москва". Схема продольного фахверка 1.427.3-9.1-09КМ Схема торцевых фахверков для зданий с железобетонными конструкциями покрытия по сериям типовых конструкций 1.427.3-9.1-10КМ Таблица выбора марок стоек торцевого фахверка зданий без мостовых кранов с покрытиями из стропильных ферм 1.427.3-9.1-11КМ Стойки продольного фахверка зданий без мостовых кранов с покрытиями из стропильных ферм 1.427.3-9.1-12КМ Таблица выбора марок стоек торцевого и продольного фахверка зданий с мостовыми кранами и покрытием из стропильных ферм 1.427.3-9.1-13КМ Таблица выбора марок стоек торцевого и продольного фахверка зданий без мостовых кранов и структурным покрытием типа "Москва" 1.427.3-9.1-14КМ Таблица выбора марок стоек торцевого и продольного фахверка зданий с мостовыми кранами и структурным покрытием типа "Москва" 1.427.3-9.1-15КМ Таблица выбора марок стоек торцевого фахверка зданий без мостовых кранов с железобетонными конструкциями покрытия 1.427.3-9.1-16КМ Таблица выбора марок стоек торцевого фахверка зданий с мостовыми кранами и железобетонными конструкциями покрытия 1.427.3-9.1-17КМ Стойки торцевого фахверка зданий без мостовых кранов с покрытиями из стропильных ферм 1.427.3-9.1-18КМ Стойки торцевого фахверка зданий без мостовых кранов с покрытиями из стропильных ферм 1.427.3-9.1-19КМ Стойки торцевого фахверка зданий с мостовыми кранами с покрытиями из стропильных ферм 1.427.3-9.1-20КМ Стойки торцевого и продольного фахверка зданий без мостовых кранов со структурным покрытием типа "Москва" 1.427.3-9.1-21КМ Стойки торцевого и продольного фахверка зданий с мостовыми кранами и структурным покрытием типа "Москва" 1.427.3-9.1-22КМ Стойки торцевого фахверка зданий без мостовых кранов и железобетонными конструкциями покрытия 1.427.3-9.1-23КМ Стойки торцевого фахверка зданий с мостовыми кранами и железобетонными конструкциями покрытия 1.427.3-9.1-24КМ Приколонные стойки для зданий с колоннами с колоннами сплошностенчатого сечения 1.427.3-9.1-25КМ Приколонные стойки для зданий со ступенчатыми колоннами 1.427.3-9.1-26КМ Оголовки стоек фахверка 1.427.3-9.1-27КМ Распорки фахверка 1.427.3-9.1-28КМ Листовые шарниры. Монтажные стыки стоек фахверка 1.427.3-9.1-29КМ Узел 1 1.427.3-9.1-30КМ Узлы 2;6 1.427.3-9.1-31КМ Узел 3 1.427.3-9.1-32КМ Узел 4 1.427.3-9.1-33КМ Узлы 5;7;8 1.427.3-9.1-34КМ Узлы 9;10 1.427.3-9.1-35КМ Узлы 11;12 1.427.3-9.1-36КМ Узел 13 1.427.3-9.1-37КМ Узел 14 при балочной тормозной конструкции и при hсеч стойки менее или равно 260 мм 1.427.3-9.1-38КМ Узел 14 при балочной тормозной конструкции и при hсеч стойки более 260 мм 1.427.3-9.1-39КМ Узел 15 при решетчатой тормозной конструкции 1.427.3-9.1-40КМ Узел 16 1.427.3-9.1-41КМ Узел 17 1.427.3-9.1-42КМ Узлы 18;19 1.427.3-9.1-43КМ Узлы 20;21 1.427.3-9.1-44КМ Узлы 22…25 1.427.3-9.1-45КМ Деталь крепления к стойке фахверка ригелей стенового ограждения. Узел 26 1.427.3-9.1-46КМ Узлы 27; 28 1.427.3-9.1-47КМ Спецификация стали стоек торцевого фахверка зданий без мостовых кранов с покрытием из стропильных ферм с высотой 3,15 м 1.427.3-9.1-48КМ Спецификация стали стоек торцевого фахверка зданий без мостовых кранов с покрытием из стропильных ферм с высотой 2,25 м 1.427.3-9.1-49КМ Спецификация стали стоек продольного фахверка зданий без мостовых кранов с покрытиями из стропильных ферм 1.427.3-9.1-50КМ Спецификация стали стоек торцевого фахверка зданий с мостовыми кранами и покрытием из стропильных ферм 1.427.3-9.1-51КМ Спецификация стали стоек торцевого фахверка зданий с мостовыми кранами и шагом стропильных ферм 6,0 м 1.427.3-9.1-52КМ Спецификация стали стоек торцевого фахверка зданий с мостовыми кранами и шагом стропильных ферм 12,0 м 1.427.3-9.1-53КМ Спецификация стали торцевого фахверка зданий без мостовых кранов со структурным покрытием типа "Москва" 1.427.3-9.1-54КМ Спецификация стали продольного фахверка зданий без мостовых кранов со структурным покрытием типа "Москва" 1.427.3-9.1-55КМ Спецификация стали продольного фахверка зданий с мостовыми кранами и структурным покрытием типа "Москва" 1.427.3-9.1-56КМ Спецификация стали стоек продольного фахверка зданий с мостовыми кранами и структурным покрытием типа "Москва" 1.427.3-9.1-57КМ Спецификация стали стоек торцевого фахверка зданий без мостовых кранов с железобетонными конструкциями покрытия 1.427.3-9.1-58КМ Спецификация стали стоек торцевого фахверка зданий с мостовыми кранами и железобетонными конструкциями покрытия 1.427.3-9.1-59КМ Спецификация стали приколонных стоек торцевого фахверка 1.427.3-9.1-60КМ Спецификация стали оголовков стоек фахверка 1.427.3-9.1-61КМ Спецификация стали распорок |
| Разработан: | Укрниипроектстальконструкция |
| Утверждён: | 03.04.1989 Главоргпроект Госстроя СССР |
| Издан: | АПП ЦИТП (1991 г. ) |
| Заменяет собой: |






















































































