Скачать Серия 1.450-1 Выпуск 0. Материалы для проектированияДата актуализации: 01.01.2021
|
| Обозначение: | Серия 1.450-1 |
| Обозначение англ: | Series 1.450-1 |
| Статус: | заменен |
| Название рус.: | Выпуск 0. Материалы для проектирования |
| Дата добавления в базу: | 01.09.2013 |
| Дата актуализации: | 01.01.2021 |
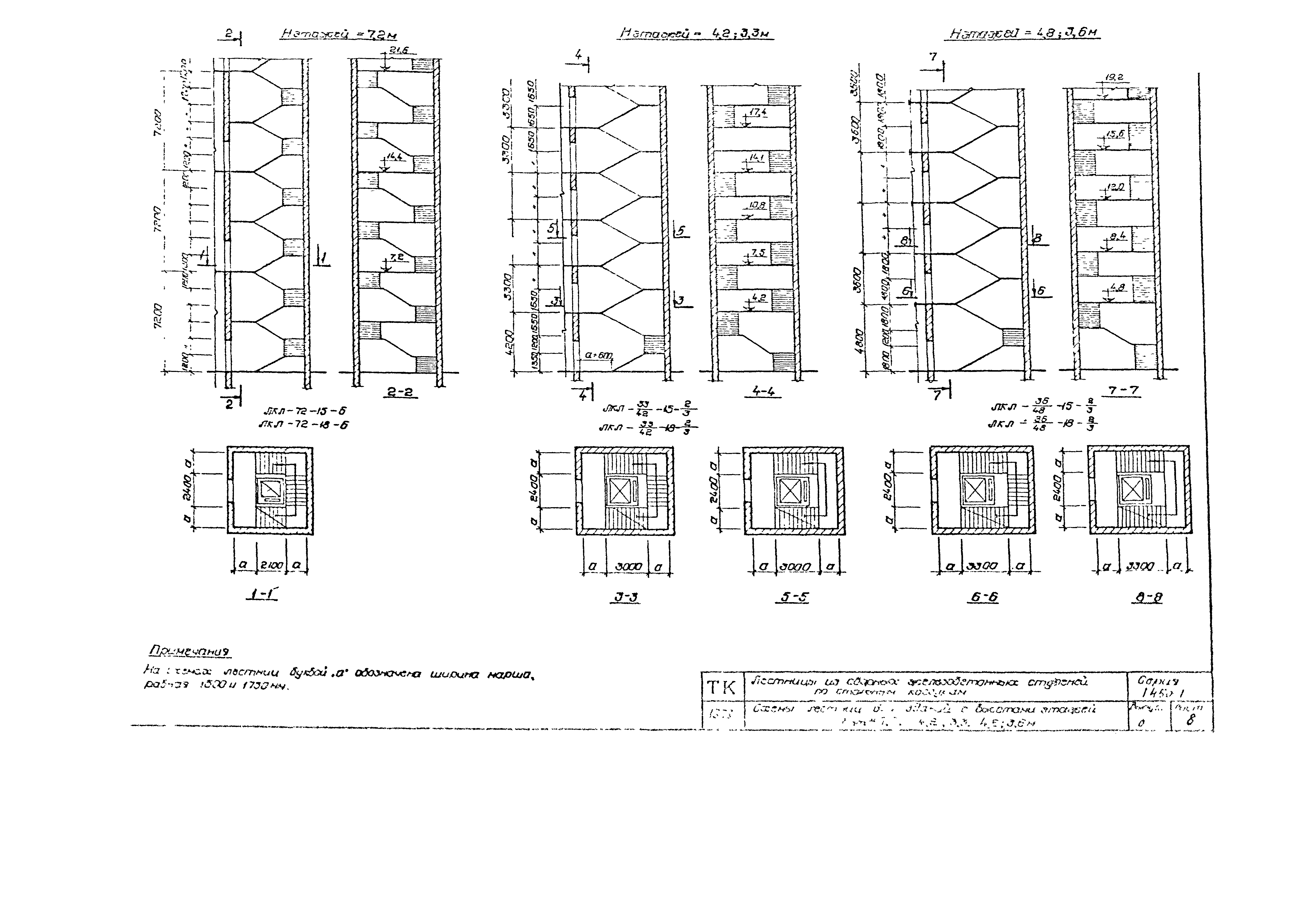
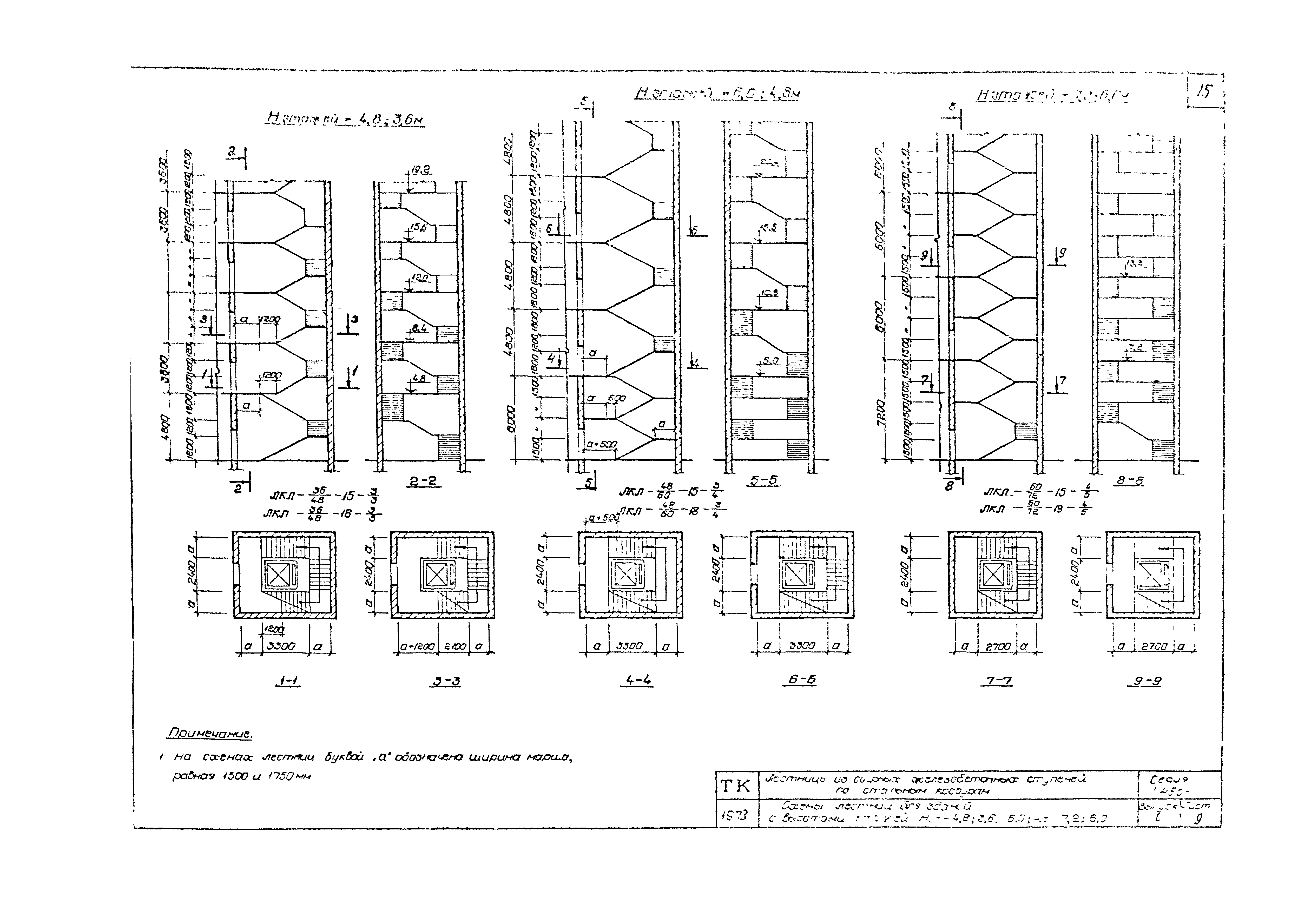
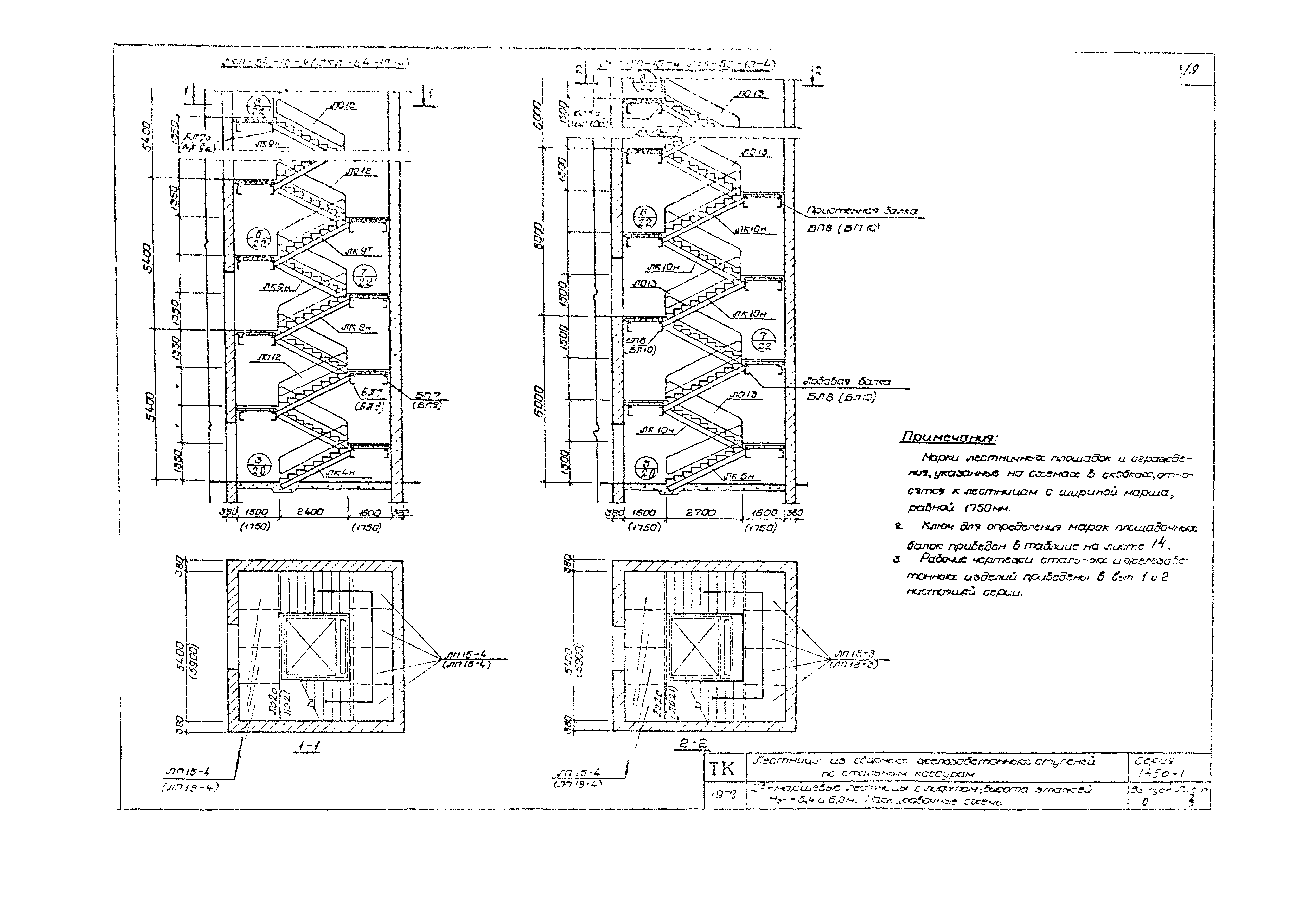
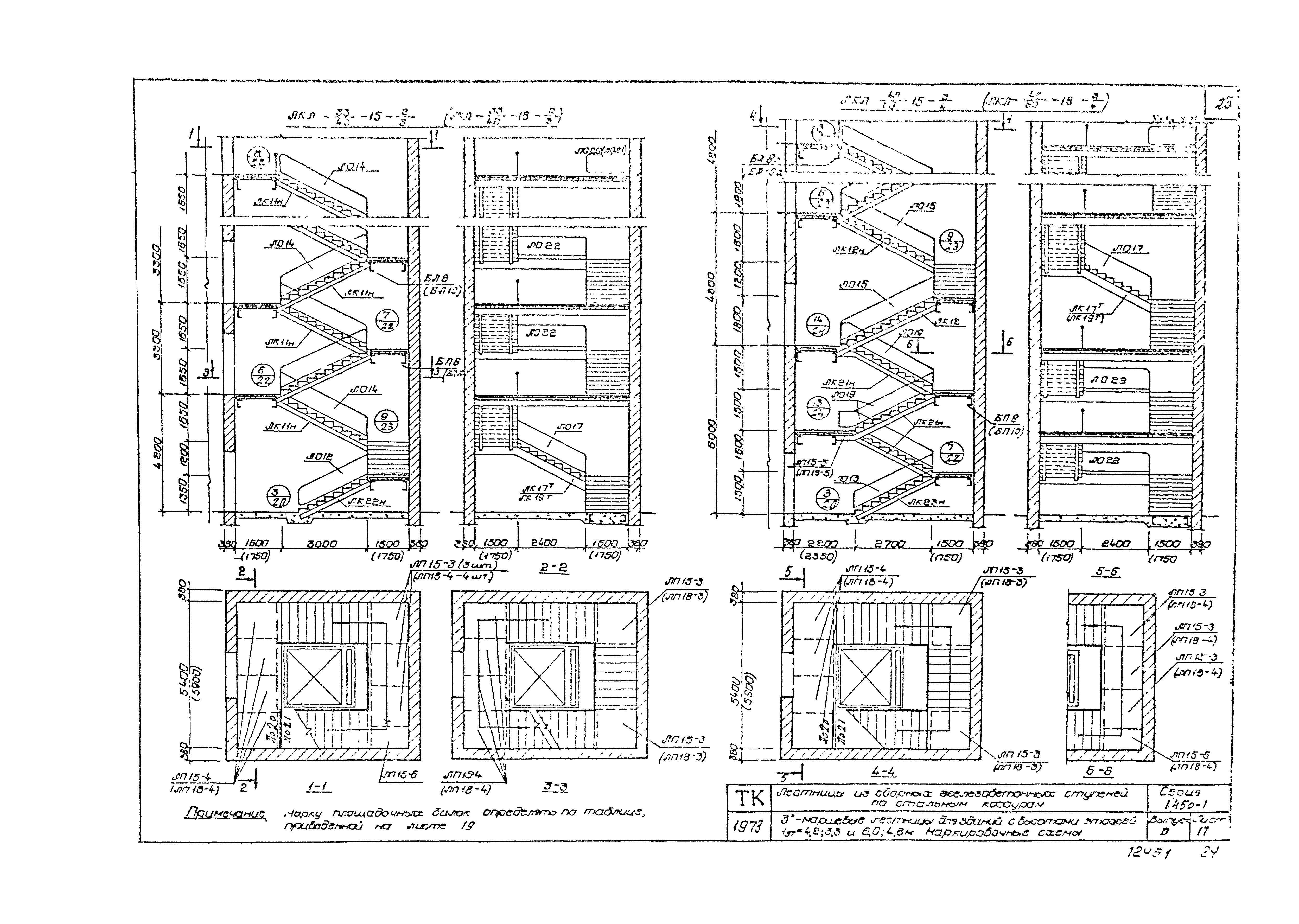
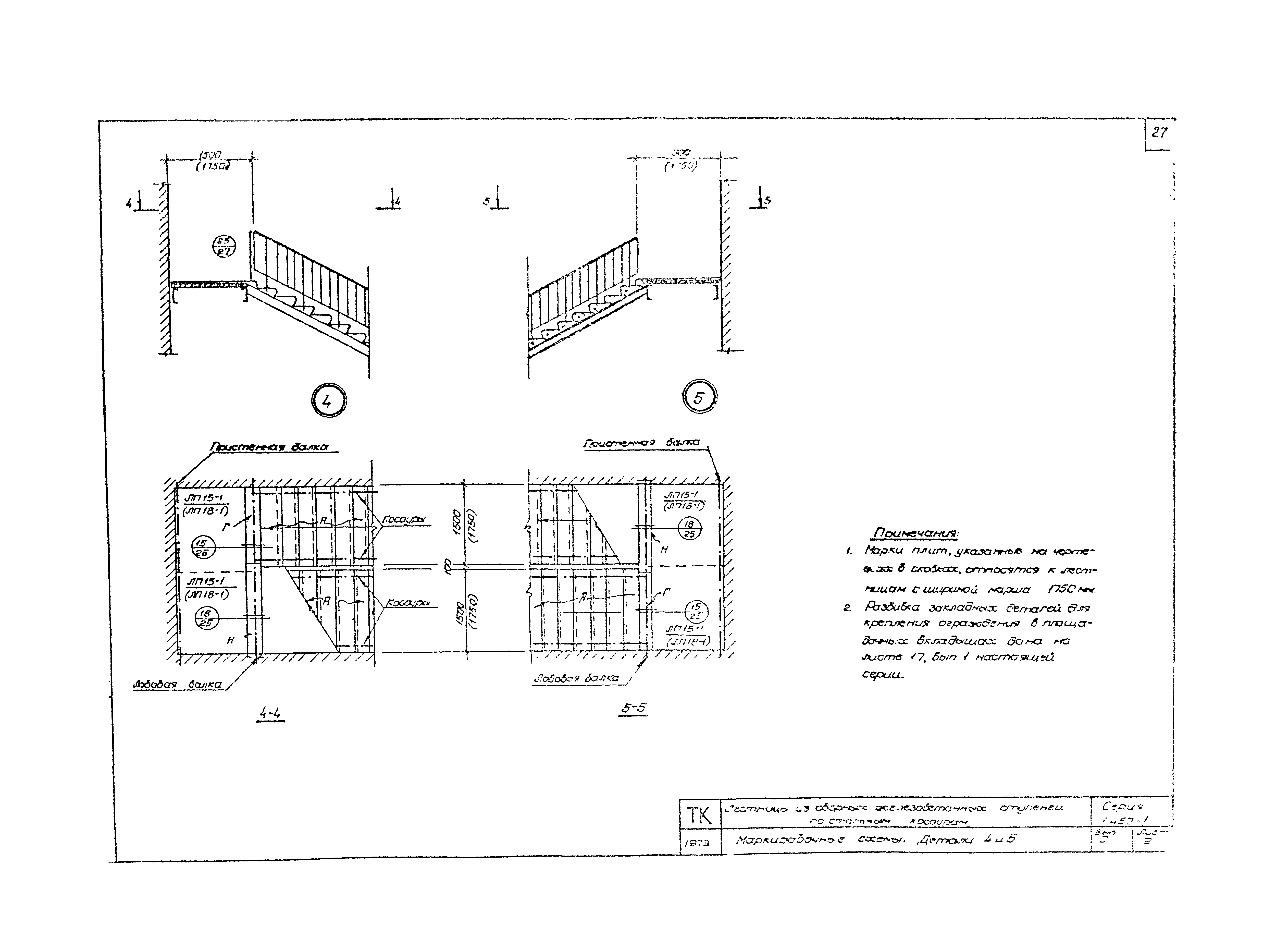
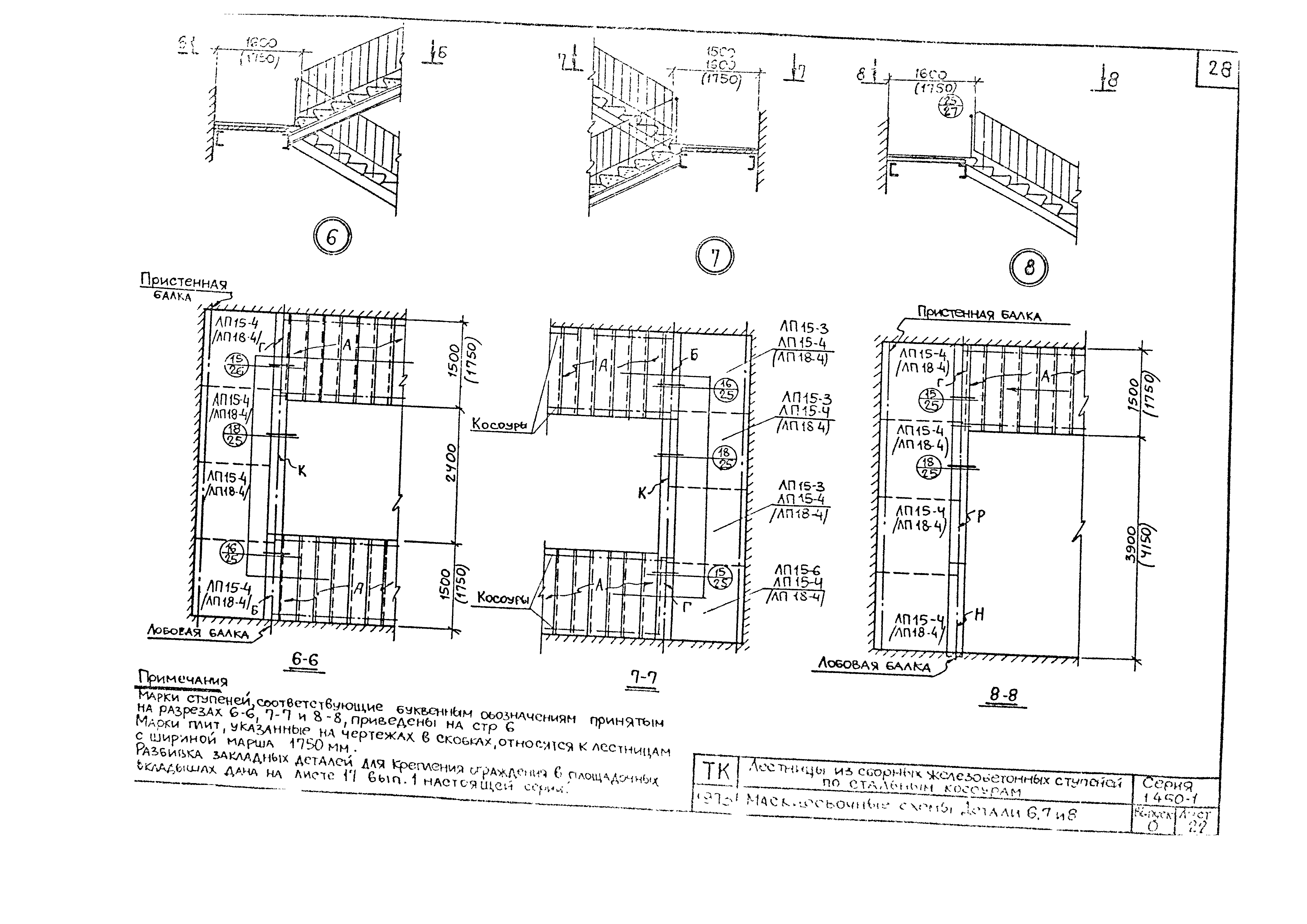
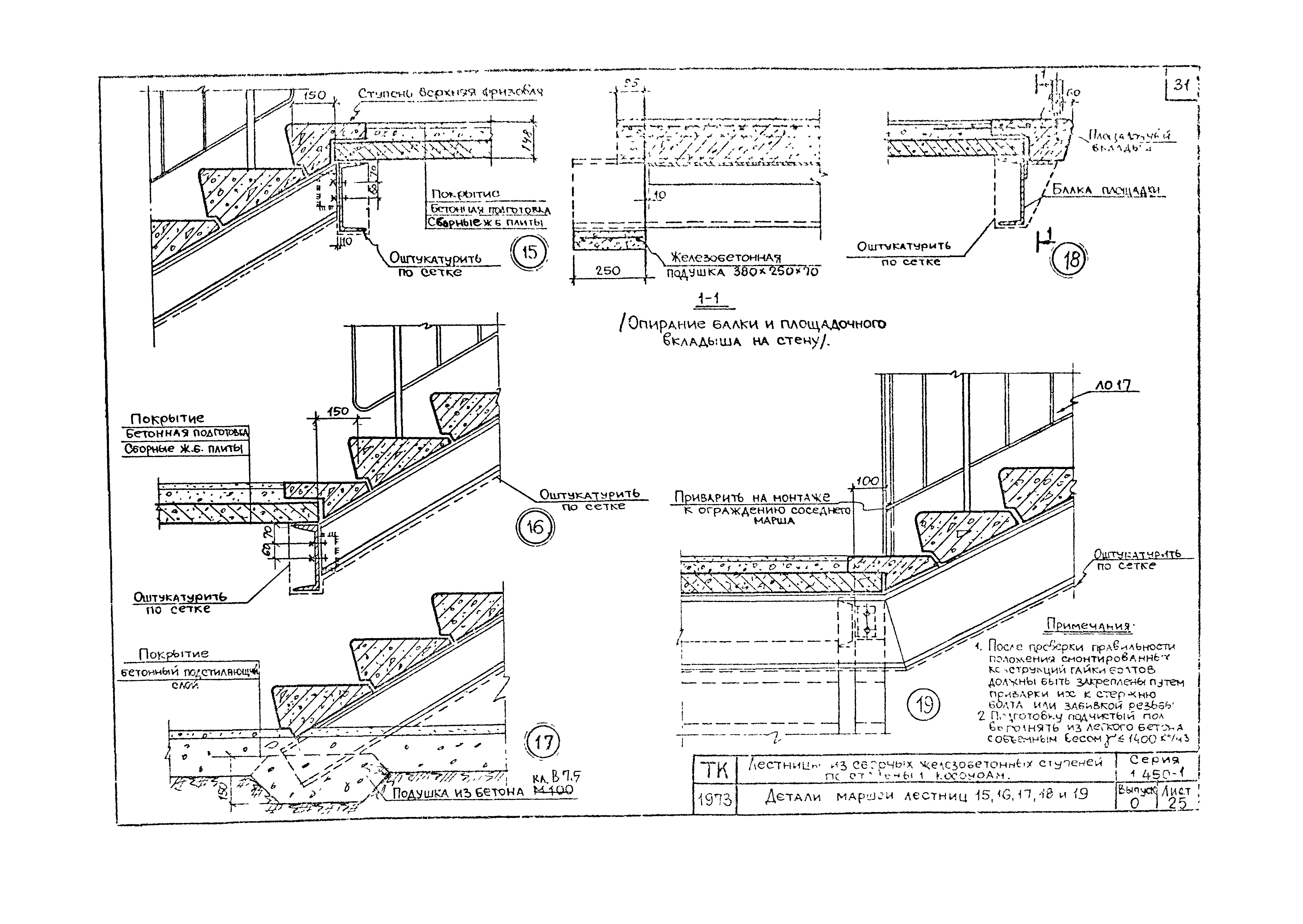
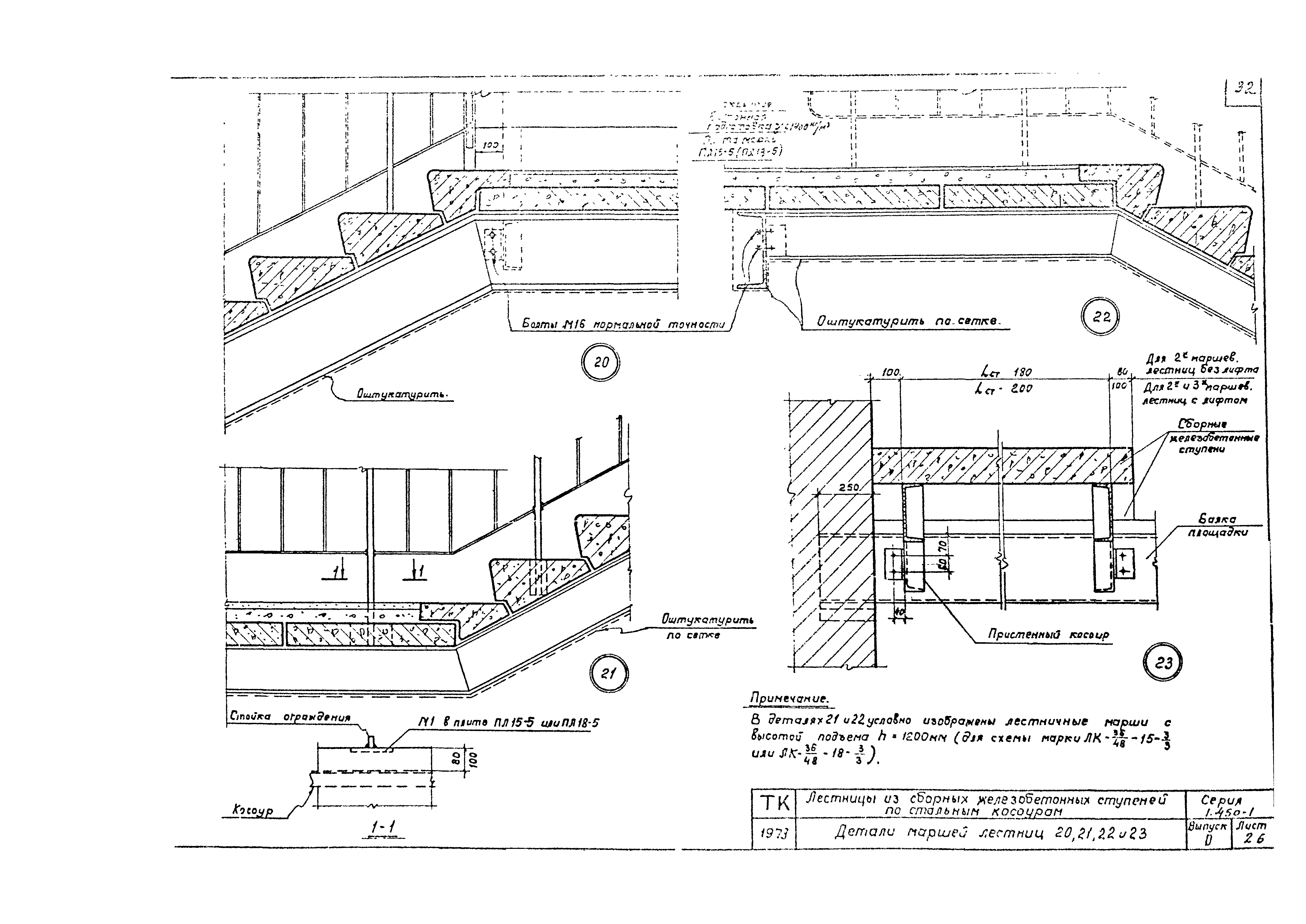
| Оглавление: | Пояснительная записка Номенклатура сборных железобетонных элементов Номенклатура стальных изделий Ключ к схемам лестниц Схемы лестничных маршей для зданий с высотами этажей Нэт=3,3; 3,6 и 4,2м Схемы лестничных маршей для зданий с высотами этажей Нэт=4,8; 5,4; 6,0; 7,2м Схемы лестниц для зданий с высотами этажей Нэт=4,2; 3,3; 4,8; 3,6; 6,0; 4,8; 7,2; 6,0 Схемы лестниц для зданий с высотами этажей Нэт=3,6; 4,2 и 4,8 Схемы лестниц для зданий с высотами этажей Нэт=7,2; 4,2; 3,3; 4,8; 3,6м Схемы лестниц для зданий с высотами этажей Нэт=4,8; 3,6; 6,0; 4,8; 7,2; 6,0м 2-х маршевые лестницы для зданий с высотами этажей Нэт=3,3; 3,6; 4,2; 5,4; 6,0; 7,2м. Маркировочная схема 2-х маршевые лестницы для зданий с высотами этажей Нэт=4,2; 3,3; 4,8; 3,6; 7,2; 6,0м. Маркировочная схема 2-х маршевые лестницы для зданий с высотами этажей Нэт=4,2; 4,8 и 6,0; 4,8м. Маркировочные схемы 2-х маршевые лестницы с лифтом; высота этажей Нэт=5,4 и 6,0м. Маркировочные схемы Ключ для определения марок площадочных балок 2-х маршевых лестниц 3-х маршевые лестницы для зданий с высотами этажей Нэт=3,6(7,2); 4,2; 4,8м. Маркировочные схемы 3-х маршевые лестницы для зданий с высотами этажей Нэт=4,8; 3,6м. Маркировочные схемы 3-х маршевые лестницы для зданий с высотами этажей Нэт=4,2; 3,3 и 6,0; 4,8м. Маркировочные схемы 3-х маршевые лестницы с высотами этажей Нэт=4,2; 3,3; 4,8; 3,6; 6,0; 4,8 и 7,2; 6,0м. Маркировочные схемы Ключ для определения марок площадочных балок 3-х маршевых лестниц Маркировочные схемы. Детали 1,2 и 3 Маркировочные схемы. Детали 4 и 5 Маркировочные схемы. Детали 6,7 и 8 Маркировочные схемы. Детали 9,10 и 11 Маркировочные схемы. Детали 12,13 и 14 Детали маршей лестниц 15,16,17,18 и 19 Детали маршей лестниц 20,21,22 и 23 Детали маршей лестниц 24,25,26 Примеры размещения лестничных клеток 2-х маршевая лестница с удлиненной площадкой по фасаду здания. Пример решения |
| Разработан: | ЦНИИпромзданий |
| Утверждён: | 15.01.1973 Госстрой СССР (Государственный комитет Совета Министров СССР по делам строительства) (USSR Gosstroy ) |






































