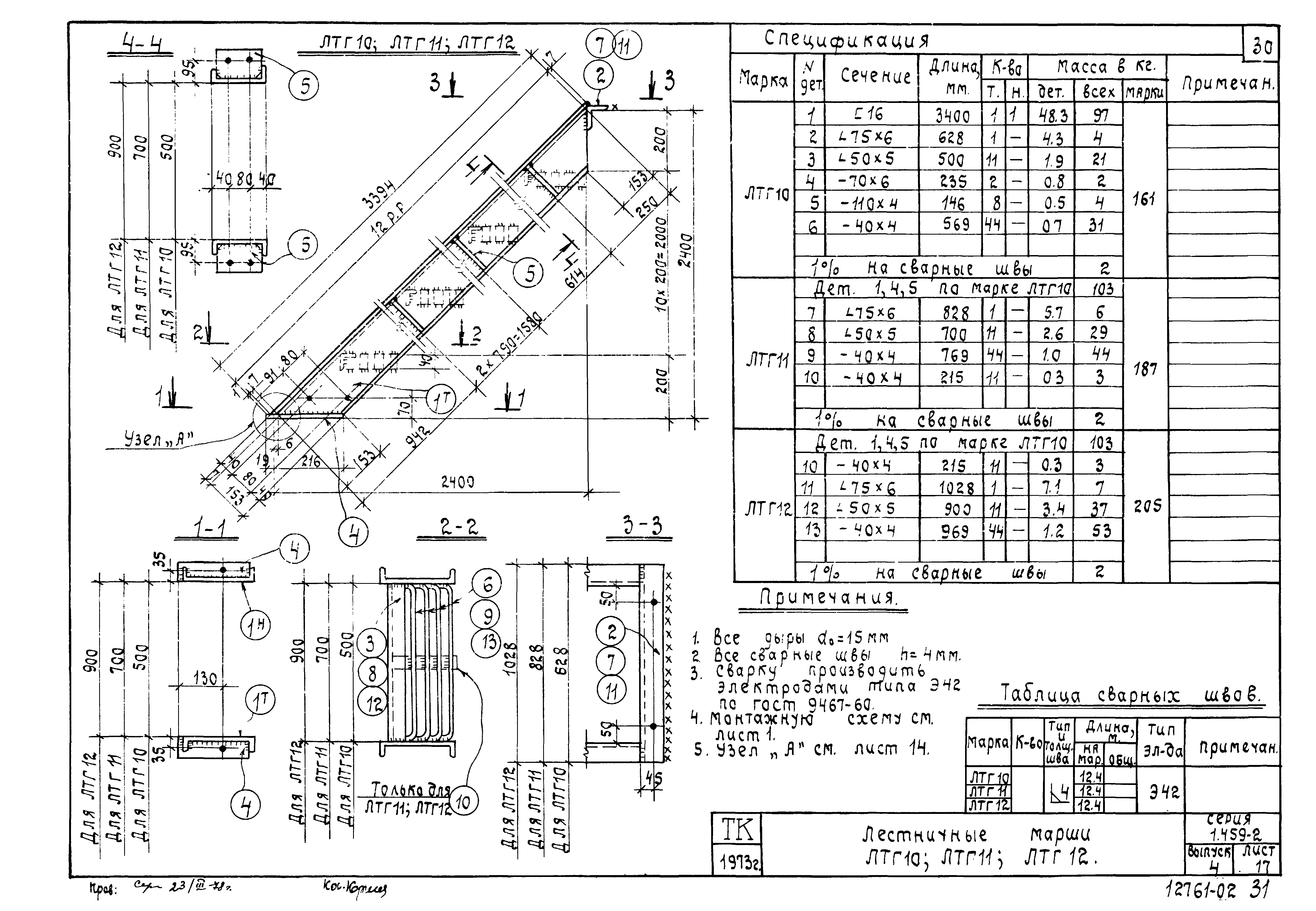
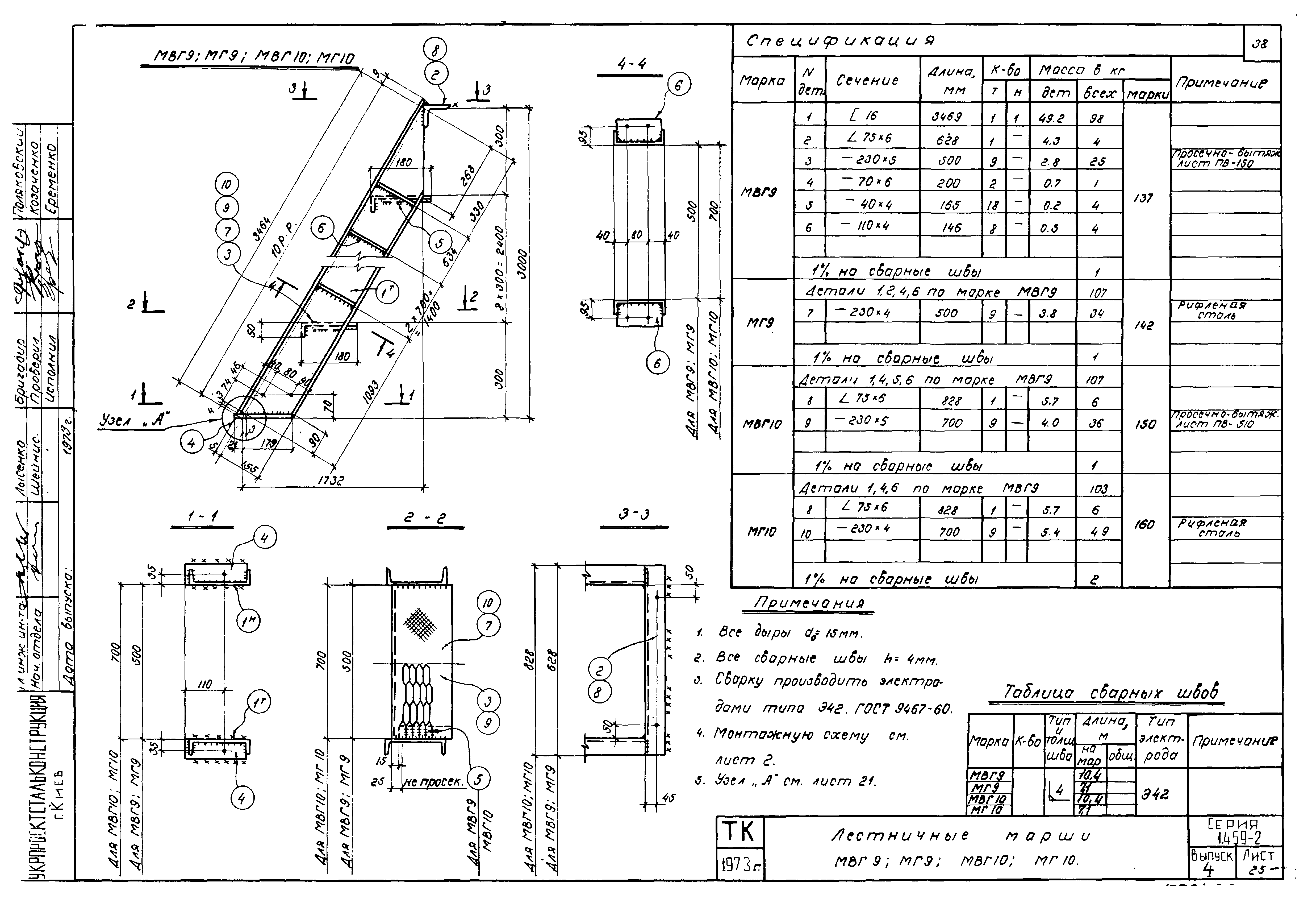
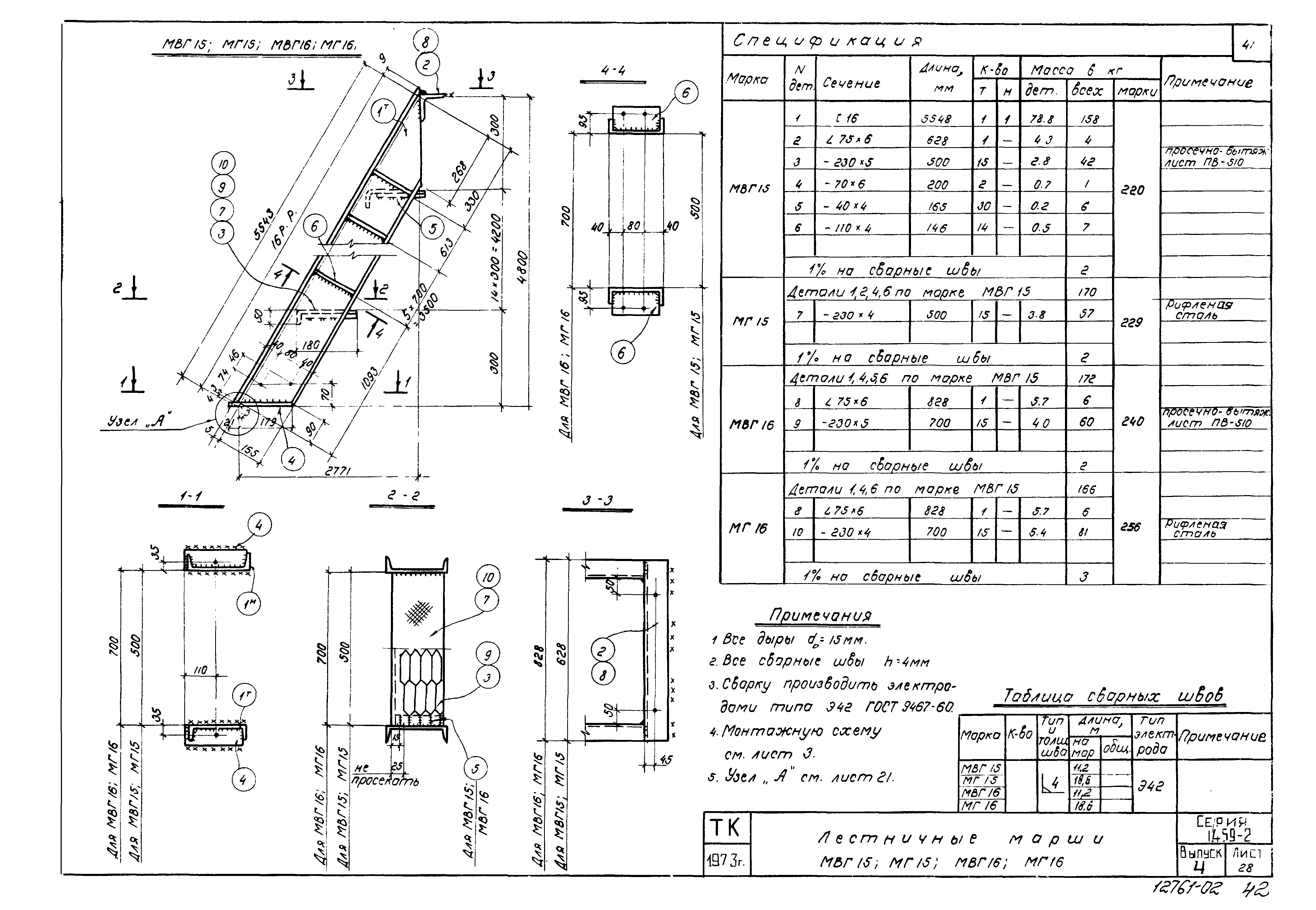
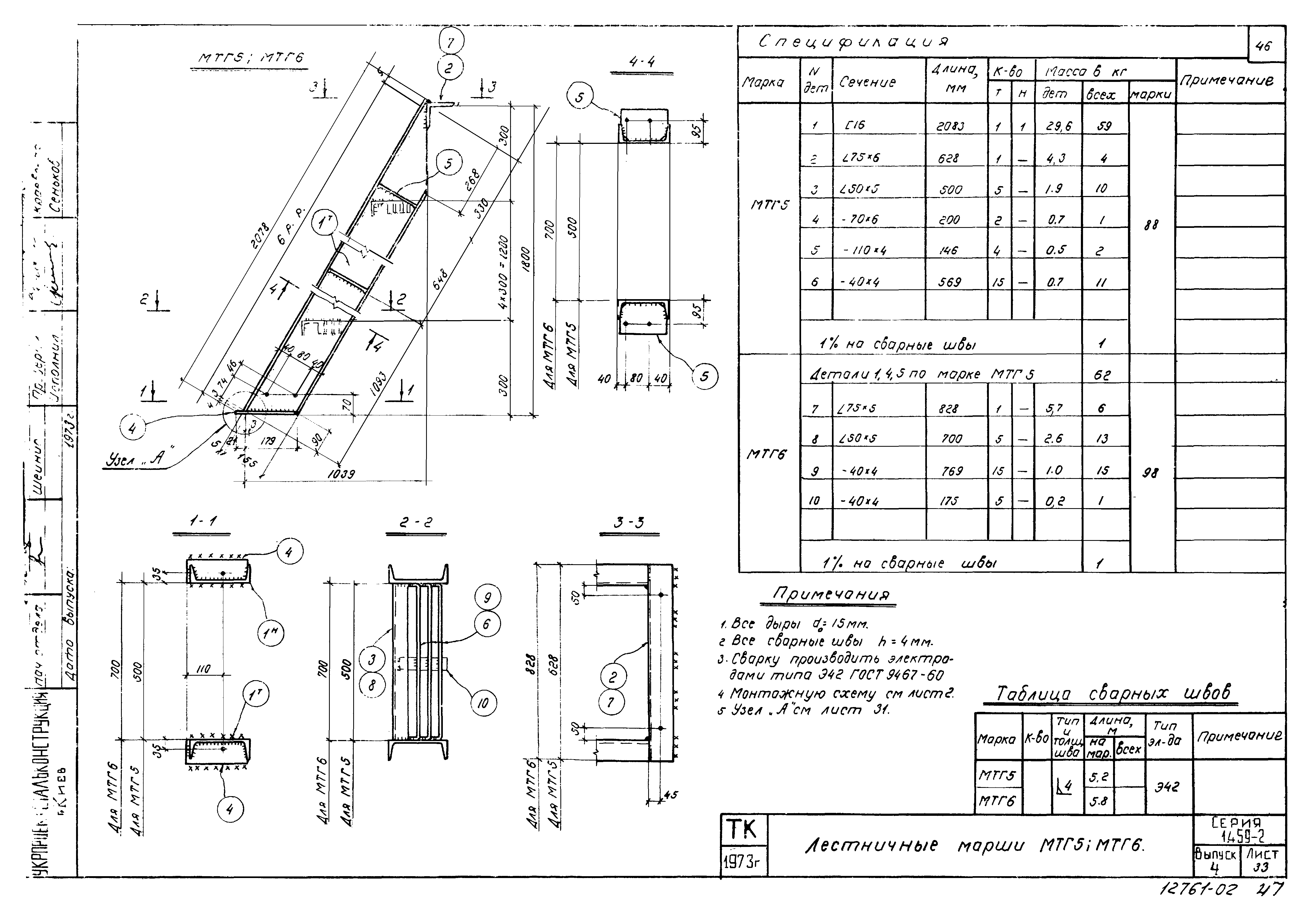
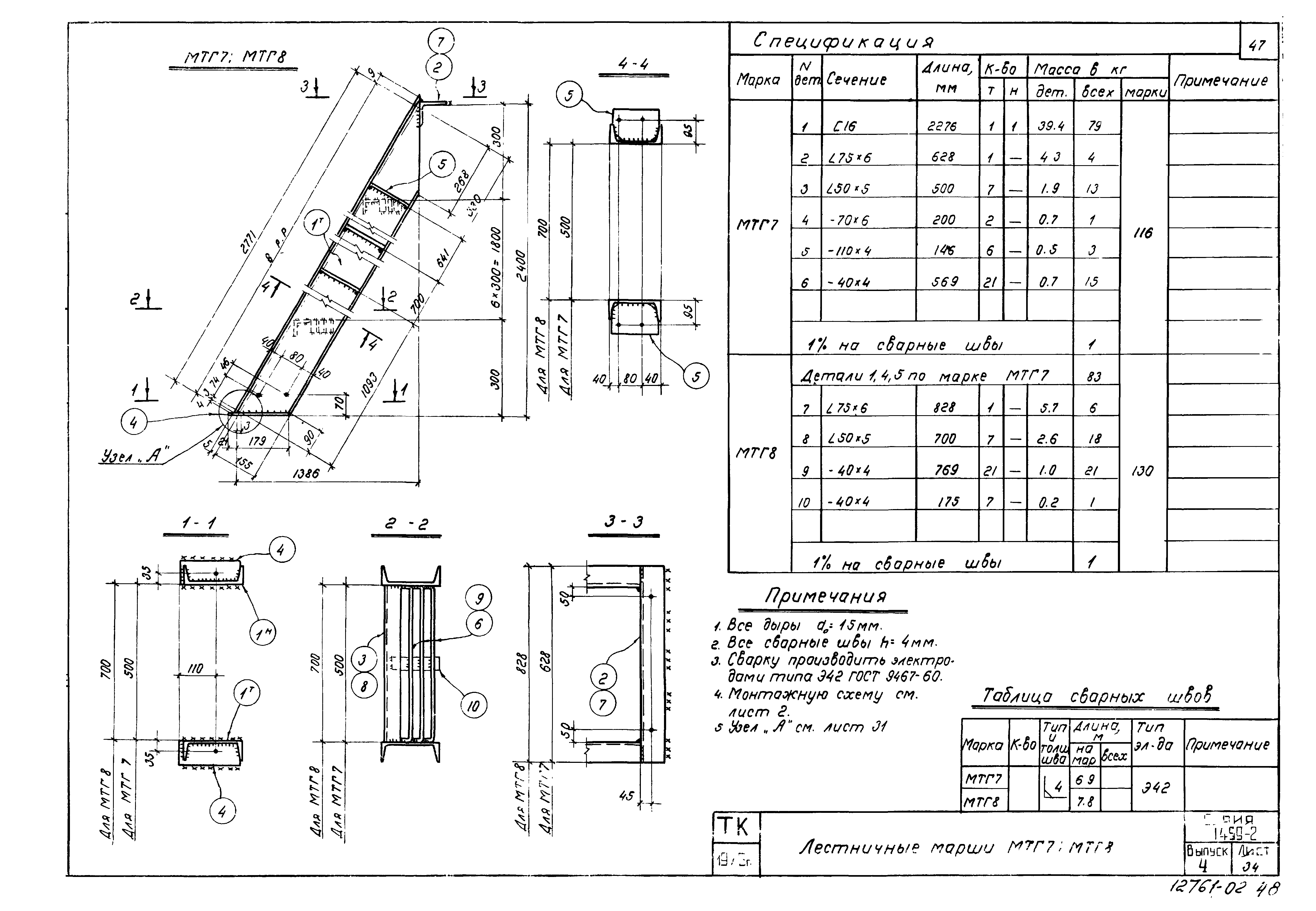
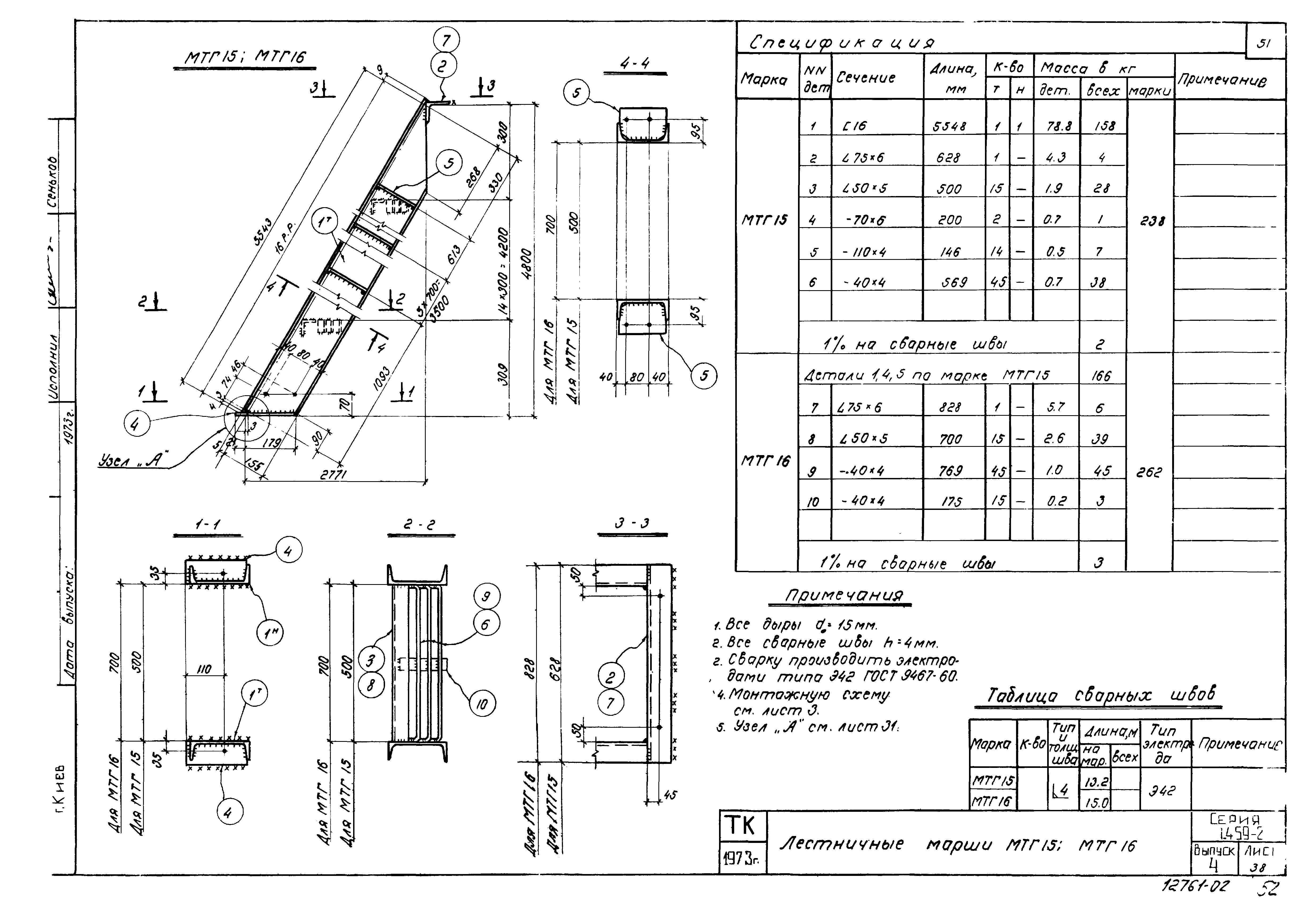
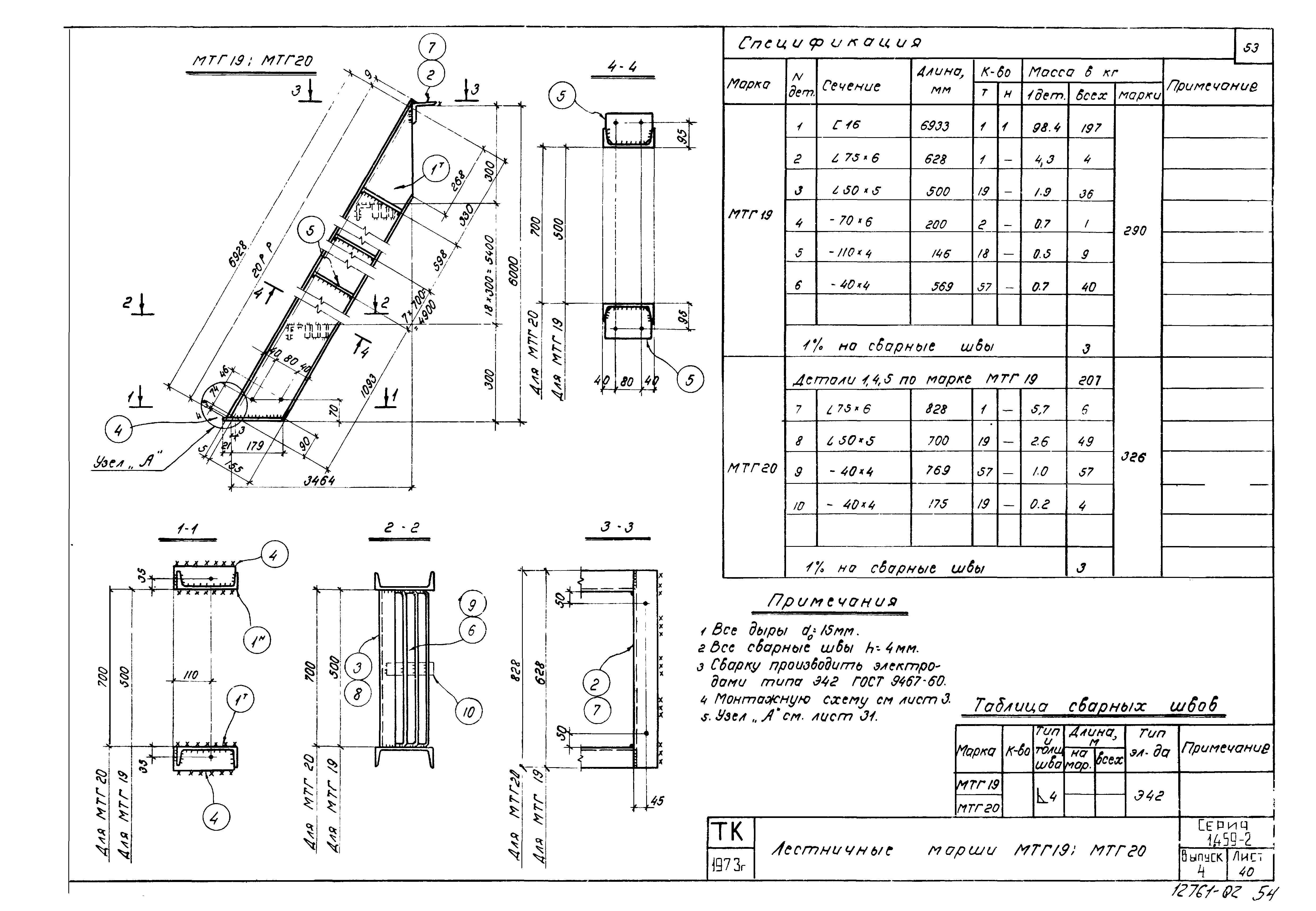
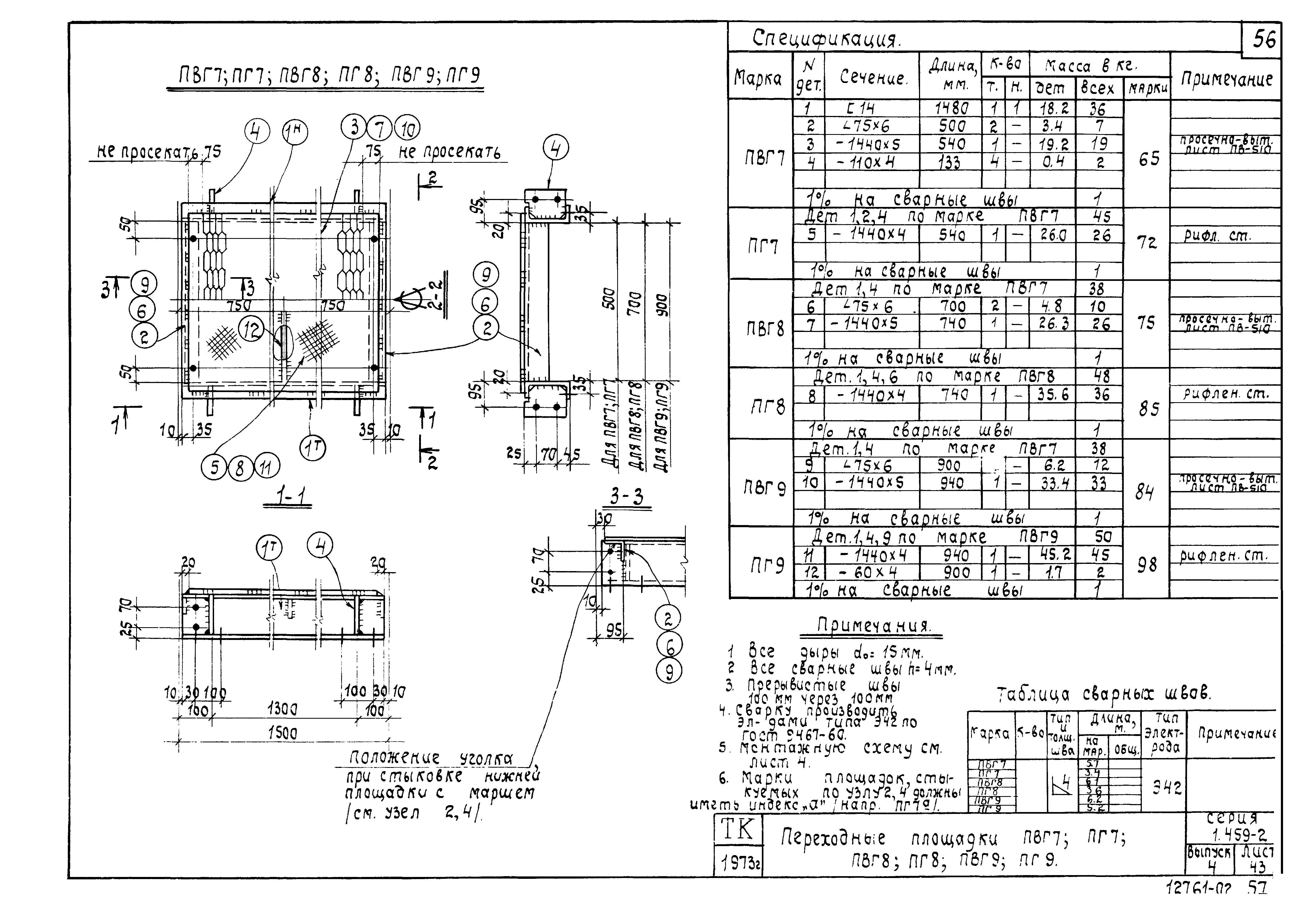
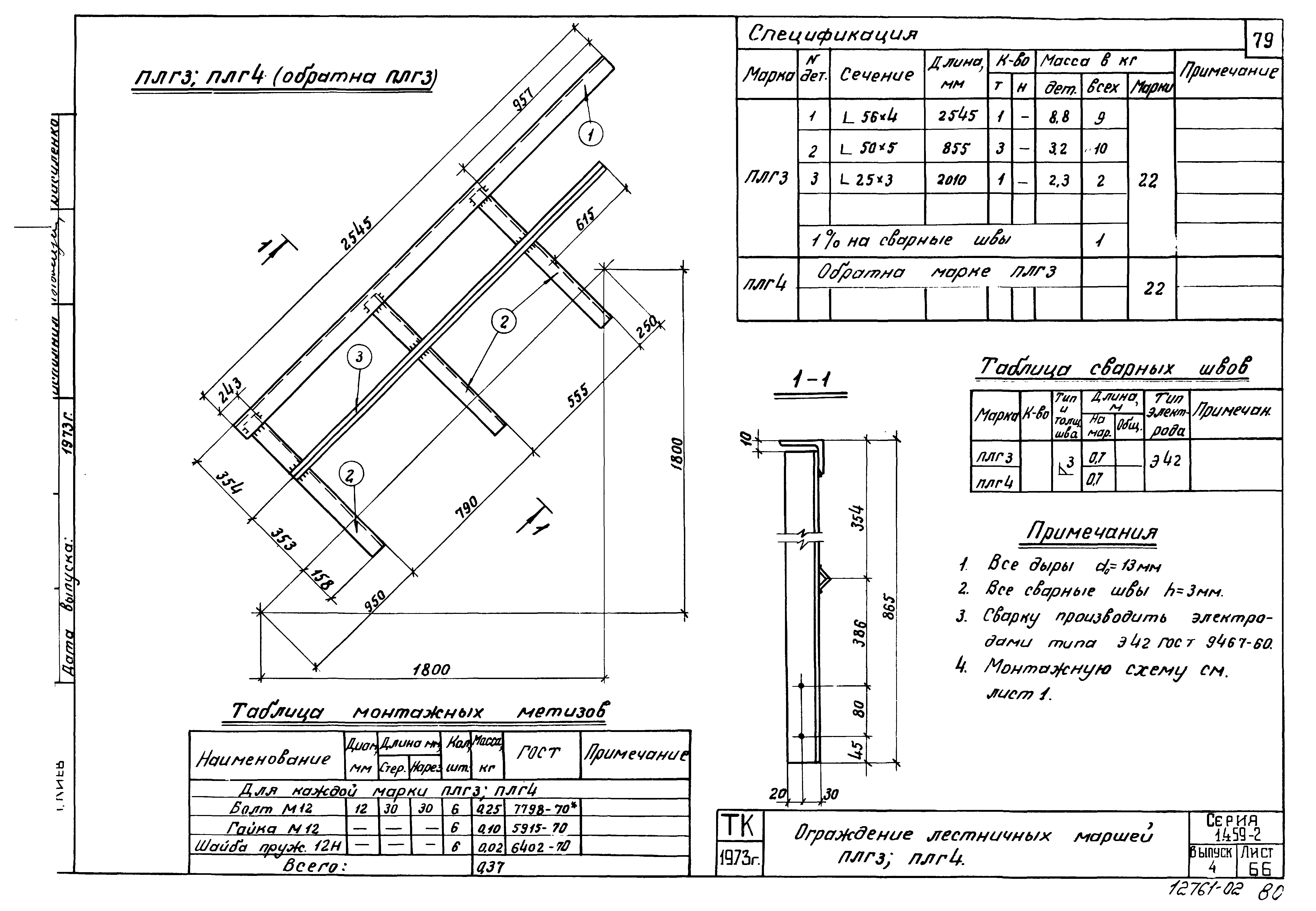
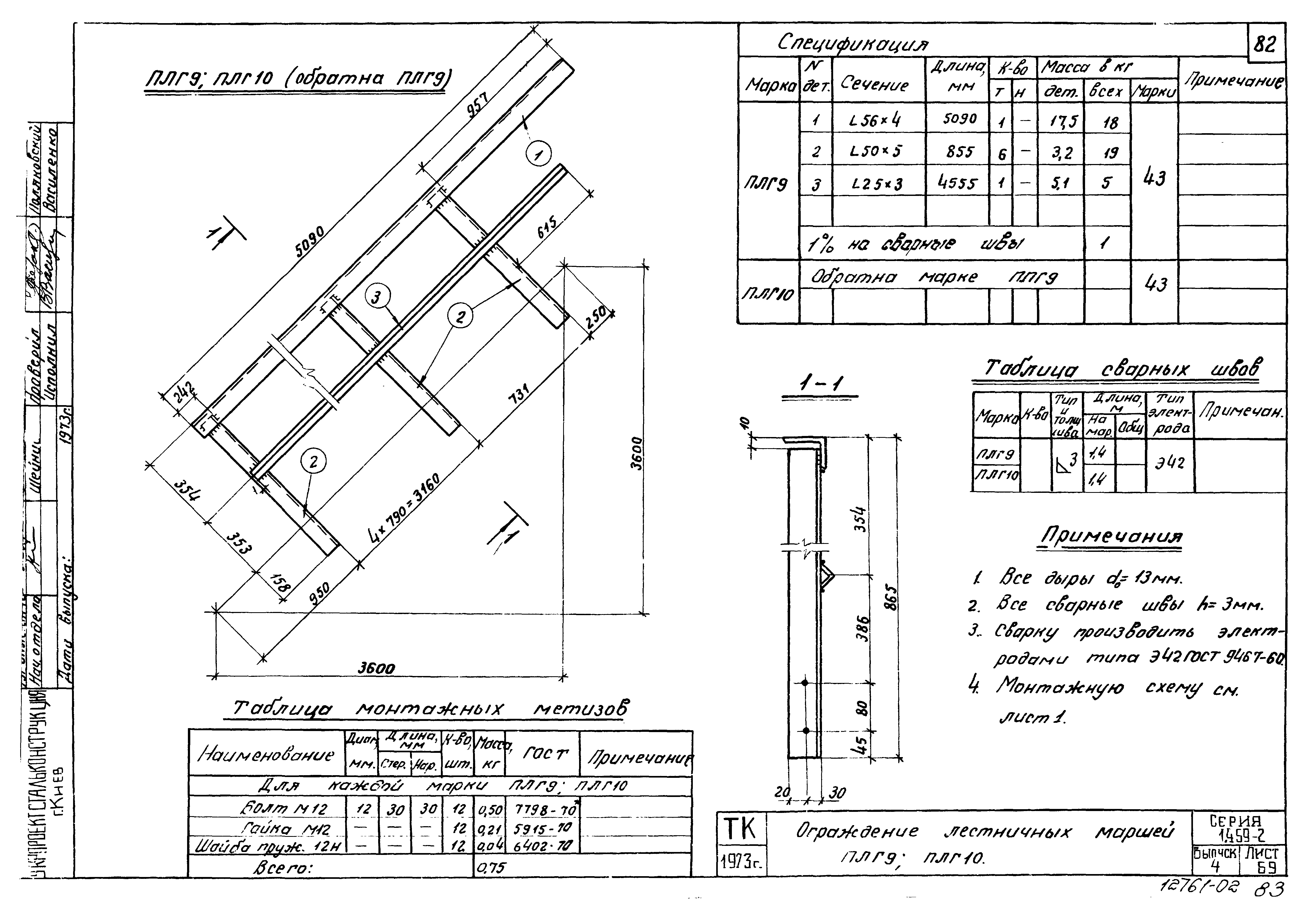
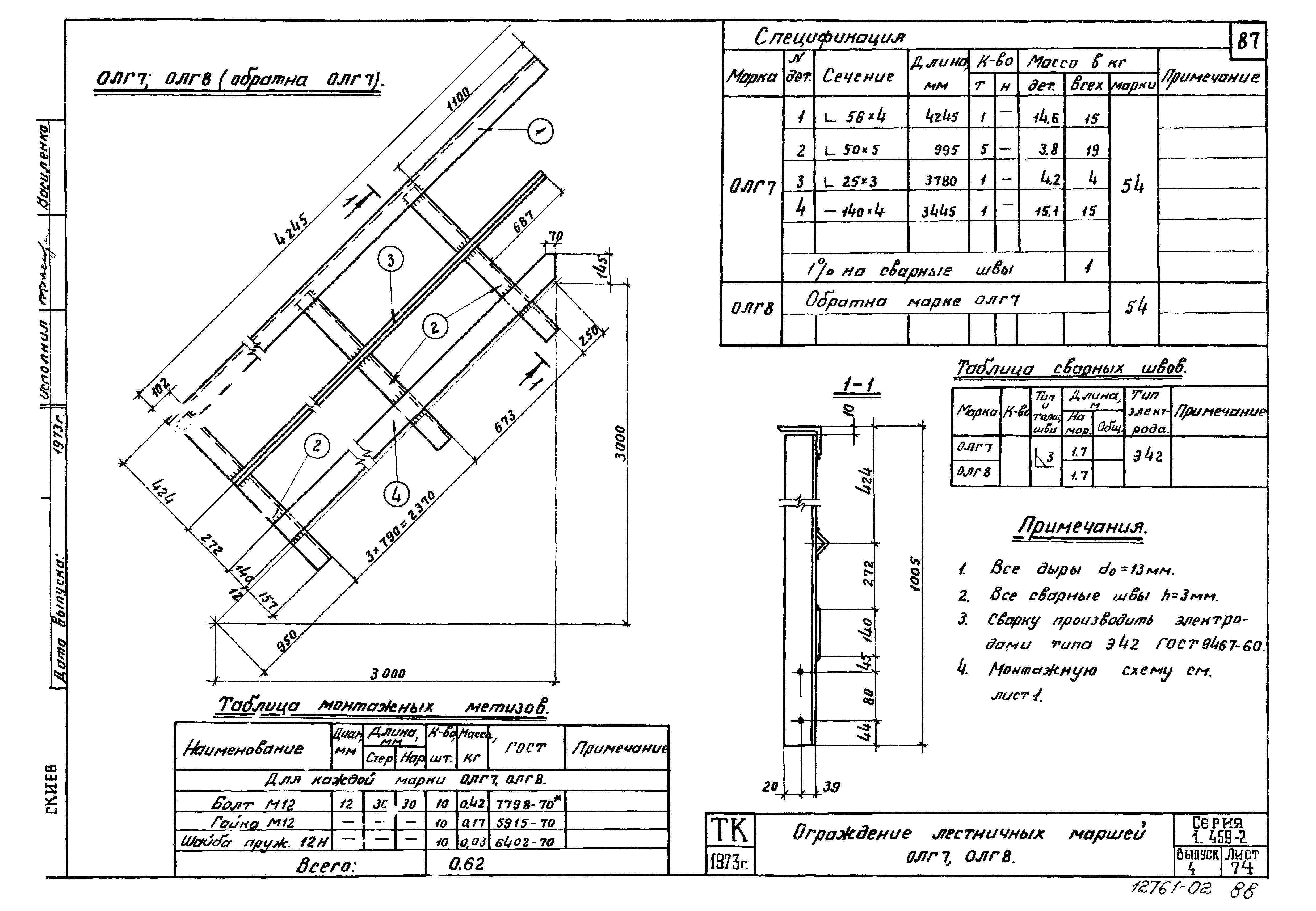
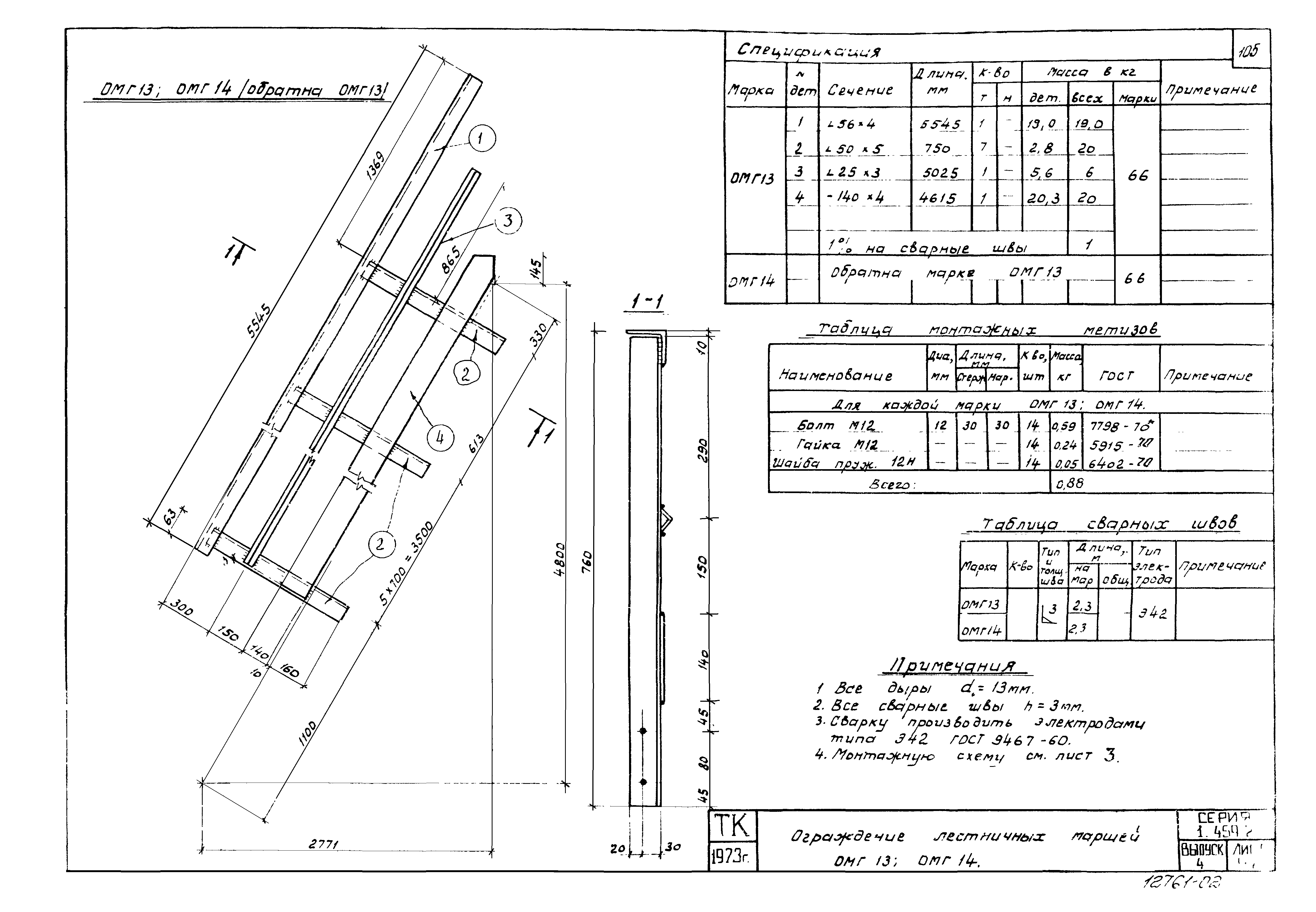
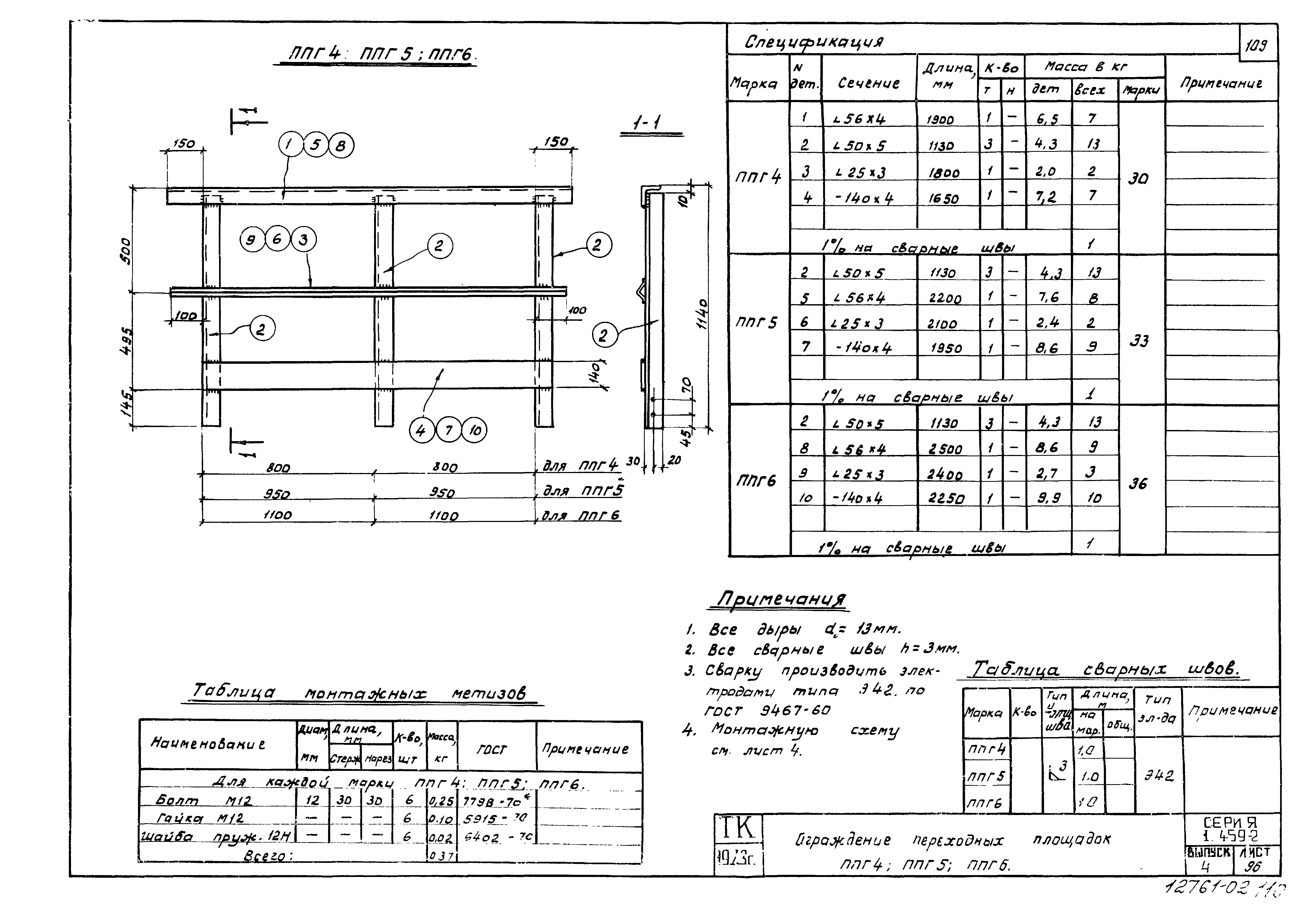
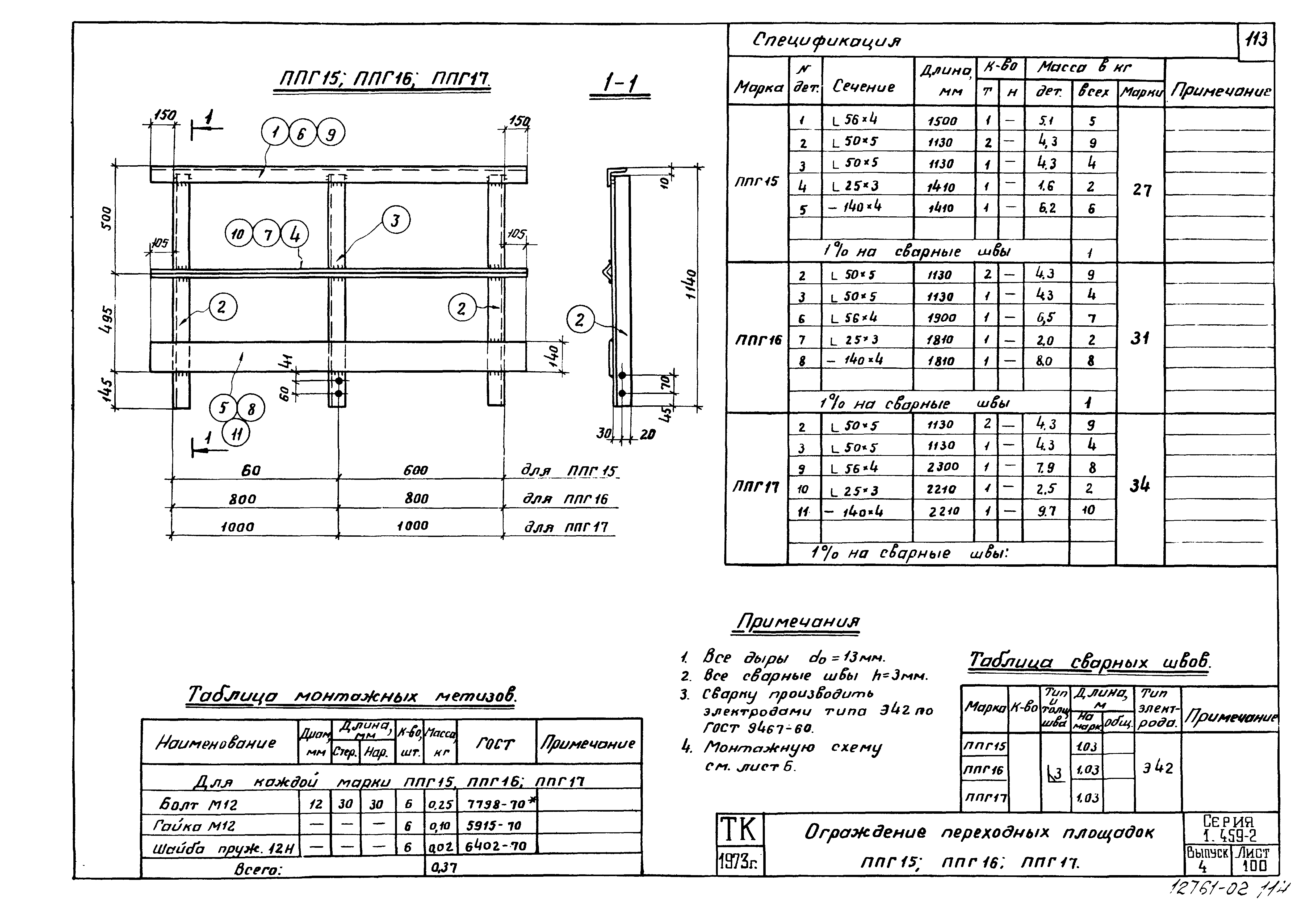
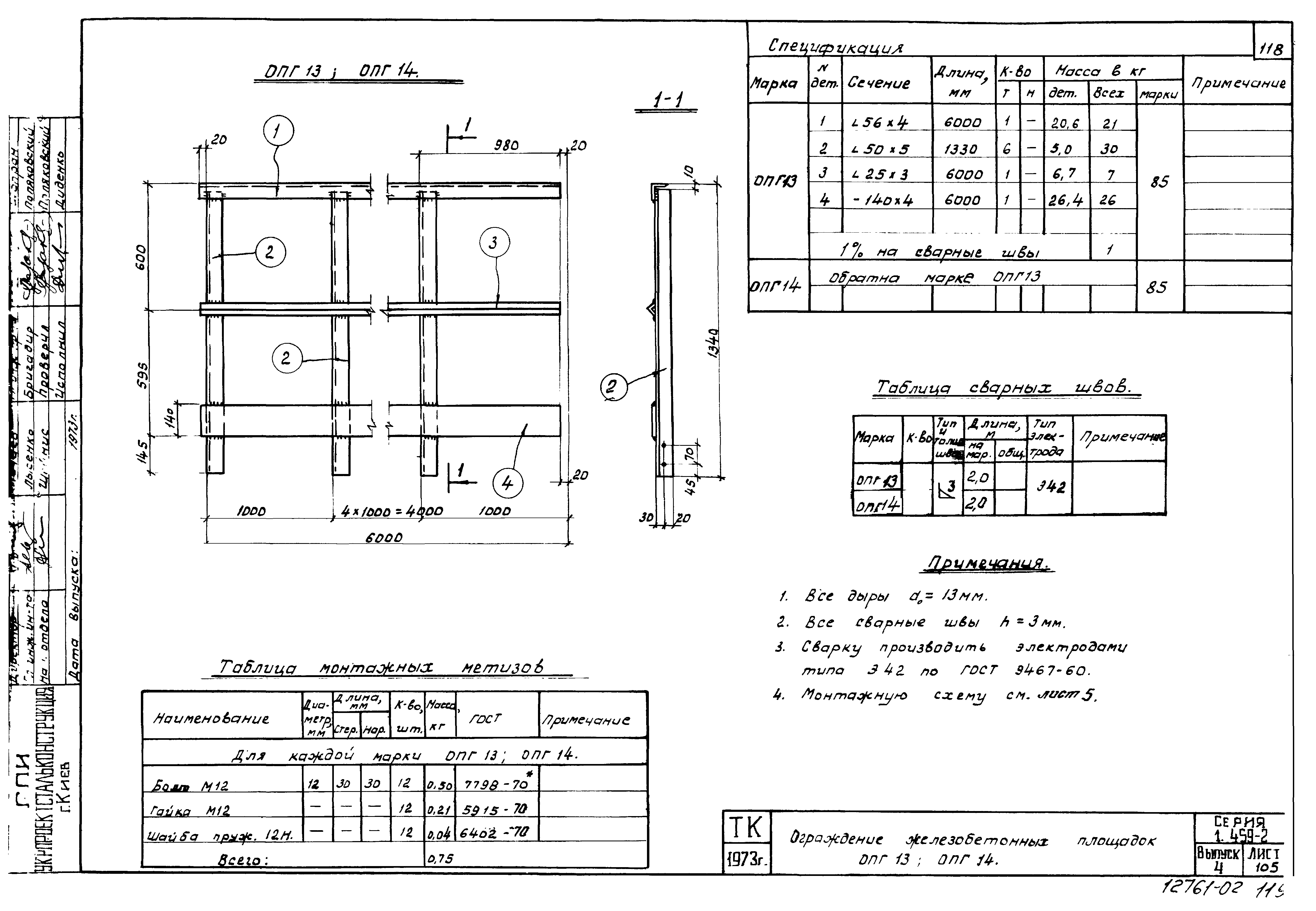
Скачать Серия 1.459-2 Выпуск 4. Лестницы, переходные площадки и ограждения из горячекатаных профилей с настилом и ступенями из просечно-вытяжной, рифленой и полосовой сталей. Чертежи КМДДата актуализации: 01.01.2021 Серия 1.459-2
Выпуск 4. Лестницы, переходные площадки и ограждения из горячекатаных профилей с настилом и ступенями из просечно-вытяжной, рифленой и полосовой сталей. Чертежи КМД| Обозначение: | Серия 1.459-2 | | Обозначение англ: | Series 1.459-2 | | Статус: | не действует | | Название рус.: | Выпуск 4. Лестницы, переходные площадки и ограждения из горячекатаных профилей с настилом и ступенями из просечно-вытяжной, рифленой и полосовой сталей. Чертежи КМД | | Дата добавления в базу: | 01.09.2013 | | Дата актуализации: | 01.01.2021 | | Дата введения: | 01.04.1974 | | Дата окончания срока действия: | 01.12.1984 | | Разработан: | ЦНИИпроектстальконструкция
| | Утверждён: | 10.01.1974 Госстрой СССР (Государственный комитет Совета Министров СССР по делам строительства) (USSR Gosstroy 2)
| | Чем заменён: | |
                                                                                                                        
|