Скачать Серия 1.862.1-2/88 Выпуск 2с. Балки для районов сейсмичностью 7, 8, 9 баллов. Технические условия. Рабочие чертежиДата актуализации: 01.01.2021
|
| Обозначение: | Серия 1.862.1-2/88 |
| Обозначение англ: | Series 1.862.1-2/88 |
| Статус: | не определен законодательством |
| Название рус.: | Выпуск 2с. Балки для районов сейсмичностью 7, 8, 9 баллов. Технические условия. Рабочие чертежи |
| Дата добавления в базу: | 01.09.2013 |
| Дата актуализации: | 01.01.2021 |
| Дата введения: | 15.03.1991 |
| Дата окончания срока действия: | 30.06.2003 |
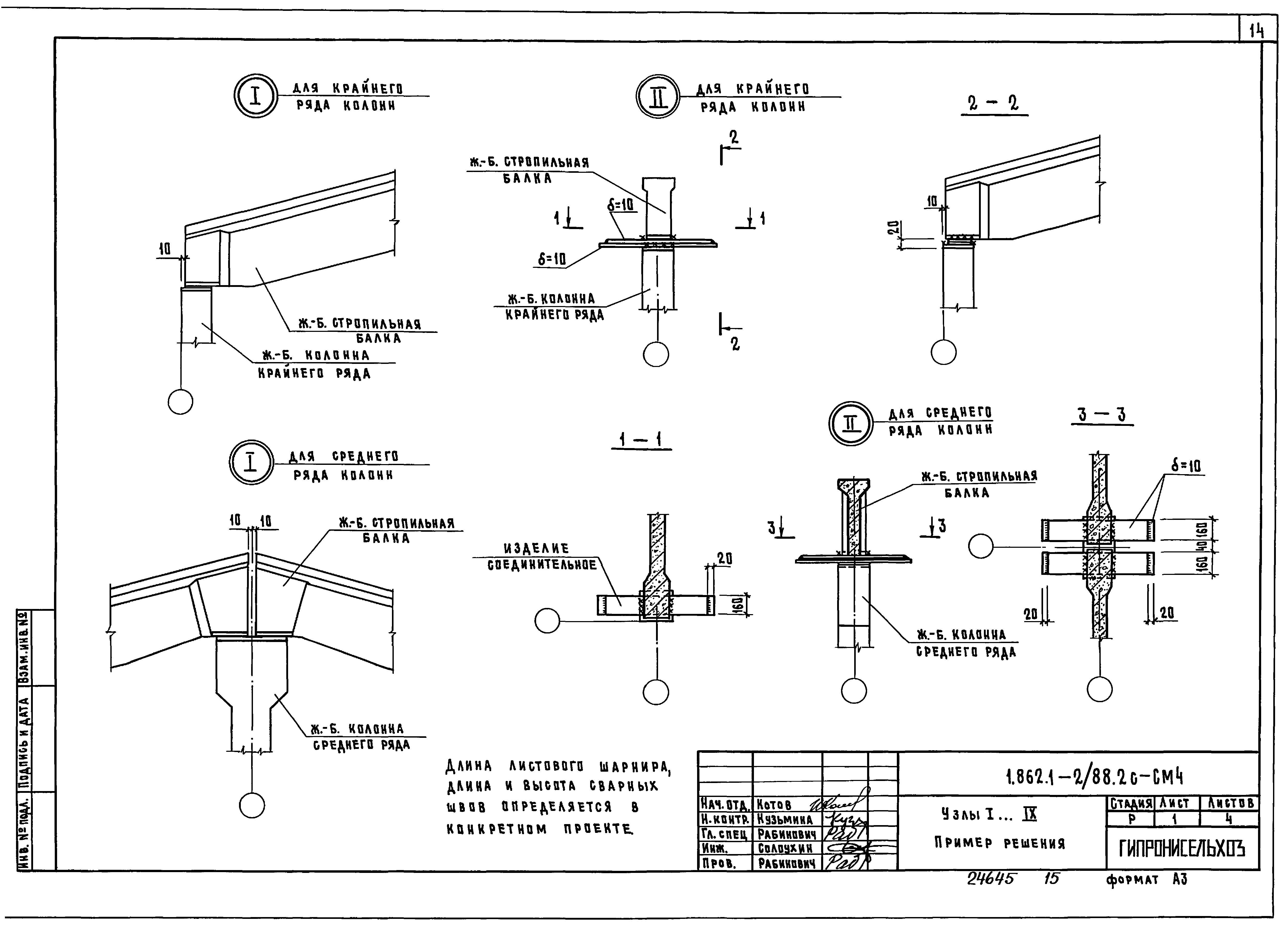
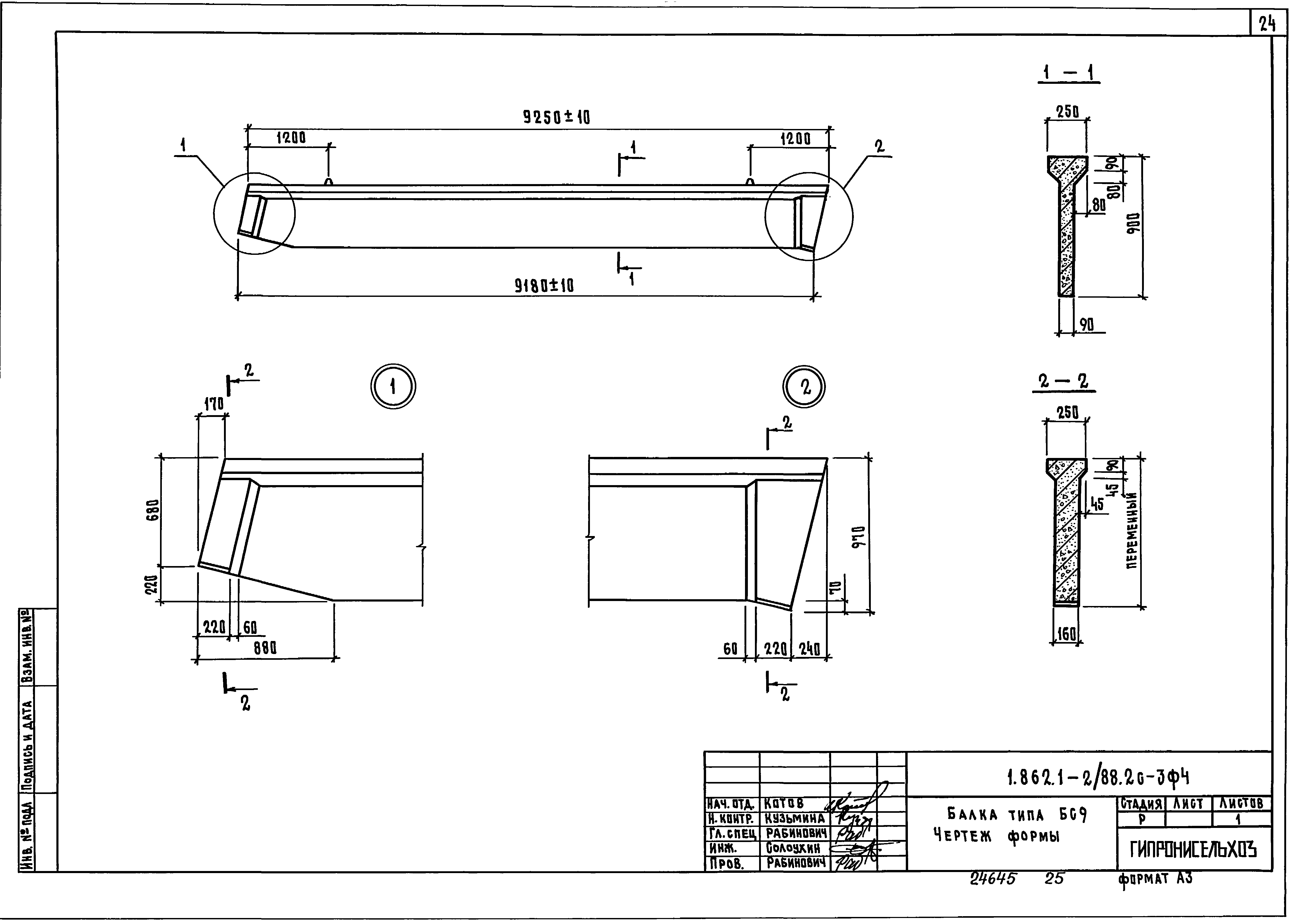
| Оглавление: | 1.862.1-2.88/2c-ПЗ Пояснительная записка 1.862.1-2.88/2c-ТУ Технические условия 1.862.1-2.88/2c-НИ Номенклатура изделий 1.862.1-2.88/2c-СМ1 Конструктивные схемы железобетонных каркасов зданий. Пример решения 1.862.1-2.88/2c-СМ2 Схема расположения горизонтальных связей при прогонном решении покрытия. Расчетная сейсмичность 7 баллов. Пример решения 1.862.1-2.88/2c-СМ3 Схема арсположения горизонтальных связей при прогонном решении покрытия. Расчетная сейсмичность 8 и 9 баллов. Пример решения 1.862.1-2.88/2c-СМ4 Узлы I... IX. Пример решения 1.862.1-2.88/2c-СМ5 Разбивка закладных изделий для крепления элементов покрытия 1.862.1-2.88/2c-СМ6 Установка закладных изделий для крепления распорок и вертикальных связей 1.862.1-2.88/2c-1ф4 Балка типа БС6. Чертеж формы 1.862.1-2.88/2c-1 Балка БС6-1-С…БС6-4-С 1.862.1-2.88/2c-2ф4 Балка типа БС7,5. Чертеж формы 1.862.1-2.88/2c-2 Балка БС7,5-1-С…БС7,5-4-С 1.862.1-2.88/2c-3ф4 Балка типа БС9. Чертеж формы 1.862.1-2.88/2c-3 Балка БС9-1-С…БС9-4-С 1.862.1-2.88/2c-4 Каркас плоский КР1…КР4 1.862.1-2.88/2c-5 Каркас плоский КР5…КР8 1.862.1-2.88/2c-6 Каркас плоский КР9…КР11 1.862.1-2.88/2c-7 Каркас плоский КР12…КР14 1.862.1-2.88/2c-8 Сетка С1…С3 1.862.1-2.88/2c-9 Стержень арматурный Ст1…Ст10 1.862.1-2.88/2c-10 Изделие закладное МН1…МН3 1.862.1-2.88/2c-11 Изделие закладное МН4, МН5 1.862.1-2.88/2c-12 Изделие закладное МН6 1.862.1-2.88/2c-13 Изделие закладное МН7 1.862.1-2.88/2c-РС Ведомость расхода стали |
| Разработан: | ЦНИИСК им. В.А. Кучеренко ЦНИИЭПсельстрой ГипроНИсельхоз (Институт Гипронисельхоз ) |
| Утверждён: | 12.03.1990 Госстрой СССР (Государственный комитет Совета Министров СССР по делам строительства) (USSR Gosstroy ) |

































