Скачать Серия 1.420.5-21 Выпуск 0-2. Материалы для проектирования. Ключи подбора соединительных элементов к монтажным узламДата актуализации: 01.01.2021
|
| Обозначение: | Серия 1.420.5-21 |
| Обозначение англ: | Series 1.420.5-21 |
| Статус: | не определен законодательством |
| Название рус.: | Выпуск 0-2. Материалы для проектирования. Ключи подбора соединительных элементов к монтажным узлам |
| Дата добавления в базу: | 01.09.2013 |
| Дата актуализации: | 01.01.2021 |
| Дата введения: | 10.07.1987 |
| Дата окончания срока действия: | 30.06.2003 |
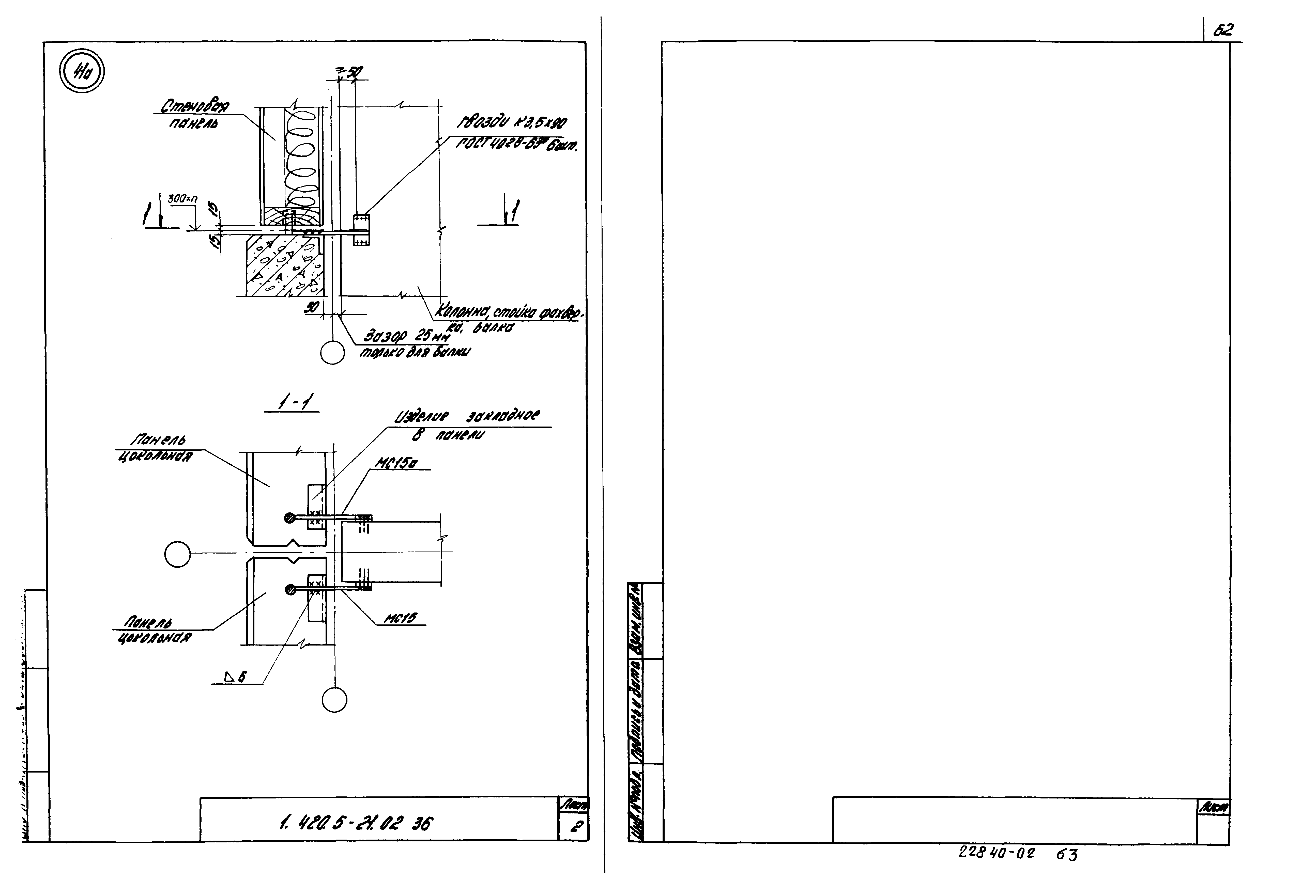
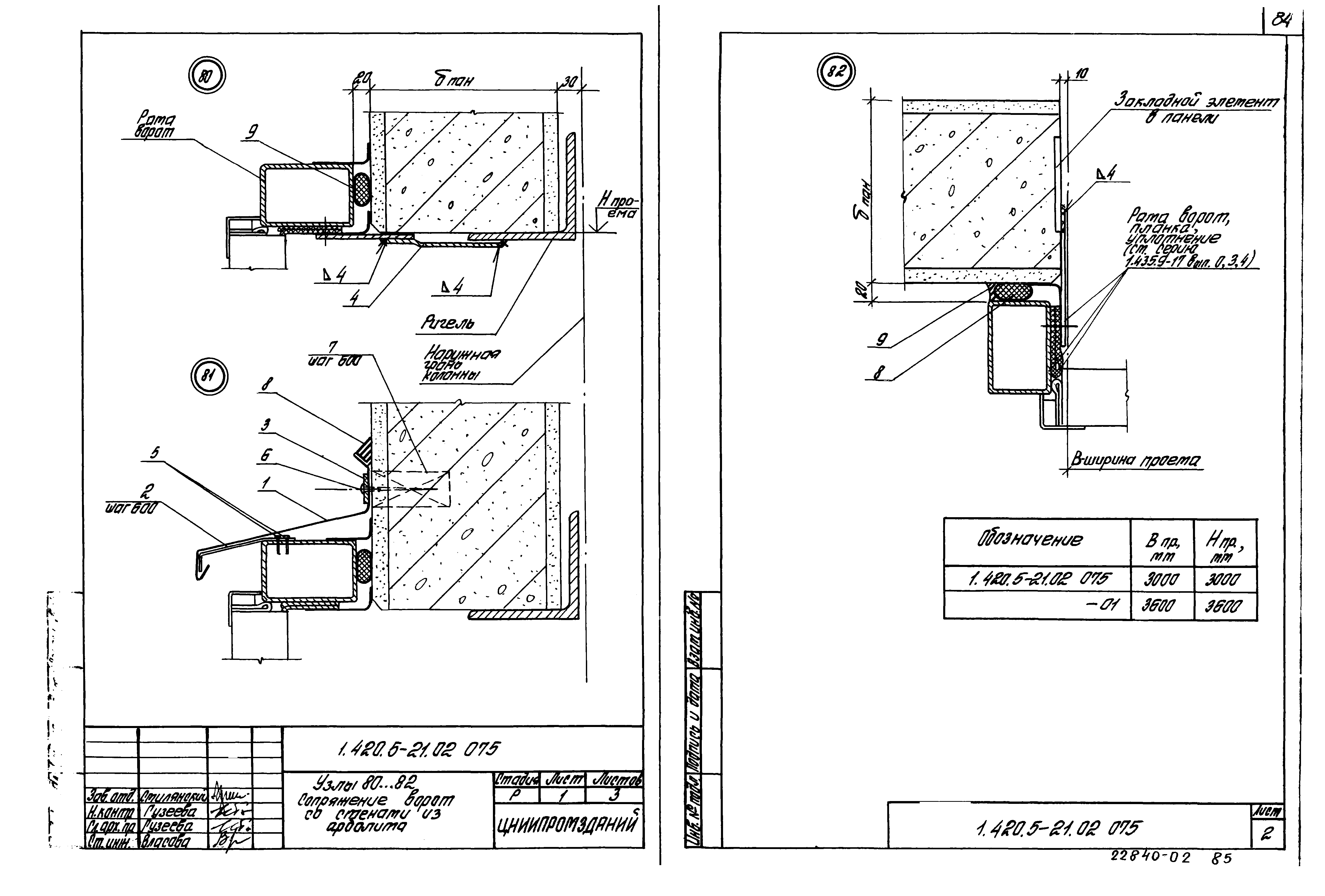
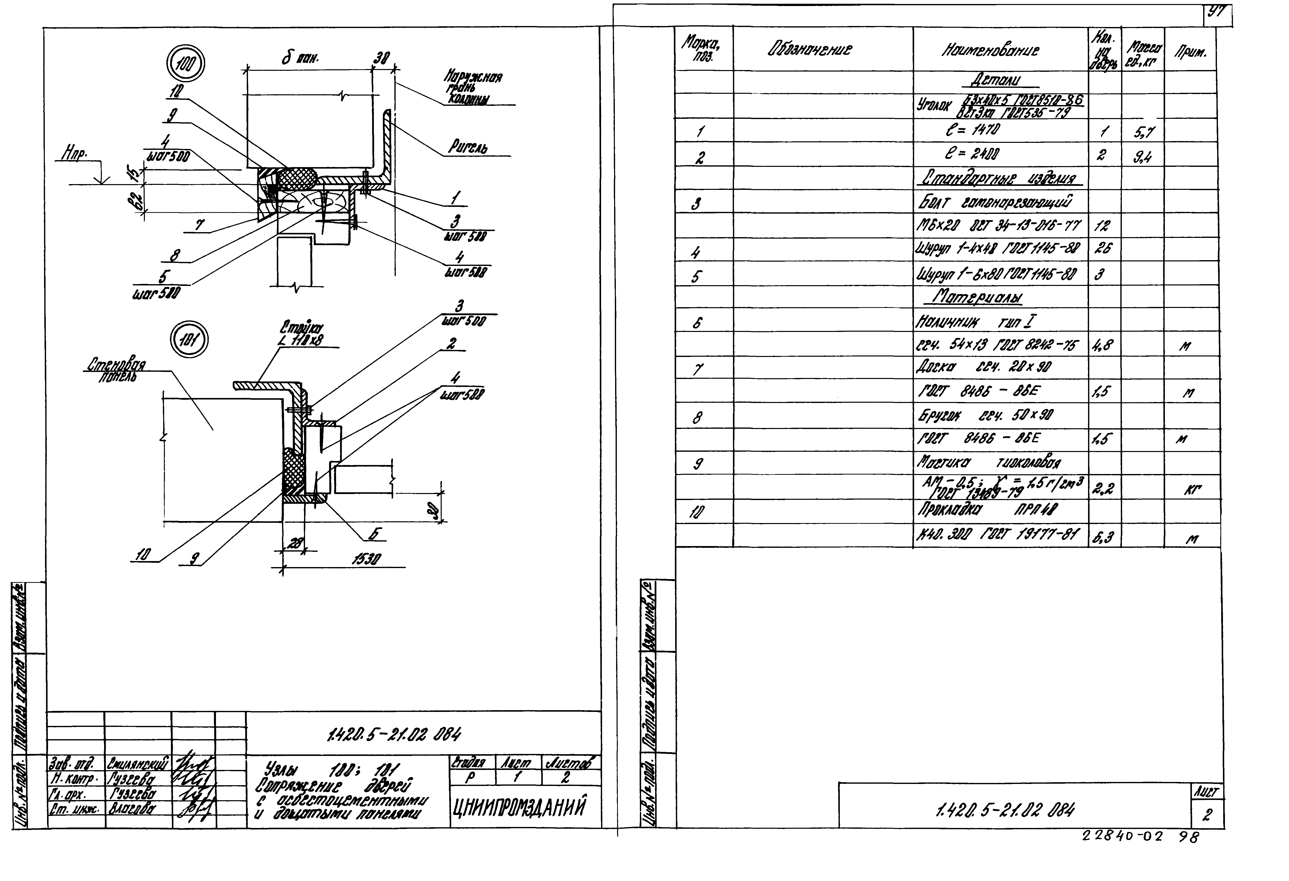
| Оглавление: | 1.420.5-21.02.000ПЗ Пояснительная записка 1.420.5-21.02.000СМ1 Схема привязки разбивочной оси "горизонтальных" поперечных связей для стропильной балки 1.420.5-21.02.000СМ2 Ключ для подбора марок стальных соединительных деталей и крепежных элементов для узла 3...35 1.420.5-21.02.000СМ3 Ключ перехода от условного номера к фактическому для узлов стеновых ограждающих конструкций отапливаемых зданий 1.420.5-21.02.001 Узел 1. Опирание колонны крайнего ряда на фундамент 1.420.5-21.02.002 Узел 1. Опирание колонны среднего ряда на фундамент 1.420.5-21.02.003 Схема установки анкерных болтов 1.420.5-21.02.004 Узел 3,3а. Крепление связей к базе колонны крайнего ряда 1.420.5-21.02.005 Узел 4,4а. Крепление связей к базе колонны среднего ряда 1.420.5-21.02.006 Узел 5,5а. Крепление связей к колонне 1.420.5-21.02.007 Узел 6,6а. Крепление связей к колонне 1.420.5-21.02.008 Узел 7,7а. Опирание балки на колонну крайнего ряда 1.420.5-21.02.009 Узел 8,8а. Опирание балки на колонну среднего ряда 1.420.5-21.02.010 Примеры крепления опорных консолей, панелей и ригелей стен к колоннам, стойкам фахверка и стропильным балкам 1.420.5-21.02.011 Узел 9. Опирание рядовой стойки фахверка на фундамент 1.420.5-21.02.012 Узел 10. Опирание рядовой стойки фахверка к балке 1.420.5-21.02.013 Узел 11,11а. Опирание приколонной стойки фахверка на фундамент 1.420.5-21.02.014 Узел 12. Крепление приколонной стойки фахверка к стропильной балке по крайнему ряду колонн 1.420.5-21.02.015 Узел 13. Крепление приколонной стойки фахверка к стропильной балке по среднему ряду колонн 1.420.5-21.02.016 Узел 14,14а,15,15а. Крепление приколонных стоек фахверка к колонне 1.420.5-21.02.017 Узел 16. Крепление распорок фахверка к крайней колонне 1.420.5-21.02.018 Узел 16а. Крепление распорок к стойке фахверка 1.420.5-21.02.019 Узел 17,18,19. Крепление раскосов горизонтальных связевых ферм 1.420.5-21.02.020 Узел 21,22. Крепление раскосов горизонтальных связевых ферм 1.420.5-21.02.021 Узел 23,24. Крепление раскоса связей к балке 1.420.5-21.02.022 Узел 25,25а. Крепление вертикальной связи 1.420.5-21.02.023 Узел 26,26а. Крепление вертикальной связи 1.420.5-21.02.024 Узел 27,27а. Крепление вертикальных связей распорок к балке и колонне 1.420.5-21.02.025 Узел 28,28а. Крепление вертикальной связи к балке и колонне 1.420.5-21.02.026 Узел 29,29а. Крепление вертикальной связи к балке 1.420.5-21.02.027 Узел 30,30а. Крепление вертикальной связи к балке 1.420.5-21.02.028 Узел 31,31а. Крепление вертикальной связи к балке 1.420.5-21.02.029 Узел 32,32а. Крепление вертикальной связи к балке 1.420.5-21.02.030 Узел 33. Крепление распорок к балке и колонне 1.420.5-21.02.031 Узел 34. Крепление распорок к балке 1.420.5-21.02.032 Узел 35,36,37. Крепление плит покрытия к балкам 1.420.5-21.02.033 Узел 38. Крепление карнизных панелей к балке 1.420.5-21.02.034 Узел 39. Крепление карнизных панелей к балке у торца здания 1.420.5-21.02.035 Узел 40. Крепление стеновых панелей из арболита к колонне, стойке фахверка или стропильной балке 1.420.5-21.02.036 Узел 41,41а. Крепление асбестоцементных панелей к колонне, стойке фахверка или стропильной балке 1.420.5-21.02.037 Узел 42. Крепление дощатых стеновых панелей к колонне, стойке фахверка или стропильной балке 1.420.5-21.02.038 Узел 43. Крепление стеновых панелей из арболита к верху стропильной балки 1.420.5-21.02.039 Узел 44. Крепление асбестоцементных стеновых панелей к верху стропильной балки 1.420.5-21.02.040 Узел 45. Крепление дощатых стеновых панелей к верху стропильной балки 1.420.5-21.02.041 Узел 46. Крепление стеновых панелей из арболита в уровне верха колонны при пересечении стены стропильной балкой 1.420.5-21.02.042 Узел 47. Крепление стеновых асбестоцементных панелей в уровне верха колонны при пересечении стены стропильной балкой 1.420.5-21.02.043 Узел 48. Крепление стеновых асбестоцементных панелей к колонне или стойке фахверка в местах опирания на столик 1.420.5-21.02.044 Узел 49. Крепление стеновых дощатых панелей к колонне или стойке фахверка в местах опирания на столик 1.420.5-21.02.045 Узел 50. Крепление стеновых панелей из арболита к колонне и стойке фахверка в углу 1.420.5-21.02.046 Узел 51. Крепление стеновых дощатых панелей к колонне и стойке фахверка в углу 1.420.5-21.02.047 Узел 52. Крепление асбестоцементных панелей к колонне и стойке фахверка в углу 1.420.5-21.02.048 Узел 53. Крепление стеновых дощатых панелей к колонне и стойке фахверка в местах опирания на столик в углу 1.420.5-21.02.049 Узел 54. Крепление стеновых асбестоцементных панелей к колонне и стойке фахверка в местах опирания на столик в углу 1.420.5-21.02.050 Узел 55. Крепление стеновых панелей из арболита к насадке в углу 1.420.5-21.02.051 Узел 56. Крепление дощатых стеновых панелей к насадке в углу 1.420.5-21.02.052 Узел 57. Крепление стеновых асбестоцементных панелей к насадке в углу 1.420.5-21.02.053 Узел 58. Крепление стеновых панелей из арболита к насадке и балке при пересечении балки и стены в углу 1.420.5-21.02.054 Узел 59. Крепление стеновых асбестоцементных панелей к стропильной балке и насадке в углу при пересечении балкой стены 1.420.5-21.02.055 Узел 60. Крепление стеновых панелей из арболита к насадке среднего ряда 1.420.5-21.02.056 Узел 61. Крепление стеновых панелей из арболита к насадке в месте перепада парапета 1.420.5-21.02.057 Узел 62. Крепление дощатых стеновых панелей к насадке среднего ряда 1.420.5-21.02.058 Узел 63. Крепление дощатых стеновых панелей к насадке в месте перепада парапета 1.420.5-21.02.059 Узел 64. Крепление асбестоцементных стеновых панелей к насадке среднего ряда 1.420.5-21.02.060 Узел 65. Крепление асбестоцементных стеновых панелей к насадке в месте перепада парапета 1.420.5-21.02.061 Узел 66. Крепление ригелей к колонне 1.420.5-21.02.062 Узел 67. Крепление ригеля простенка к колонне 1.420.5-21.02.063 Узел 68. Крепление ригелей к верху стропильной балки 1.420.5-21.02.064 Узел 69. Крепление ригелей к стропильной балке в местах пересечения балки со стеной 1.420.5-21.02.065 Узел 70. Крепление ригелей к приколонной стойке фахверка 1.420.5-21.02.066 Узел 71. Крепление ригелей к стойке фахверка и колонне в углу 1.420.5-21.02.067 Узел 72. Крепление ригелей к стропильной балке и насадке в углу 1.420.5-21.02.068 Узел 73. Крепление ригелей к стропильной балке и насадке в углу при пересечении балки со стеной 1.420.5-21.02.069 Узел 74. Крепление ригеля к насадке в разных уровнях 1.420.5-21.02.070 Узел 75. Крепление ригеля к насадке в одном уровне 1.420.5-21.02.071 Узел 76. Заделка стыка между стеной и консольной балкой отапливаемых зданий типа 4 и 5 1.420.5-21.02.072 Узел 77. Крепление стальных ригелей и дощатых панелей к колонне 1.420.5-21.02.073 Узел 78,78а. Крепление стального ригеля и панелей из арболита к колонне 1.420.5-21.02.074 Узел 79. Крепление стального ригеля и асбестоцементных панелей к колонне 1.420.5-21.02.075 Узлы 80...82. Сопряжение ворот со стеновыми из арболита 1.420.5-21.02.076 Узлы 83;84. Сопряжение дверей со стенами из арболита 1.420.5-21.02.077 Узлы 85...88. Сопряжение асбестоцементных панелей между собой и с цоколем 1.420.5-21.02.078 Узел 89. Сопряжение окон с цоколем стены из асбестоцементных панелей 1.420.5-21.02.079 Узлы 90...92. Крепление окон 1.420.5-21.02.080 Узел 93. Сопряжение верхнего горизонтального элемента окна с асбестоцементными панелями 1.420.5-21.02.081 Узел 94. Сопряжение нижнего горизонтального элемента окна с асбестоцементными панелями 1.420.5-21.02.082 Узлы 95,96. Сопряжение бокового вертикального элемента окна с асбестоцементными панелями 1.420.5-21.02.083 Узлы 97...99. Сопряжение ворот со стенами из асбестоцементных и дощатых панелей 1.420.5-21.02.084 Узлы 100,101. Сопряжение дверей с асбестоцементными и дощатыми панелями 1.420.5-21.02.085 Узлы 102...104. Крепление стойки и дверного проема стен из арболитовых и асбестоцементных и дощатых панелей 1.420.5-21.02.086 Узлы 105. Крепление стойки к ригелю стен неотапливаемых зданий 1.420.5-21.02.087 Узлы 106. Крепление стойки обрамления проема стен неотапливаемых зданий к цокольной панели 1.420.5-21.02.088 Узлы 107. Крепление ригеля к стойке обрамления проема стен неотапливаемых зданий 1.420.5-21.02.089 Узлы 108. Сопряжение асбестоцементных волнистых листов с цоколем 1.420.5-21.02.090 Узел 109...112. Сопряжение горизонтального элемента окна с цоколем и со стеной из асбестоцементных волнистых листов 1.420.5-21.02.091 Узел 113. Сопряжение вертикального элемента окна с асбестоцементными волнистыми листами 1.420.5-21.02.092 Узел 114...116. Сопряжение ворот со стенами из асбестоцементных волнистых листов 1.420.5-21.02.093 Узел 117...119. Сопряжение дверей со стенами из асбестоцементных волнистых листов 1.420.5-21.02.094 Узел 120. Сопряжение окна и ворот со стенами из асбестоцементных листов 1.420.5-21.02.095 Узел 121,122. Решение карниза 1.420.5-21.02.096 Узел 123. Решение карниза торца 1.420.5-21.02.097 Узел 124. Устройство карниза для навеса 1.420.5-21.02.098 Узел 125. Решение парапета |
| Разработан: | ЦНИИпромзданий |
| Утверждён: | 10.07.1987 Министерство лесной, целлюлозно-бумажной и деревообрабатывающей промышленности СССР (USSR Ministry of the Wood, Wood Processing, Pulp and Paper Industries 106) |
| Издан: | ЦИТП Госстроя СССР (CITP, Gosstroy (USSR) 1986 г. ) |





















































































































