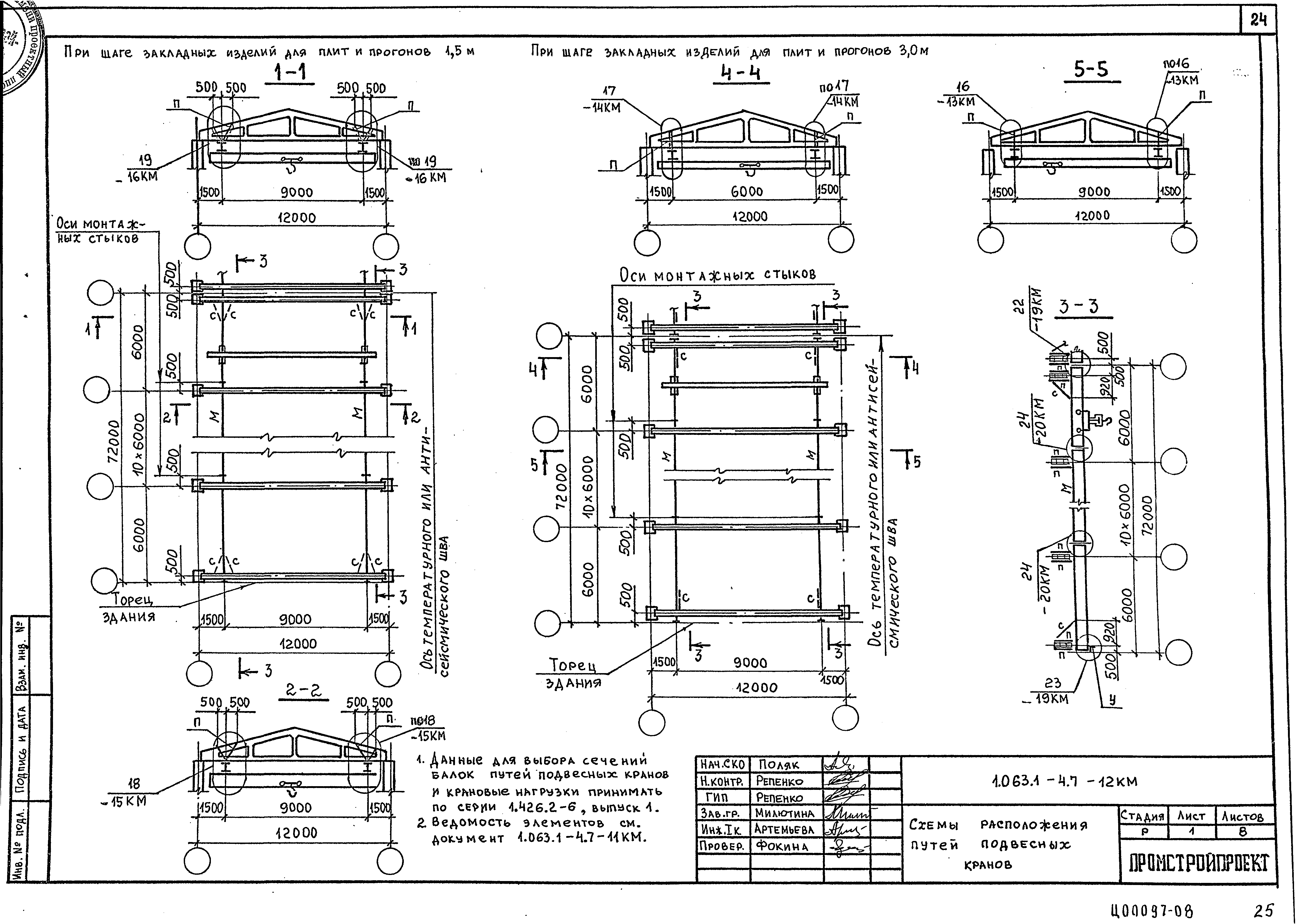
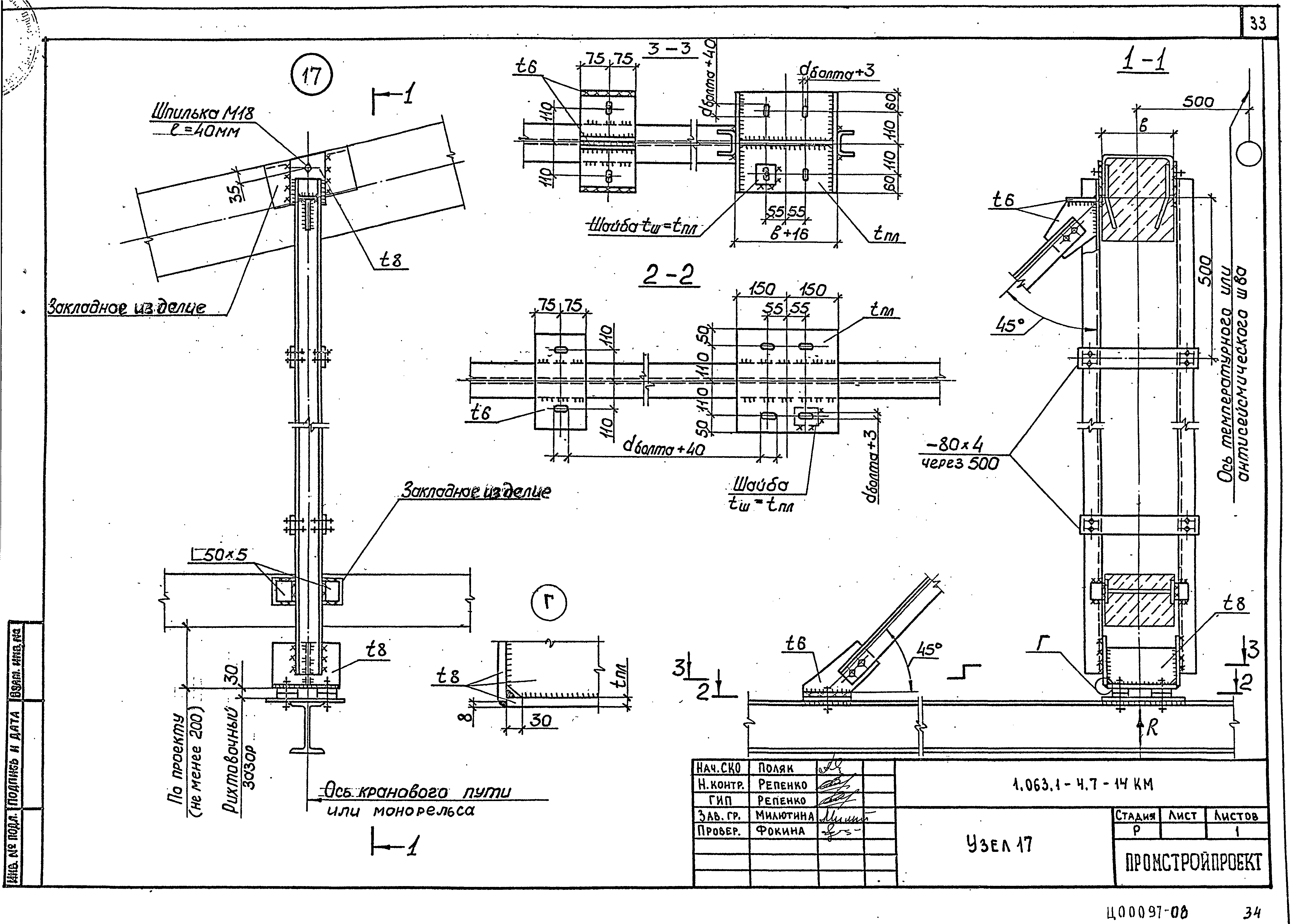
Скачать Серия 1.063.1-4 Выпуск 7. Связи стальные и элементы крепления путей подвесного транспорта. Чертежи КМДата актуализации: 01.01.2021
|
| Обозначение: | Серия 1.063.1-4 |
| Обозначение англ: | Series 1.063.1-4 |
| Статус: | не определен законодательством |
| Название рус.: | Выпуск 7. Связи стальные и элементы крепления путей подвесного транспорта. Чертежи КМ |
| Дата добавления в базу: | 01.09.2013 |
| Дата актуализации: | 01.01.2021 |
| Дата введения: | 01.10.1993 |
| Дата окончания срока действия: | 30.06.2003 |
| Разработан: | ЦНИИЭПсельстрой Промстройпроект |
| Утверждён: | 03.03.1993 Госстрой России (Russian Federation Gosstroy 9-3-2/35) |







































