Скачать Серия 1.463.1-3/87 Выпуск 1-1. Материалы для проектирования с подбором ферм по ключамДата актуализации: 01.01.2021
|
| Обозначение: | Серия 1.463.1-3/87 |
| Обозначение англ: | Series 1.463.1-3/87 |
| Статус: | не определен законодательством |
| Название рус.: | Выпуск 1-1. Материалы для проектирования с подбором ферм по ключам |
| Дата добавления в базу: | 01.09.2013 |
| Дата актуализации: | 01.01.2021 |
| Дата введения: | 01.09.1988 |
| Дата окончания срока действия: | 30.06.2003 |
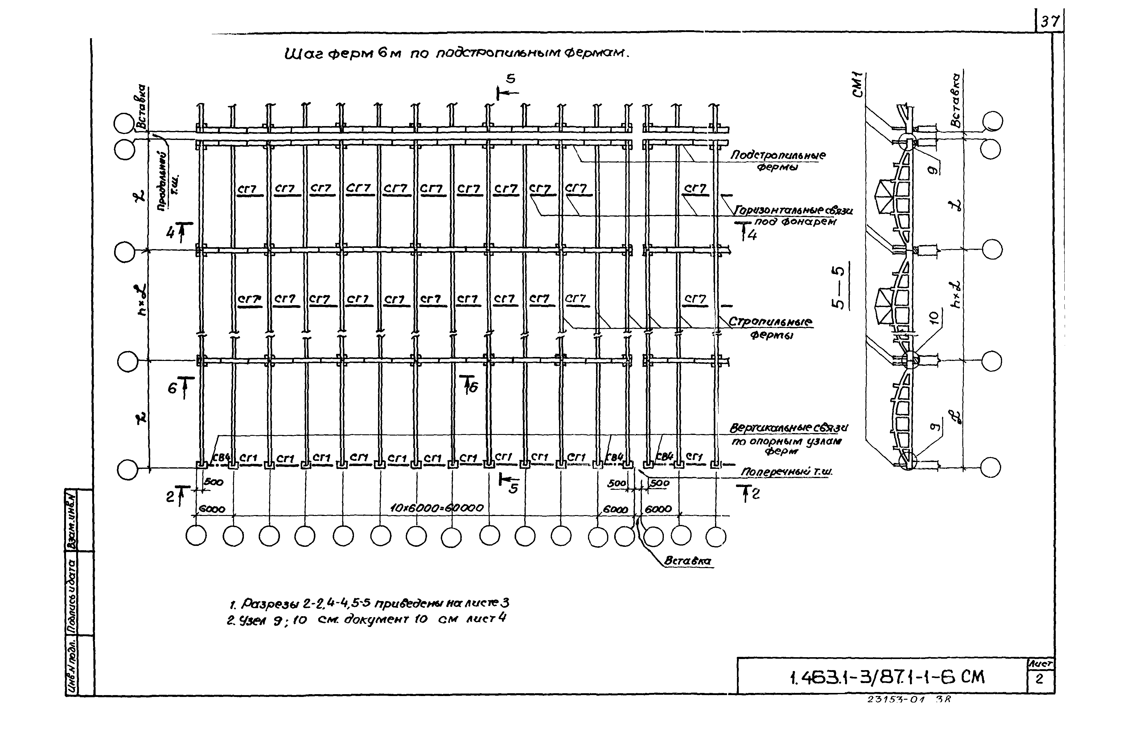
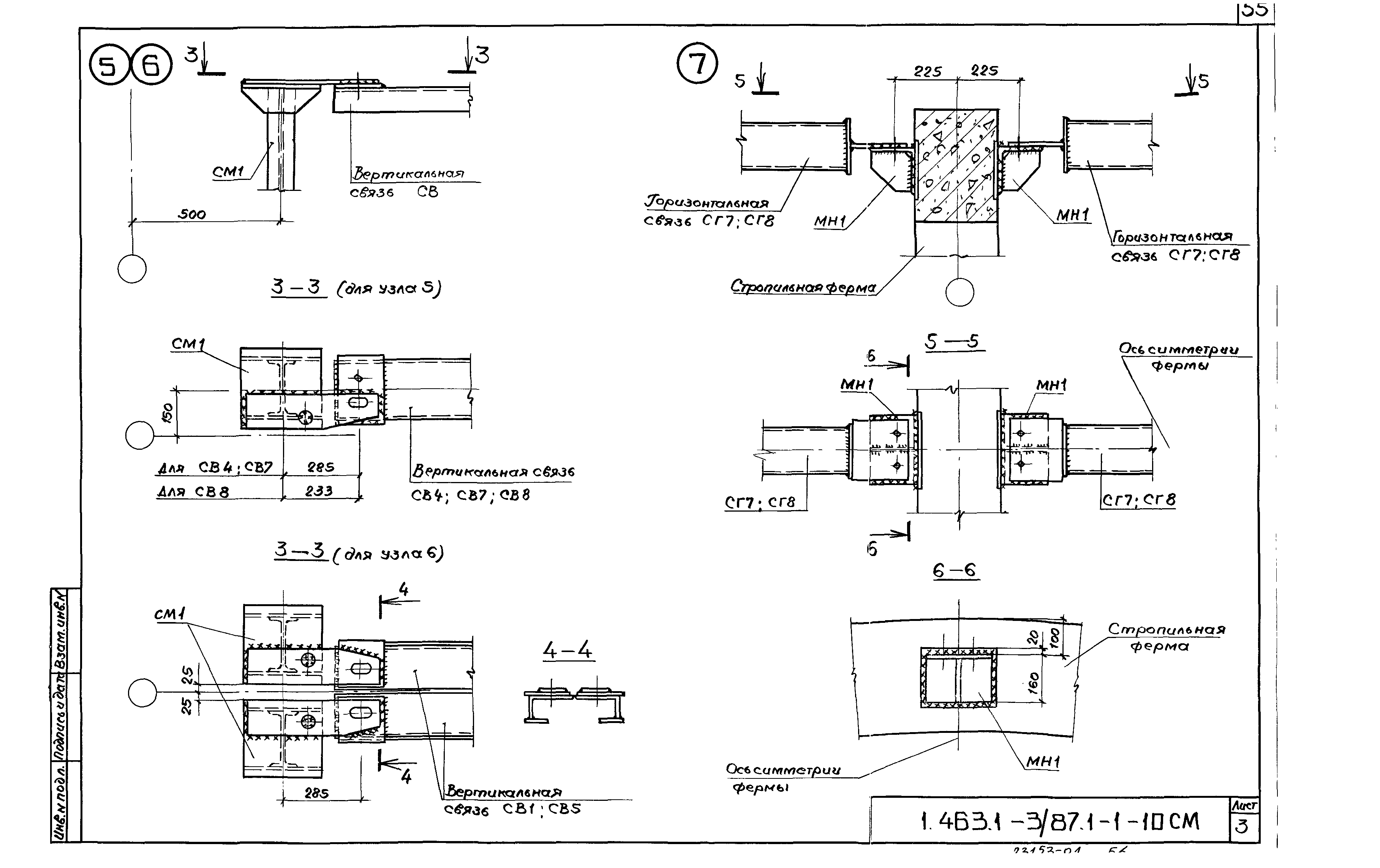
| Оглавление: | 1.463.1-3/87.1-1-ПЗ Пояснительная записка 1.463.1-3/87.1-1-НИ Номенклатура ферм 1.463.1-3/87.1-1-1СМ Таблица подбора марок ферм пролетом 18 м 1.463.1-3/87.1-1-2СМ Таблица подбора марок ферм пролетом 24 м 1.463.1-3/87.1-1-3СМ Фермы пролетом 18 м. Схемы нагрузок от покрытия и снега 1.463.1-3/87.1-1-4СМ Фермы пролетом 24 м. Схемы нагрузок от покрытия и снега 1.463.1-3/87.1-1-5СМ Схемы подвески путей подвесного транспорта и грузов при шаге ферм 6 м 1.463.1-3/87.1-1-6СМ Схемы расположения связей в зданиях с малоуклонной кровлей в несейсмических районах 1.463.1-3/87.1-1-7СМ Схемы расположения связей в зданиях со скатной кровлей в несейсмических районах 1.463.1-3/87.1-1-8СМ Схемы расположения связей в покрытиях зданий со скатной кровлей при расчетной сейсмичности 7 баллов 1.463.1-3/87.1-1-9СМ Схемы расположения связей в покрытиях зданий со скатной кровлей при расчетной сейсмичности 8 баллов 1.463.1-3/87.1-1-10СМ Узлы 1...18 1.463.1-3/87.1-1-11СМ Разбивка закладных изделий в фермах ФБМ18 1.463.1-3/87.1-1-12СМ Разбивка закладных изделий в фермах ФБМ24 1.463.1-3/87.1-1-13СМ Разбивка закладных изделий в фермах ФБС18 1.463.1-3/87.1-1-14СМ Разбивка закладных изделий в фермах ФБС24 1.463.1-3/87.1-1-15СМ Разбивка закладных изделий для крепления подвесного транспорта и стеновых панелей в фермах ФБМ18,ФБМ24 1.463.1-3/87.1-1-16СМ Разбивка закладных изделий для крепления подвесного транспорта и стеновых панелей в фермах ФБС18,ФБС25 1.463.1-3/87.1-1-17СМ Разбивка закладных изделий в фермах для зданий с расчетной сейсмичностью 7 и 8 баллов 1.463.1-3/87.1-1-18СМ Пример раскладки железобетонных плит покрытия 1.463.1-3/87.1-1-1РС Фермы типа ФБМ18,ФБС18. Ведомость расхода стали 1.463.1-3/87.1-1-2РС Фермы типа ФБМ24,ФБС24. Ведомость расхода стали |
| Разработан: | ПИ № 1 Госстроя СССР НИИСК НИИЖБ |
| Утверждён: | 29.04.1988 Госстрой СССР (Государственный комитет Совета Министров СССР по делам строительства) (USSR Gosstroy АЧ-20) |
| Издан: | ЦИТП Госстроя СССР (CITP, Gosstroy (USSR) 1988 г. ) |

























































































