Скачать Серия 1.463.1-17 Выпуск 2. Фермы пролетом 18 м типоразмера 2. Рабочие чертежиДата актуализации: 01.01.2021
|
| Обозначение: | Серия 1.463.1-17 |
| Обозначение англ: | Series 1.463.1-17 |
| Статус: | не определен законодательством |
| Название рус.: | Выпуск 2. Фермы пролетом 18 м типоразмера 2. Рабочие чертежи |
| Дата добавления в базу: | 01.09.2013 |
| Дата актуализации: | 01.01.2021 |
| Дата введения: | 01.08.1990 |
| Дата окончания срока действия: | 30.06.2003 |
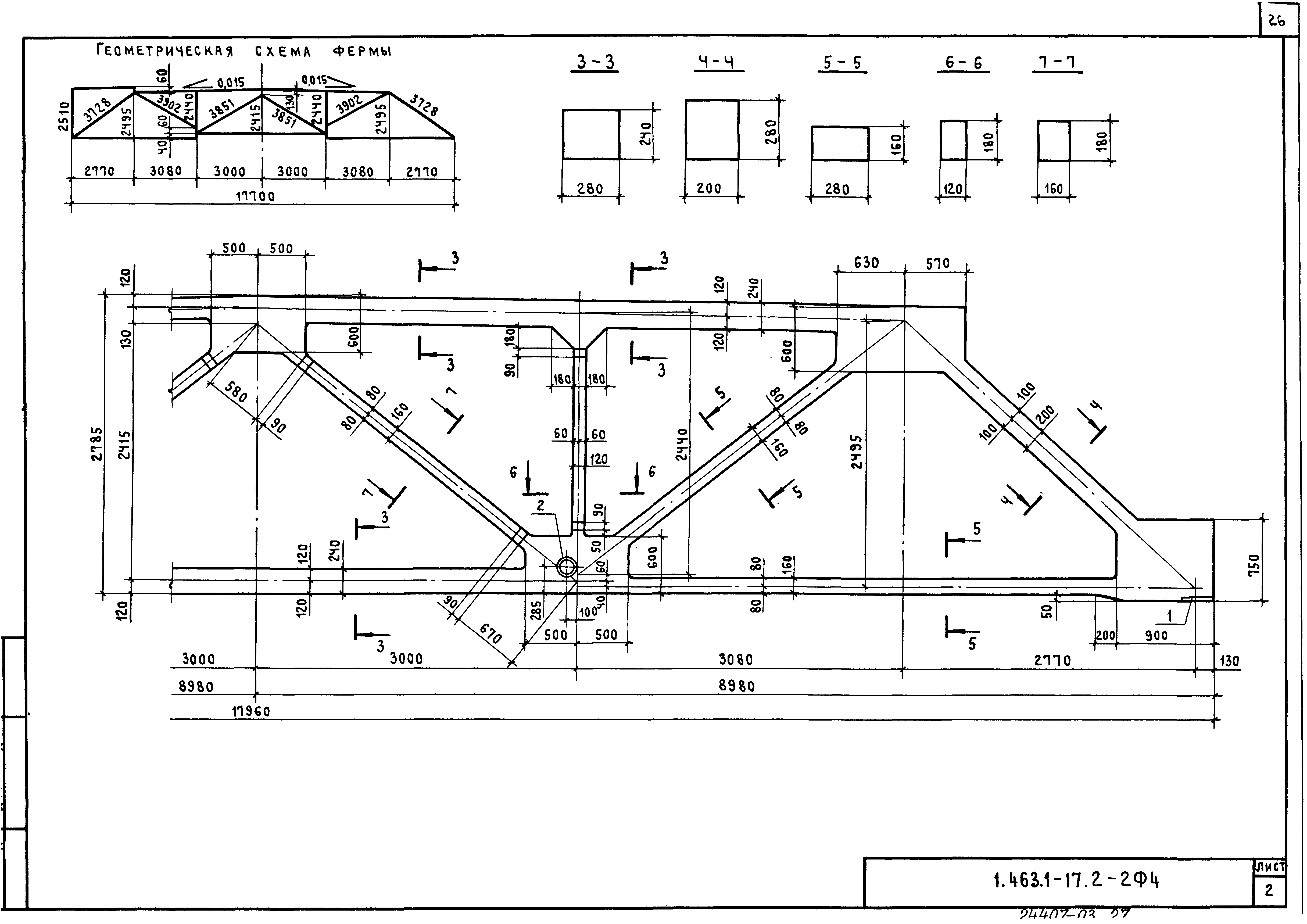
| Оглавление: | 1.463.1-17.2-ТТ Технические требования 1.463.1-17.2-1ФЧ Ферма типоразмера 2.1ФСП18. Опалубочный чертеж 1.463.1-17.2-1 Ферма типоразмера 2.1ФСП18. Армирование 1.463.1-17.2-1РС Ферма типоразмера 2.1ФСП18. Ведомость расхода стали 1.463.1-17.2-2ФЧ Ферма типоразмера 2.2ФСП18. Опалубочный чертеж 1.463.1-17.2-2 Ферма типоразмера 2.2ФСП18. Армирование 1.463.1-17.2-2РС Ферма типоразмера 2.2ФСП18. Ведомость расхода стали 1.463.1-17.2-3ФЧ Ферма типоразмера 2.3ФСП18. Опалубочный чертеж 1.463.1-17.2-3 Ферма типоразмера 2.3ФСП18. Армирование 1.463.1-17.2-3РС Ферма типоразмера 2.3ФСП18. Ведомость расхода стали 1.463.1-17.2-1СМ Контрольные нагрузки и схемы испытаний ферм 1.463.1-17.2-2СМ Вариант армирования ненапрягаемых элементов ферм арматурой класса Ат-IVС |
| Разработан: | НИИСК НИИЖБ ГПИ Промстройпроект |
| Утверждён: | 18.12.1989 Главоргпроект Госстроя СССР (4/5-1546) |
| Издан: | ЦИТП Госстроя СССР (CITP, Gosstroy (USSR) 1990 г. ) |

























































