Скачать Серия 1.463.1-17 Выпуск 11. Фермы пролетами 18 и 24 м типоразмера 3. Закладные изделия. Рабочие чертежиДата актуализации: 01.01.2021
|
| Обозначение: | Серия 1.463.1-17 |
| Обозначение англ: | Series 1.463.1-17 |
| Статус: | не определен законодательством |
| Название рус.: | Выпуск 11. Фермы пролетами 18 и 24 м типоразмера 3. Закладные изделия. Рабочие чертежи |
| Дата добавления в базу: | 01.09.2013 |
| Дата актуализации: | 01.01.2021 |
| Дата введения: | 01.08.1990 |
| Дата окончания срока действия: | 30.06.2003 |
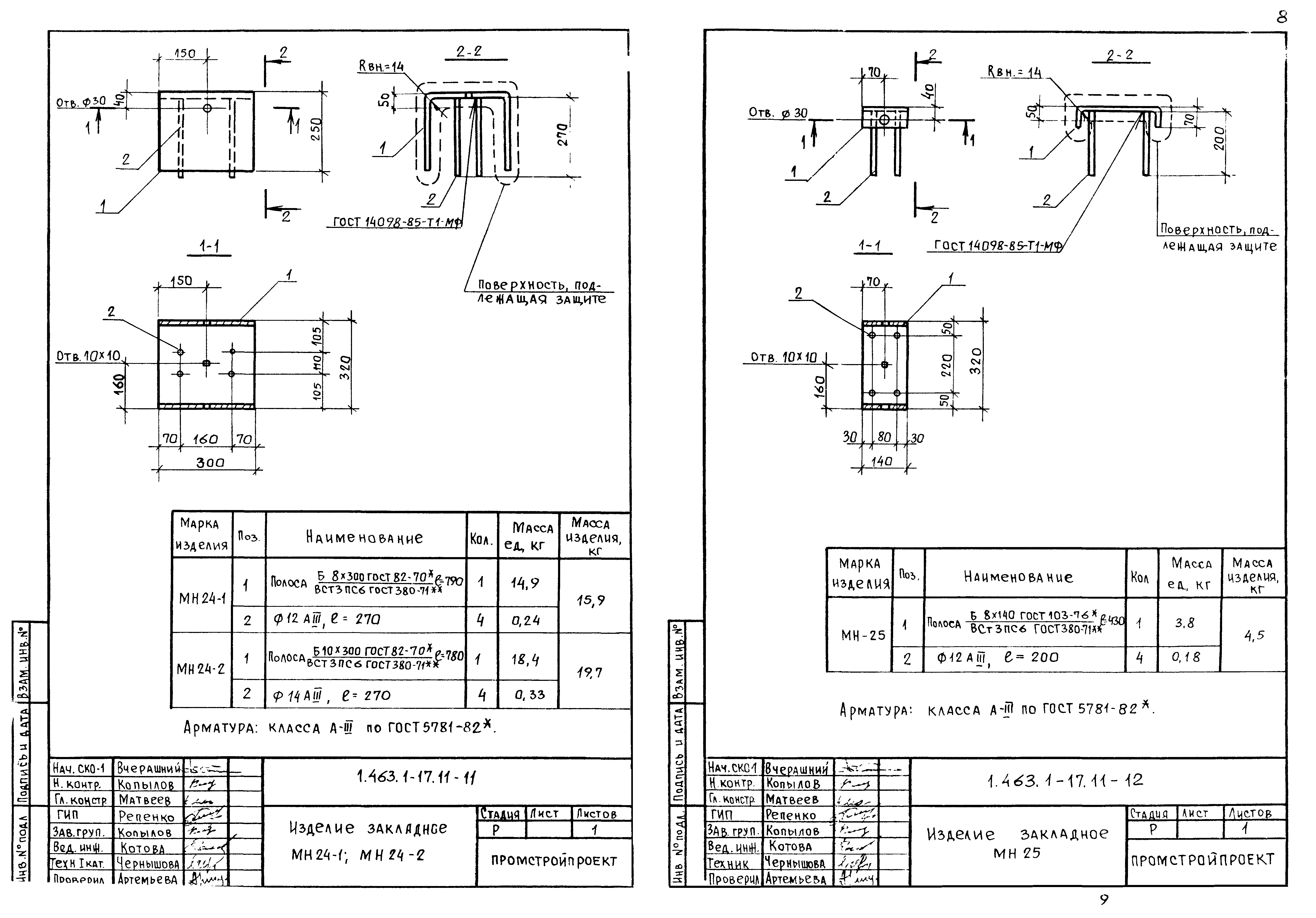
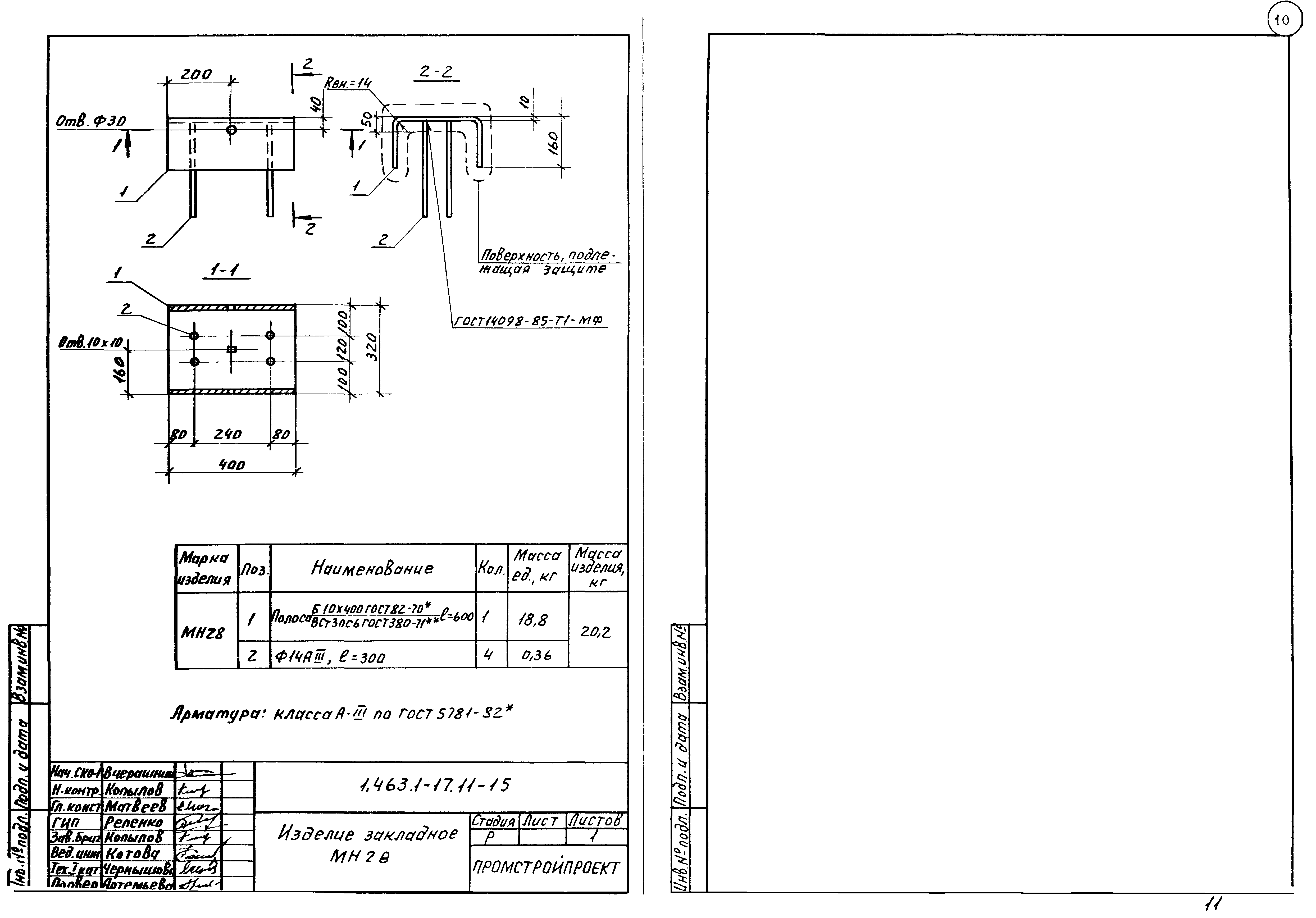
| Оглавление: | 1.463.1-17.11-ТТ Технические требования 1.463.1-17.11-1 Изделие закладное МН6 1.463.1-17.11-2 Изделие закладное МН8 1.463.1-17.11-3 Изделие закладное МН9 1.463.1-17.11-4 Изделие закладное МН12 1.463.1-17.11-5 Изделие закладное МН13 1.463.1-17.11-6 Изделие закладное МН14 1.463.1-17.11-7 Изделие закладное МН21 1.463.1-17.11-8 Изделие закладное МН22-1...МН22-3 1.463.1-17.11-9 Изделие закладное МН22-4;МН22-5 1.463.1-17.11-10 Изделие закладное МН23-1;МН23-2 1.463.1-17.11-11 Изделие закладное МН24-1;МН24-2 1.463.1-17.11-12 Изделие закладное МН25 1.463.1-17.11-13 Изделие закладное МН26 1.463.1-17.11-14 Изделие закладное МН27 1.463.1-17.11-15 Изделие закладное МН28 |
| Разработан: | НИИСК НИИЖБ ГПИ Промстройпроект |
| Утверждён: | 18.12.1989 Главоргпроект Госстроя СССР (4/5-1546) |
| Издан: | ЦИТП Госстроя СССР (CITP, Gosstroy (USSR) 1990 г. ) |











