Скачать Серия 1.460.3-23.98 Выпуск 1. Покрытия. Чертежи КМДата актуализации: 01.01.2021
|
| Обозначение: | Серия 1.460.3-23.98 |
| Обозначение англ: | Series 1.460.3-23.98 |
| Статус: | справочные материалы, мп, тпр |
| Название рус.: | Выпуск 1. Покрытия. Чертежи КМ |
| Дата добавления в базу: | 01.09.2013 |
| Дата актуализации: | 01.01.2021 |
| Дата введения: | 01.03.2001 |
| Дата окончания срока действия: | 01.07.2015 |
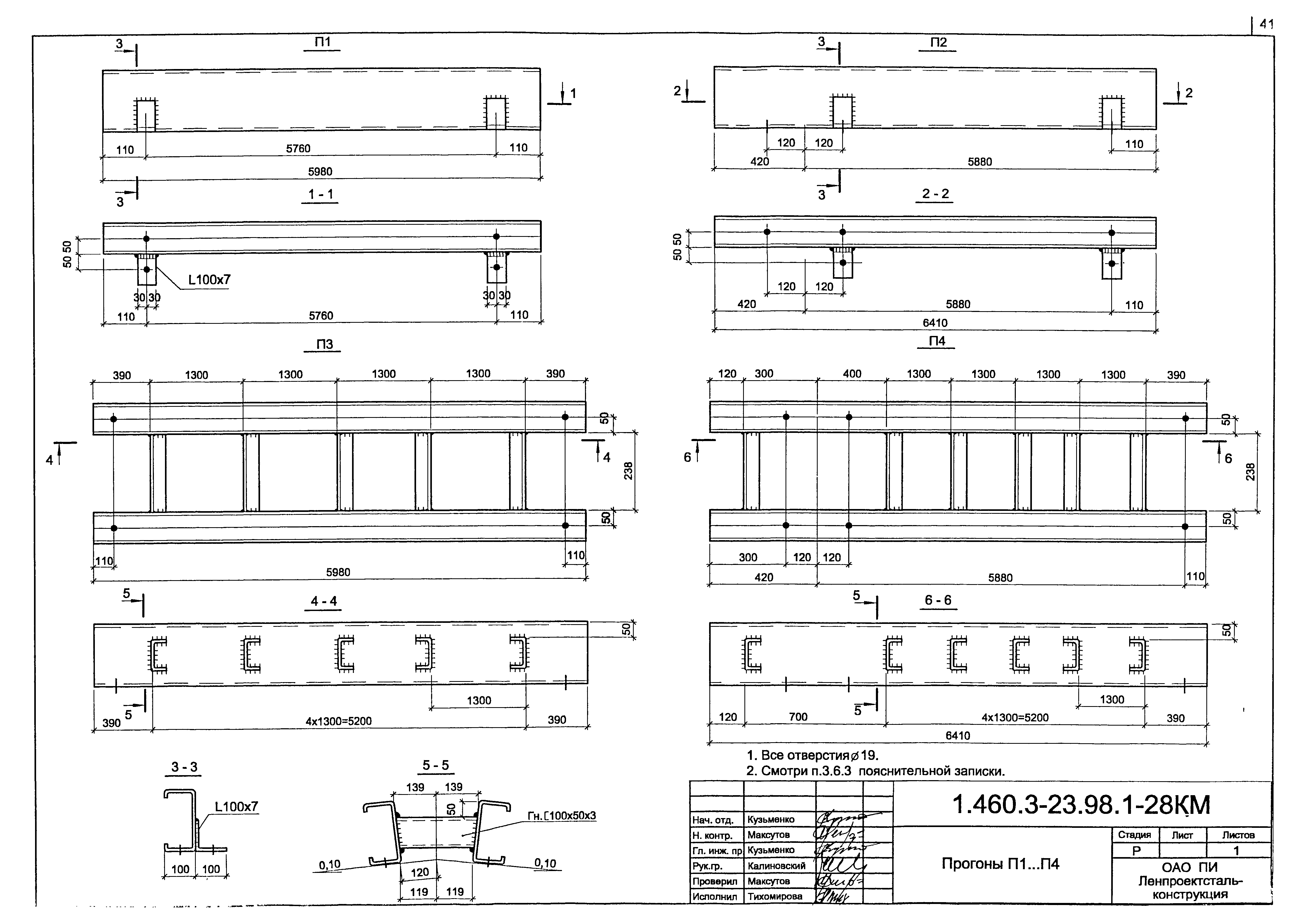
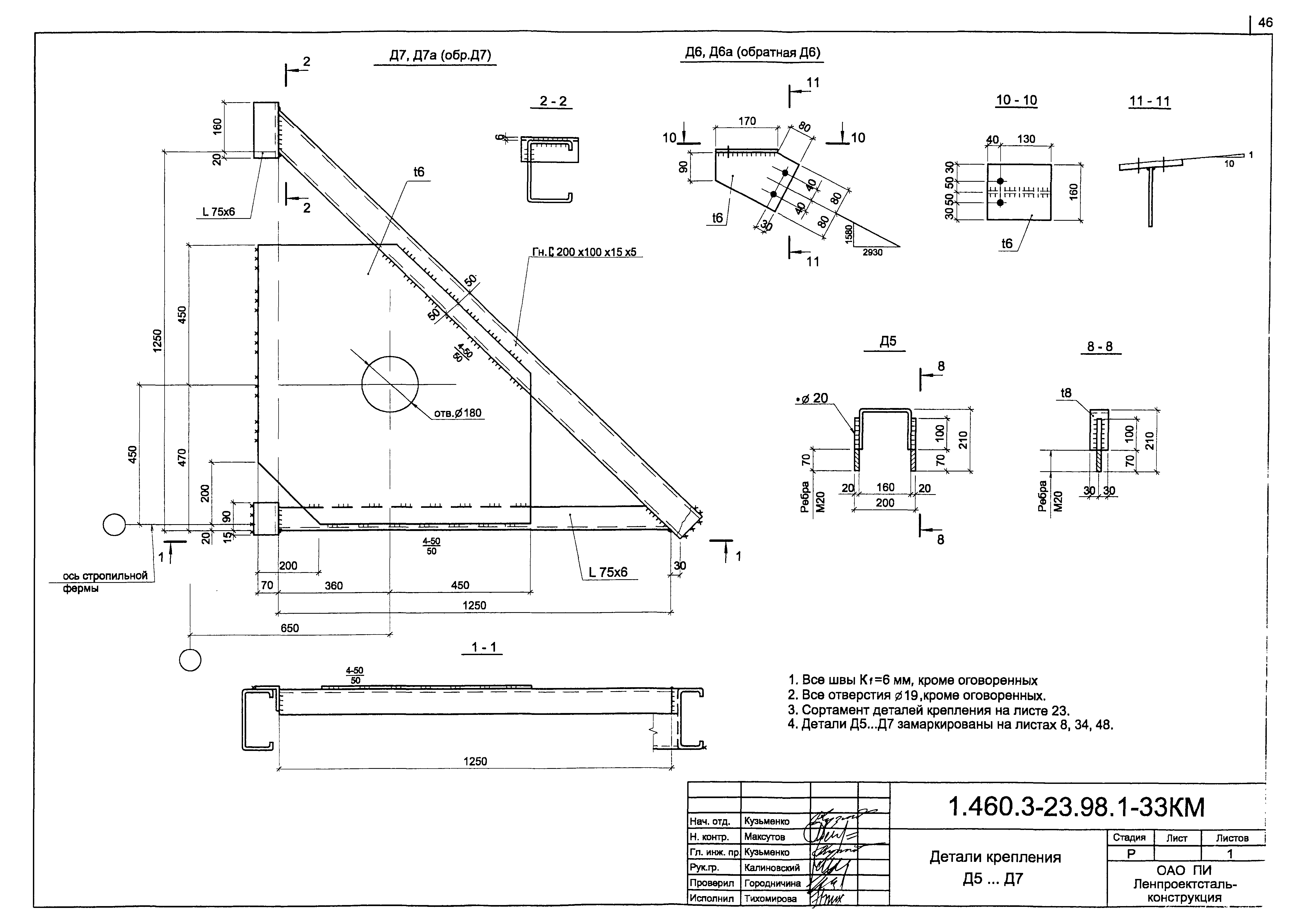
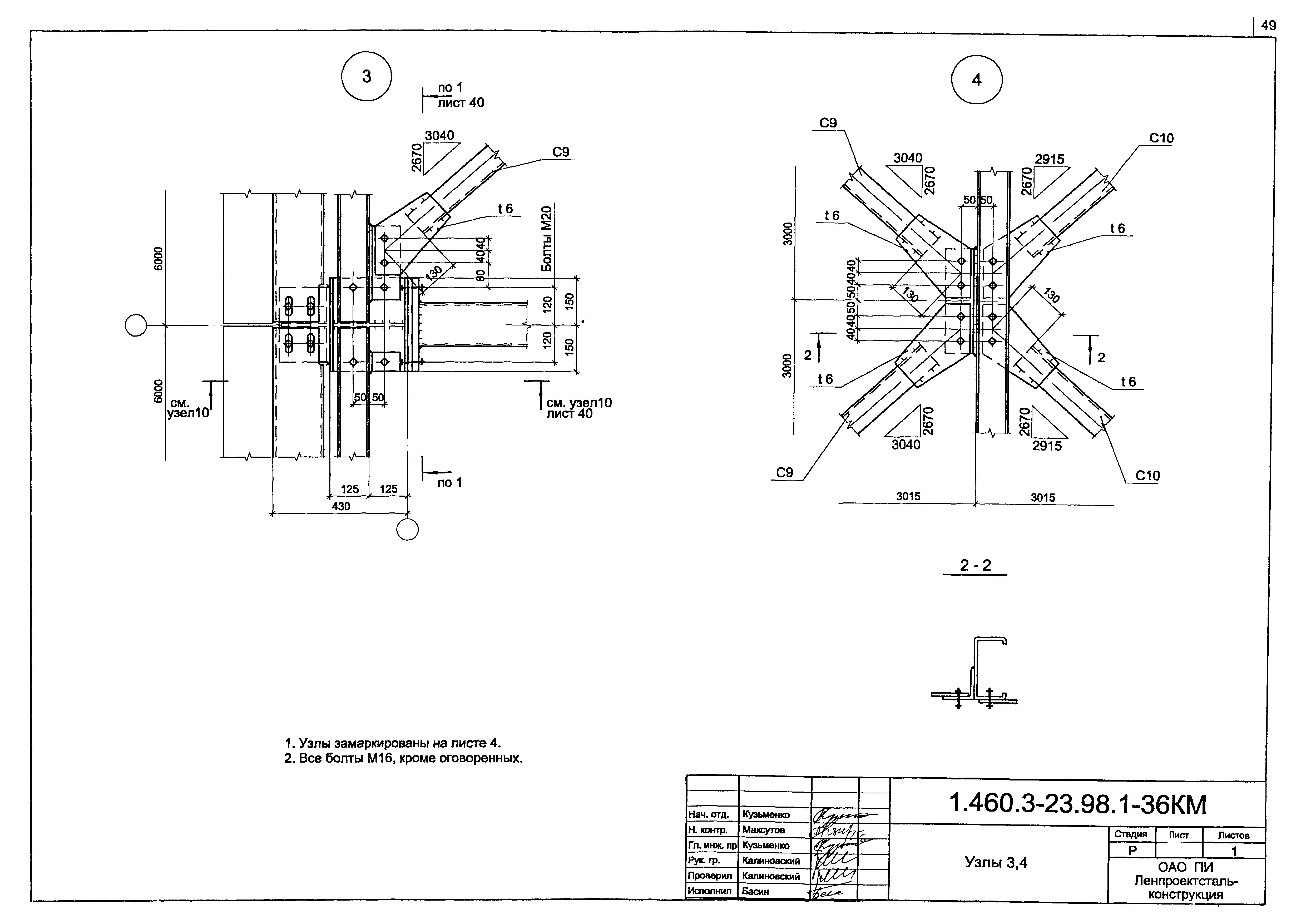
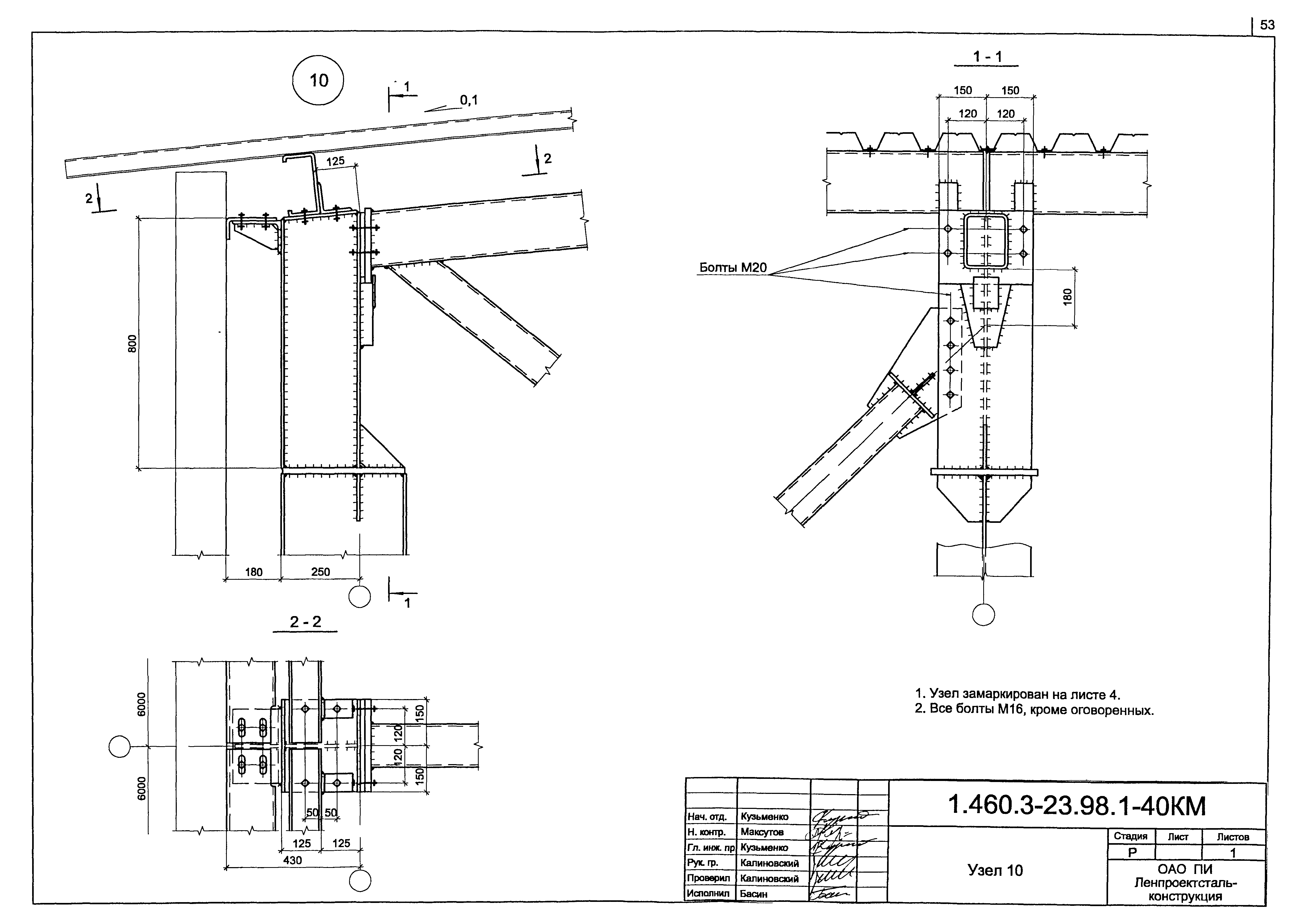
| Оглавление: | 1.460.3-23.98.1-ПЗ Пояснительная записка 1.460.3-23.98.1-1КМ Нагрузки от собственного веса кровли, снеговые нагрузки. Ветровые нагрузки на здание 1.460.3-23.98.1-2КМ Нагрузки на ферму от фонаря 1.460.3-23.98.1-3КМ Двухпролетное здание со светоаэрационным фонарем (пример компоновки) 1.460.3-23.98.1-4КМ План по верхним поясам ферм (однопролетное здание) 1.460.3-23.98.1-5КМ План по нижним поясам ферм (однопролетное здание) 1.460.3-23.98.1-6КМ План раскладки кровельных панелей (пример для однопролетного здания) 1.460.3-23.98.1-7КМ План по верхним поясам ферм (пример для многопролетного здания с панельной кровлей) 1.460.3-23.98.1-8КМ План по верхним поясам ферм (многопролетное здание) 1.460.3-23.98.1-9КМ План по нижним поясам ферм (многопролетное здание) 1.460.3-23.98.1-10КМ План раскладки кровельных панелей (пример для многопролетного здания) 1.460.3-23.98.1-11КМ Разрез 4-4...10-10 1.460.3-23.98.1-12КМ Схемы торцевых фахверков 1.460.3-23.98.1-13КМ Схемы расположения путей подвесного транспорта в зданиях пролетом 18,0 и 24,0 м 1.460.3-23.98.1-14КМ Схемы расположения путей подвесного транспорта в зданиях пролетом 30,0 м 1.460.3-23.98.1-15КМ Таблицы нагрузок от подвесного транспорта и выбора сечений путей 1.460.3-23.98.1-16КМ Пример расположения в плане путей подвесного транспорта 1.460.3-23.98.1-17КМ Разрез 1-1...7-7 1.460.3-23.98.1-18КМ Сортамент стропильных ферм пролетом 18,0 м 1.460.3-23.98.1-19КМ Сортамент стропильных ферм пролетом 24,0 м 1.460.3-23.98.1-20КМ Сортамент стропильных ферм пролетом 30,0 м 1.460.3-23.98.1-21КМ Сортамент подстропильных ферм 1.460.3-23.98.1-22КМ Сортамент прогонов и балок. Графики несущей способности прогонов 1.460.3-23.98.1-23КМ Сортамент связей, деталей крепления и дополнительных стоек 1.460.3-23.98.1-24КМ Стропильная ферма L=18,0 м 1.460.3-23.98.1-25КМ Стропильная ферма L=24,0 м 1.460.3-23.98.1-26КМ Стропильная ферма L=30,0 м 1.460.3-23.98.1-27КМ Подстропильная ферма 1.460.3-23.98.1-28КМ Прогон П1...П4 1.460.3-23.98.1-29КМ Опорная конструкция РВ крышных вентиляторов или дефлекторов (пример выполнения) 1.460.3-23.98.1-30КМ Балка: покрытия Б1, Б2 1.460.3-23.98.1-31КМ Балка покрытия Б3. Балка для подвесных путей Б4 1.460.3-23.98.1-32КМ Деталь крепления Д1...Д4 1.460.3-23.98.1-33КМ Деталь крепления Д5...Д7 1.460.3-23.98.1-34КМ Узел 1 1.460.3-23.98.1-35КМ Узел 2 1.460.3-23.98.1-36КМ Узел 3,4 1.460.3-23.98.1-37КМ Узел 5,6 1.460.3-23.98.1-38КМ Узел 7,8 1.460.3-23.98.1-39КМ Узел 9 1.460.3-23.98.1-40КМ Узел 10 1.460.3-23.98.1-41КМ Узел 11 1.460.3-23.98.1-42КМ Узел 12 (пример выполнения внутреннего водостока для панельной кровли) 1.460.3-23.98.1-43КМ Узел 13 1.460.3-23.98.1-44КМ Узел 14 1.460.3-23.98.1-45КМ Узел 15 1.460.3-23.98.1-46КМ Узел 16 1.460.3-23.98.1-47КМ Узел 17 1.460.3-23.98.1-48КМ Узел 18 1.460.3-23.98.1-49КМ Узел 19,20 1.460.3-23.98.1-50КМ Узел 21 1.460.3-23.98.1-51КМ Узел 22,23 1.460.3-23.98.1-52КМ Узел 24 1.460.3-23.98.1-53КМ Узел 25 (начало) 1.460.3-23.98.1-54КМ Узел 25 (окончание) 1.460.3-23.98.1-55КМ Фрагмент плана настила с расположением креплений 1.460.3-23.98.1-56КМ Спецификация стали ферм L=18,0м, L=24,0м 1.460.3-23.98.1-57КМ Спецификация стали ферм L=30,0 и подстропильной фермы 1.460.3-23.98.1-58КМ Спецификация стали балок кровли, прогонов, связей, деталей крепления и дополнительных стоек 1.460.3-23.98.1-59КМ Расход крепежных деталей на 1000²м покрытия 1.460.3-23.98.1-60КМ Таблица усилий от единичных нагрузок в ферме L=18,0 м 1.460.3-23.98.1-61КМ Таблица усилий от единичных нагрузок в ферме L=24,0 м 1.460.3-23.98.1-62КМ Таблица усилий от единичных нагрузок в ферме L=30,0 м 1.460.3-23.98.1-63КМ Таблицы прогибов ферм от единичных нагрузок 1.460.3-23.98.1-64КМ Сварные швы ферм 1.460.3-23.98.1-65КМ Расход стали на 1 кв.м покрытия |
| Разработан: | Ленпроектстальконструкция |
| Утверждён: | 01.03.2001 ОАО ПИ Ленпроектстальконструкция |
| Список изменений: |
|
| Заменяет собой: |















































































Текстовое изменение № 1 от 30.05.2001
Текстовое изменение № 2 от 01.10.2001
Текстовое изменение № 3 от 30.09.2004






