Скачать Шифр 11-2450 Стальные конструкции покрытий производственных зданий с применением широкополочных тавров, возводимых в несейсмических районах с расчетной температурой минус 40 градусов Цельсия и выше. Чертежи КМДата актуализации: 01.01.2021 Шифр 11-2450
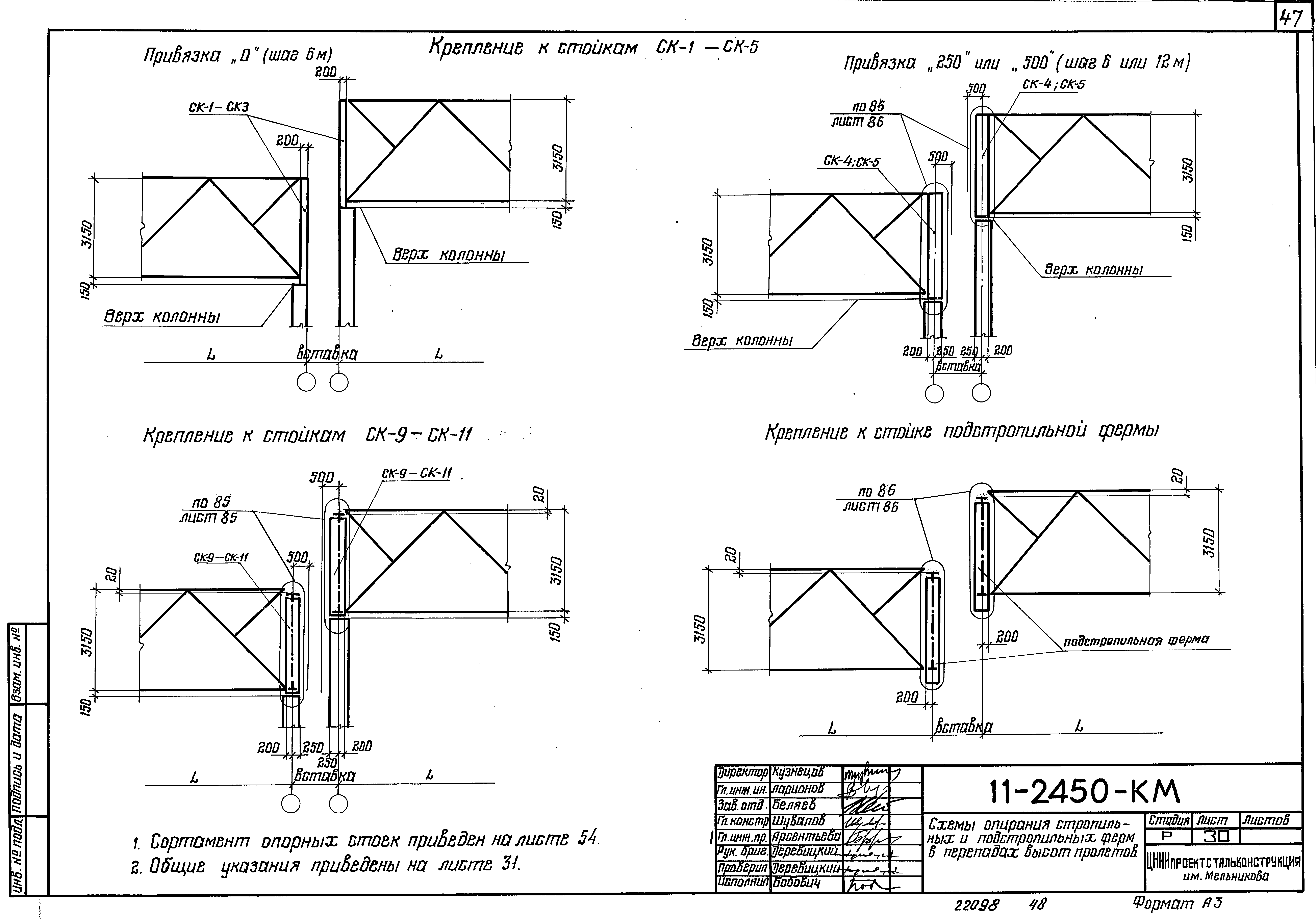
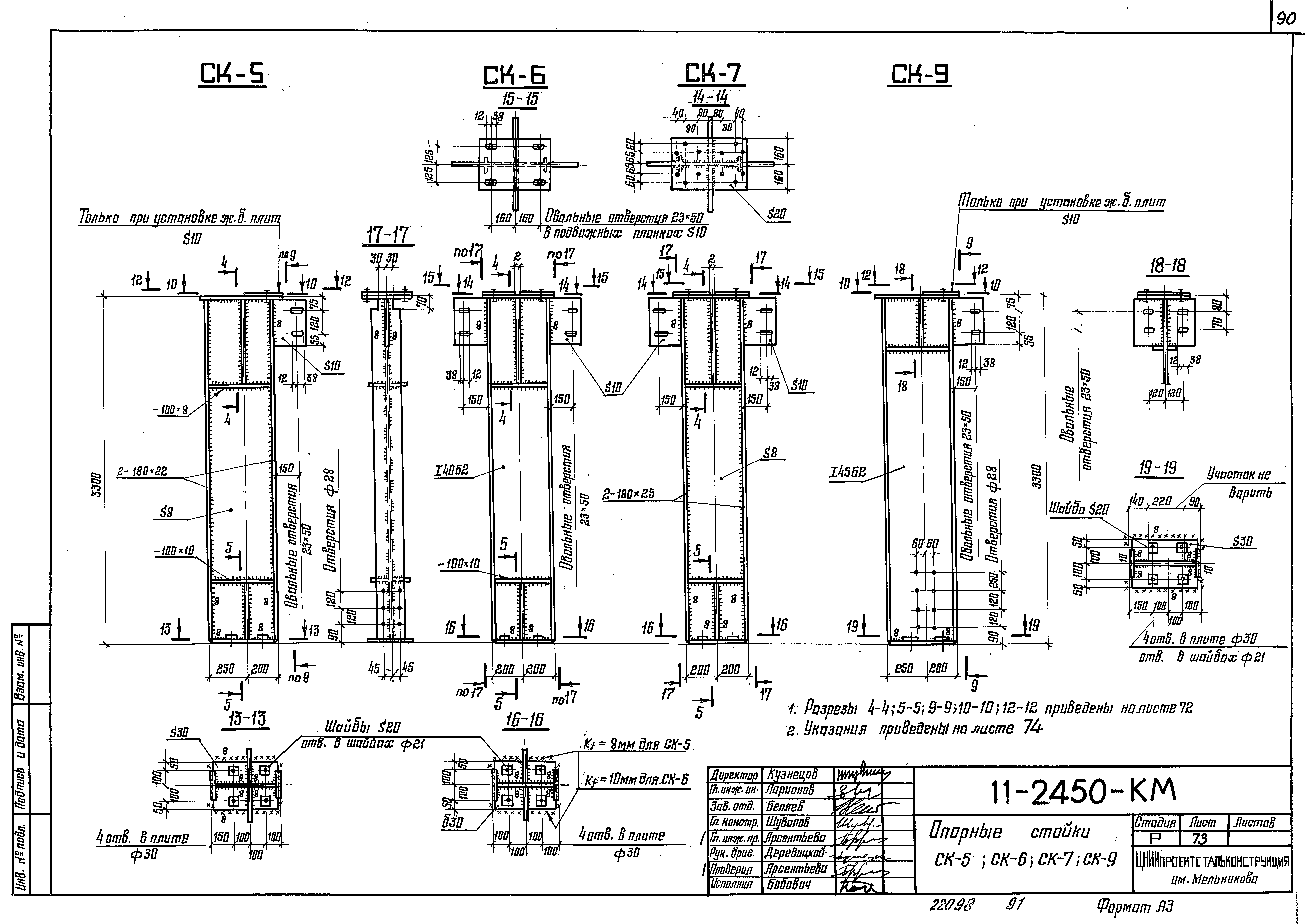
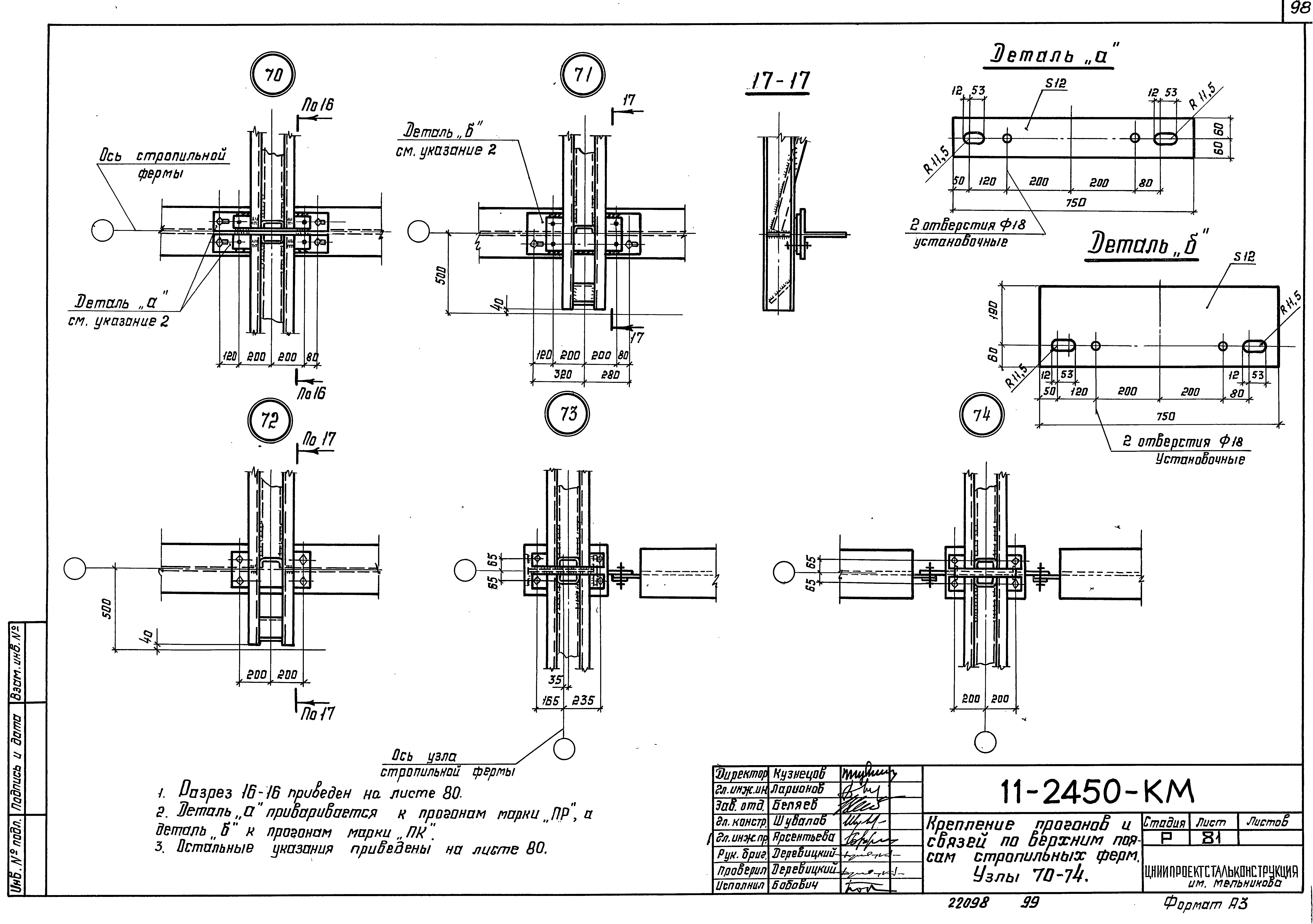
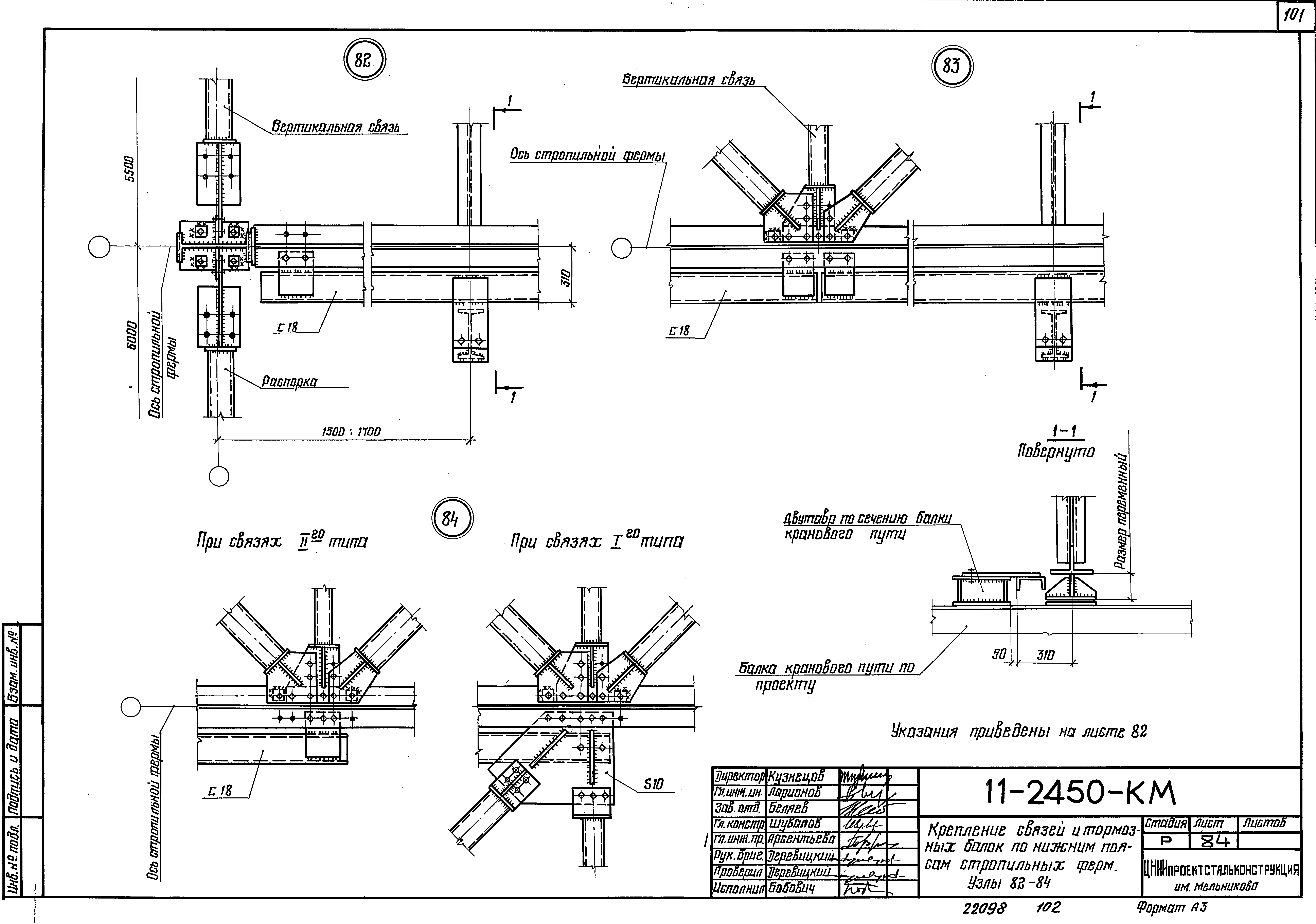
Стальные конструкции покрытий производственных зданий с применением широкополочных тавров, возводимых в несейсмических районах с расчетной температурой минус 40 градусов Цельсия и выше. Чертежи КМ| Обозначение: | Шифр 11-2450 | | Обозначение англ: | 11-2450 | | Статус: | действует | | Название рус.: | Стальные конструкции покрытий производственных зданий с применением широкополочных тавров, возводимых в несейсмических районах с расчетной температурой минус 40 градусов Цельсия и выше. Чертежи КМ | | Дата добавления в базу: | 01.09.2013 | | Дата актуализации: | 01.01.2021 | | Дата введения: | 25.03.1987 | | Область применения: | Настоящий шифр содержит чертежи КМ стальных конструкций покрытий одноэтажных производственных зданий промышленных предприятий с рулонной и мостичной кровлями уклоном 1,5 % по железобетонным плитам и стальному профилированному настилу и стропильными фермами с поясами из широкополочных тавров и решеткой из парных уголков | | Разработан: | ЦНИИпроектстальконструкция Госстроя
| | Утверждён: | 25.03.1987 Госстрой СССР (Государственный комитет Совета Министров СССР по делам строительства) (USSR Gosstroy АЧ-33)
|
                                                                                                                                       
|