Скачать Серия 1.269.9-3 Выпуск 8. Связи для покрытий по рамным конструкциям асимметричного очертания пролетом 24 м с шагом 3 м. Рабочие чертежи

Дата актуализации: 01.01.2021

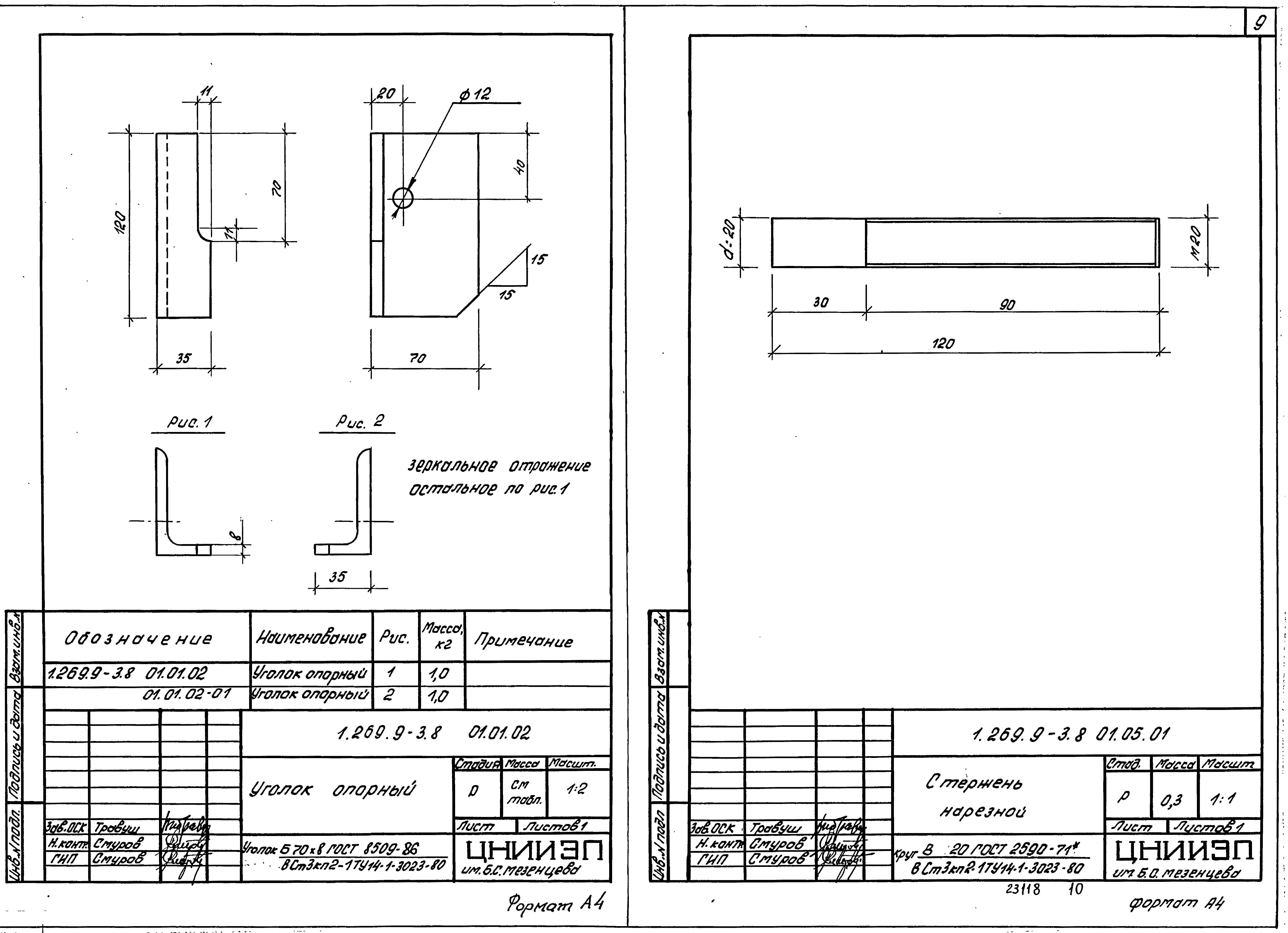
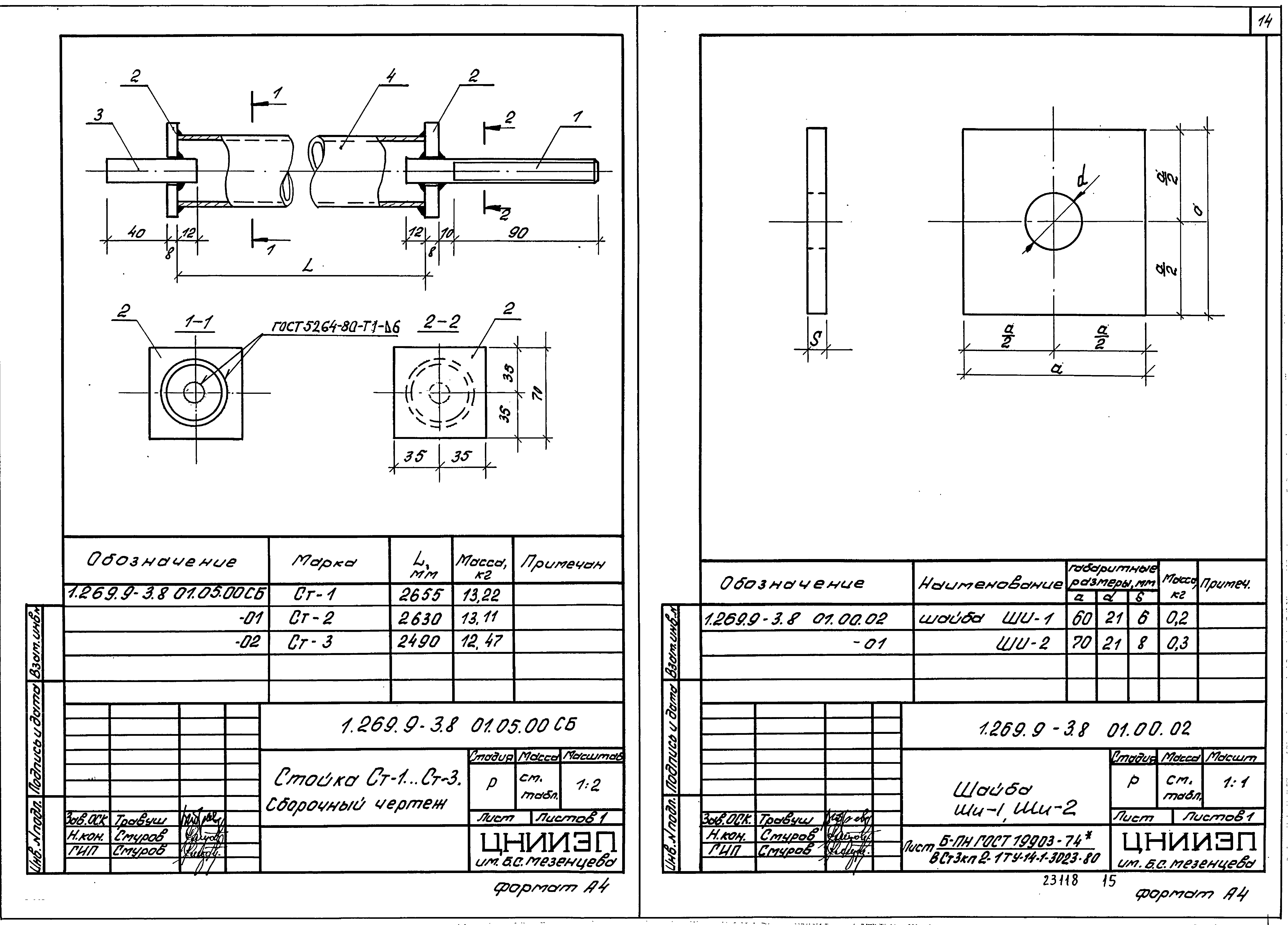
Серия 1.269.9-3

Выпуск 8. Связи для покрытий по рамным конструкциям асимметричного очертания пролетом 24 м с шагом 3 м. Рабочие чертежи

Обозначение: Серия 1.269.9-3
Обозначение англ: Series 1.269.9-3
Статус:не определен законодательством
Название рус.:Выпуск 8. Связи для покрытий по рамным конструкциям асимметричного очертания пролетом 24 м с шагом 3 м. Рабочие чертежи
Дата добавления в базу:01.09.2013
Дата актуализации:01.01.2021
Дата введения:15.05.1988
Дата окончания срока действия:30.06.2003
Разработан: ЦНИИЭП им. Б.С. Мезенцева Госгражданстроя
Утверждён:05.05.1988 Госстрой СССР (Государственный комитет Совета Министров СССР по делам строительства) (USSR Gosstroy 121)
Серия 1.269.9-3Серия 1.269.9-3Серия 1.269.9-3Серия 1.269.9-3Серия 1.269.9-3Серия 1.269.9-3Серия 1.269.9-3Серия 1.269.9-3Серия 1.269.9-3Серия 1.269.9-3Серия 1.269.9-3Серия 1.269.9-3Серия 1.269.9-3Серия 1.269.9-3Серия 1.269.9-3Серия 1.269.9-3Серия 1.269.9-3Серия 1.269.9-3Серия 1.269.9-3Серия 1.269.9-3Серия 1.269.9-3