Скачать Серия 1.822.1-6 Выпуск 1. Рамы пролетом 12, 18 и 21 м с высотой стойки 3,6 м. Указания по проектированию и рабочие чертежиДата актуализации: 01.01.2021
|
| Обозначение: | Серия 1.822.1-6 |
| Обозначение англ: | Series 1.822.1-6 |
| Статус: | не определен законодательством |
| Название рус.: | Выпуск 1. Рамы пролетом 12, 18 и 21 м с высотой стойки 3,6 м. Указания по проектированию и рабочие чертежи |
| Дата добавления в базу: | 01.09.2013 |
| Дата актуализации: | 01.01.2021 |
| Дата введения: | 01.04.1990 |
| Дата окончания срока действия: | 30.06.2003 |
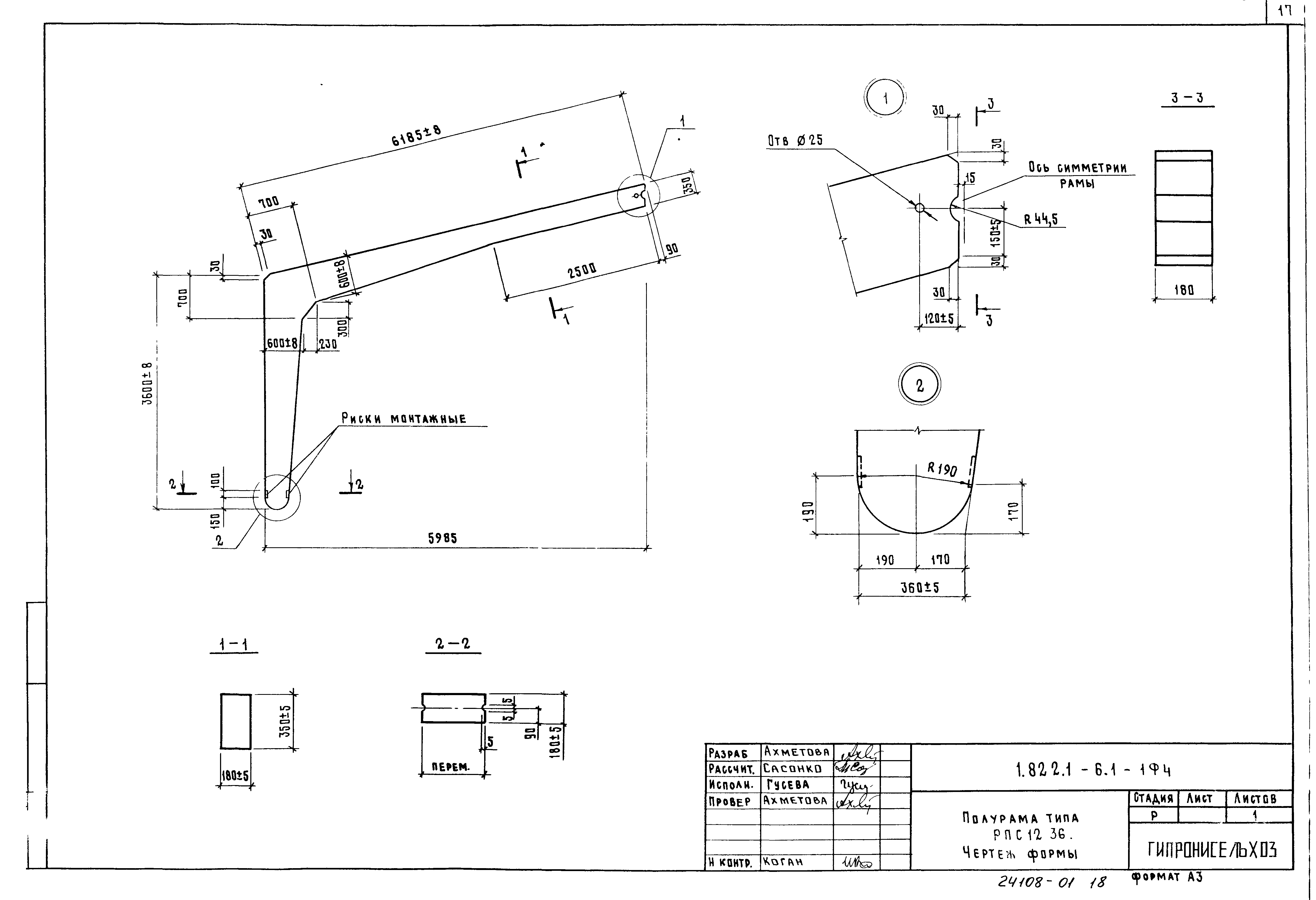
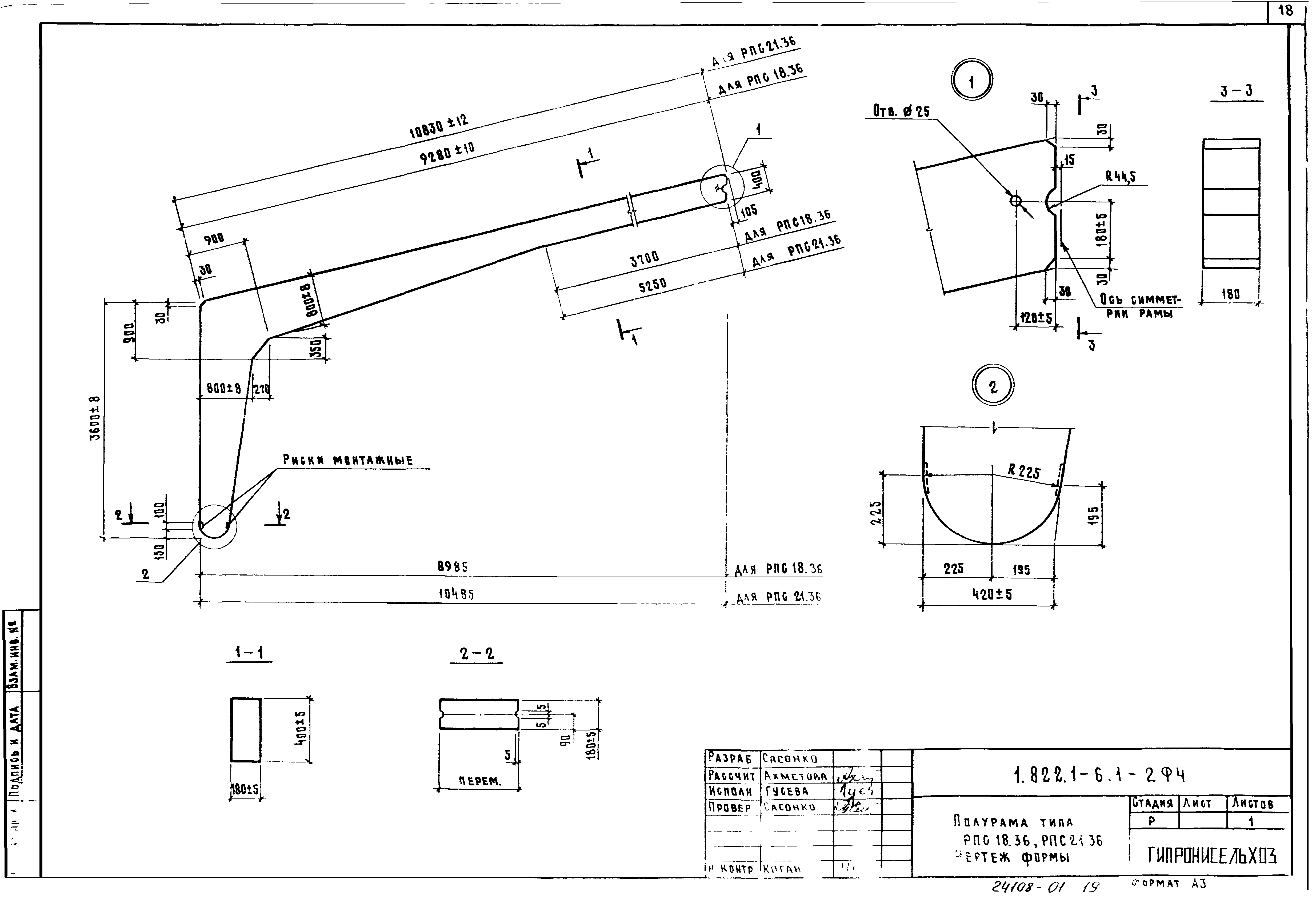
| Оглавление: | 1.822.1-6.1-ПЗ Пояснительная записка 1.822.1-6.1-ТУ Технические условия 1.822.1-6.1-НИ Номенклатура рам 1.822.1-6.1-СМ1 Схемы контрольных испытаний рам 1.822.1-6.1-СМ2 Схемы расположения элементов рамы 1.822.1-6.1-СМ3 Положения закладных изделий для крепления элементов покрытия и стенового ограждения 1.822.1-6.1-СМ4 Положения закладных изделий для крепления горизонтальных и вертикальных связей 1.822.1-6.1-СМ5 Схема расположения связей для зданий с прогонами. Пример 1.822.1-6.1-1ФЧ Полурама типа РПС12.36. Чертеж формы 1.822.1-6.1-2ФЧ Полурама типа РПС18.36,РПС21.36. Чертеж формы 1.822.1-6.1-1 Полурама типа РПС12.36 1.822.1-6.1-2 Полурама типа РПС18.36 1.822.1-6.1-3 Полурама типа РПС21.36 1.822.1-6.1-РС Ведомость расхода стали на полураму |
| Разработан: | НИИЖБ ЦНИИЭПсельстрой ГипроНИсельхоз (Институт Гипронисельхоз ) |
| Утверждён: | 06.05.1989 Госстрой СССР (Государственный комитет Совета Министров СССР по делам строительства) (USSR Gosstroy 4/5-670) |
| Издан: | ЦИТП Госстроя СССР (CITP, Gosstroy (USSR) 1990 г. ) |
| Заменяет собой: |
























