Скачать РМ-2604-05 Теплозащитные окна и балконные двери из профилей ПВХ с эффективными стеклопакетами по технологии фирмы КБЕ Кунстштоффпродукцион ГмбХ (для применения в строительстве в городе Москве). Узлы установки в трехслойные панели жилых домов серии П44Дата актуализации: 01.01.2021
|
| Обозначение: | РМ-2604-05 |
| Обозначение англ: | РМ-2604-05 |
| Статус: | не определен законодательством |
| Название рус.: | Теплозащитные окна и балконные двери из профилей ПВХ с эффективными стеклопакетами по технологии фирмы КБЕ "Кунстштоффпродукцион" ГмбХ (для применения в строительстве в городе Москве). Узлы установки в трехслойные панели жилых домов серии П44 |
| Дата добавления в базу: | 01.09.2013 |
| Дата актуализации: | 01.01.2021 |
| Дата введения: | 27.08.1998 |
| Дата окончания срока действия: | 30.06.2003 |
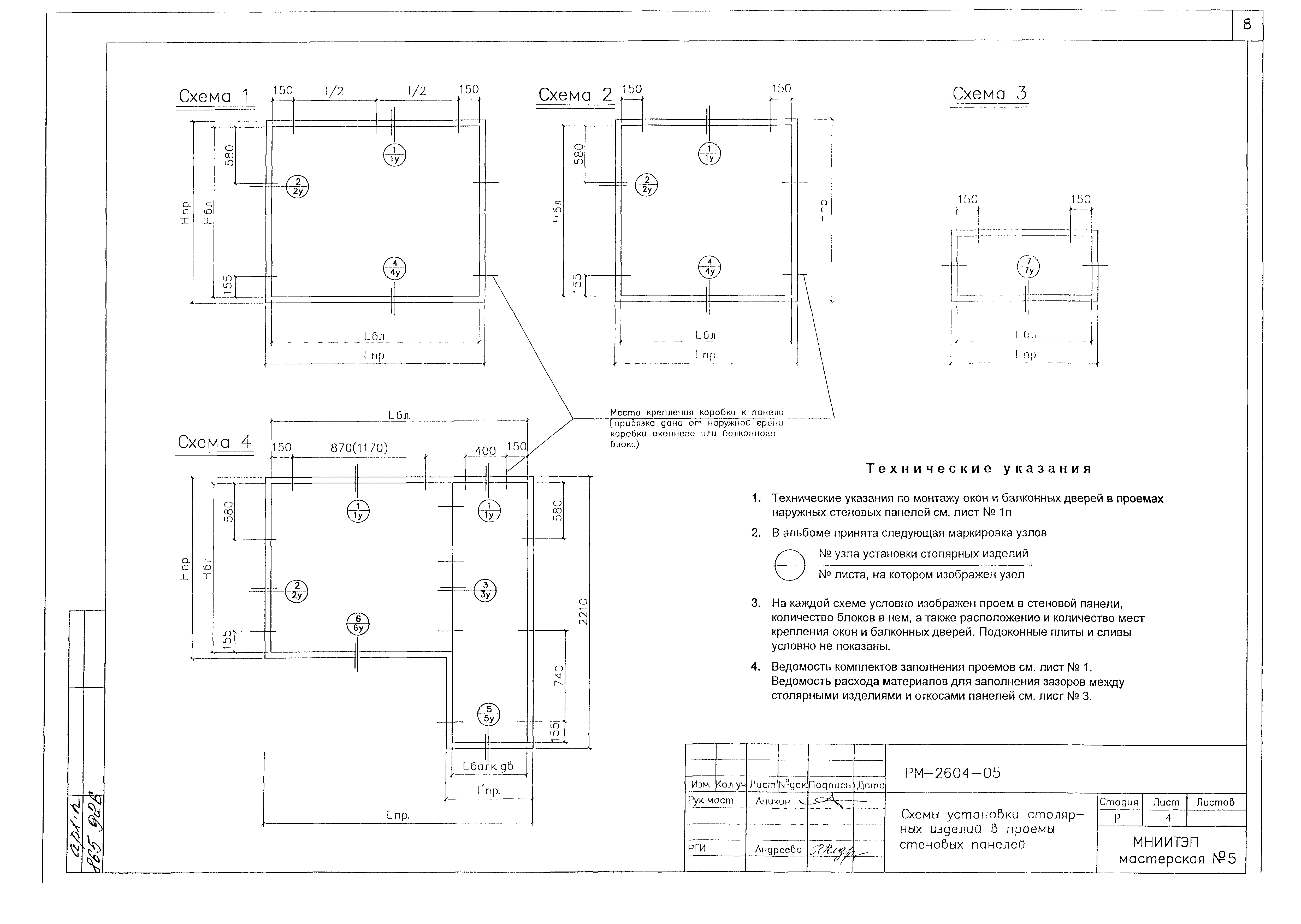
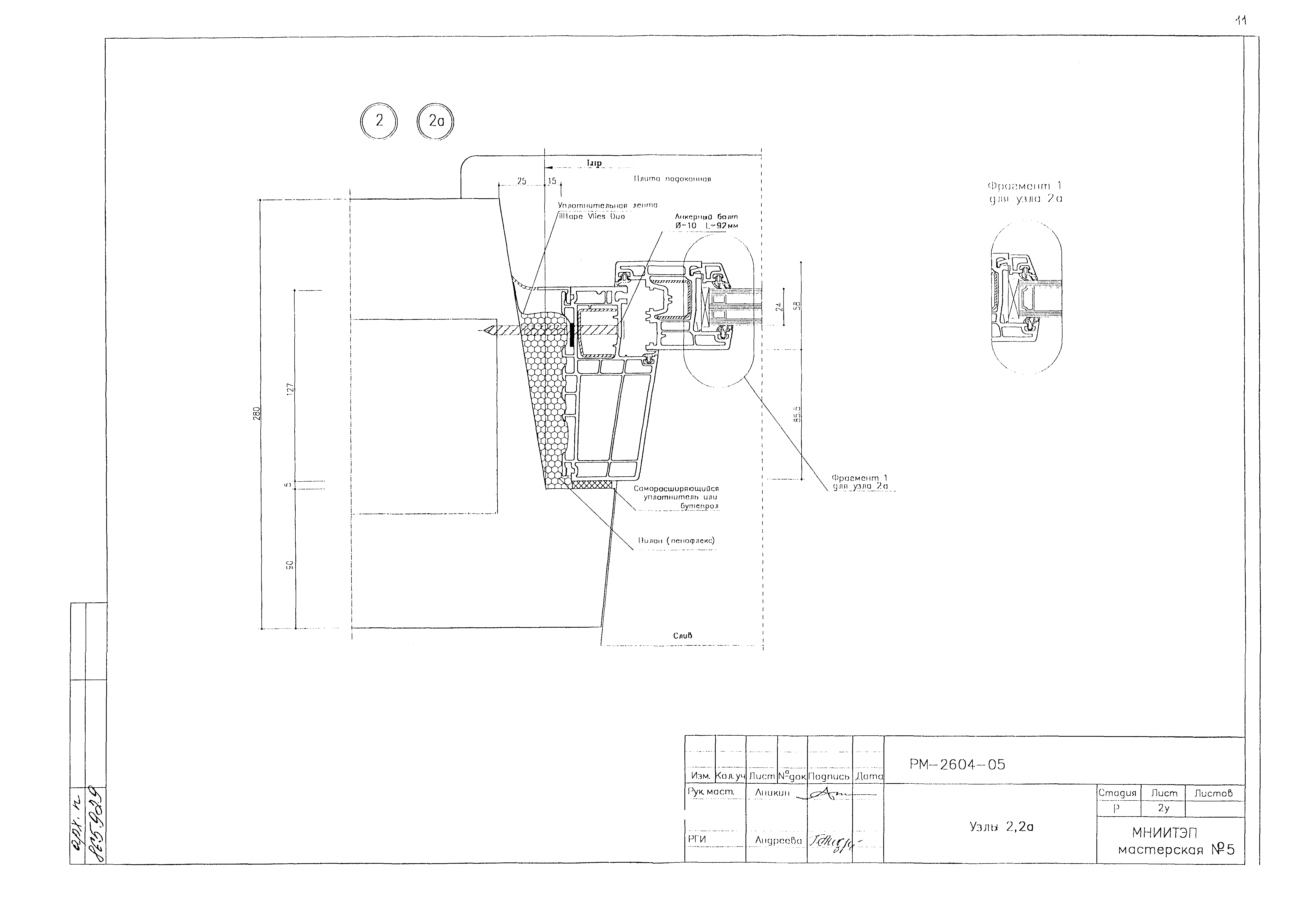
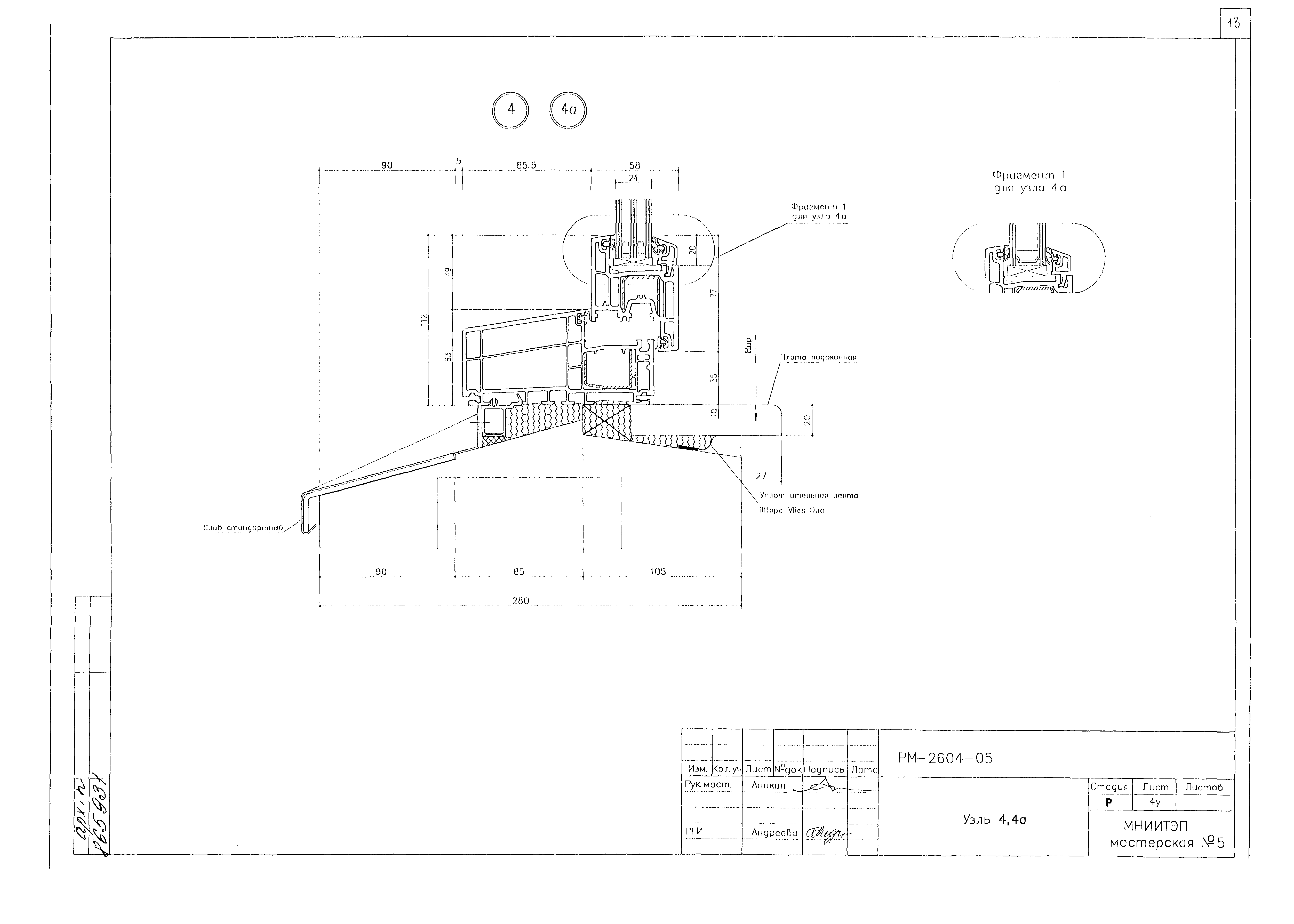
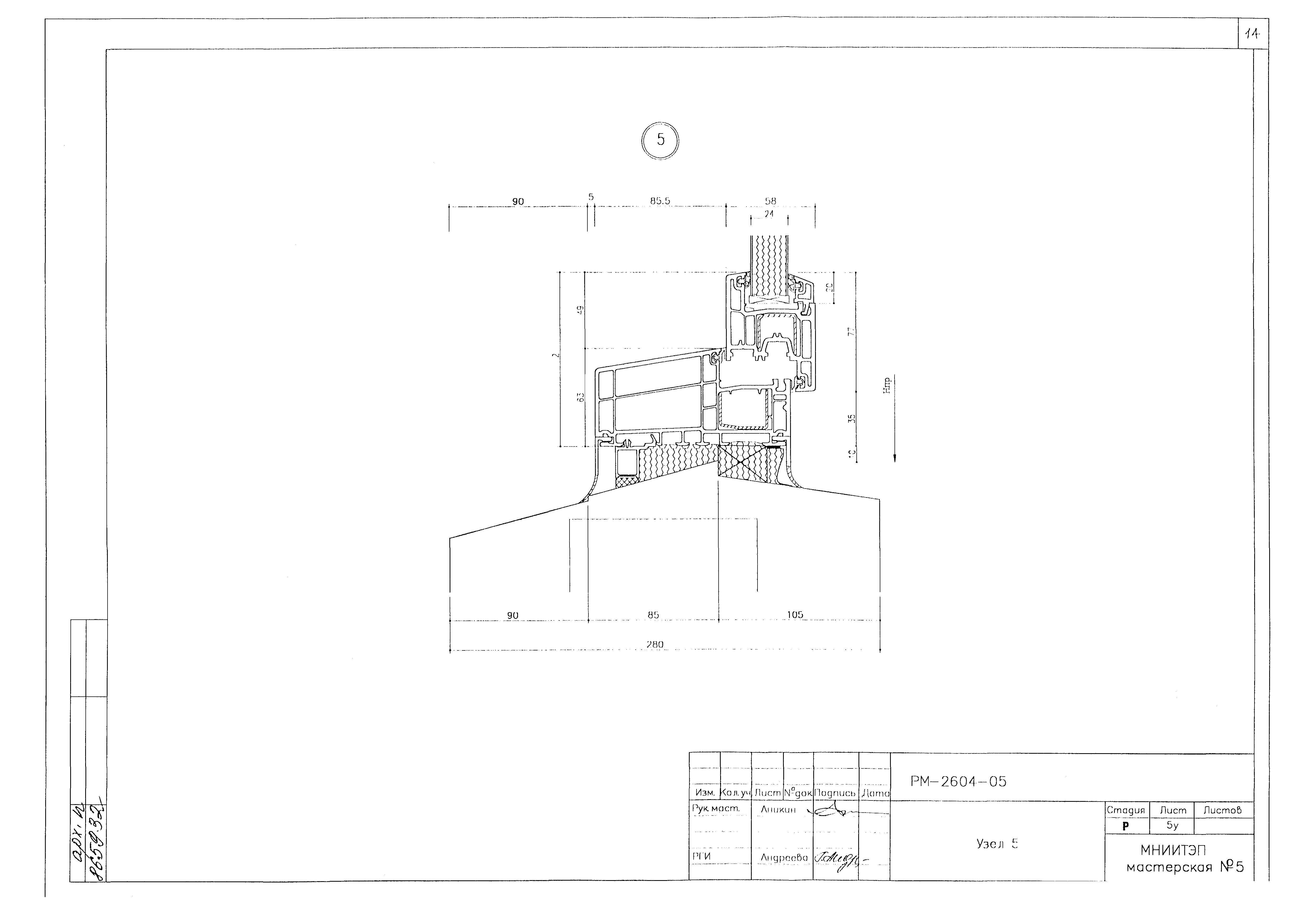
| Оглавление: | РМ-2604-05-1с Ведомость состава альбома. Общие положения. РМ-2604-05-1п Технические указания по монтажу окон. РМ-2604-05-1 Ведомость комплектов заполнения проемов. Типы проемов. РМ-2604-05-2 Таблица габаритных размеров столярных изделий, проемов в наружных стеновых панелях и зазоров. РМ-2604-05-3 Ведомость расхода материалов на один комплект. РМ-2604-05-4 Схемы установки столярных изделий в проемы стеновых панелей. РМ-2604-05-5 Номенклатура комплектов заполнения оконных проемов. РМ-2604-05-1у Узлы 1, 1а. РМ-2604-05-2у Узлы 2, 2а. РМ-2604-05-3у Узлы 3, 3а. РМ-2604-05-4у Узлы 4, 4а. РМ-2604-05-5у Узел 5. РМ-2604-05-6у Узлы 6, 6а. РМ-2604-05-7у Узлы 7, 7а. |
| Разработан: | МНИИТЭП |
| Утверждён: | 27.08.1998 МНИИТЭП (MNIITEP 22-ТО) |
| Принят: | КБЕ Кунстштоффпродукцион ГмбХ |















