Скачать Серия 1.222.3-2 Выпуск 1. Рамы пролетом 14,4; 18,0; 19,2 и 24,0 м. Чертежи КМДата актуализации: 01.01.2021
|
| Обозначение: | Серия 1.222.3-2 |
| Обозначение англ: | Series 1.222.3-2 |
| Статус: | не определен законодательством |
| Название рус.: | Выпуск 1. Рамы пролетом 14,4; 18,0; 19,2 и 24,0 м. Чертежи КМ |
| Дата добавления в базу: | 01.09.2013 |
| Дата актуализации: | 01.01.2021 |
| Дата введения: | 01.02.1990 |
| Дата окончания срока действия: | 30.06.2003 |
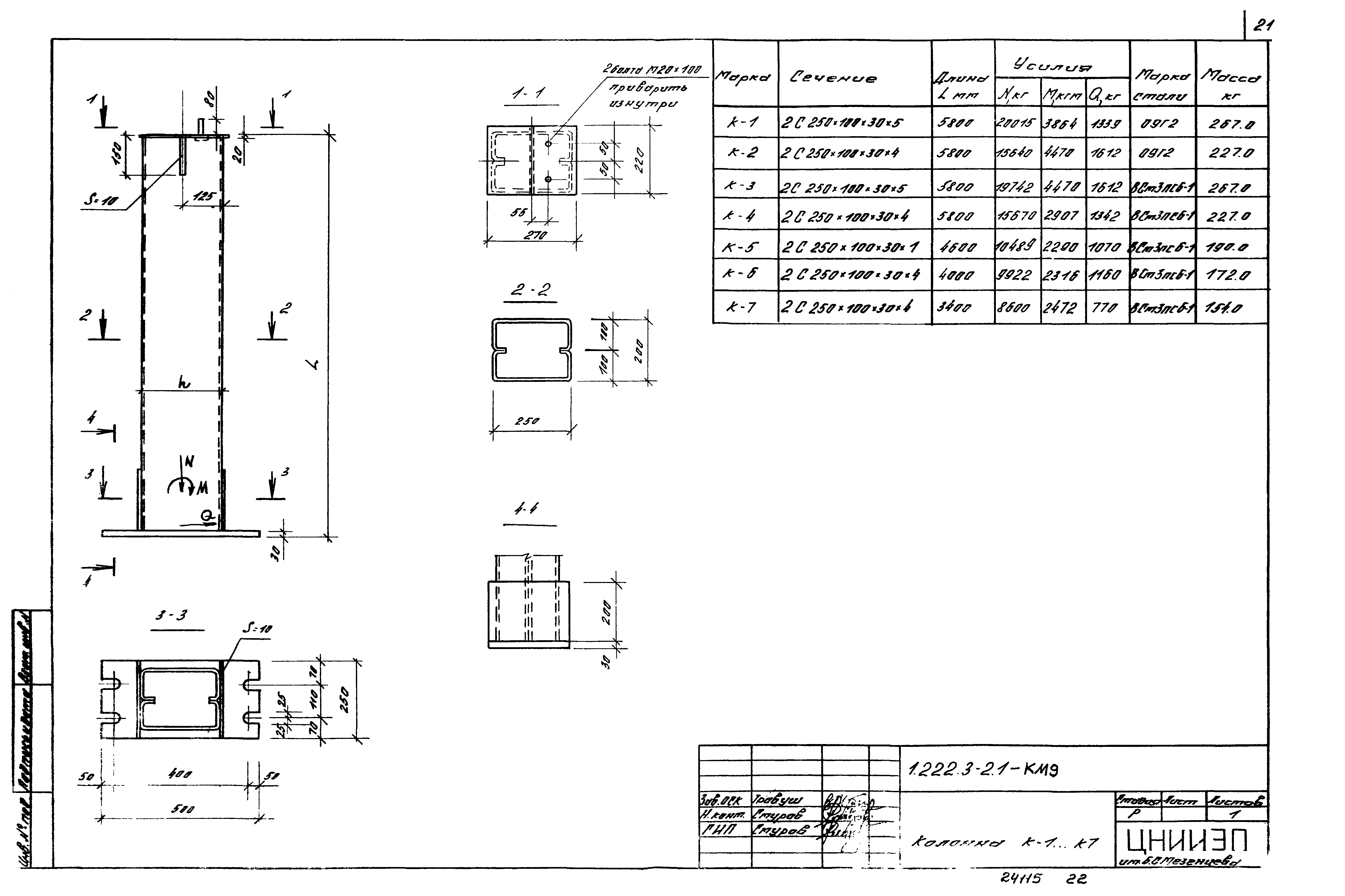
| Оглавление: | 1.222.3-2.1-ТО Техническое описание 1.222.3-2.1-НИ Номенклатура рам 1.222.3-2.1-КМ1 Нагрузки на фундаменты 1.222.3-2.1-КМ2 Ферма Ф-1,Ф-1а,Ф-2,Ф-2а 1.222.3-2.1-КМ3 Ферма Ф-3,Ф-3а,Ф-4,Ф-4а 1.222.3-2.1-КМ4 Ферма Ф-5,Ф-5а,Ф-6,Ф-6а 1.222.3-2.1-КМ5 Ферма Ф-7,Ф-7а,Ф-8,Ф-8а 1.222.3-2.1-КМ6 Ферма Ф-9,Ф-9а,Ф-10,Ф-10а 1.222.3-2.1-КМ7 Ферма Ф-11,Ф-11а,Ф-12,Ф-12а 1.222.3-2.1-КМ8 Ферма Ф-13,Ф-13а,Ф-14,Ф-14а 1.222.3-2.1-КМ9 Колонна К-1...К-7 1.222.3-2.1-КМ10 Колонна К-8-К-15 1.222.3-2.1-КМ11 Балка шпренгельная БШ-1 1.222.3-2.1-КМ12 Балка шпренгельная БШ-2,БШ-2а 1.222.3-2.1-КМ13 Балка шпренгельная БШ-3 1.222.3-2.1-КМ14 Узел 1 1.222.3-2.1-КМ15 Узел 2,3 1.222.3-2.1-КМ16 Узел 4,5 1.222.3-2.1-КМ17 Узел 6,7 1.222.3-2.1-КМ18 Узел 8 1.222.3-2.1-КМ19 Узел 9 1.222.3-2.1-КМ20 Узел 10,11 1.222.3-2.1-КМ21 Узел 12 1.222.3-2.1-КМ22 Узел 13,14 1.222.3-2.1-КМ23 Узел 15...18 1.222.3-2.1-КМ24 Возможные стыки затяжек 1.222.3-2.1-КМ25 Монтажный узел 1...3 1.222.3-2.1-КМ26 Монтажный узел 4...6 1.222.3-2.1-КМ27 Ведомость расхода стали на элемент |
| Разработан: | ЦНИИЭП им. Б.С. Мезенцева Госгражданстроя |
| Утверждён: | 25.10.1989 Государственный комитет по архитектуре и градостроительству (ПЗ-2-1780) |
| Издан: | ЦИТП Госстроя СССР (CITP, Gosstroy (USSR) 1990 г. ) |










































