Скачать Серия 1.420.3-36.03 Выпуск 0-2. Каркасы с одно- и двухпролетными рамами пролетами 12 и 18 м для бескрановых зданий и зданий с подвесными кранами грузоподъемностью до 5 т и с мостовыми опорными кранами грузоподъемностью до 16 т. Материалы для проектированияДата актуализации: 01.01.2021
|
| Обозначение: | Серия 1.420.3-36.03 |
| Обозначение англ: | Series 1.420.3-36.03 |
| Статус: | не определен законодательством |
| Название рус.: | Выпуск 0-2. Каркасы с одно- и двухпролетными рамами пролетами 12 и 18 м для бескрановых зданий и зданий с подвесными кранами грузоподъемностью до 5 т и с мостовыми опорными кранами грузоподъемностью до 16 т. Материалы для проектирования |
| Дата добавления в базу: | 01.09.2013 |
| Дата актуализации: | 01.01.2021 |
| Дата введения: | 01.07.2003 |
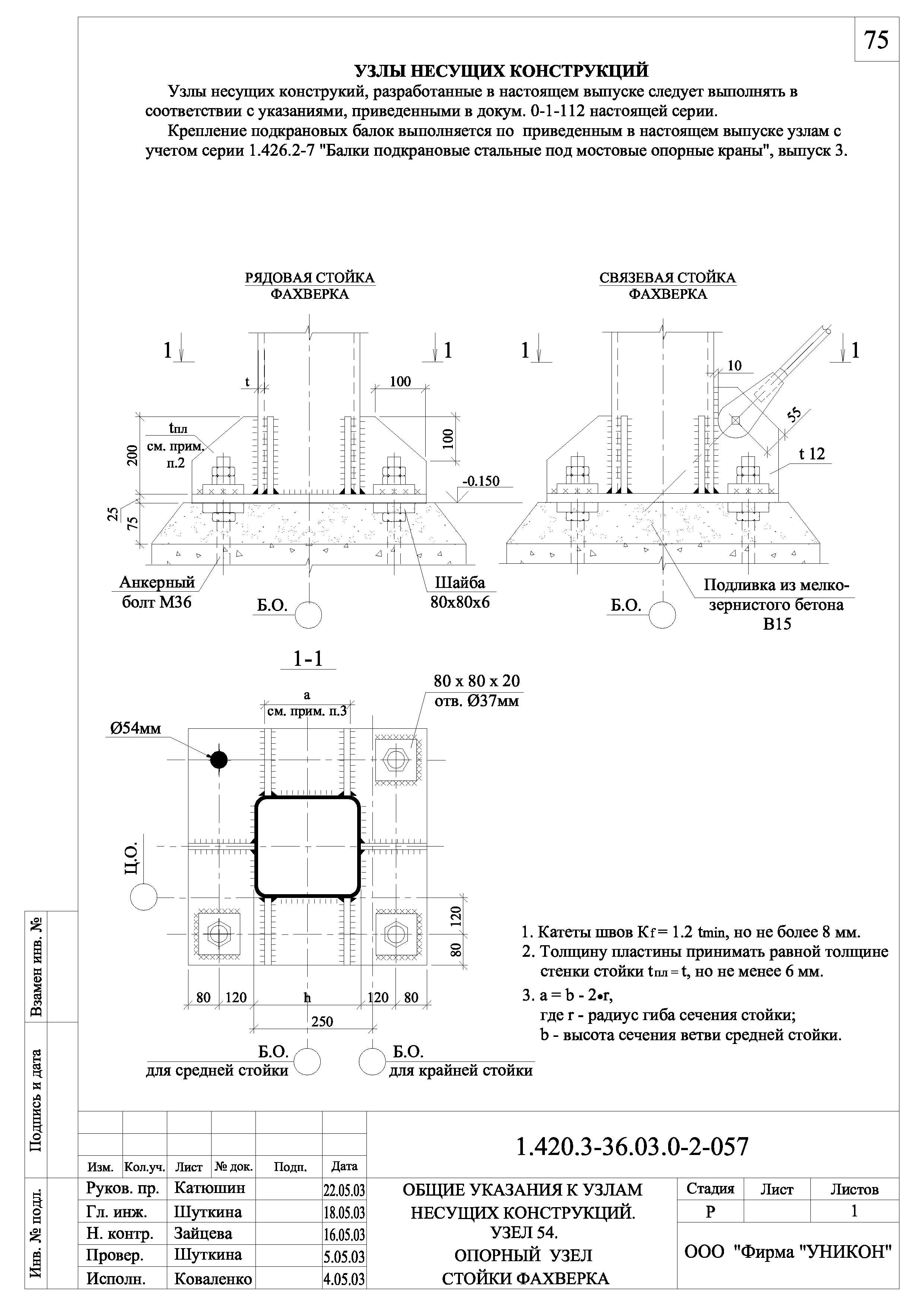
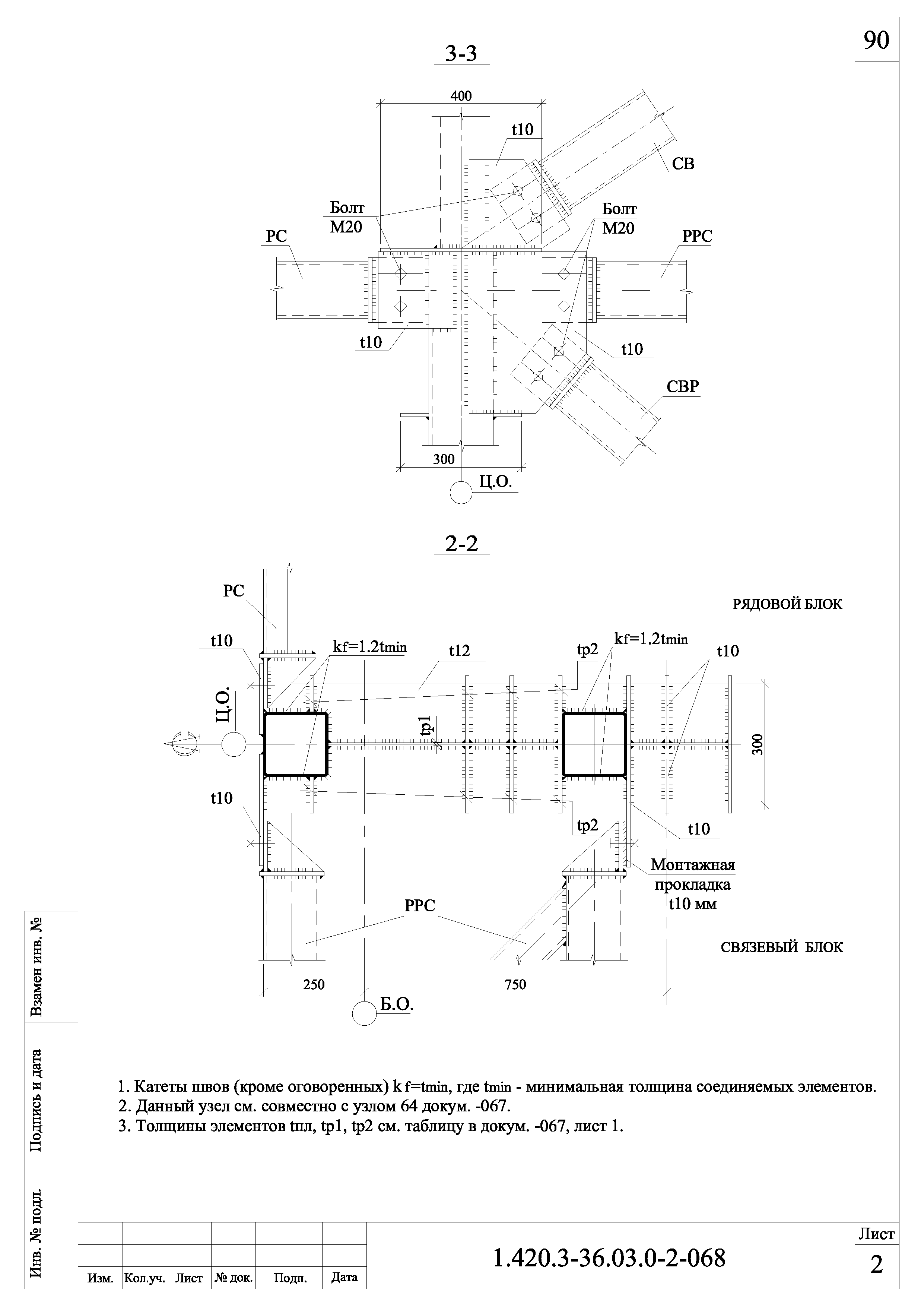
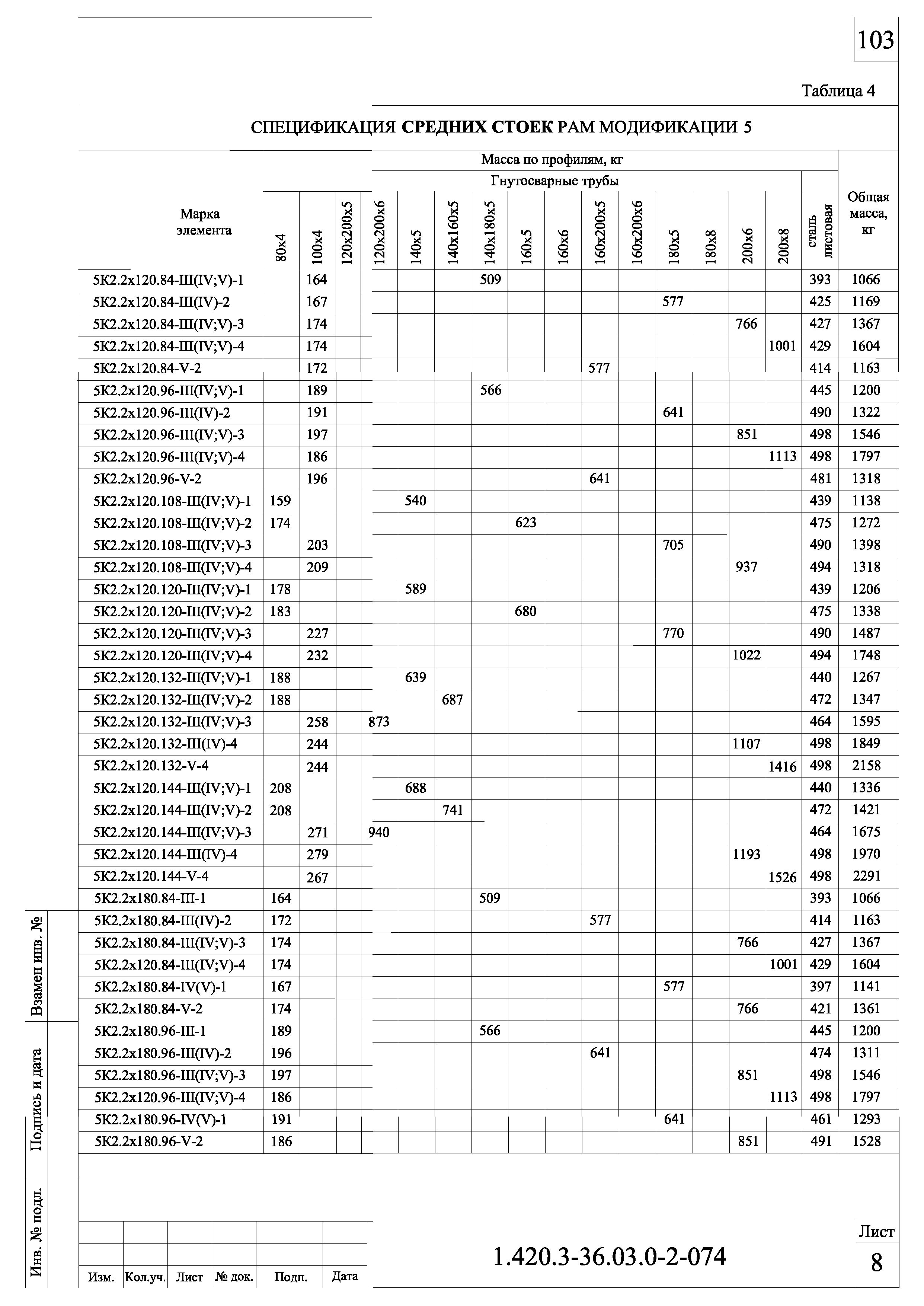
| Оглавление: | 1.420.3-36.03.0-2-ПЗ Пояснительная записка 1.420.3-36.03.0-2-001 Габаритные схемы. Рамы трубчатые однопролетные. Модификация 4. Пролеты 12 и 18 м 1.420.3-36.03.0-2-002 Габаритные схемы. Рамы трубчатые однопролетные. Модификация 5. Пролеты 12 и 18 м 1.420.3-36.03.0-2-003 Габаритные схемы. Рамы трубчатые двухпролетные. Модификация 4. Пролеты 2x12 и 2x18 м (Н£9.6 м) 1.420.3-36.03.0-2-004 Габаритные схемы. Рамы трубчатые двухпролетные. Модификация 4. Пролеты 2x12 и 2x18 м (Н>9.6 м) 1.420.3-36.03.0-2-005 Габаритные схемы. Рамы трубчатые двухпролетные. Модификация 5. Пролеты 2x12 и 2x18 м 1.420.3-36.03.0-2-006 Общие положения определения нагрузок на фундаменты 1.420.3-36.03.0-2-007 Вертикальные нагрузки на фундаменты стоек рам 1.420.3-36.03.0-2-008 Нагрузки на фундаменты стоек рам от действия ветра 1.420.3-36.03.0-2-009 Нагрузки на фундаменты стоек однопролетных рам от действия подвесных кранов 1.420.3-36.03.0-2-010 Нагрузки на фундаменты стоек двухпролетных рам от действия подвесных кранов 1.420.3-36.03.0-2-011 Нагрузки на фундаменты стоек однопролетных рам от действия мостовых кранов 1.420.3-36.03.0-2-012 Нагрузки на фундаменты стоек двухпролетных рам от действия мостовых кранов 1.420.3-36.03.0-2-013 Связевые блоки. Общие указания 1.420.3-36.03.0-2-014 Схемы расположения блоков горизонтальных и вертикальных связей для зданий с мостовыми кранами 1.420.3-36.03.0-2-015 Схемы вертикальных связей и распорок по крайним стойкам рам для однопролетных зданий без кранов и зданий с подвесными кранами 1.420.3-36.03.0-2-016 Схемы вертикальных связей и распорок по крайним стойкам рам для двухпролетных зданий без кранов и зданий с подвесными кранами 1.420.3-36.03.0-2-017 Схемы вертикальных связей и распорок по средним стойкам рам для двухпролетных зданий без кранов и зданий с подвесными кранами 1.420.3-36.03.0-2-018 Схемы вертикальных связей и распорок по крайним стойкам рам для одно- и двухпролетных зданий с мостовыми кранами 1.420.3-36.03.0-2-019 Схемы вертикальных связей и распорок по средним стойкам рам двухпролетных здании с мостовыми кранами 1.420.3-36.03.0-2-020 Схемы расстановки распорок и горизонтальных связей в связевом блоке 1.420.3-36.03.0-2-021 Схемы расстановки распорок и горизонтальных связей в рядовом блоке 1.420.3-36.03.0-2-022 Сортамент распорок и связей 1.420.3-36.03.0-2-023 Общие указания по торцевому фахверку. Схемы размещения стоек и балок фахверка для одно- и двухпролетных зданий 1.420.3-36.03.0-2-024 Дополнительные схемы несущего и самонесущего фахверков при высоте Нсф=16...18 м 1.420.3-36.03.0-2-025 Сортамент стоек фахверка при высоте 16.0 <Нсф£18.0. Сортамент гибких вертикальных связей по фахверку 1.420.3-36.03.0-2-026 Крановые пути. Общие указания 1.420.3-36.03.0-2-027 Схемы подкрановых балок под мостовые краны 1.420.3-36.03.0-2-028 Параметры подвесных кранов. Варианты подвески кранов 1.420.3-36.03.0-2-029 Общие указания к сортаментам элементов рам 1.420.3-36.03.0-2-030 Общие указания к маркировочным схемам элементов рам. Маркировка элементов рам 1.420.3-36.03.0-2-031 Маркировочные схемы элементов рам. Рамы трубчатые однопролетные. Модификация 4 и 5. Пролеты 12 и 18 м 1.420.3-36.03.0-2-032 Маркировочные схемы элементов рам. Рамы трубчатые двухпролетные. Модификация 4 и 5. Пролеты 12 и 18 м 1.420.3-36.03.0-2-033 Сортамент стоек однопролетных рам 4РТО120.*, 4РТО180.* высотой Н = 6.0, 7.2, 8.4, 9.6 м 1.420.3-36.03.0-2-034 Сортамент крайних стоек одно- и двухпролетных рам 4РТО120.*, 4РТО180.*,4РТМ2х120.*, 4РТМ2х180.* высотой Н = 10.8, 12.0,13.2,14.4 м 1.420.3-36.03.0-2-035 Сортамент крайних стоек двухпролетных рам 4РТМ2х120.* высотой Н=6.0, 7.2, 8.4, 9.6 м; 4РТМ2х180.* высотой Н = 8.4 и 9.6 м 1.420.3-36.03.0-2-036 Сортамент средних стоек двухпролетных рам 4РТМ2х120.*, 4РТМ2х180.*- высотой Н = 6.0 и 7.2 м 1.420.3-36.03.0-2-037 Сортамент средних стоек двухпролетных рам 4РТМ2х120.*,4РТМ2х180.* высотой Н = 8.4 и 9.6 м 1.420.3-36.03.0-2-038 Сортамент средних стоек двухпролетных рам 4РТМ2х120.*,4РТМ2х180.* высотой Н = 10.8 и 12.0 м 1.420.3-36.03.0-2-039 Сортамент средних стоек двухпролетных рам 4РТМ2х120.*,4РТМ2х180.* высотой Н = 13.2 и 14.4 м 1.420.3-36.03.0-2-040 Сортамент крайних стоек одно- и двухпролетных рам 5РТО 120.*, 5РТО 180.* 5РТМ2х120.*, 5РТМ2х180.* высотой Н = 8.4 и 9.6 м 1.420.3-36.03.0-2-041 Сортамент крайних стоек одно- и двухпролетных рам 5РТО120.*,5РТО180.*, 5РТМ2х120.* , 5РТМ2х180.* высотой Н = 10.8 и 12.0 м 1.420.3-36.03.0-2-042 Сортамент крайних стоек одно- и двухпролетных рам 5РТО120.*, 5РТО180.* 5РТМ2х120.*, 5РТМ2х180.* высотой Н = 13.2 и 14.4 м 1.420.3-36.03.0-2-043 Сортамент средних стоек двухпролетных рам 5РТМ2х120.*,5РТМ2х180.* высотой Н = 8.4 и 9.6 м 1.420.3-36.03.0-2-044 Сортамент средних стоек двухпролетных рам 5РТМ2х120.*,5РТМ2х180.* высотой Н = 10.8 и 12.0 м 1.420.3-36.03.0-2-045 Сортамент средних стоек двухпролетных рам 5РТМ2х120.*, 5РТМ2х180.* высотой Н = 13.2 и 14.4 м 1.420.3-36.03.0-2-046 Сортамент ригелей однопролетных рам 4РТО120.*, 5РТО120.* 1.420.3-36.03.0-2-047 Сортамент ригелей однопролетных рам 4РТО120.* 1.420.3-36.03.0-2-048 Сортамент ригелей однопролетных рам 4РТО180.*,5РТО180.* 1.420.3-36.03.0-2-049 Сортамент ригелей однопролетных рам 4РТО180.* 1.420.3-36.03.0-2-050 Сортамент ригелей двухпролетных рам 4РТМ2х120.*, 5РТМ2х120. 1.420.3-36.03.0-2-051 Сортамент ригелей двухпролетных рам 4РТМ2х120.* 1.420.3-36.03.0-2-052 Сортамент ригелей двухпролетных рам 4РТМ2х120.* 1.420.3-36.03.0-2-053 Сортамент ригелей двухпролетных рам 4РТМ2х180.*, 5РТМ2х180.* 1.420.3-36.03.0-2-054 Сортамент ригелей двухпролетных рам 4РТМ2х180. 1.420.3-36.03.0-2-055 Сортамент ригелей двухпролетных рам 4РТМ2х180.*, 5РТМ2х180.* 1.420.3-36.03.0-2-056 Сортамент ригелей двухпролетных рам 4РТМ2х180.* 1.420.3-36.03.0-2-057 Общие указания к узлам несущих конструкций. Узел 54. Опорный узел стойки фахверка 1.420.3-36.03.0-2-058 Узел 55. Опорный узел крайней одноветвевой стойки рамы 1.420.3-36.03.0-2-059 Узел 56. Опорный узел крайней и средней двухветвевой стойки рамы 1.420.3-36.03.0-2-060 Узел 57. Сопряжение крайней стойки с ригелем рамы 1.420.3-36.03.0-2-061 Узел 58. Сопряжение крайней двухветвевой стойки с ригелем рамы 1.420.3-36.03.0-2-062 Узел 59. Сопряжение ригеля рамы и средней двухветвевой стойки 1.420.3-36.03.0-2-063 Узел 60. Крепление распорок и гибких вертикальных связей к стойке 1.420.3-36.03.0-2-064 Узел 61. Крепление распорок и жестких вертикальных связей к стойке 1.420.3-36.03.0-2-065 Узел 62. Крепление подвесного пути к ригелю рамы 1.420.3-36.03.0-2-066 Узел 63. Крепление подвесного пути к ригелю рамы 1.420.3-36.03.0-2-067 Узел 64. Крепление подкрановых балок к средней стойке 1.420.3-36.03.0-2-068 Узел 65. Крепление подкрановой балки к крайней стойке 1.420.3-36.03.0-2-069 Узел 66. Монтажный стык крайней стойки 1.420.3-36.03.0-2-070 Узел 67. Стык рельса 1.420.3-36.03.0-2-071 Узел 68. Крепление рельса 1.420.3-36.03.0-2-072 Узел 69. Крепление концевого упора на подкрановой балке 1.420.3-36.03.0-2-073 Общие указания к спецификациям 1.420.3-36.03.0-2-074 Спецификации |
| Разработан: | УНИКОН ОАО Объединение Союзлегконструкция ОАО Уралтрубпром |
| Утверждён: | 16.05.2003 ОАО Уралтрубпром (290) |













































































































