Скачать Серия 1.222.5-1 Выпуск 5. Трехшарнирные гнутоклееные рамы асимметричного очертания пролетом 24 м, шаг 3 м. Рабочие чертежиДата актуализации: 01.01.2021
|
| Обозначение: | Серия 1.222.5-1 |
| Обозначение англ: | Series 1.222.5-1 |
| Статус: | не определен законодательством |
| Название рус.: | Выпуск 5. Трехшарнирные гнутоклееные рамы асимметричного очертания пролетом 24 м, шаг 3 м. Рабочие чертежи |
| Дата добавления в базу: | 01.09.2013 |
| Дата актуализации: | 01.01.2021 |
| Дата введения: | 15.05.1988 |
| Дата окончания срока действия: | 30.06.2003 |
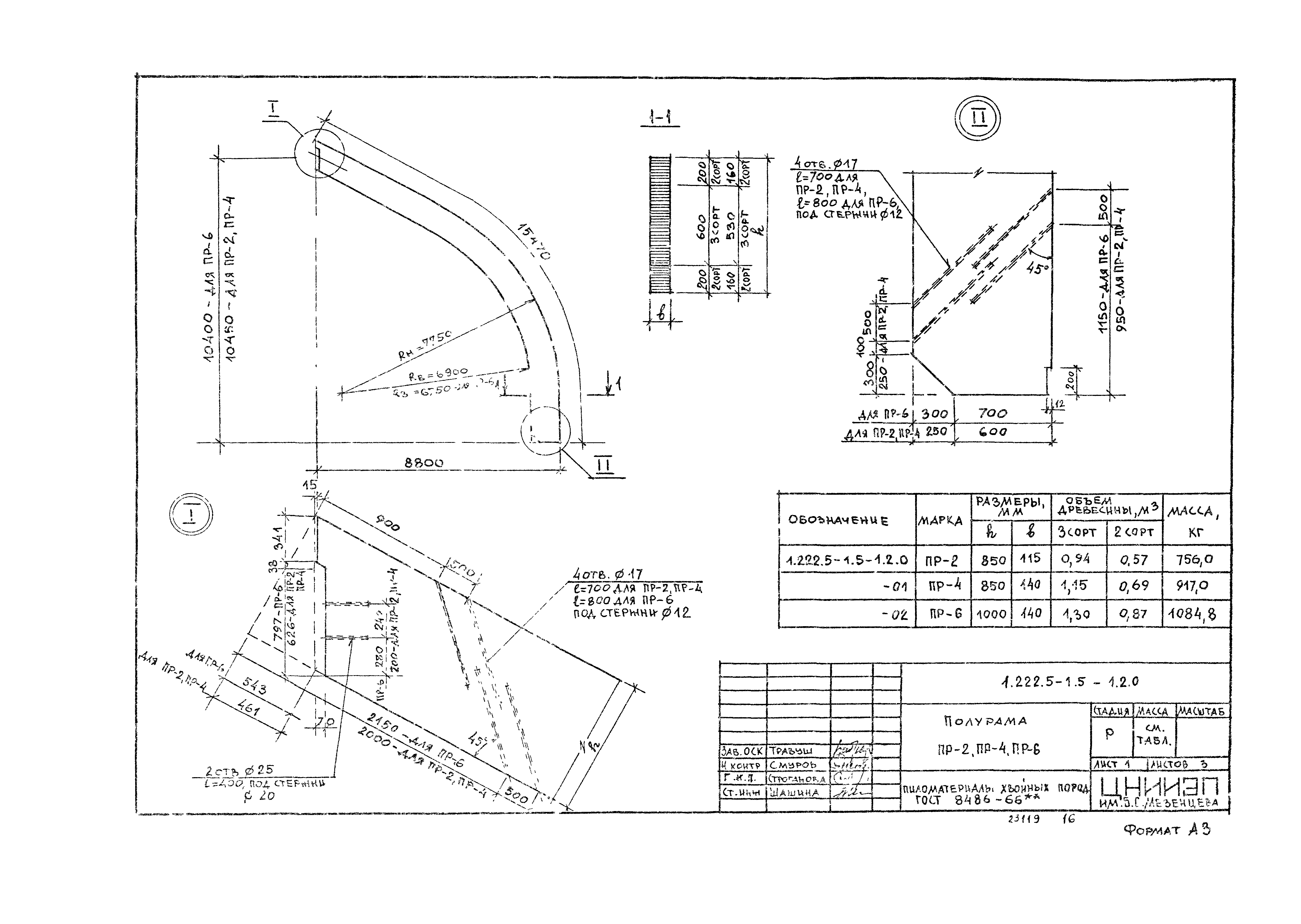
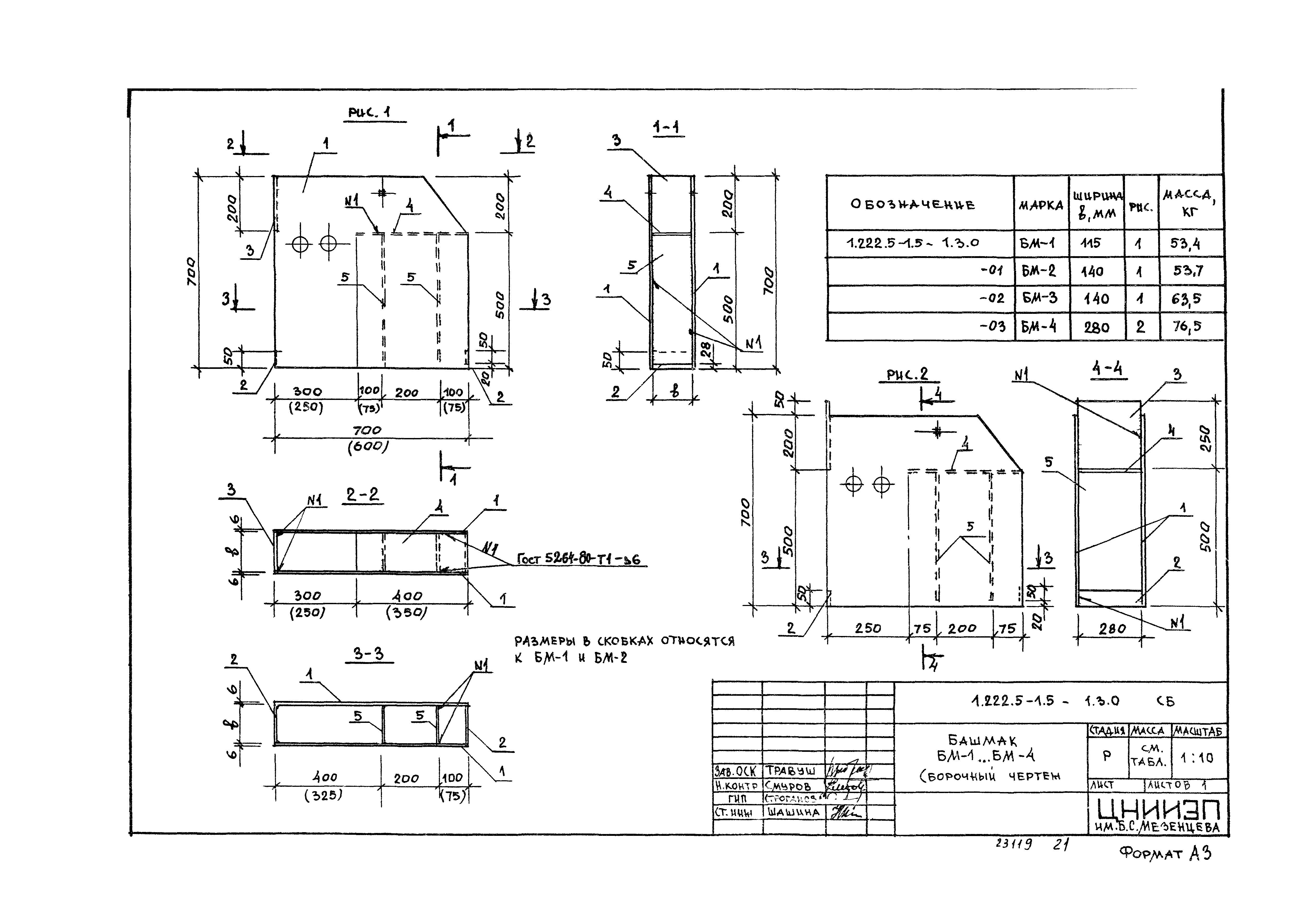
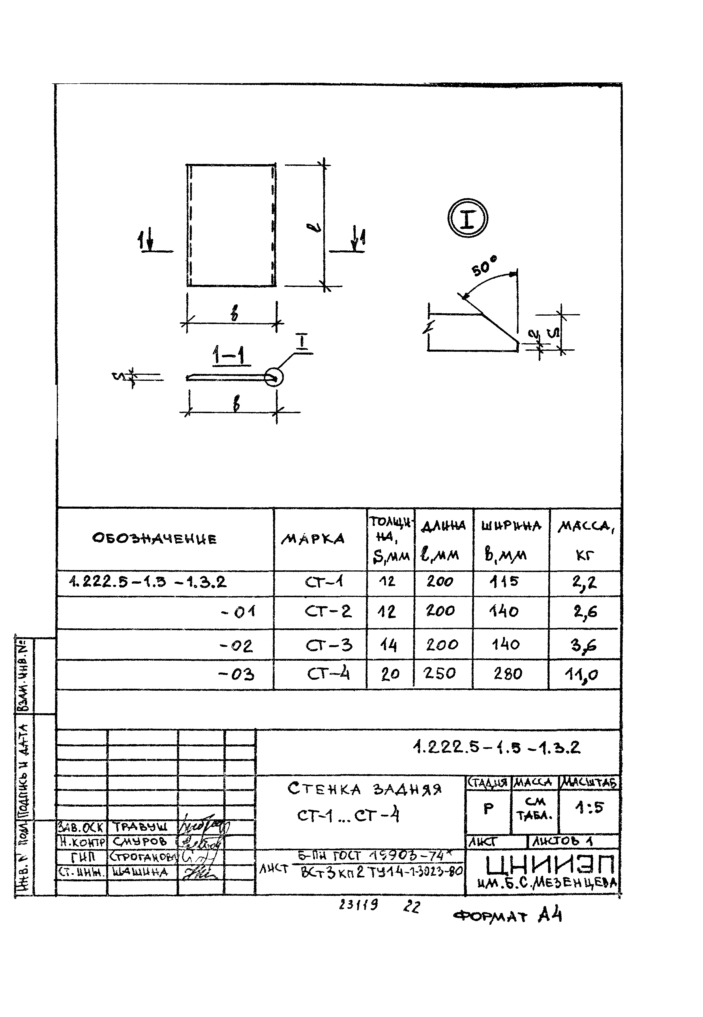
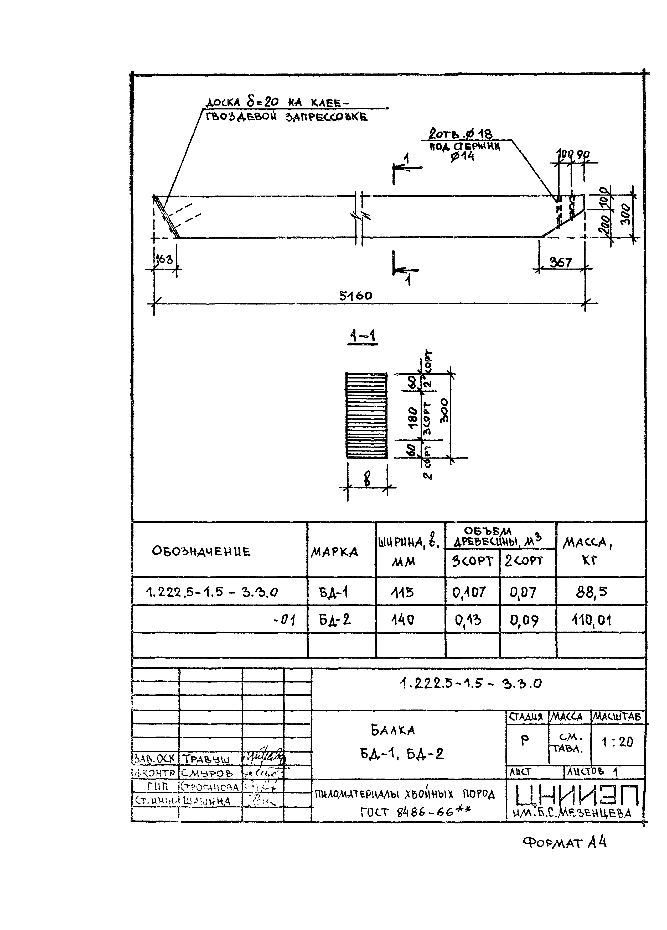
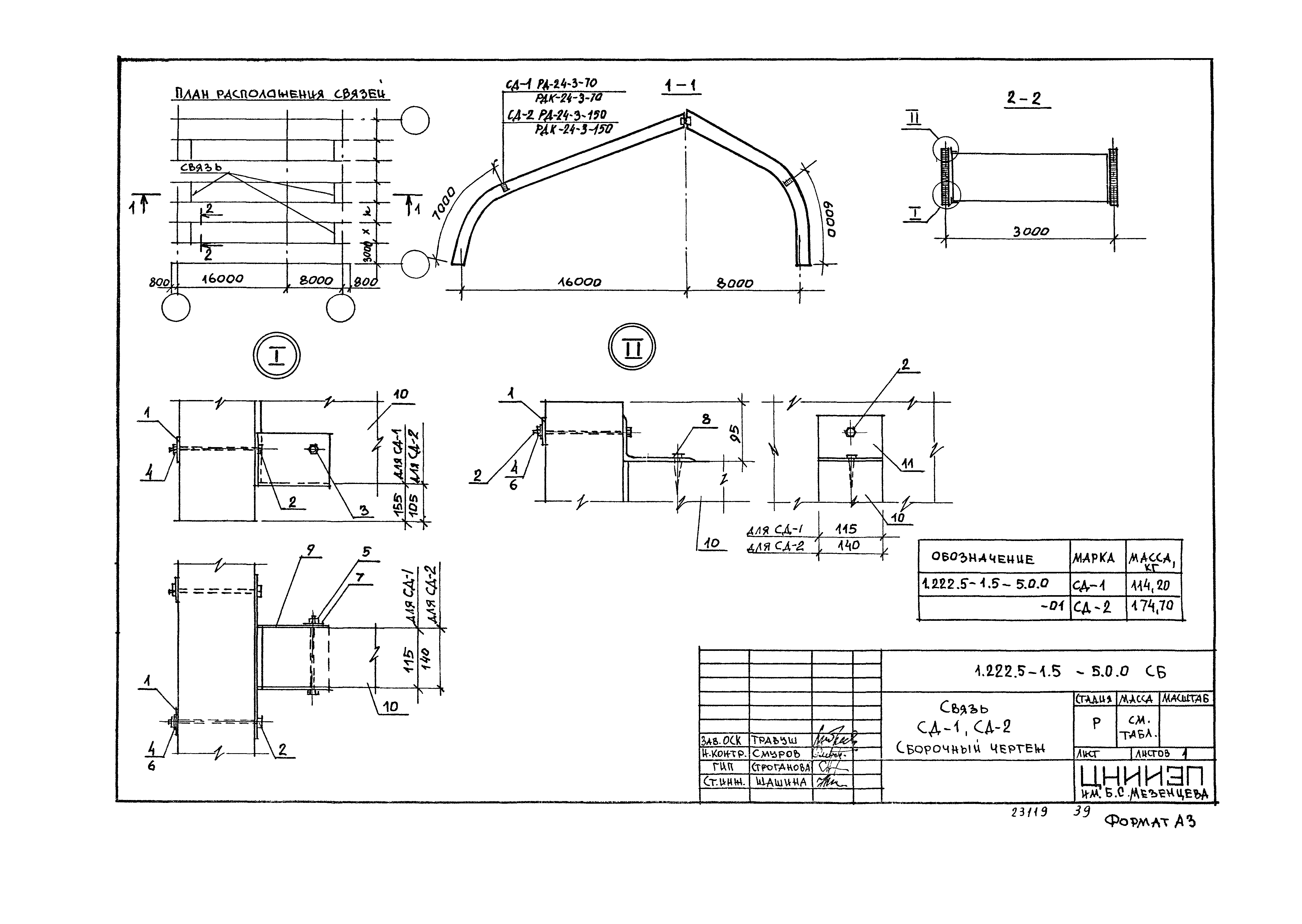
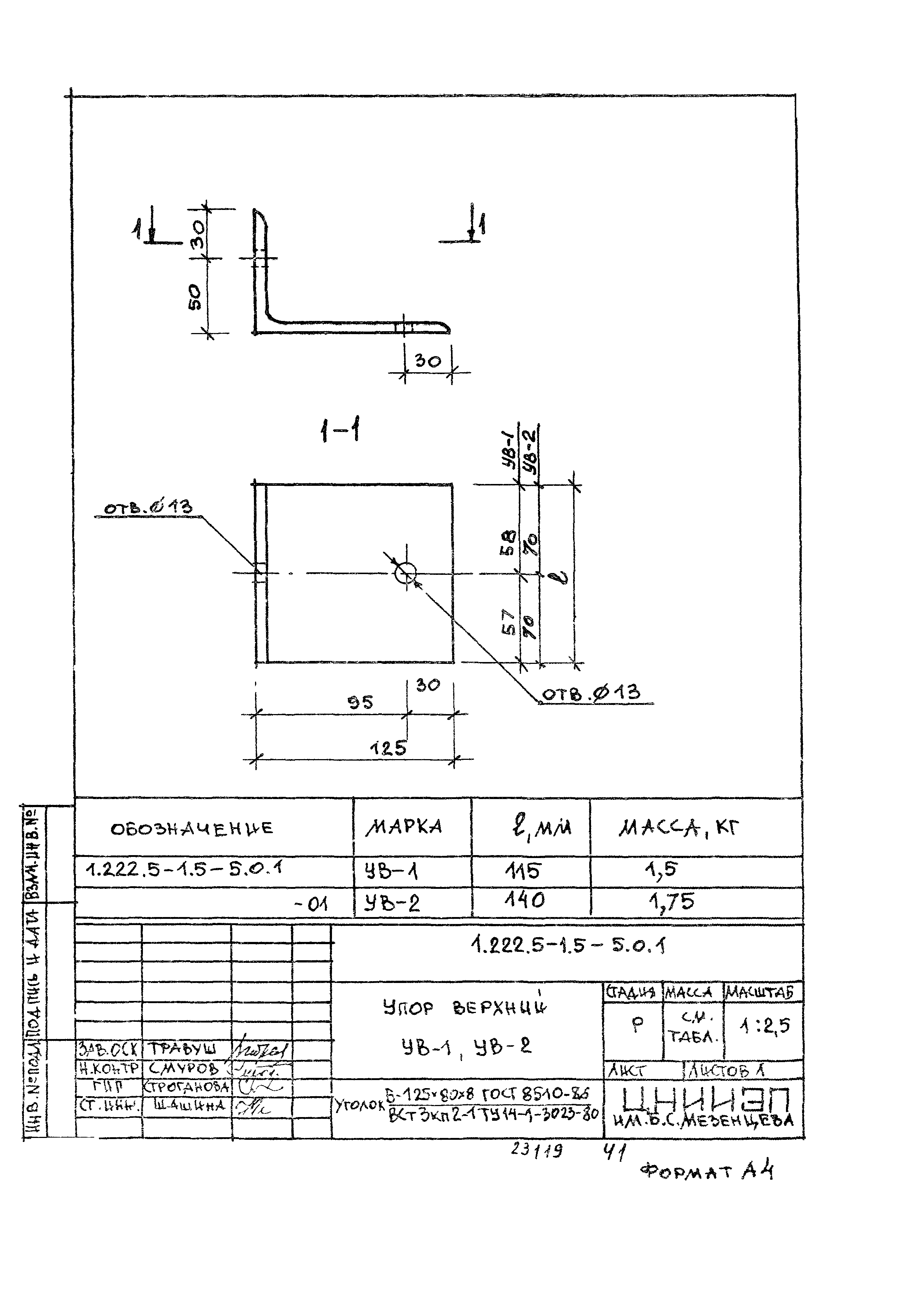
| Оглавление: | 1.222.5-1.5-0.0.0 ТО Техническое описание 1.222.5-1.5-1.0.0 Рама РД-24-3-70,РД-24-3-100,РД-24-3-150 1.222.5-1.5-2.0.2 Шайба Ш-1,Ш-2 1.222.5-1.5-1.0.0 СБ Рама РД-24-3-70,РД-24-3-100,РД-24-3-150. Сборочный чертеж 1.222.5-1.5-1.1.0 Полурама ПР-1,ПР-3,ПР-5 1.222.5-1.5-1.2.0 Полурама ПР-2,ПР-4,ПР-6 1.222.5-1.5-1.3.0 Башмак БМ-1...БМ-4 1.222.5-1.5-5.2.0 Пакет клееный ПК-1,ПК-2 1.222.5-1.5-1.3.0 Башмак БМ-1...БМ-4. Сборочный чертеж 1.222.5-1.5-1.3.1 Стенка боковая СБ-1,СБ-2 1.222.5-1.5-1.3.2 Стенка задняя СТ-1...СТ-4 1.222.5-1.5-1.4.0 Элемент коньковый ЭК-1...ЭК-8 1.222.5-1.5-1.4.1 Стенка боковая СБ-3 1.222.5-1.5-1.4.0 СБ Элемент коньковый ЭК-1...ЭК-8. Сборочный чертеж 1.222.5-1.5-1.4.2 Пластина П-1...П-4 1.222.5-1.5-1.4.2 Пластина П-5...П-7 1.222.5-1.5-2.0.0 Рама РД-24-3-200 1.222.5-1.5-2.0.0 СБ Рама РД-24-3-200. Сборочный чертеж 1.222.5-1.5-3.0.0 Рама РДК-24-3-70,РДК-24-3-100,РДК-24-3-150 1.222.5-1.5-2.0.1 Шпилька ШП-1,ШП-2,ШП-3 1.222.5-1.5-3.0.0 СБ Рама РДК-24-3-70,РДК-24-3-100,РДК-24-3-150. Сборочный чертеж 1.222.5-1.5-3.0.1 Пластина металлическая 1.222.5-1.5-3.1.0 Полурама ПР-7,ПР-9,ПР-11 1.222.5-1.5-3.2.0 Полурама ПР-8,ПР-10,ПР-12 1.222.5-1.5-3.3.0 Балка БД-1,БД-2 1.222.5-1.5-3.4.0 Стойка СТ-1,СТ-2 1.222.5-1.5-4.0.0 Рама РДК-24-3-200 1.222.5-1.5-4.0.0 СБ Рама РДК-24-3-200. Сборочный чертеж 1.222.5-1.5-5.0.0 Связь СД-1,СД-2 1.222.5-1.5-5.0.0 СБ Связь СД-1,СД-2. Сборочный чертеж 1.222.5-1.5-5.1.0 Упор нижний УН-1,УН-2 1.222.5-1.5-5.1.0 СБ Упор нижний УН-1,УН-2. Сборочный чертеж 1.222.5-1.5-5.1.1 Пластина задняя 1.222.5-1.5-5.0.1 Упор верхний УВ-1,УВ-2 1.222.5-1.5-0.0.0 ВРМС Ведомость расхода материалов на элемент связи 1.222.5-1.5-0.0.0 ВРМ Ведомость расхода материалов |
| Разработан: | ЦНИИЭП им. Б.С. Мезенцева Госгражданстроя |
| Утверждён: | 05.05.1988 Госстрой СССР (Государственный комитет Совета Министров СССР по делам строительства) (USSR Gosstroy 121) |
| Принят: | ЦНИИСК им.Кучеренко (Kucherenko TsNIISK ) ЦНИИЭП сельстроя |
| Издан: | ЦИТП Госстроя СССР (CITP, Gosstroy (USSR) 1988 г. ) |


























































