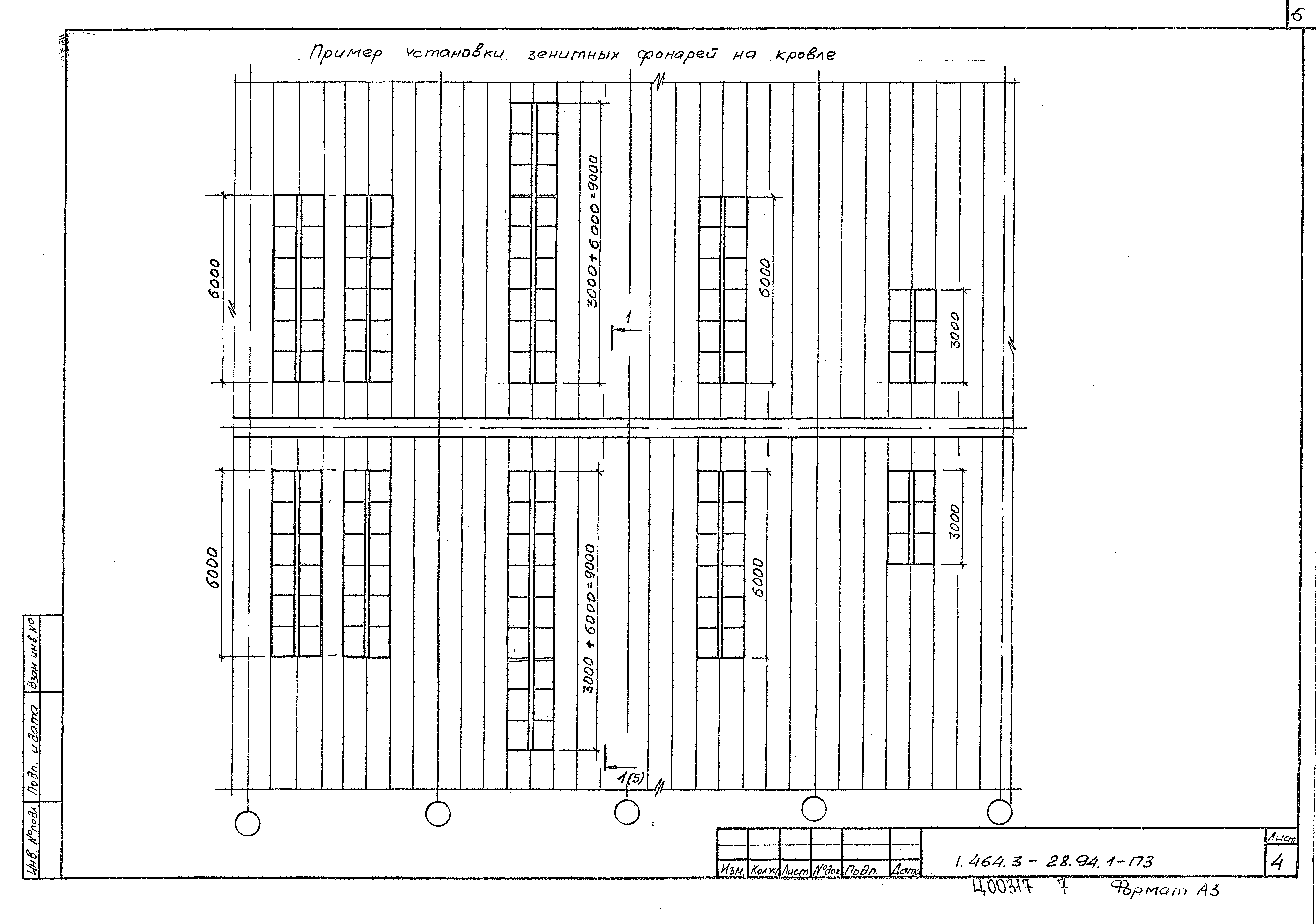
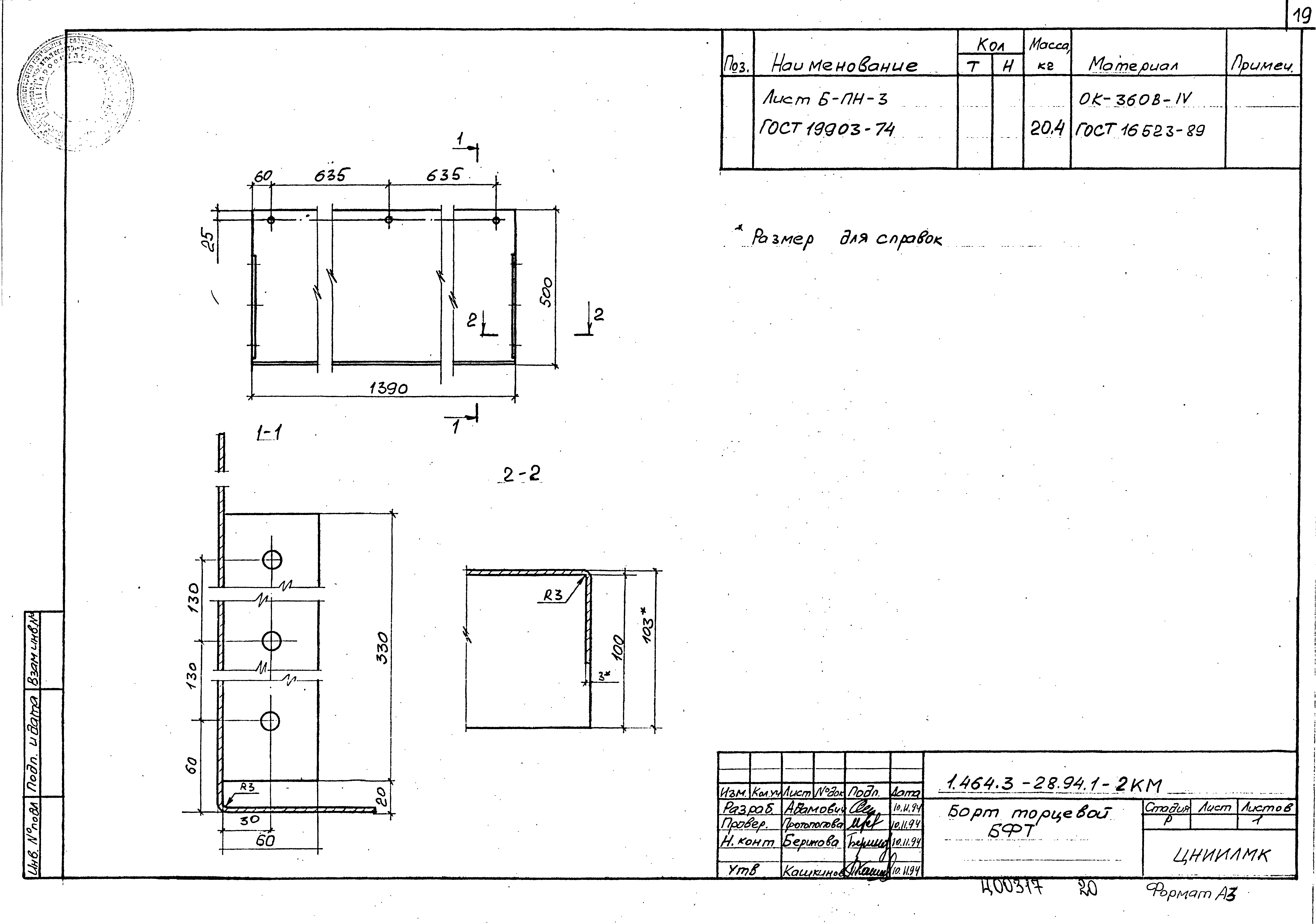
Скачать Серия 1.464.3-28.94 Выпуск 1. Фонари световые треугольные глухие. Материалы для проектирования. Чертежи КМДата актуализации: 01.01.2021 Серия 1.464.3-28.94
Выпуск 1. Фонари световые треугольные глухие. Материалы для проектирования. Чертежи КМ| Обозначение: | Серия 1.464.3-28.94 | | Обозначение англ: | Series 1.464.3-28.94 | | Статус: | не определен законодательством | | Название рус.: | Выпуск 1. Фонари световые треугольные глухие. Материалы для проектирования. Чертежи КМ | | Дата добавления в базу: | 01.09.2013 | | Дата актуализации: | 01.01.2021 | | Дата введения: | 01.01.1995 | | Дата окончания срока действия: | 30.06.2003 | | Разработан: | ЦНИИПроектлегконструкция
| | Утверждён: | 06.10.1994 Главпроект Минстроя России (9-3-1/42)
|
                             
|