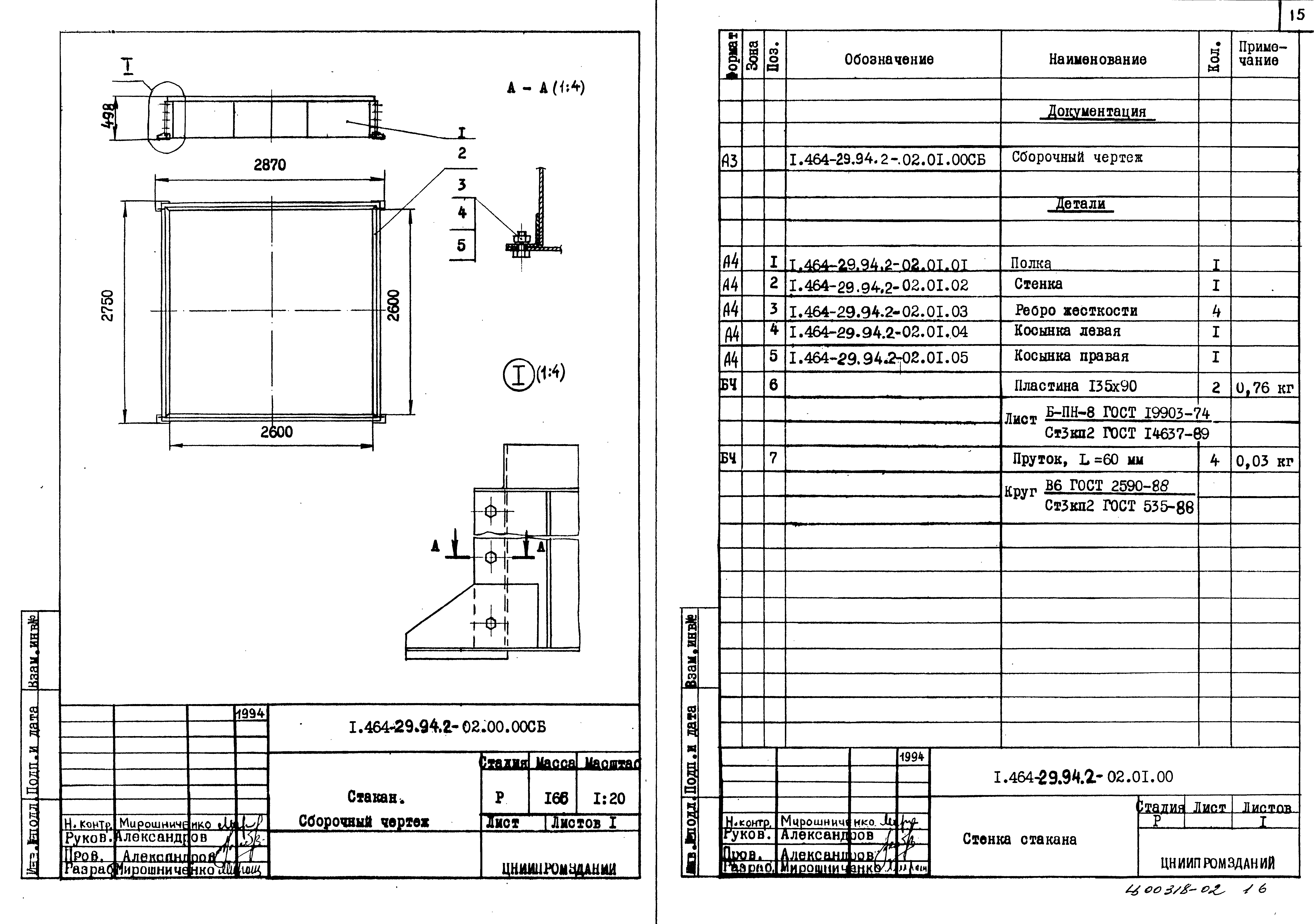
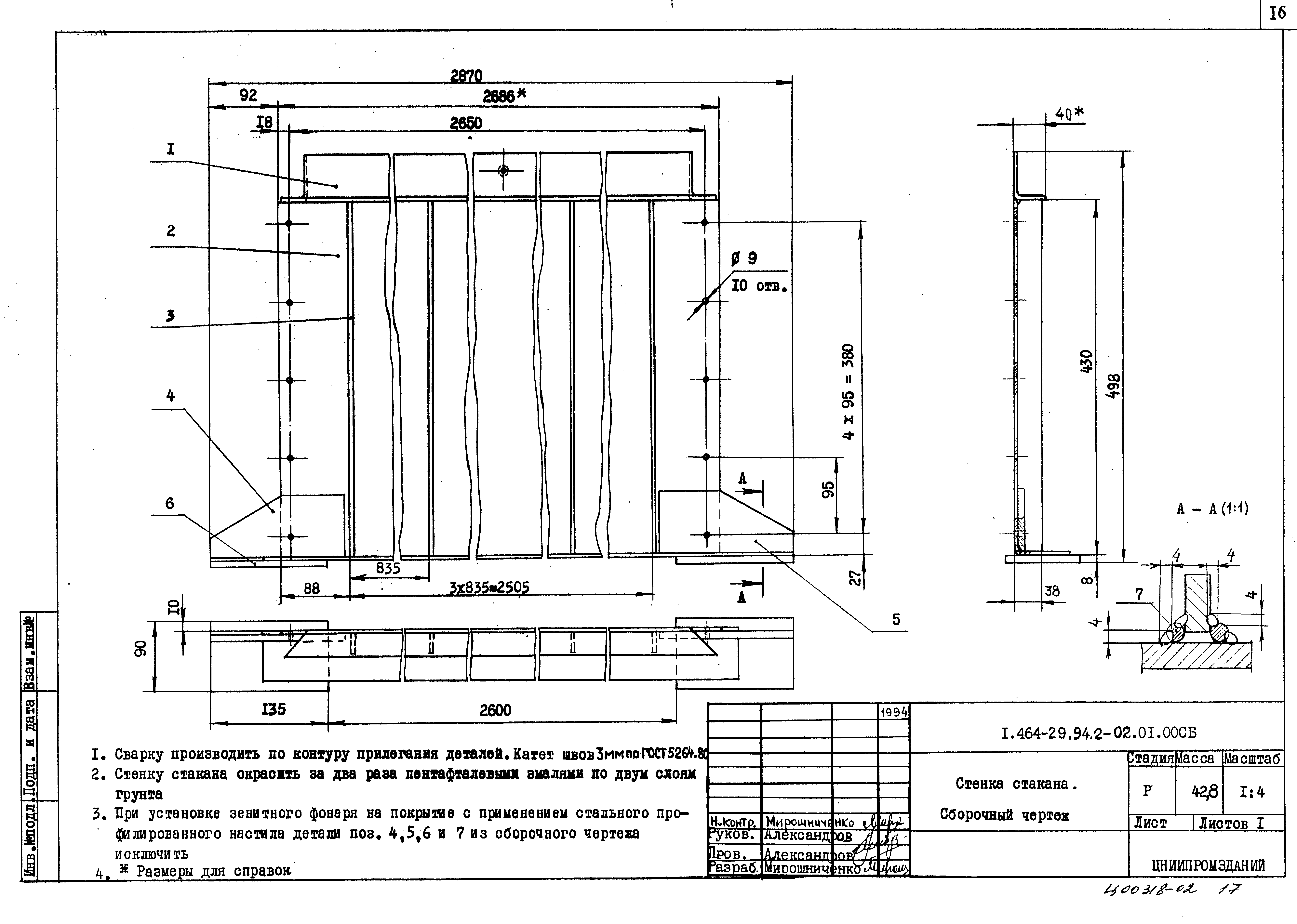
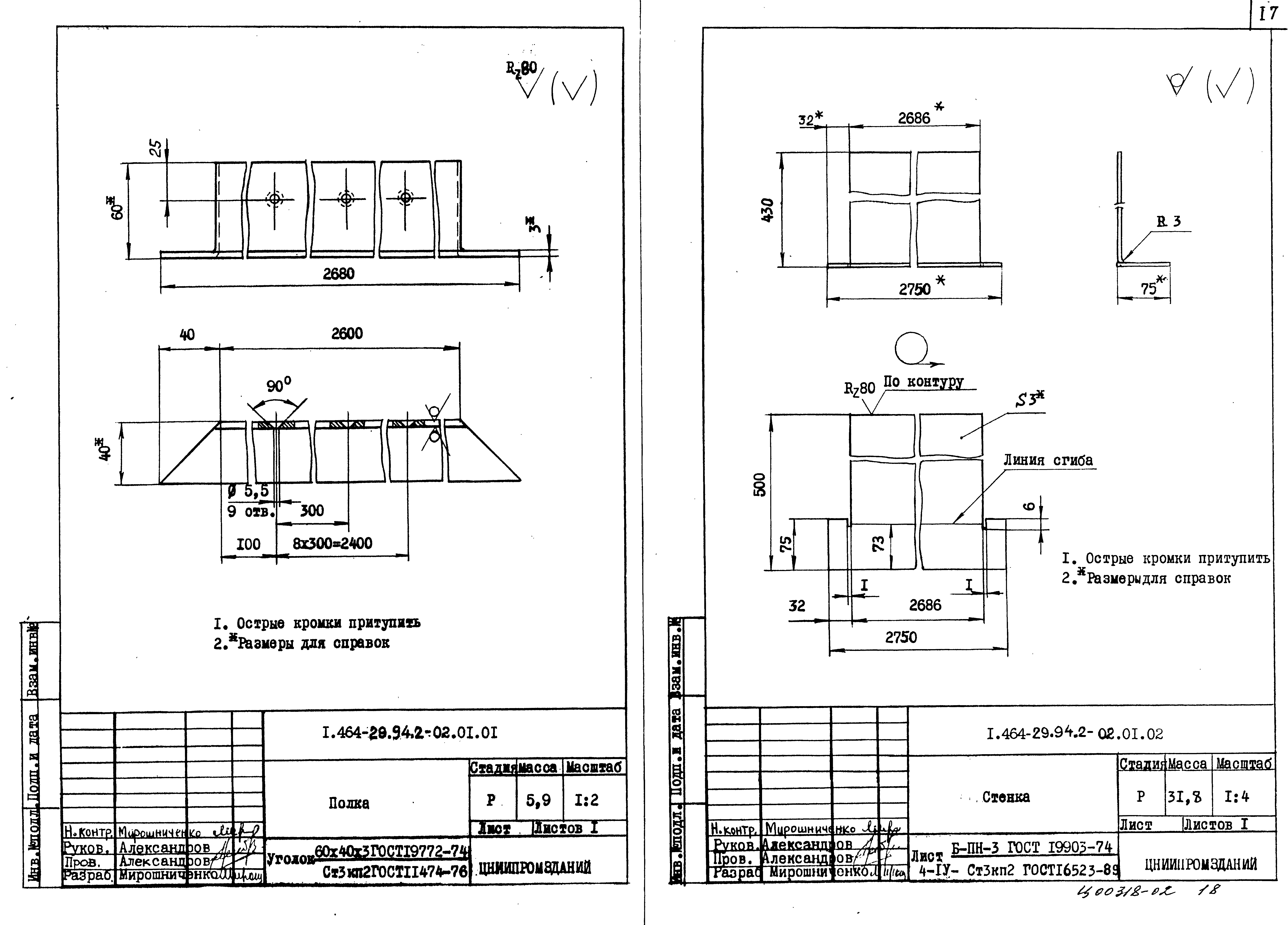
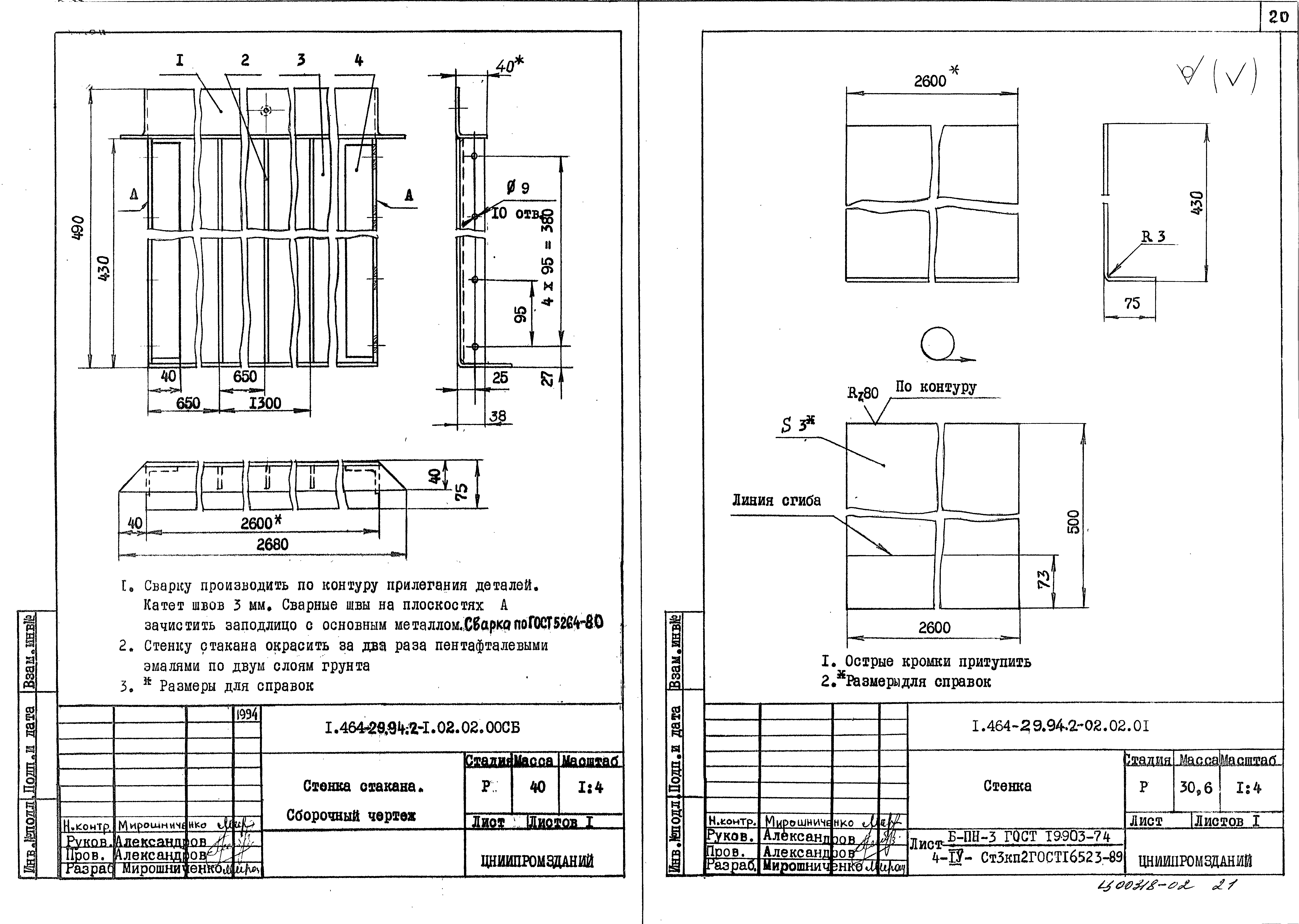
Скачать Серия 1.464-29.94 Выпуск 2. Фонарь зенитный глухой с размерами светового проема 2,6х2,6 м с двухслойным куполом. Рабочие чертежиДата актуализации: 01.01.2021 Серия 1.464-29.94
Выпуск 2. Фонарь зенитный глухой с размерами светового проема 2,6х2,6 м с двухслойным куполом. Рабочие чертежи| Обозначение: | Серия 1.464-29.94 | | Обозначение англ: | Series 1.464-29.94 | | Статус: | не определен законодательством | | Название рус.: | Выпуск 2. Фонарь зенитный глухой с размерами светового проема 2,6х2,6 м с двухслойным куполом. Рабочие чертежи | | Дата добавления в базу: | 01.09.2013 | | Дата актуализации: | 01.01.2021 | | Дата введения: | 01.01.1995 | | Дата окончания срока действия: | 30.06.2003 | | Разработан: | АО ЦНИИпромзданий
| | Утверждён: | 10.11.1994 Главпроект Минстроя России (9-3-1/161)
| | Заменяет собой: | - Серия 1.464-15 «Фонари зенитные с применением органического стекла»
|
                          
|