Скачать Серия 1.464.2-26.93 Выпуск 1. Фонари зенитные двухскатные. Рабочие чертежи

Дата актуализации: 01.01.2021

Серия 1.464.2-26.93

Выпуск 1. Фонари зенитные двухскатные. Рабочие чертежи

Обозначение: Серия 1.464.2-26.93
Обозначение англ: Series 1.464.2-26.93
Статус:не определен законодательством
Название рус.:Выпуск 1. Фонари зенитные двухскатные. Рабочие чертежи
Дата добавления в базу:01.09.2013
Дата актуализации:01.01.2021
Дата введения:01.02.1994
Дата окончания срока действия:30.06.2003
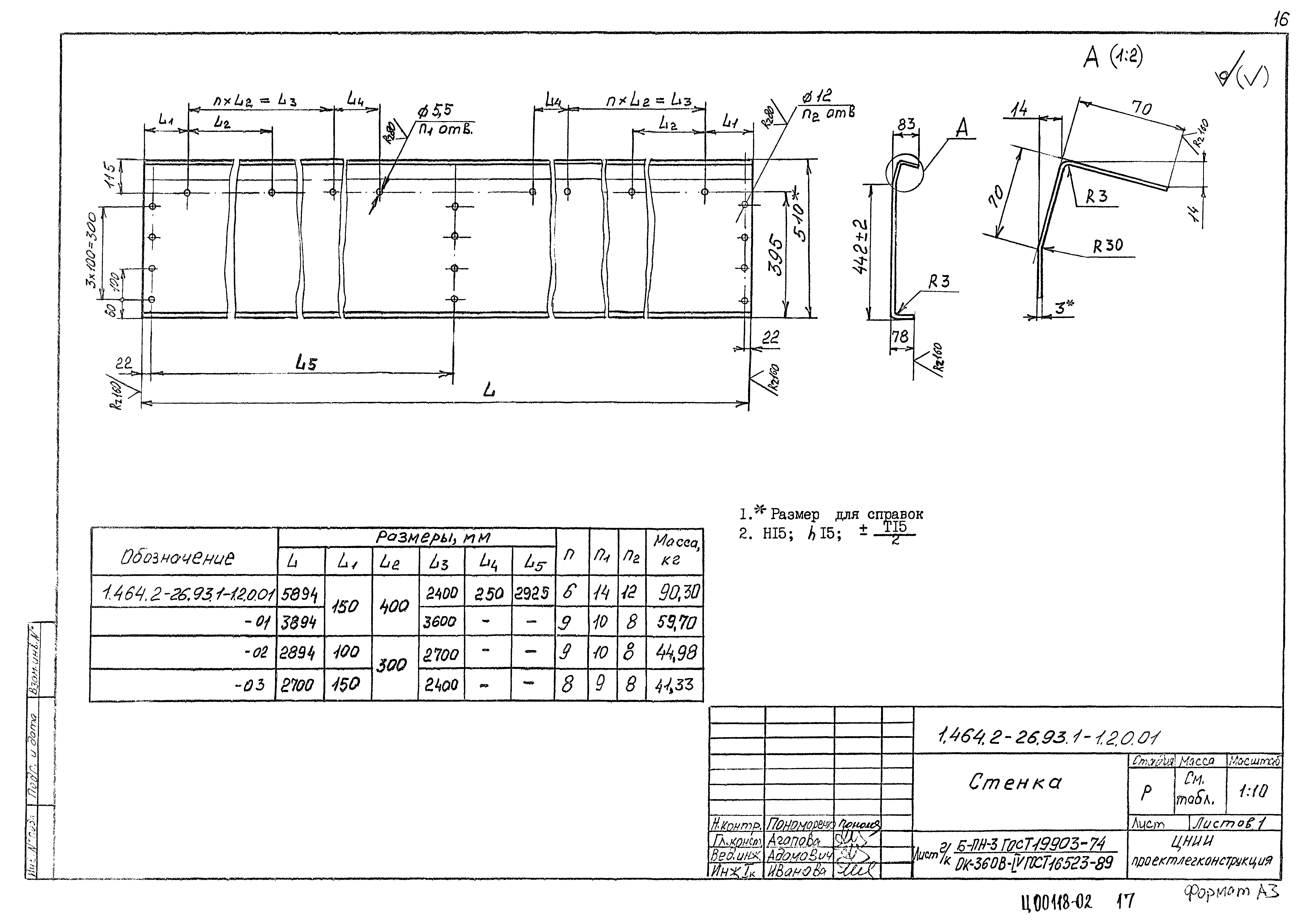
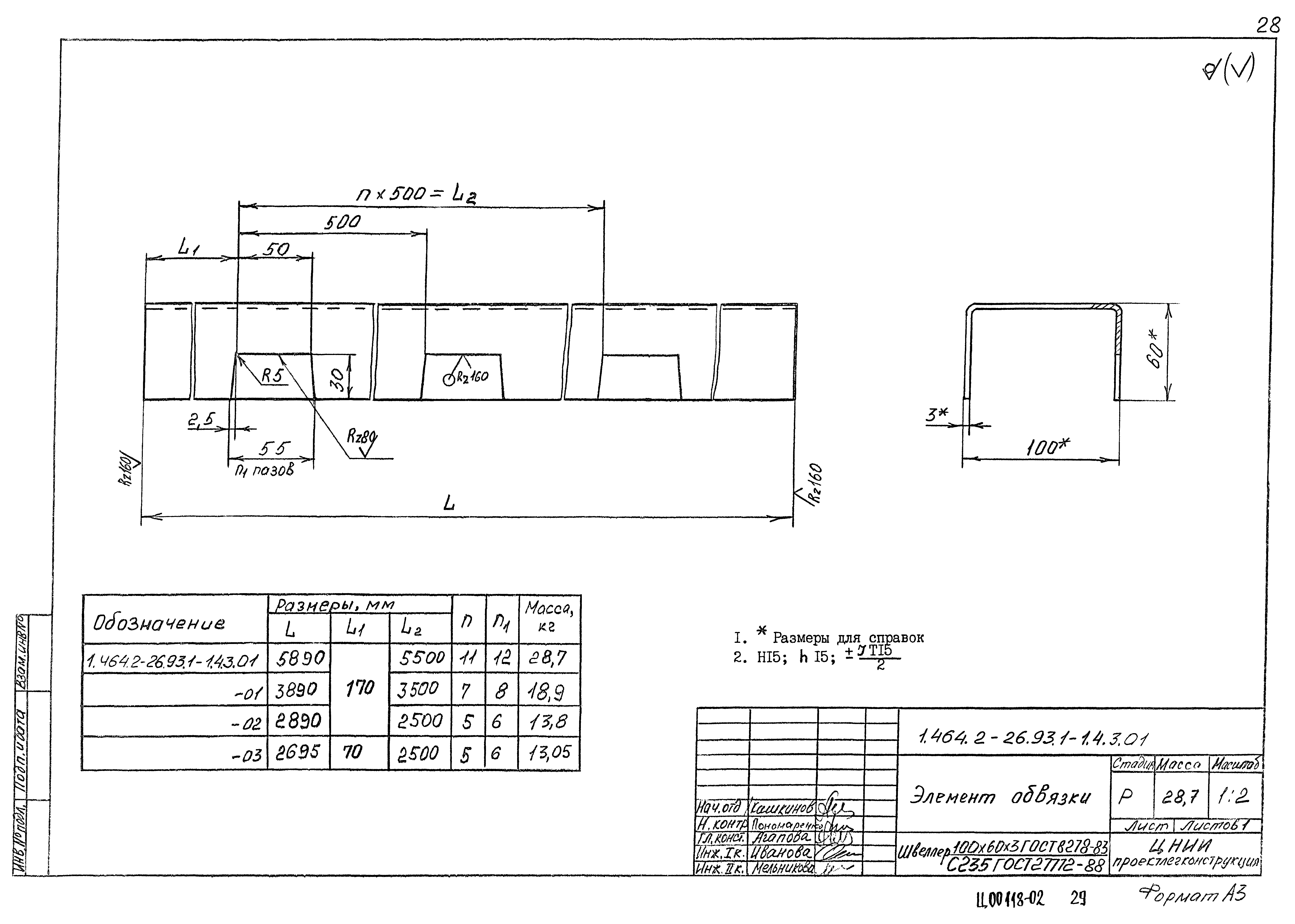
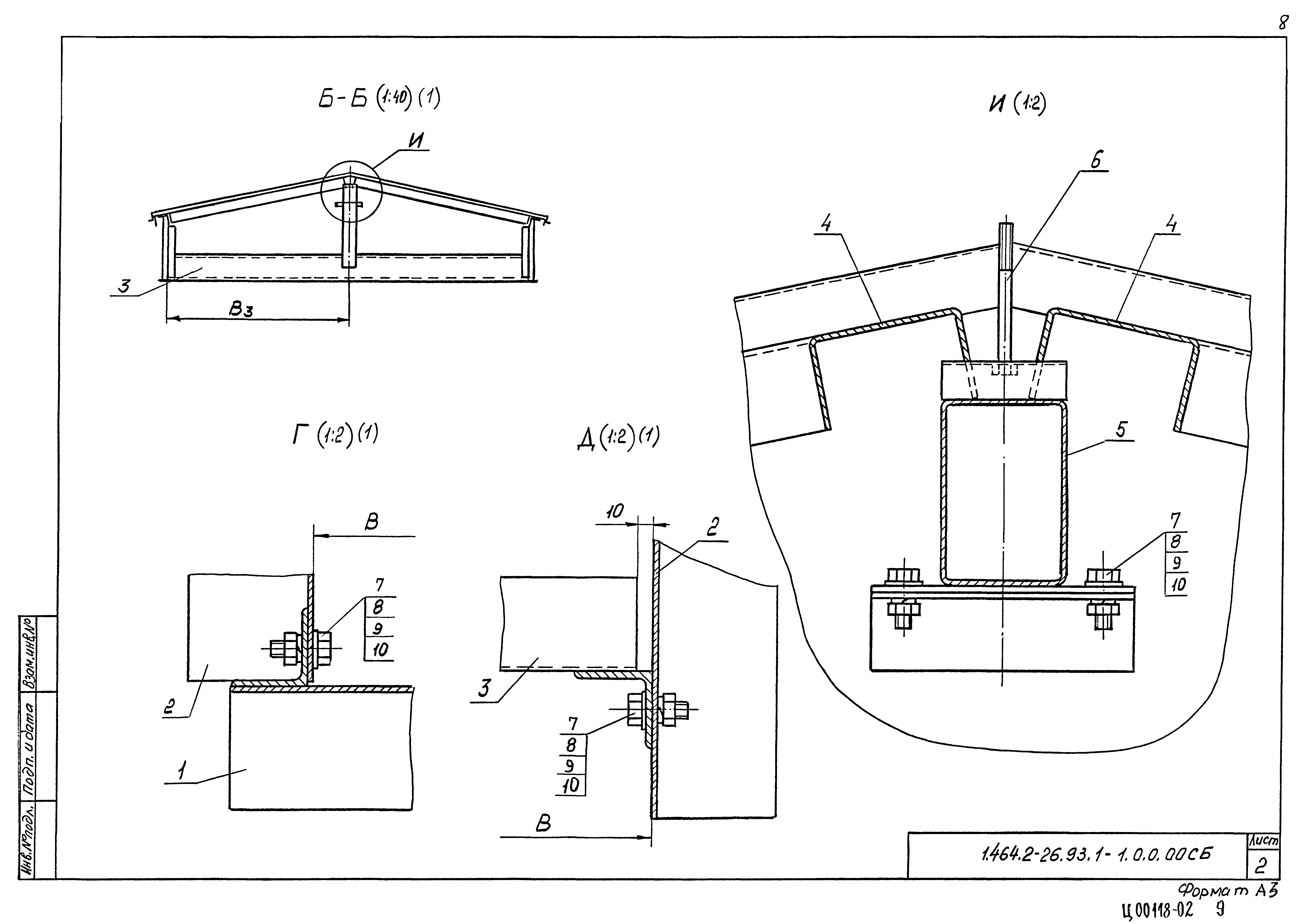
Область применения:Настоящий выпуск содержит рабочий чертежи конструкций двухскатных зенитных фонарей
Разработан: ЦНИИПроектлегконструкция
АО ЦНИИпромзданий
Утверждён:18.11.1993 Госстрой России (Russian Federation Gosstroy 9-3-3/242)
Заменяет собой:
Серия 1.464.2-26.93Серия 1.464.2-26.93Серия 1.464.2-26.93Серия 1.464.2-26.93Серия 1.464.2-26.93Серия 1.464.2-26.93Серия 1.464.2-26.93Серия 1.464.2-26.93Серия 1.464.2-26.93Серия 1.464.2-26.93Серия 1.464.2-26.93Серия 1.464.2-26.93Серия 1.464.2-26.93Серия 1.464.2-26.93Серия 1.464.2-26.93Серия 1.464.2-26.93Серия 1.464.2-26.93Серия 1.464.2-26.93Серия 1.464.2-26.93Серия 1.464.2-26.93Серия 1.464.2-26.93Серия 1.464.2-26.93Серия 1.464.2-26.93Серия 1.464.2-26.93Серия 1.464.2-26.93Серия 1.464.2-26.93Серия 1.464.2-26.93Серия 1.464.2-26.93Серия 1.464.2-26.93Серия 1.464.2-26.93Серия 1.464.2-26.93Серия 1.464.2-26.93Серия 1.464.2-26.93Серия 1.464.2-26.93Серия 1.464.2-26.93Серия 1.464.2-26.93Серия 1.464.2-26.93Серия 1.464.2-26.93Серия 1.464.2-26.93Серия 1.464.2-26.93Серия 1.464.2-26.93