Скачать Серия 1.426.2-7 Выпуск 4. Балки пролетом 12 м неразрезные под краны общего назначения грузоподъемностью 80-320 т. Чертежи КМДата актуализации: 01.01.2021
|
| Обозначение: | Серия 1.426.2-7 |
| Обозначение англ: | Series 1.426.2-7 |
| Статус: | действует |
| Название рус.: | Выпуск 4. Балки пролетом 12 м неразрезные под краны общего назначения грузоподъемностью 80-320 т. Чертежи КМ |
| Дата добавления в базу: | 01.09.2013 |
| Дата актуализации: | 01.01.2021 |
| Дата введения: | 01.06.1989 |
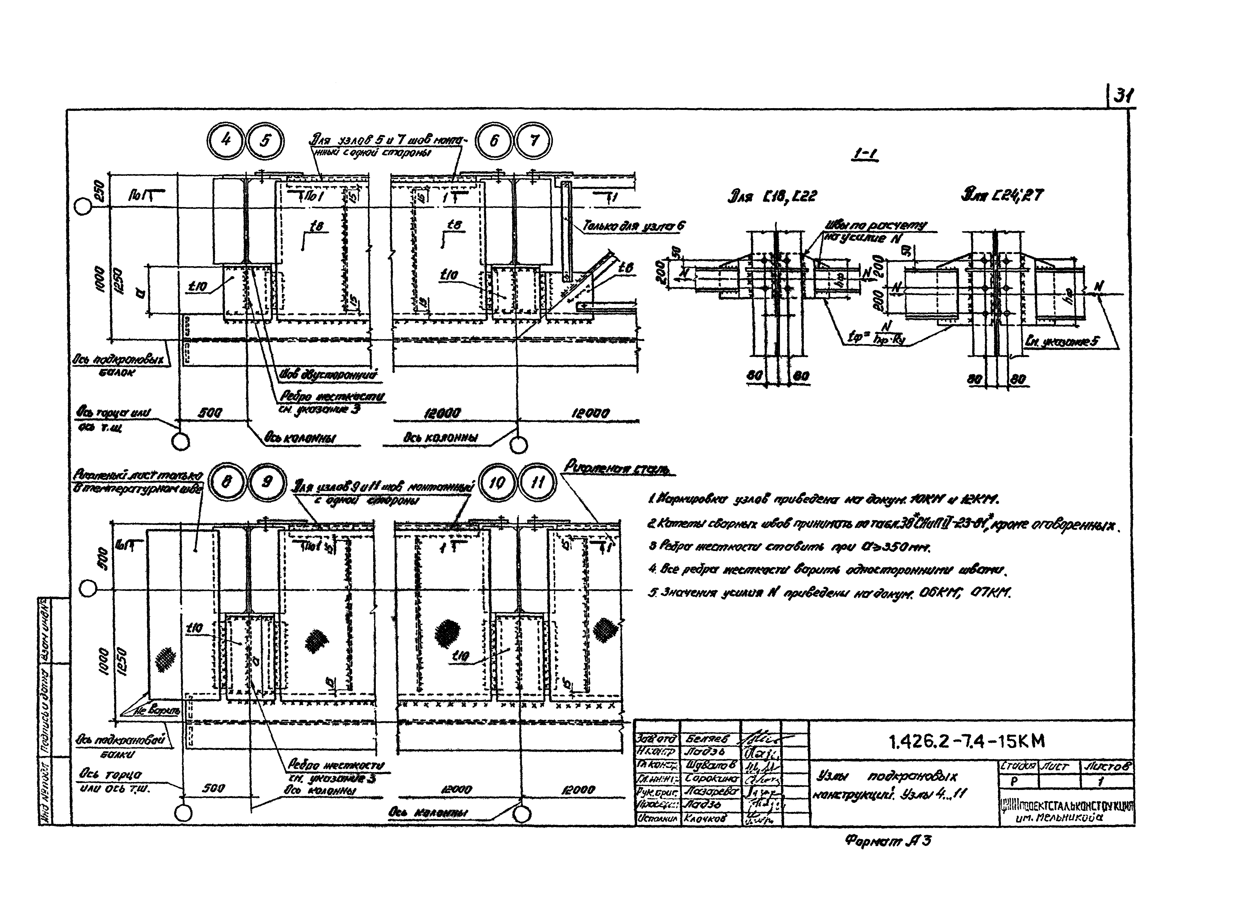
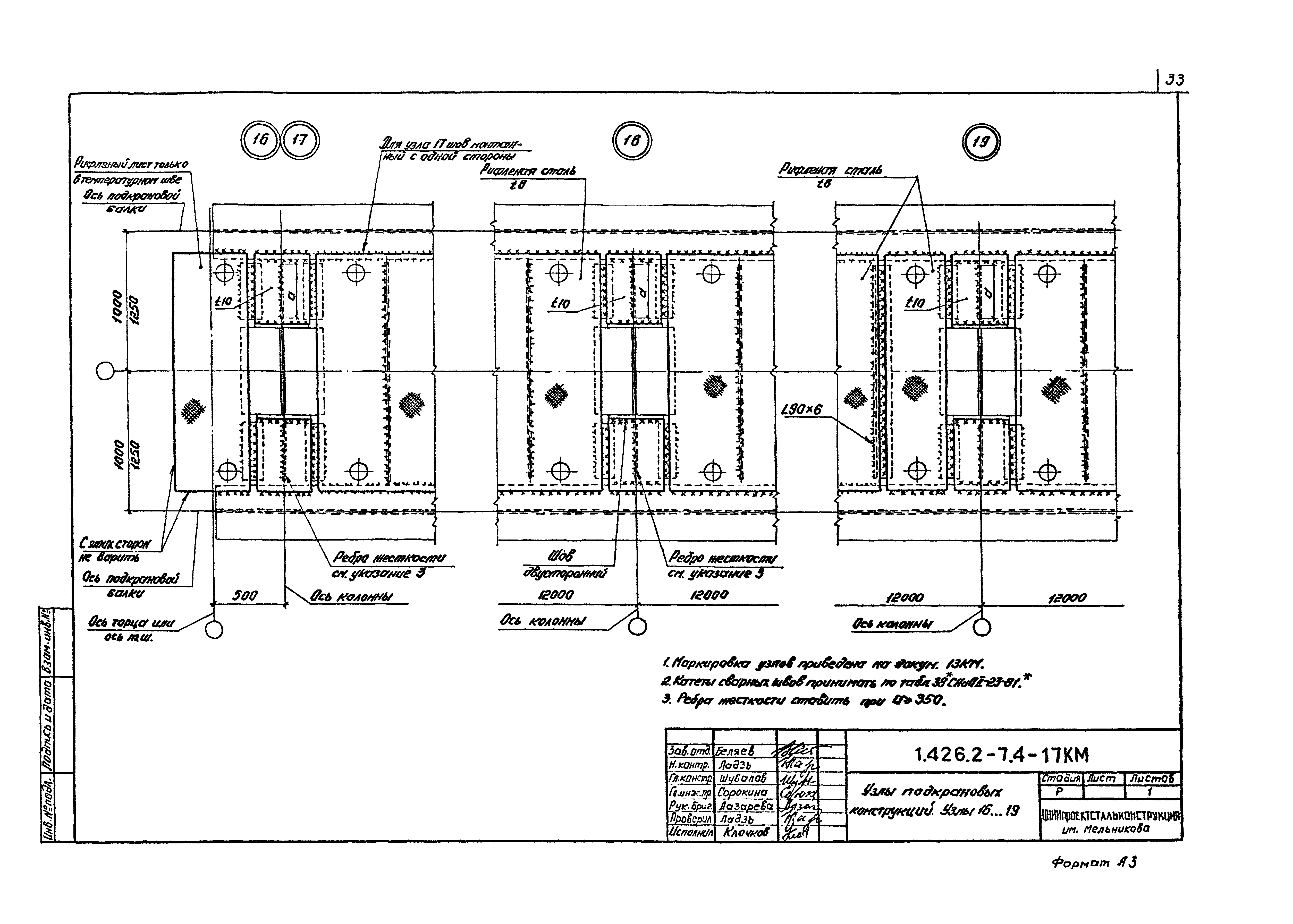
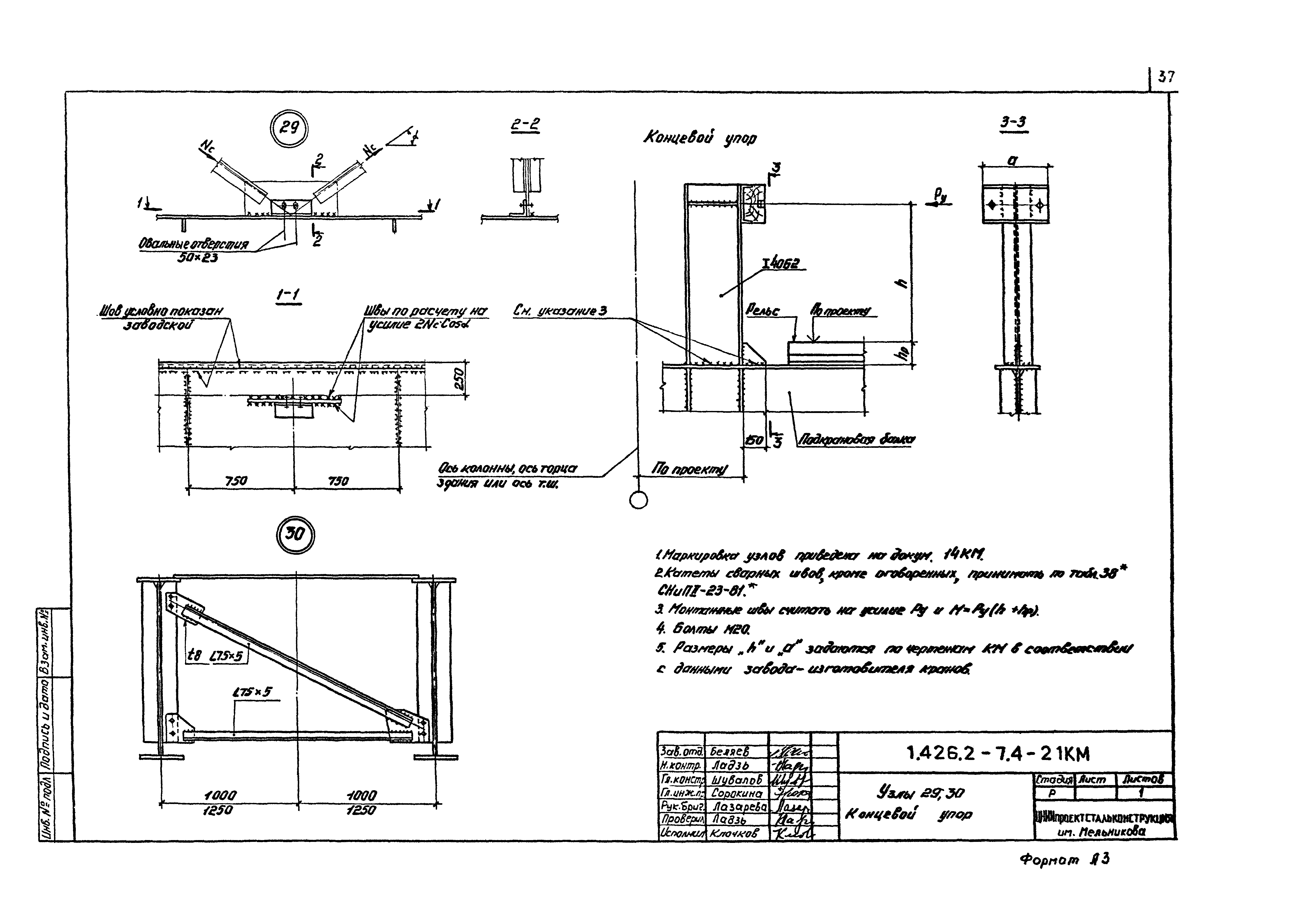
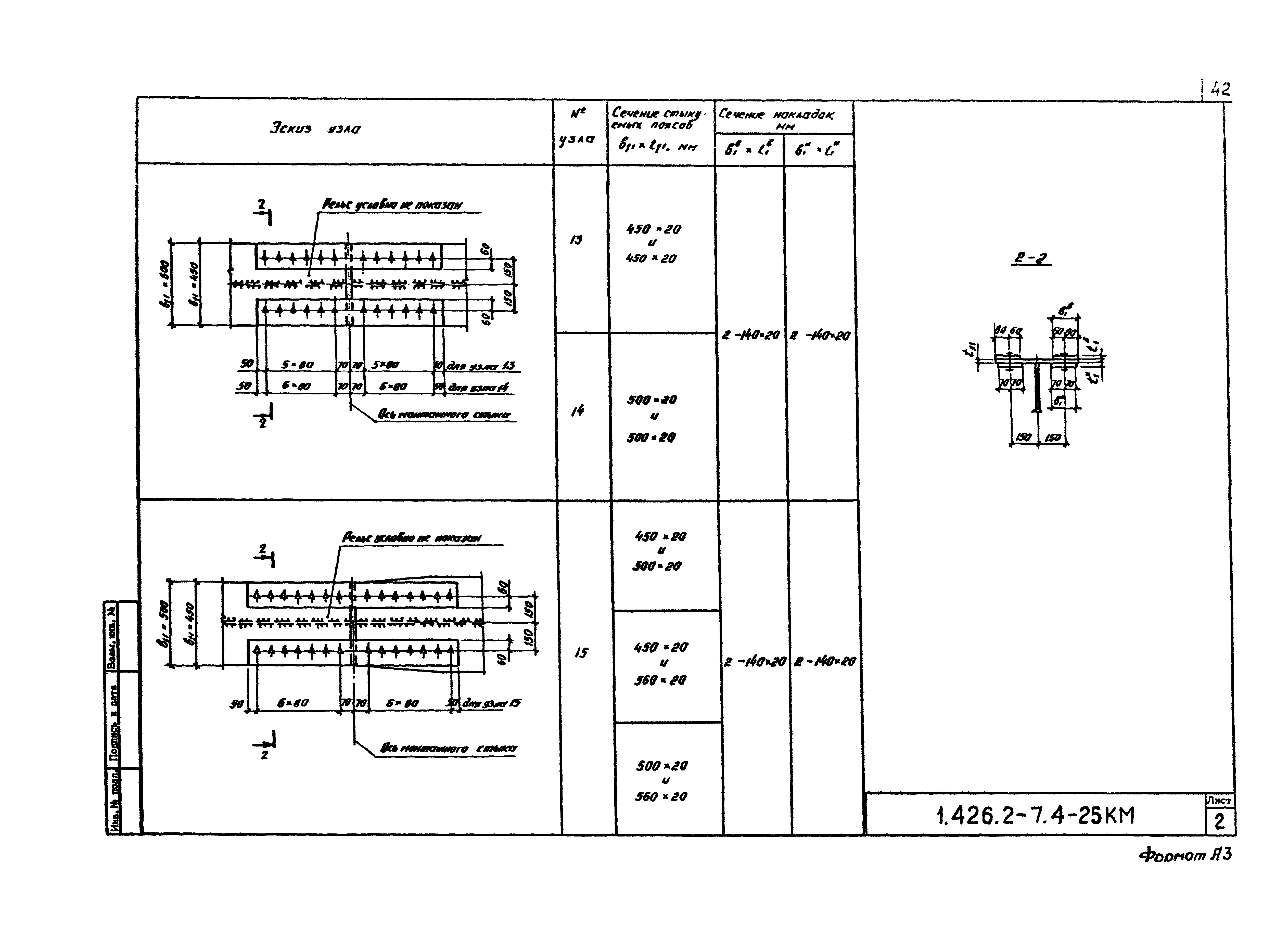
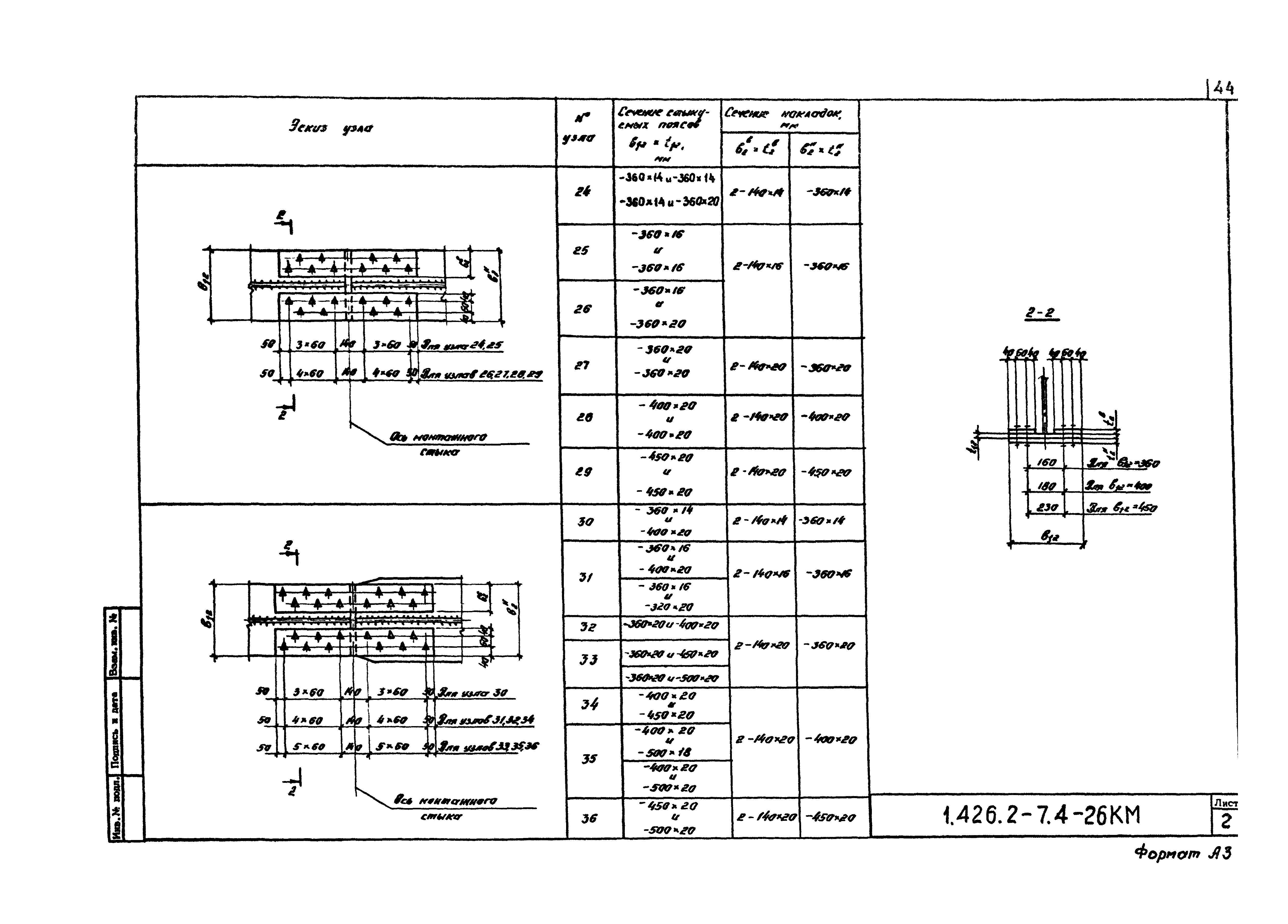
| Оглавление: | 1.426.2-7.4-00ПЗКМ Пояснительная записка 1.426.2-7.4-01КМ Крановые нагрузки 1.426.2-7.4-02КМ Таблица выбора марок подкрановых балок для зданий баз проходов вдоль крановых путей 1.426.2-7.4-03КМ Таблица выбора марок подкрановых балок для зданий с проходами вдоль крановых путей 1.426.2-7.4-04КМ Таблица выбора марок тормозных конструкций 1.426.2-7.4-05КМ Сортамент подкрановых балок 1.426.2-7.4-06КМ Сортамент тормозных ферм 1.426.2-7.4-07КМ Сортамент тормозных балок 1.426.2-7.4-08КМ Общий вид подкрановых балок 1.426.2-7.4-09КМ Детали подкрановых балок. Узлы 1...3 1.426.2-7.4-10КМ Схемы тормозных ферм по крайним рядам колонн 1.426.2-7.4-11КМ Схемы тормозных ферм до средним рядам колонн 1.426.2-7.4-12КМ Схемы тормозных балок по крайним рядам колонн 1.426.2-7.4-13КМ Схемы тормозных балок по средним рядам колонн 1.426.2-7.4-14КМ Маркировка узлов опирания подкрановых балок на колонны и узлов связей 1.426.2-7.4-15КМ Узлы подкрановых конструкций. Узлы 4...11 1.426.2-7.4-16КМ Узлы подкрановых конструкций. Узлы 12...15 1.426.2-7.4-17КМ Узлы подкрановых конструкций. Узлы 16... 19 1.426.2-7.4-18КМ Узлы подкрановых конструкций. Узлы 20...23 1.426.2-7.4-19КМ Узлы подкрановых конструкций. Узлы 24...26 1.426.2-7.4-20КМ Опирание подкрановых балок на колонны. Узлы 27,28 1.426.2-7.4-21КМ Узлы 29,30. Концевой упор 1.426.2-7.4-22КМ Расположение отверстий в тормозных конструкциях для крепления рельсов. Крепление перил 1.426.2-7.4-23КМ Таблица выбора монтажных стыков на высокопрочных болтах 1.426.2-7.4-24КМ Монтажный стык стенки балки 1.426.2-7.4-25КМ Монтажный стык верхнего пояса балки 1.426.2-7.4-26КМ Монтажный стык нижнего пояса балки 1.426.2-7.4-27КМ Расположение отверстий в верхних поясах подкрановых балок 1.426.2-7.4-28КМ Сортамент сечений подкрановых балок 1.426.2-7.4-29КМ Спецификация стали на подкрановые балки 1.426.2-7.4-30КМ Спецификация стали на тормозные конструкции 1.426.2-7.4-31КМ Спецификация стали на детали монтажных стыков балок 1.426.2-7.4-32КМ Расчетные вертикальные нагрузки на колонны 1.426.2-7.4-33КМ Расчетные горизонтальные нагрузки на колонны и для крепления балок 1.426.2-7.4-34КМ Расчетные отрывающие усилия на колонны |
| Разработан: | ЦНИИПСК им. Мельникова ФГУП Уралтиппроект |
| Утверждён: | 01.06.1989 ЦНИИпроектстальконструкция (TsNIIprojectstalkonstruktsiya ) |































































