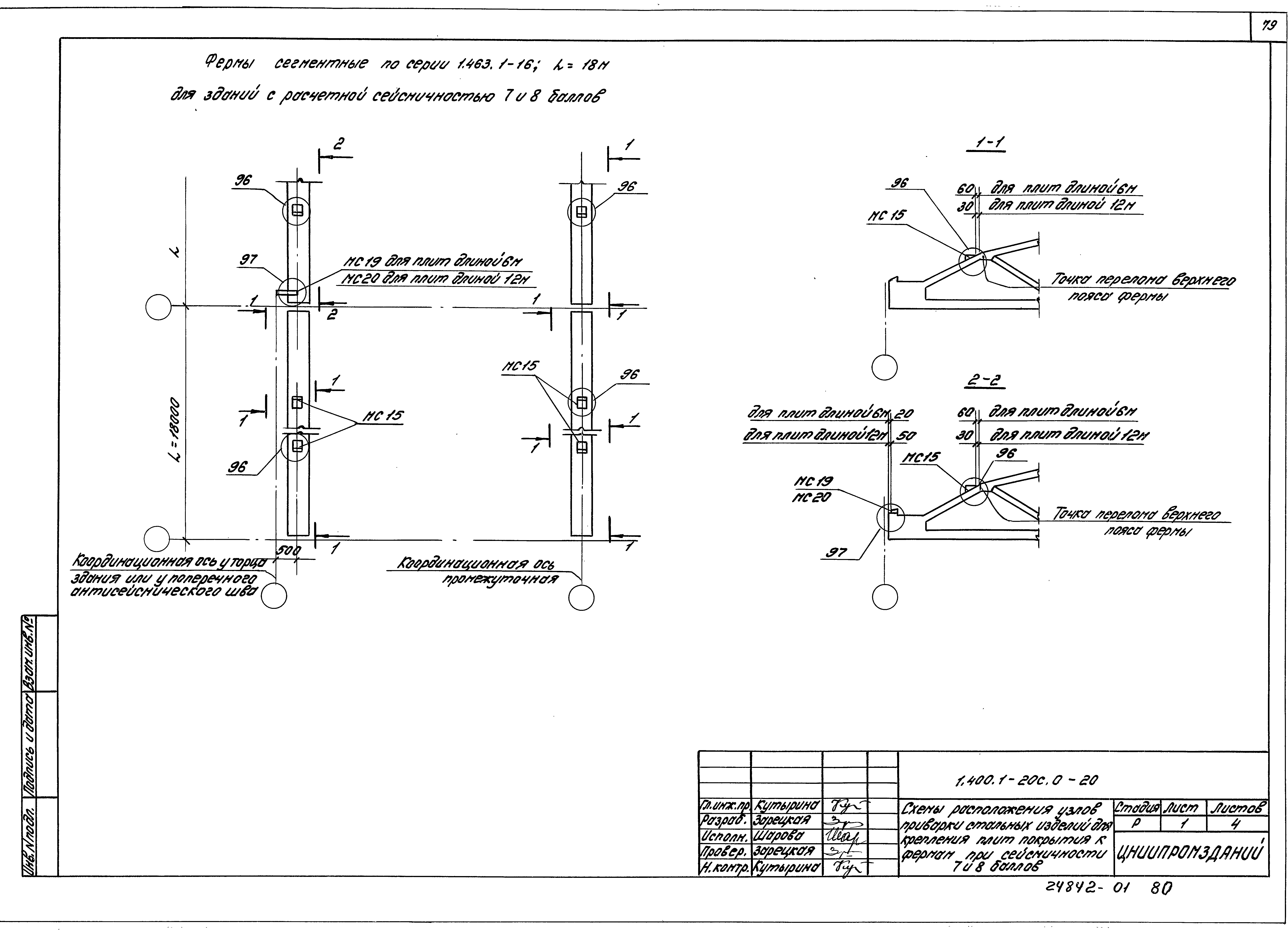
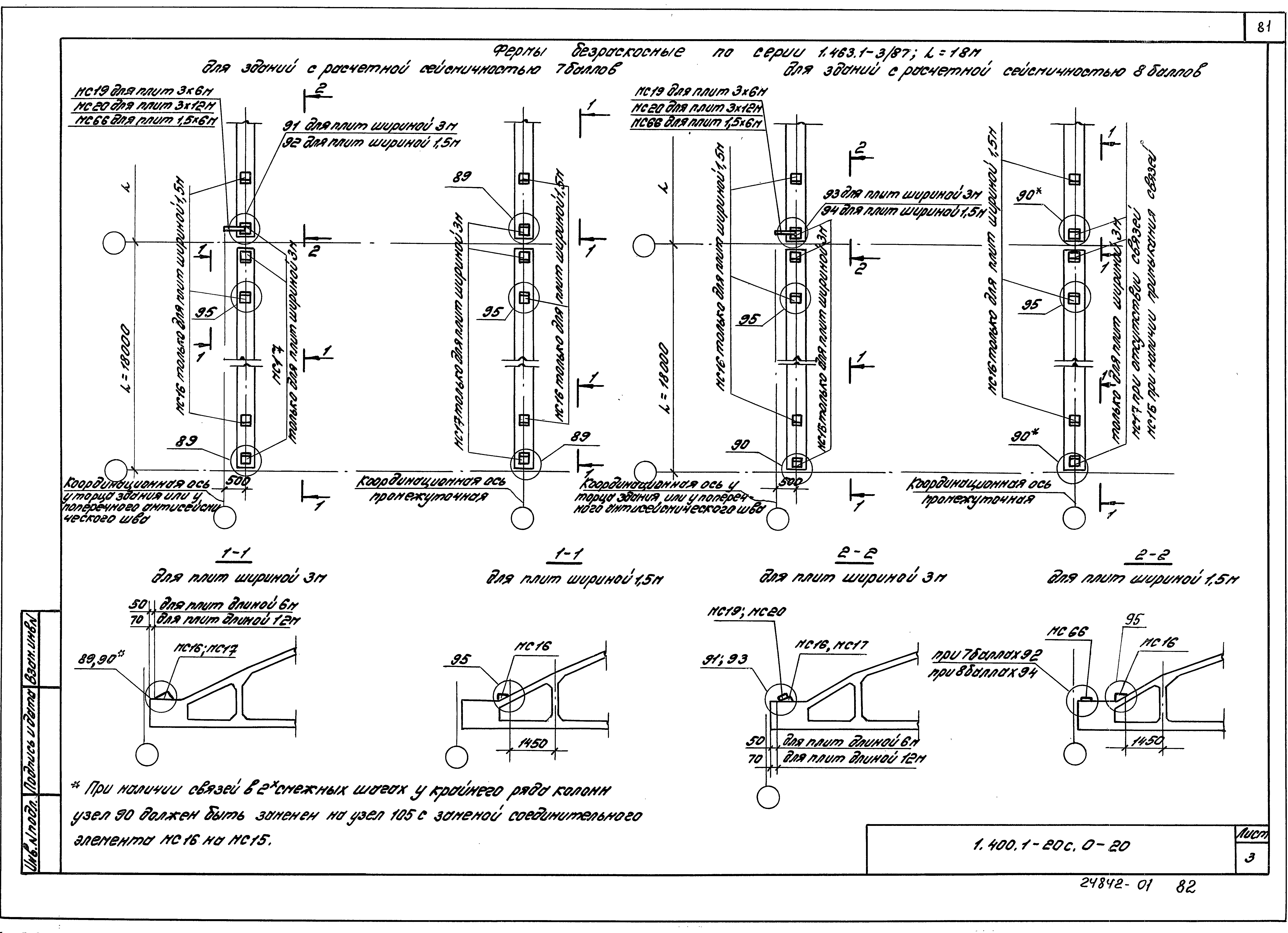
Скачать Серия 1.400.1-20с Выпуск 0. Материалы для проектированияДата актуализации: 01.01.2021 Серия 1.400.1-20с
Выпуск 0. Материалы для проектирования| Обозначение: | Серия 1.400.1-20с | | Обозначение англ: | Series 1.400.1-20с | | Статус: | не определен законодательством | | Название рус.: | Выпуск 0. Материалы для проектирования | | Дата добавления в базу: | 01.09.2013 | | Дата актуализации: | 01.01.2021 | | Дата введения: | 01.06.1991 | | Дата окончания срока действия: | 30.06.2003 | | Разработан: | ЦНИИпромзданий
| | Утверждён: | 03.11.1989 Госстрой СССР (Государственный комитет Совета Министров СССР по делам строительства) (USSR Gosstroy )
|
                                                                                         
|