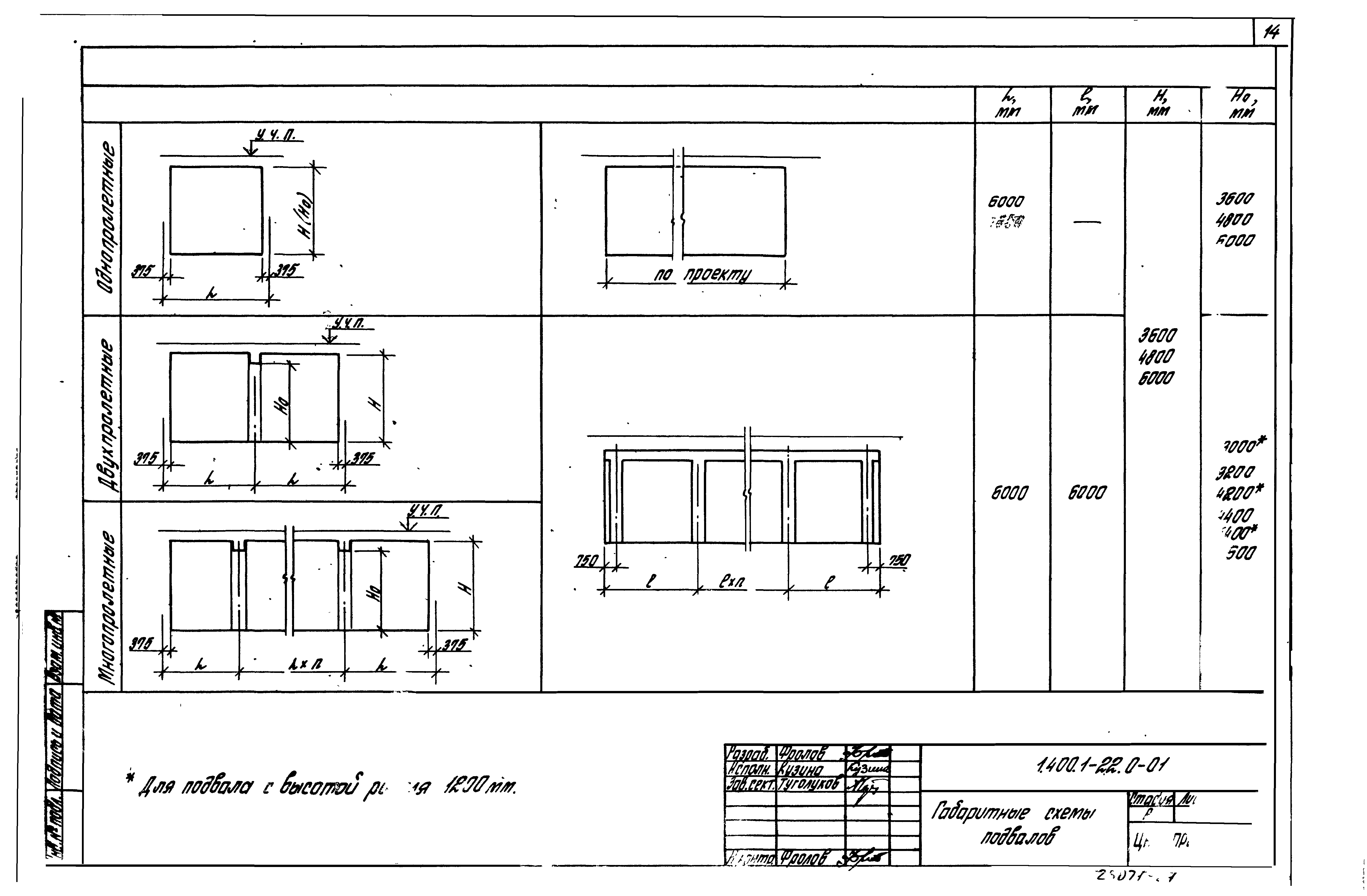
Скачать Серия 1.400.1-22 Выпуск 0. Материалы для проектированияДата актуализации: 01.01.2021 Серия 1.400.1-22
Выпуск 0. Материалы для проектирования| Обозначение: | Серия 1.400.1-22 | | Обозначение англ: | Series 1.400.1-22 | | Статус: | не определен законодательством | | Название рус.: | Выпуск 0. Материалы для проектирования | | Дата добавления в базу: | 01.09.2013 | | Дата актуализации: | 01.01.2021 | | Дата введения: | 01.01.1992 | | Дата окончания срока действия: | 30.06.2003 | | Разработан: | АО ЦНИИпромзданий
| | Утверждён: | 05.07.1991 Госстрой СССР (Государственный комитет Совета Министров СССР по делам строительства) (USSR Gosstroy 5/6-232)
| | Издан: | АПП ЦИТП (1991 г. )
|
                     
|