Скачать Серия 1.420.2-27 Выпуск 3. Подкрановые балки и пути подвесного транспорта. Материалы для проектированияДата актуализации: 01.01.2021
|
| Обозначение: | Серия 1.420.2-27 |
| Обозначение англ: | Series 1.420.2-27 |
| Статус: | не определен законодательством |
| Название рус.: | Выпуск 3. Подкрановые балки и пути подвесного транспорта. Материалы для проектирования |
| Дата добавления в базу: | 01.09.2013 |
| Дата актуализации: | 01.01.2021 |
| Дата введения: | 01.03.1990 |
| Дата окончания срока действия: | 30.06.2003 |
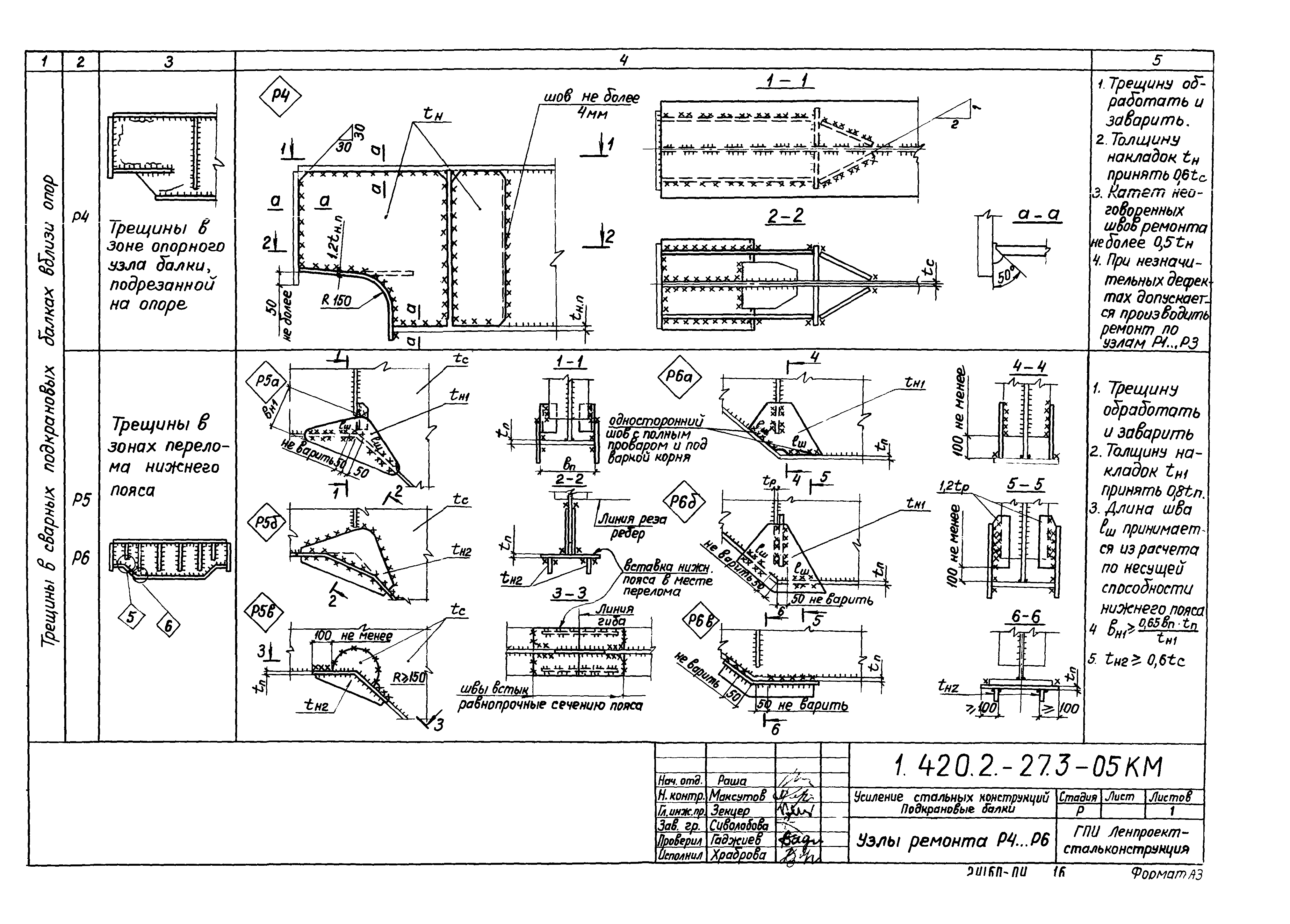
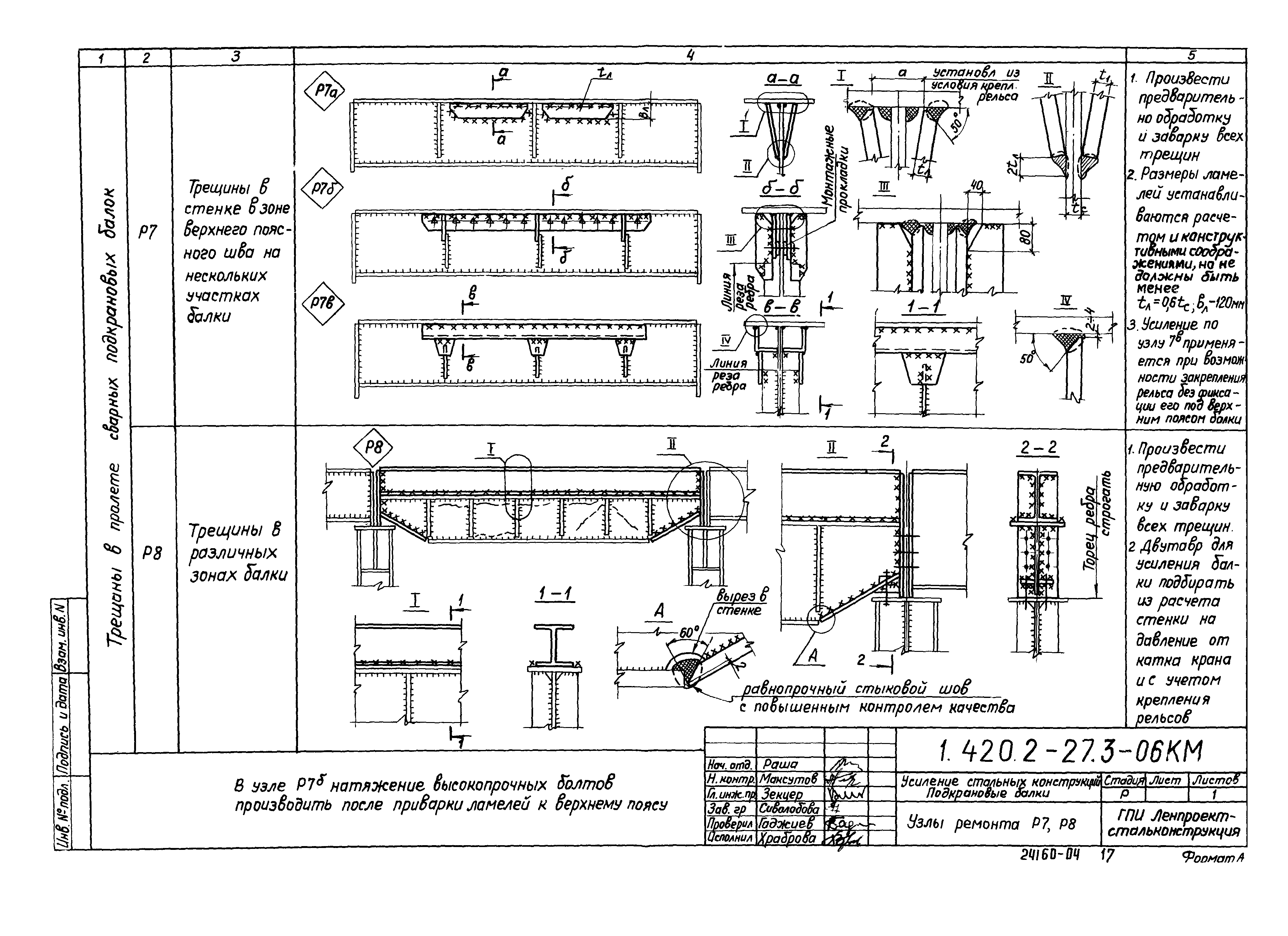
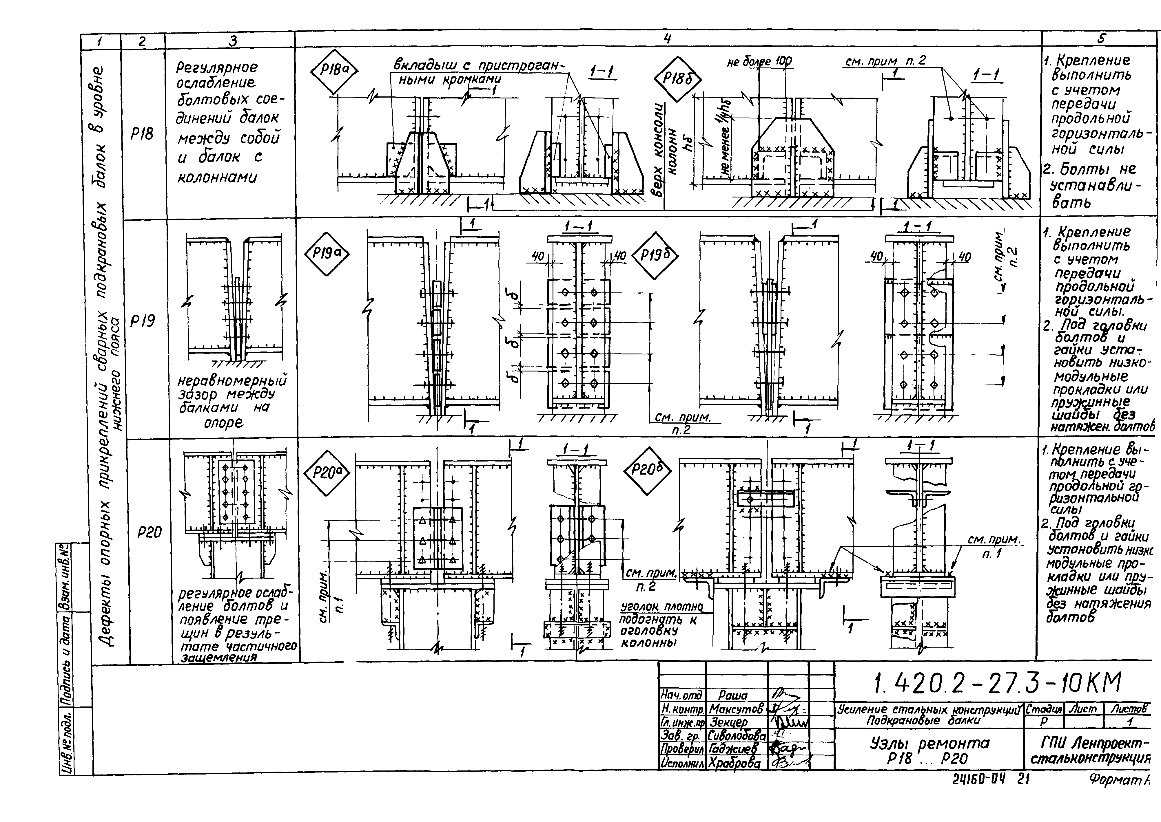
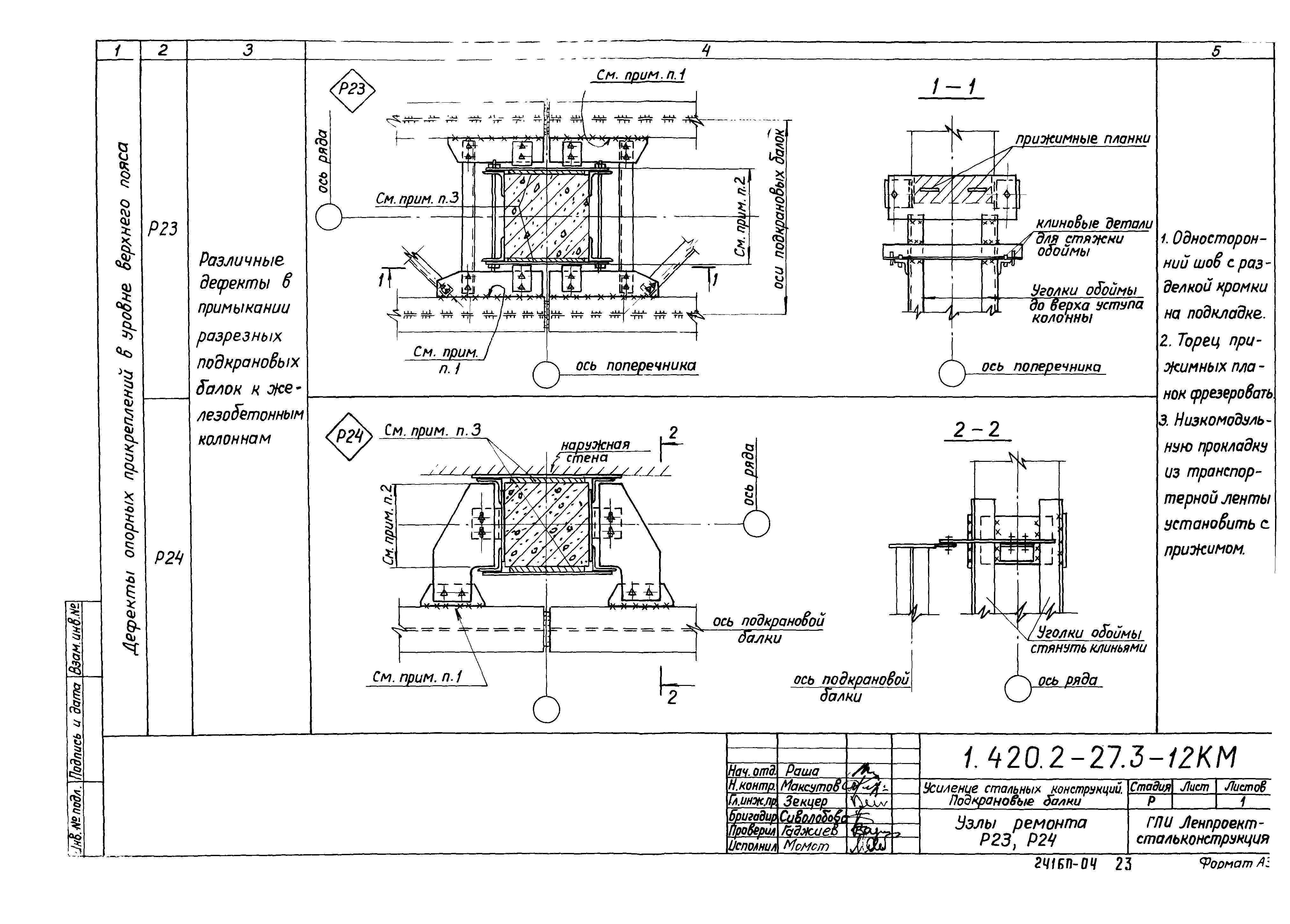
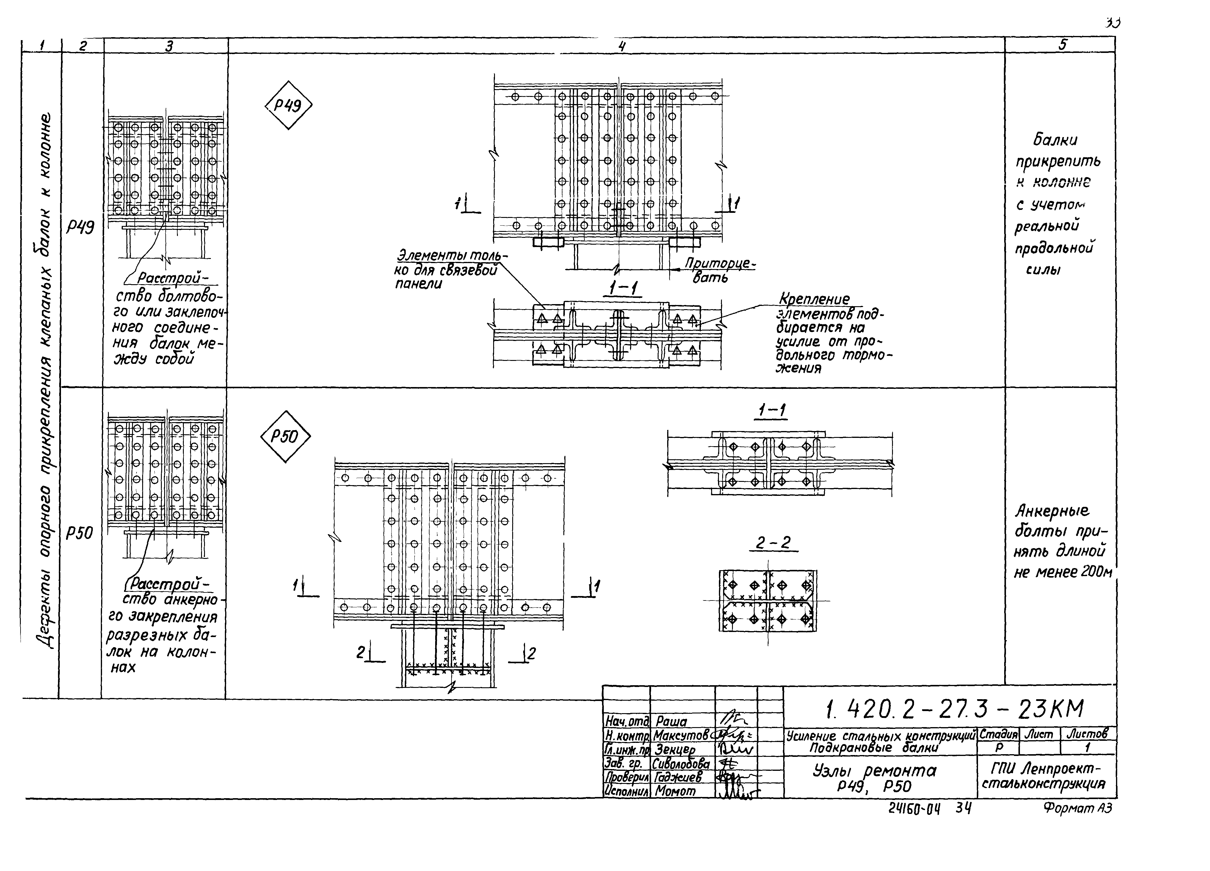
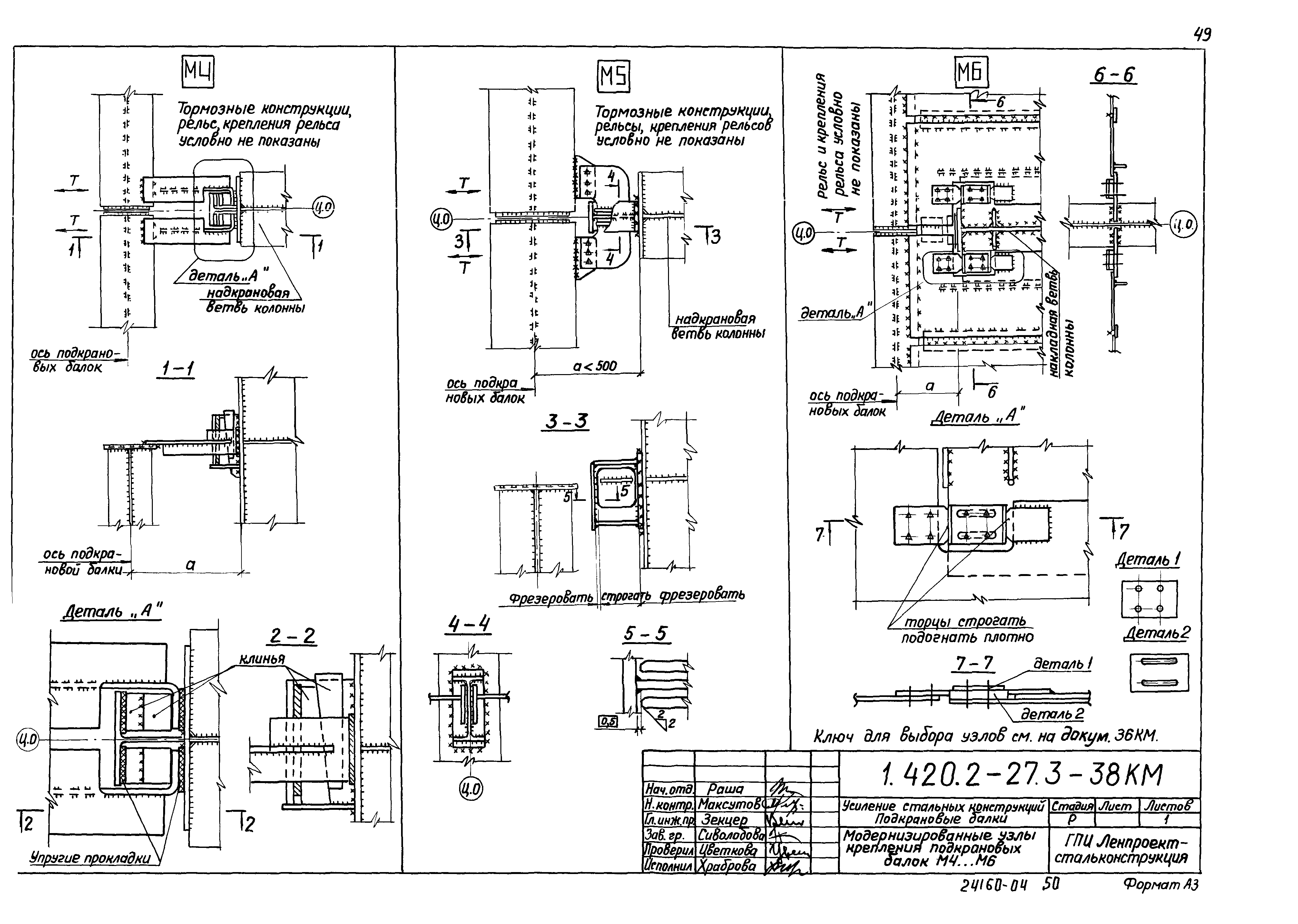
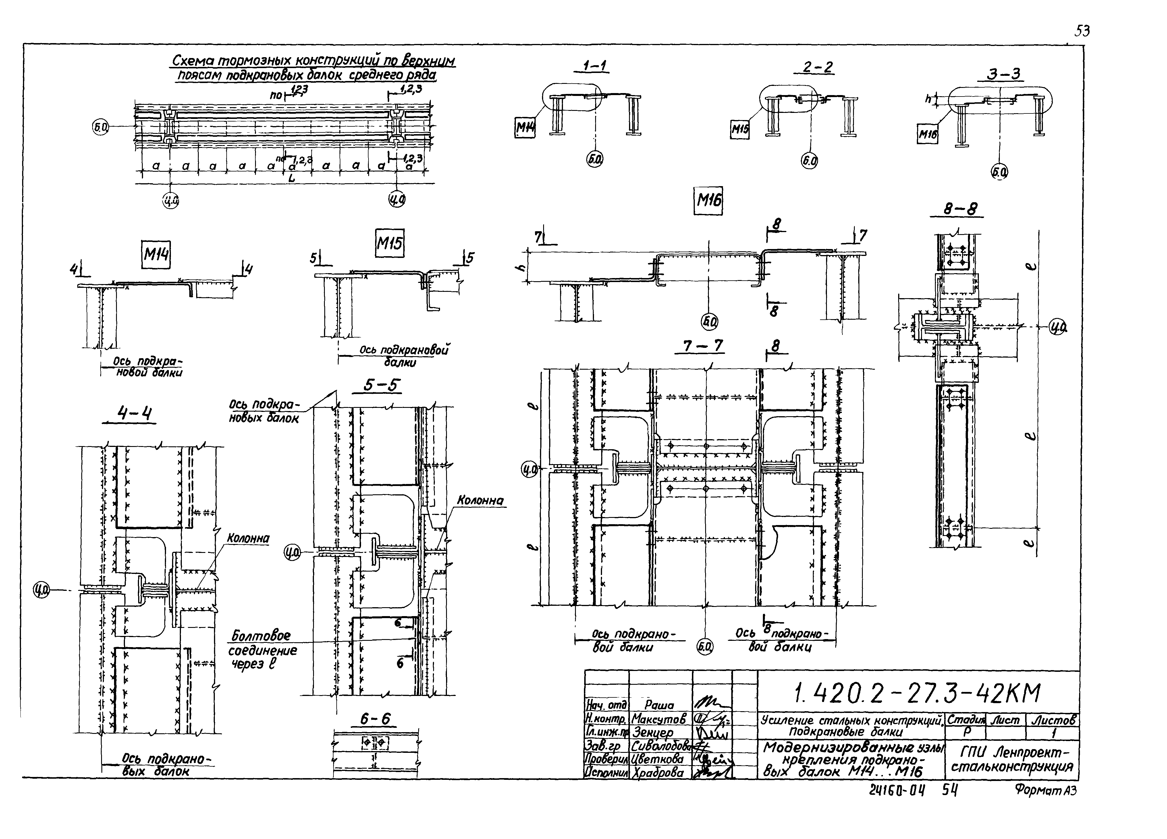
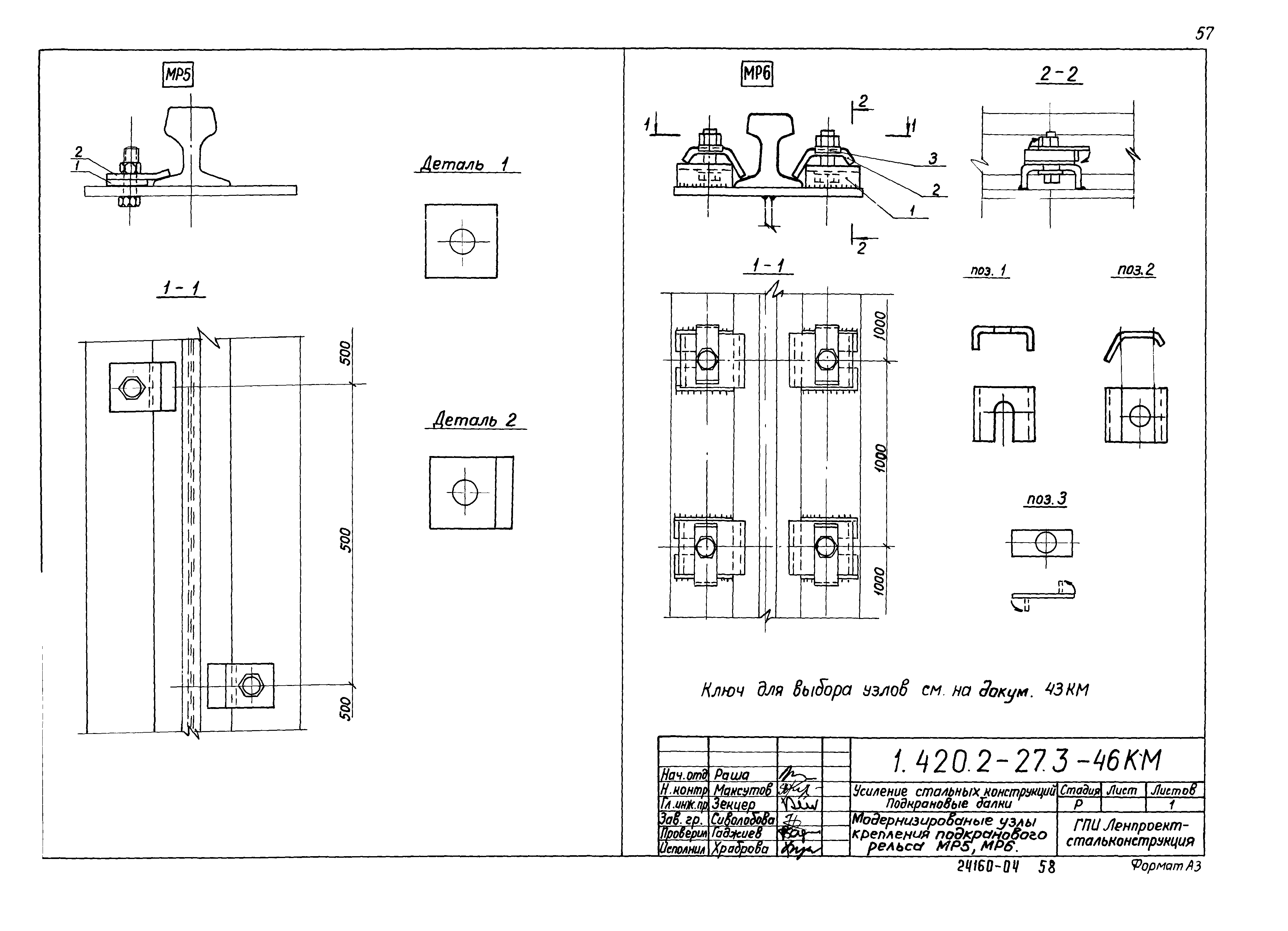
| Оглавление: | 1.420.2-27.3-0ПЗКМ Пояснительная записка 1.420.2-27.3-01КМ Характерные повреждения подкрановых конструкций 1.420.2-27.3-02КМ Ключ для выбора узлов ремонта сварных подкрановых балок 1.420.2-27.3-03КМ Ключ для выбора узлов ремонта клепаных подкрановых балок 1.420.2-27.3-04КМ Узлы ремонта Р1...Р3 1.420.2-27.3-05КМ Узлы ремонта Р4...Р6 1.420.2-27.3-06КМ Узлы ремонта Р6,Р8 1.420.2-27.3-07КМ Узлы ремонта Р9...Р11 1.420.2-27.3-08КМ Узлы ремонта Р12...Р14 1.420.2-27.3-09КМ Узлы ремонта Р15...Р17 1.420.2-27.3-10КМ Узлы ремонта Р18...Р20 1.420.2-27.3-11КМ Узлы ремонта Р21,Р22 1.420.2-27.3-12КМ Узлы ремонта Р23,Р24 1.420.2-27.3-13КМ Узлы ремонта Р25...Р28 1.420.2-27.3-14КМ Узлы ремонта Р29,Р30 1.420.2-27.3-15КМ Узлы ремонта Р31,Р32 1.420.2-27.3-16КМ Узлы ремонта Р33...Р35 1.420.2-27.3-17КМ Узлы ремонта Р36,Р37 1.420.2-27.3-18КМ Узел ремонта Р38 1.420.2-27.3-19КМ Узлы ремонта Р39,Р40 1.420.2-27.3-20КМ Узлы ремонта Р41,Р42 1.420.2-27.3-21КМ Узлы ремонта Р43...Р46 1.420.2-27.3-22КМ Узлы ремонта Р47,Р48 1.420.2-27.3-23КМ Узлы ремонта Р49,Р50 1.420.2-27.3-24КМ Схемы усиления УI-1...УI-4 1.420.2-27.3-25КМ Схемы усиления УI-5...УI-7 1.420.2-27.3-26КМ Схемы усиления УI-8...УI-10 1.420.2-27.3-27КМ Схемы усиления УII-1...УII-3 1.420.2-27.3-28КМ Схемы усиления УIII-1...УIII-3,УIV-1 1.420.2-27.3-29КМ Схемы усиления УV-1,УV-2 1.420.2-27.3-30КМ Узлы усиления 1...6 1.420.2-27.3-31КМ Узлы усиления 7...11 1.420.2-27.3-32КМ Узлы усиления 12...15 1.420.2-27.3-33КМ Узлы усиления 16...19 1.420.2-27.3-34КМ Узлы усиления 20...23 1.420.2-27.3-35КМ Узлы усиления 24,25 1.420.2-27.3-36КМ Ключ для выбора модернизированных узлов крепления подкрановых конструкций 1.420.2-27.3-37КМ Модернизированные узлы крепления подкрановых балок М1...М3 1.420.2-27.3-38КМ Модернизированные узлы крепления подкрановых балок М4...М6 1.420.2-27.3-39КМ Модернизированные узлы крепления подкрановых балок М7...М9 1.420.2-27.3-40КМ Модернизированные узлы крепления подкрановых балок М10,М11 1.420.2-27.3-41КМ Модернизированные узлы крепления подкрановых балок М12,М13 1.420.2-27.3-42КМ Модернизированные узлы крепления подкрановых балок М14...М16 1.420.2-27.3-43КМ Ключ для выбора модернизированных узлов крепления подкранового рельса 1.420.2-27.3-44КМ Модернизированные узлы крепления подкрановых балок МР1,МР2 1.420.2-27.3-45КМ Модернизированные узлы крепления подкранового рельса МР3,МР4 1.420.2-27.3-46КМ Модернизированные узлы крепления подкранового рельса МР5,МР6 1.420.2-27.3-47КМ Модернизированные узлы крепления подкранового рельса МР7 1.420.2-27.3-48КМ Ключ для выбора узлов крепления смещенных подкрановых конструкций 1.420.2-27.3-49КМ Узлы крепления смещенных подкрановых балок С1,С2 1.420.2-27.3-50КМ Узлы крепления смещенных подкрановых балок С3,С4 1.420.2-27.3-51КМ Узлы крепления смещенных подкрановых балок С5...С8 |
| Разработан: | Ленпроектстальконструкция |
| Утверждён: | 07.02.1989 Главпроект Госстроя СССР (4/6-183) |
| Издан: | ЦИТП Госстроя СССР (CITP, Gosstroy (USSR) 1990 г. ) |































































