Скачать Серия 2.860-7 Выпуск 3. Рамы пролетом 12, 18, 21 и 24 м для сельскохозяйственных зданий. Материалы для проектирования и рабочие чертежиДата актуализации: 01.01.2021
|
| Обозначение: | Серия 2.860-7 |
| Обозначение англ: | Series 2.860-7 |
| Статус: | не определен законодательством |
| Название рус.: | Выпуск 3. Рамы пролетом 12, 18, 21 и 24 м для сельскохозяйственных зданий. Материалы для проектирования и рабочие чертежи |
| Дата добавления в базу: | 01.09.2013 |
| Дата актуализации: | 01.01.2021 |
| Дата введения: | 01.01.1993 |
| Дата окончания срока действия: | 30.06.2003 |
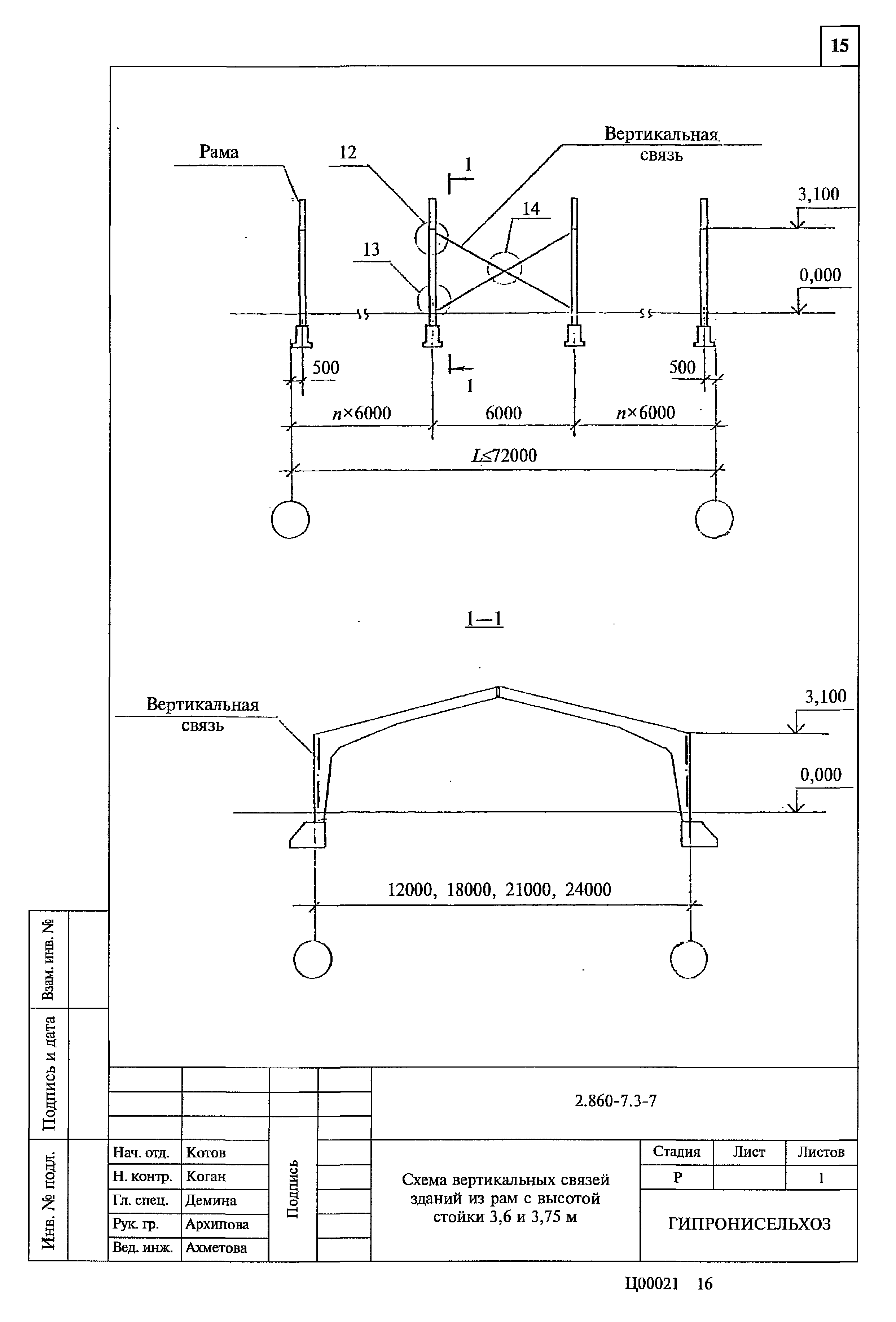
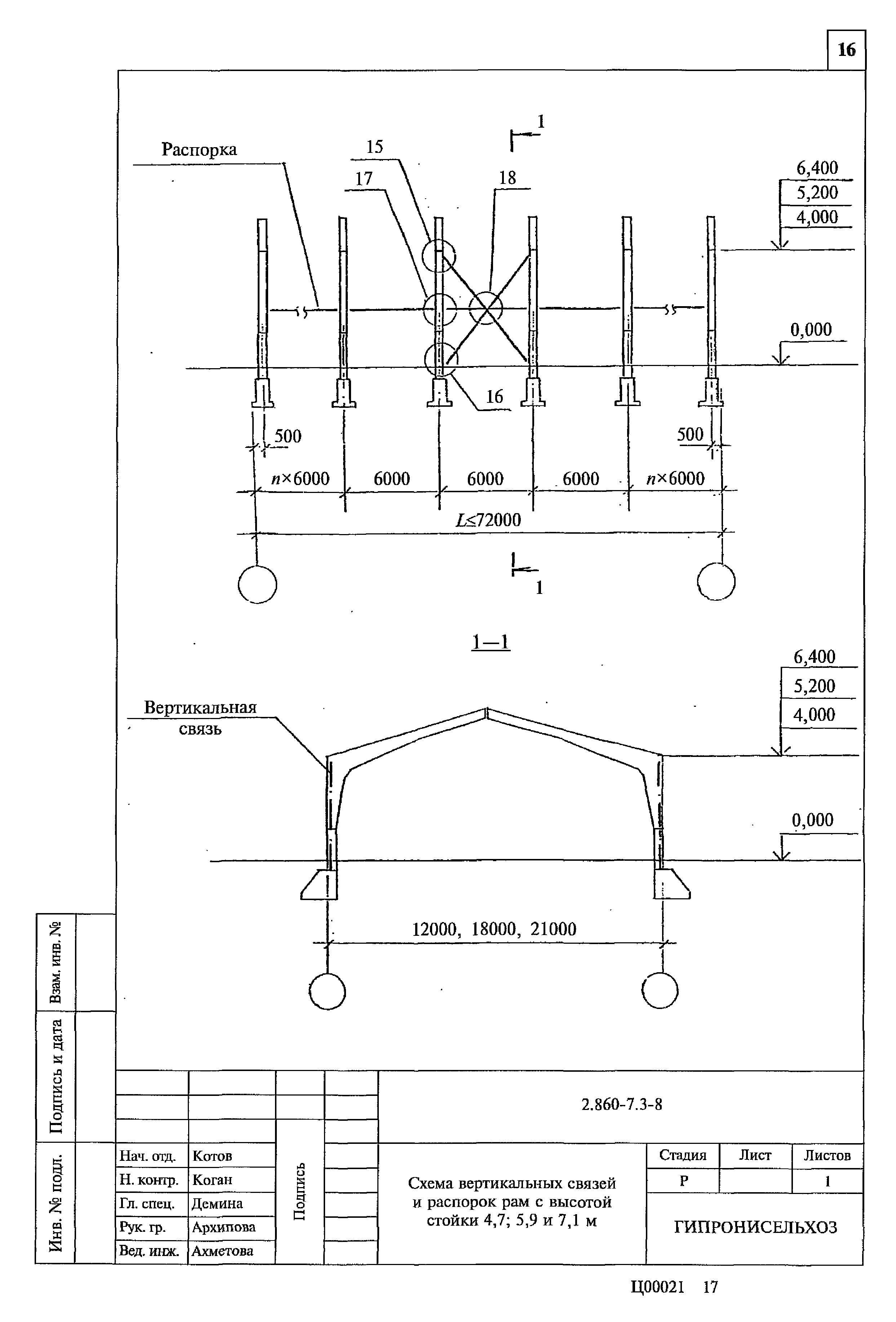
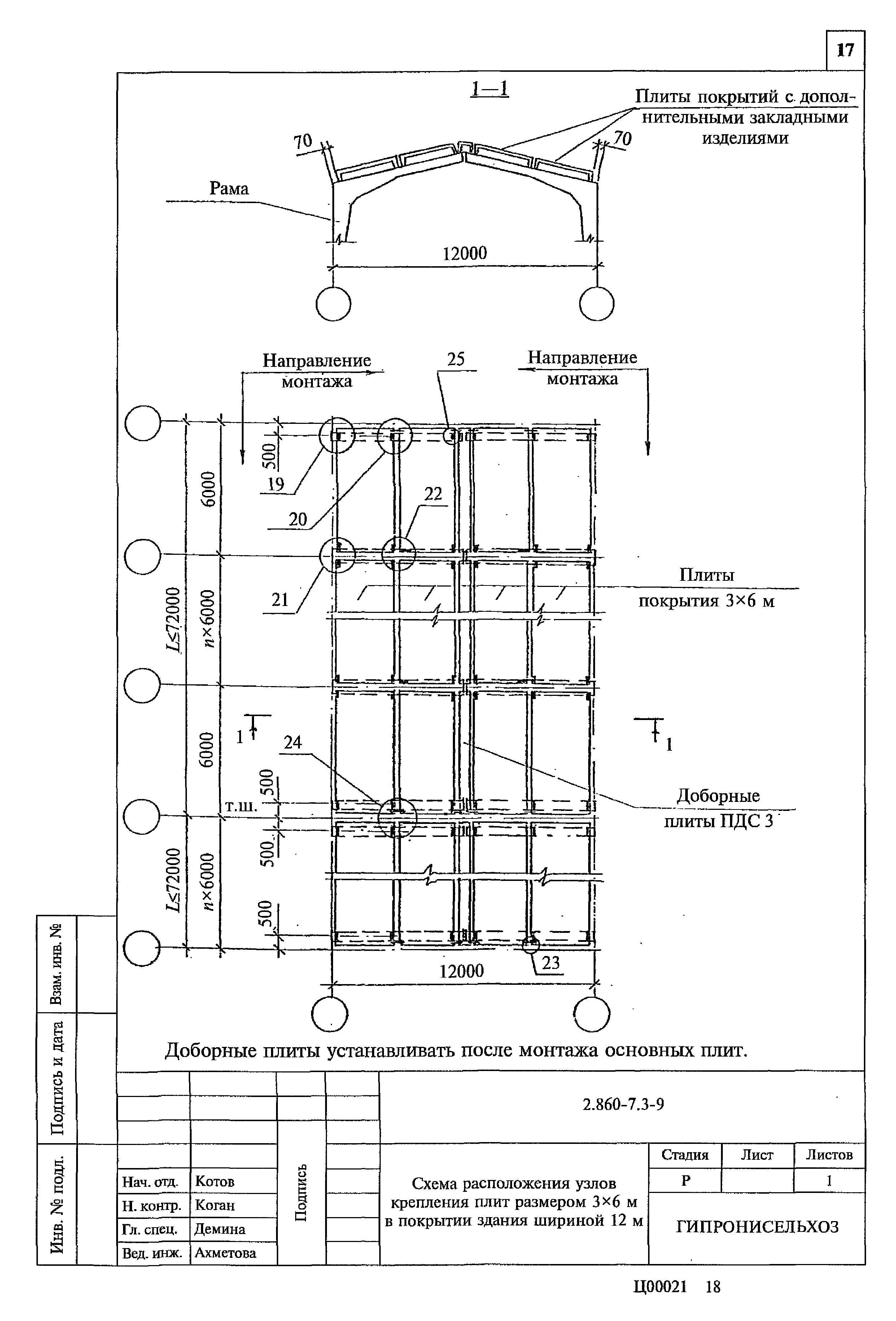
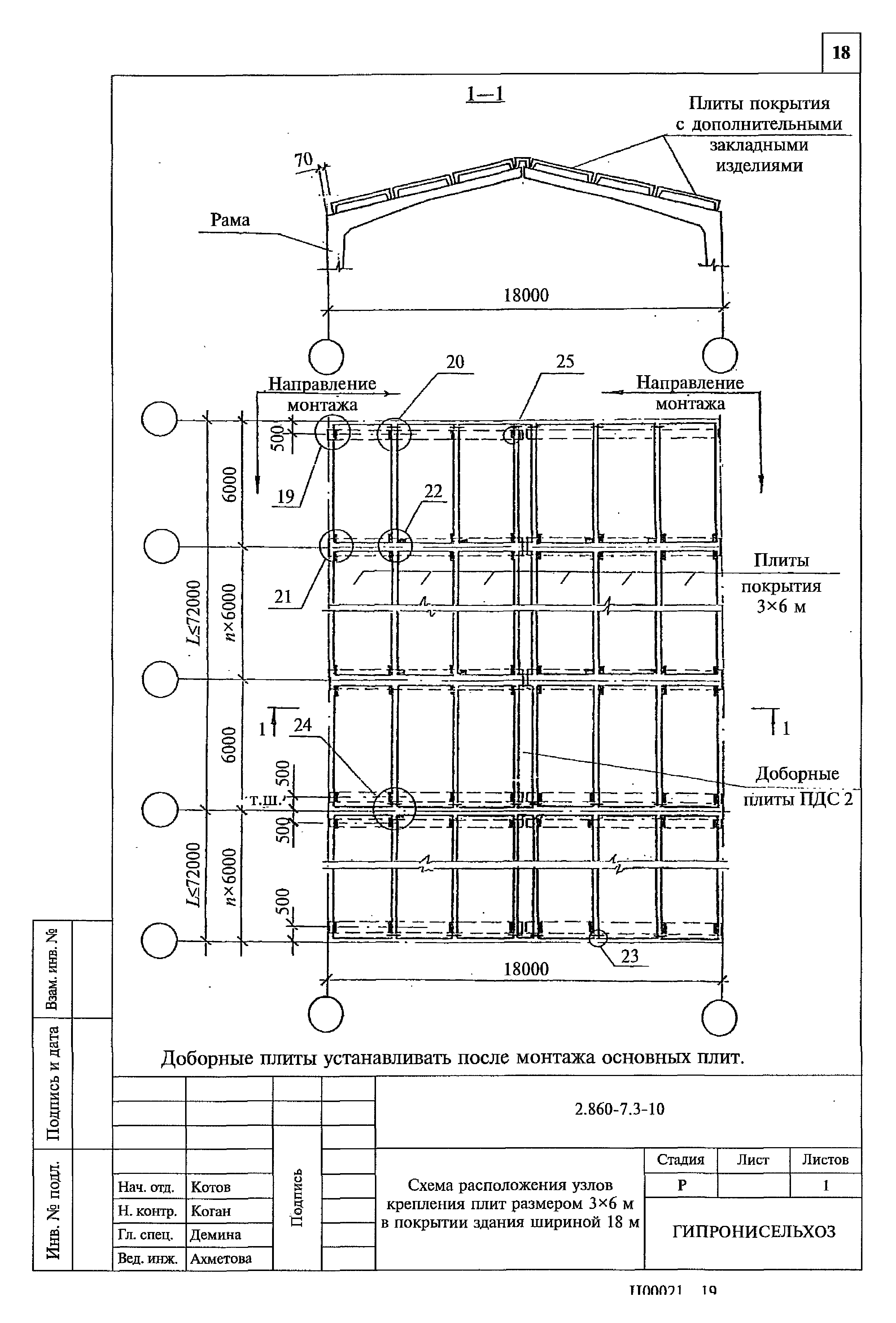
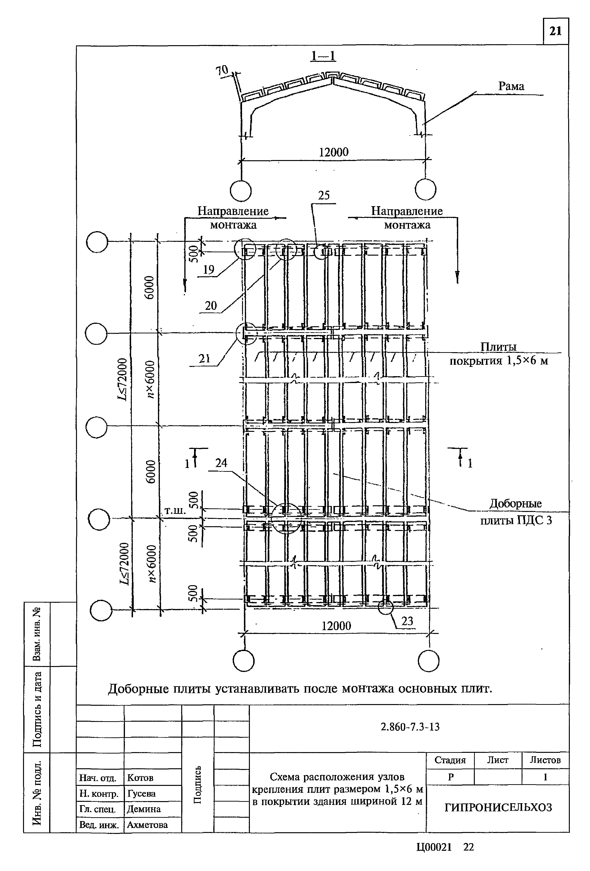
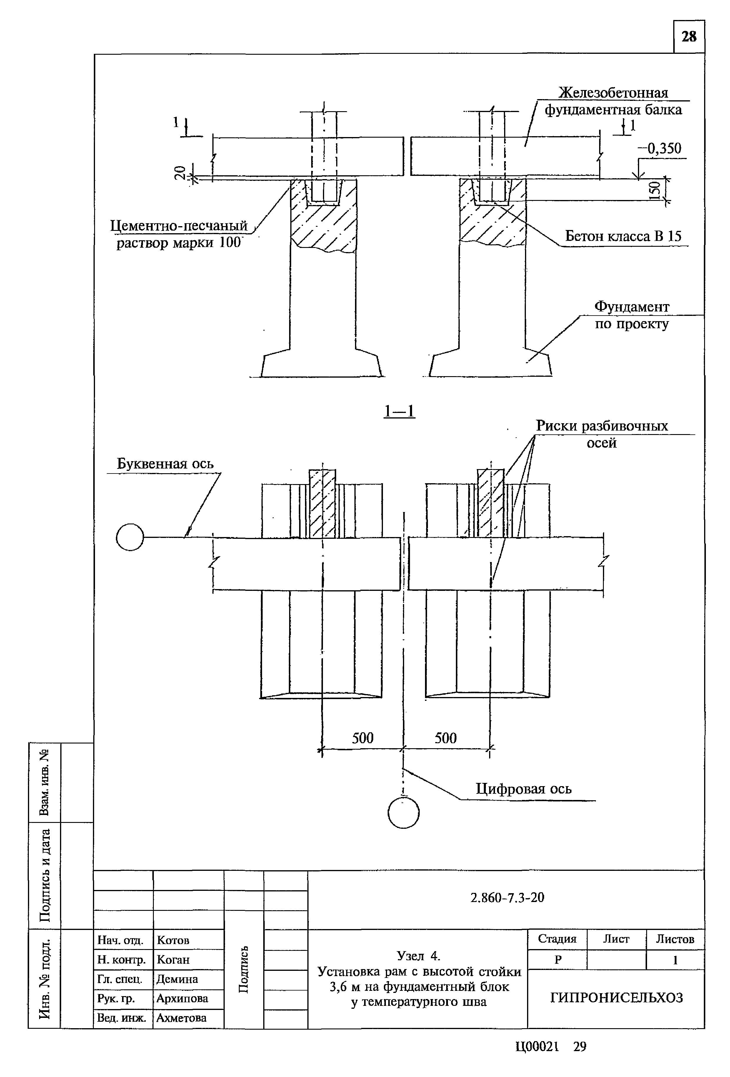
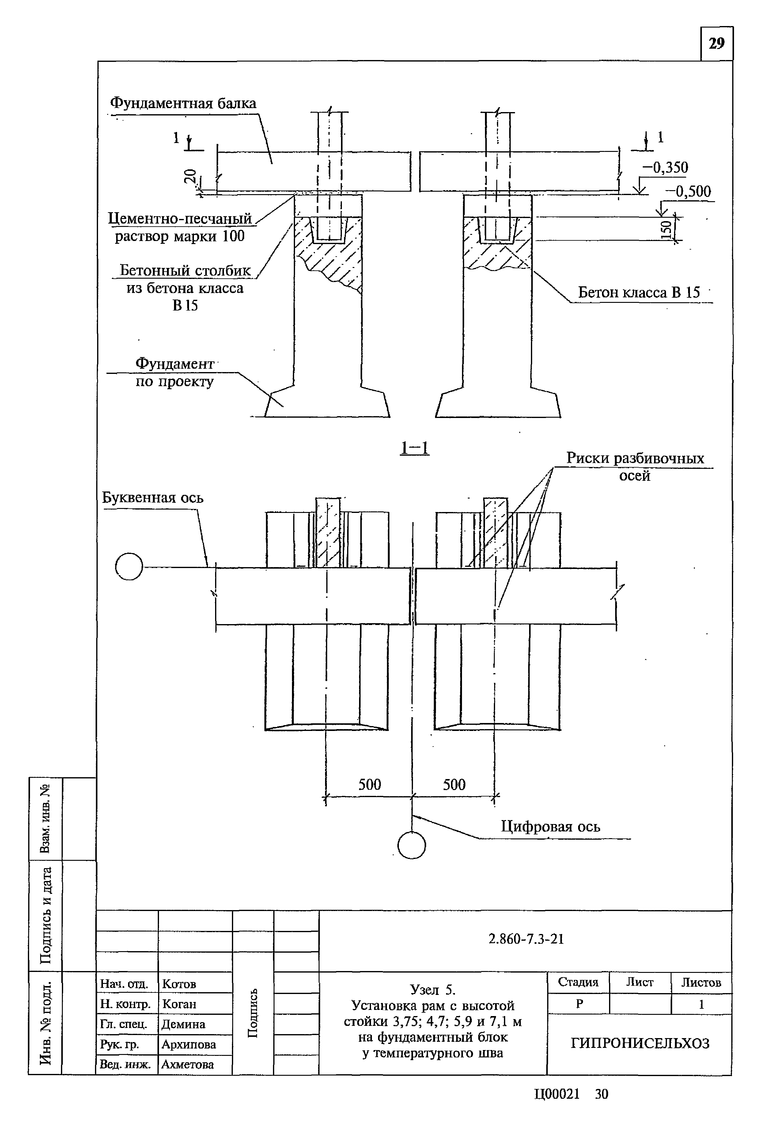
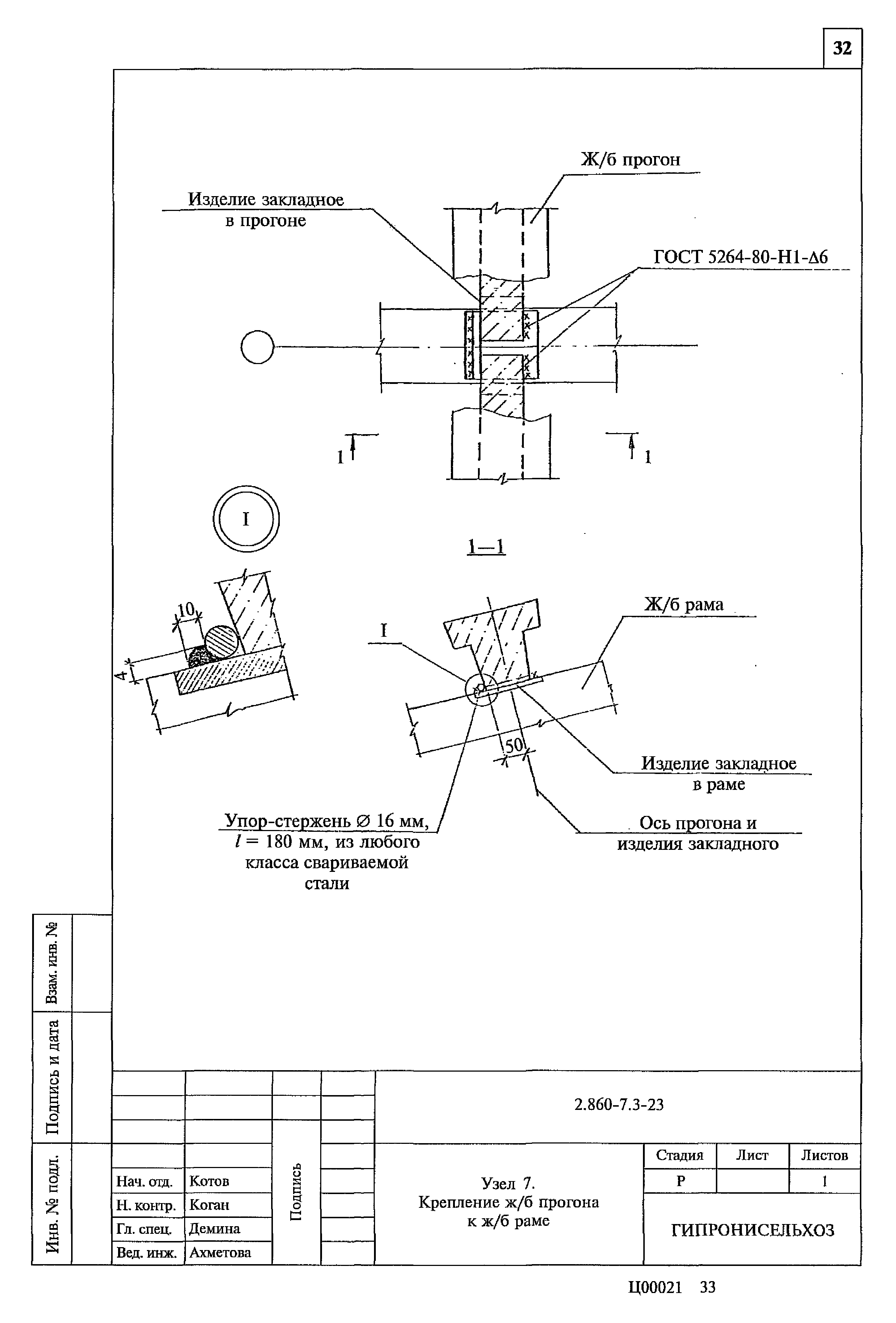
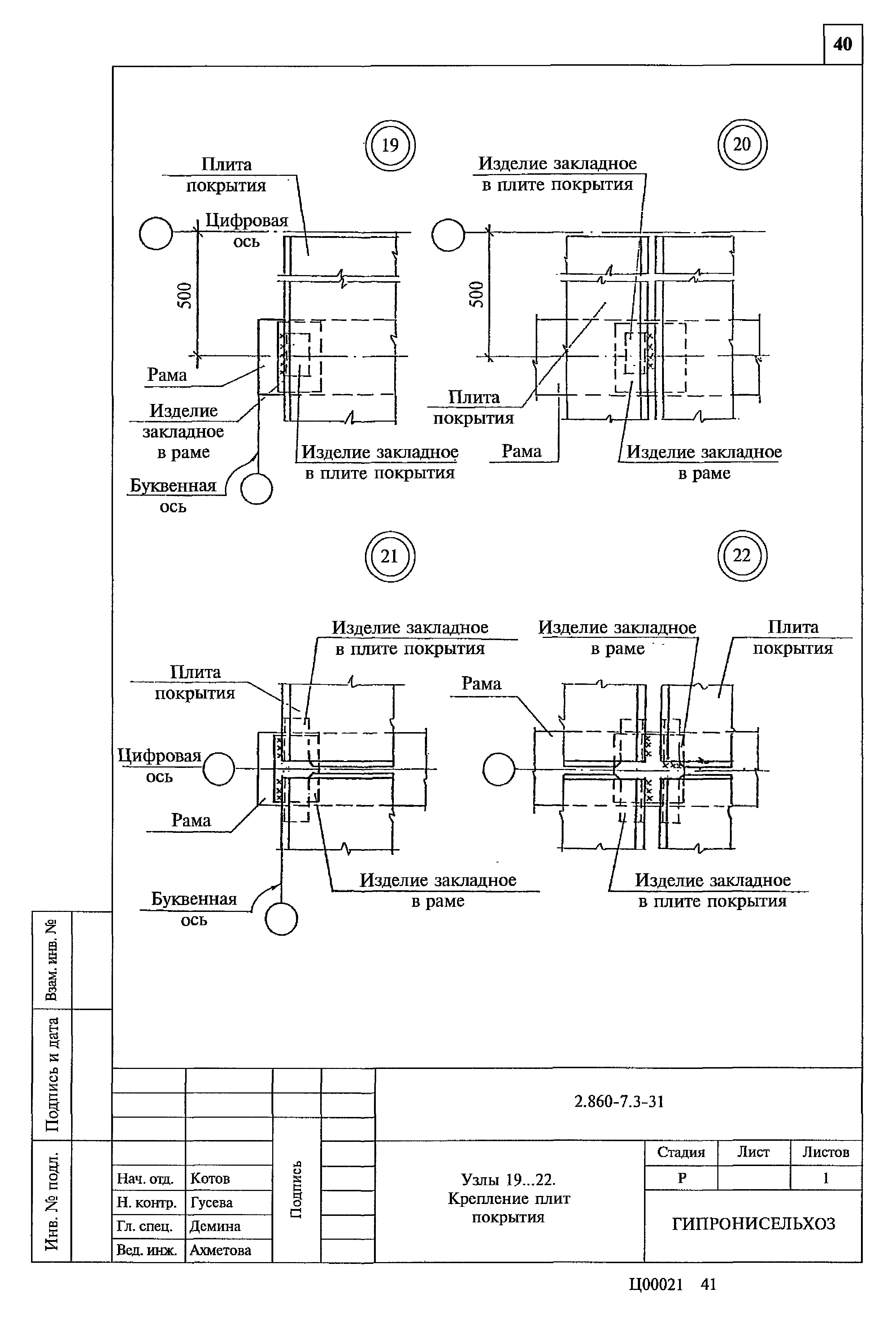
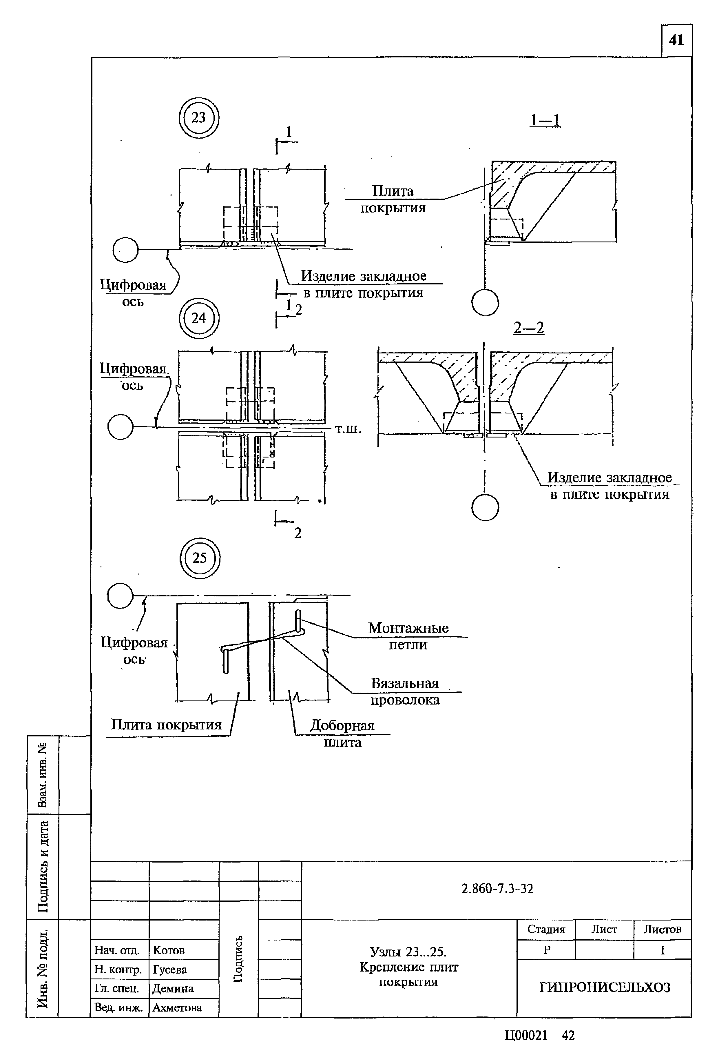
| Оглавление: | 2.860-7.3-ПЗ Пояснительная записка 2.860-7.3-1 Схема каркаса зданий из рам с высотой стойки 3,6 и 3,75 м 2.860-7.3-2 Схема каркаса зданий из рам с высотой стойки 4,7; 5,9 и 7,1 м 2.860-7.3-3 Здание шириной 12 м. Схема горизонтальных связей 2.860-7.3-4 Здание шириной 18 м. Схема горизонтальных связей 2.860-7.3-5 Здание шириной 21м. Схема горизонтальных связей 2.860-7.3-6 Здание шириной 24 м. Схема горизонтальных связей 2.860-7.3-7 Схема вертикальных связей зданий из рам с высотой стойки 3,6 и 3,75 м 2.860-7.3-8 Схема вертикальных связей и распорок рам с высотой стойки 4,7; 5,9 и 7,1 м 2.860-7.3-9 Схема расположения узлов крепления плит размером 3x6 м в покрытии здания шириной 12 м 2.860-7.3-10 Схема расположения узлов крепления плит размером 3x6 м в покрытии здания шириной 18 м 2.860-7.3-11 Схема расположения узлов крепления плит размером 3x6 м в покрытии здания шириной 21 м 2.860-7.3-12 Схема расположения узлов крепления плит размером 3x6 м в покрытии здания шириной 24 м 2.860-7.3-13 Схема расположения узлов крепления плит размером 1,5x6 м в покрытии здания шириной 12 м 2.860-7.3-14 Схема расположения узлов крепления плит размером 1,5x6 м в покрытии здания шириной 18 м 2.860-7.3-15 Схема расположения узлов крепления плит размером 1,5x6 м в покрытии здания шириной 21 м 2.860-7.3-16 Схема расположения узлов крепления плит размером 1,5x6 м в покрытии здания шириной 24 м 2.860-7.3-17 Узел 1. Установка рам с высотой стойки 3,6 м на фундаментный блок 2.860-7.3-18 Узел 2. Установка рам с высотой стойки 3,75; 4,7; 5,9 и 7,1 м на фундаментный блок 2.860-7.3-19 Узел 3. Коньковый узел рамы 2.860-7.3-20 Узел 4. Установка рам с высотой стойки 3,6 м на фундаментный блок у температурного шва 2.860-7.3-21 Узел 5. Установка рам с высотой стойки 3,75; 4,7; 5,9 и 7,1 м на фундаментный блок у температурного шва 2.860-7.3-22 Узел 6, 6а. Соединение полурамы со стойкой удлинения 2.860-7.3-23 Узел 7. Крепление ж/б прогона к ж/б раме 2.860-7.3-24 Узел 8. Крепление горизонтальной связи к раме 2.860-7.3-25 Узел 9. Крепление горизонтальной связи к раме 2.860-7.3-26 Узел 10. Крепление горизонтальной связи к раме 2.860-7.3-27 Узел 11. Крепление горизонтальной связи к раме 2.860-7.3-28 Узлы 12...14. Крепление вертикальной связи к раме с высотой стойки 3,6 и 3,75 м 2.860-7.3-29 Узлы 15, 16. Крепление вертикальной связи к раме с высотой стойки 4,7; 5,9 и 7,1 м 2.860-7.3-30 Узлы 17, 18. Крепление распорок к раме с высотой стойки 4,7; 5,9 и 7,1 м 2.860-7.3-31 Узлы 19...22. Крепление плит покрытия 2.860-7.3-32 Узлы 23...25. Крепление плит покрытия 2.860-7.3-133 Изделие соединительное МС 1, МС 2 |
| Разработан: | ГипроНИсельхоз (Институт Гипронисельхоз ) |
| Утверждён: | 20.11.1991 Главоргпроект Госстроя СССР (5/4-65) |
| Заменяет собой: |










































