Скачать Серия 1.090.1-1/88 Выпуск 2-1. Панели наружных стен однослойные. Рабочие чертежиДата актуализации: 01.01.2021
|
| Обозначение: | Серия 1.090.1-1/88 |
| Обозначение англ: | Series 1.090.1-1/88 |
| Статус: | действует |
| Название рус.: | Выпуск 2-1. Панели наружных стен однослойные. Рабочие чертежи |
| Дата добавления в базу: | 01.09.2013 |
| Дата актуализации: | 01.01.2021 |
| Дата введения: | 01.10.1989 |
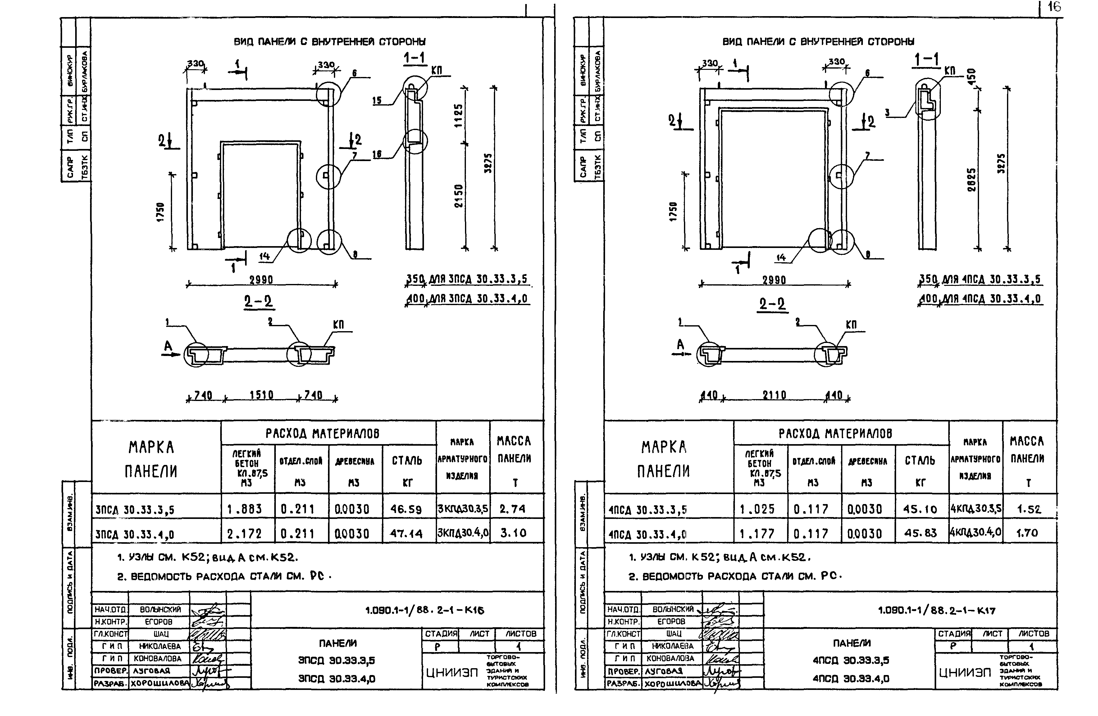
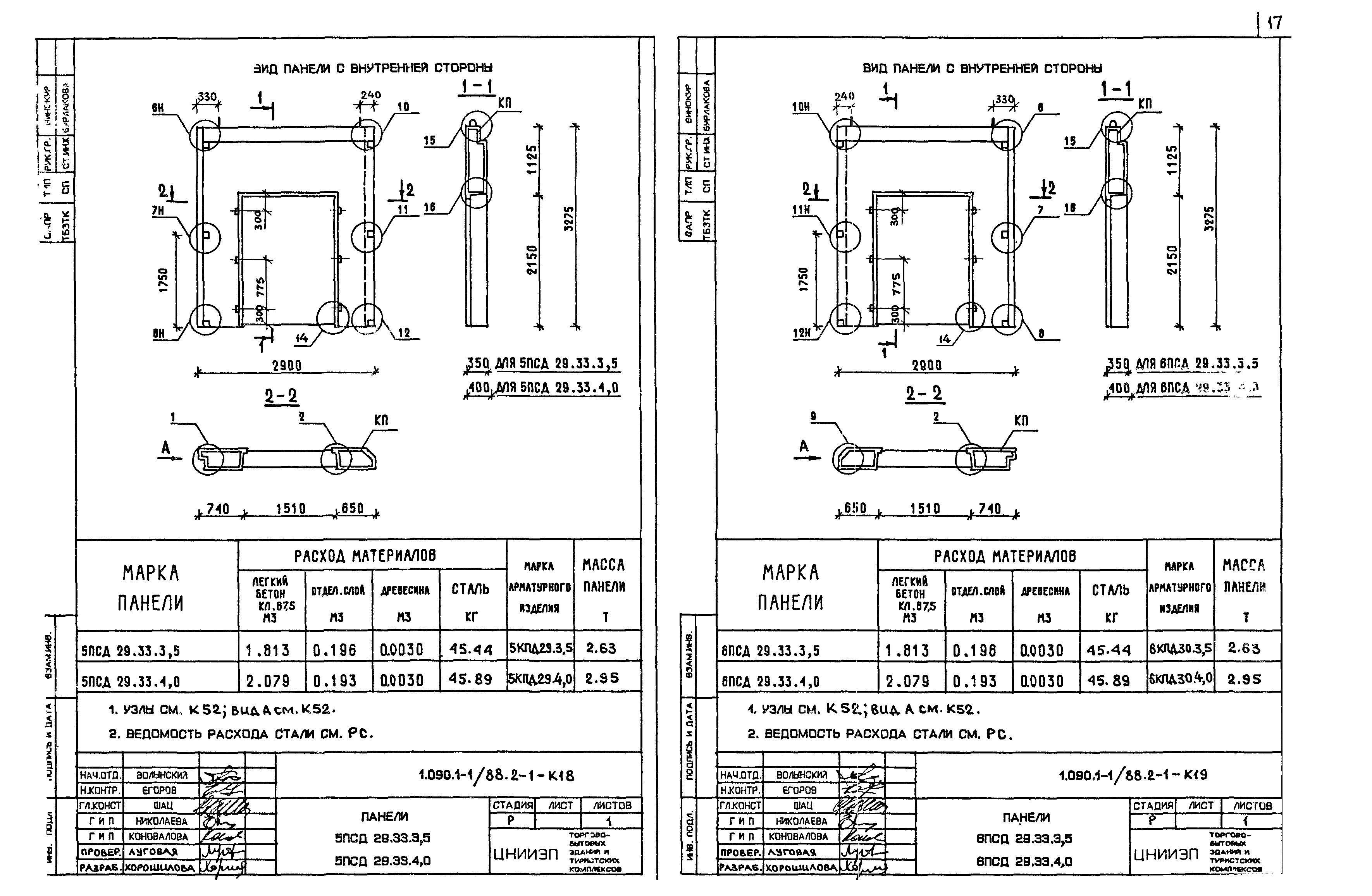
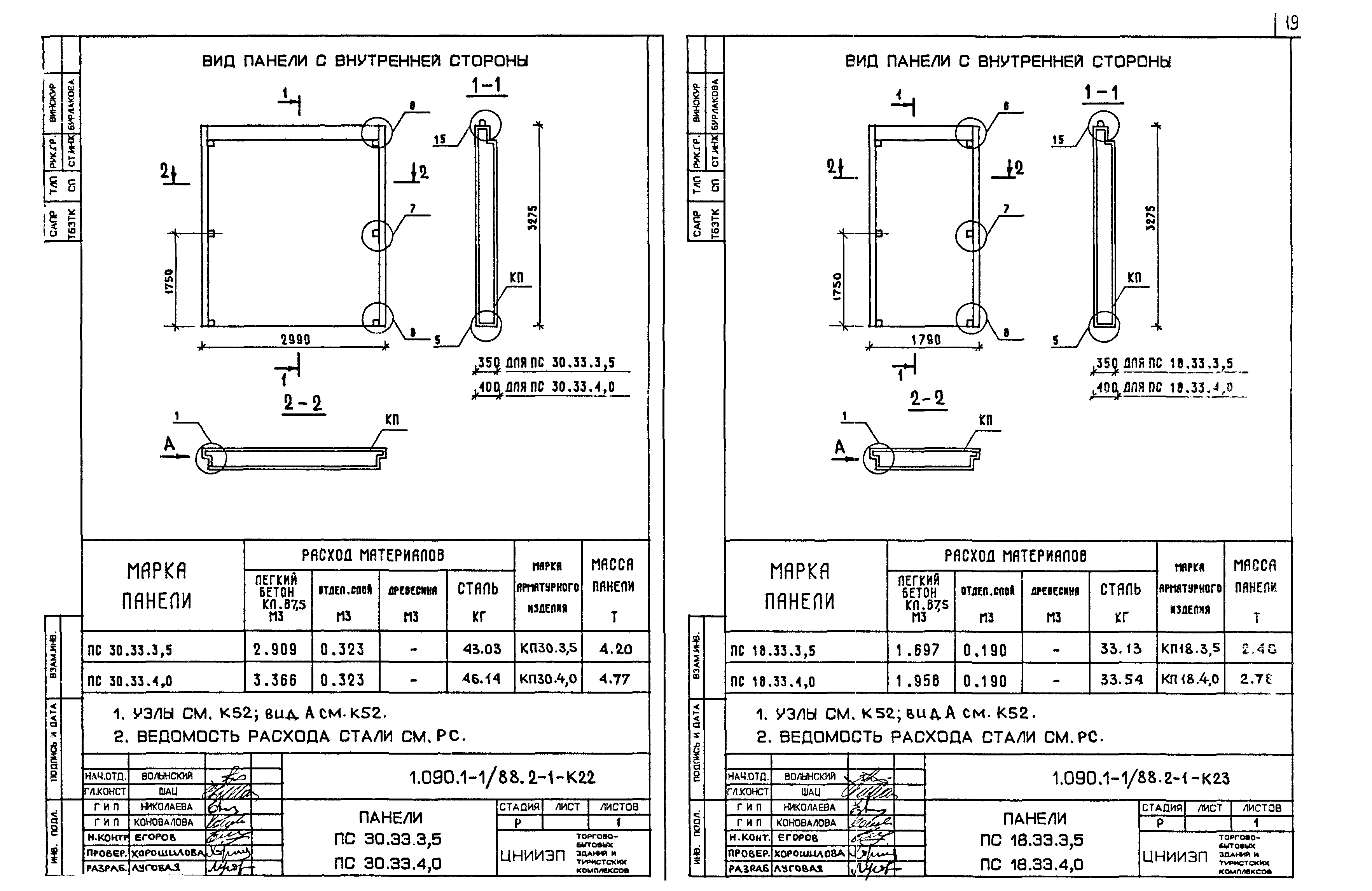
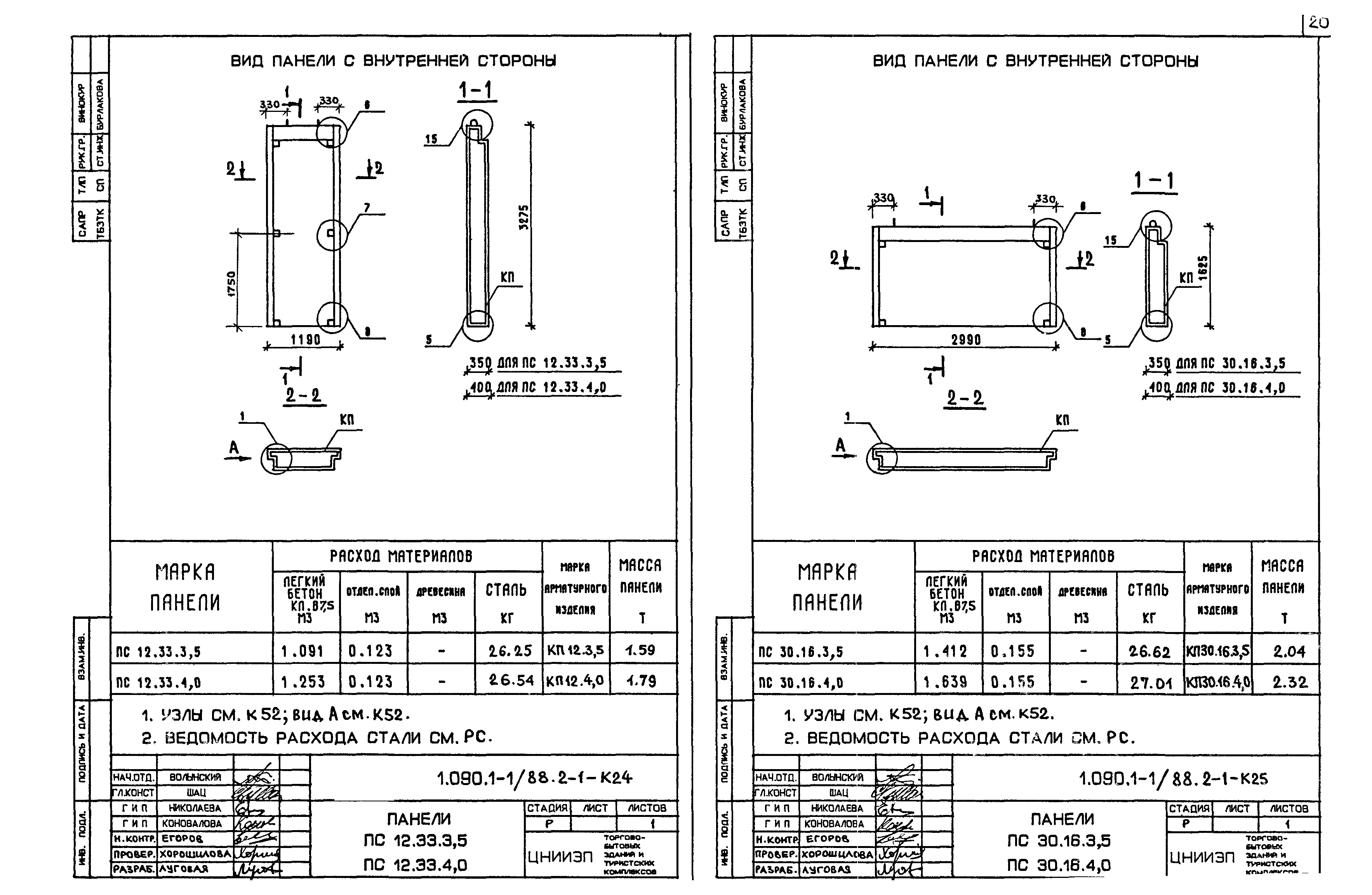
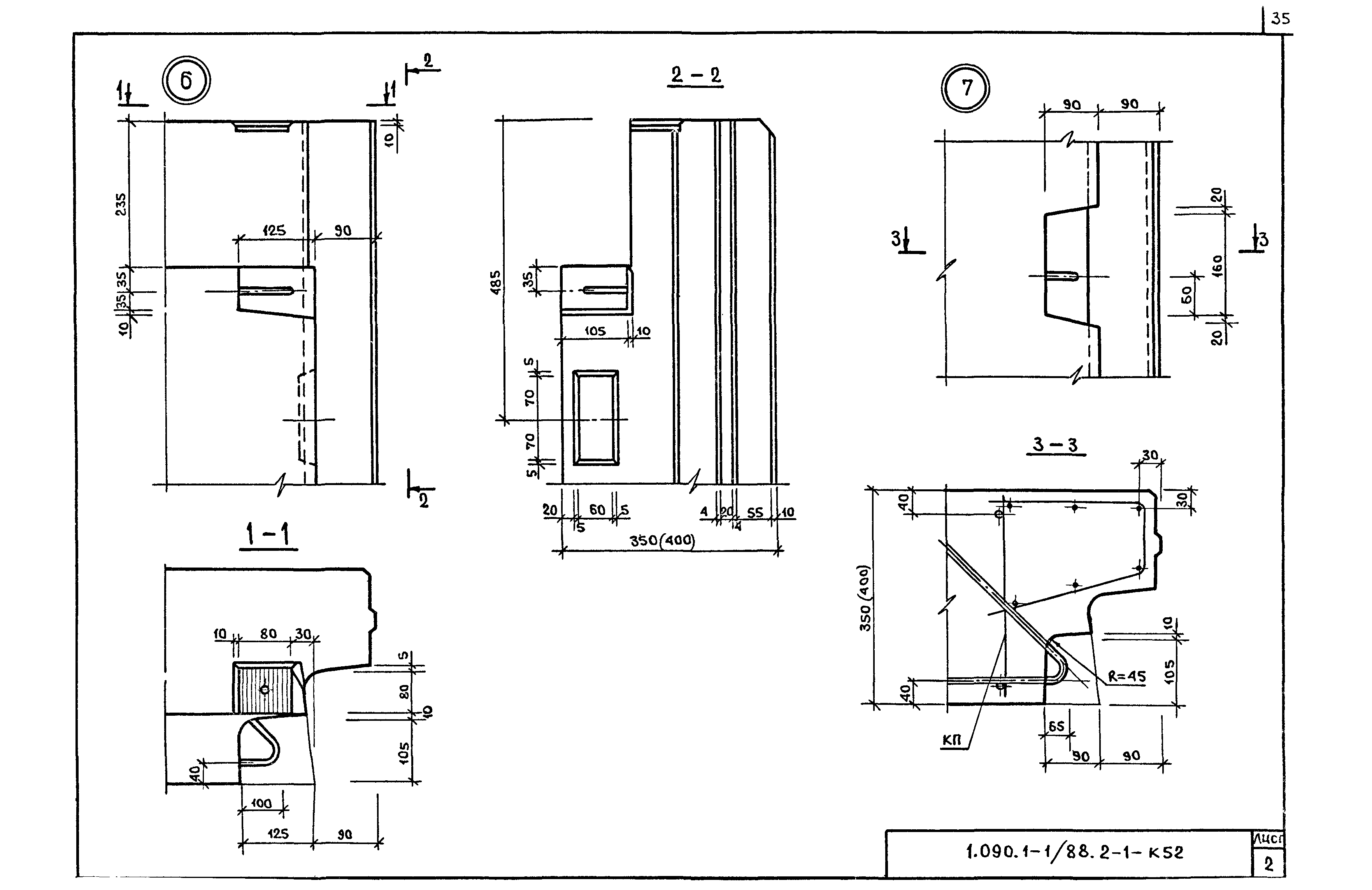
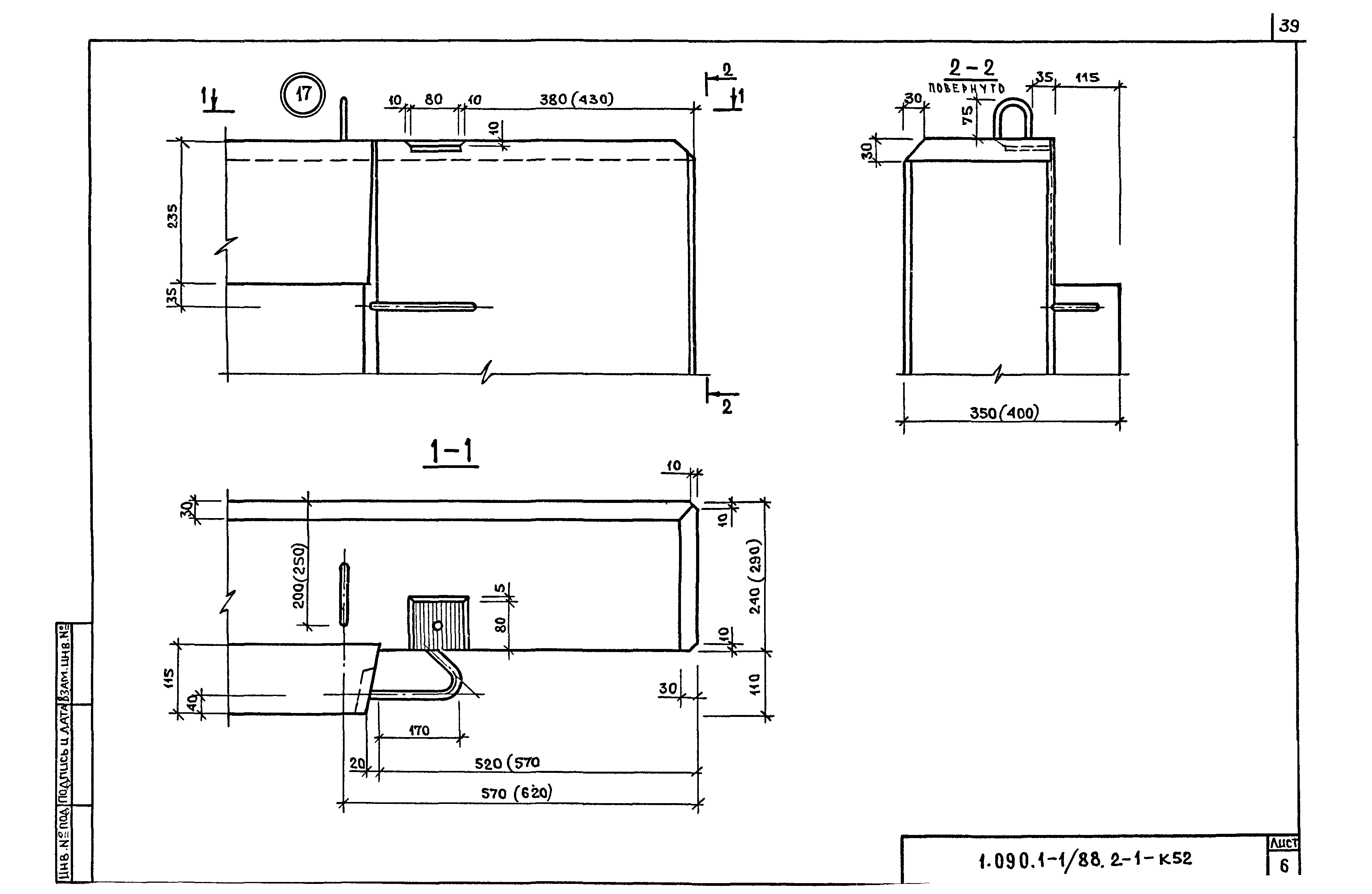
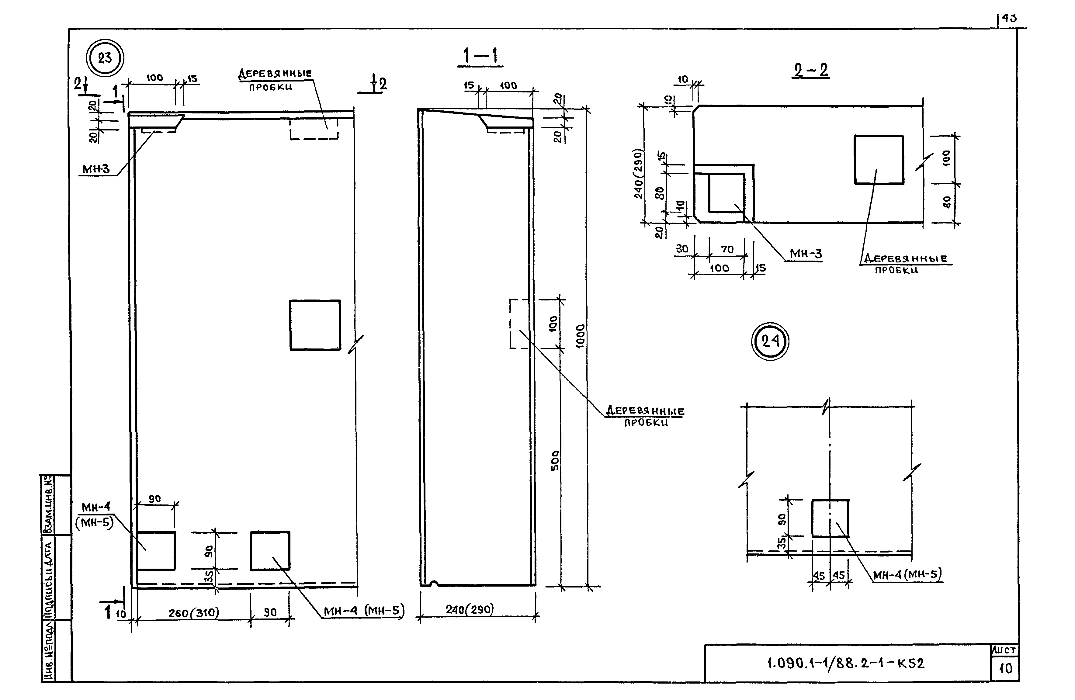
| Оглавление: | 1.090.1-1/88.2-1-ТТ Технические требования 1.090.1-1/88.2-1-К1 Панели 2ПСО30.33.3,5;2ПСО30.33.4,0 1.090.1-1/88.2-1-К2 Панели 3ПСО30.33.3,5;3ПСО30.33.4,0 1.090.1-1/88.2-1-К3 Панели 7ПСО30.33.3,5;7ПСО30.33.4,0 1.090.1-1/88.2-1-К4 Панели 10ПСО30.33.3,5;10ПСО30.33.4,0 1.090.1-1/88.2-1-К5 Панели 8ПСО30.33.3,5;8ПСО30.33.4,0 1.090.1-1/88.2-1-К6 Панели 9ПСО30.33.3,5;9ПСО30.33.4,0 1.090.1-1/88.2-1-К7 Панели 2ПСО28.33.3,5;2ПСО28.33.4,0 1.090.1-1/88.2-1-К8 Панели 1ПСД28.33.3,5;1ПСД28.33.4,0 1.090.1-1/88.2-1-К9 Панели 3ПСО29.33.3,5;3ПСО29.33.4,0 1.090.1-1/88.2-1-К10 Панели 4ПСО29.33.3,5;4ПСО29.33.4,0 1.090.1-1/88.2-1-К11 Панели 2ПСО60.33.3,5;2ПСО60.33.4,0 1.090.1-1/88.2-1-К12 Панели ПСЛ30.33.3,5;2ПСЛ30.33.4,0 1.090.1-1/88.2-1-К13 Панели ПСЛ28.33.3,5;2ПСЛ28.33.4,0 1.090.1-1/88.2-1-К14 Панели 1ПСЛ29.33.3,5;1ПСЛ29.33.4,0 1.090.1-1/88.2-1-К15 Панели 2ПСЛ29.33.3,5;2ПСЛ29.33.4,0 1.090.1-1/88.2-1-К16 Панели 3ПСД30.33.3,5;3ПСД30.33.4,0 1.090.1-1/88.2-1-К17 Панели 4ПСД30.33.3,5;4ПСД30.33.4,0 1.090.1-1/88.2-1-К18 Панели 5ПСД30.33.3,5;5ПСД30.33.4,0 1.090.1-1/88.2-1-К19 Панели 6ПСД29.33.3,5;6ПСД29.33.4,0 1.090.1-1/88.2-1-К20 Панели 1ПСД29.33.3,5;1ПСД29.33.4,0 1.090.1-1/88.2-1-К21 Панели 2ПСД29.33.3,5;2ПСД29.33.4,0 1.090.1-1/88.2-1-К22 Панели ПС30.33.3,5;ПС30.33.4,0 1.090.1-1/88.2-1-К23 Панели ПС18.33.3,5;ПС18.33.4,0 1.090.1-1/88.2-1-К24 Панели ПС12.33.3,5;ПС12.33.4,0 1.090.1-1/88.2-1-К25 Панели ПС30.16.3,5;ПС30.16.4,0 1.090.1-1/88.2-1-К26 Панели 1ПС33.33.3,5;1ПС33.33.4,0 1.090.1-1/88.2-1-К27 Панели 2ПС33.33.3,5;2ПС33.33.4,0 1.090.1-1/88.2-1-К28 Панели 1ПС21.33.3,5;1ПС21.33.4,0 1.090.1-1/88.2-1-К29 Панели 2ПС21.33.3,5;2ПС21.33.4,0 1.090.1-1/88.2-1-К30 Панели 1ПС15.33.3,5;1ПС15.33.4,0 1.090.1-1/88.2-1-К31 Панели 2ПС15.33.3,5;2ПС15.33.4,0 1.090.1-1/88.2-1-К32 Панели 1ПС14.33.3,5;1ПС14.33.4,0 1.090.1-1/88.2-1-К33 Панели 2ПС14.33.3,5;2ПС14.33.4,0 1.090.1-1/88.2-1-К34 Панели 1ПС29.33.3,5;1ПС29.33.4,0 1.090.1-1/88.2-1-К35 Панели 2ПС29.33.3,5;2ПС29.33.4,0 1.090.1-1/88.2-1-К36 Панели 1ПС17.33.3,5;1ПС17.33.4,0 1.090.1-1/88.2-1-К37 Панели 2ПС17.33.3,5;2ПС17.33.4,0 1.090.1-1/88.2-1-К38 Панели 1ПС11.33.3,5;1ПС11.33.4,0 1.090.1-1/88.2-1-К39 Панели 2ПС11.33.3,5;2ПС11.33.4,0 1.090.1-1/88.2-1-К40 Панели ПС28.33.3,5;ПС28.33.4,0 1.090.1-1/88.2-1-К41 Панели ПС28.16.3,5;ПС28.16.4,0 1.090.1-1/88.2-1-К42 Панели 1ПС29.16.3,5;1ПС29.16.4,0 1.090.1-1/88.2-1-К43 Панели 2ПС29.16.3,5;2ПС29.16.4,0 1.090.1-1/88.2-1-К44 Панели ПСП60.10.2,4;ПСП60.10.2,9 1.090.1-1/88.2-1-К45 Панели ПСП30.10.2,4;ПСП30.10.2,9 1.090.1-1/88.2-1-К46 Панели ПСП18.10.2,4;ПСП18.10.2,9 1.090.1-1/88.2-1-К47 Панели ПСП12.10.2,4;ПСП12.10.2,9 1.090.1-1/88.2-1-К48 Панели ПСП33.10.2,4;ПСП33.10.2,9 1.090.1-1/88.2-1-К49 Панели ПСП21.10.2,4;ПСП21.10.2,9 1.090.1-1/88.2-1-К50 Панели ПСП15.10.2,4;ПСП15.10.2,9 1.090.1-1/88.2-1-К51 Панели ПСП27.10.2,4;ПСП27.10.2,9 1.090.1-1/88.2-1-К52 Узлы 1.090.1-1/88.2-1-К53 Узлы установки деревянных коробок, окон и дверей 1.090.1-1/88.2-1-РС Ведомость расхода стали |
| Разработан: | ЦНИИЭП торгово-бытовых зданий и туристских комплексов |
| Утверждён: | 28.03.1989 Госстрой СССР (Государственный комитет Совета Министров СССР по делам строительства) (USSR Gosstroy АЧ-14) |
| Издан: | ЦИТП Госстроя СССР (CITP, Gosstroy (USSR) 1989 г. ) |





































































