Скачать Серия 1.090.1-7с Выпуск 1-5. Панели наружных стен нулевого цикла однослойные толщиной 350 мм для применения в районах сейсмичностью 9 баллов. Рабочие чертежиДата актуализации: 01.01.2021
|
| Обозначение: | Серия 1.090.1-7с |
| Обозначение англ: | Series 1.090.1-7с |
| Статус: | действует |
| Название рус.: | Выпуск 1-5. Панели наружных стен нулевого цикла однослойные толщиной 350 мм для применения в районах сейсмичностью 9 баллов. Рабочие чертежи |
| Дата добавления в базу: | 01.09.2013 |
| Дата актуализации: | 01.01.2021 |
| Дата введения: | 01.02.1992 |
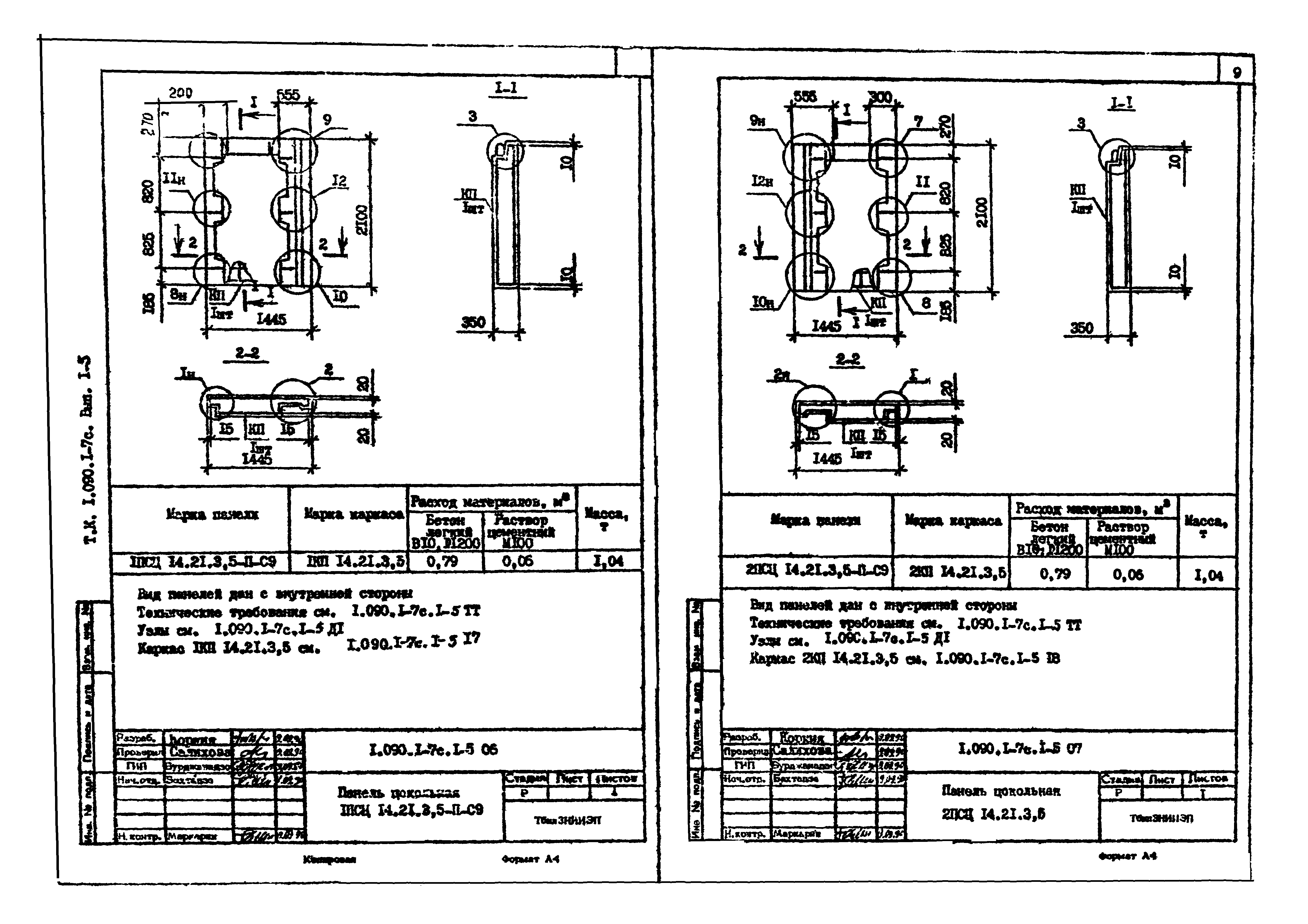
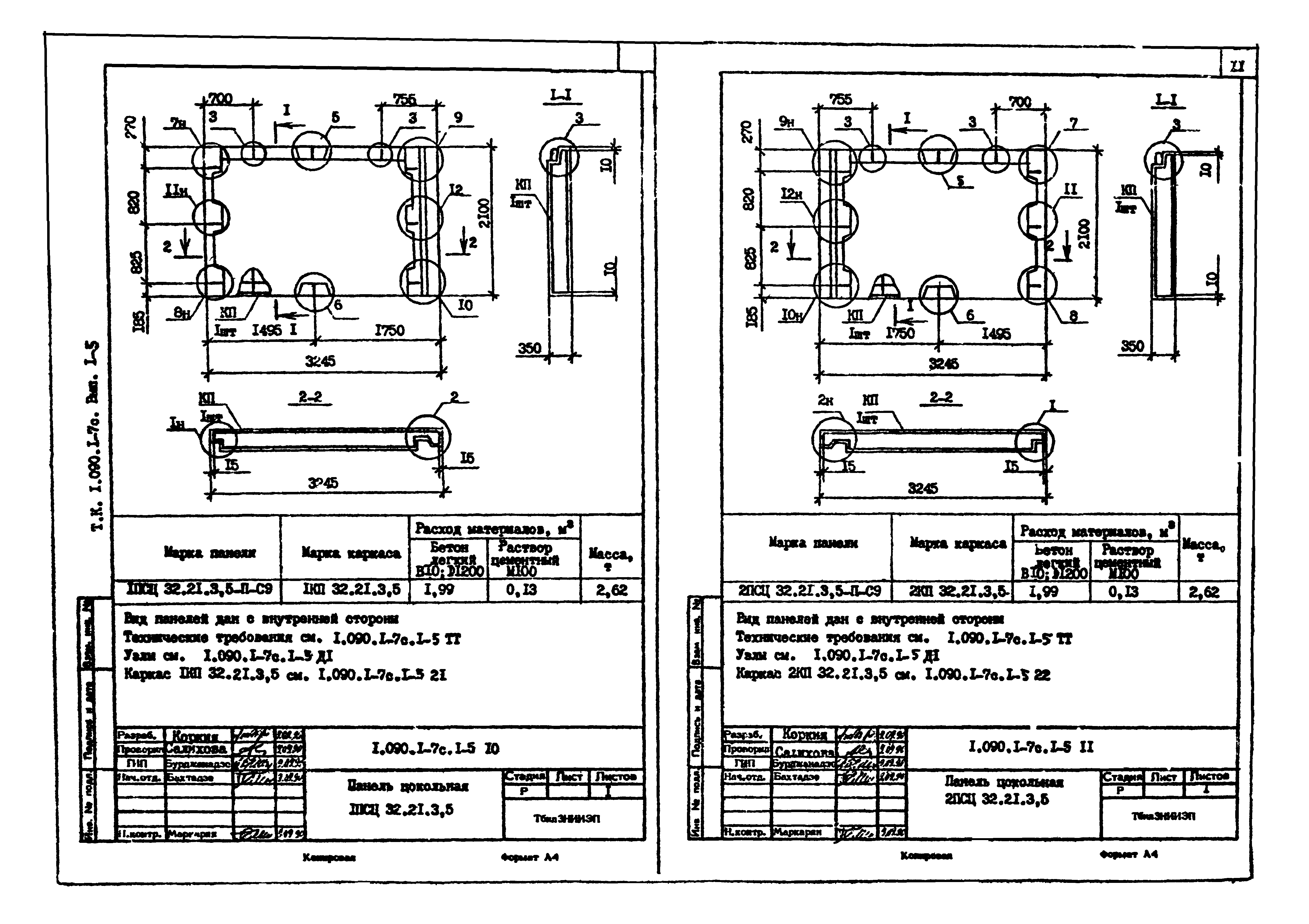
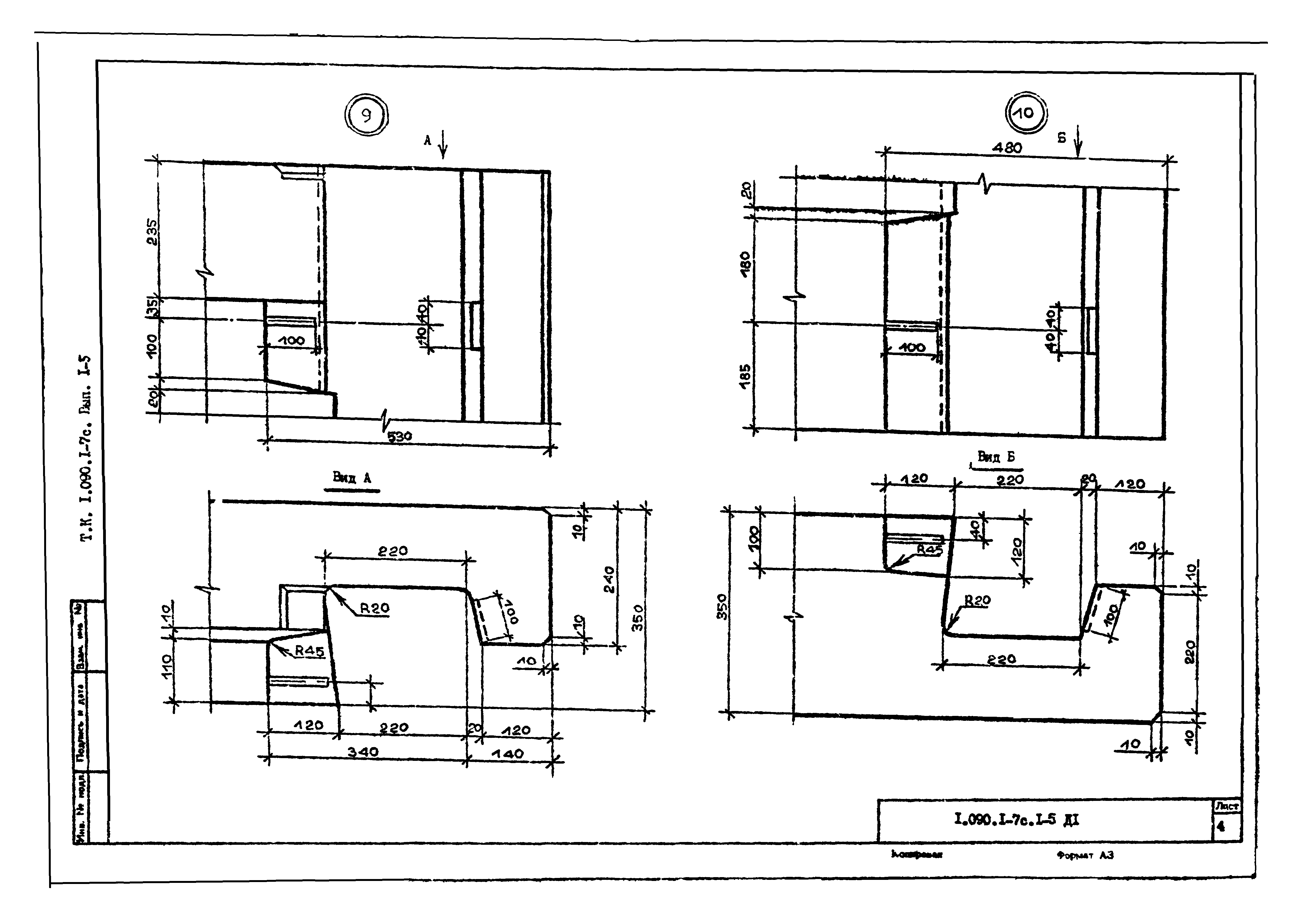
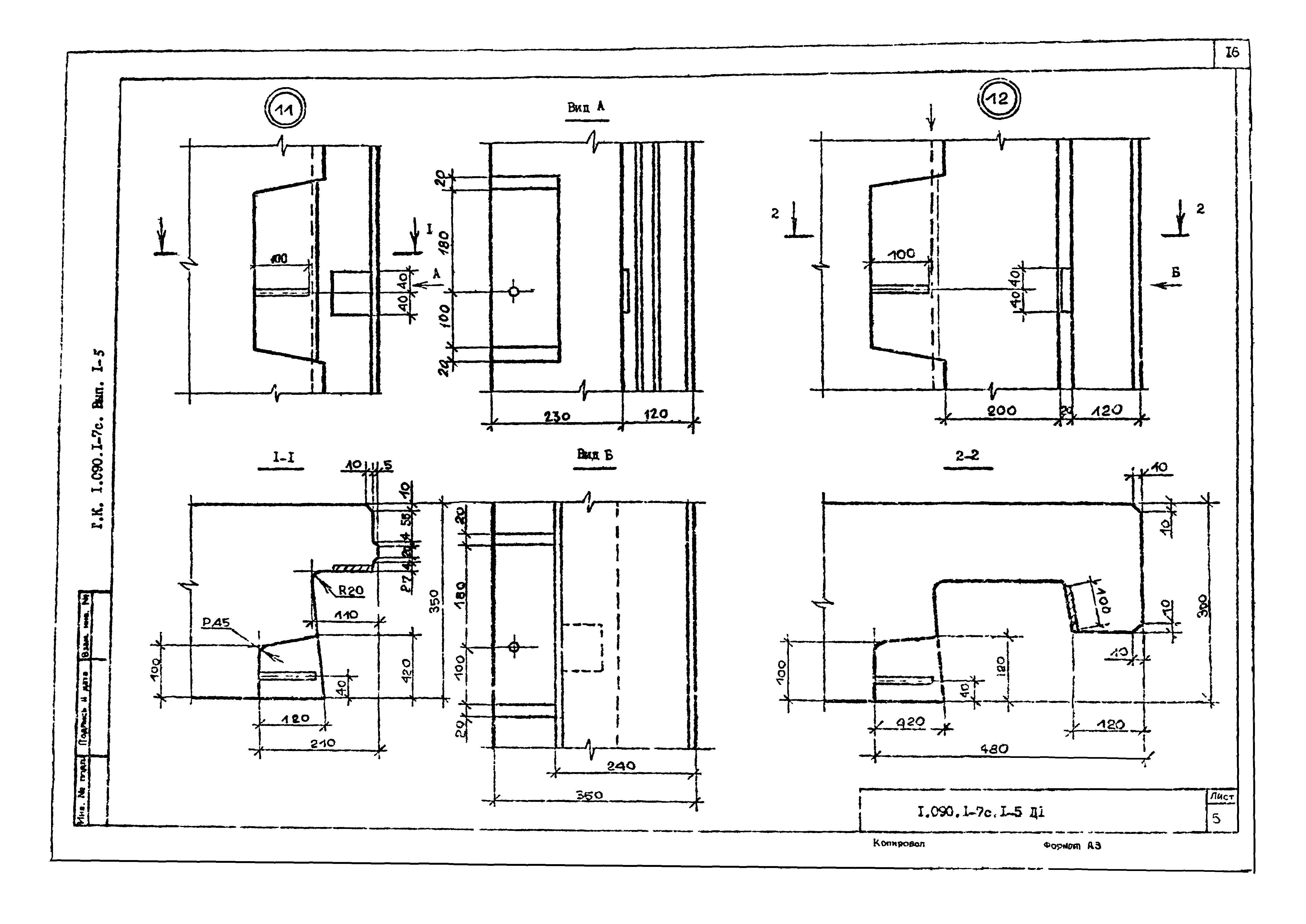
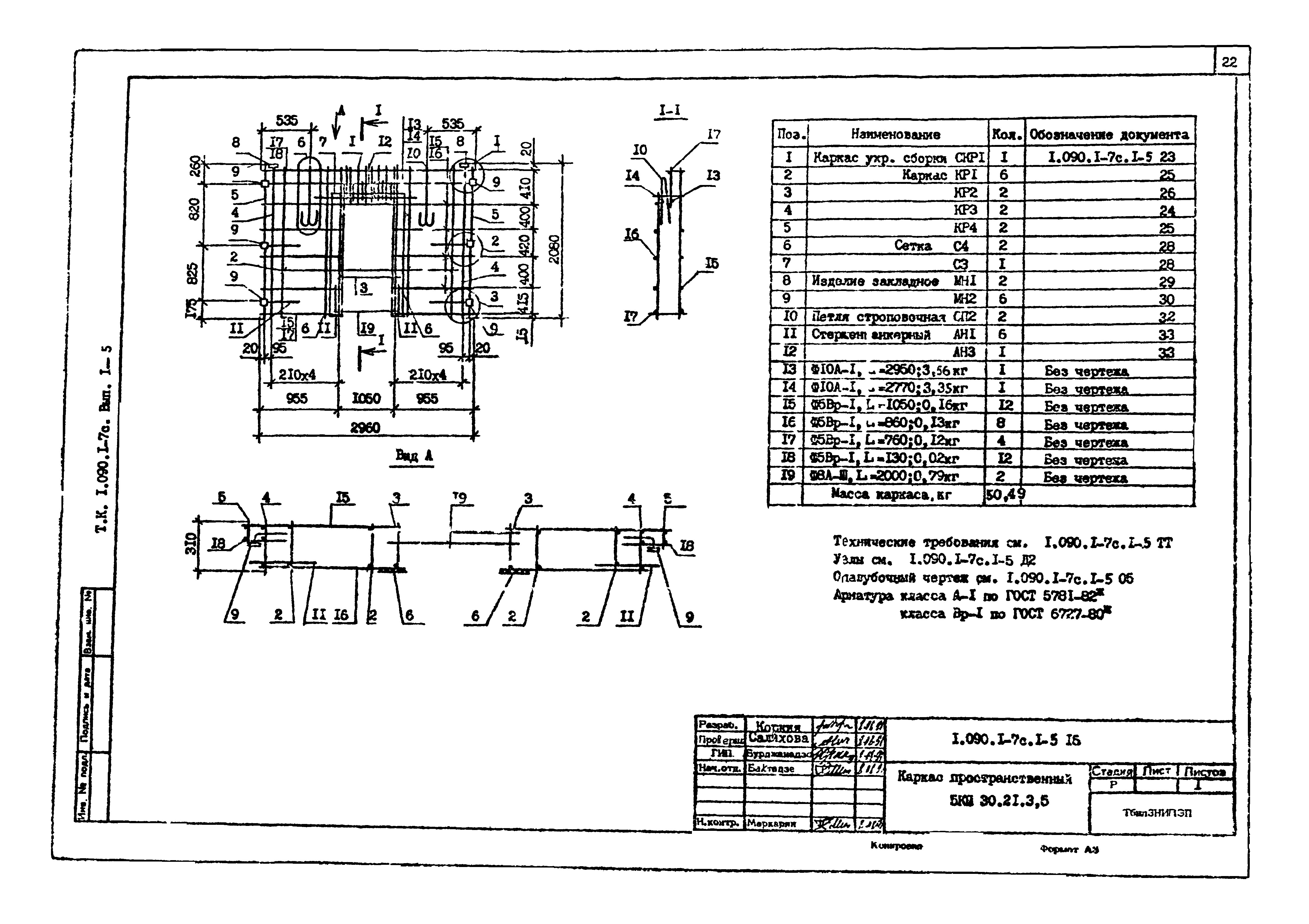
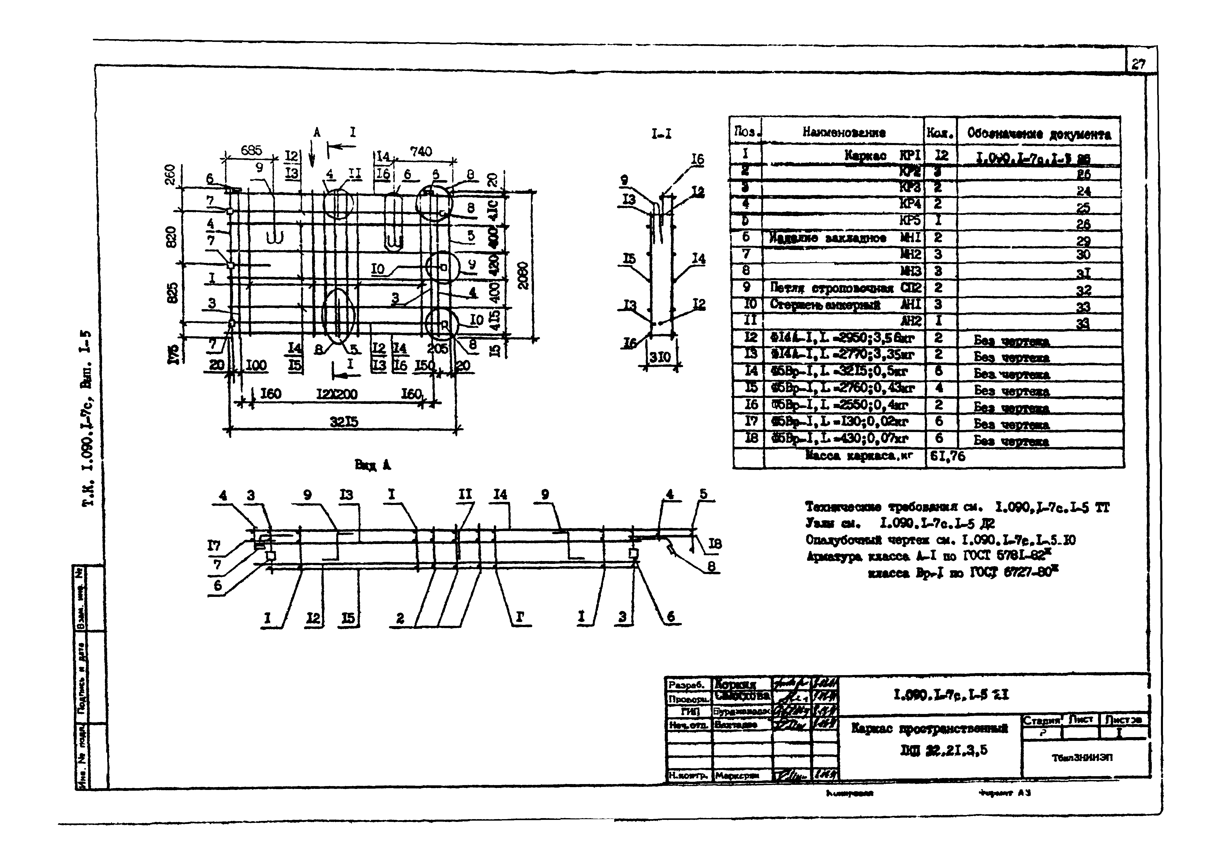
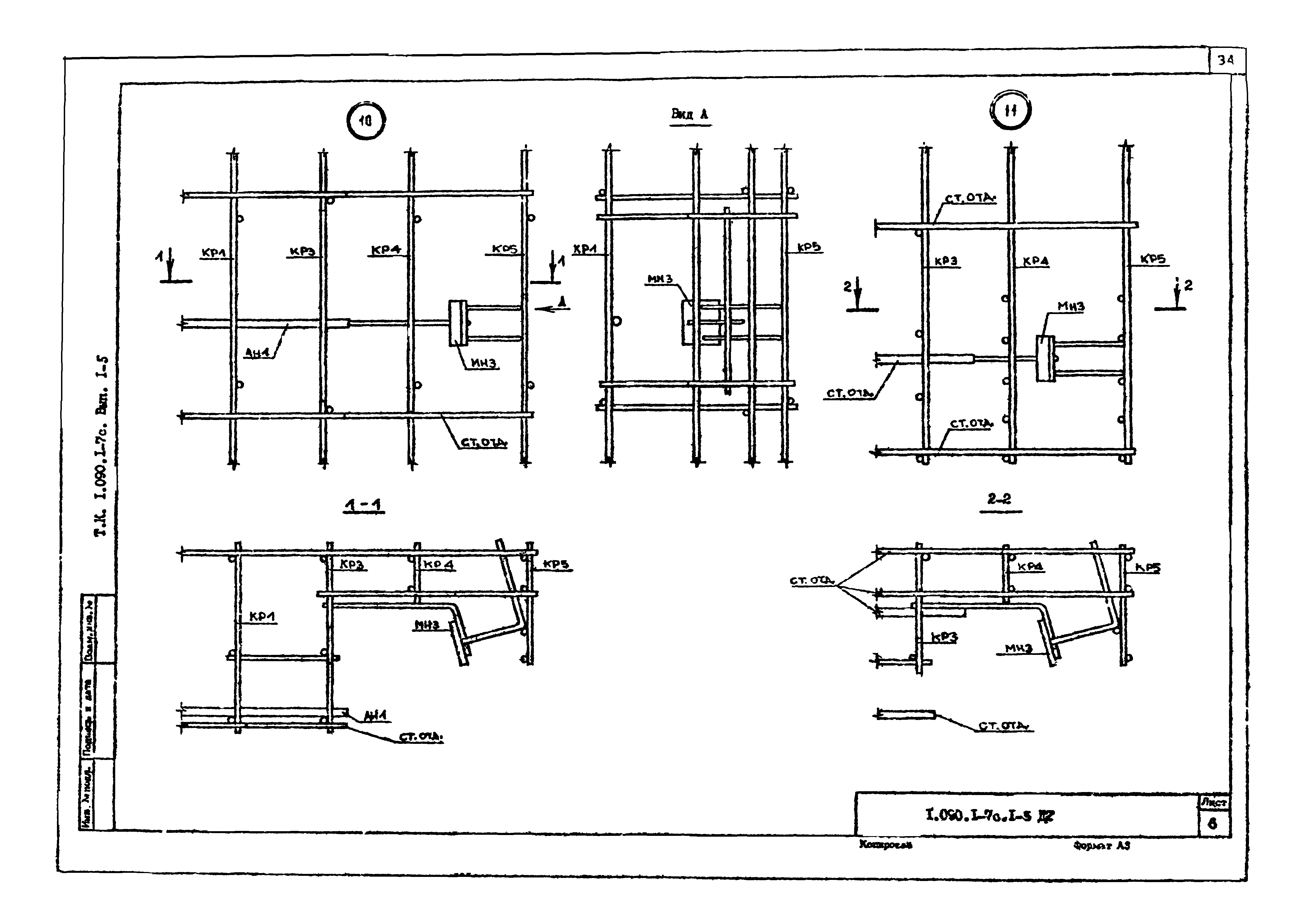
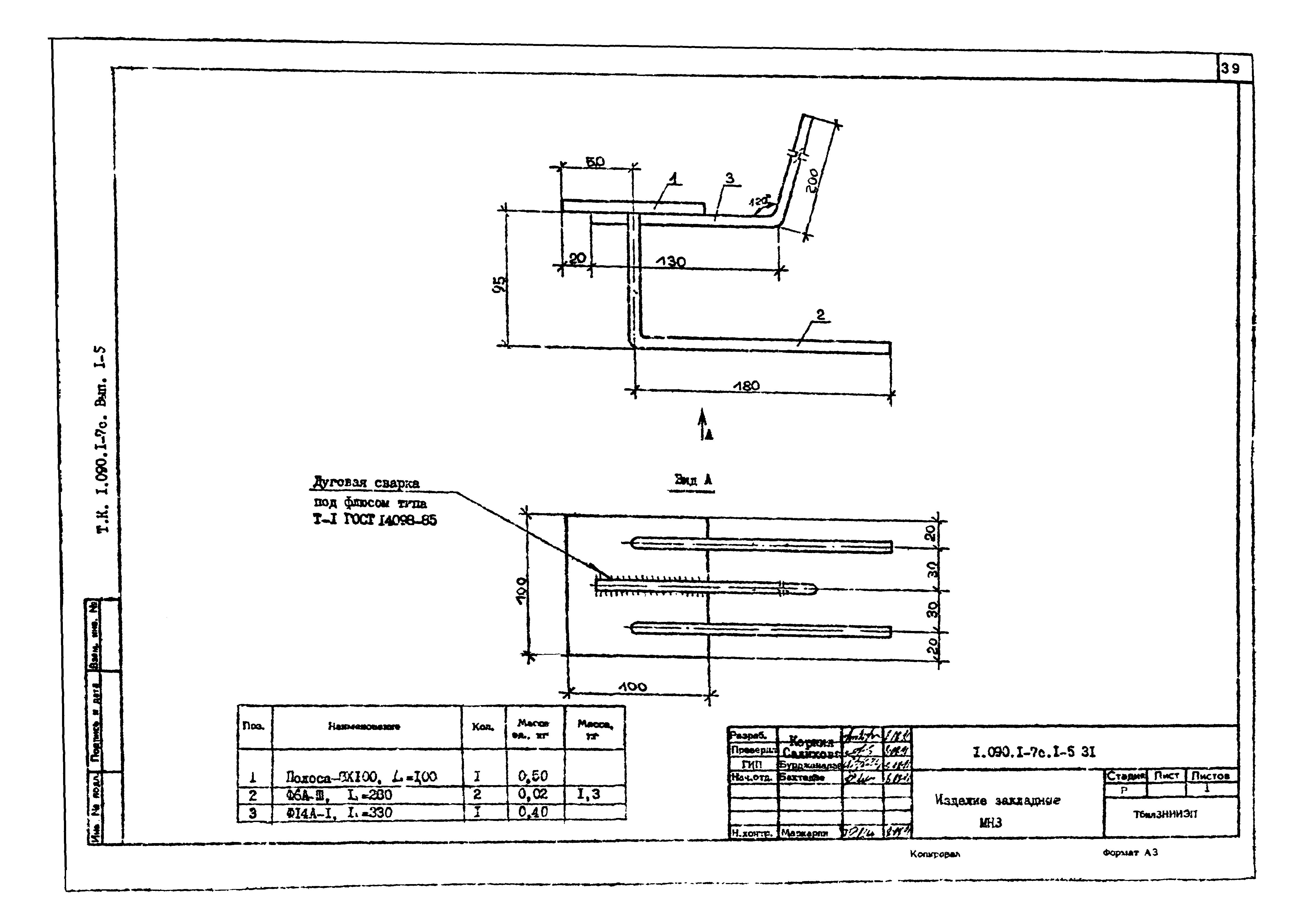
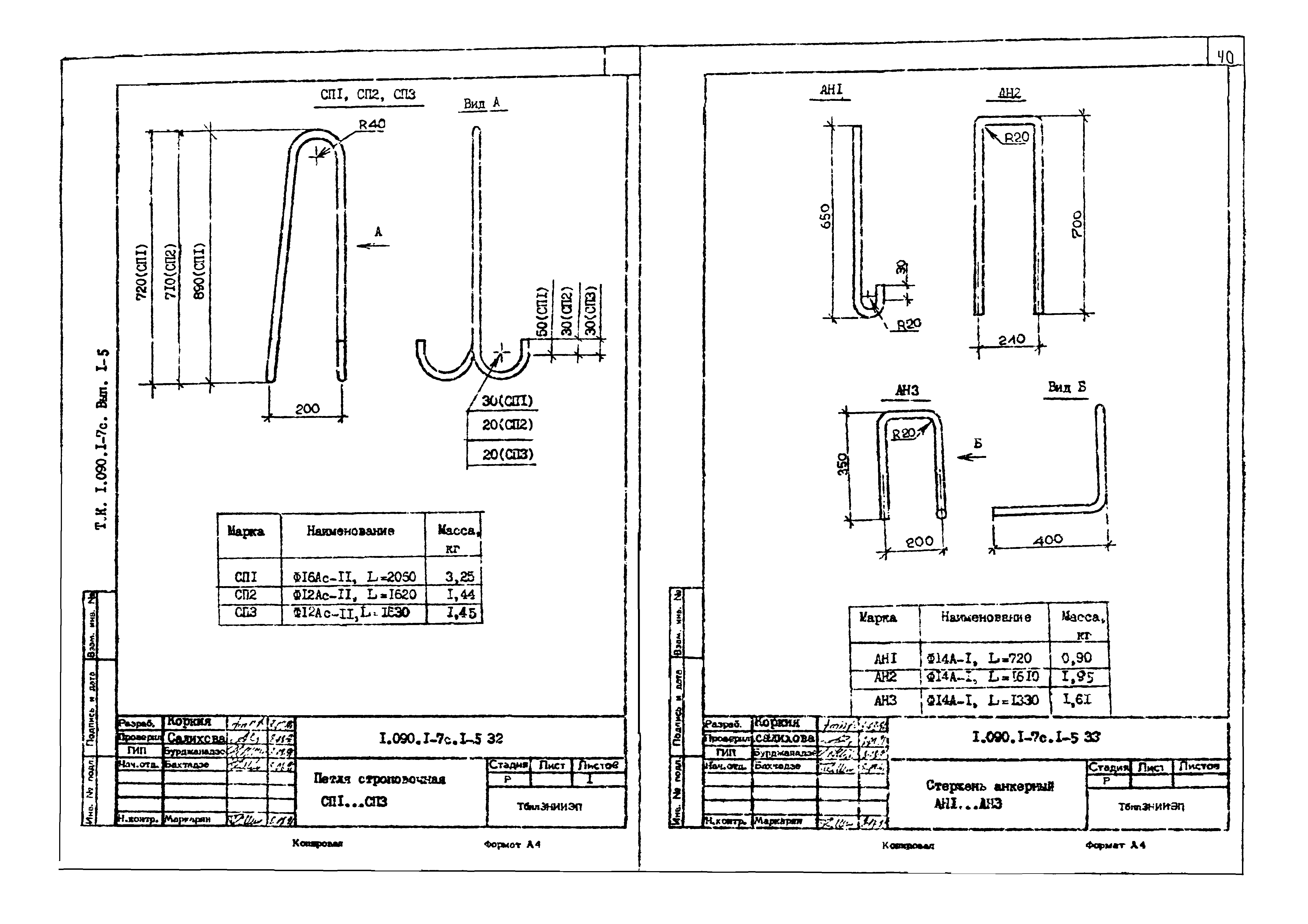
| Оглавление: | 1.090.1-7с.1-5-ТТ Технические требования 1.090.1-7с.1-5-01 Панель цокольная ПСЦ 60.21,3,5-П-С9,1ПСЦ 60.21,3,5-П-С9 1.090.1-7с.1-5-02 Панель цокольная 1ПСЦ 30.21,3,5-П-С9 1.090.1-7с.1-5-03 Панель цокольная 2ПСЦ 30.21.3.5-П-С9,3ПСЦ 30.21.3.5-П-С9 1.090.1-7с.1-5-04 Панель цокольная ПСЦ 30.21.3.5-П-С9,4ПСЦ 30.21.3.5-П-С9 1.090.1-7с.1-5-05 Панель цокольная 5ПСЦ 30.21.3.5-П-С9 1.090.1-7с.1-5-06 Панель цокольная 1ПСЦ 14.21.3.5-П-С9 1.090.1-7с.1-5-07 Панель цокольная 2ПСЦ 14.21.3.5-П-С9 1.090.1-7с.1-5-08 Панель цокольная ПСЦ 18.21.3.5-П-С9 1.090.1-7с.1-5-09 Панель цокольная ПСЦ 12.21.3.5-П-С9 1.090.1-7с.1-5-10 Панель цокольная 1ПСЦ 32.21.3.5-П-С9 1.090.1-7с.1-5-11 Панель цокольная 2ПСЦ 32.21.3.5-П-С9 1.090.1-7с.1-5-Д1 Узлы опалубочные 1.090.1-7с.1-5-12 Каркас пространственный КП 60.21.3,5,1КП 60.21.3,5 1.090.1-7с.1-5-13 Каркас пространственный 1КП30.21.3,5 1.090.1-7с.1-5-14 Каркас пространственный 2КП30.21.3.5,3КП30.21.3.5 1.090.1-7с.1-5-15 Каркас пространственный КП30.21.3,5,4КП30.21.3,5 1.090.1-7с.1-5-16 Каркас пространственный 5КП30.21.3.5 1.090.1-7с.1-5-17 Каркас пространственный 1КП14.21.3.5 1.090.1-7с.1-5-18 Каркас пространственный 2КП14.21.3.5 1.090.1-7с.1-5-19 Каркас пространственный КП18.21.3,5 1.090.1-7с.1-5-20 Каркас пространственный КП12.21.3,5 1.090.1-7с.1-5-21 Каркас пространственный 1КП32.21.3,5 1.090.1-7с.1-5-22 Каркас пространственный 2КП32.21.3,5 1.090.1-7с.1-5-Д2 Узлы арматурные 1.090.1-7с.1-5-23 Каркас укрупнительной сборки СКР1 1.090.1-7с.1-5-24 Каркас КР3 1.090.1-7с.1-5-25 Каркас КP1, КР4 1.090.1-7с.1-5-26 Каркас КР2, КР5 1.090.1-7с.1-5-27 Сетка C1 1.090.1-7с.1-5-28 Сетка С2...С3 1.090.1-7с.1-5-29 Изделие закладное МН1 1.090.1-7с.1-5-30 Изделие закладное МН2 1.090.1-7с.1-5-31 Изделие закладное МН3 1.090.1-7с.1-5-32 Петля строповочная СП1...СП3 1.090.1-7с.1-5-33 Стержень анкерный АН1...АН3 1.090.1-7с.1-5-РС Ведомость расхода стали |
| Разработан: | ТбилЗНИИЭП |
| Утверждён: | 13.09.1991 Госкомархитектура (128) |









































