Скачать Серия 1.090.1-7с Выпуск 1-6. Панели наружных стен нулевого цикла трехслойные на жестких связях толщиной 350 мм для применения в районах сейсмичностью 9 баллов. Рабочие чертежиДата актуализации: 01.01.2021
|
| Обозначение: | Серия 1.090.1-7с |
| Обозначение англ: | Series 1.090.1-7с |
| Статус: | не определен законодательством |
| Название рус.: | Выпуск 1-6. Панели наружных стен нулевого цикла трехслойные на жестких связях толщиной 350 мм для применения в районах сейсмичностью 9 баллов. Рабочие чертежи |
| Дата добавления в базу: | 01.09.2013 |
| Дата актуализации: | 01.01.2021 |
| Дата введения: | 01.02.1992 |
| Дата окончания срока действия: | 30.06.2003 |
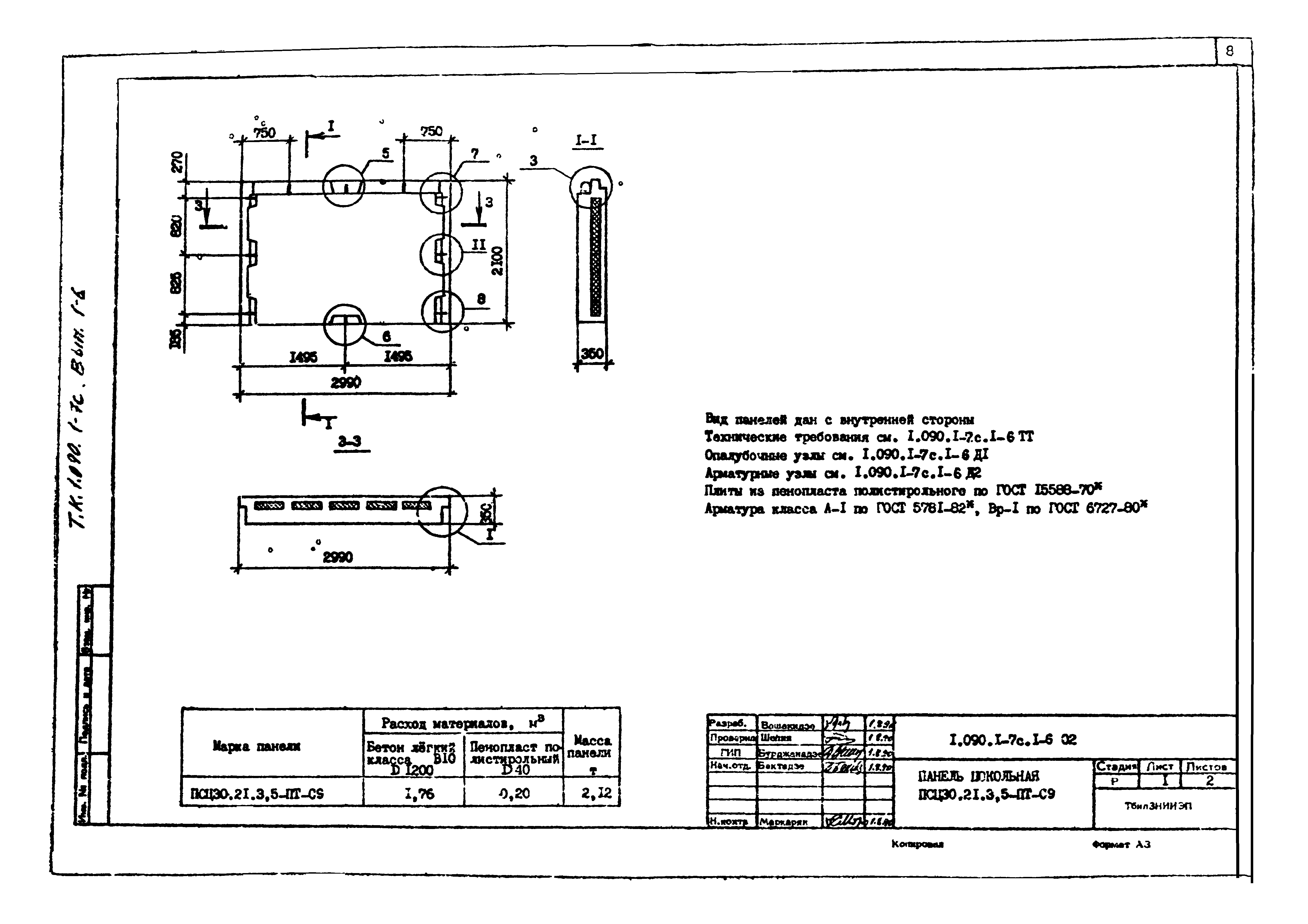
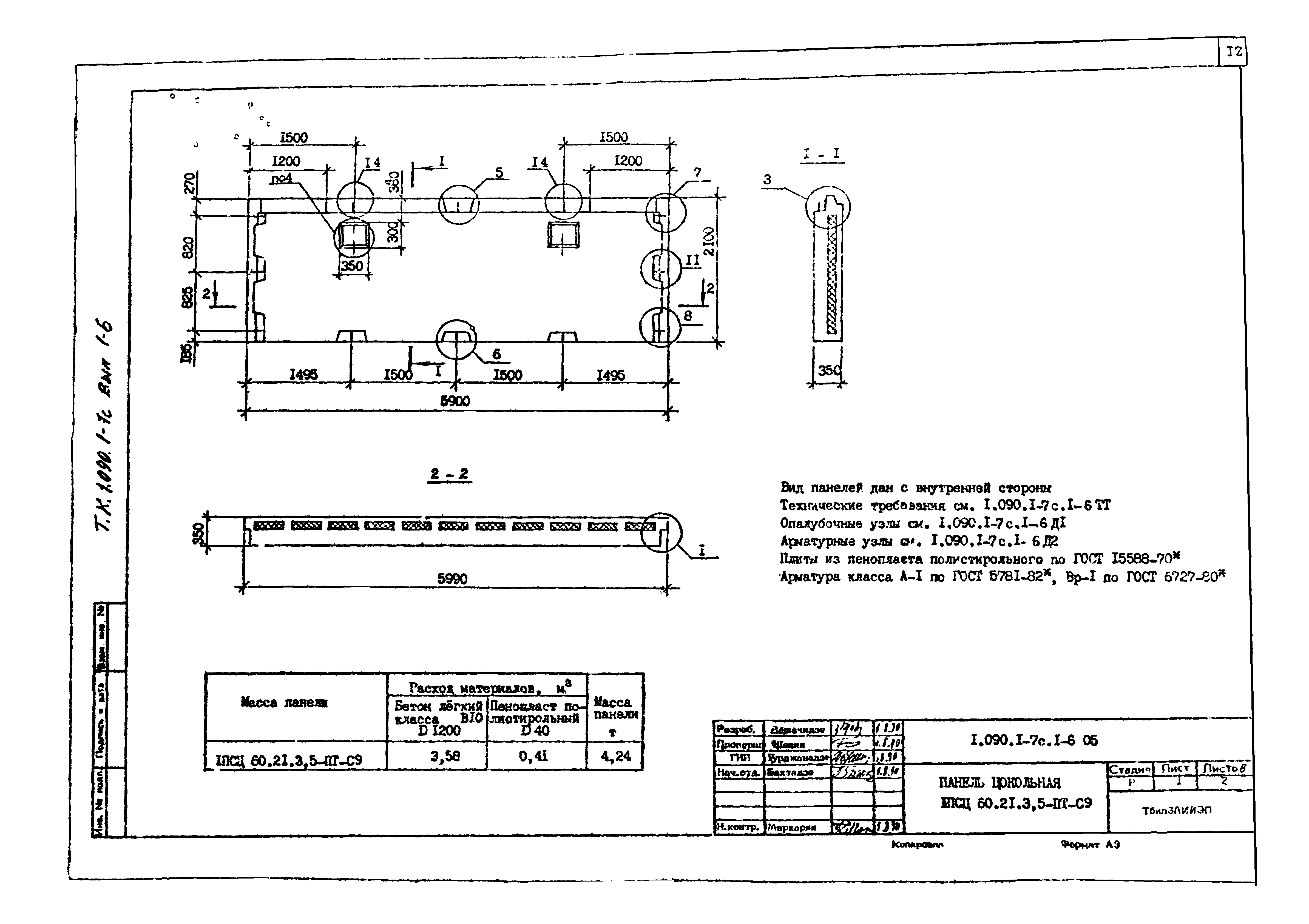
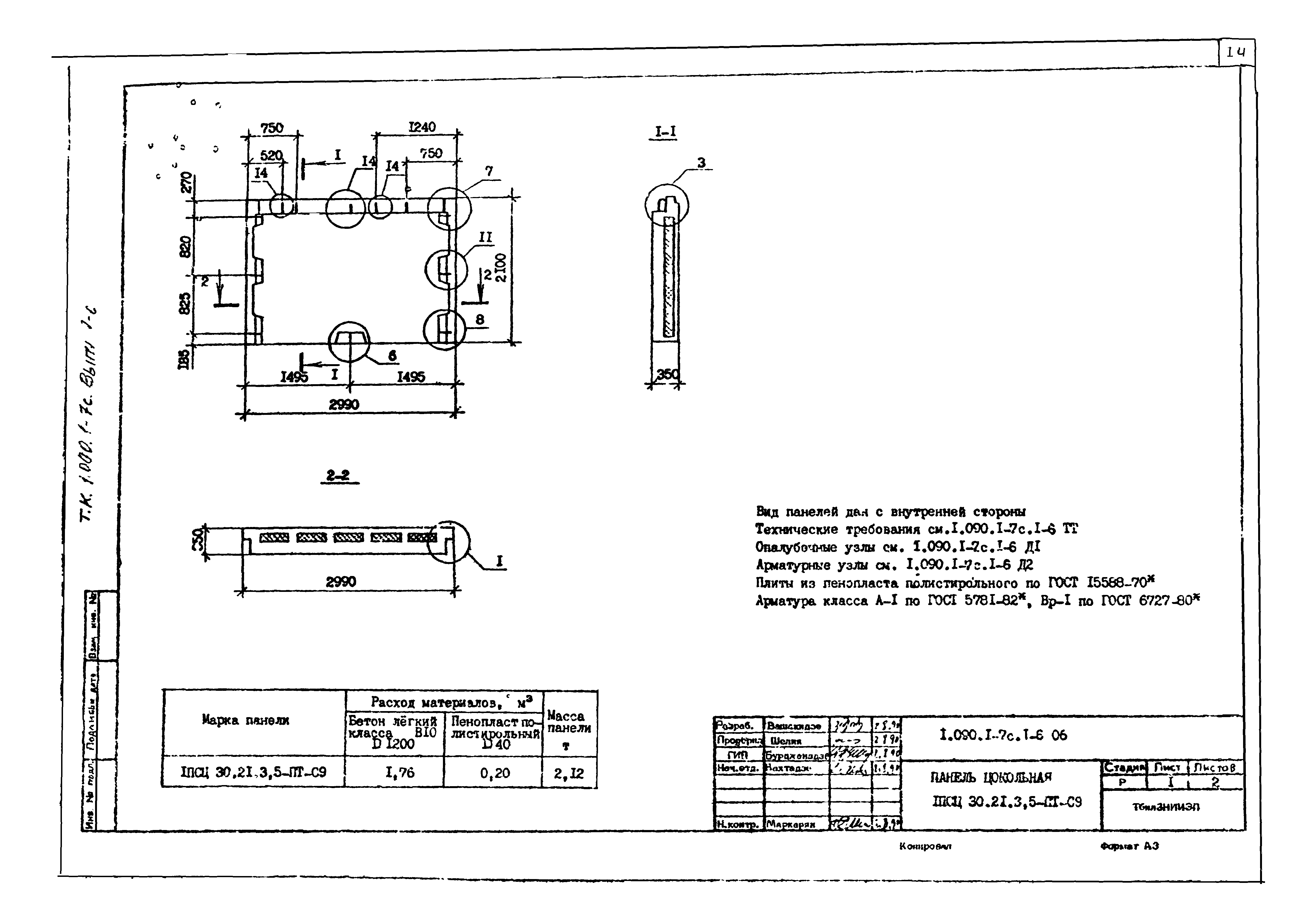
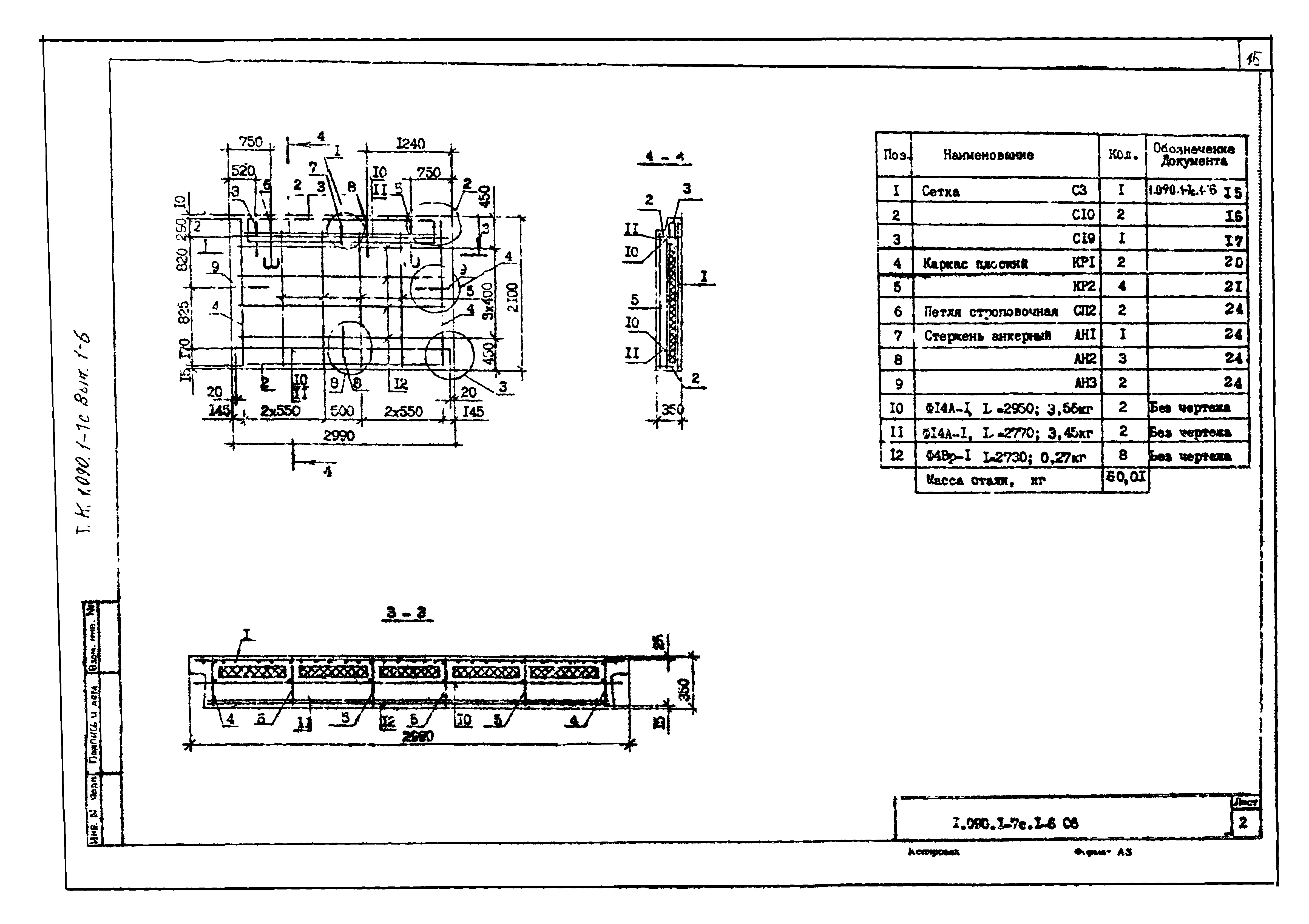
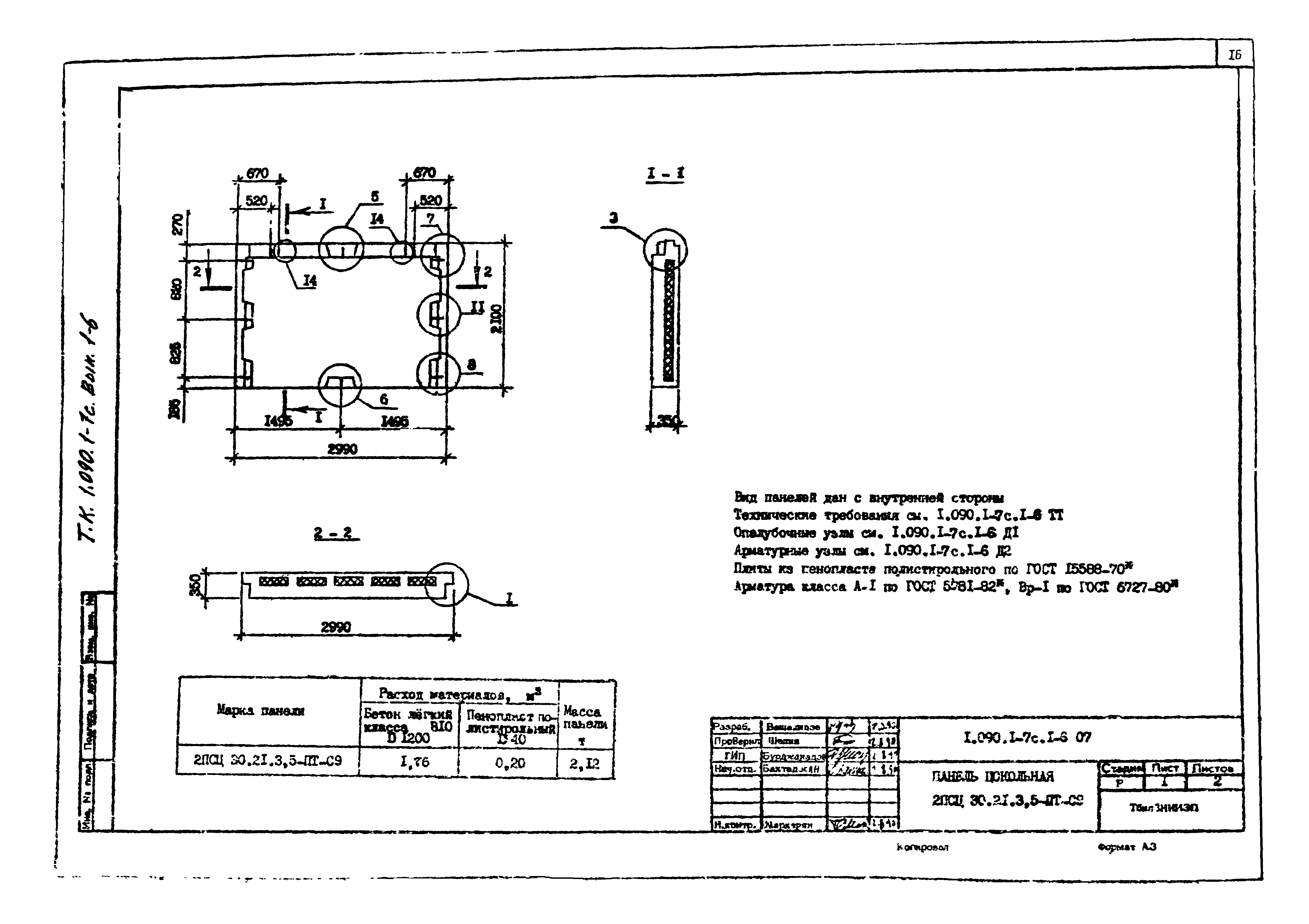
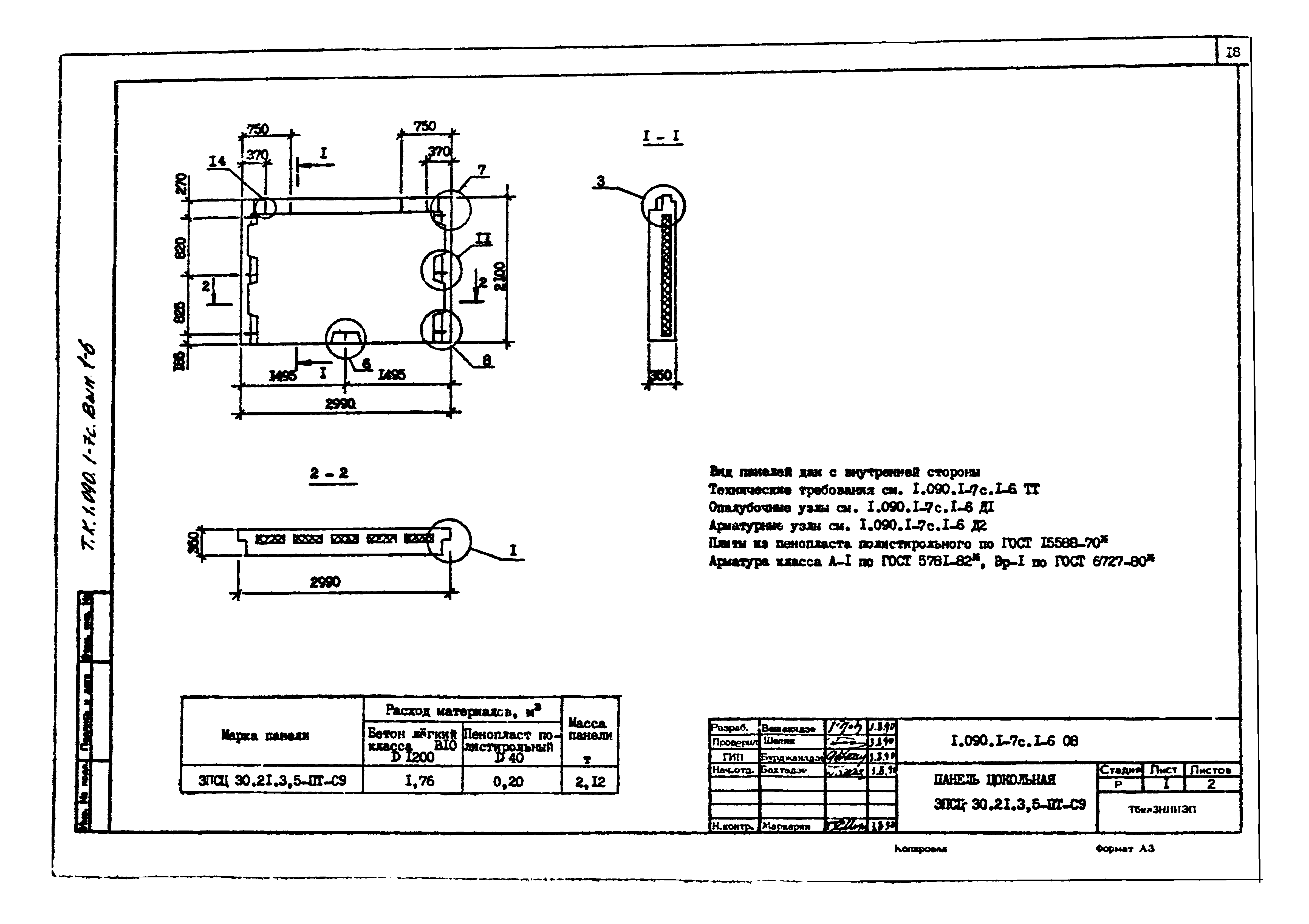
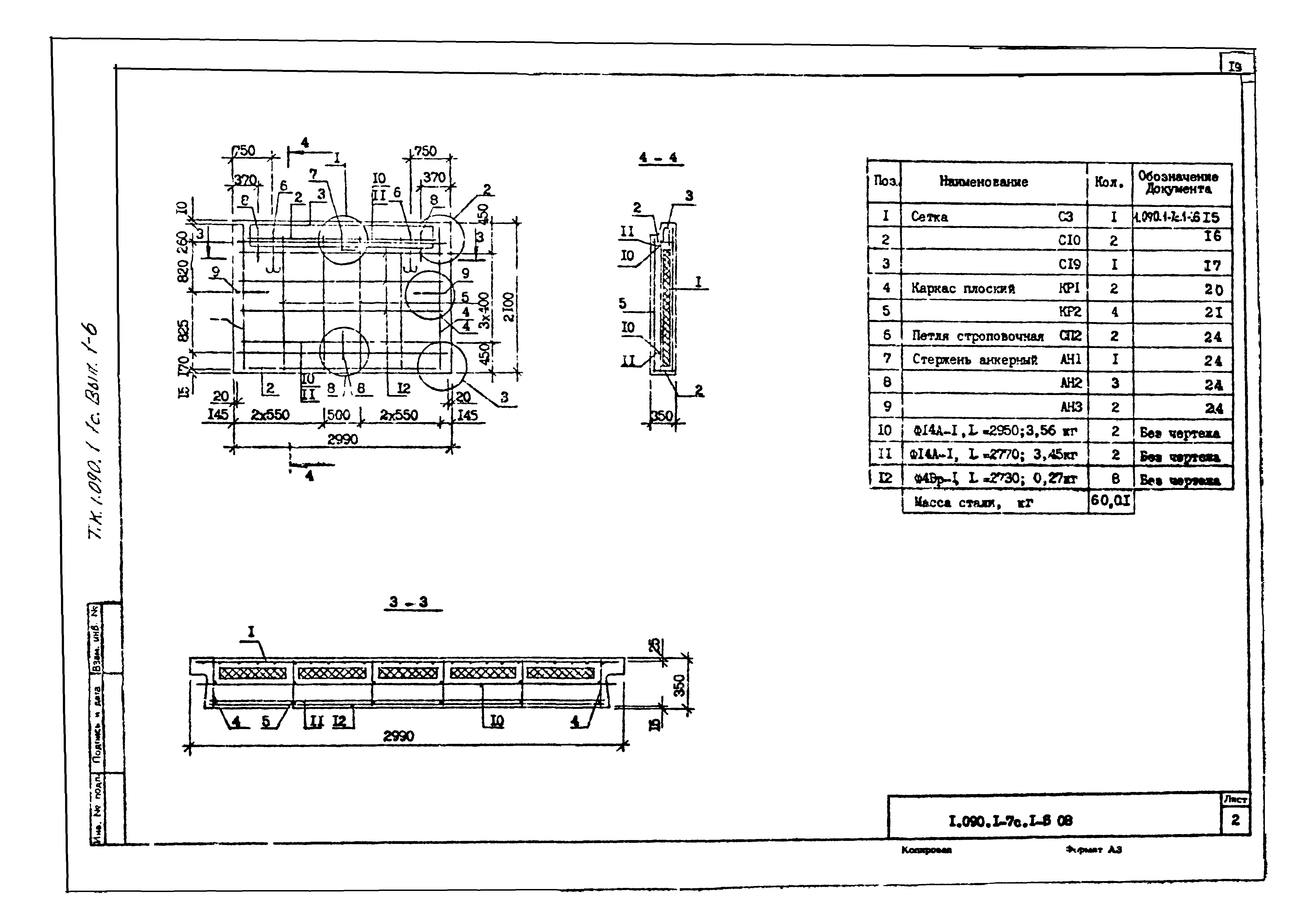
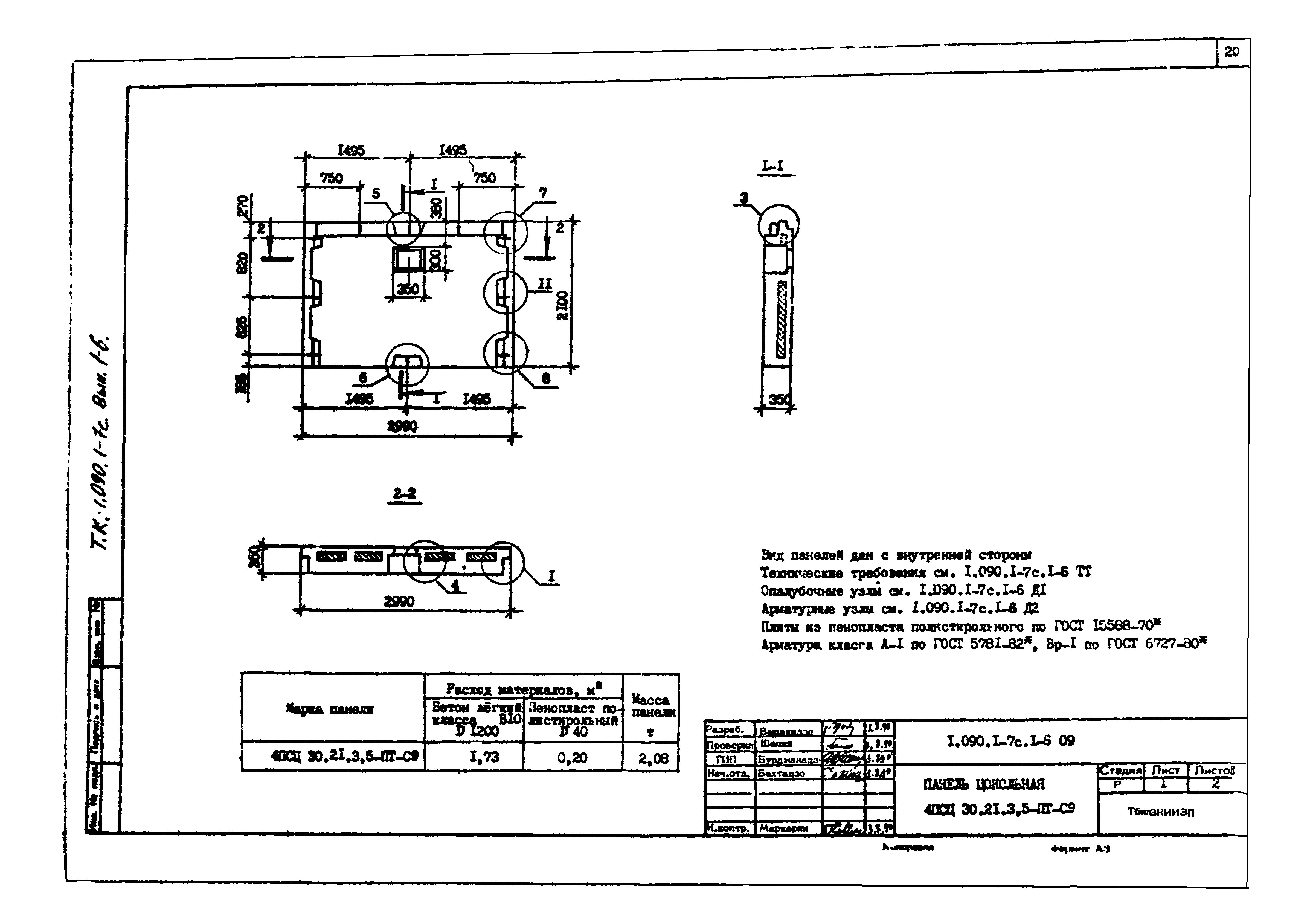
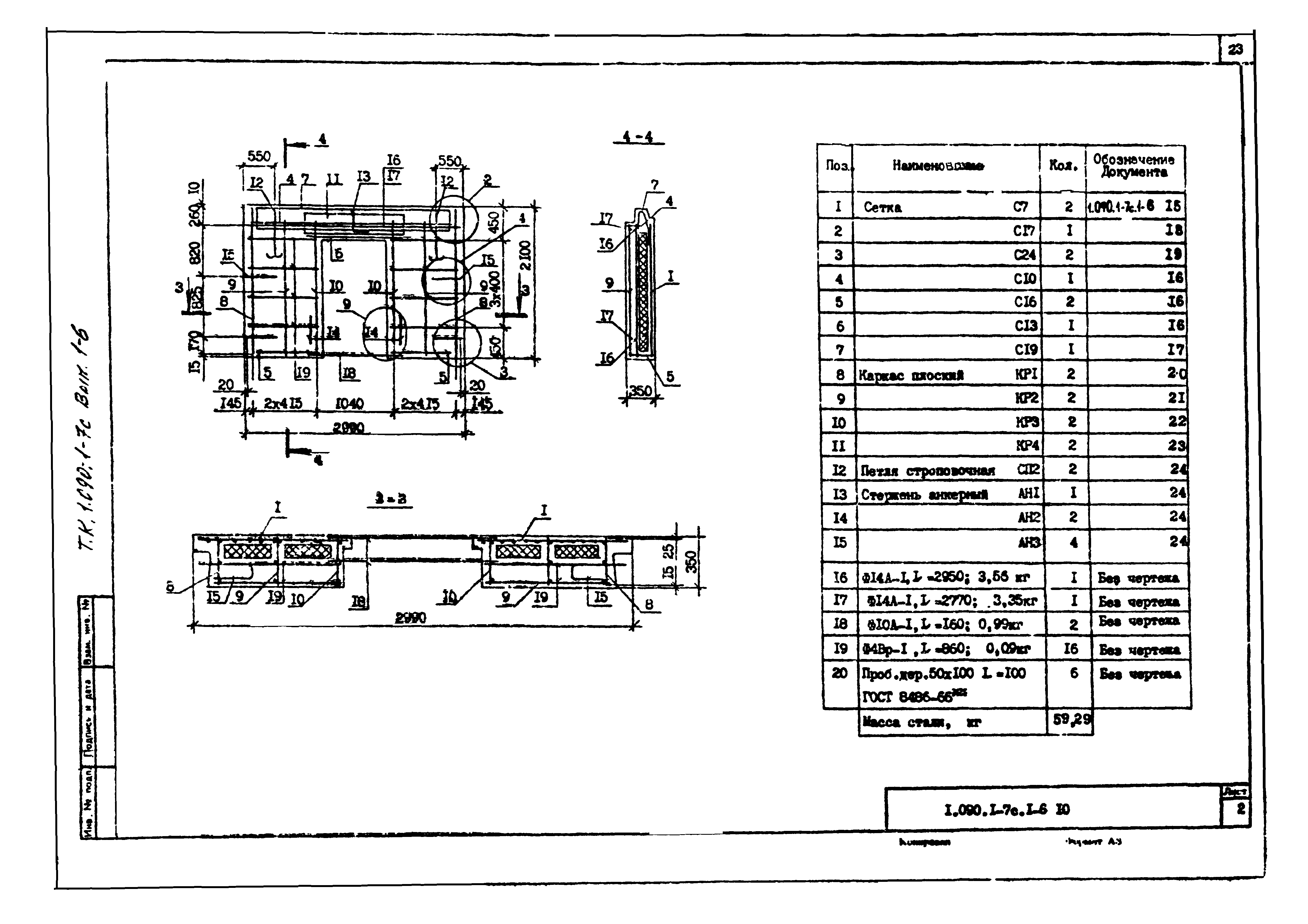
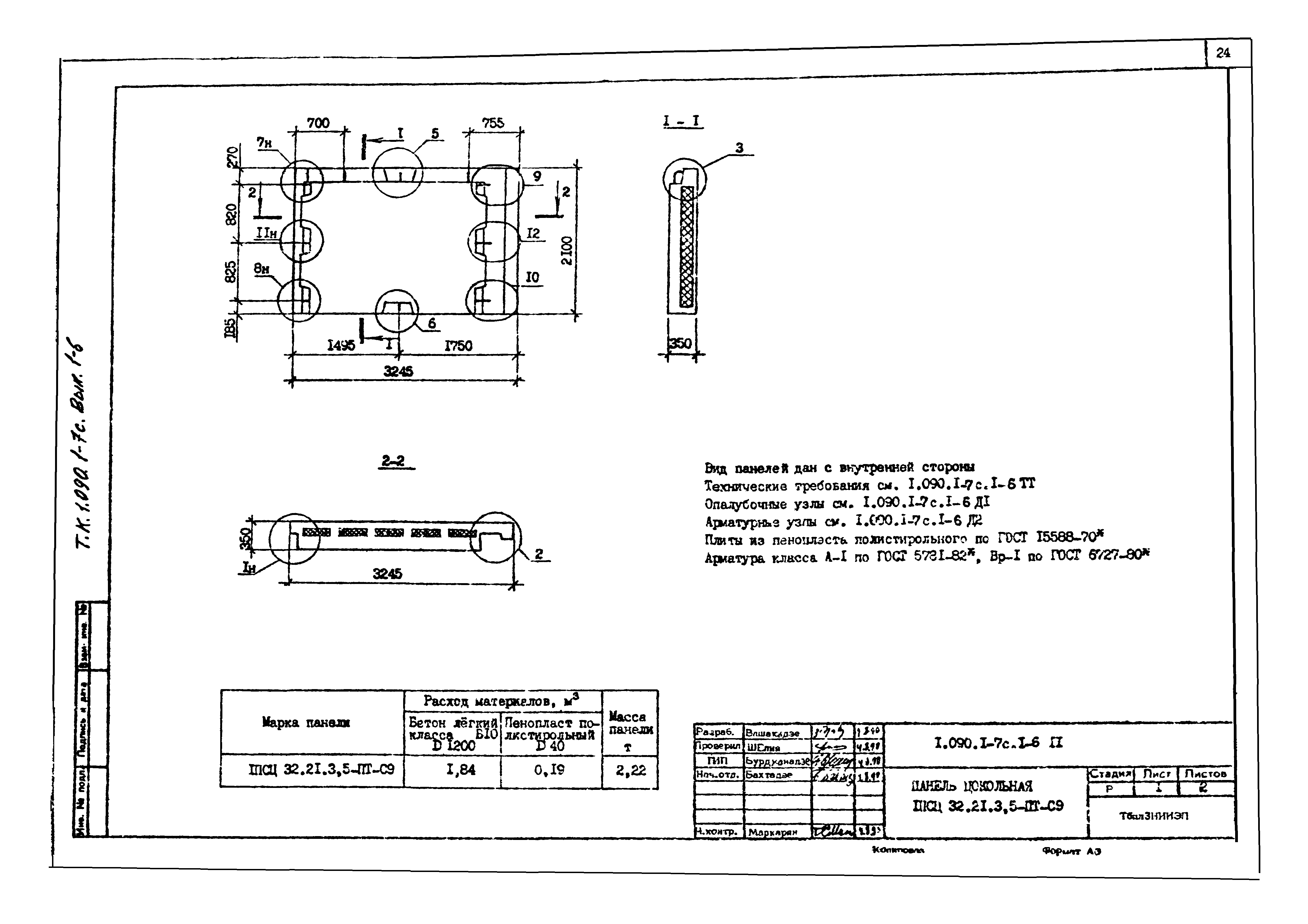
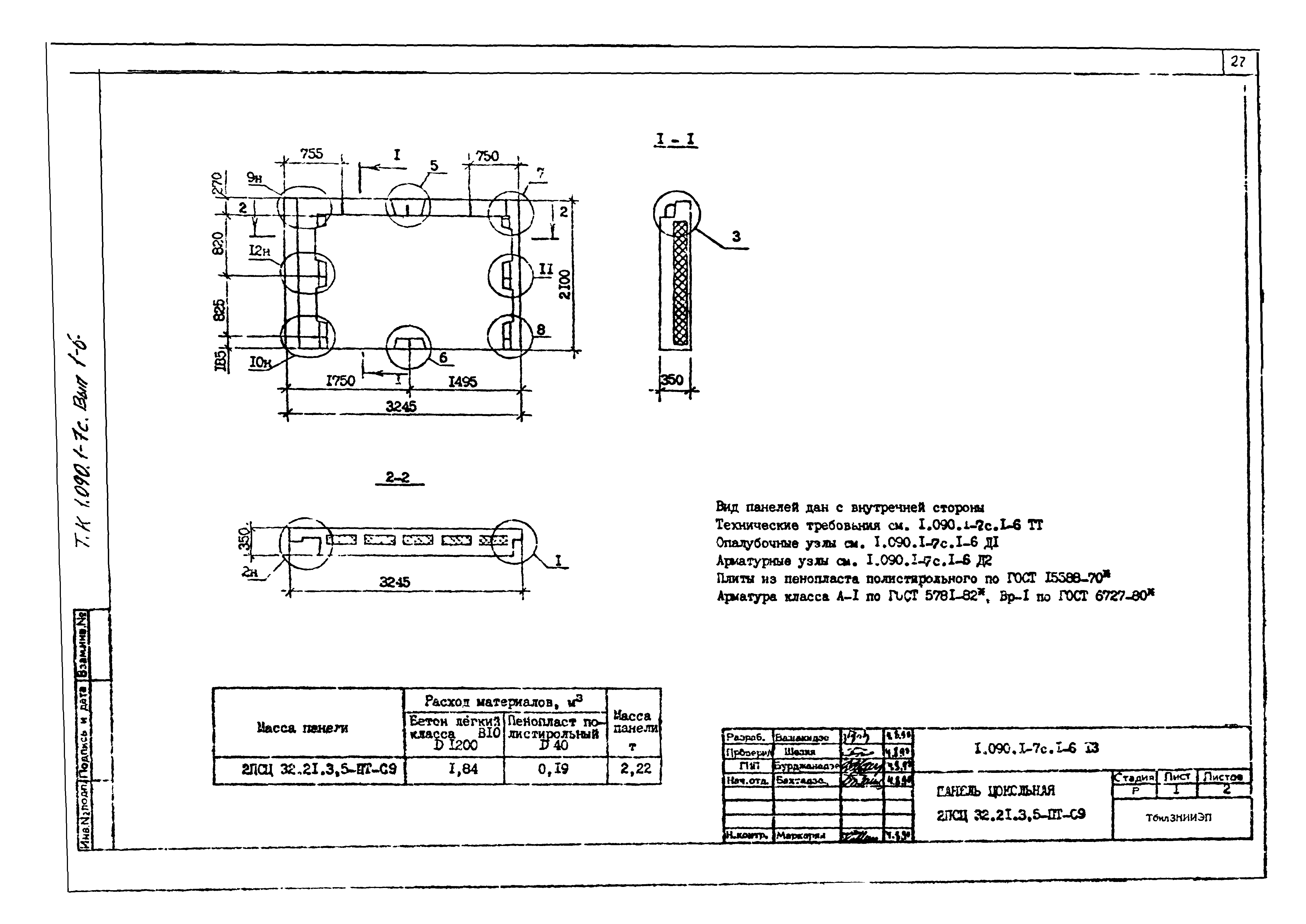
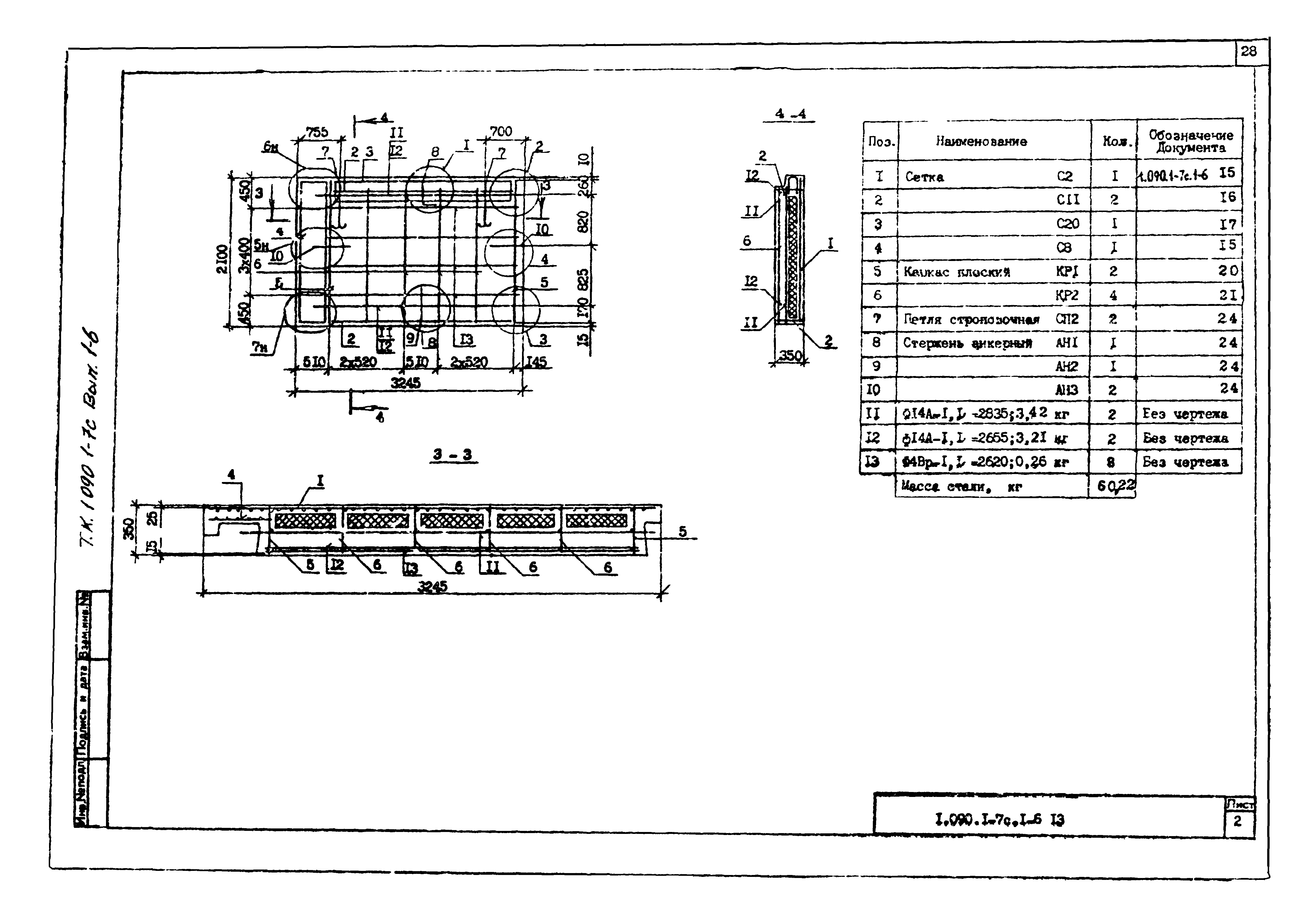
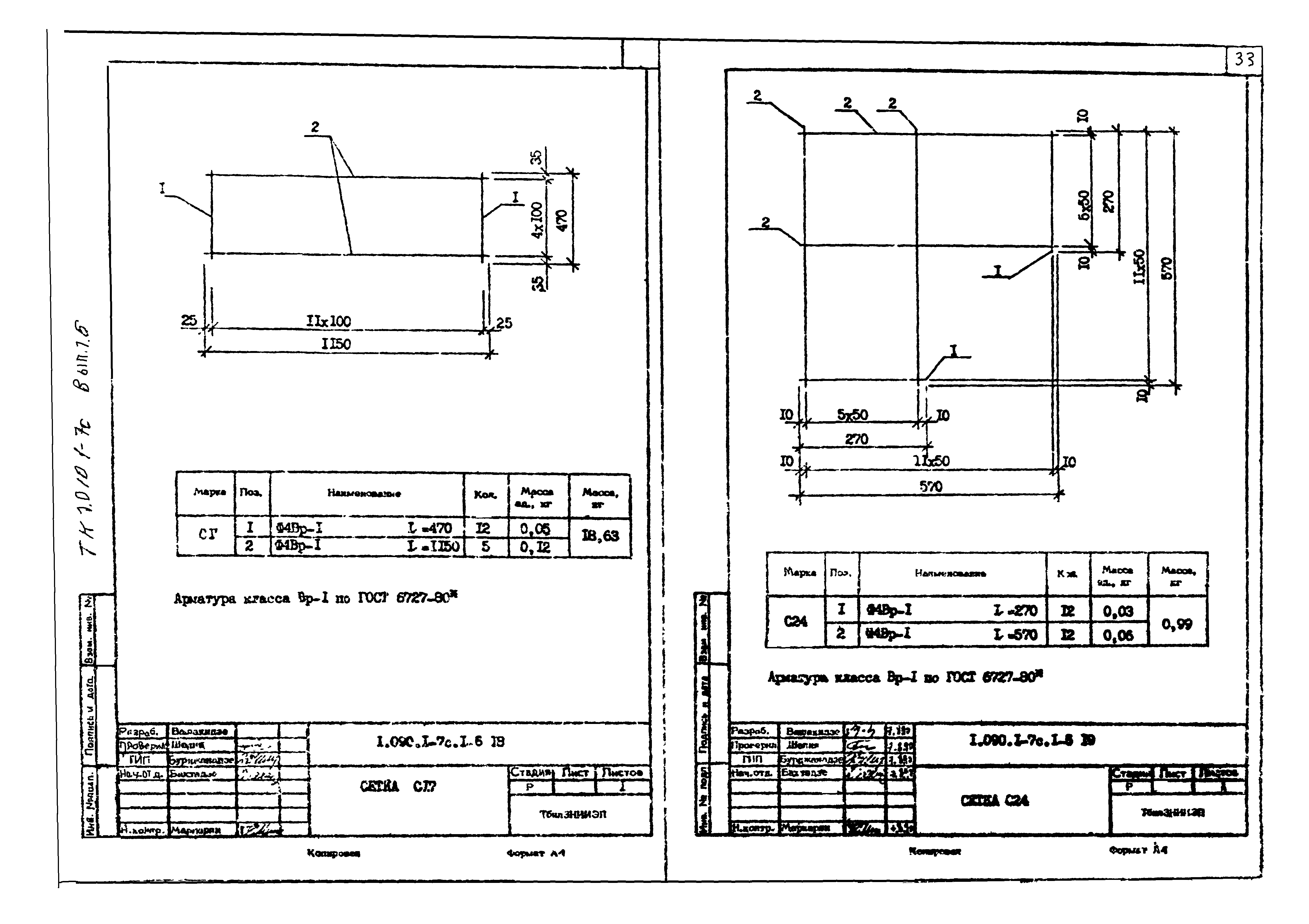
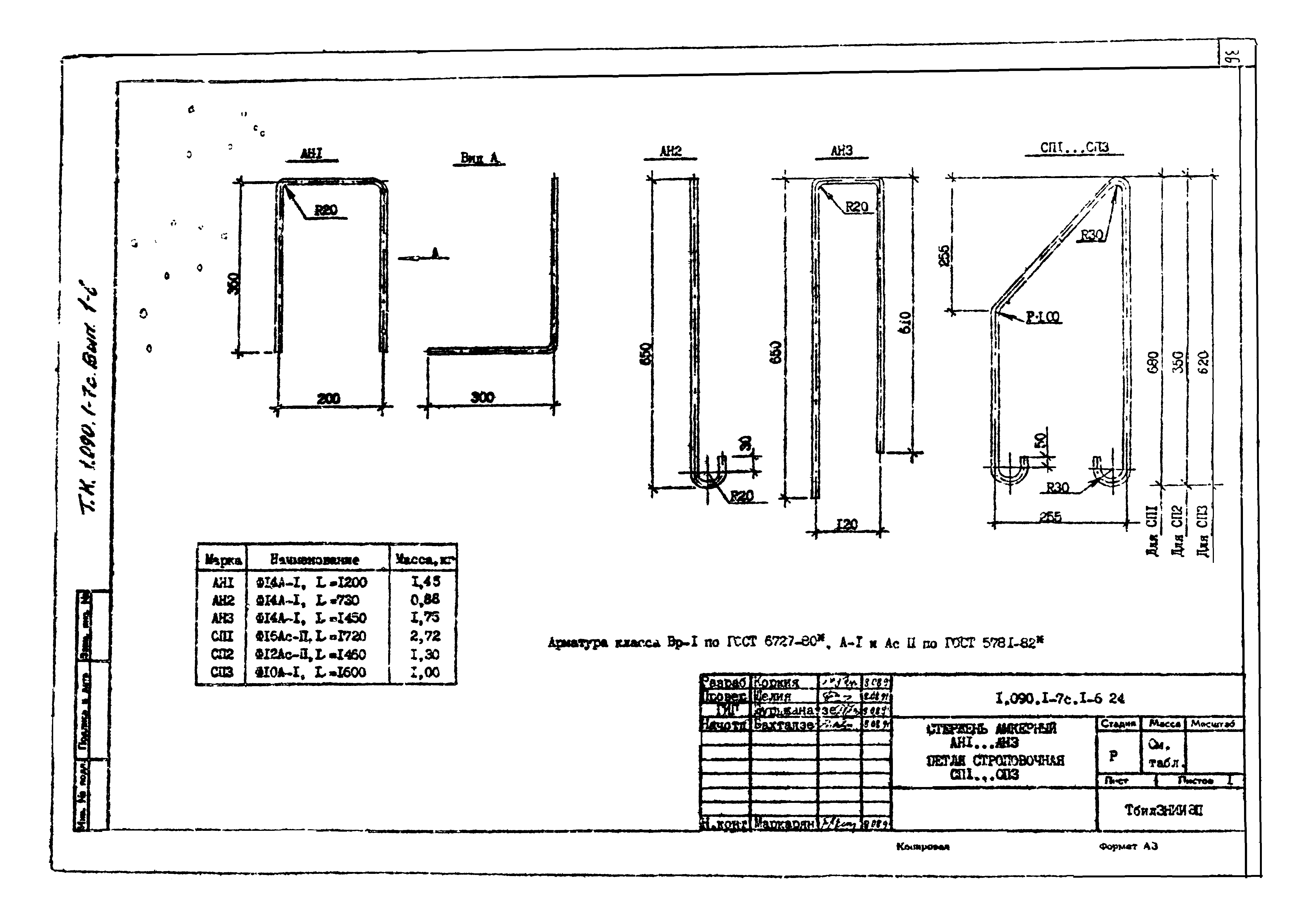
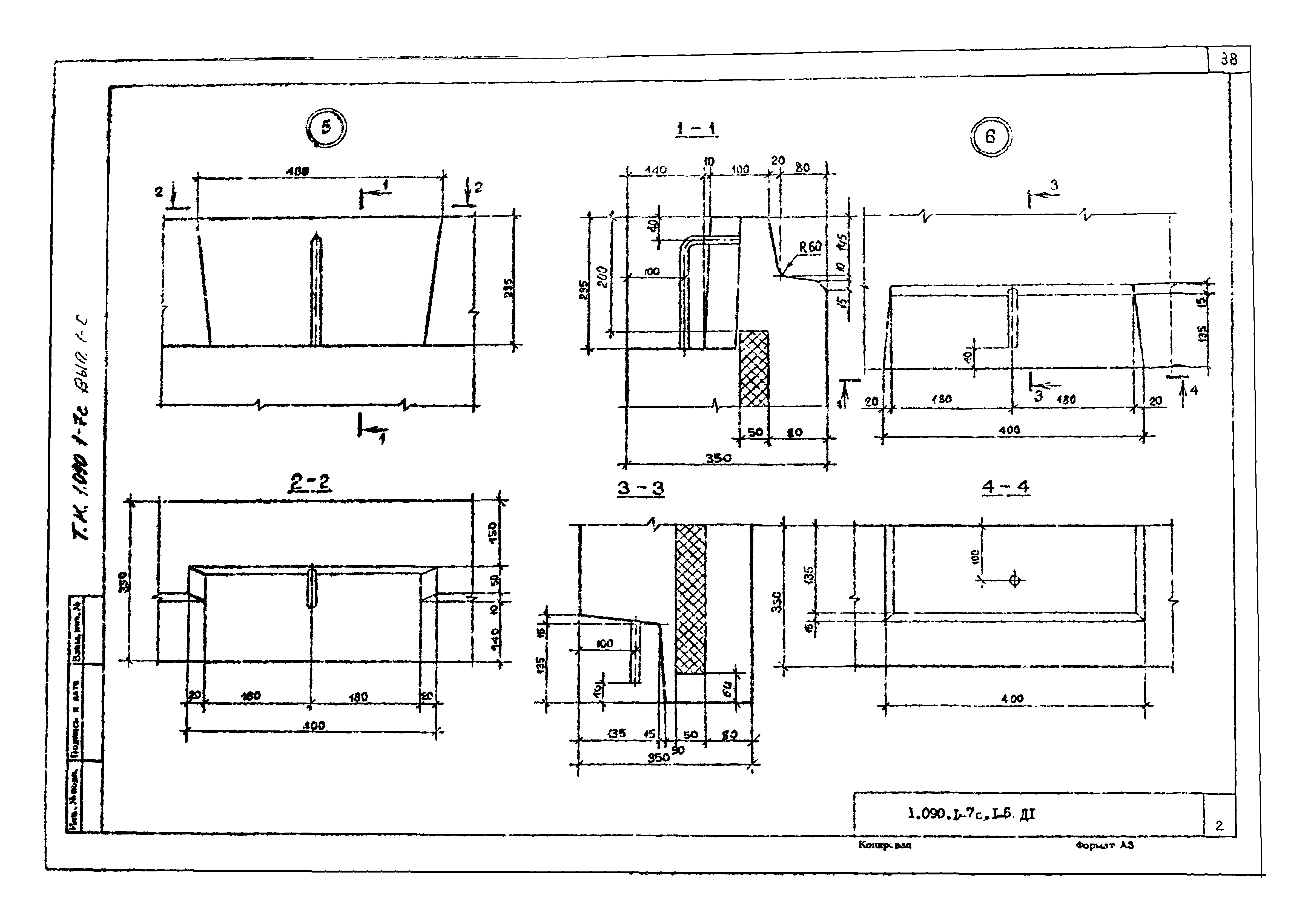
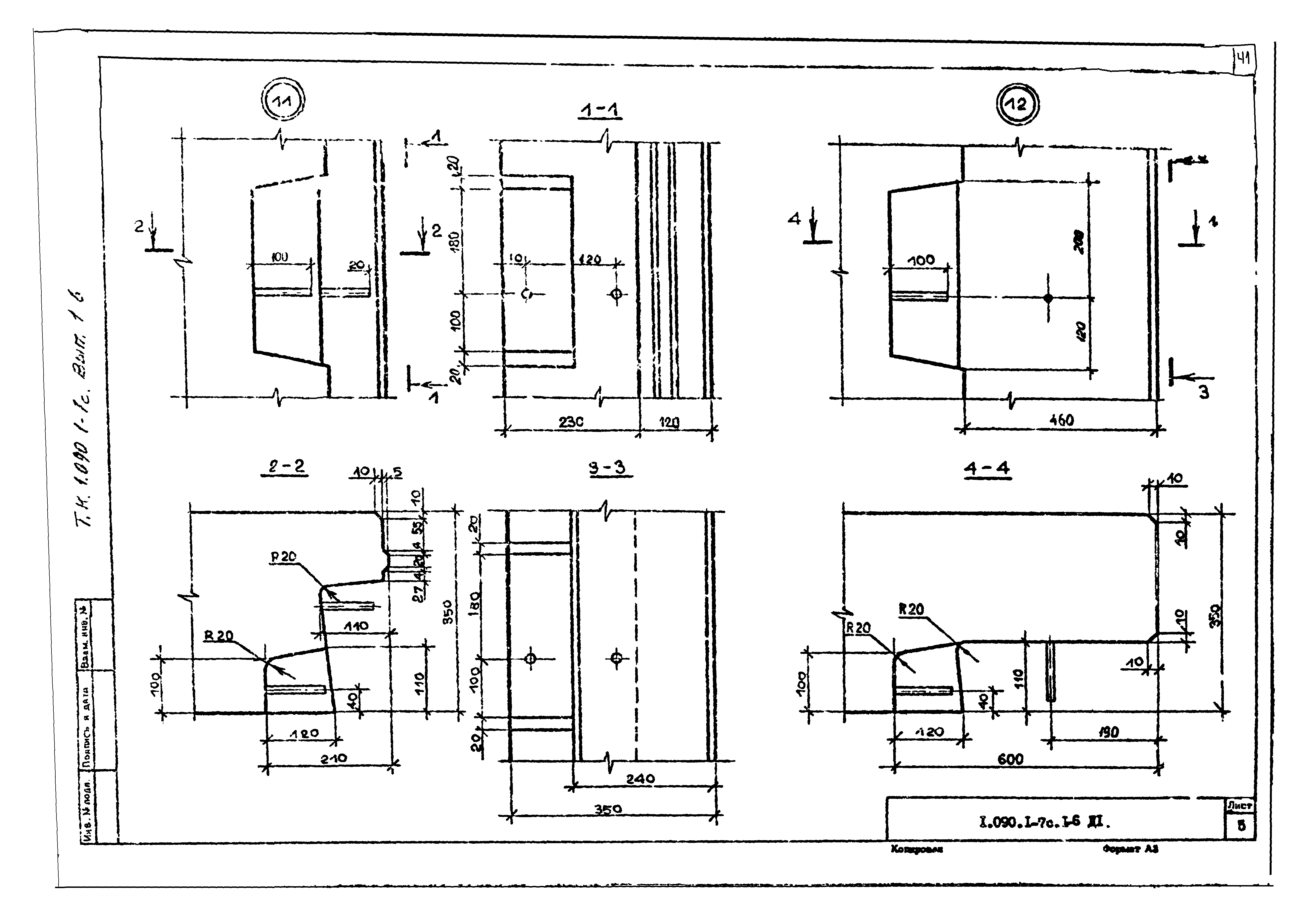
| Оглавление: | 1.090.1-7с.1-6-ТТ Технические требования 1.090.1-7с.1-6-01 Панель цокольная ПСЦ 60.21.3,5-ПТ-С9 1.090.1-7с.1-6-02 Панель цокольная ПСЦ 30.21.3,5-ПТ-С9 1.090.1-7с.1-6-03 Панель цокольная ПСЦ 18.21.3.5-ПТ-С9 1.090.1-7с.1-6-04 Панель цокольная ПСЦ 12.21.3.5-ПТ-С9 1.090.1-7с.1-6-05 Панель цокольная 1ПСЦ 60.21.3,5-ПТ- С9 1.090.1-7с.1-6-06 Панель цокольная 1ПСЦ 30.21.3,5-ПТ-09 1.090.1-7с.1-6-07 Панель цокольная 2ПСЦ 30.21.3,5-ПТ-С9 1.090.1-7с.1-6-08 Панель цокольная 3ПСЦ 30.21.3,5-ПТ-С9 1.090.1-7с.1-6-09 Панель цокольная 4ПСЦ 30.21.3.5-ПТ-С9 1.090.1-7с.1-6-10 Панель цокольная 5ПСЦ 30.21.3,5-ПТ-С9 1.090.1-7с.1-6-11 Панель цокольная 1ПСЦ 32.21.3,5-ПТ-С9 1.090.1-7с.1-6-12 Панель цокольная 1ПСЦ 14.21.3,5-ПТ-С9 1.090.1-7с.1-6-13 Панель цокольная 2ПСЦ 32.21.3,5-ПТ-С9 1.090.1-7с.1-6-14 Панель цокольная 2ПСЦ 14.21.3,5-ПТ-С9 1.090.1-7с.1-6-15 Сетка C1...C8 1.090.1-7с.1-6-16 Сетка C9...C16 1.090.1-7с.1-6-17 Сетка C18...C23 1.090.1-7с.1-6-18 Сетка С17 1.090.1-7с.1-6-19 Сетка С24 1.090.1-7с.1-6-20 Каркас плоский КР1 1.090.1-7с.1-6-21 Каркас плоский КР2 1.090.1-7с.1-6-22 Каркас плоский КР3 1.090.1-7с.1-6-23 Каркас плоский КР4 1.090.1-7с.1-6-24 Стержень анкерный AН1...AH3. Петля строповочная СП1...СП3 1.090.1-7с.1-6-Д1 Узлы опалубочное 1.090.1-7с.1-6-Д2 Узлы арматурные 1.090.1-7с.1-6-РС Расход стали |
| Разработан: | ТбилЗНИИЭП |
| Утверждён: | 13.09.1991 Госкомархитектура (128) |



















































