Скачать Серия 1.090.1-7с Выпуск 2-5. Панели наружных стен однослойные толщиной 400 мм для применения в районах сейсмичностью 9 баллов. Рабочие чертежиДата актуализации: 01.01.2021
|
| Обозначение: | Серия 1.090.1-7с |
| Обозначение англ: | Series 1.090.1-7с |
| Статус: | не определен законодательством |
| Название рус.: | Выпуск 2-5. Панели наружных стен однослойные толщиной 400 мм для применения в районах сейсмичностью 9 баллов. Рабочие чертежи |
| Дата добавления в базу: | 01.09.2013 |
| Дата актуализации: | 01.01.2021 |
| Дата введения: | 01.02.1992 |
| Дата окончания срока действия: | 30.06.2003 |
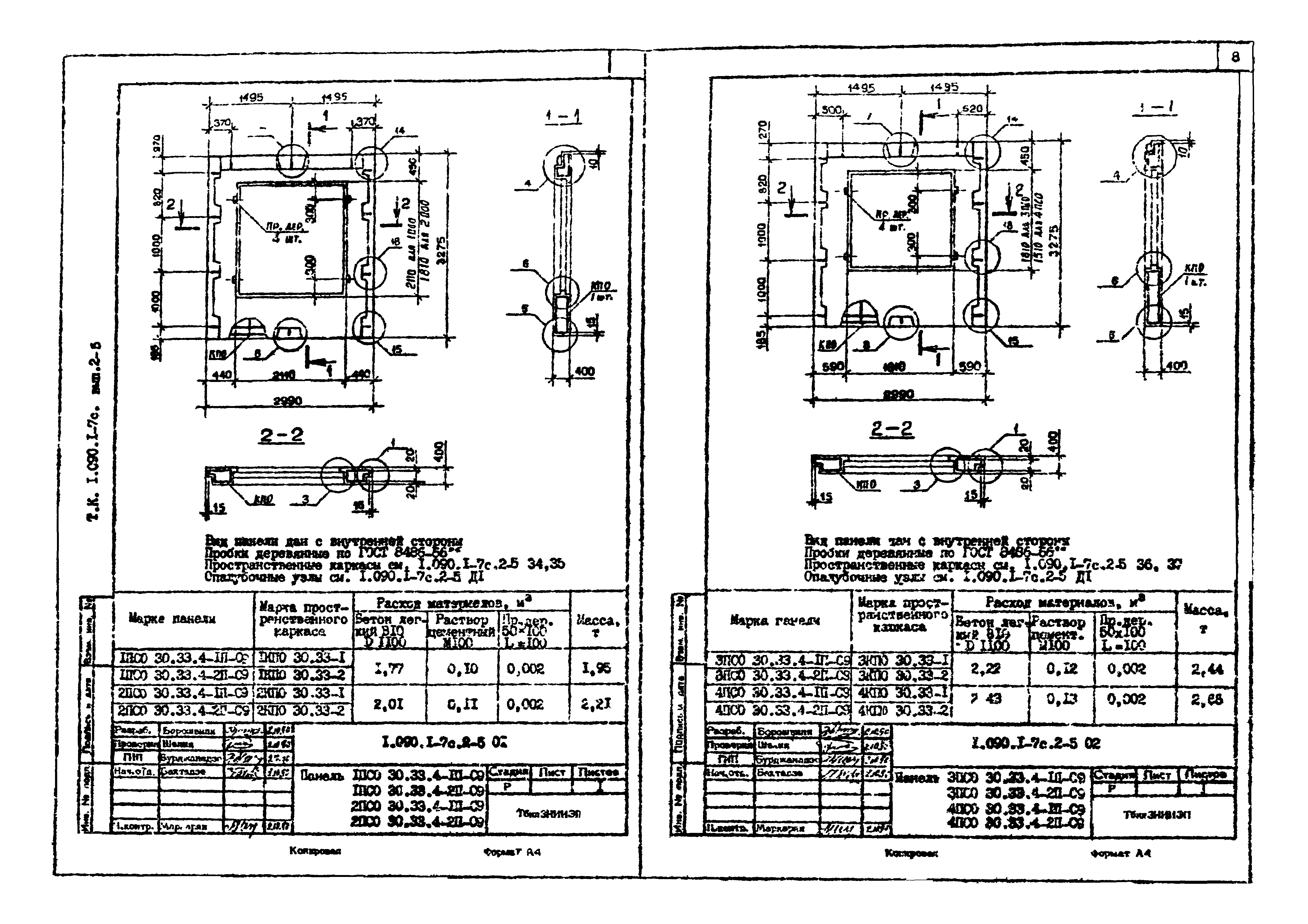
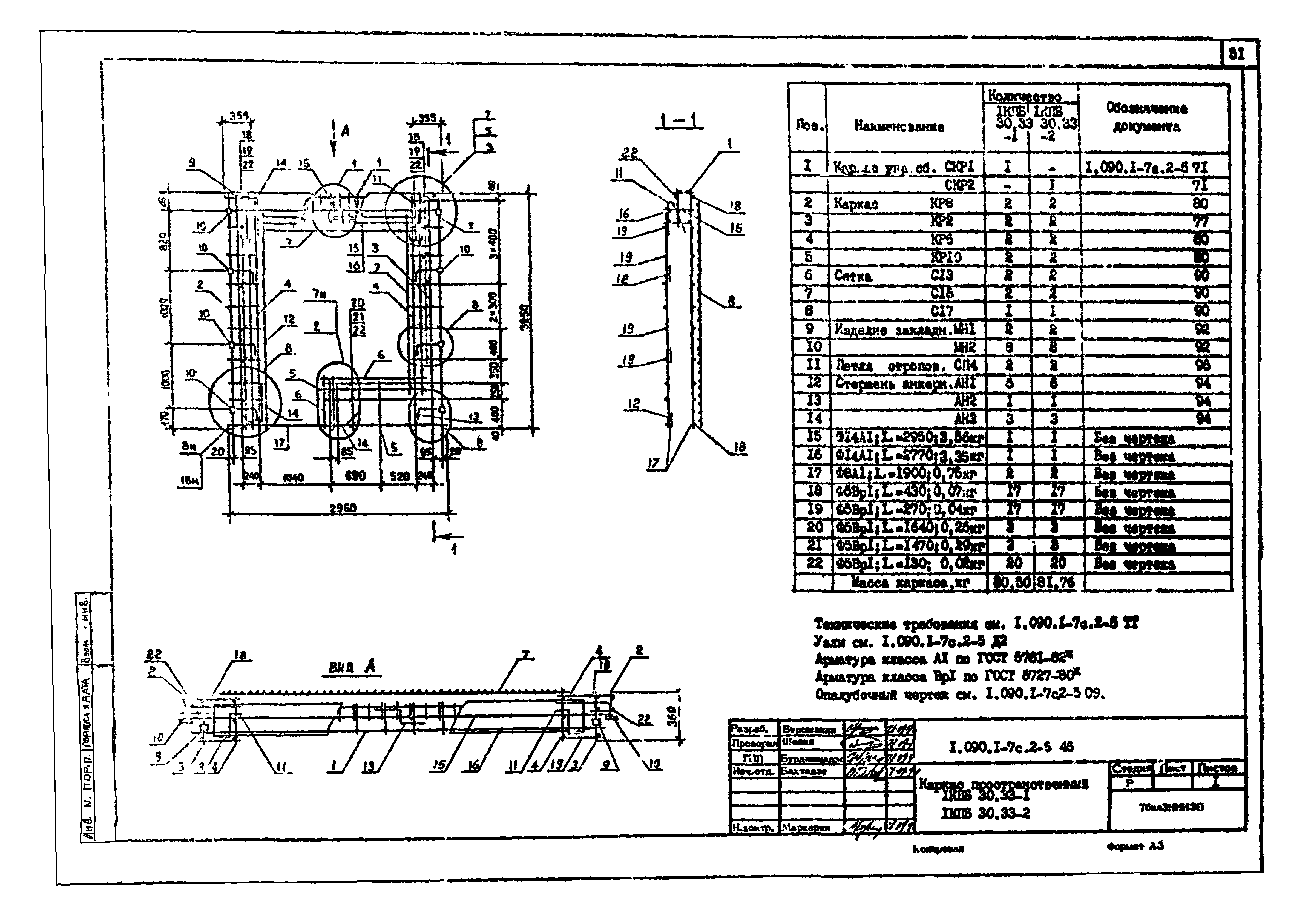
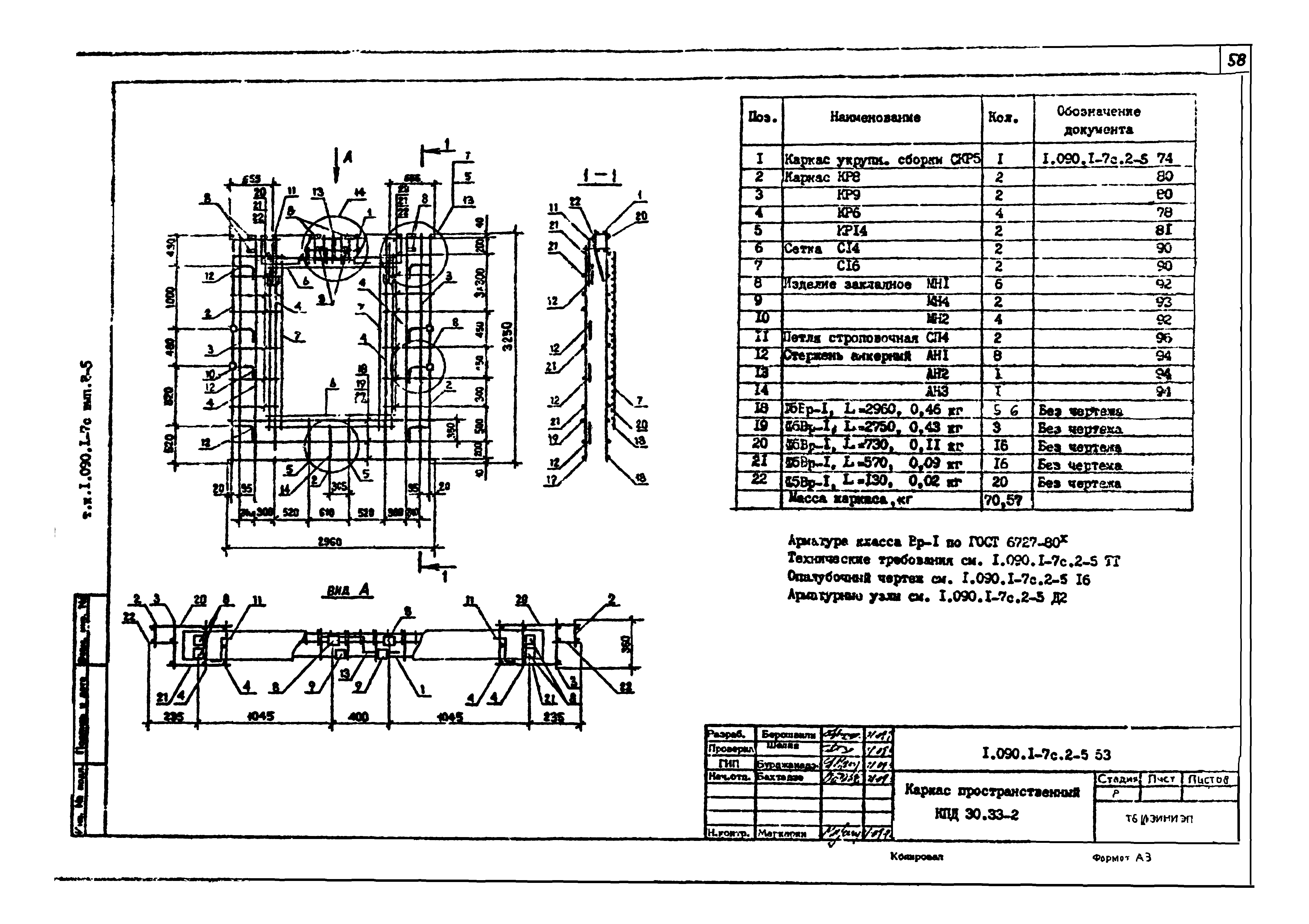
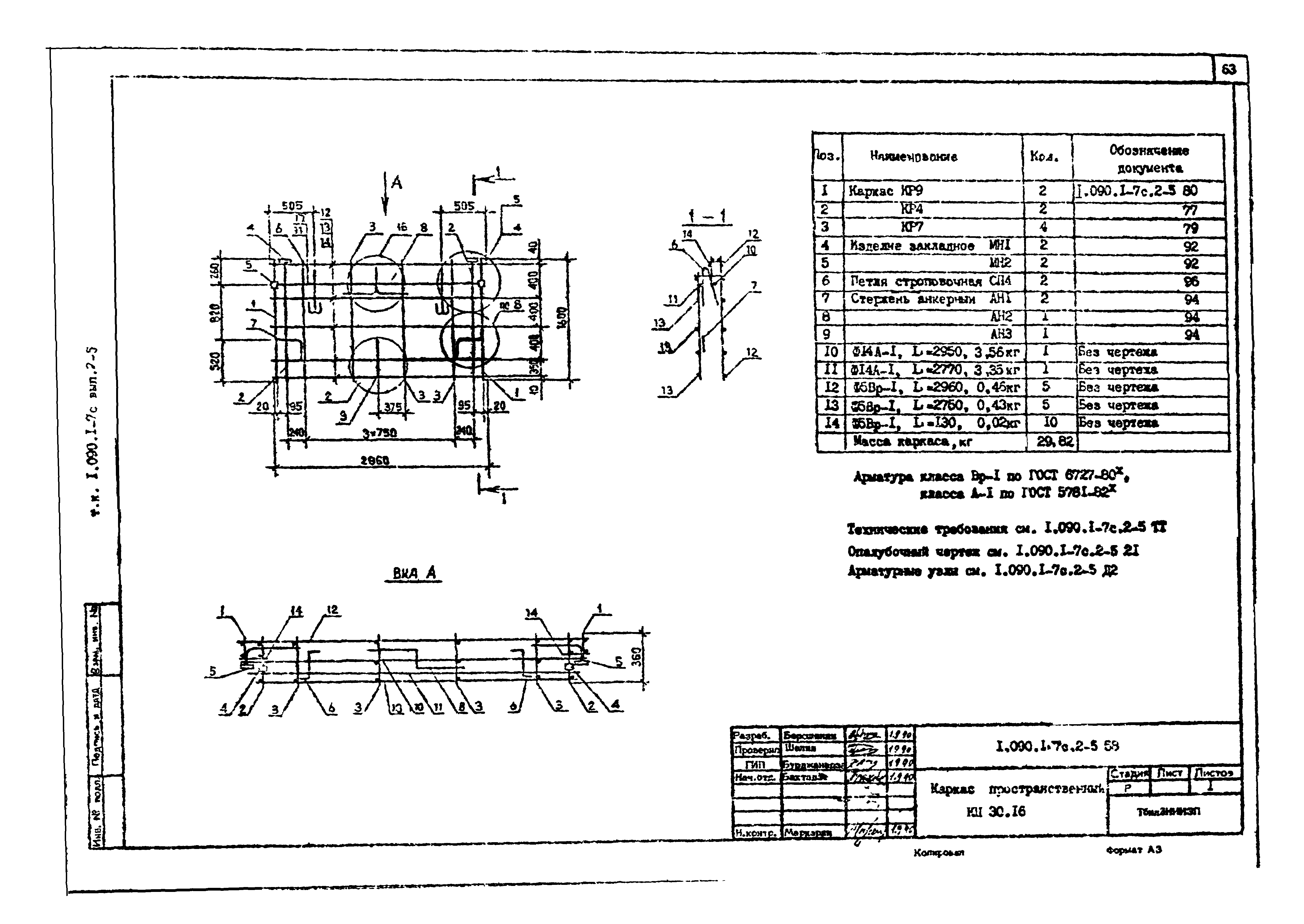
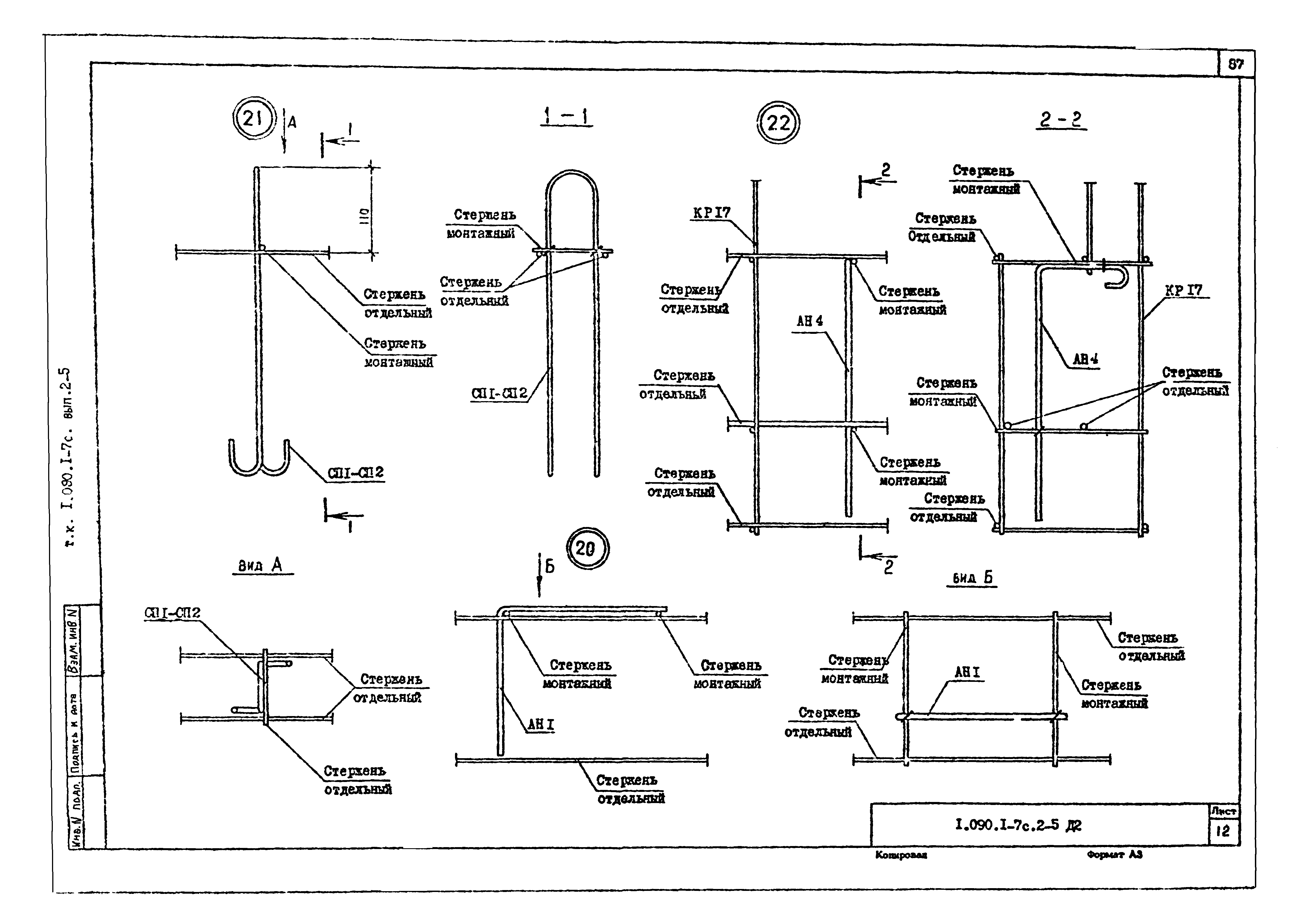
| Оглавление: | 1.090.1-7С.2-5-ТТ Технические требования 1.090.1-7С.2-5-01 Панель 1ПСО30.33.4-1П-С9,1ПСО30.33.4-2П-С9,2ПСО30.33.401П-С9,2ПСО30.33.4-2П-С9 1.090.1-7С.2-5-02 Панель 3ПСО30.33.4-1П-С9,3ПСО30.33.4-2П-С9,4ПСО30.33.401П-С9,4ПСО30.33.4-2П-С9 1.090.1-7С.2-5-03 Панель 5ПСО30.33.4-2П-С9 1.090.1-7С.2-5-04 Панель 6ПСО30.33.4-2П-С9,7ПСО30.33.4-2П-С9 1.090.1-7С.2-5-05 Панель 1ПСО33.33.4-1П-С9,1ПСО33.33.4-2П-С9 1.090.1-7С.2-5-06 Панель 2ПСО33.33.4-1П-С9,2ПСО33.33.4-2П-С9 1.090.1-7С.2-5-07 Панель 1ПСО60.33.4-1П-С9,1ПСО60.33.4-2П-С9,2ПСО60.33.401П-С9,2ПСО60.33.4-2П-С9 1.090.1-7С.2-5-08 Панель 3ПСО60.33.4-1П-С9,1ПСО60.33.4-2П-С9 1.090.1-7С.2-5-09 Панель 1ПСБ30.33.4-1П-С9,1ПСБ30.33.4-2П-С9 1.090.1-7С.2-5-10 Панель 2ПСБ30.33.4-1П-С9,2ПСБ30.33.4-2П-С9 1.090.1-7С.2-5-11 Панель ПСЛ30.33.3-2П-С9 1.090.1-7С.2-5-12 Панель 1ПСД30.33.3-2П-С9 1.090.1-7С.2-5-13 Панель 2ПСД30.33.3-2П-С9 1.090.1-7С.2-5-14 Панель 3ПСД30.33.3-2П-С9 1.090.1-7С.2-5-15 Панель 4ПСД30.33.3-1П-С9,4ПСД30.33.4-2П-С9 1.090.1-7С.2-5-16 Панель ПСД30.33.4-2П-С9 1.090.1-7С.2-5-17 Панель ПС30.33.4-П-С9 1.090.1-7С.2-5-18 Панель ПС24.33.4-П-С9 1.090.1-7С.2-5-19 Панель ПС18.33.4-П-С9 1.090.1-7С.2-5-20 Панель ПС12.33.4-П-С9 1.090.1-7С.2-5-21 Панель ПС30.16.4-П-С9 1.090.1-7С.2-5-22 Панель 1ПС33.33.4-П-С9 1.090.1-7С.2-5-23 Панель 1ПС15.33.4-П-С9 1.090.1-7С.2-5-24 Панель 2ПС33.33.4-П-С9 1.090.1-7С.2-5-25 Панель 2ПС15.33.4-П-С9 1.090.1-7С.2-5-26 Панель ПСП60.10.4-П-С9 1.090.1-7С.2-5-27 Панель ПСП30.10.4-П-С9 1.090.1-7С.2-5-28 Панель ПСП18.10.4-П-С9 1.090.1-7С.2-5-29 Панель ПСП12.10.4-П-С9 1.090.1-7С.2-5-30 Панель 1ПСП33.10.4-П-С9 1.090.1-7С.2-5-31 Панель 2ПСП33.10.4-П-С9 1.090.1-7С.2-5-32 Панель 1ПСП15.10.4-П-С9 1.090.1-7С.2-5-33 Панель 2ПСП15.10.4-П-С9 1.090.1-7С.2-5-Д1 Узлы опалубочные 1.090.1-7С.2-5-34 Каркас пространственный 1КПО30.33-1,1КПО30.33-2 1.090.1-7С.2-5-35 Каркас пространственный 2КПО30.33-1,2КПО30.33-2 1.090.1-7С.2-5-36 Каркас пространственный 3КПО30.33-1,3КПО30.33-2 1.090.1-7С.2-5-37 Каркас пространственный 4КПО30.33-1,4КПО30.33-2 1.090.1-7С.2-5-38 Каркас пространственный 5КПО30.33-2 1.090.1-7С.2-5-39 Каркас пространственный 6КПО30.33-2 1.090.1-7С.2-5-40 Каркас пространственный 7КПО30.33-2 1.090.1-7С.2-5-41 Каркас пространственный 1КПО33.33-1,1ПКО33.33-2 1.090.1-7С.2-5-42 Каркас пространственный 2КПО33.33-1,2ПКО33.33-2 1.090.1-7С.2-5-43 Каркас пространственный 1КПО60.33-1,1ПКО60.33-2 1.090.1-7С.2-5-44 Каркас пространственный 2КПО60.33-1,2ПКО60.33-2 1.090.1-7С.2-5-45 Каркас пространственный 3КПО60.33-1,3ПКО60.33-2 1.090.1-7С.2-5-46 Каркас пространственный 1КПБ30.33-1,1ПКБ30.33-2 1.090.1-7С.2-5-47 Каркас пространственный 2КПБ30.33-1,2ПКБ30.33-2 1.090.1-7С.2-5-48 Каркас пространственный КПД30.33-2 1.090.1-7С.2-5-49 Каркас пространственный 1КПД30.33-2 1.090.1-7С.2-5-50 Каркас пространственный 2КПД30.33-2 1.090.1-7С.2-5-51 Каркас пространственный 3КПД30.33-2 1.090.1-7С.2-5-52 Каркас пространственный 4КПД30.33-1,4КПД30.33-2 1.090.1-7С.2-5-53 Каркас пространственный КПД30.33-2 1.090.1-7С.2-5-54 Каркас пространственный КП30.33 1.090.1-7С.2-5-55 Каркас пространственный КПД24.33 1.090.1-7С.2-5-56 Каркас пространственный КПД18.33 1.090.1-7С.2-5-57 Каркас пространственный КПД12.33 1.090.1-7С.2-5-58 Каркас пространственный КПД30.16 1.090.1-7С.2-5-59 Каркас пространственный 1КП30.33 1.090.1-7С.2-5-60 Каркас пространственный 1КП15.33 1.090.1-7С.2-5-61 Каркас пространственный 2КП33.33 1.090.1-7С.2-5-62 Каркас пространственный 2КП15.33 1.090.1-7С.2-5-63 Каркас пространственный КПП60.10 1.090.1-7С.2-5-64 Каркас пространственный КПП30.10 1.090.1-7С.2-5-65 Каркас пространственный КПП18.10 1.090.1-7С.2-5-66 Каркас пространственный КПП12.10 1.090.1-7С.2-5-67 Каркас пространственный 1КПП33.10 1.090.1-7С.2-5-68 Каркас пространственный 2КПП33.10 1.090.1-7С.2-5-69 Каркас пространственный 1КПП15.10 1.090.1-7С.2-5-70 Каркас пространственный 2КПП15.10 1.090.1-7С.2-5-Д2 Узлы арматурные 1.090.1-7С.2-5-71 Каркас укрупнительной сборки СКР1,СКР2 1.090.1-7С.2-5-72 Каркас укрупнительной сборки СКР3 1.090.1-7С.2-5-73 Каркас укрупнительной сборки СКР4 1.090.1-7С.2-5-74 Каркас укрупнительной сборки СКР5 1.090.1-7С.2-5-75 Каркас укрупнительной сборки СКР6 1.090.1-7С.2-5-76 Каркас укрупнительной сборки СКР7 1.090.1-7С.2-5-77 Каркас КР1...КР4 1.090.1-7С.2-5-78 Каркас КР5,КР6 1.090.1-7С.2-5-79 Каркас КР7 1.090.1-7С.2-5-80 Каркас КР8...КР12 1.090.1-7С.2-5-81 Каркас КР13,КР14 1.090.1-7С.2-5-82 Каркас КР15,КР16 1.090.1-7С.2-5-83 Каркас КР17,КР18 1.090.1-7С.2-5-84 Сетка С1...4 1.090.1-7С.2-5-85 Сетка С5 1.090.1-7С.2-5-86 Сетка С6 1.090.1-7С.2-5-87 Сетка С7 1.090.1-7С.2-5-88 Сетка С8,С10 1.090.1-7С.2-5-89 Сетка С9,С11,С12 1.090.1-7С.2-5-90 Сетка С13...С17 1.090.1-7С.2-5-91 Сетка С18,С19 1.090.1-7С.2-5-92 Изделие закладное МН1,МН2 1.090.1-7С.2-5-93 Изделие закладное МН3,МН4 1.090.1-7С.2-5-94 Стержень анкерный АН1...АН4 1.090.1-7С.2-5-95 Петля строповочная СП1,СП2 1.090.1-7С.2-5-96 Петля строповочная СП3...СП6 1.090.1-7С.2-5-РС Расход стали |
| Разработан: | ТбилЗНИИЭП |
| Утверждён: | 13.09.1991 Госкомархитектура (128) |












































































































