Скачать Серия 1.090.1-7с Выпуск 1-1. Панели наружных стен нулевого цикла однослойные толщиной 250 мм для применения в районах сейсмичностью 7 и 8 баллов. Рабочие чертежиДата актуализации: 01.01.2021
|
| Обозначение: | Серия 1.090.1-7с |
| Обозначение англ: | Series 1.090.1-7с |
| Статус: | действует |
| Название рус.: | Выпуск 1-1. Панели наружных стен нулевого цикла однослойные толщиной 250 мм для применения в районах сейсмичностью 7 и 8 баллов. Рабочие чертежи |
| Дата добавления в базу: | 01.09.2013 |
| Дата актуализации: | 01.01.2021 |
| Дата введения: | 01.03.1991 |
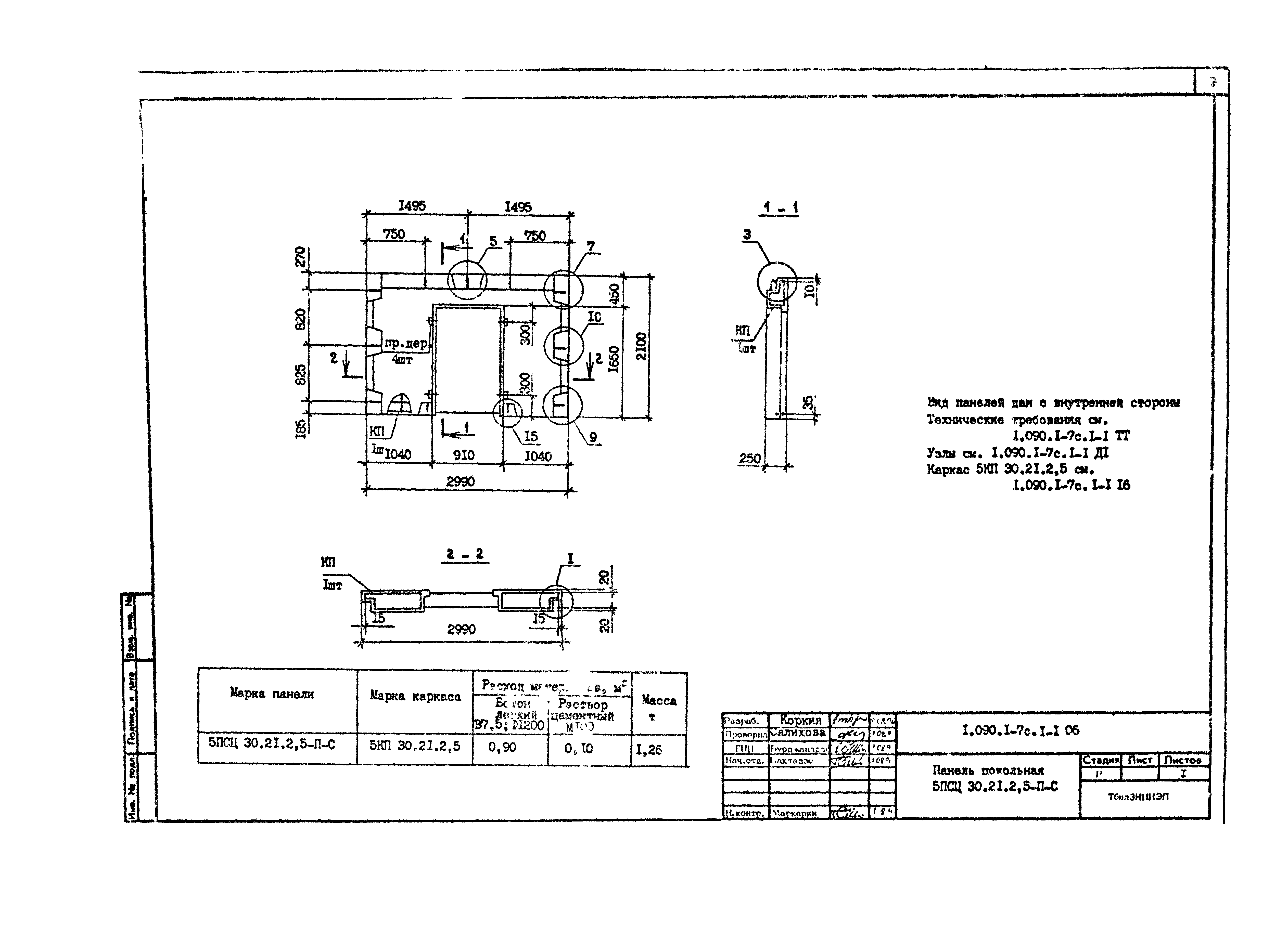
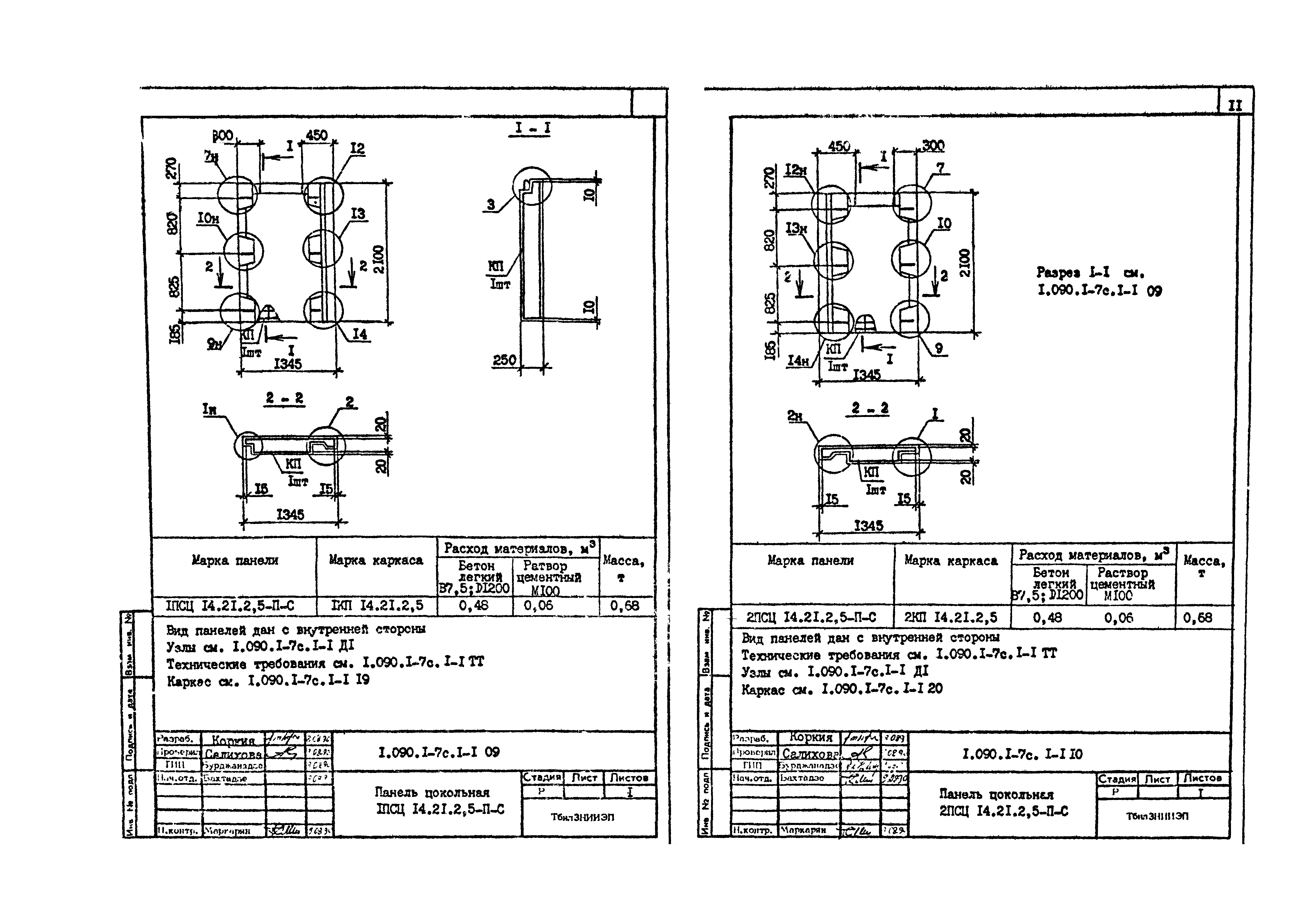
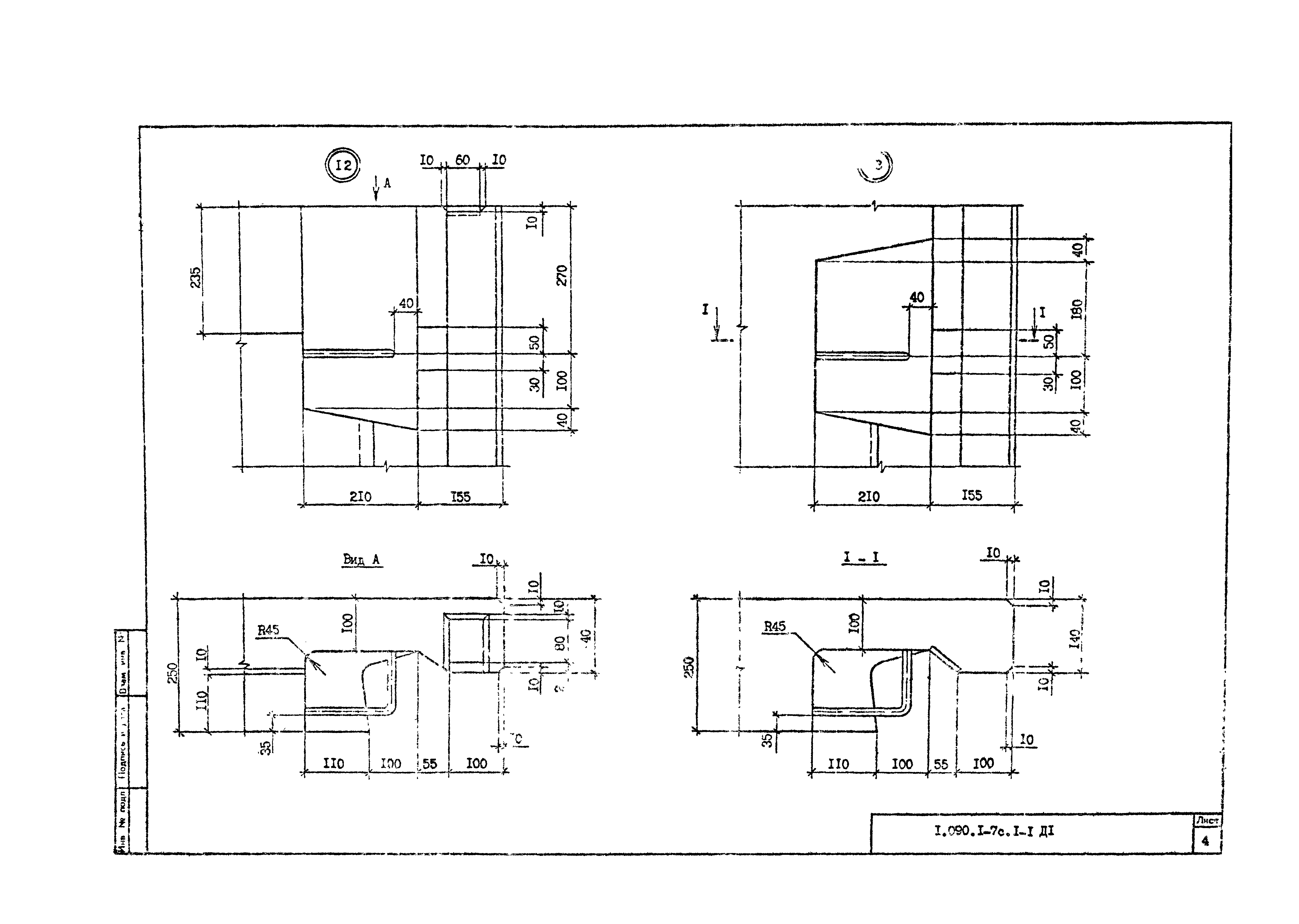
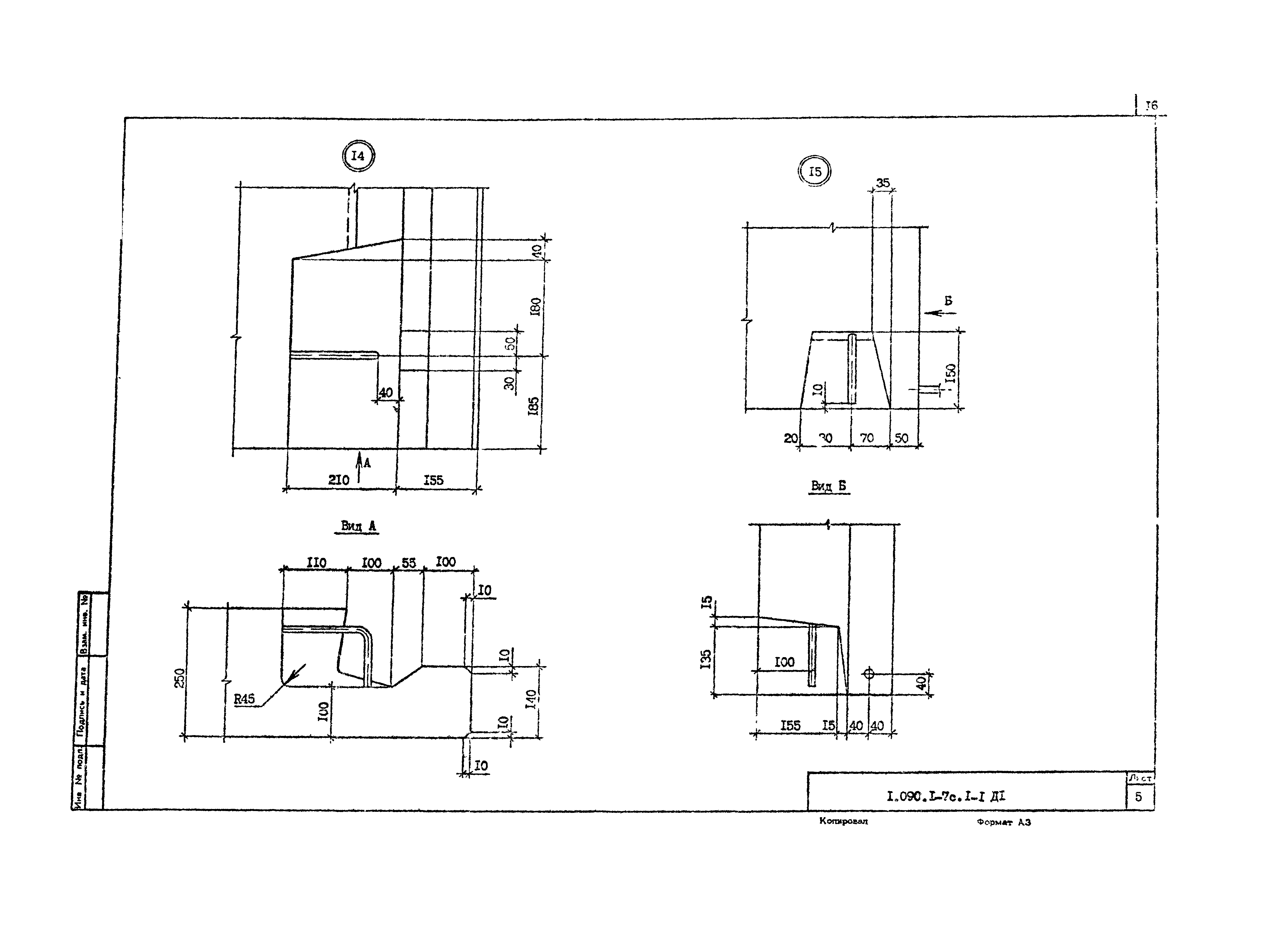
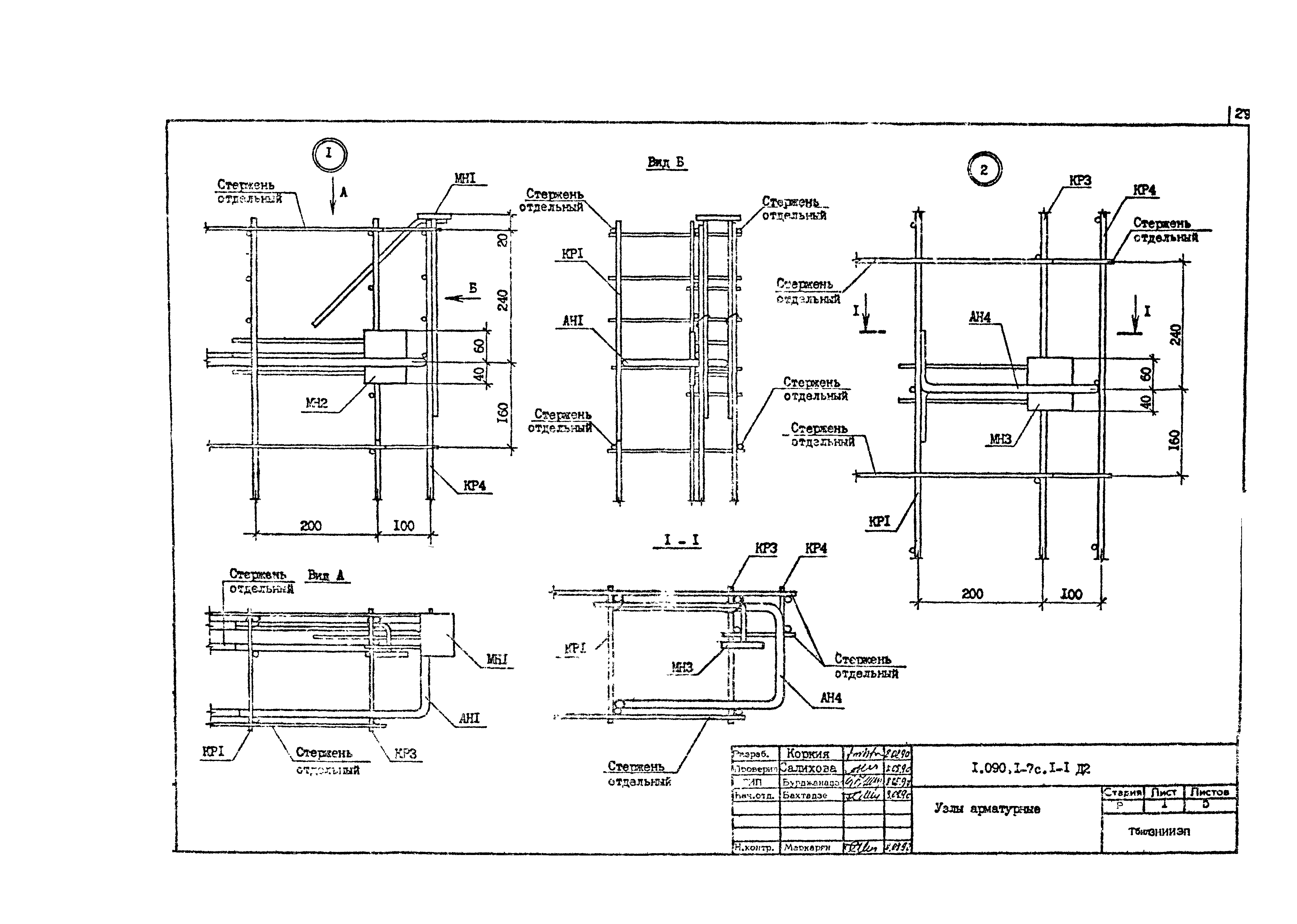
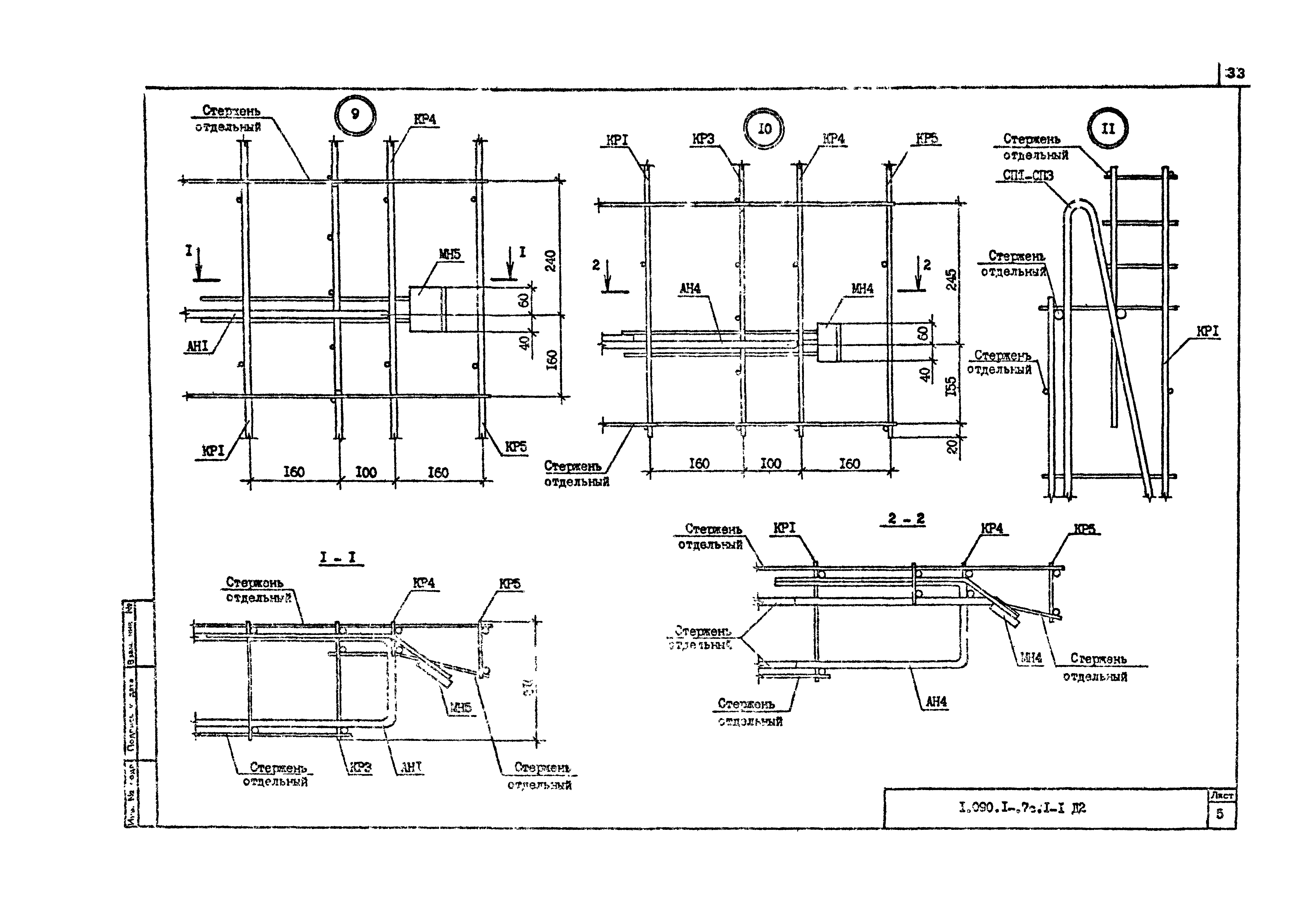
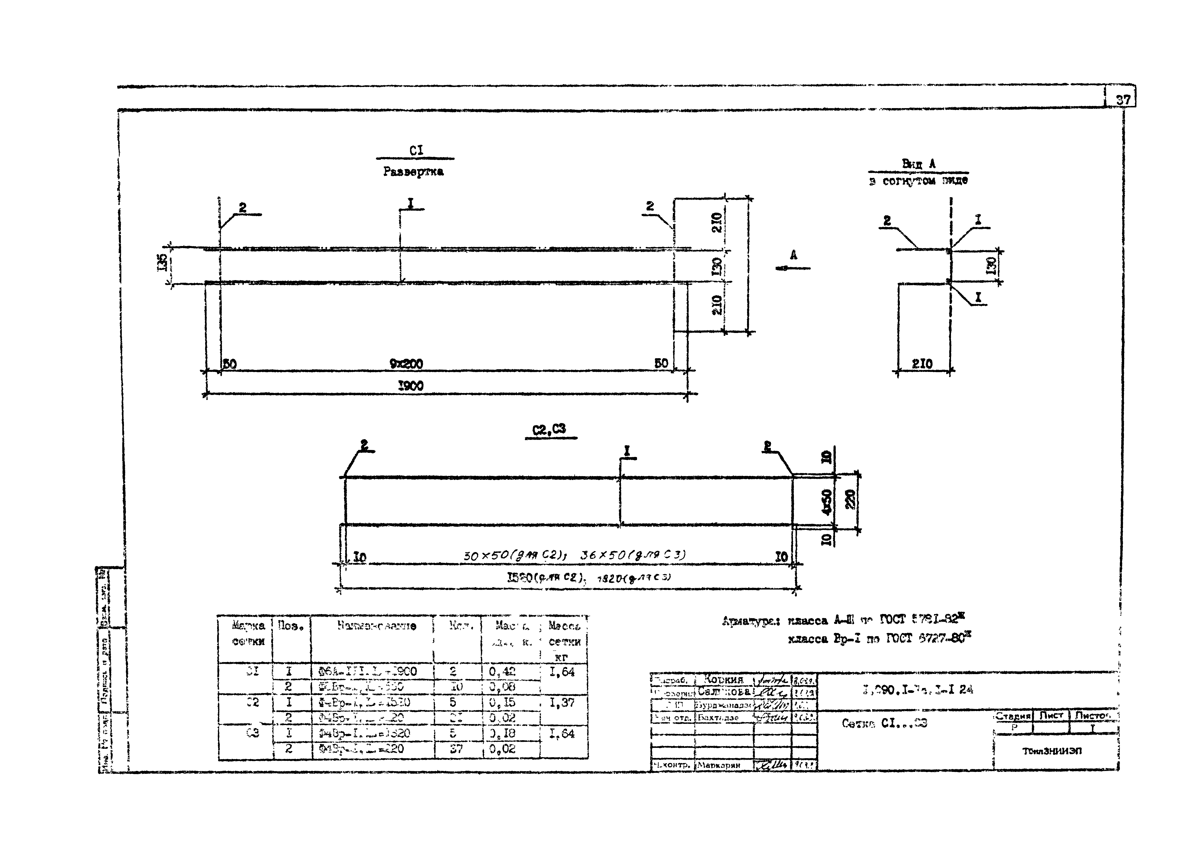
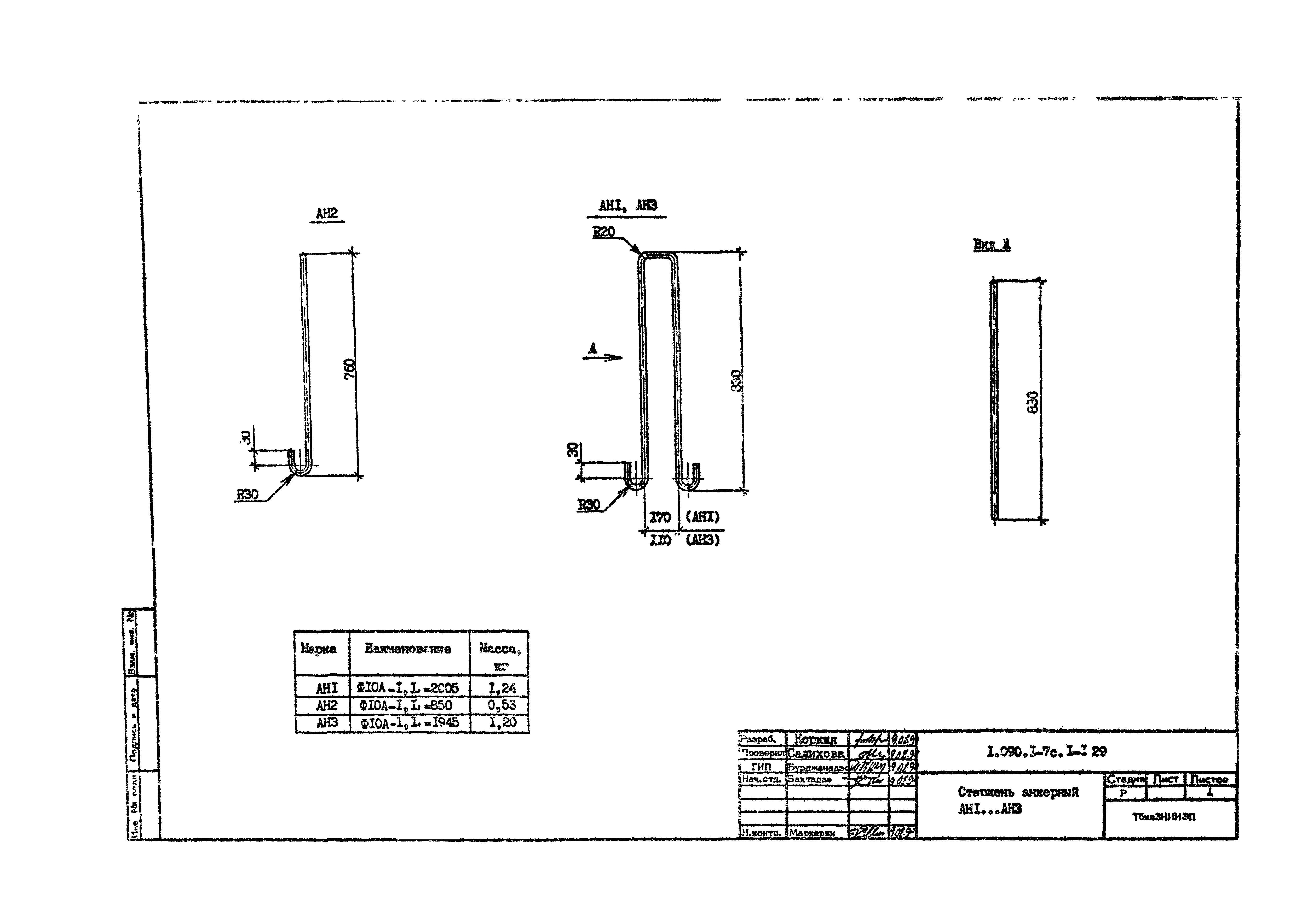
| Оглавление: | 1.090.1-7С.1-1-ТТ Технические требования 1.090.1-7С.1-1-01 Панель цокольная ПСЦ60.21.2,5-П-С,2ПСЦ60.21.2,5-П-С 1.090.1-7С.1-1-02 Панель цокольная ПСЦ30.21.2,5-П-С,4ПСЦ30.21.2,5-П-С 1.090.1-7С.1-1-03 Панель цокольная 1ПСЦ30.21.2,5-П-С,2ПСЦ30.21.2,5-П-С,3ПСЦ3С.21.2,5-П-С 1.090.1-7С.1-1-04 Панель цокольная ПСЦ18.21.2,5-П-С 1.090.1-7С.1-1-05 Панель цокольная ПСЦ12.21.2,5-П-С 1.090.1-7С.1-1-06 Панель цокольная 5ПСЦ30.21.2,5-П-С 1.090.1-7С.1-1-07 Панель цокольная 1ПСЦ32.21.2,5-П-С 1.090.1-7С.1-1-08 Панель цокольная 2ПСЦ32.21.2,5-П-С 1.090.1-7С.1-1-09 Панель цокольная 1ПСЦ14.21.2,5-П-С 1.090.1-7С.1-1-10 Панель цокольная 2ПСЦ14.21.2,5-П-С 1.090.1-7С.1-1-Д1 Узлы опалубочные 1.090.1-7С.1-1-11 Каркас пространственный КП60.21.2,5,1КП60.21.2,5 1.090.1-7С.1-1-12 Каркас пространственный КП30.21.2,5,4КП60.21.2,5 1.090.1-7С.1-1-13 Каркас пространственный 1КП30.21.2,5,2КП30.21.2,5,3КП30.21.2,5 1.090.1-7С.1-1-14 Каркас пространственный КП18.21.2,5 1.090.1-7С.1-1-15 Каркас пространственный 5КП12.21.2,5 1.090.1-7С.1-1-16 Каркас пространственный 5КП30.21.2,5 1.090.1-7С.1-1-17 Каркас пространственный 1КП32.21.2,5 1.090.1-7С.1-1-18 Каркас пространственный 2КП32.21.2,5 1.090.1-7С.1-1-19 Каркас пространственный 1КП14.21.2,5 1.090.1-7С.1-1-20 Каркас пространственный 2КП14.21.2,5 1.090.1-7С.1-1-Д2 Узлы арматурные 1.090.1-7С.1-1-21-Каркас укрупнительной сборки СКР1 1.090.1-7С.1-1-22 Каркас КР1...КР4 1.090.1-7С.1-1-23 Каркас КР5...КР8 1.090.1-7С.1-1-24 Сетка С1...С3 1.090.1-7С.1-1-25 Изделие закладное МН1,МН2 1.090.1-7С.1-1-26 Изделие закладное МН3...МН5 1.090.1-7С.1-1-27 Петля строповочная СП1...СП3 1.090.1-7С.1-1-28 Стержень анкерный АН4,АН5 1.090.1-7С.1-1-29 Стержень анкерный АН1...АН3 1.090.1-7С.1-1-РС Ведомость расхода стали |
| Разработан: | ТбилЗНИИЭП |
| Утверждён: | 20.11.1990 Госкомархитектура (209) |
| Заменяет собой: |










































