Скачать Серия 1.090.1-7с Выпуск 1-3. Панели наружных стен нулевого цикла трехслойные на жестких связях толщиной 350 мм для применения в районах сейсмичностью 7 и 8 баллов. Рабочие чертежиДата актуализации: 01.01.2021
|
| Обозначение: | Серия 1.090.1-7с |
| Обозначение англ: | Series 1.090.1-7с |
| Статус: | не определен законодательством |
| Название рус.: | Выпуск 1-3. Панели наружных стен нулевого цикла трехслойные на жестких связях толщиной 350 мм для применения в районах сейсмичностью 7 и 8 баллов. Рабочие чертежи |
| Дата добавления в базу: | 01.09.2013 |
| Дата актуализации: | 01.01.2021 |
| Дата введения: | 01.03.1991 |
| Дата окончания срока действия: | 30.06.2003 |
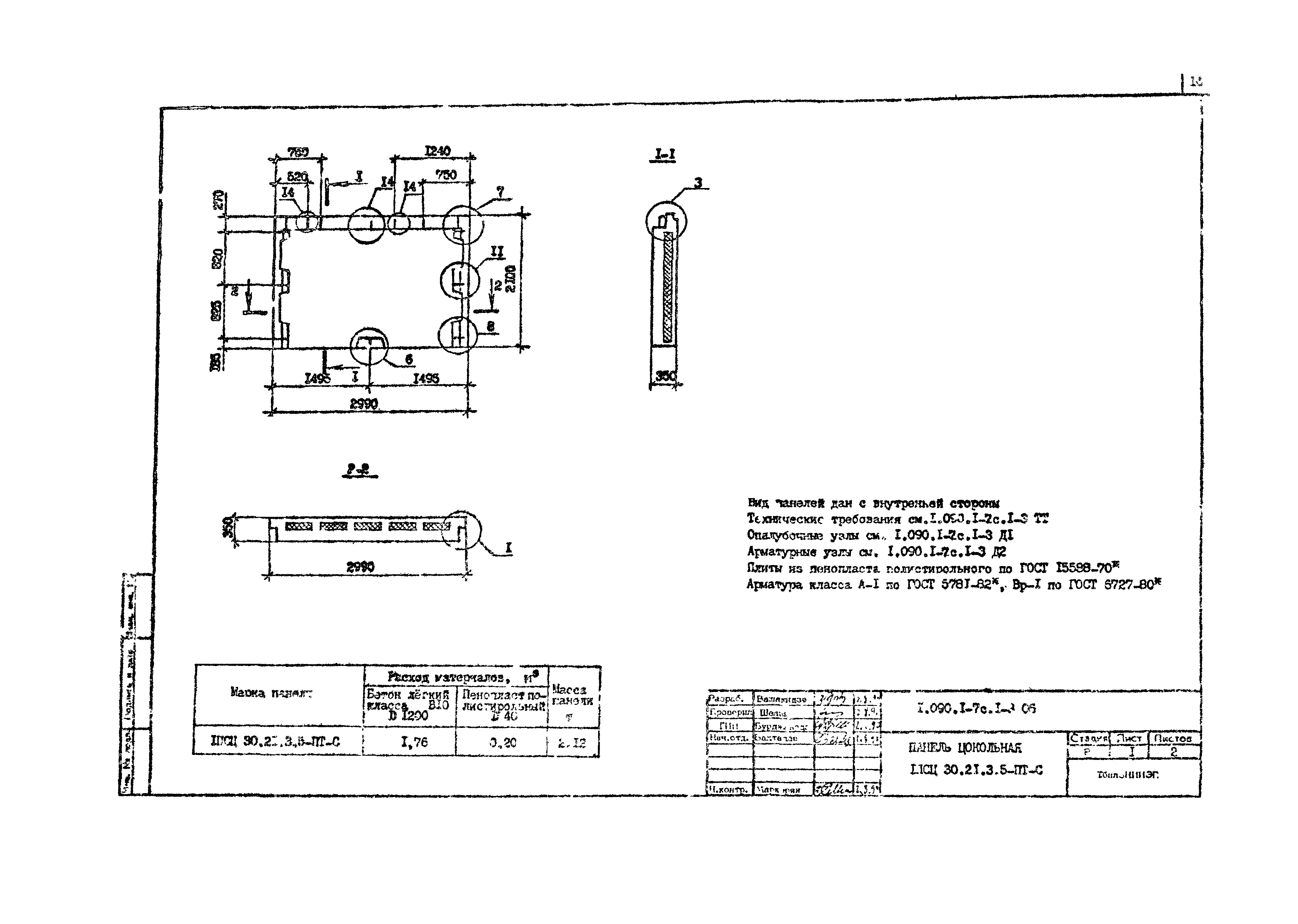
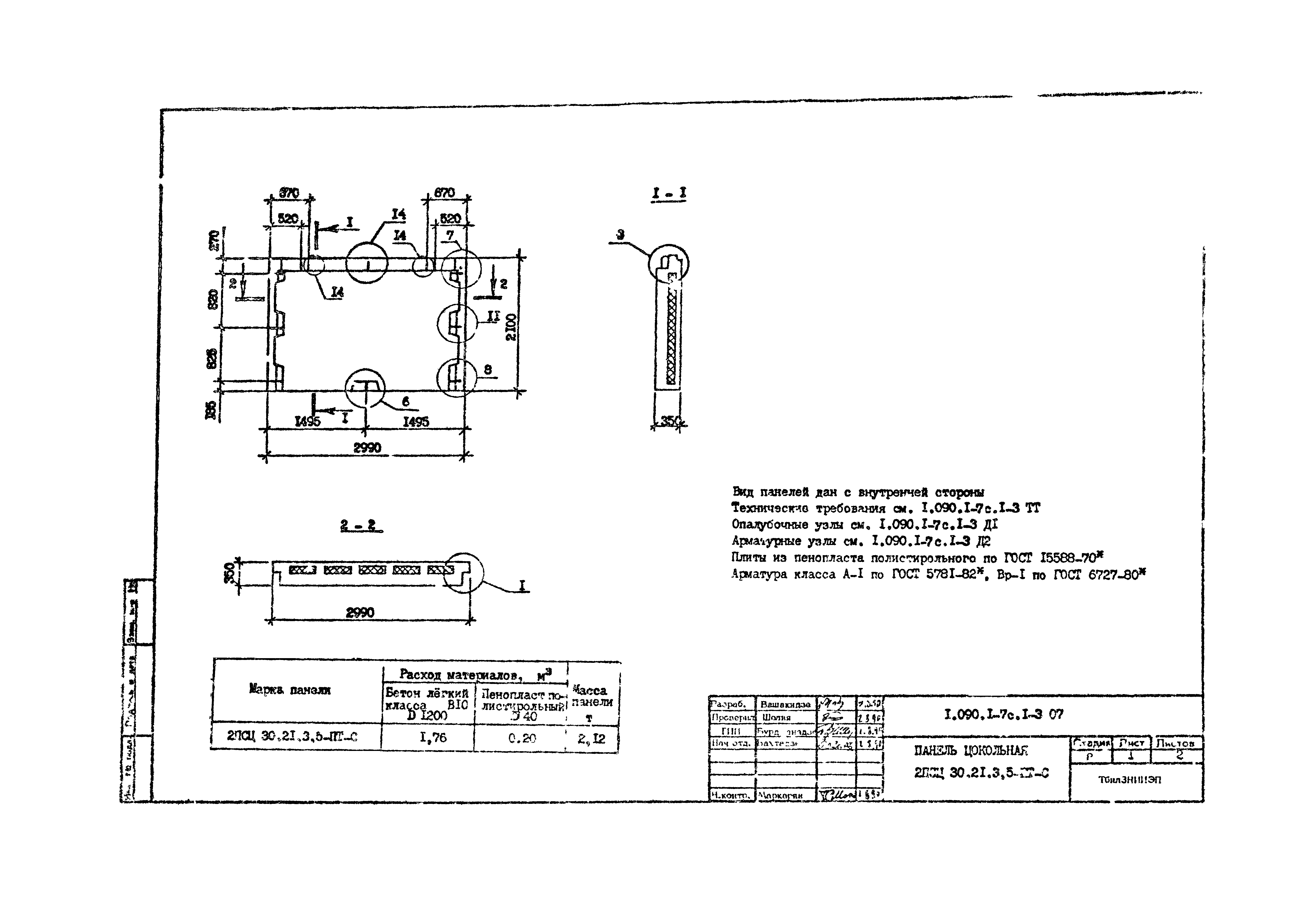
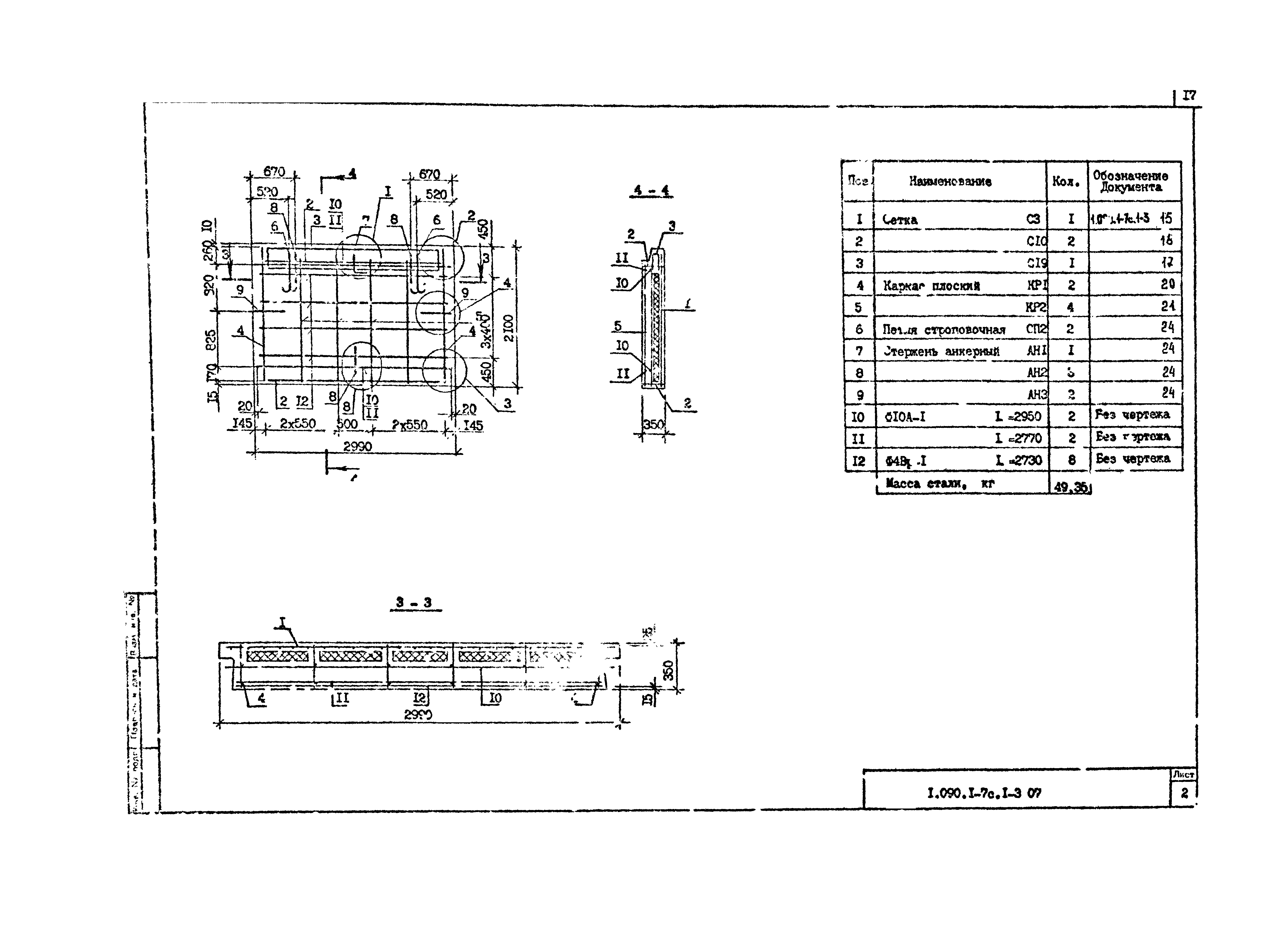
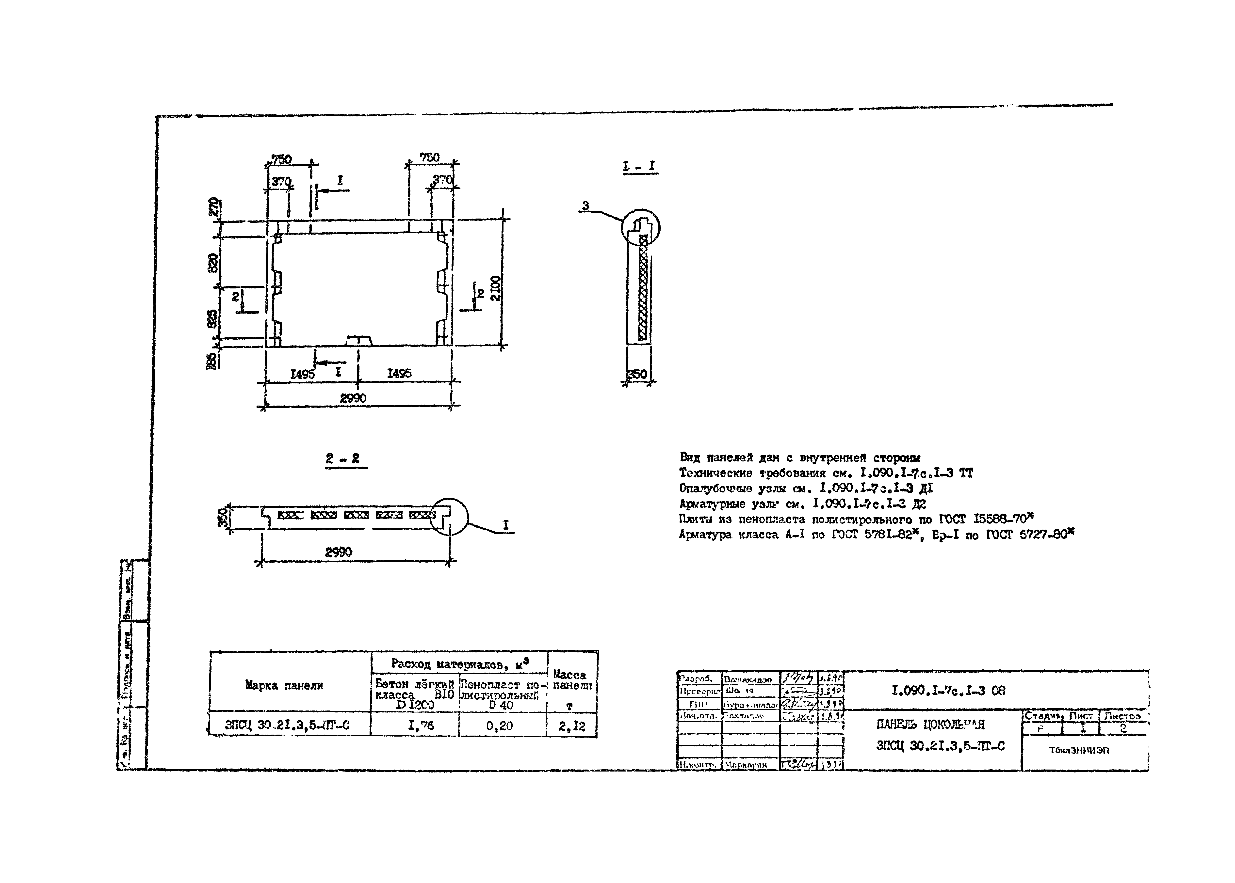
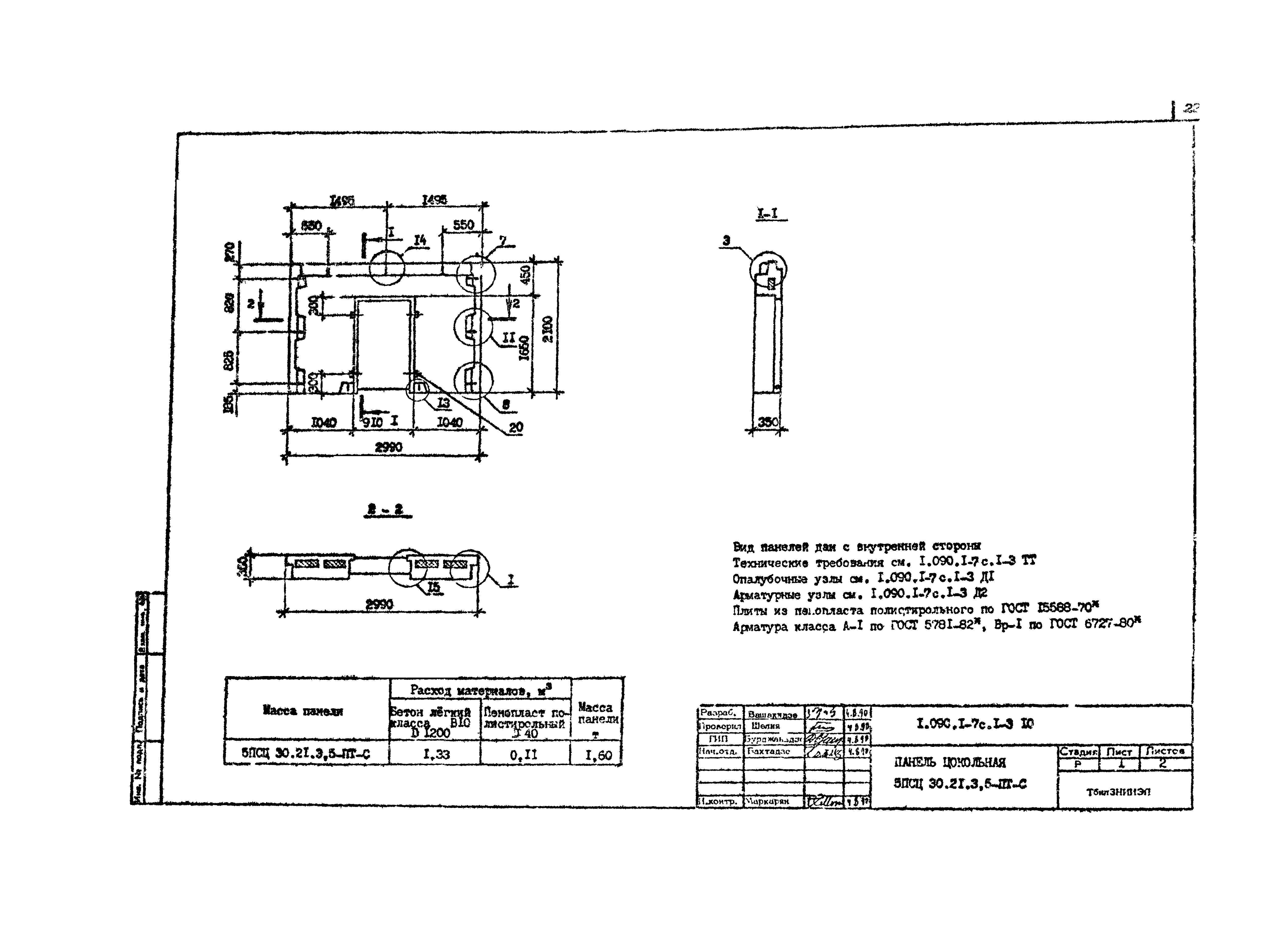
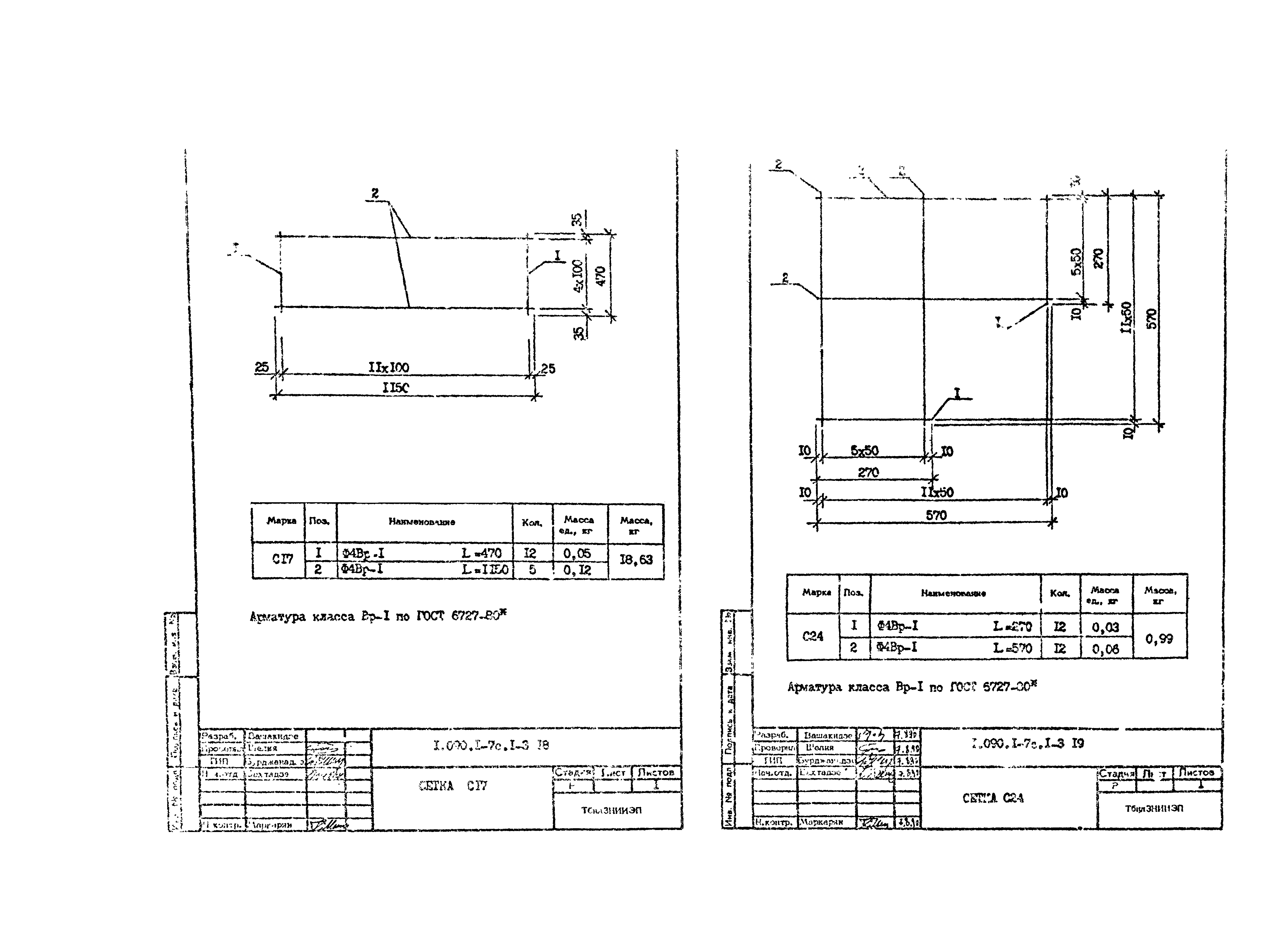
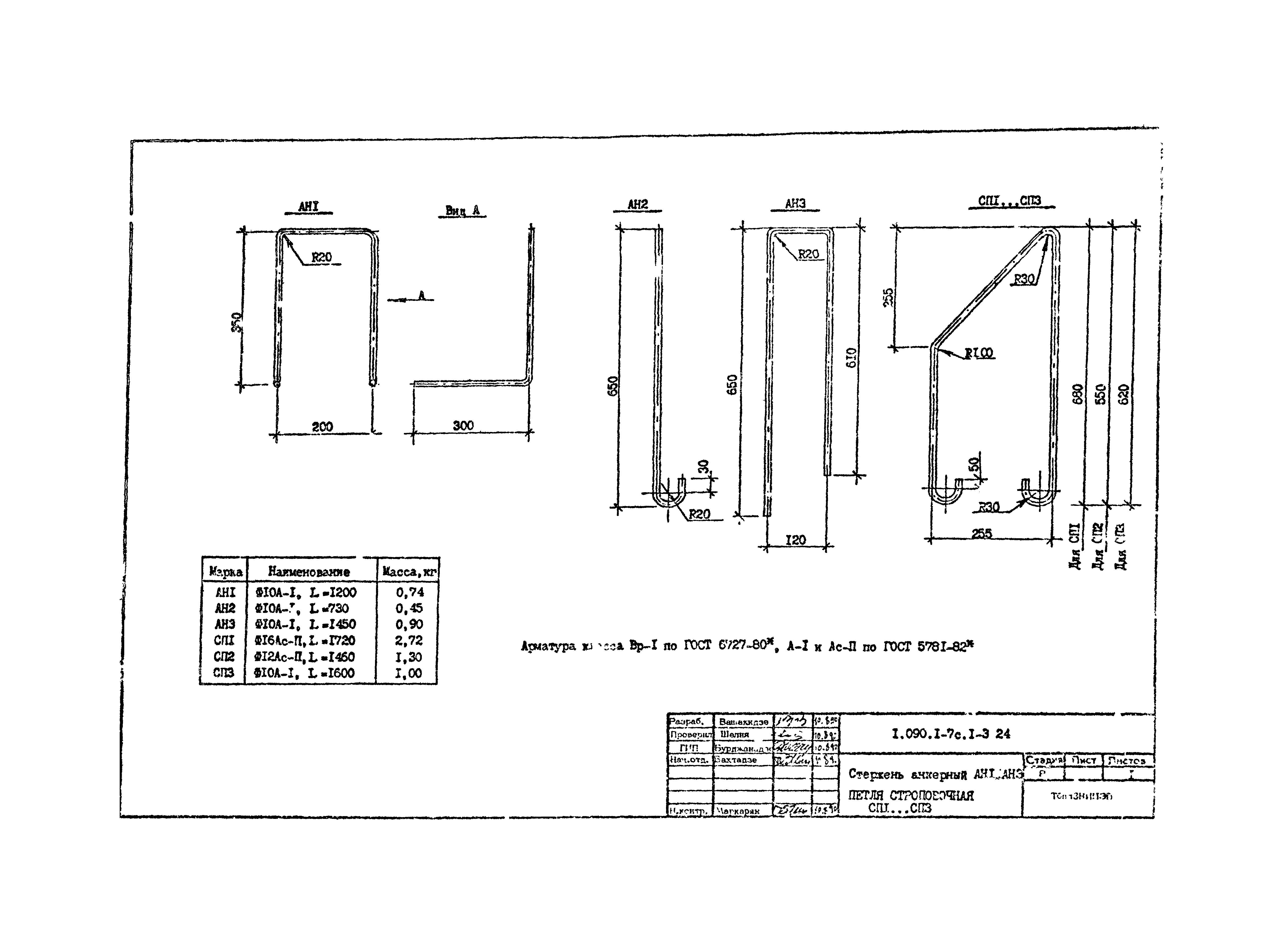
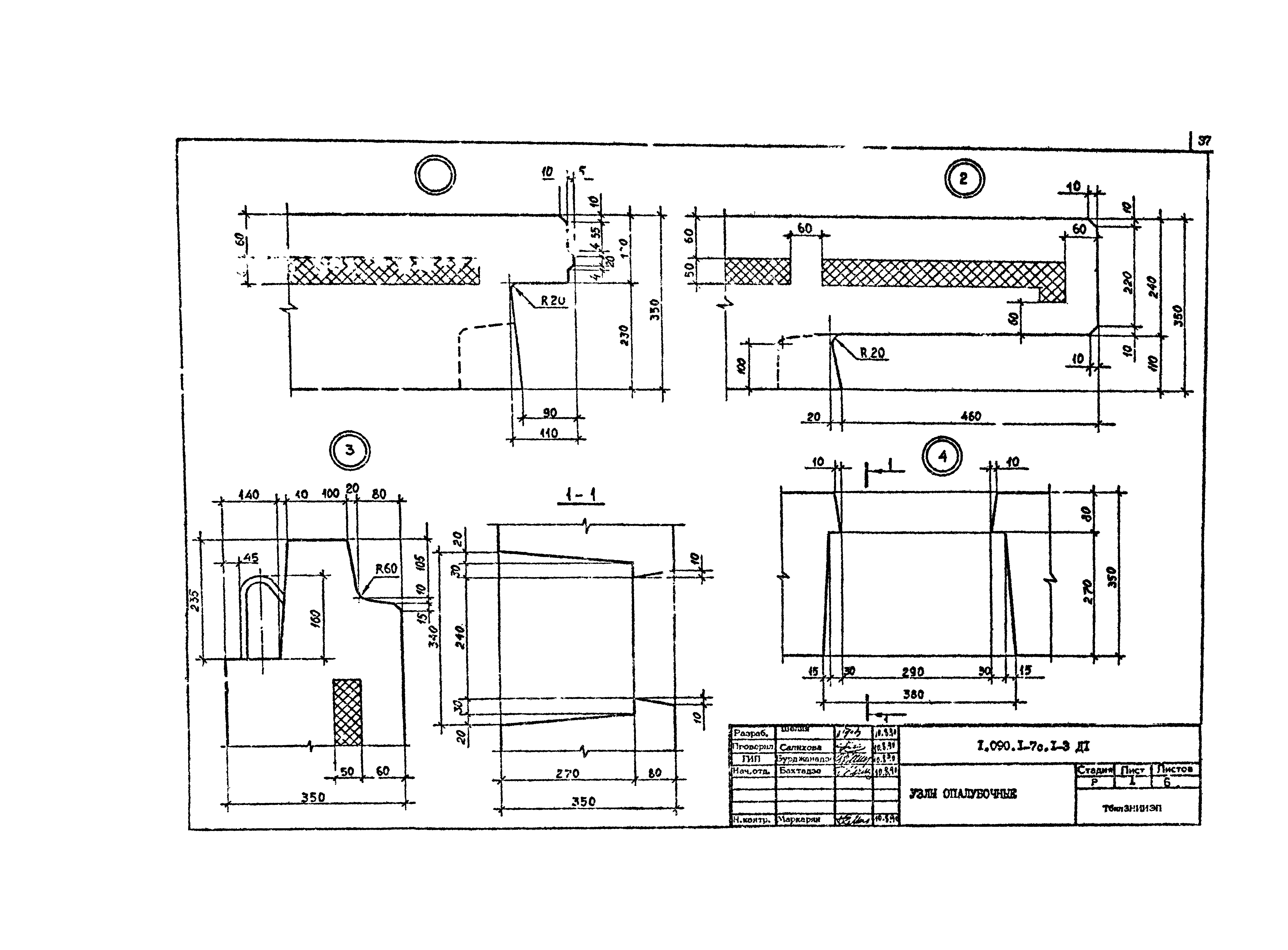
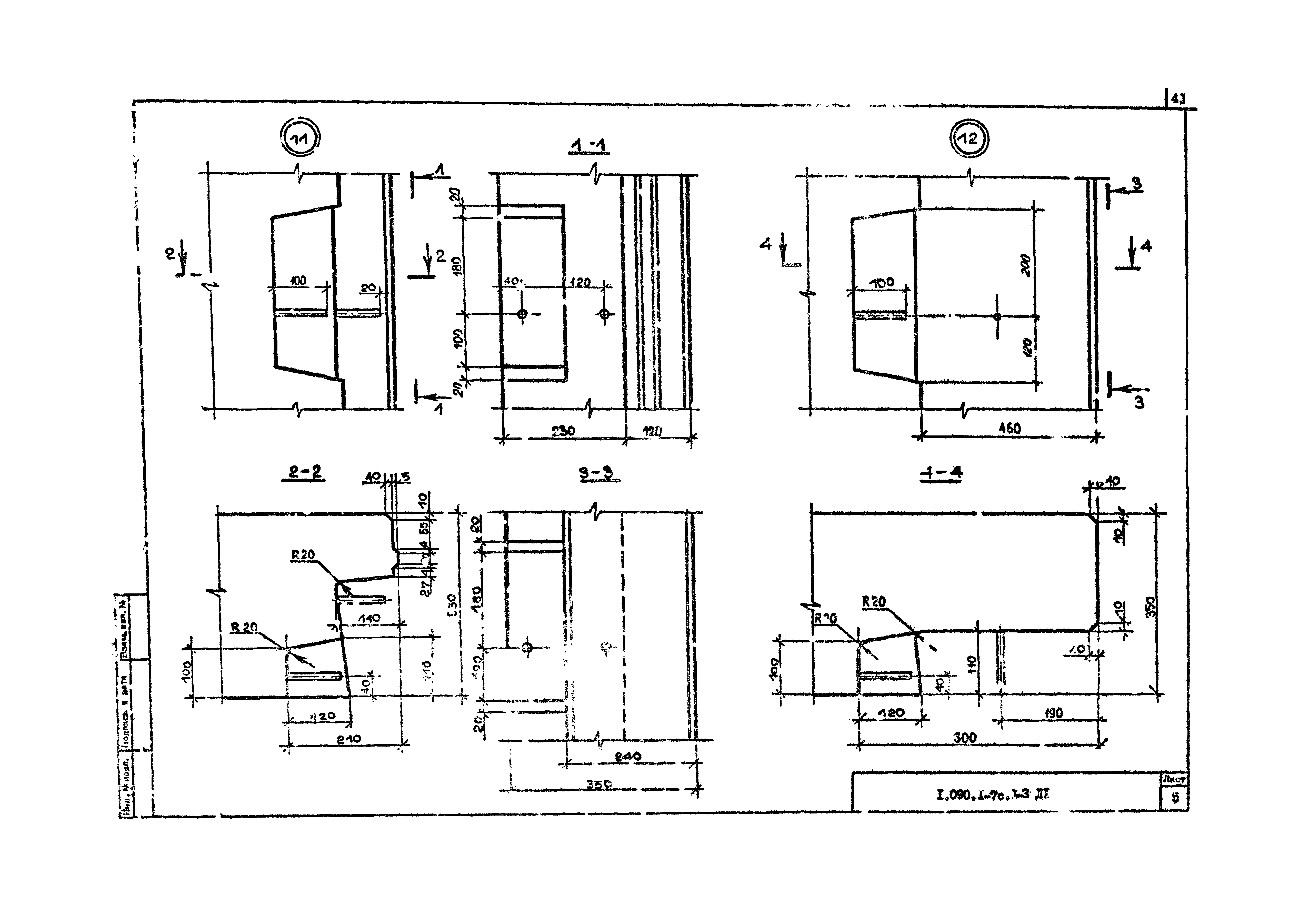
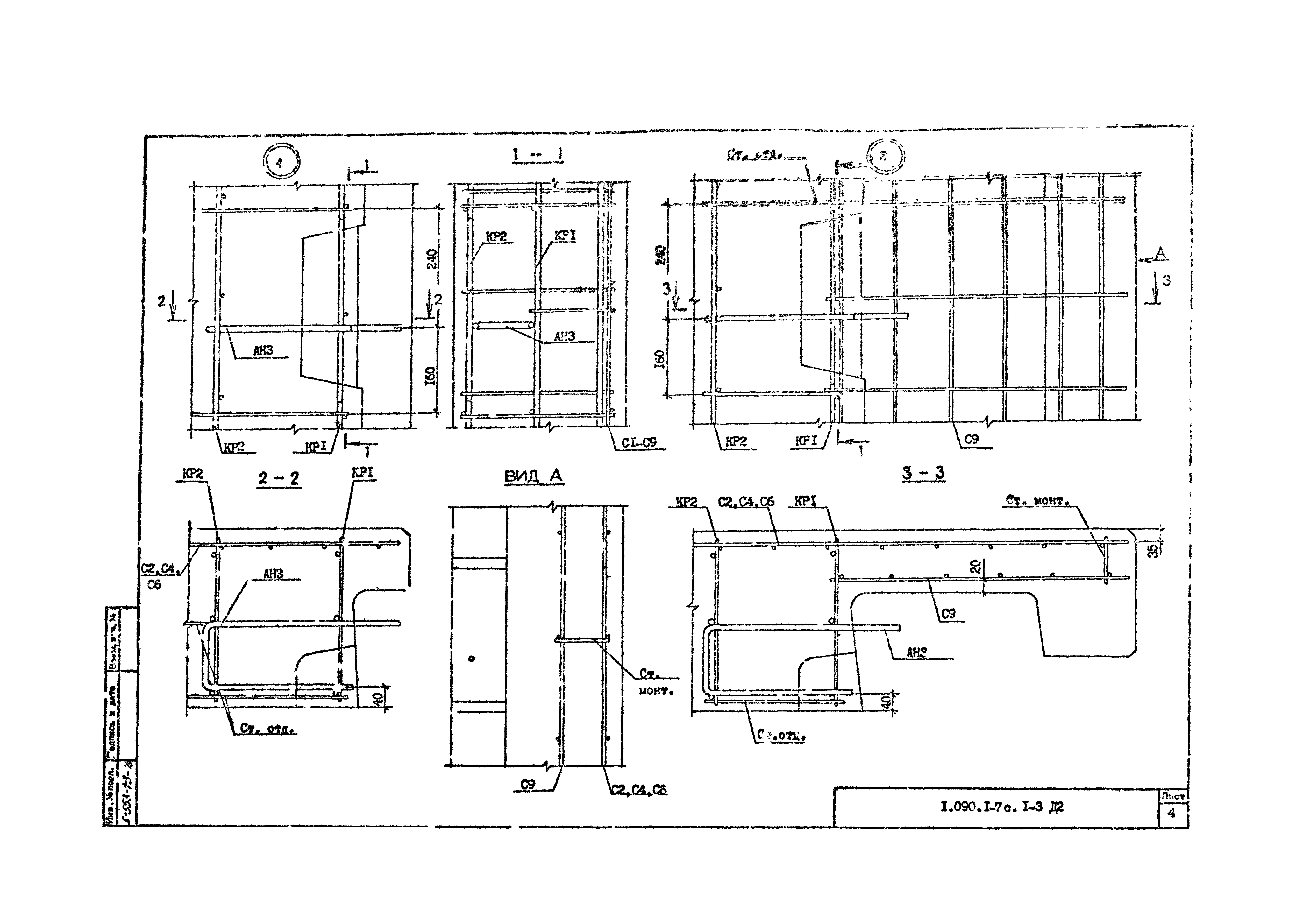
| Оглавление: | 1.090.1-7С.1-3-ТТ Технические требования 1.090.1-7С.1-3-01 Панель цокольная ПСЦ60.21.3,5-ПТ-С 1.090.1-7С.1-3-02 Панель цокольная ПСЦ30.21.3,5-ПТ-С 1.090.1-7С.1-3-03 Панель цокольная ПСЦ18.21.3,5-ПТ-С 1.090.1-7С.1-3-04 Панель цокольная ПСЦ12.21.3,5-ПТ-С 1.090.1-7С.1-3-05 Панель цокольная 1ПСЦ60.21.3,5-ПТ-С 1.090.1-7С.1-3-06 Панель цокольная 1ПСЦ30.21.3,5-ПТ-С 1.090.1-7С.1-3-07 Панель цокольная 2ПСЦ30.21.3,5-ПТ-С 1.090.1-7С.1-3-08 Панель цокольная 3ПСЦ30.21.3,5-ПТ-С 1.090.1-7С.1-3-09 Панель цокольная 4ПСЦ30.21.3,5-ПТ-С 1.090.1-7С.1-3-10 Панель цокольная 5ПСЦ30.21.3,5-ПТ-С 1.090.1-7С.1-3-11 Панель цокольная 1ПСЦ32.21.3,5-ПТ-С 1.090.1-7С.1-3-12 Панель цокольная 1ПСЦ14.21.3,5-ПТ-С 1.090.1-7С.1-3-13 Панель цокольная 2ПСЦ32.21.3,5-ПТ-С 1.090.1-7С.1-3-14 Панель цокольная 2ПСЦ14.21.3,5-ПТ-С 1.090.1-7С.1-3-15 Сетка С1...С8 1.090.1-7С.1-3-16 Сетка С9...С16 1.090.1-7С.1-3-17 Сетка С18...С23 1.090.1-7С.1-3-18 Сетка С17 1.090.1-7С.1-3-19 Сетка С24 1.090.1-7С.1-3-20 Каркас плоский КР1 1.090.1-7С.1-3-21 Каркас плоский КР2 1.090.1-7С.1-3-22 Каркас плоский КР3 1.090.1-7С.1-3-23 Каркас плоский КР4 1.090.1-7С.1-3-24 Стержень анкерный АН1...АН3. Петля строповочная СП1...СП3 1.090.1-7С.1-3-Д1 Узлы опалубочные 1.090.1-7С.1-3-Д1 Узлы арматурные 1.090.1-7С.1-3-РС Расход стали |
| Разработан: | ТбилЗНИИЭП |
| Утверждён: | 20.11.1990 Госкомархитектура (209) |
| Заменяет собой: |
|


















































