Скачать Серия 1.090.1-7с Выпуск 1-4. Панели наружных стен нулевого цикла однослойные толщиной 250 мм для применения в районах сейсмичностью 9 баллов. Рабочие чертежиДата актуализации: 01.01.2021
|
| Обозначение: | Серия 1.090.1-7с |
| Обозначение англ: | Series 1.090.1-7с |
| Статус: | действует |
| Название рус.: | Выпуск 1-4. Панели наружных стен нулевого цикла однослойные толщиной 250 мм для применения в районах сейсмичностью 9 баллов. Рабочие чертежи |
| Дата добавления в базу: | 01.09.2013 |
| Дата актуализации: | 01.01.2021 |
| Дата введения: | 28.11.1990 |
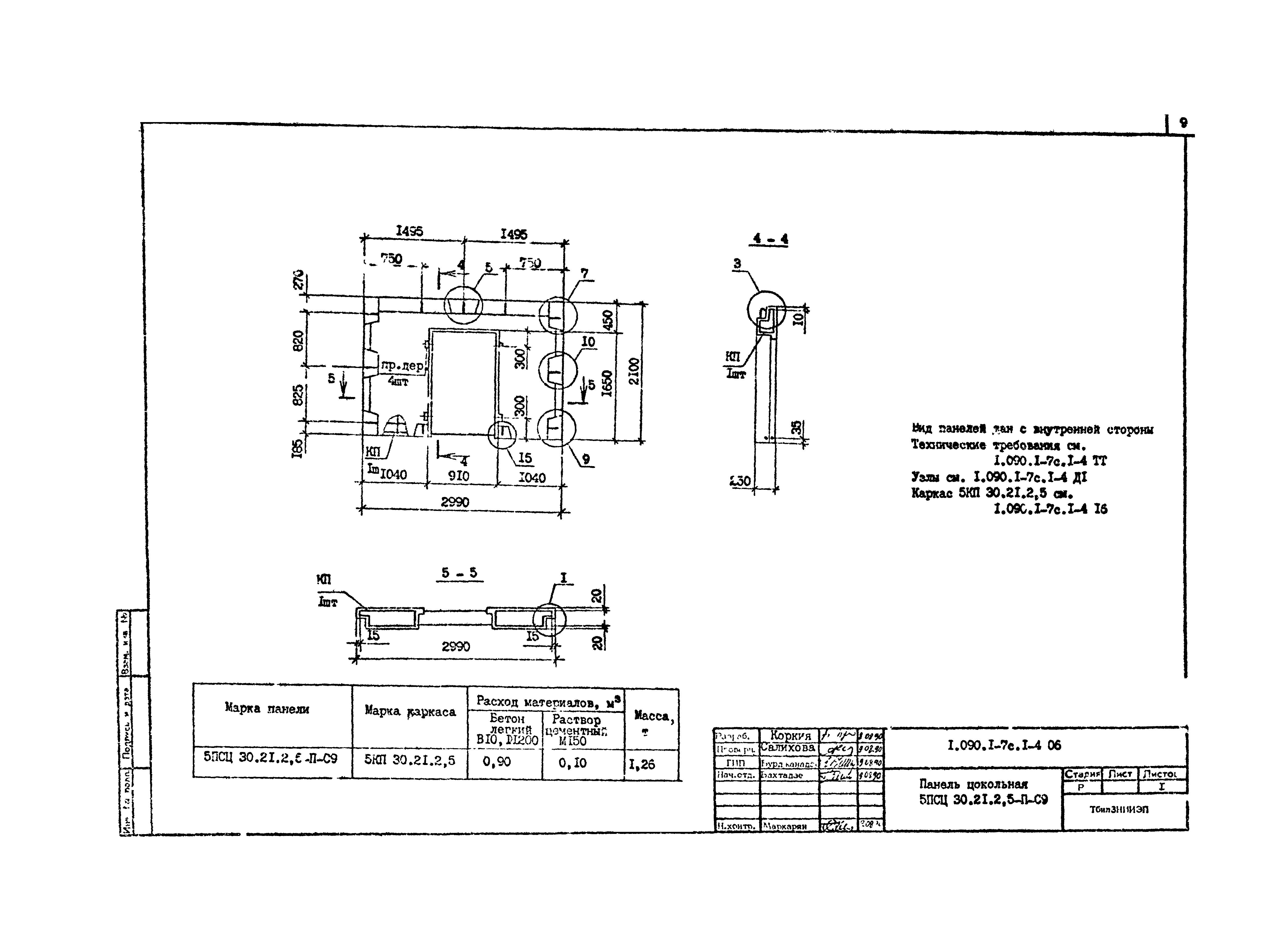
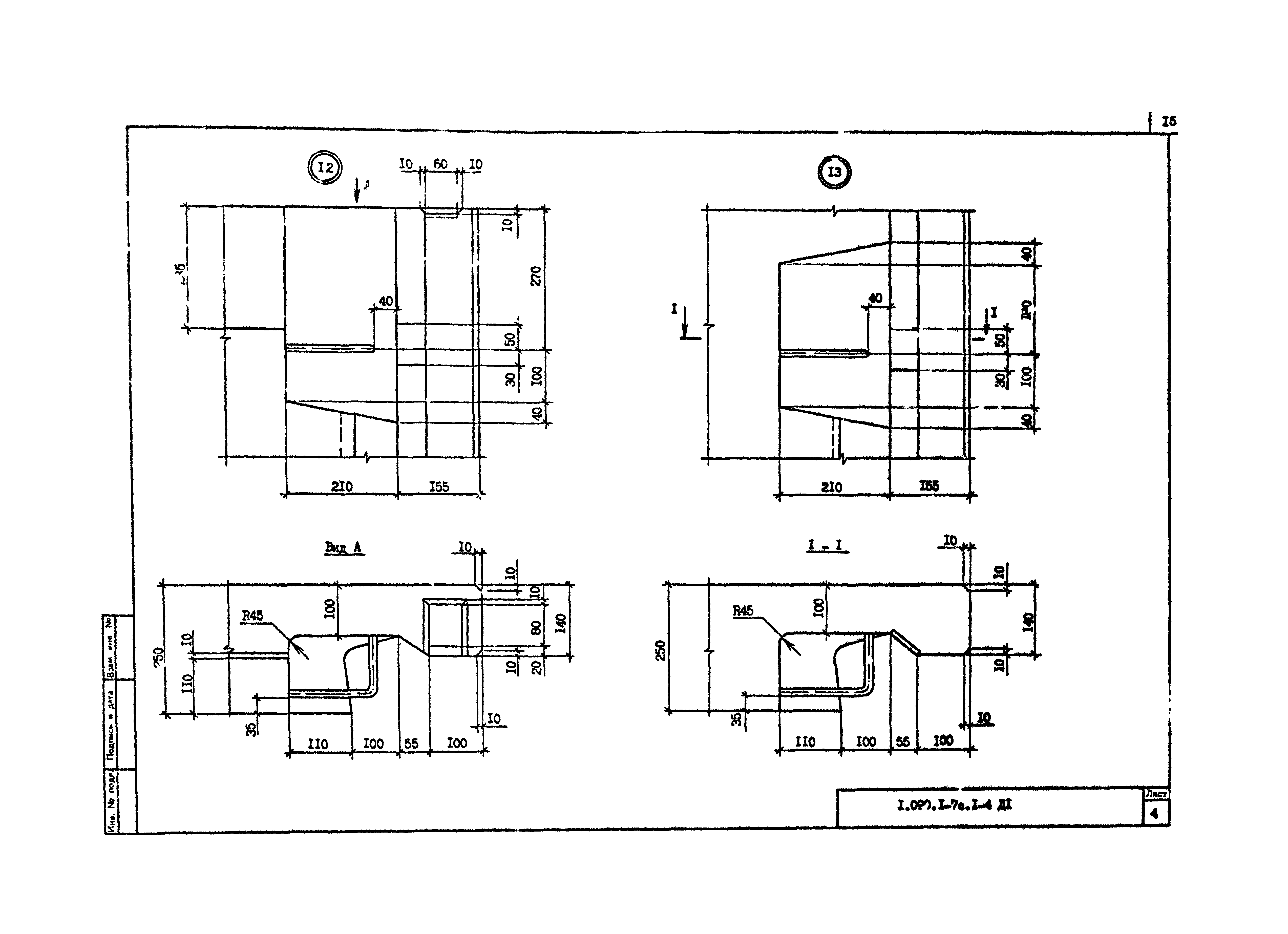
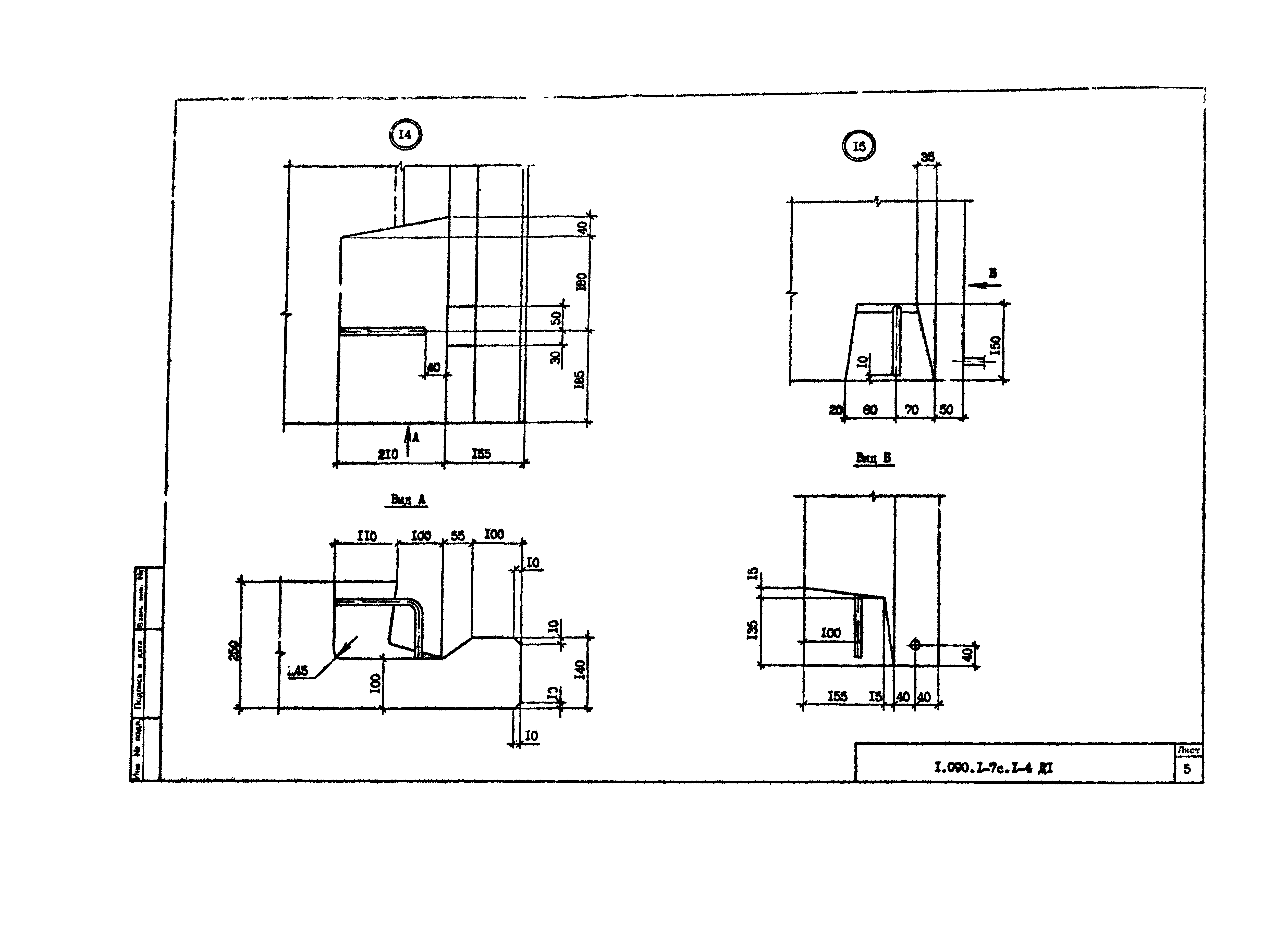
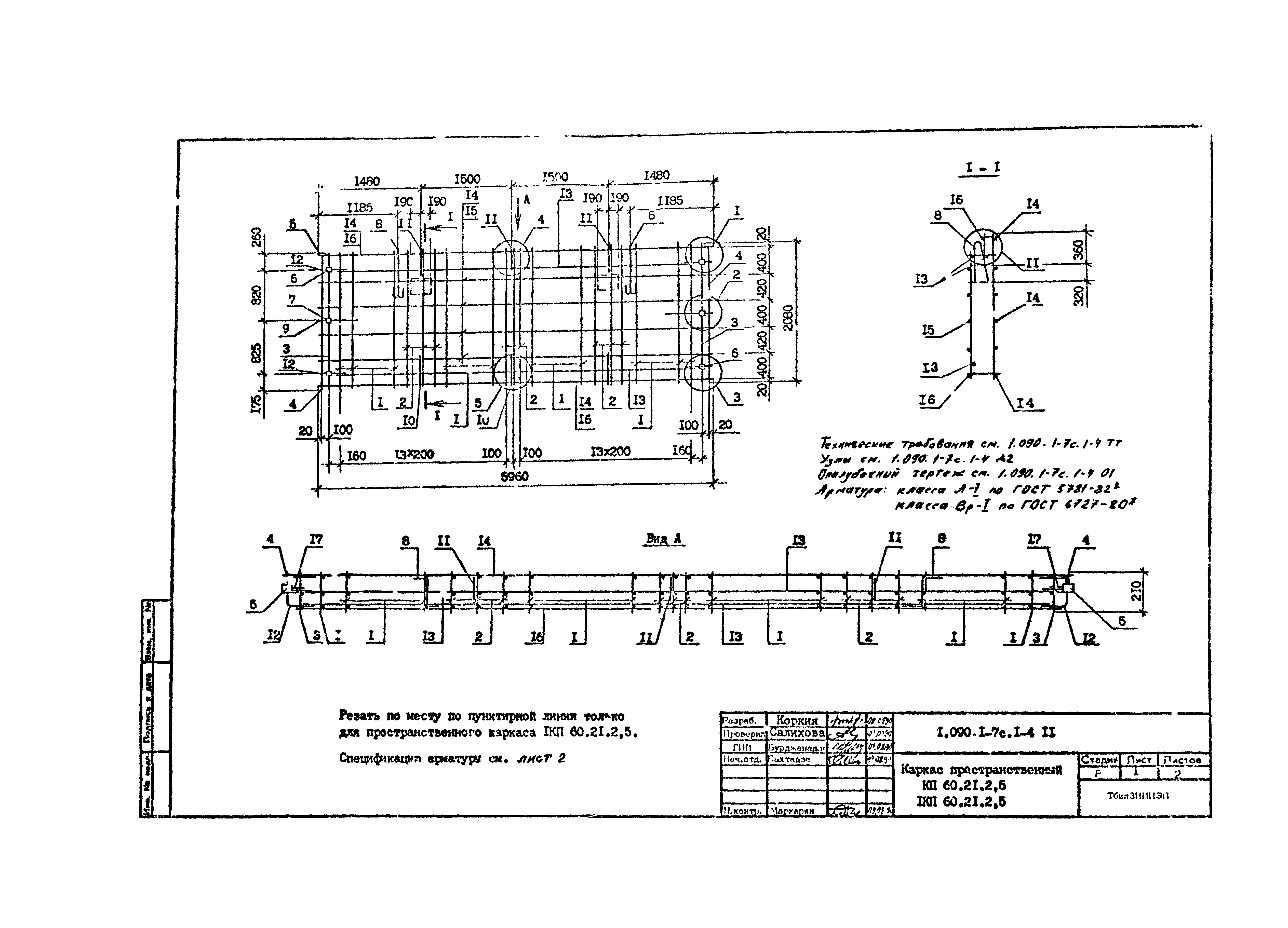
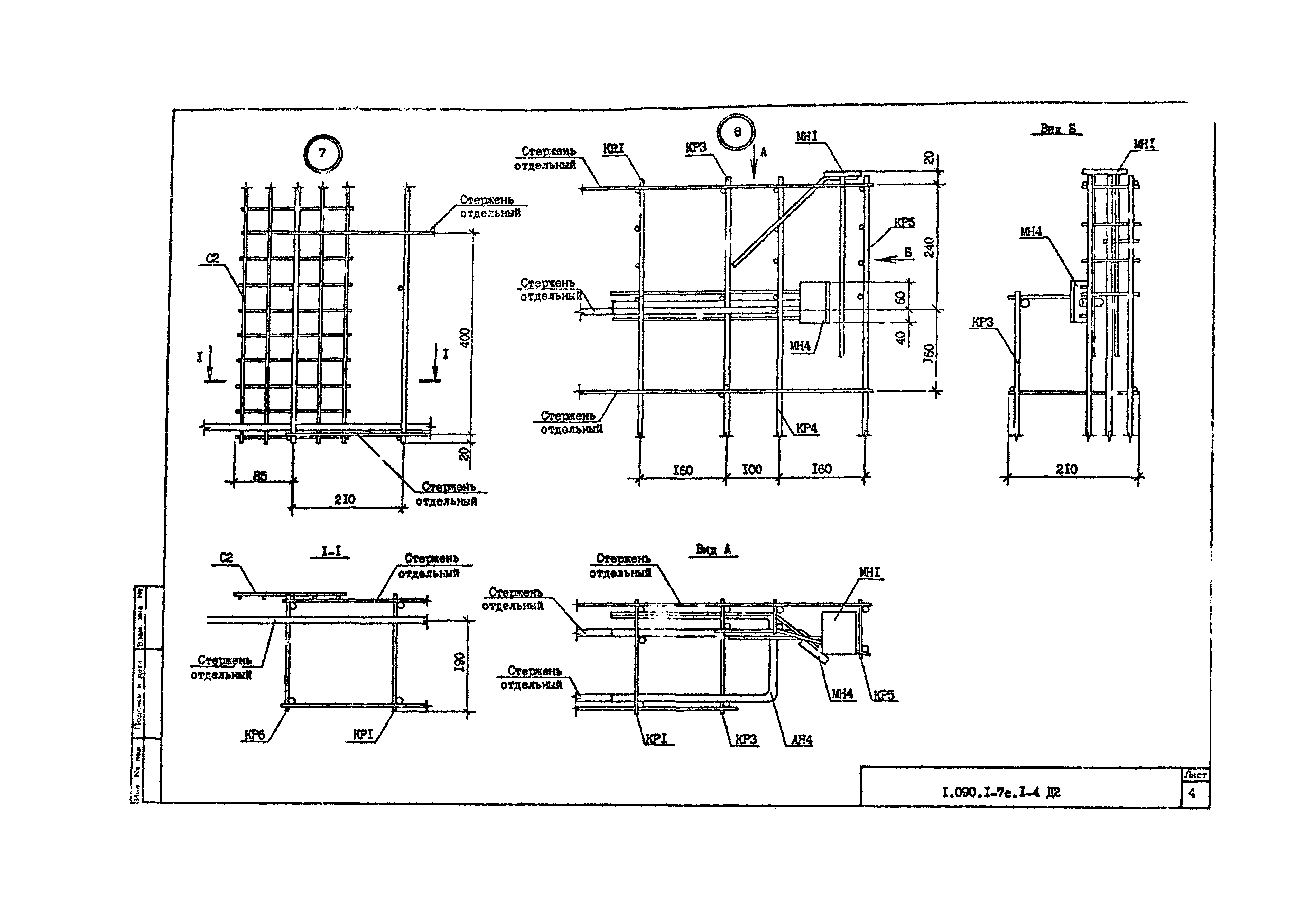
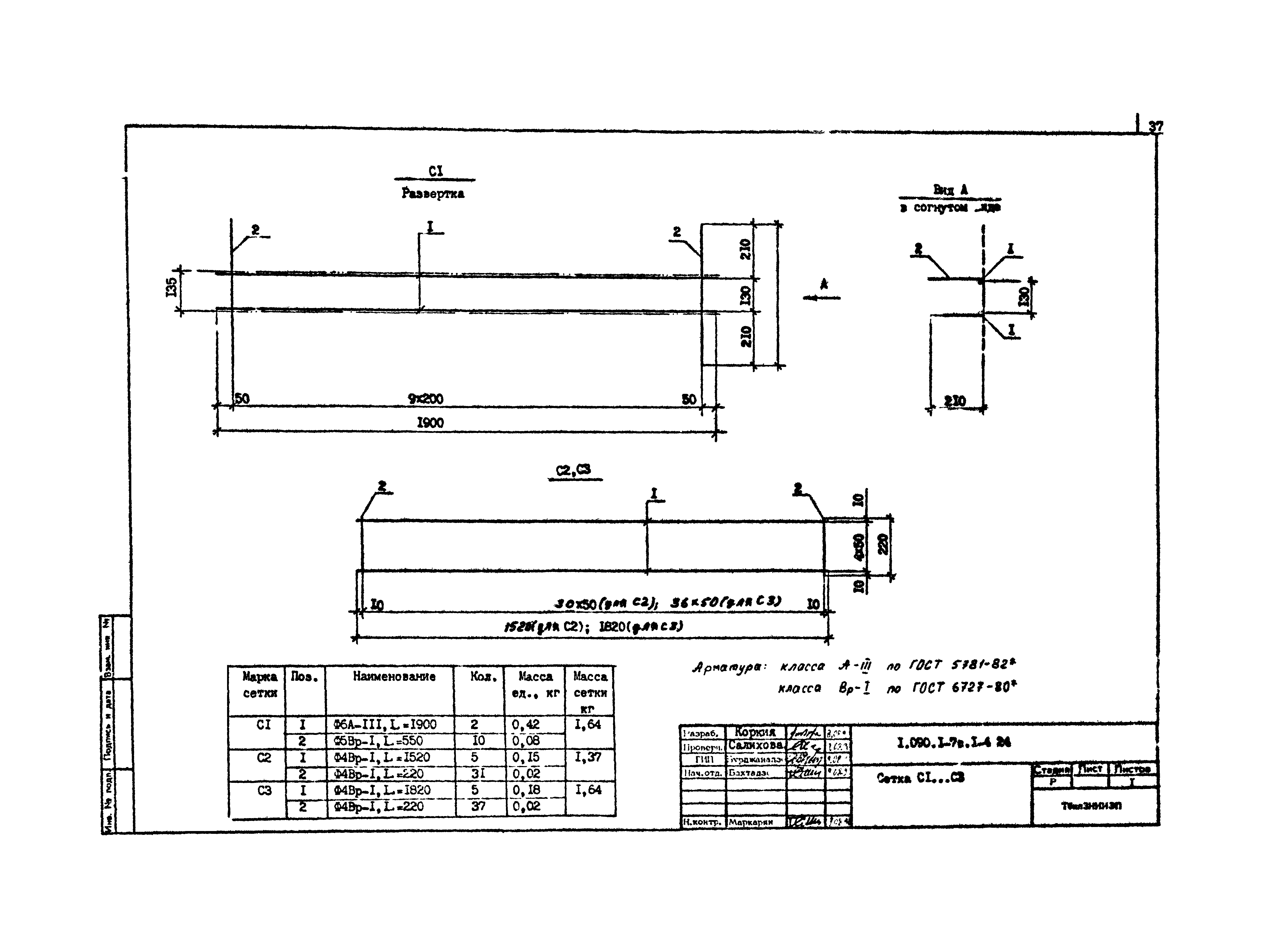
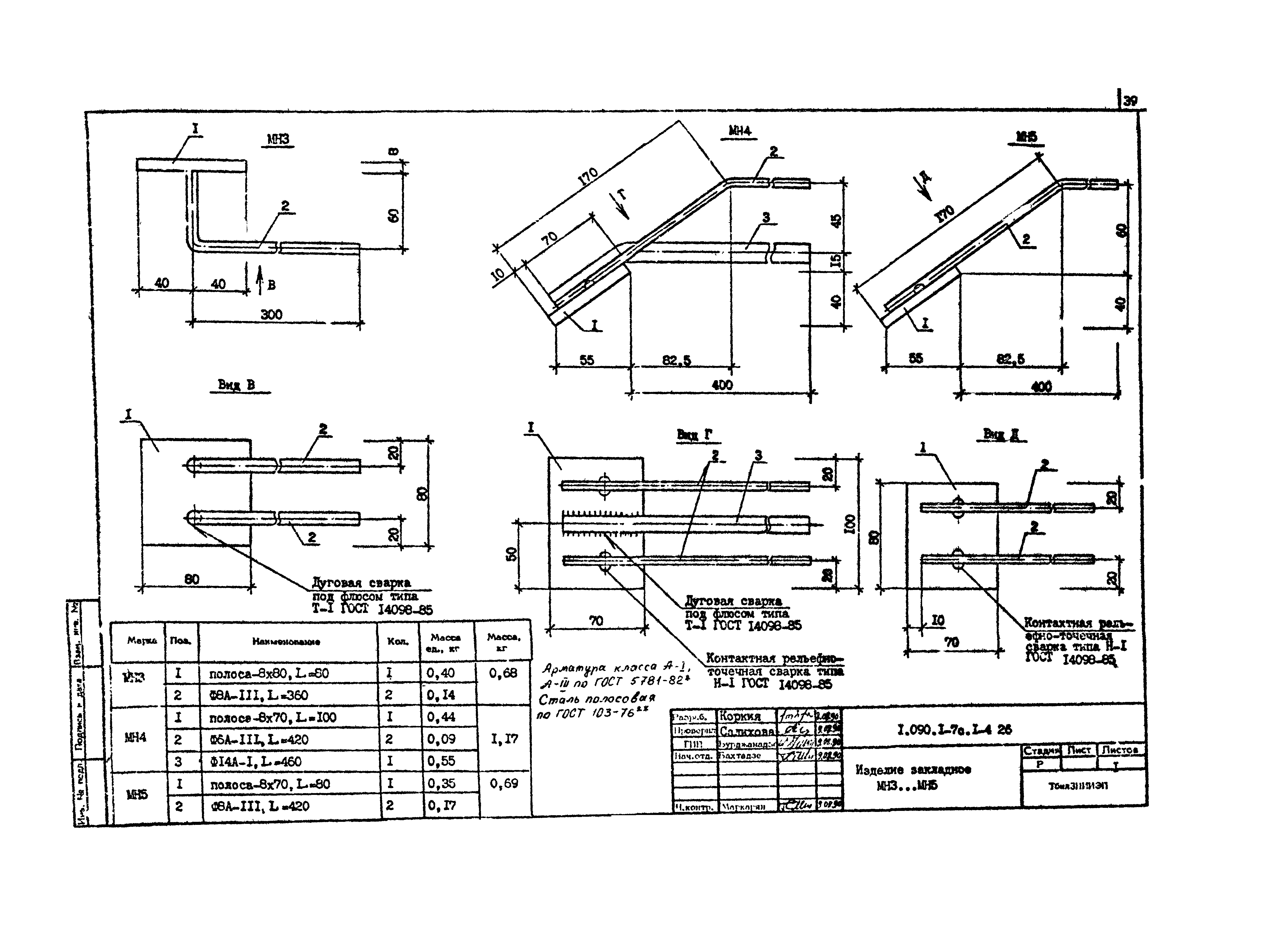
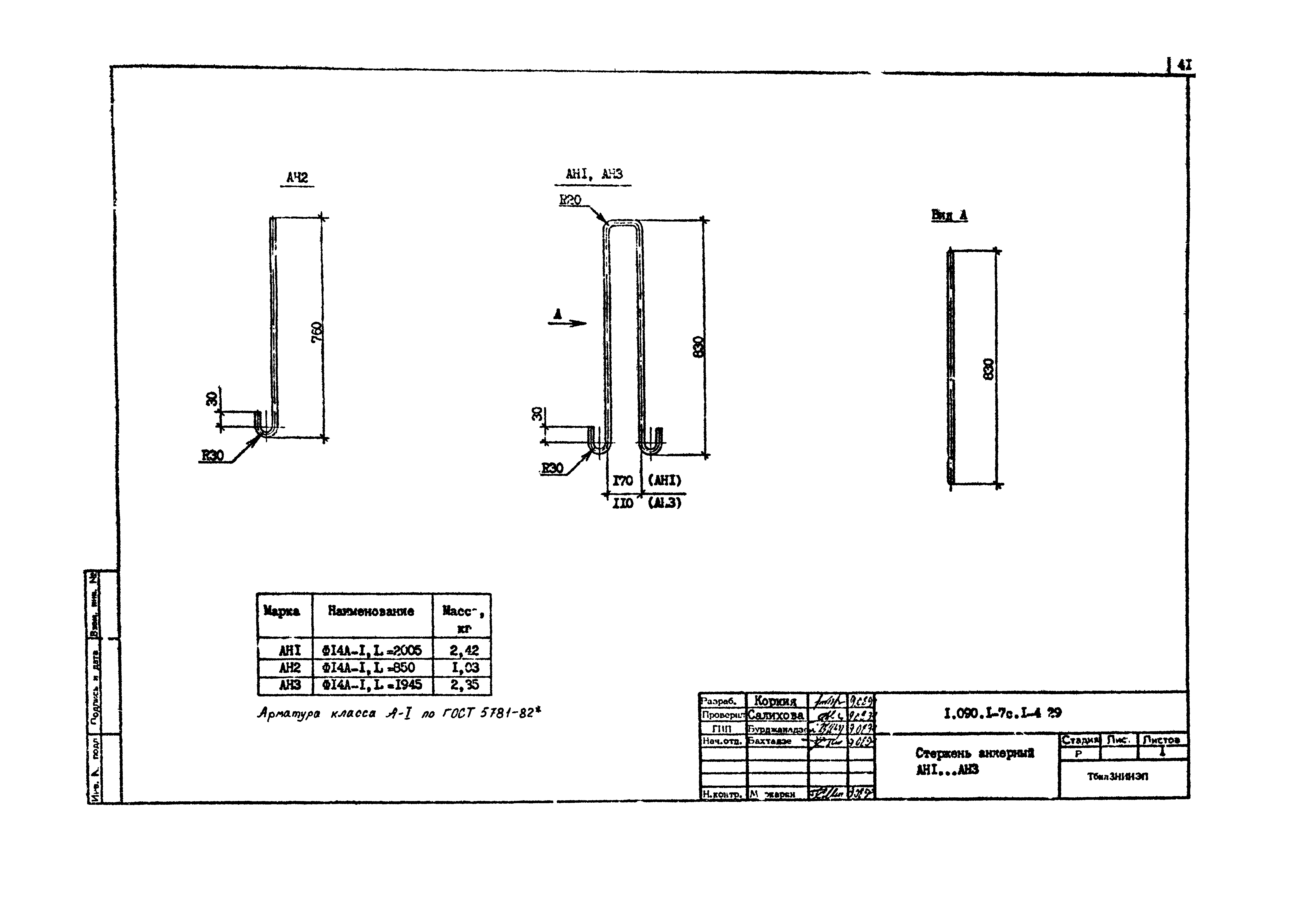
| Оглавление: | 1.090.1-7С.1-4-ТТ Технические требования 1.090.1-7С.1-4-01 Панель цокольная ПСЦ60.21.2,5-П-С9,1ПСЦ60.21.2,5-П-С9 1.090.1-7С.1-4-02 Панель цокольная ПСЦ30.21.2,5-П-С9,4ПСЦ30.21.2,5-П-С9 1.090.1-7С.1-4-03 Панель цокольная 1ПСЦ30.21.2,5-П-С9,2ПСЦ30.21.2,5-П-С9,3ПСЦ30.21.2,5-П-С9 1.090.1-7С.1-4-04 Панель цокольная ПСЦ18.21.2,5-П-С9 1.090.1-7С.1-4-05 Панель цокольная ПСЦ12.21.2,5-П-С9 1.090.1-7С.1-4-06 Панель цокольная 5ПСЦ30.21.2,5-П-С9 1.090.1-7С.1-4-07 Панель цокольная 1ПСЦ32.21.2,5-П-С9 1.090.1-7С.1-4-08 Панель цокольная 2ПСЦ32.21.2,5-П-С9 1.090.1-7С.1-4-09 Панель цокольная 1ПСЦ14.21.2,5-П-С9 1.090.1-7С.1-4-10 Панель цокольная 2ПСЦ14.21.2,5-П-С9 1.090.1-7С.1-4-Д1 Узлы опалубочные 1.090.1-7С.1-4-11 Каркас пространственный КП60.21.2,5,1КП60.21.2,5 1.090.1-7С.1-4-12 Каркас пространственный КП30.21.2,5,4КП30.21.2,5 1.090.1-7С.1-4-13 Каркас пространственный 1КП30.21.2,5,2КП30.21.2,5,3КП30.21.2,5 1.090.1-7С.1-4-14 Каркас пространственный КП18.21.2,5 1.090.1-7С.1-4-15 Каркас пространственный КП12.21.2,5 1.090.1-7С.1-4-16 Каркас пространственный 5КП30.21.2,5 1.090.1-7С.1-4-17 Каркас пространственный 1КП32.21.2,5 1.090.1-7С.1-4-18 Каркас пространственный 2КП32.21.2,5 1.090.1-7С.1-4-19 Каркас пространственный 1КП14.21.2,5 1.090.1-7С.1-4-20 Каркас пространственный 2КП14.21.2,6 1.090.1-7С.1-4-Д2 Узлы арматурные 1.090.1-7С.1-4-21 Каркас укрупнительной сборки СКР1 1.090.1-7С.1-4-22 Каркас КР1...КР4 1.090.1-7С.1-4-23 Каркас КР5...КР8 1.090.1-7С.1-4-24 Сетка С1...С3 1.090.1-7С.1-4-25 Изделие закладное МН1,МН2 1.090.1-7С.1-4-26 Изделие закладное МН3...МН4 1.090.1-7С.1-4-27 Петля строповочная СП1...СП3 1.090.1-7С.1-4-28 Стержень анкерный АН4,АН5 1.090.1-7С.1-4-29 Стержень анкерный АН1...АН3 1.090.1-7С.1-4-РС Ведомость расхода стали |
| Разработан: | ТбилЗНИИЭП |
| Утверждён: | 20.11.1990 Госкомархитектура (209) |
| Заменяет собой: |










































