Скачать Серия 1.090.1-7с Выпуск 3-1. Панели внутренних стен нулевого цикла для применения в районах сейсмичностью 7 и 8 баллов. Рабочие чертежиДата актуализации: 01.01.2021
|
| Обозначение: | Серия 1.090.1-7с |
| Обозначение англ: | Series 1.090.1-7с |
| Статус: | не определен законодательством |
| Название рус.: | Выпуск 3-1. Панели внутренних стен нулевого цикла для применения в районах сейсмичностью 7 и 8 баллов. Рабочие чертежи |
| Дата добавления в базу: | 01.09.2013 |
| Дата актуализации: | 01.01.2021 |
| Дата введения: | 01.03.1991 |
| Дата окончания срока действия: | 30.06.2003 |
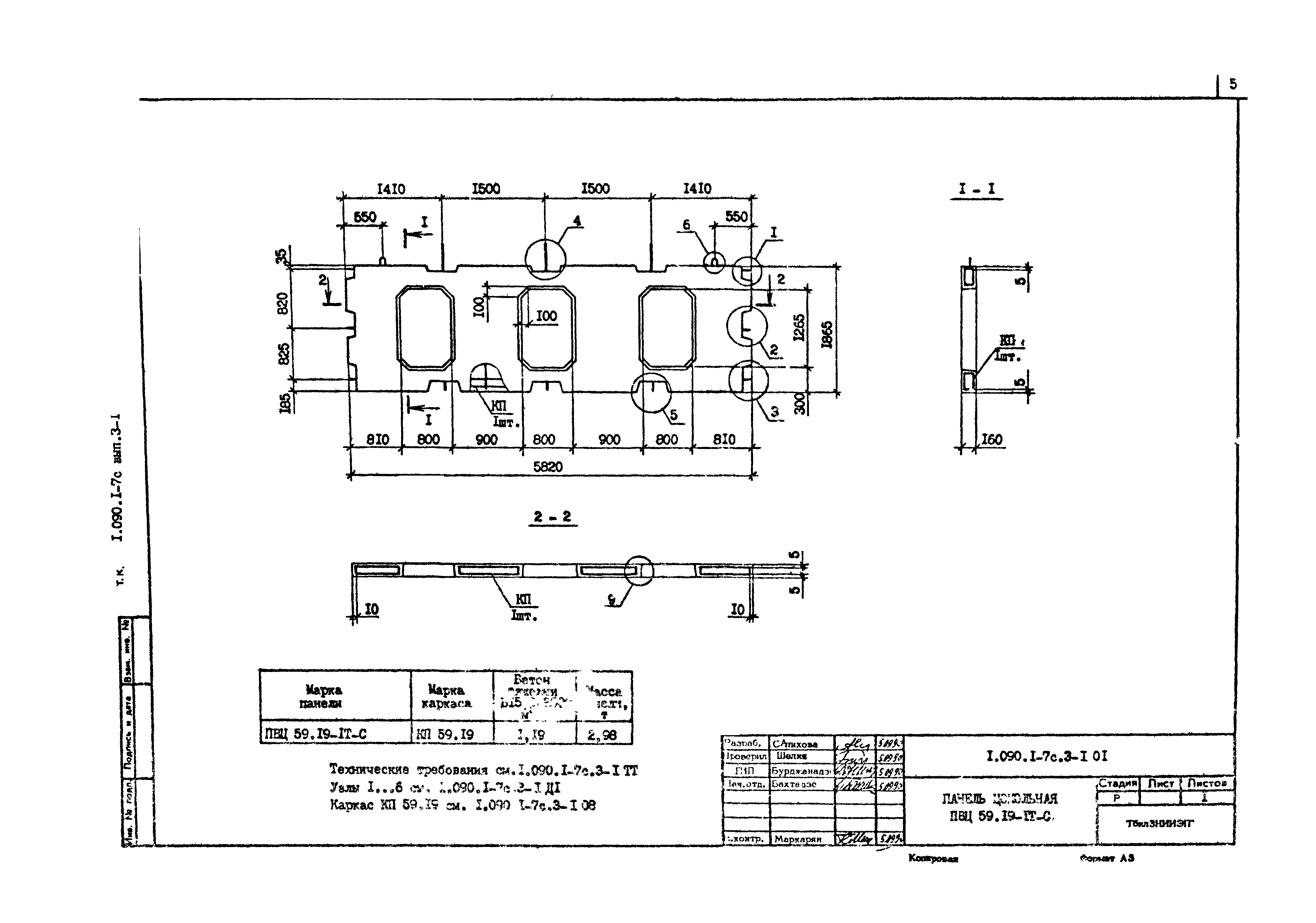
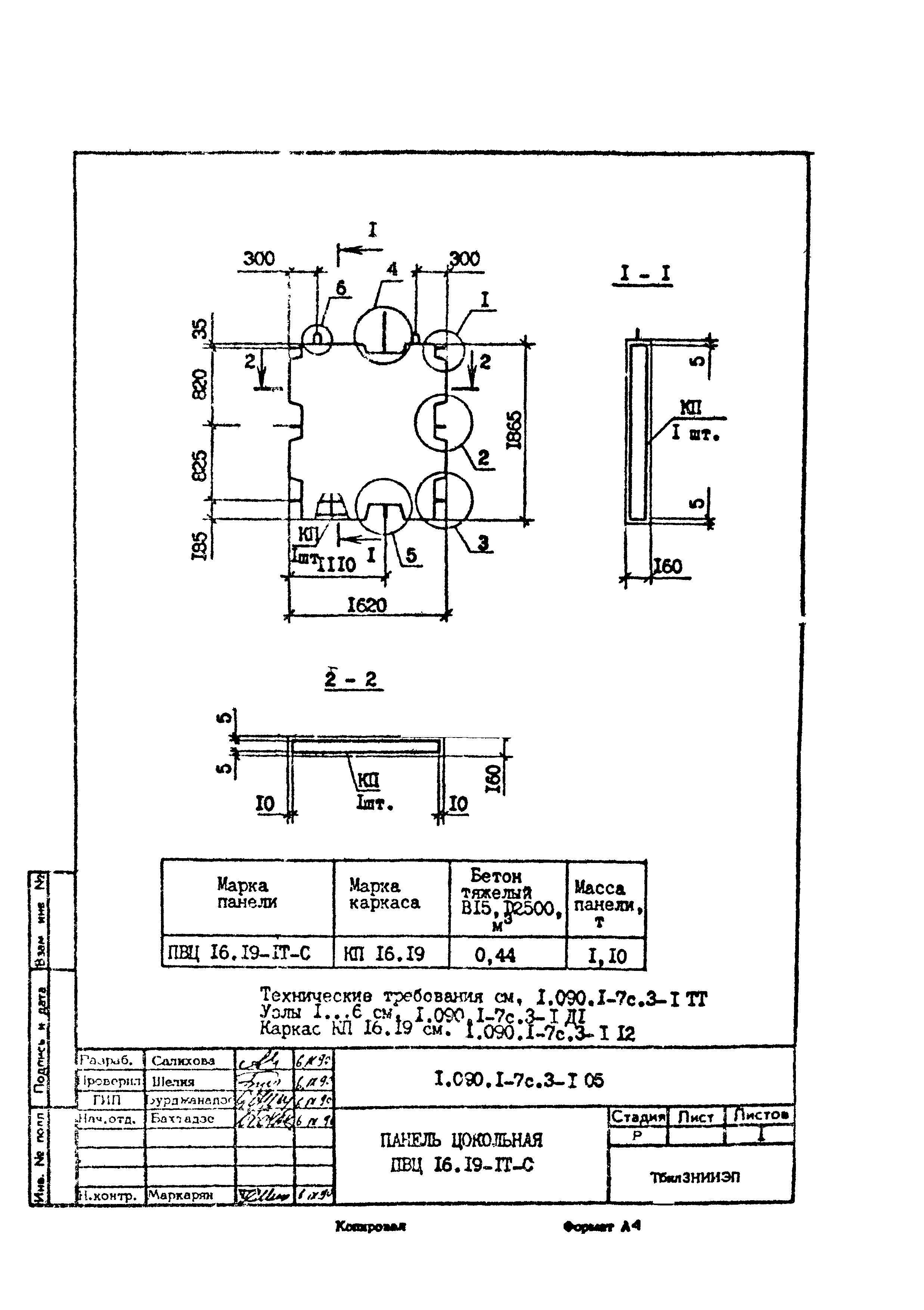
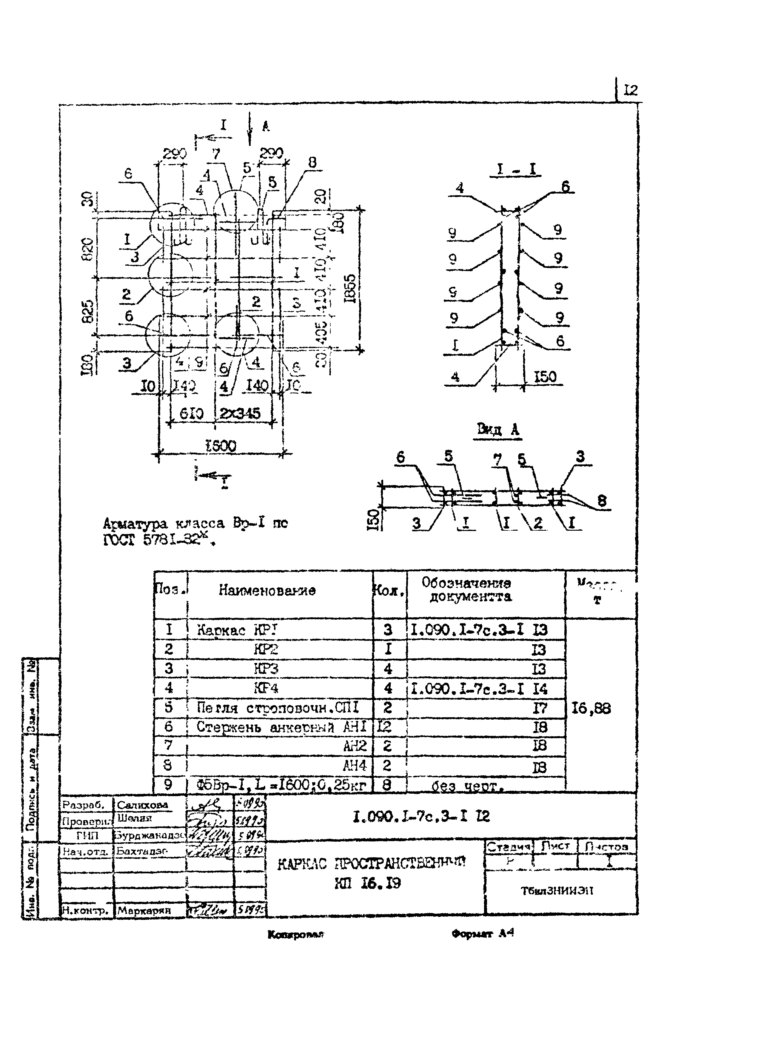
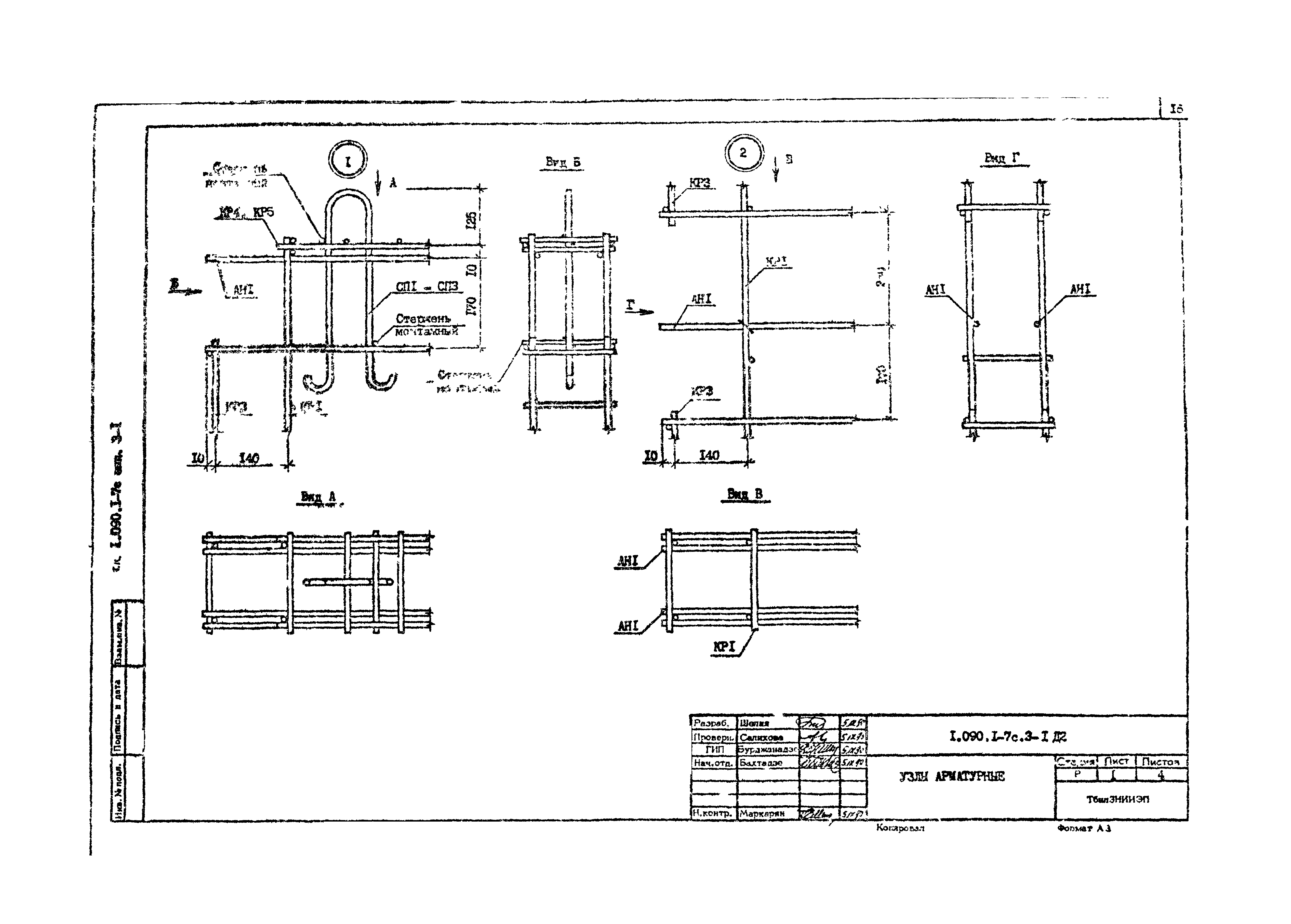
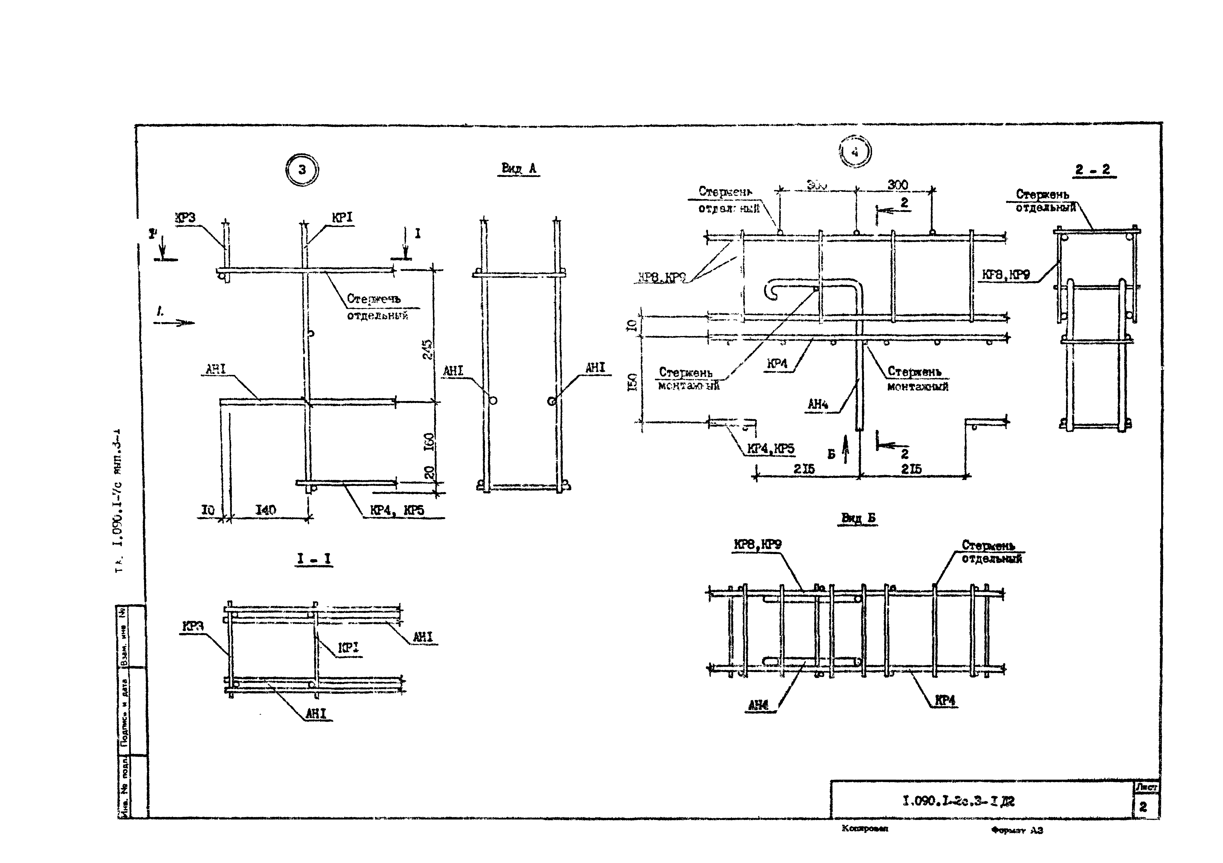
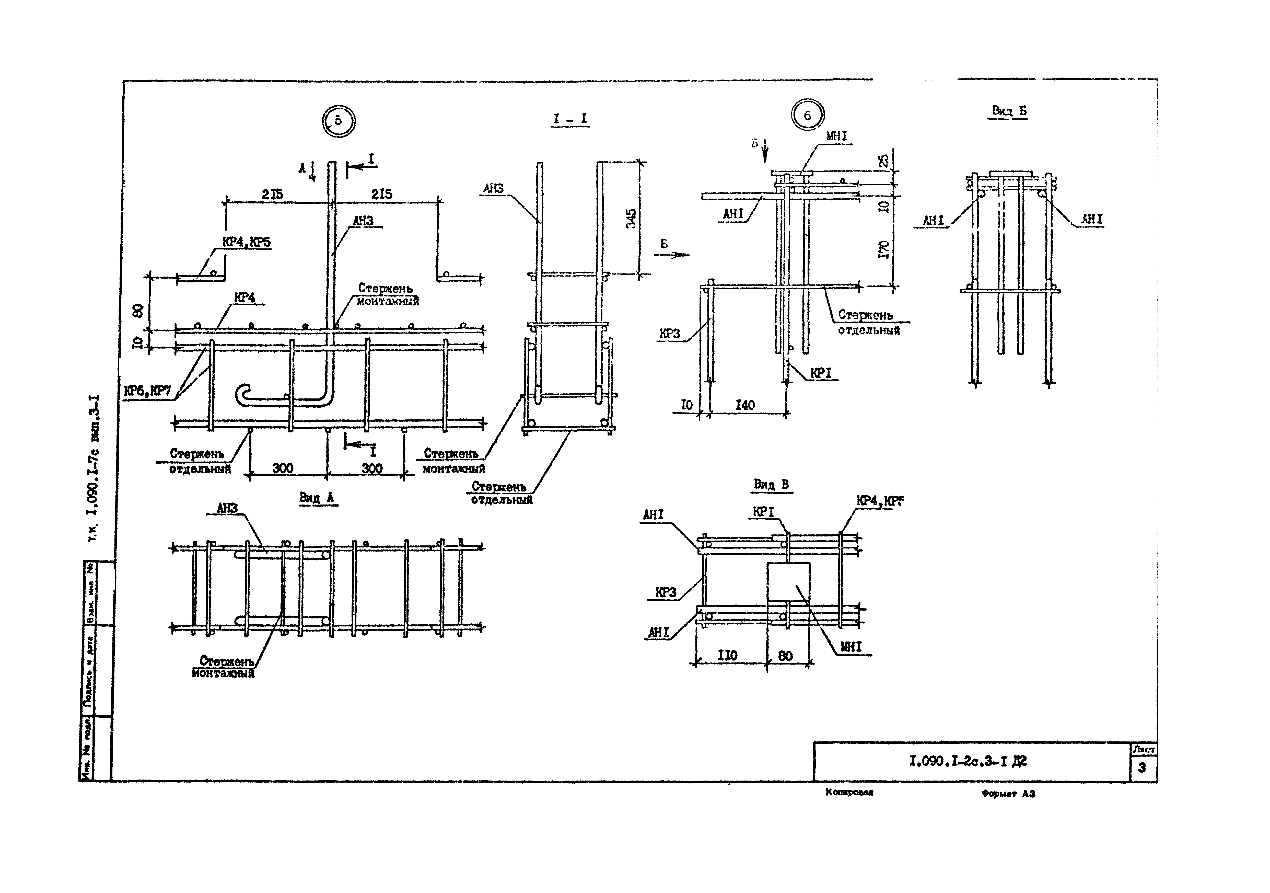
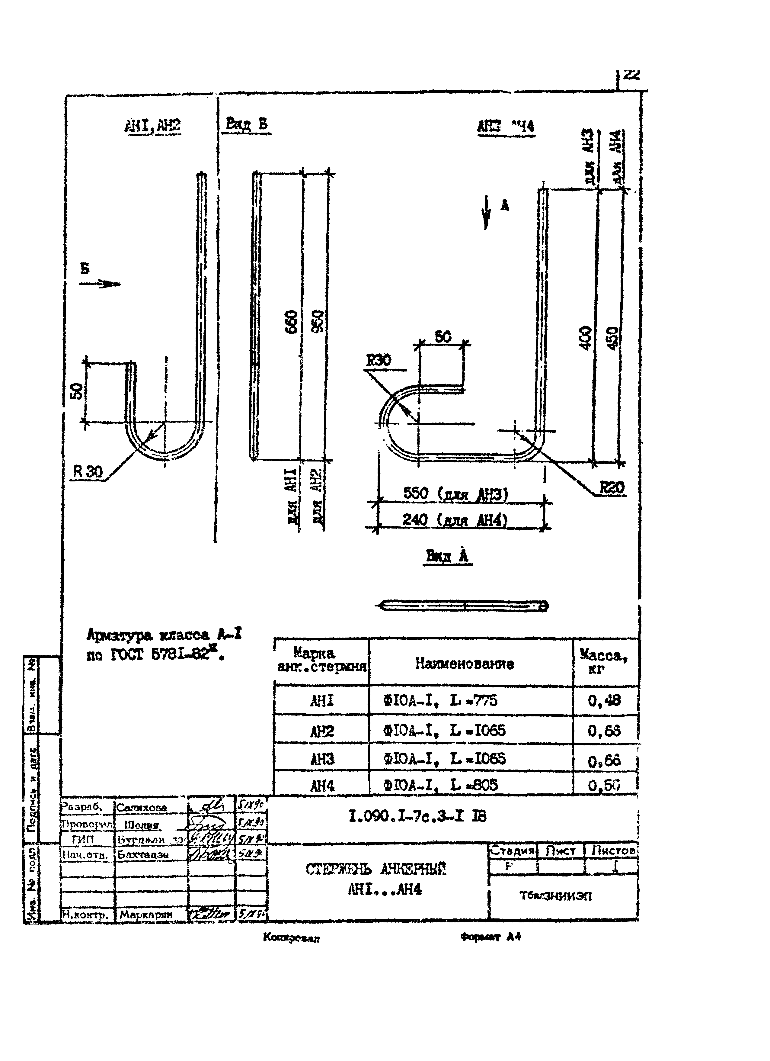
| Оглавление: | 1.090.1-7С.3-1-ТТ Технические требования 1.090.1-7С.3-1-01 Панель цокольная ПВЦ59.19-1Т-С 1.090.1-7С.3-1-02 Панель цокольная 1ПВЦ28.19-1Т-С 1.090.1-7С.3-1-03 Панель цокольная 2ПВЦ28.19-1Т-С 1.090.1-7С.3-1-04 Панель цокольная ПВЦ28.19-1Т-С 1.090.1-7С.3-1-05 Панель цокольная ПВЦ16.19-1Т-С 1.090.1-7С.3-1-06 Панель цокольная ПВЦ10.19-1Т-С 1.090.1-7С.3-1-07 Каркас пространственный КП10.19 1.090.1-7С.3-1-08 Каркас пространственный КП58.19 1.090.1-7С.3-1-09 Каркас пространственный 1КП28.19 1.090.1-7С.3-1-10 Каркас пространственный 2КП28.19 1.090.1-7С.3-1-11 Каркас пространственный КП28.19 1.090.1-7С.3-1-12 Каркас пространственный КП16.19 1.090.1-7С.3-1-Д1 Узлы опалубочные 1.090.1-7С.3-1-Д2 Узлы арматурные 1.090.1-7С.3-1-13 Каркас КР1...КР3 1.090.1-7С.3-1-14 Каркас КР4...КР7 1.090.1-7С.3-1-15 Каркас КР8,КР9 1.090.1-7С.3-1-16 Изделие закладное МН1 1.090.1-7С.3-1-17 Петля строповочная СП1...СП3 1.090.1-7С.3-1-18 Стержень анкерный АН1...АН4 1.090.1-7С.3-1-РС Ведомость расхода стали |
| Разработан: | ТбилЗНИИЭП |
| Утверждён: | 20.11.1990 Госкомархитектура (209) |
| Заменяет собой: |






























