Скачать Серия 1.090.1-7с Выпуск 7-3. Монтажные узлы с панелями наружных стен трехслойными на жестких связях толщиной 400 мм для применения в районах сейсмичностью 7, 8 и 9 баллов. Рабочие чертежиДата актуализации: 01.01.2021
|
| Обозначение: | Серия 1.090.1-7с |
| Обозначение англ: | Series 1.090.1-7с |
| Статус: | не определен законодательством |
| Название рус.: | Выпуск 7-3. Монтажные узлы с панелями наружных стен трехслойными на жестких связях толщиной 400 мм для применения в районах сейсмичностью 7, 8 и 9 баллов. Рабочие чертежи |
| Дата добавления в базу: | 01.09.2013 |
| Дата актуализации: | 01.01.2021 |
| Дата введения: | 01.03.1991 |
| Дата окончания срока действия: | 30.06.2003 |
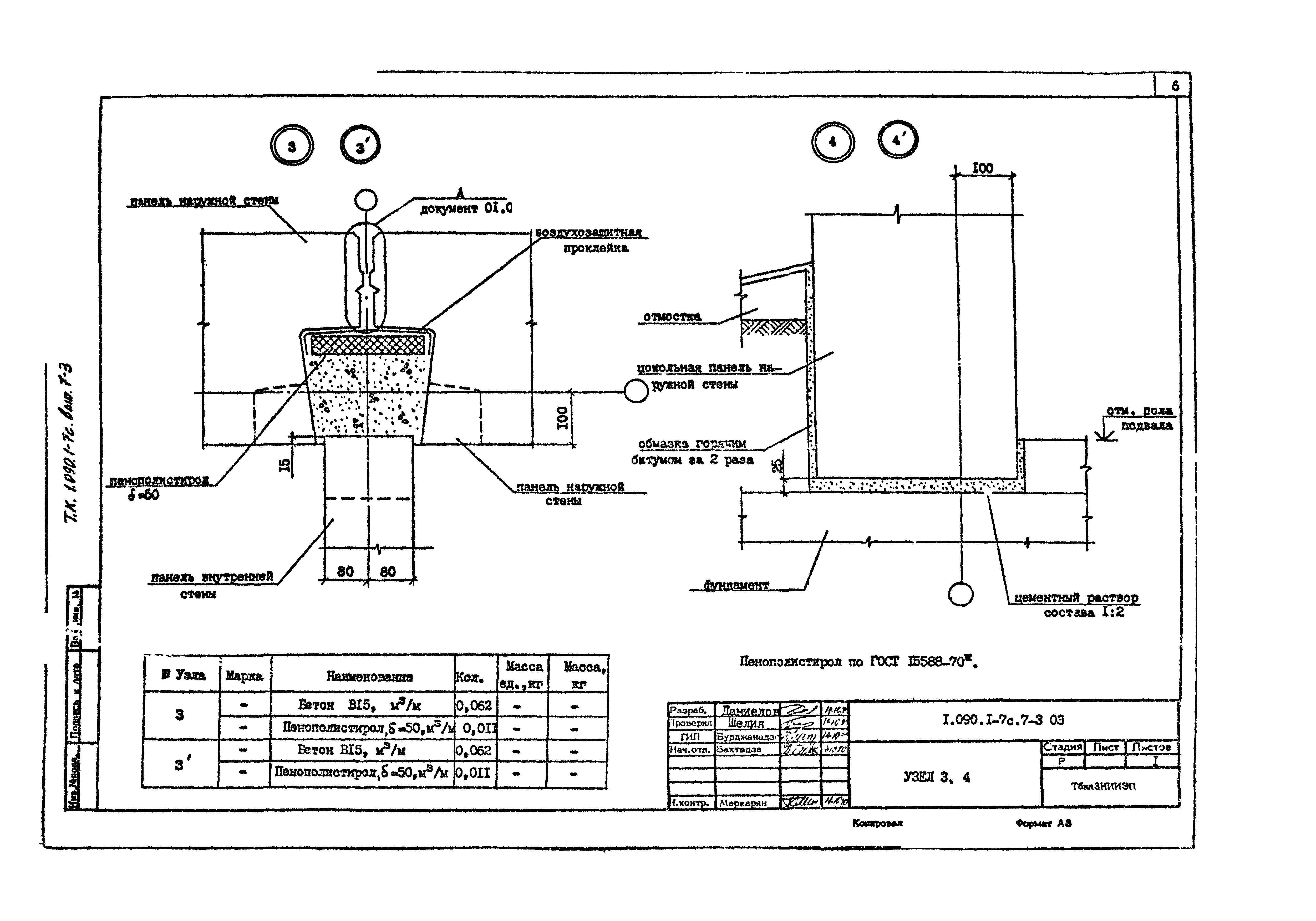
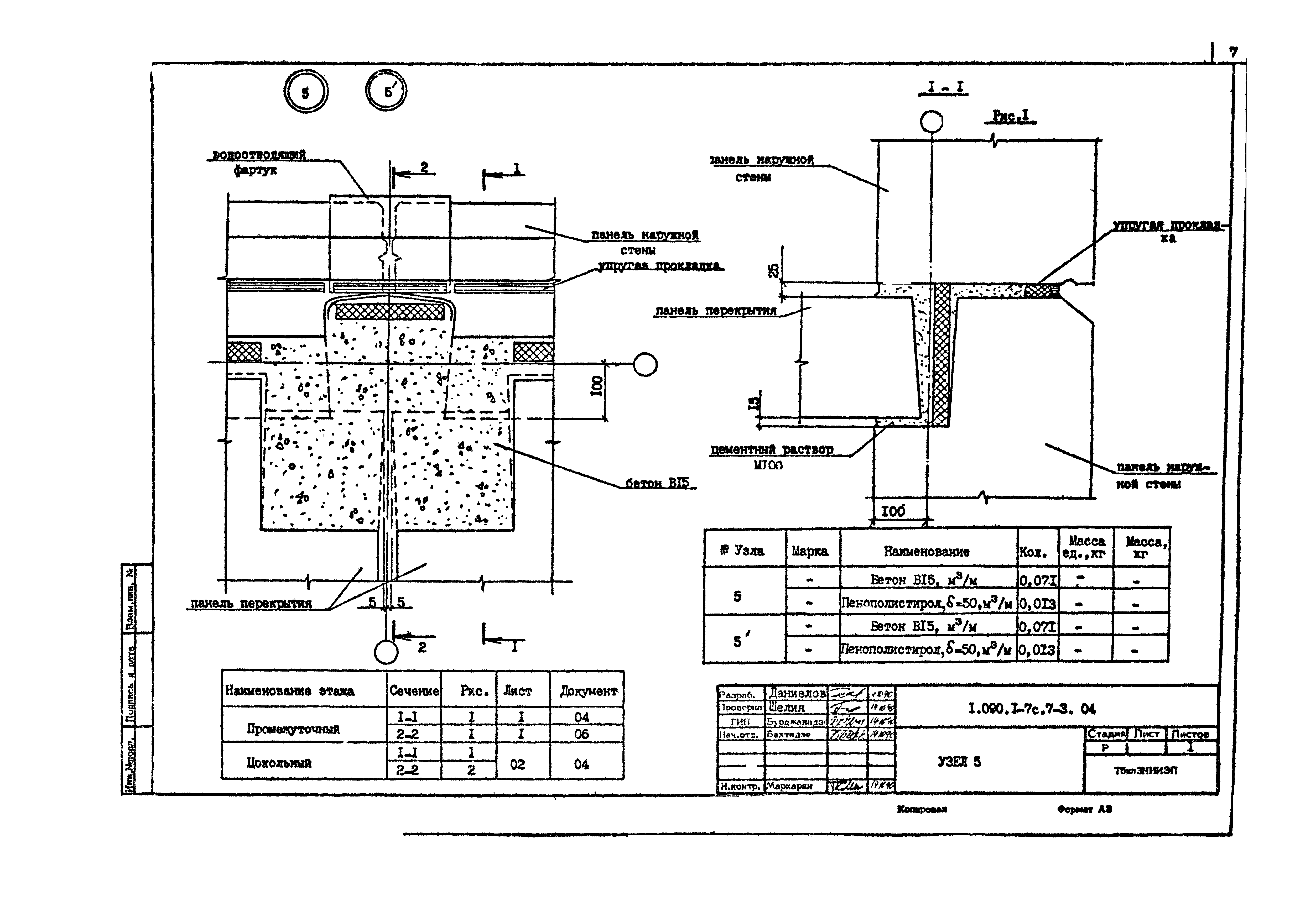
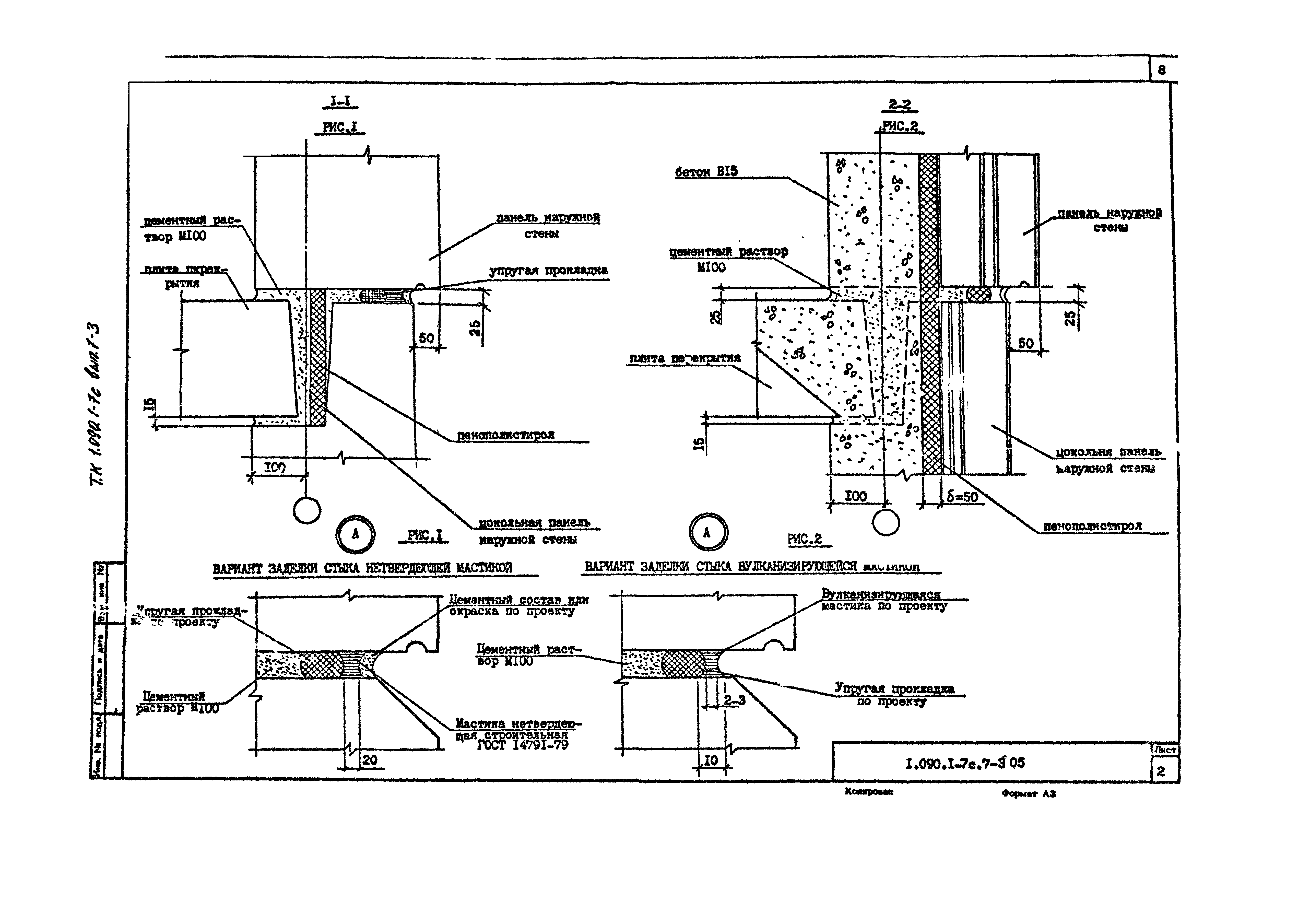
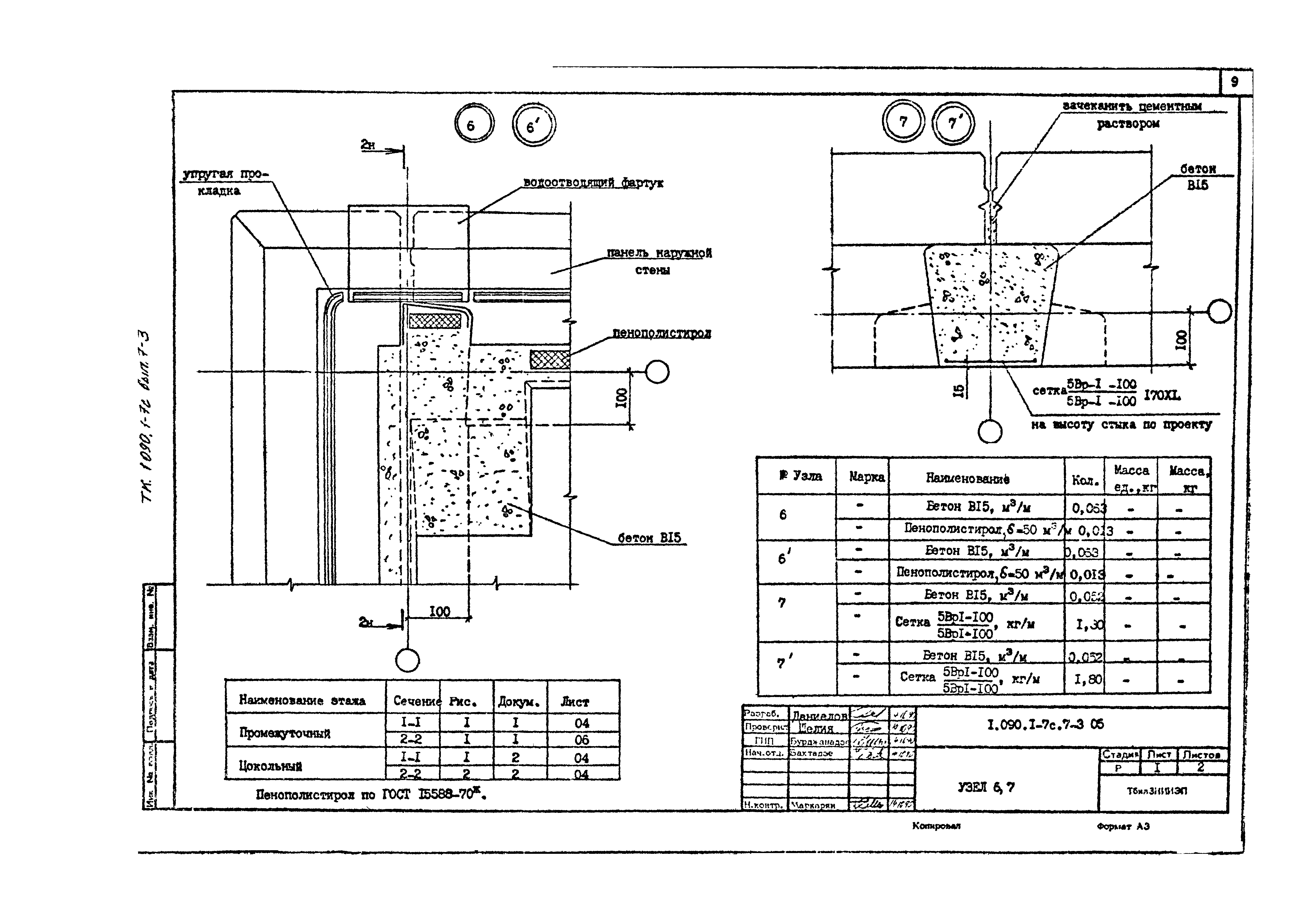
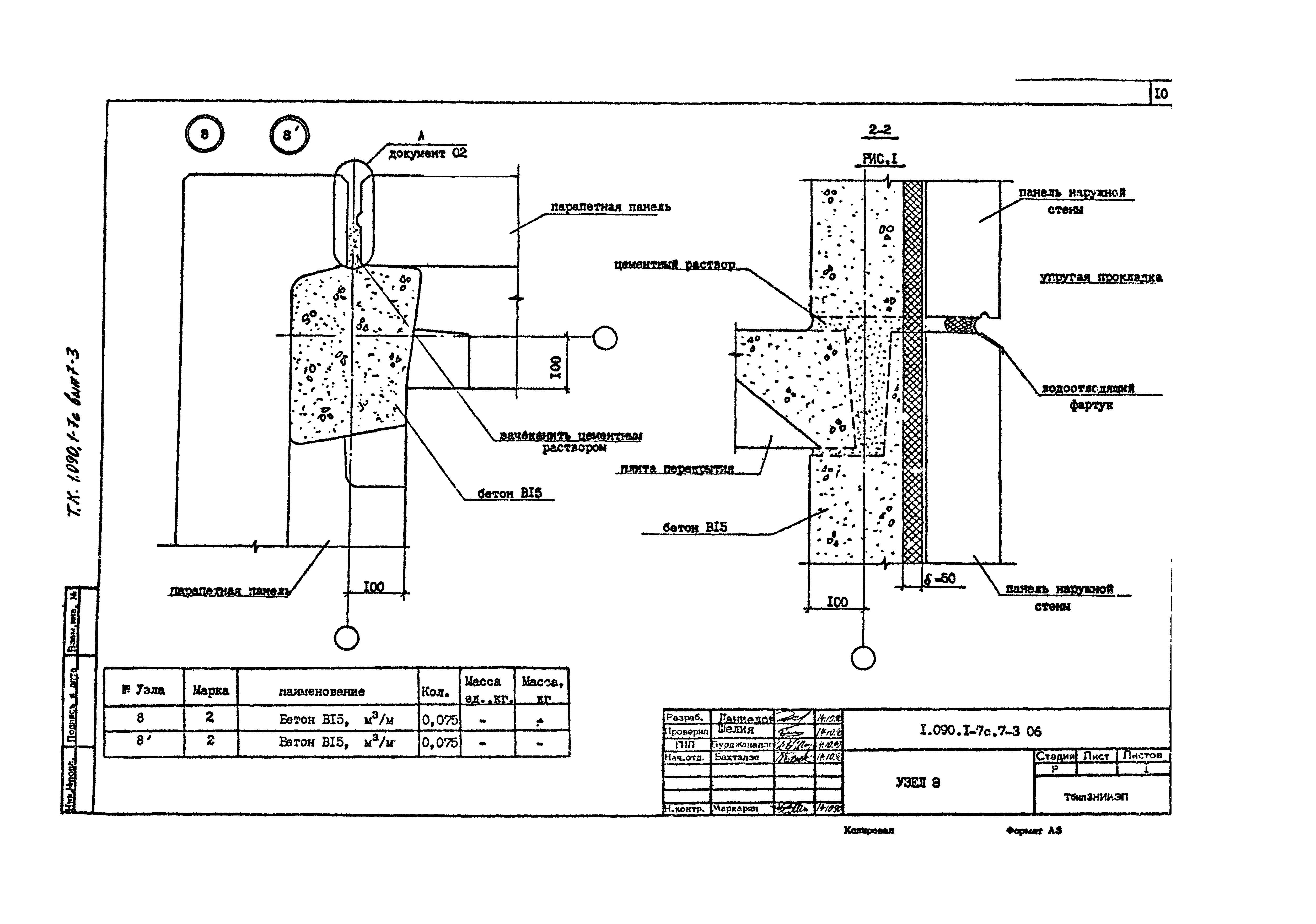
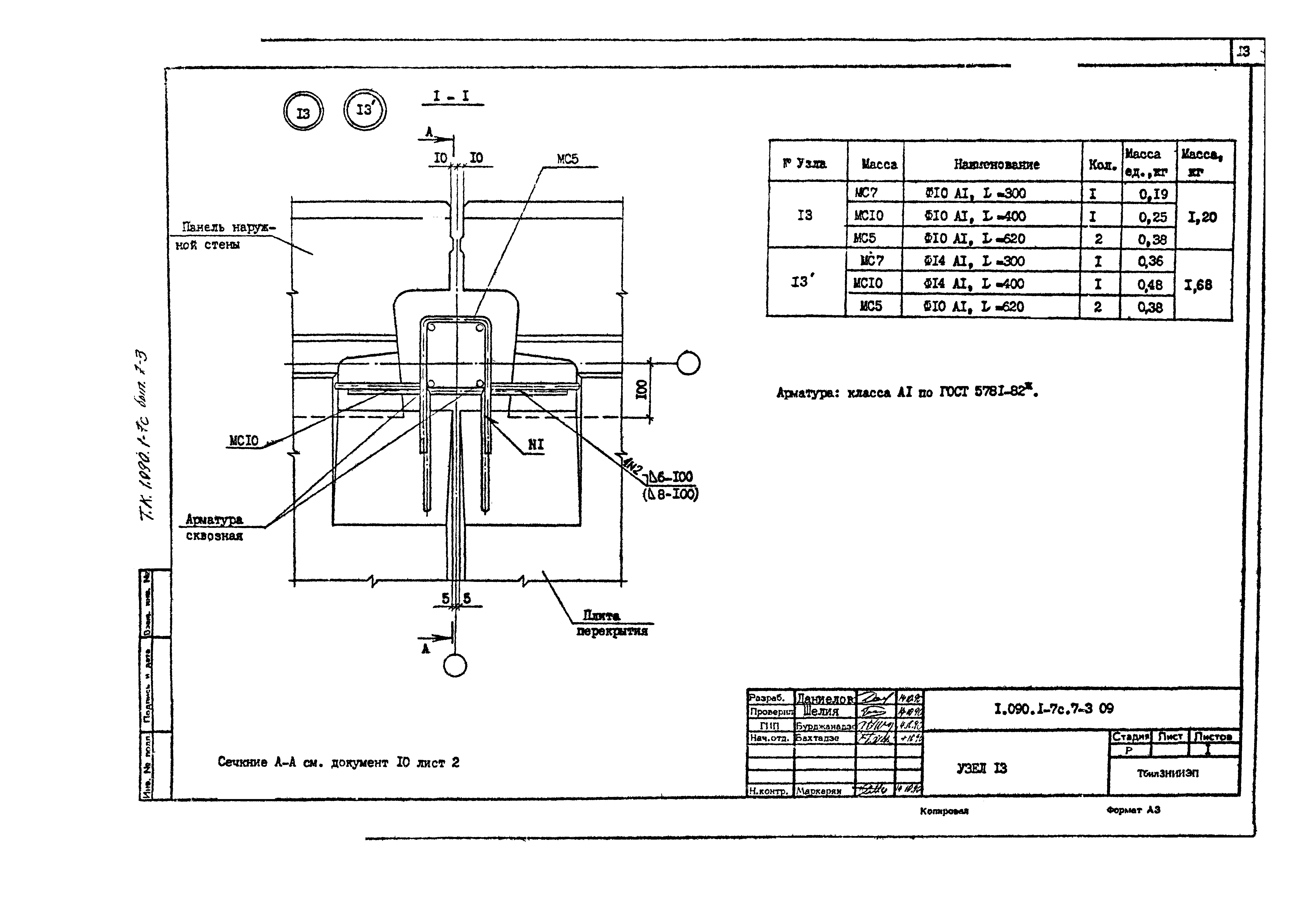
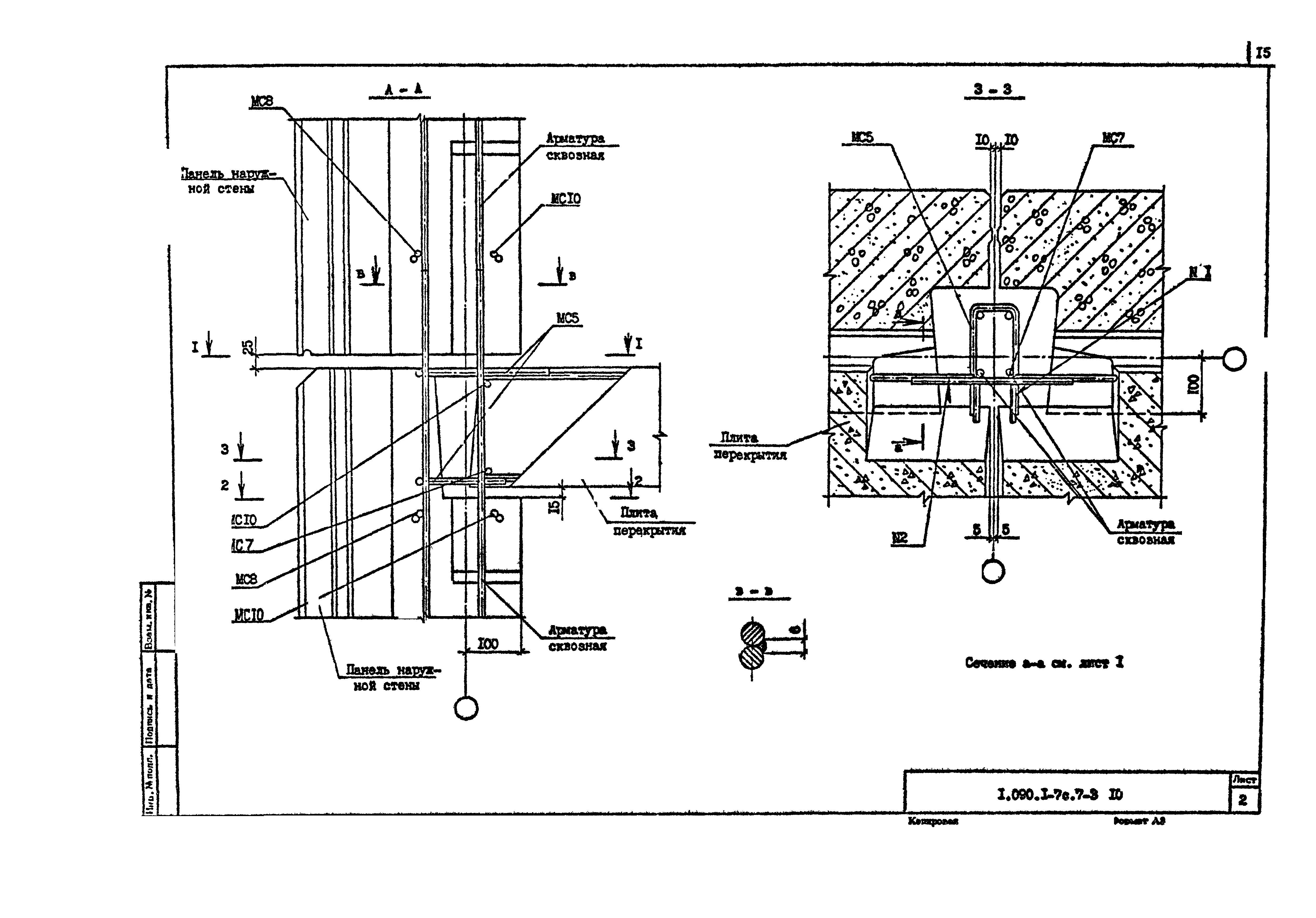
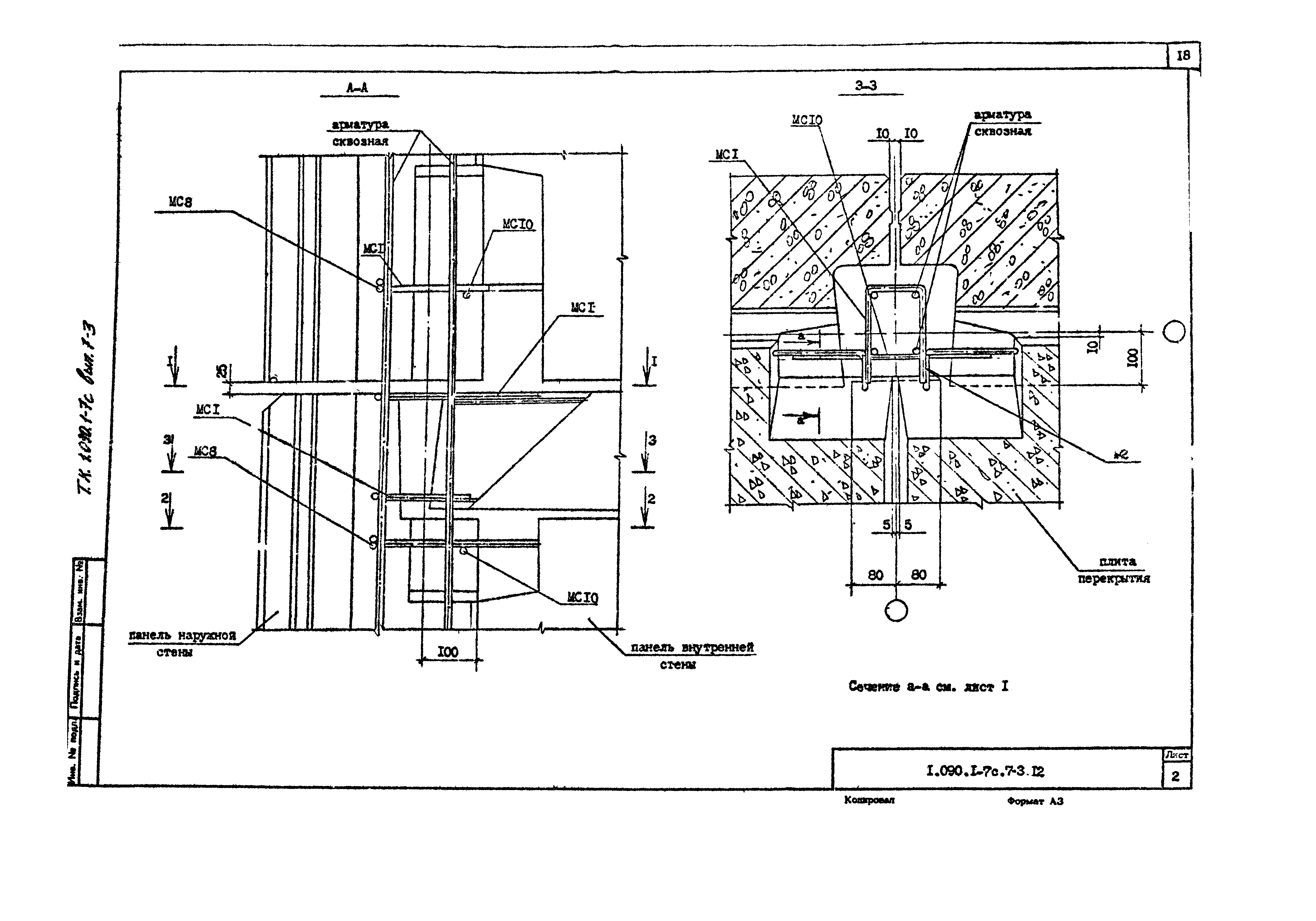
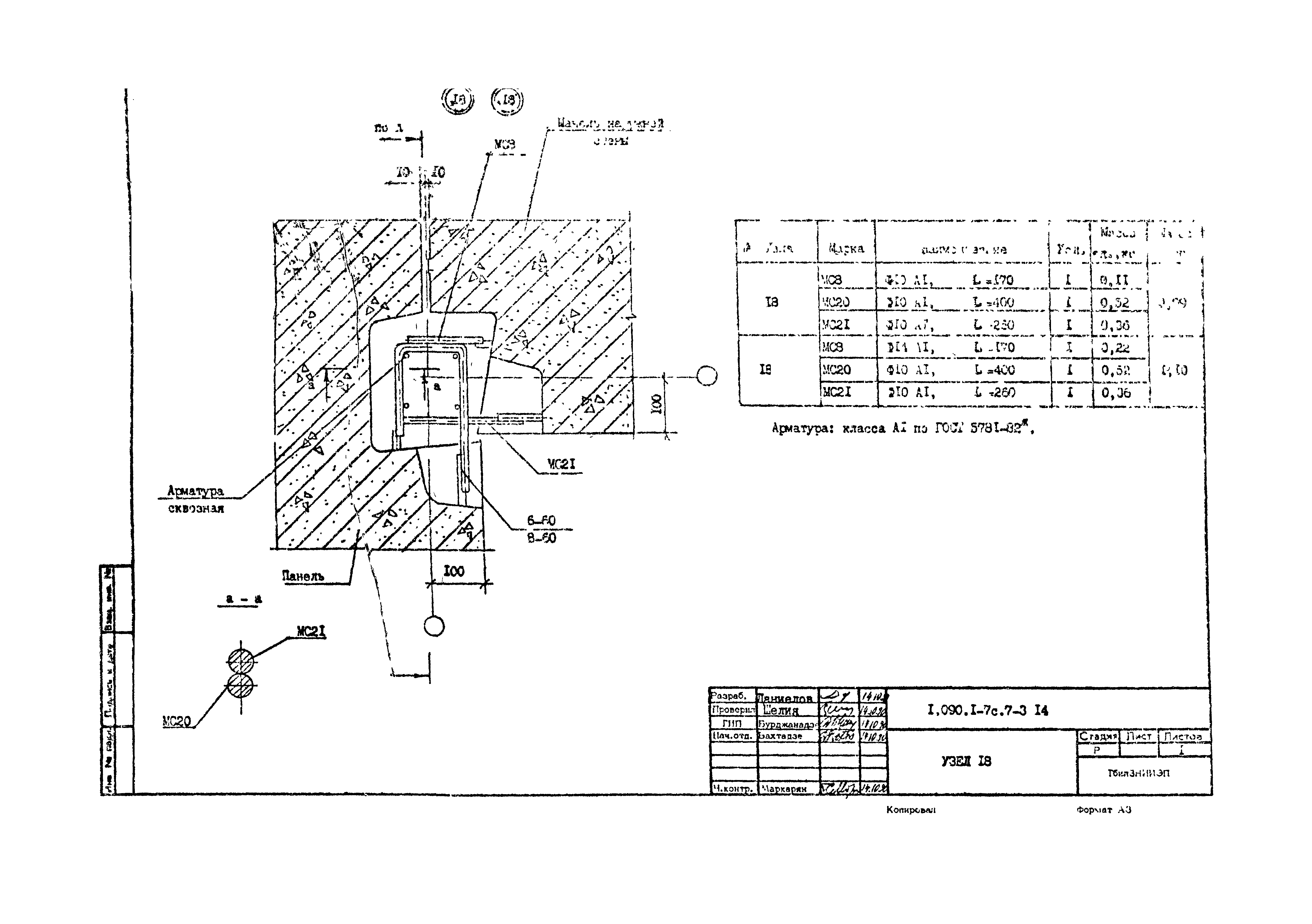
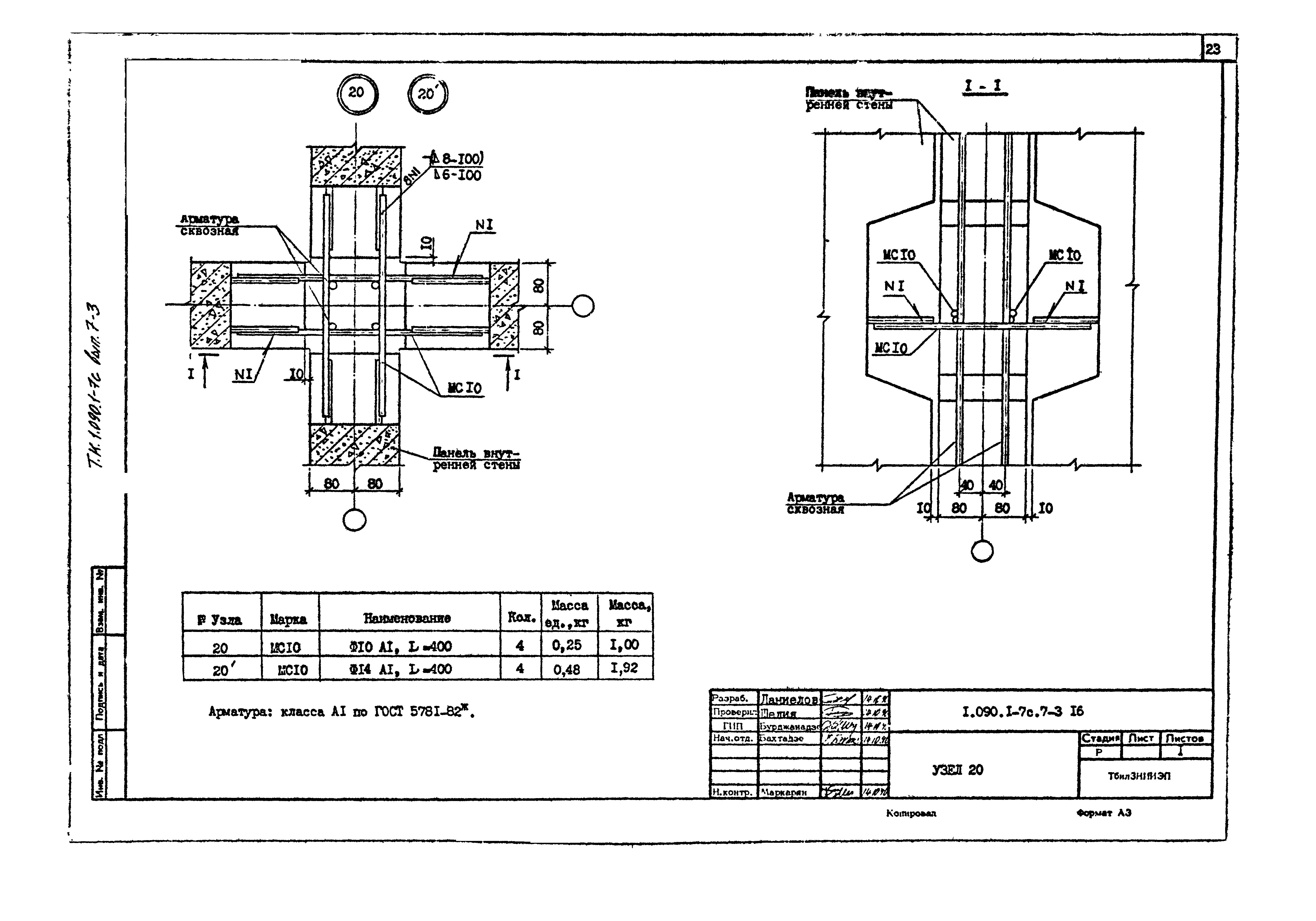
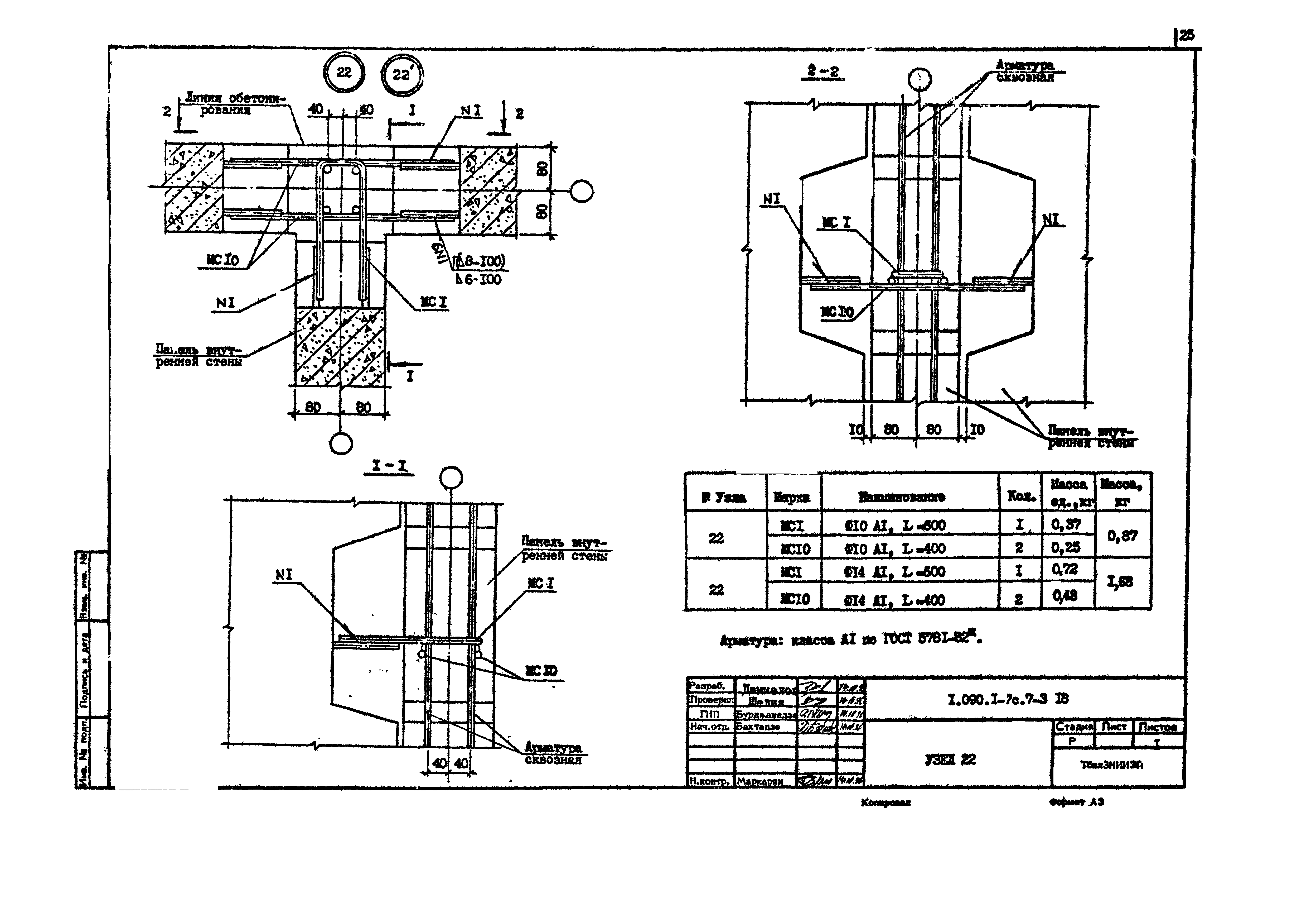
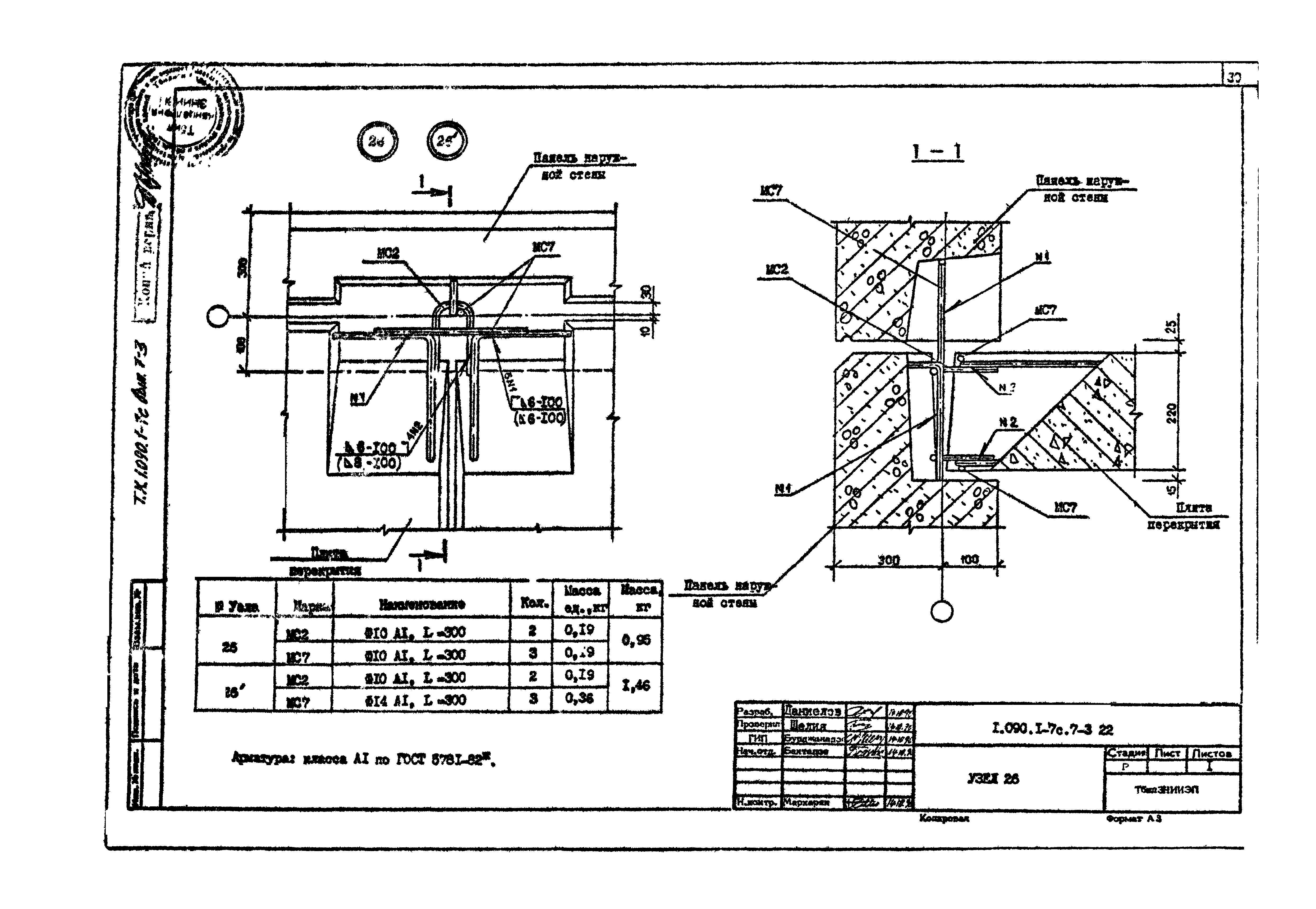
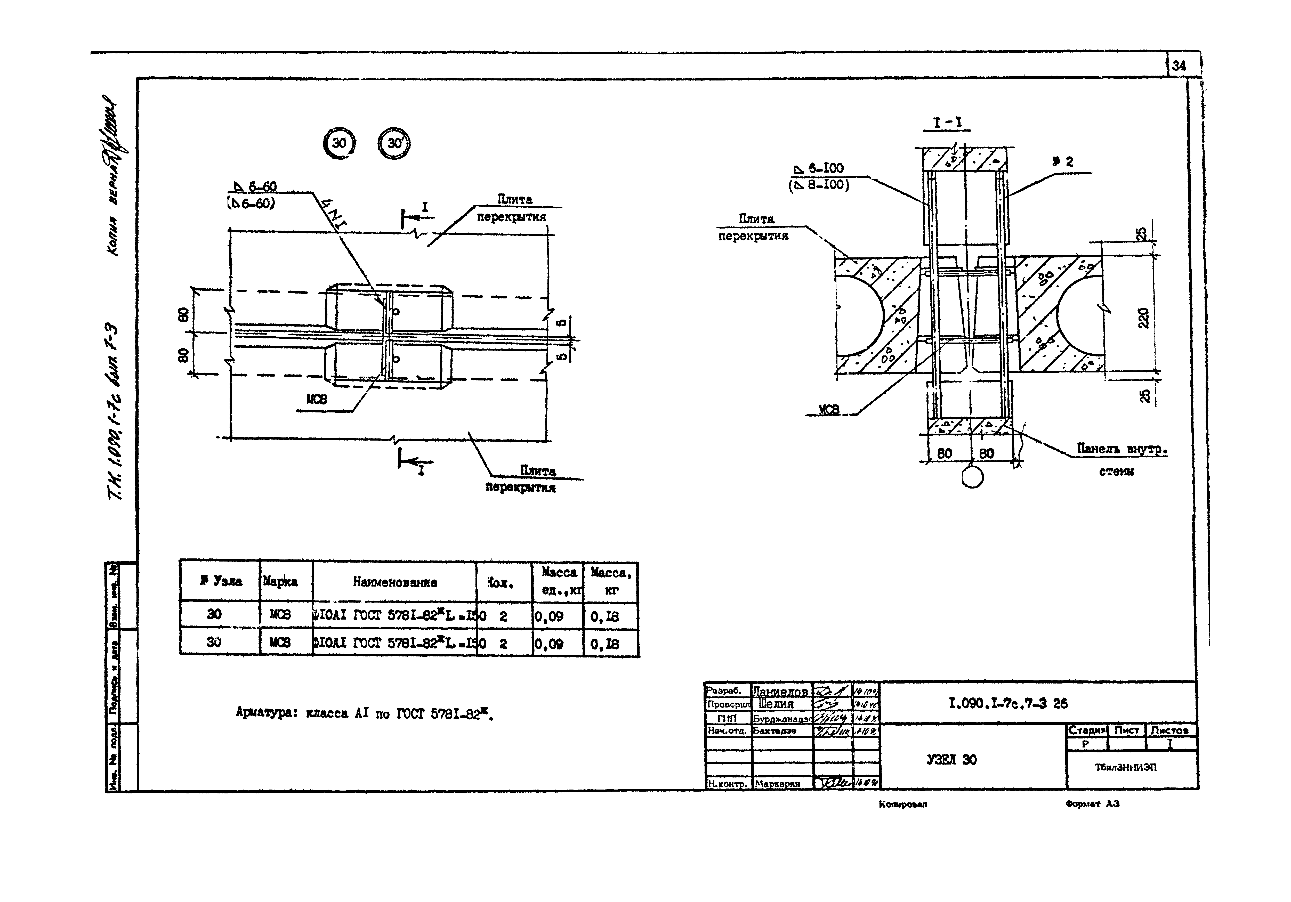
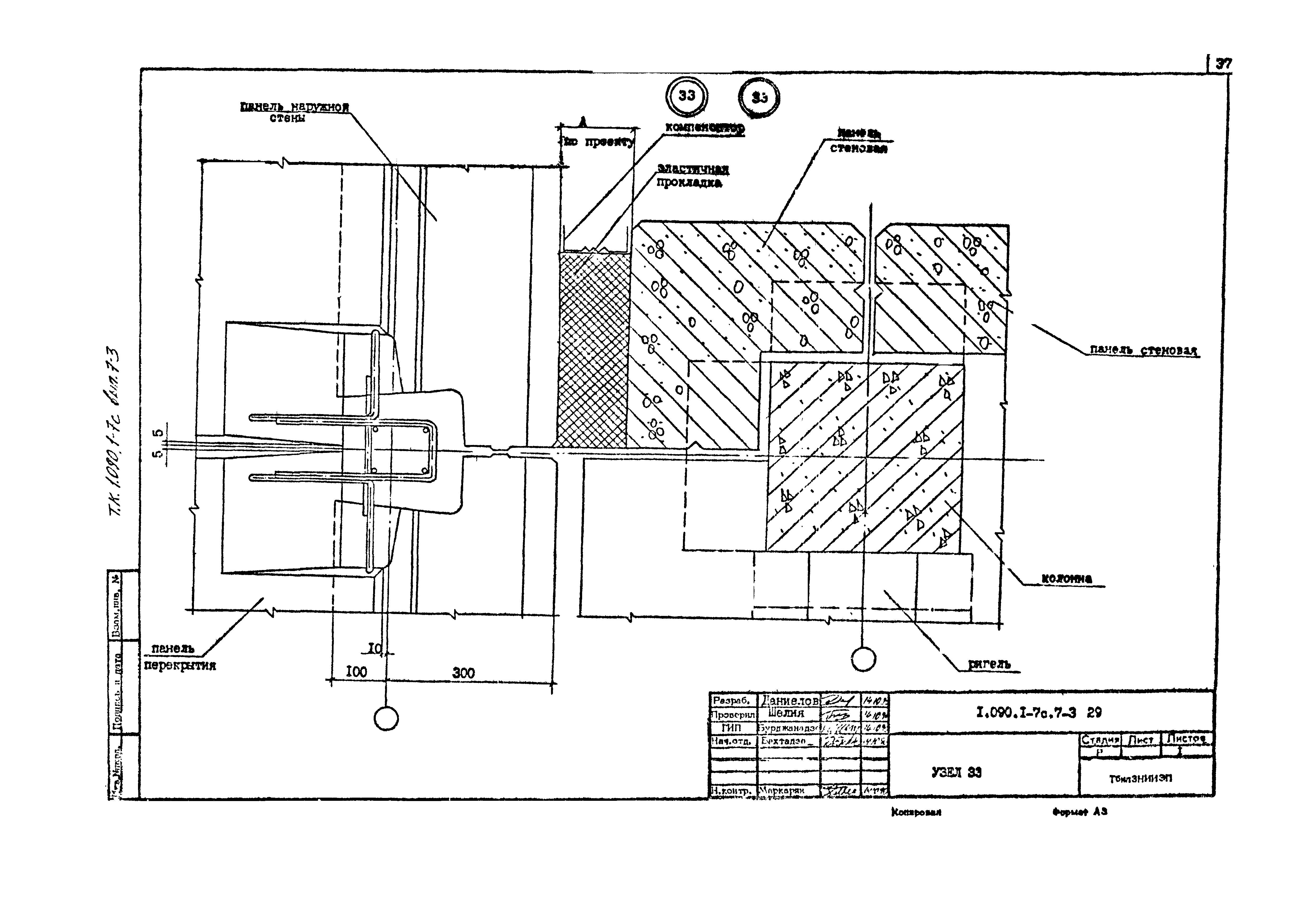
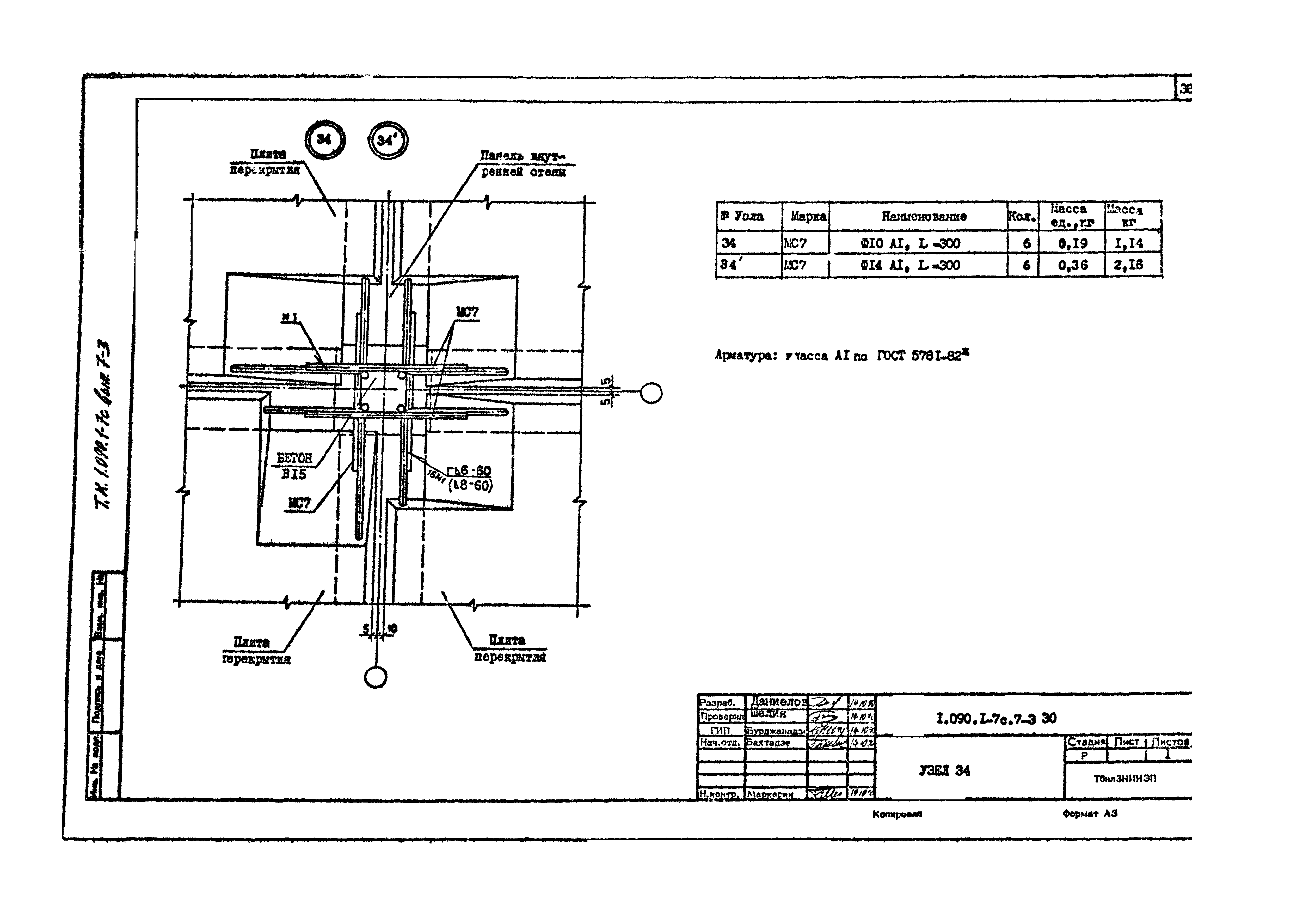
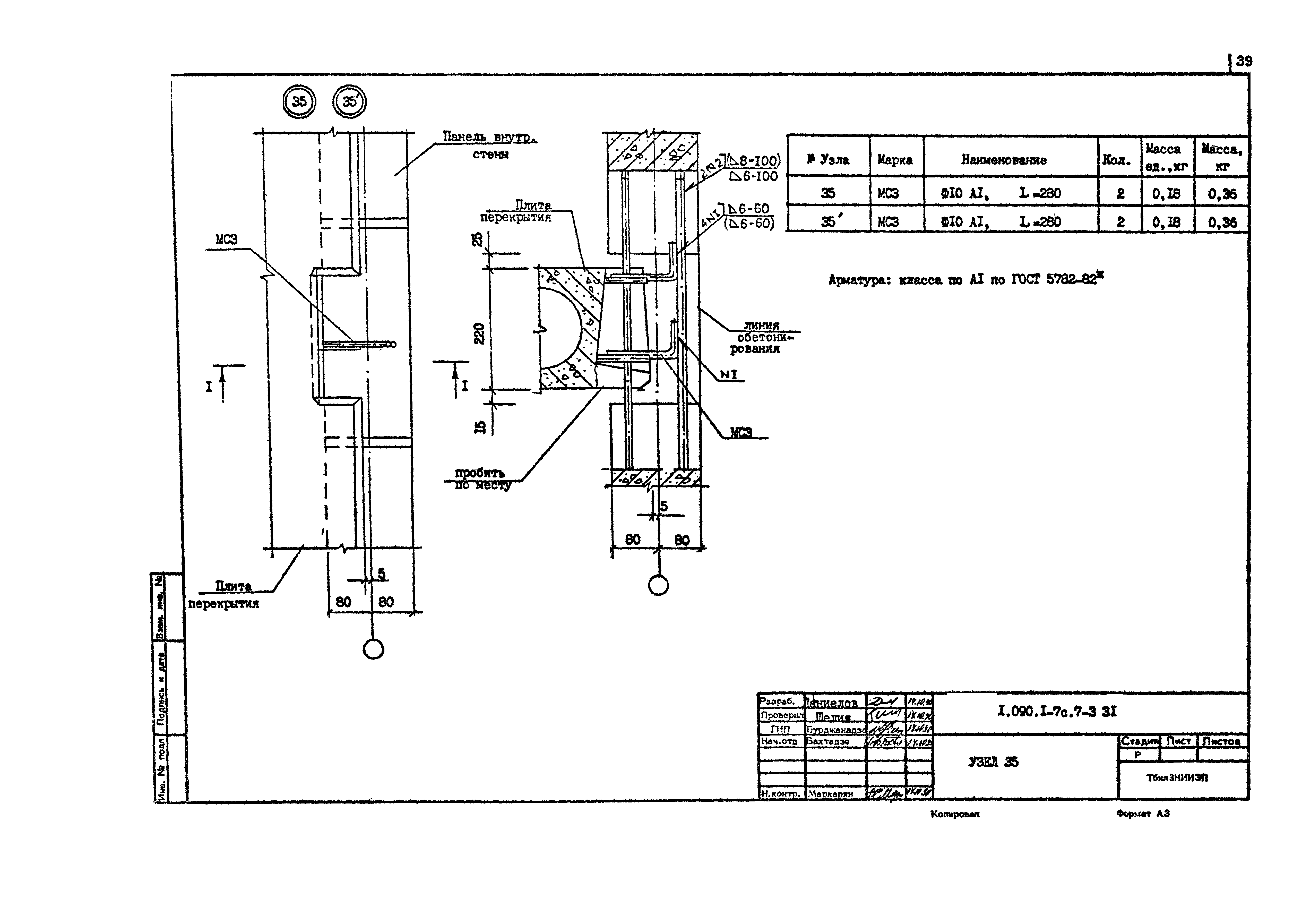
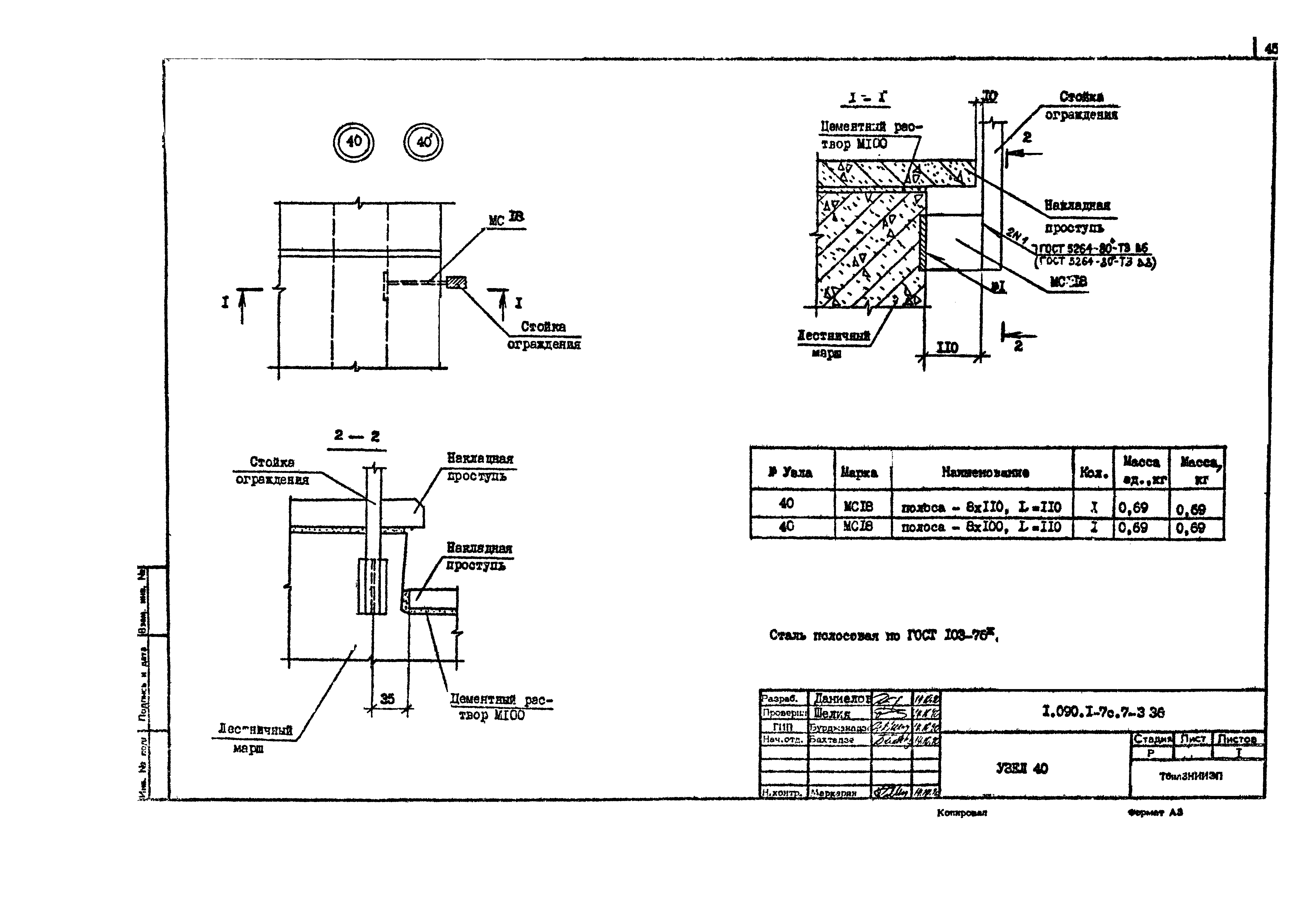
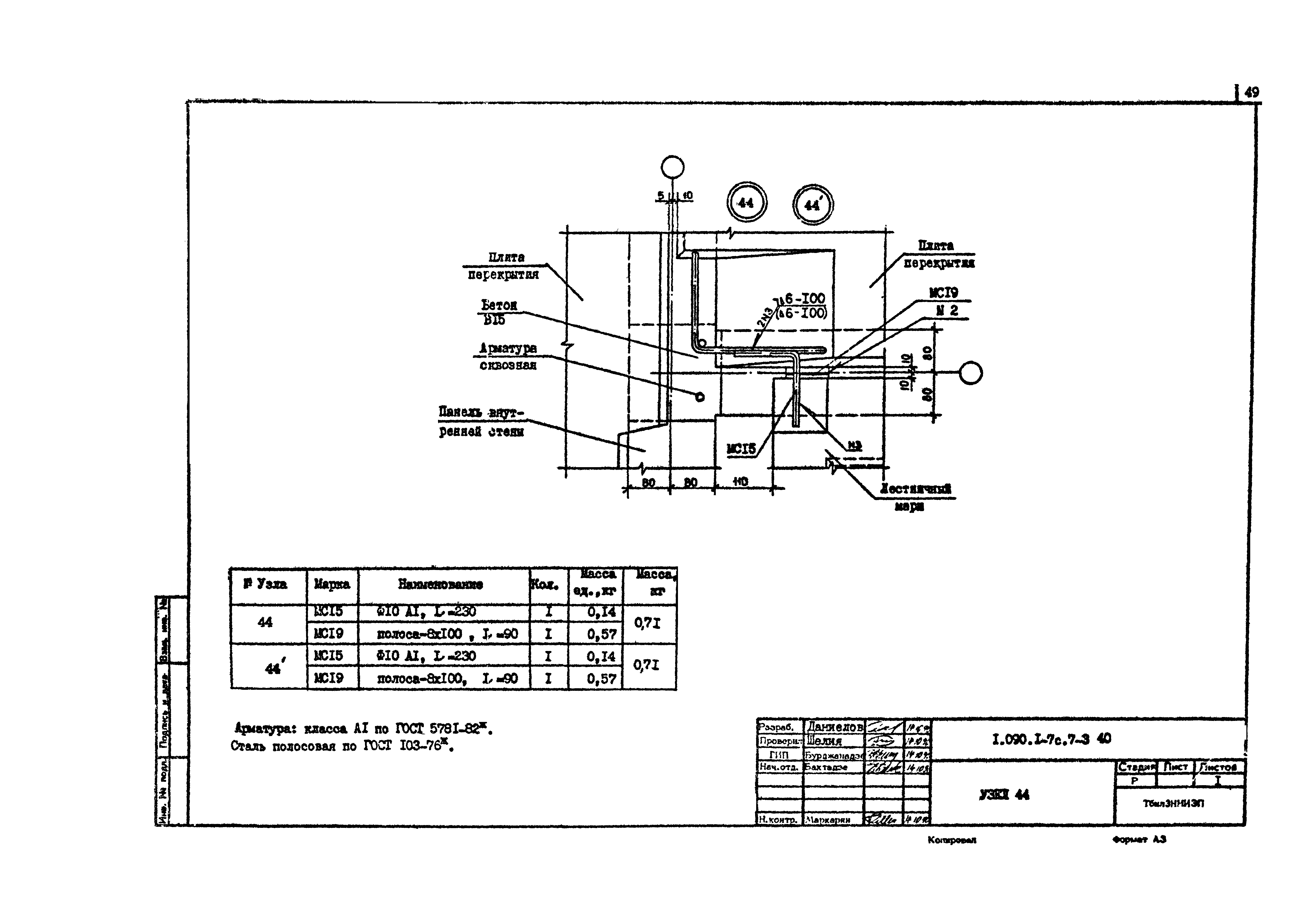
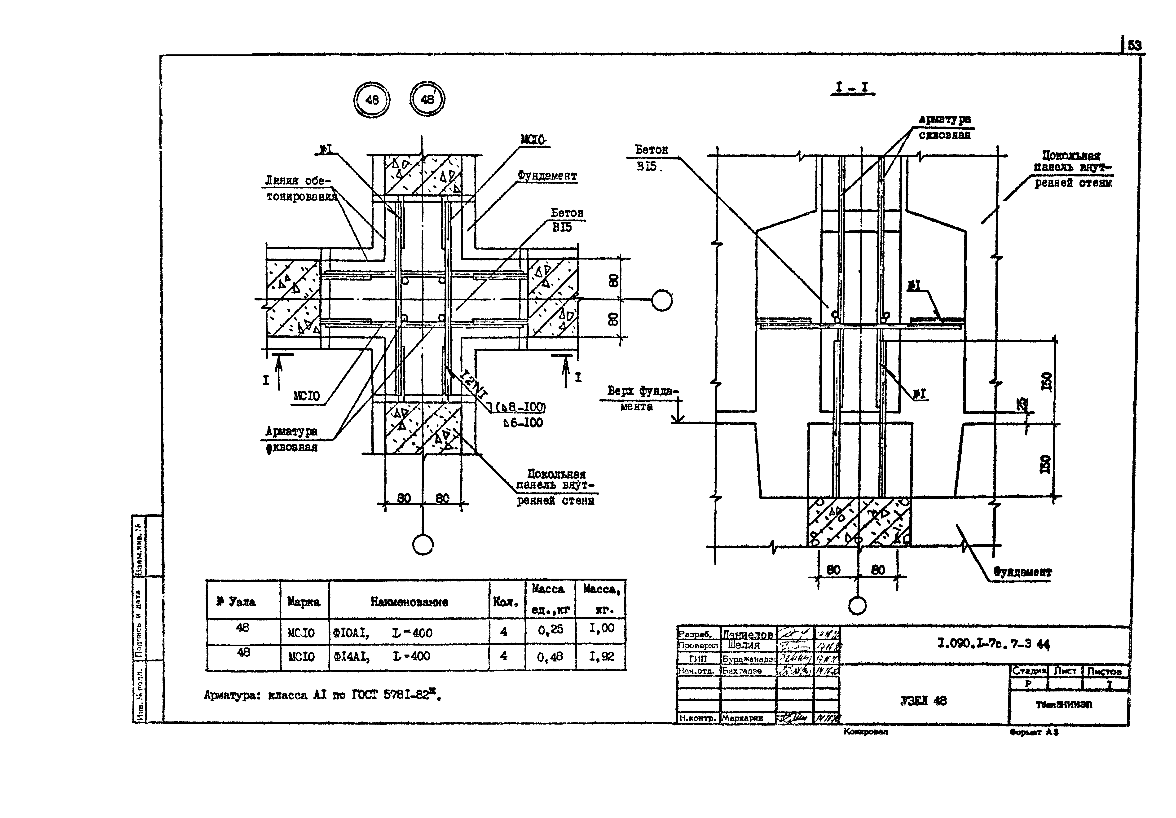
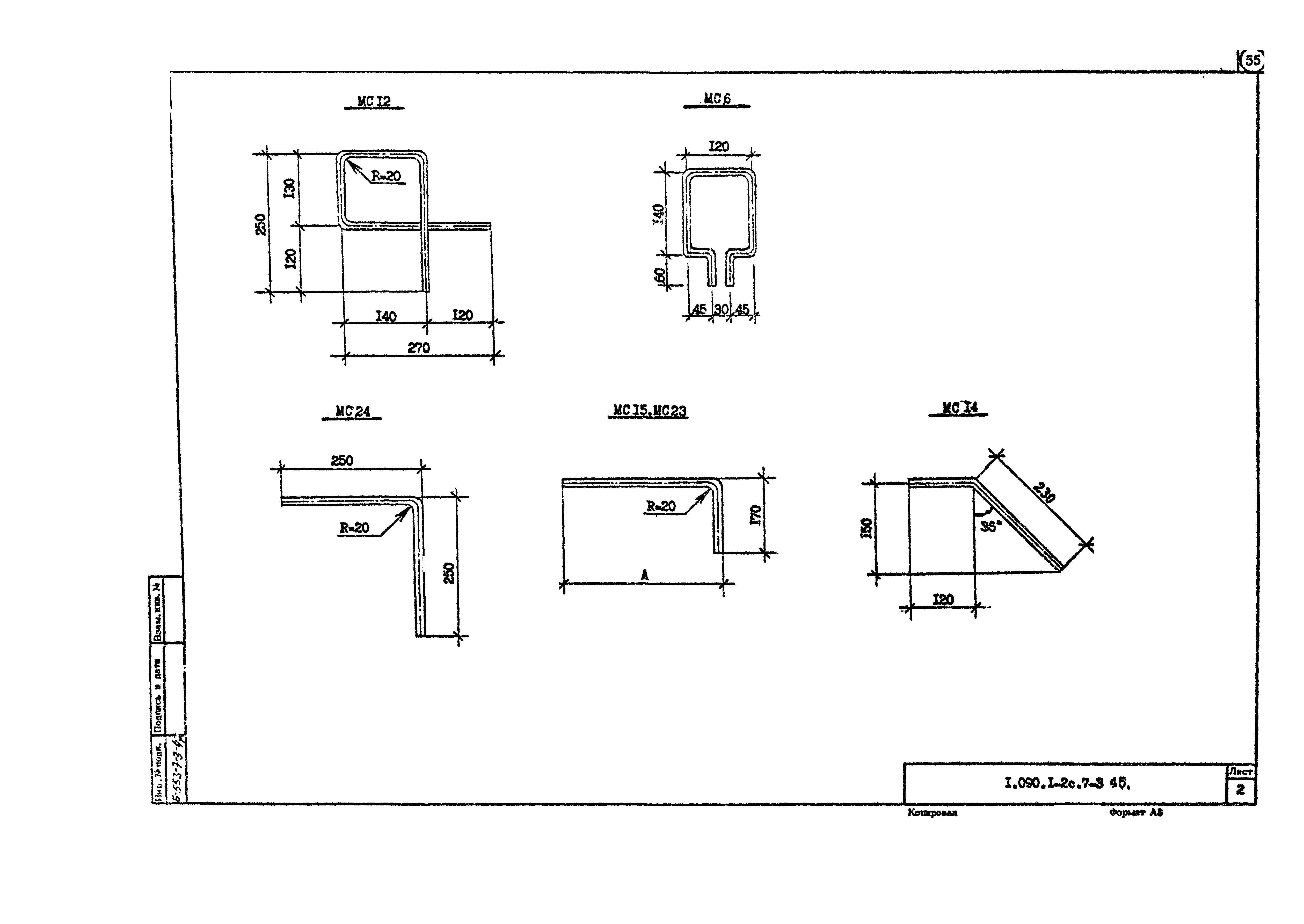
| Оглавление: | 1.090.1-7С.7-3 Содержание 1.090.1-7С.7-3-ТТ Технические требования 1.090.1-7С.7-3-01 Узел 1 1.090.1-7С.7-3-02 Узел 2 1.090.1-7С.7-3-03 Узел 3,4 1.090.1-7С.7-3-04 Узел 5 1.090.1-7С.7-3-05 Узел 6,7 1.090.1-7С.7-3-06 Узел 8 1.090.1-7С.7-3-07 Узел 9,10 1.090.1-7С.7-3-08 Узел 11,12 1.090.1-7С.7-3-09 Узел 13 1.090.1-7С.7-3-10 Узел 14 1.090.1-7С.7-3-11 Узел 15 1.090.1-7С.7-3-12 Узел 16 1.090.1-7С.7-3-13 Узел 17 1.090.1-7С.7-3-14 Узел 18 1.090.1-7С.7-3-15 Узел 19 1.090.1-7С.7-3-16 Узел 20 1.090.1-7С.7-3-17 Узел 21 1.090.1-7С.7-3-18 Узел 22 1.090.1-7С.7-3-19 Узел 23 1.090.1-7С.7-3-20 Узел 24 1.090.1-7С.7-3-21 Узел 25 1.090.1-7С.7-3-22 Узел 26 1.090.1-7С.7-3-23 Узел 27 1.090.1-7С.7-3-24 Узел 28 1.090.1-7С.7-3-25 Узел 29 1.090.1-7С.7-3-26 Узел 30 1.090.1-7С.7-3-27 Узел 31 1.090.1-7С.7-3-28 Узел 32 1.090.1-7С.7-3-29 Узел 33 1.090.1-7С.7-3-30 Узел 34 1.090.1-7С.7-3-31 Узел 35 1.090.1-7С.7-3-32 Узел 36 1.090.1-7С.7-3-33 Узел 37 1.090.1-7С.7-3-34 Узел 38 1.090.1-7С.7-3-35 Узел 39 1.090.1-7С.7-3-36 Узел 40 1.090.1-7С.7-3-37 Узел 41 1.090.1-7С.7-3-38 Узел 42 1.090.1-7С.7-3-39 Узел 43 1.090.1-7С.7-3-40 Узел 44 1.090.1-7С.7-3-41 Узел 45 1.090.1-7С.7-3-42 Узел 46 1.090.1-7С.7-3-43 Узел 47 1.090.1-7С.7-3-44 Узел 48 1.090.1-7С.7-3-45 Изделие соединительное |
| Разработан: | ТбилЗНИИЭП |
| Утверждён: | 20.11.1990 Госкомархитектура (209) |
| Заменяет собой: |
|























































