Скачать Серия 1.090.1-3пв Выпуск 1-2. Панели наружных стен нулевого цикла однослойные для сборно-монолитного варианта. Рабочие чертежиДата актуализации: 01.01.2021
|
| Обозначение: | Серия 1.090.1-3пв |
| Обозначение англ: | Series 1.090.1-3пв |
| Статус: | не определен законодательством |
| Название рус.: | Выпуск 1-2. Панели наружных стен нулевого цикла однослойные для сборно-монолитного варианта. Рабочие чертежи |
| Дата добавления в базу: | 01.09.2013 |
| Дата актуализации: | 01.01.2021 |
| Дата введения: | 01.01.1985 |
| Дата окончания срока действия: | 30.06.2003 |
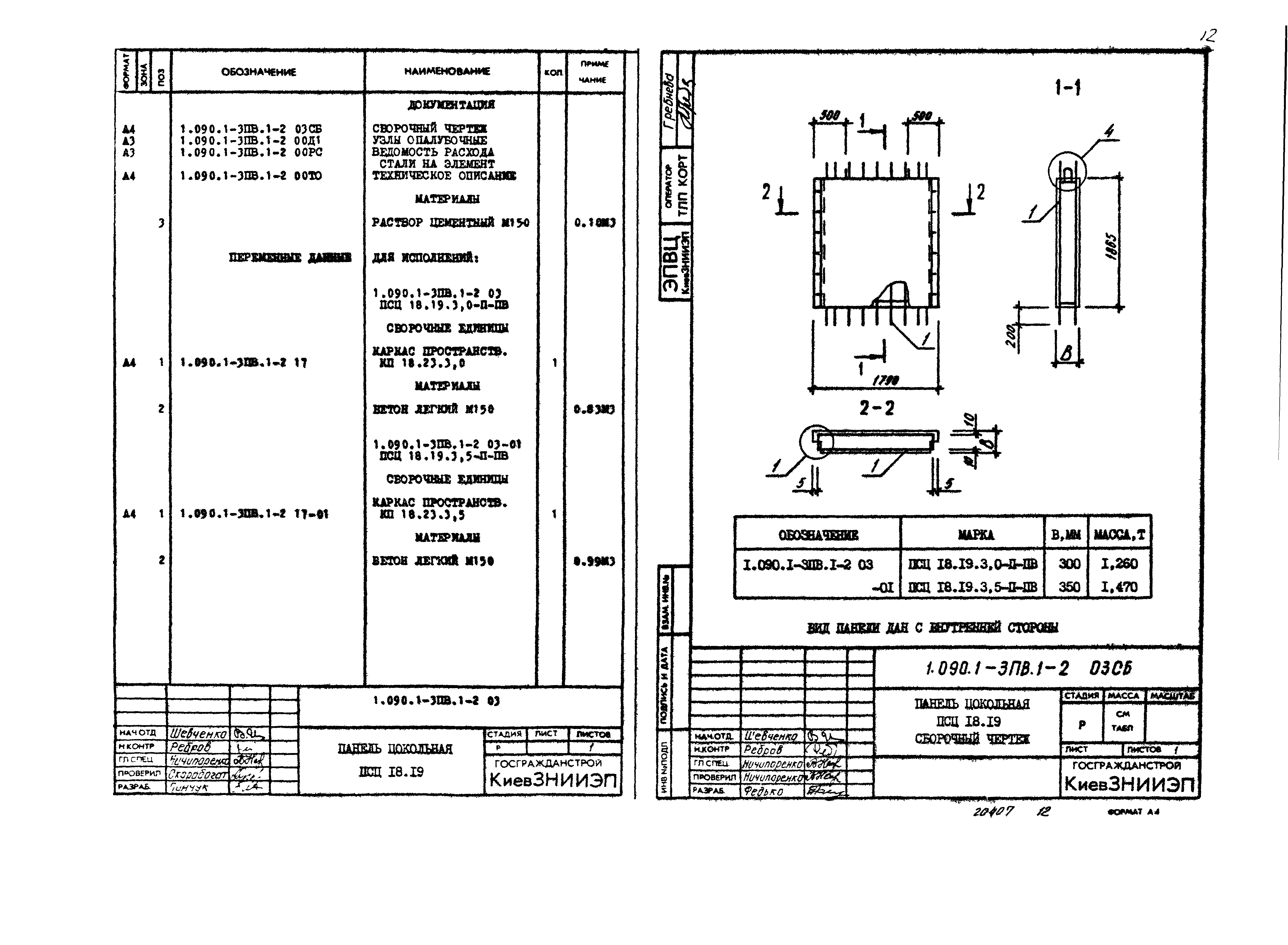
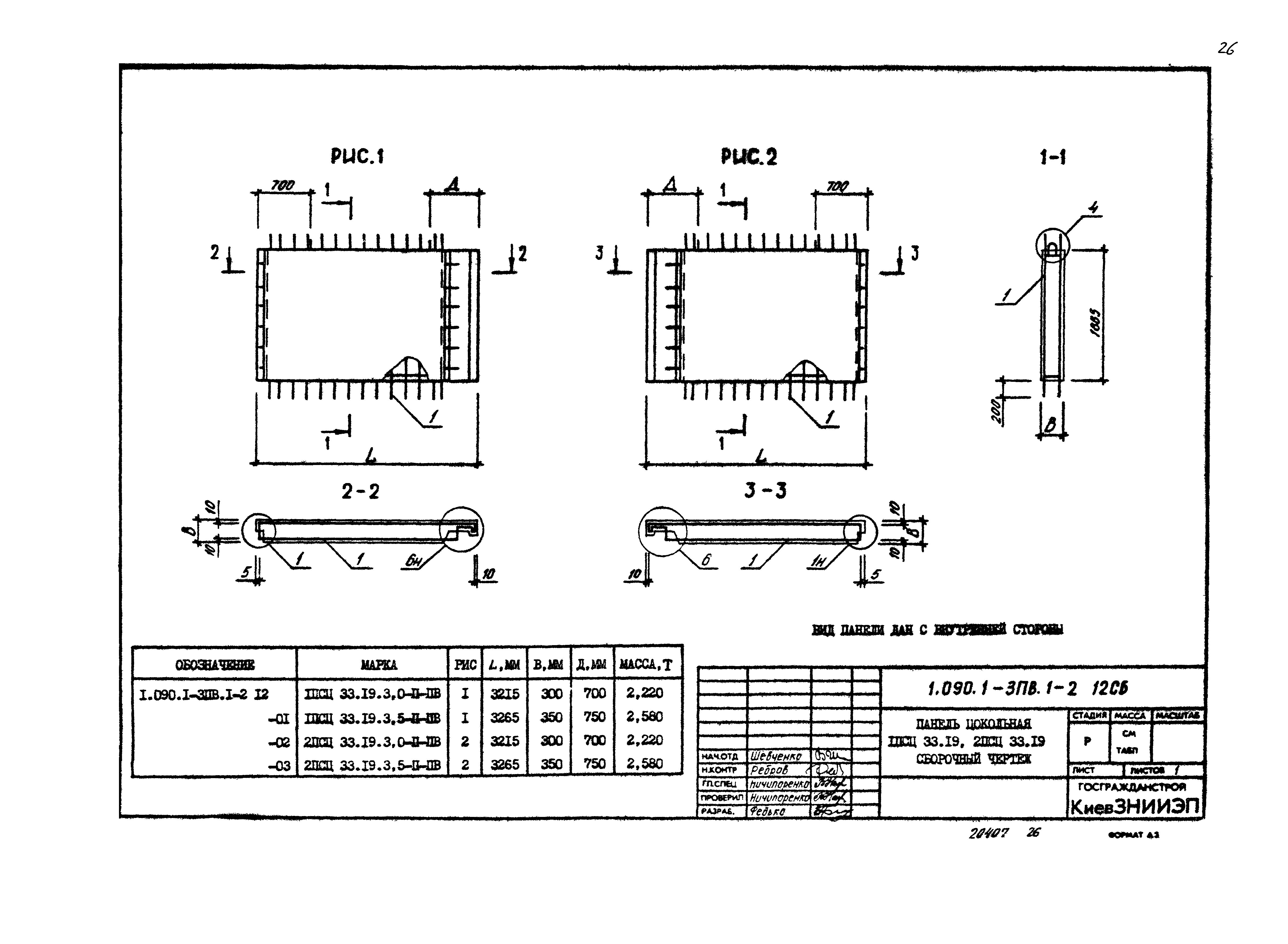
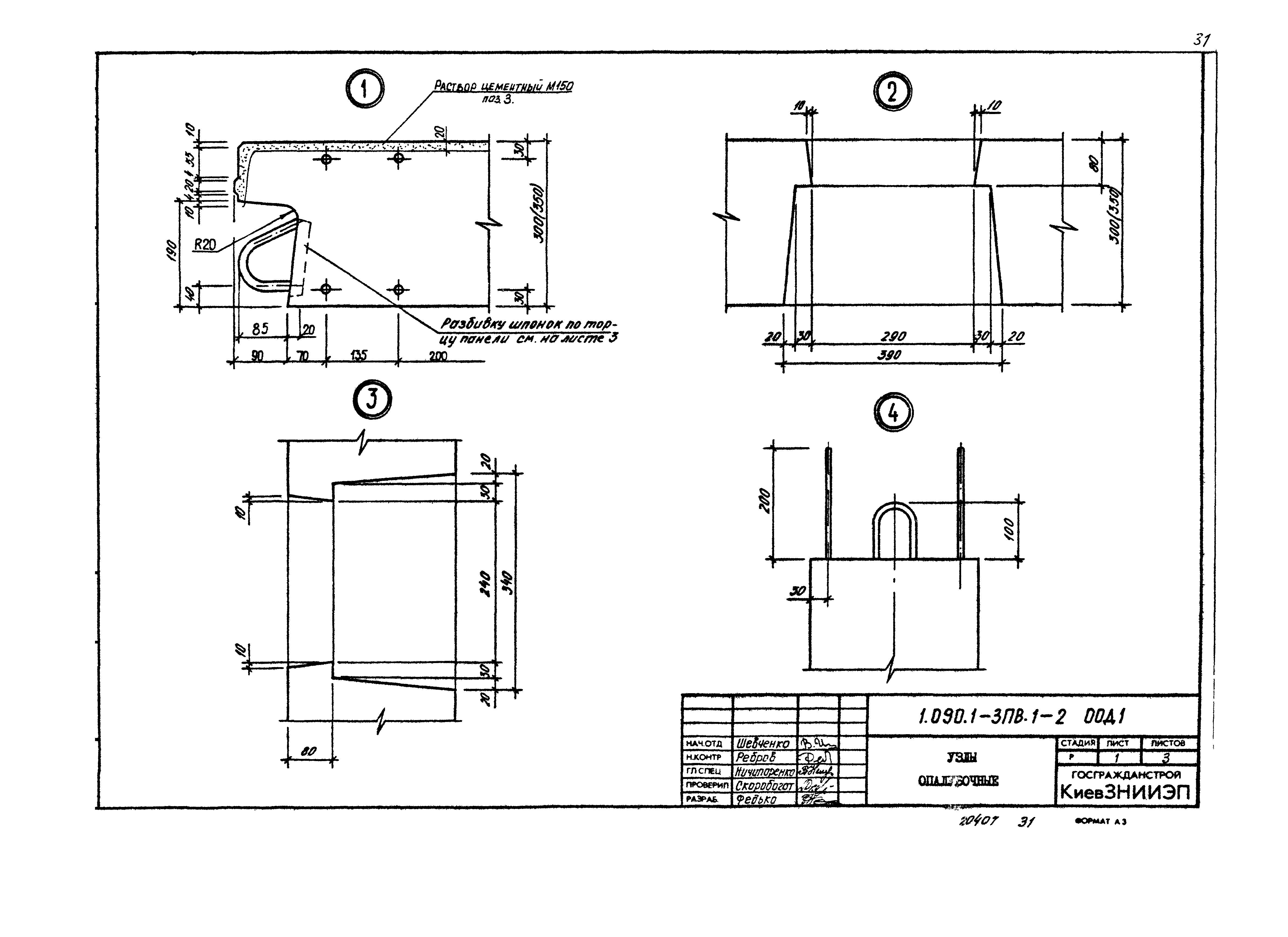
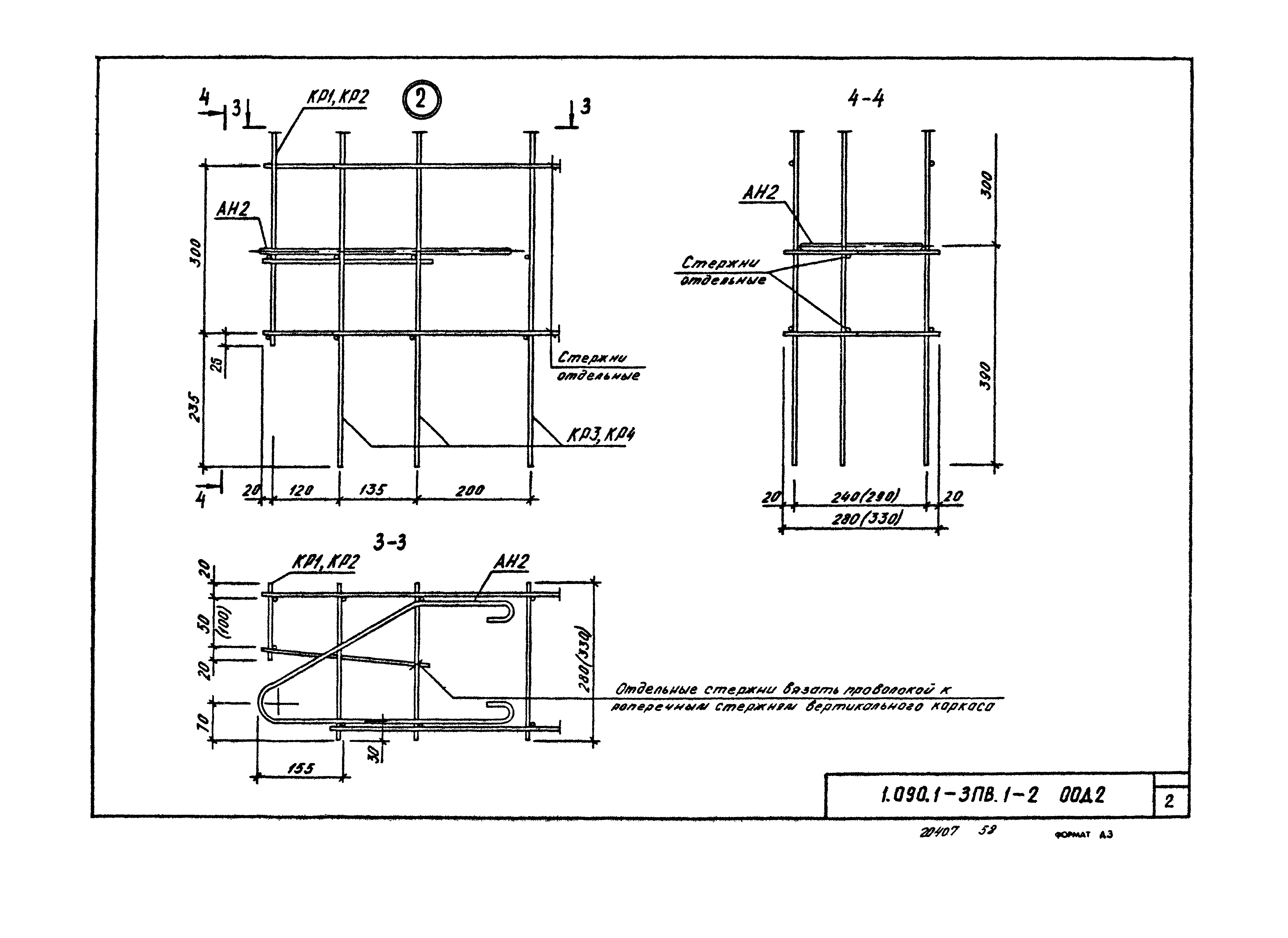
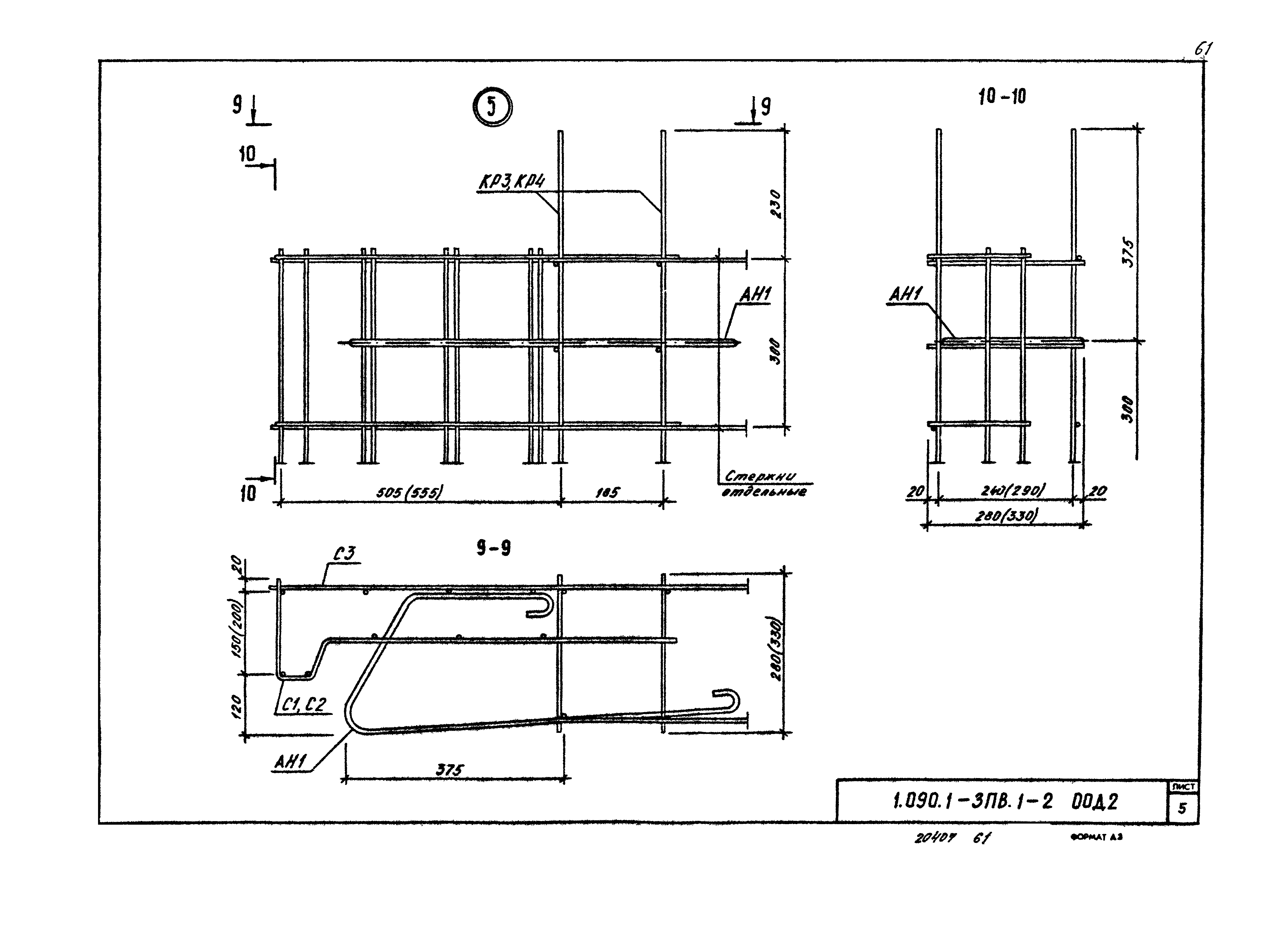
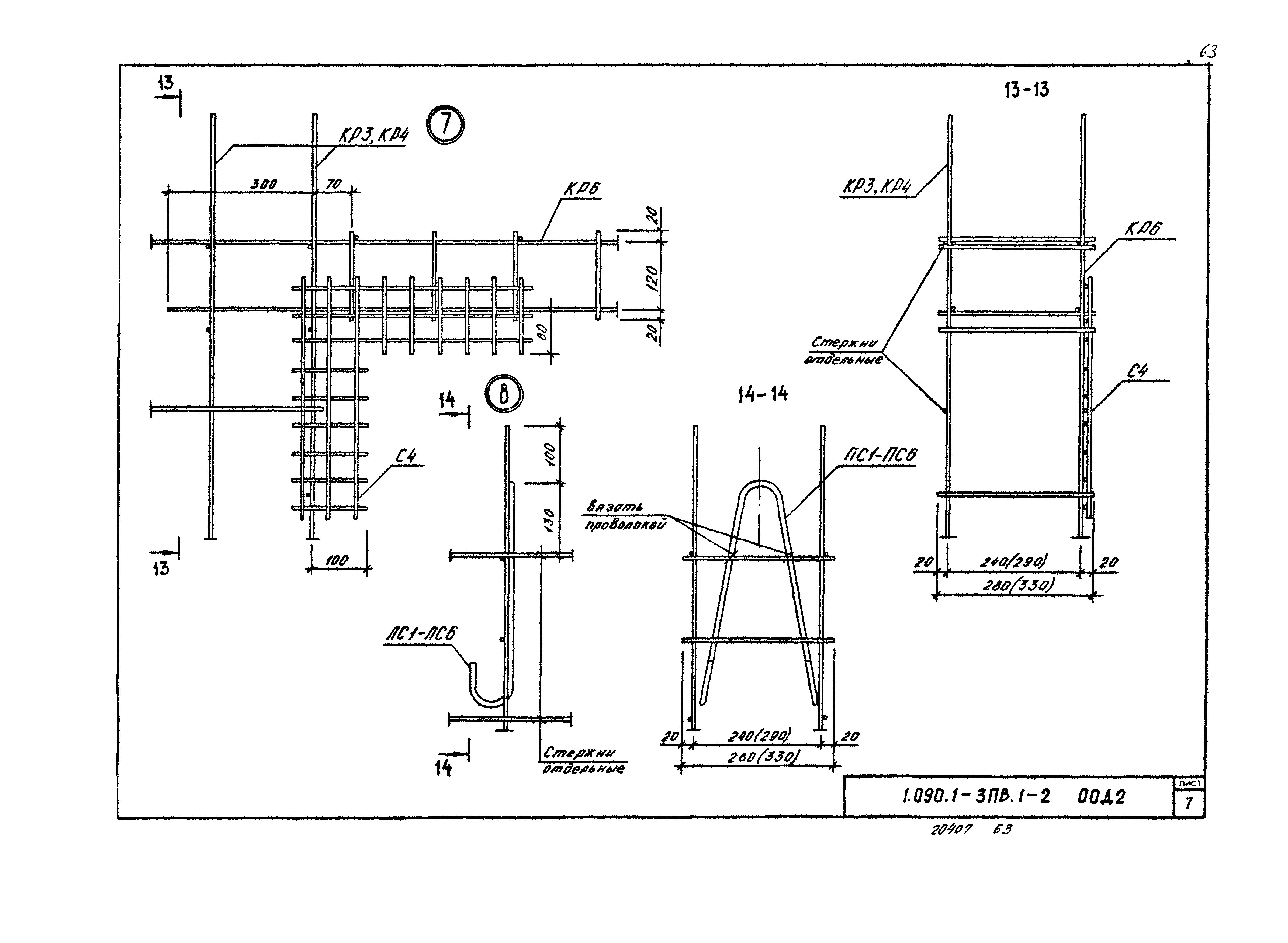
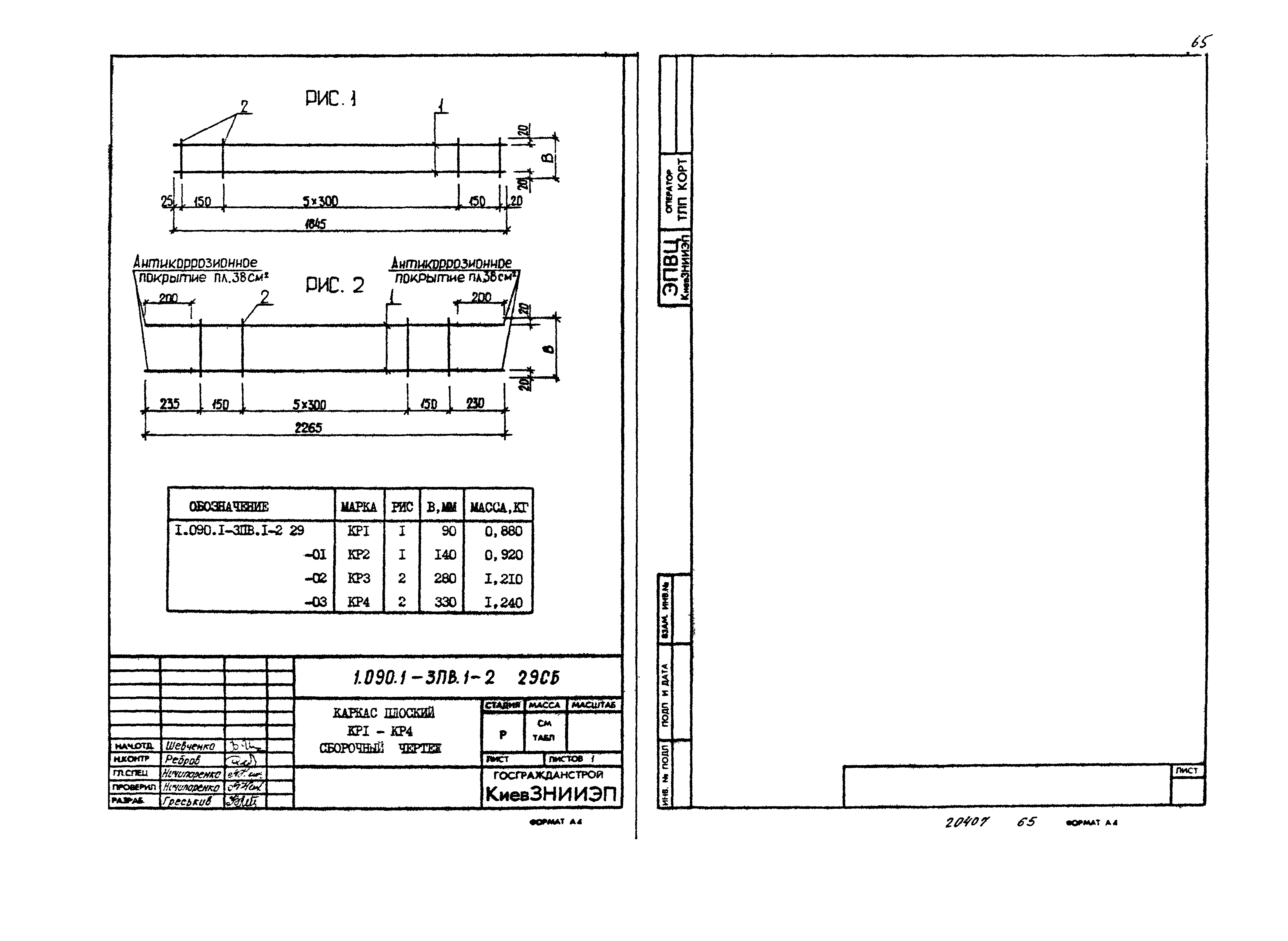
| Оглавление: | 1.090.1-3ПВ.1-2-00С Содержание 1.090.1-3ПВ.1-1-00ТО Техническое описание 1.090.1-3ПВ.1-1-01 Панель цокольная ПСЦ60.19 1.090.1-3ПВ.1-1-02 Панель цокольная ПСЦ30.19 1.090.1-3ПВ.1-1-03 Панель цокольная ПСЦ18.19 1.090.1-3ПВ.1-1-04 Панель цокольная ПСЦ12.19 1.090.1-3ПВ.1-1-05 Панель цокольная 1ПСЦ60.19 1.090.1-3ПВ.1-1-06 Панель цокольная 1ПСЦ30.19 1.090.1-3ПВ.1-1-07 Панель цокольная 2ПСЦ30.19 1.090.1-3ПВ.1-1-08 Панель цокольная 1ПСЦ29.19,2ПСЦ29.19 1.090.1-3ПВ.1-1-09 Панель цокольная 1ПСЦ17.19,2ПСЦ17.19 1.090.1-3ПВ.1-1-10 Панель цокольная 1ПСЦ11.19,2ПСЦ11.19 1.090.1-3ПВ.1-1-11 Панель цокольная ПСЦ28.19 1.090.1-3ПВ.1-1-12 Панель цокольная 1ПСЦ33.19,2ПСЦ33.19 1.090.1-3ПВ.1-1-13 Панель цокольная 1ПСЦ21.19,2ПСЦ21.19 1.090.1-3ПВ.1-1-14 Панель цокольная 1ПСЦ15.19,2ПСЦ15.19 1.090.1-3ПВ.1-1-00Д1 Узлы опалубочные 1.090.1-3ПВ.1-1-15 Каркас пространственный КП60.23 1.090.1-3ПВ.1-1-16 Каркас пространственный КП30.23 1.090.1-3ПВ.1-1-17 Каркас пространственный КП18.23 1.090.1-3ПВ.1-1-18 Каркас пространственный КП12.23 1.090.1-3ПВ.1-1-19 Каркас пространственный 1КП60.23 1.090.1-3ПВ.1-1-20 Каркас пространственный 1КП30.23 1.090.1-3ПВ.1-1-21 Каркас пространственный 2КП30.23 1.090.1-3ПВ.1-1-22 Каркас пространственный 1КП29.23,2КП29.23 1.090.1-3ПВ.1-1-23 Каркас пространственный 1КП17.23,2КП17.23 1.090.1-3ПВ.1-1-24 Каркас пространственный 1КП11.23,2КП11.23 1.090.1-3ПВ.1-1-25 Каркас пространственный КП28.23 1.090.1-3ПВ.1-1-26 Каркас пространственный 1КП33.23,2КП33.23 1.090.1-3ПВ.1-1-27 Каркас пространственный 1КП21.23,2КП21.23 1.090.1-3ПВ.1-1-28 Каркас пространственный 1КП15.23,2КП15.23 1.090.1-3ПВ.1-1-00Д2 Узлы арматурные 1.090.1-3ПВ.1-1-29 Каркас плоский КР1-КР4 1.090.1-3ПВ.1-1-30 Каркас плоский КР5,КР6 1.090.1-3ПВ.1-1-31 Сетка С1-С3 1.090.1-3ПВ.1-1-32 Сетка С4 1.090.1-3ПВ.1-1-33 Петля строповочная ПС1-ПС6 1.090.1-3ПВ.1-1-34 Стержень гнутый АН1,АН2 1.090.1-3ПВ.1-1-35 Стержень отдельный ОС1-ОС4 1.090.1-3ПВ.1-1-36 Стержень отдельный ОС5-ОС8 1.090.1-3ПВ.1-1-00РС Ведомость расхода стали на элемент, кг |
| Разработан: | КиевЗНИИЭП ЦНИИЭП торгово-бытовых зданий и туристских комплексов |
| Утверждён: | 01.11.1984 Госстрой СССР (Государственный комитет Совета Министров СССР по делам строительства) (USSR Gosstroy ИИ-32) |
| Издан: | ЦИТП Госстроя СССР (CITP, Gosstroy (USSR) 1985 г. ) |








































































